Скачать Типовой проект 901-8-8 Альбом III. Электротехническая часть. Связь и сигнализацияДата актуализации: 01.01.2021
|
| Обозначение: | Типовой проект 901-8-8 |
| Обозначение англ: | 901-8-8 |
| Статус: | не определен законодательством |
| Название рус.: | Альбом III. Электротехническая часть. Связь и сигнализация |
| Дата добавления в базу: | 01.10.2014 |
| Дата актуализации: | 01.01.2021 |
| Дата введения: | 24.09.1982 |
| Дата окончания срока действия: | 30.06.2003 |
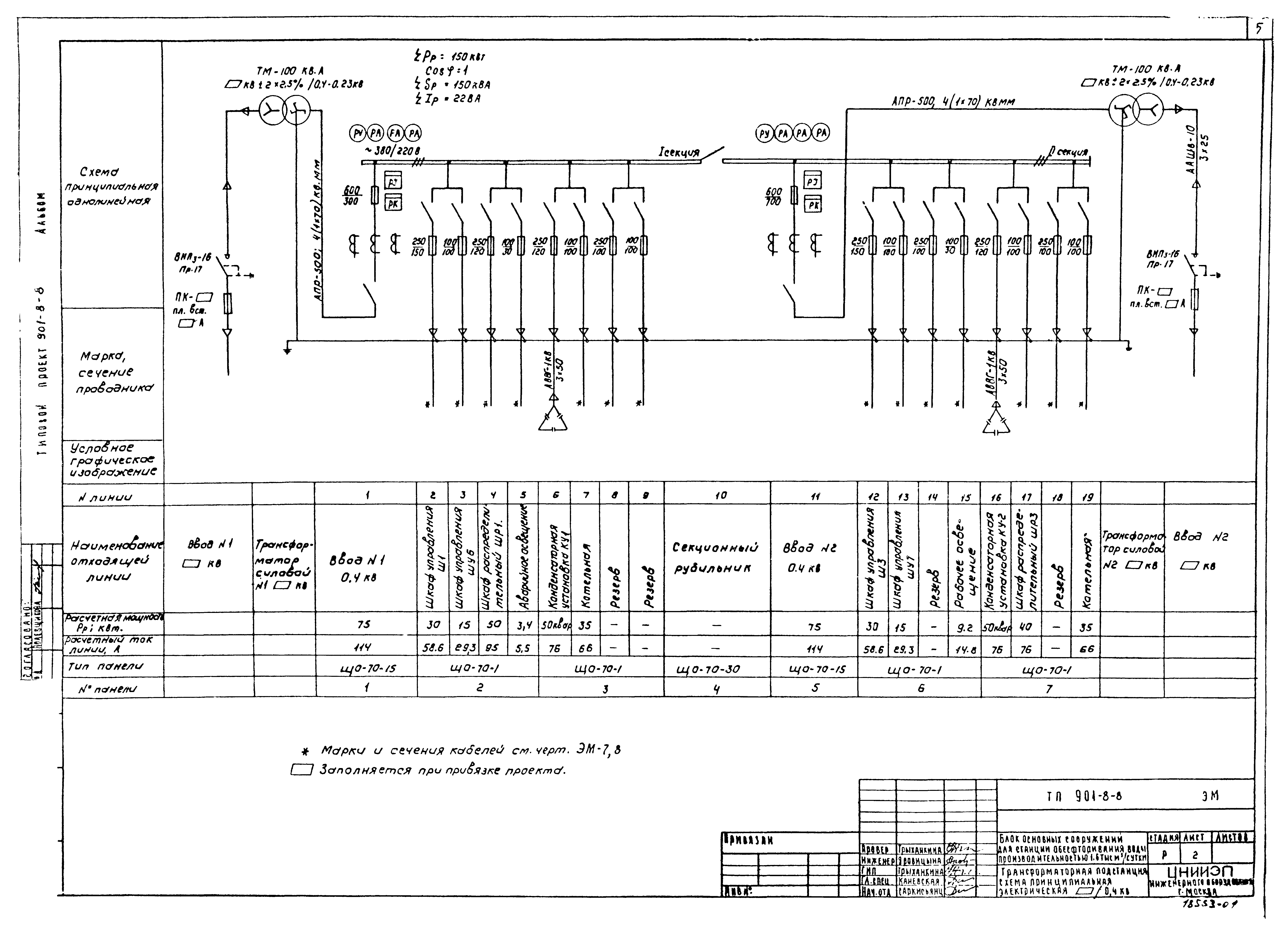
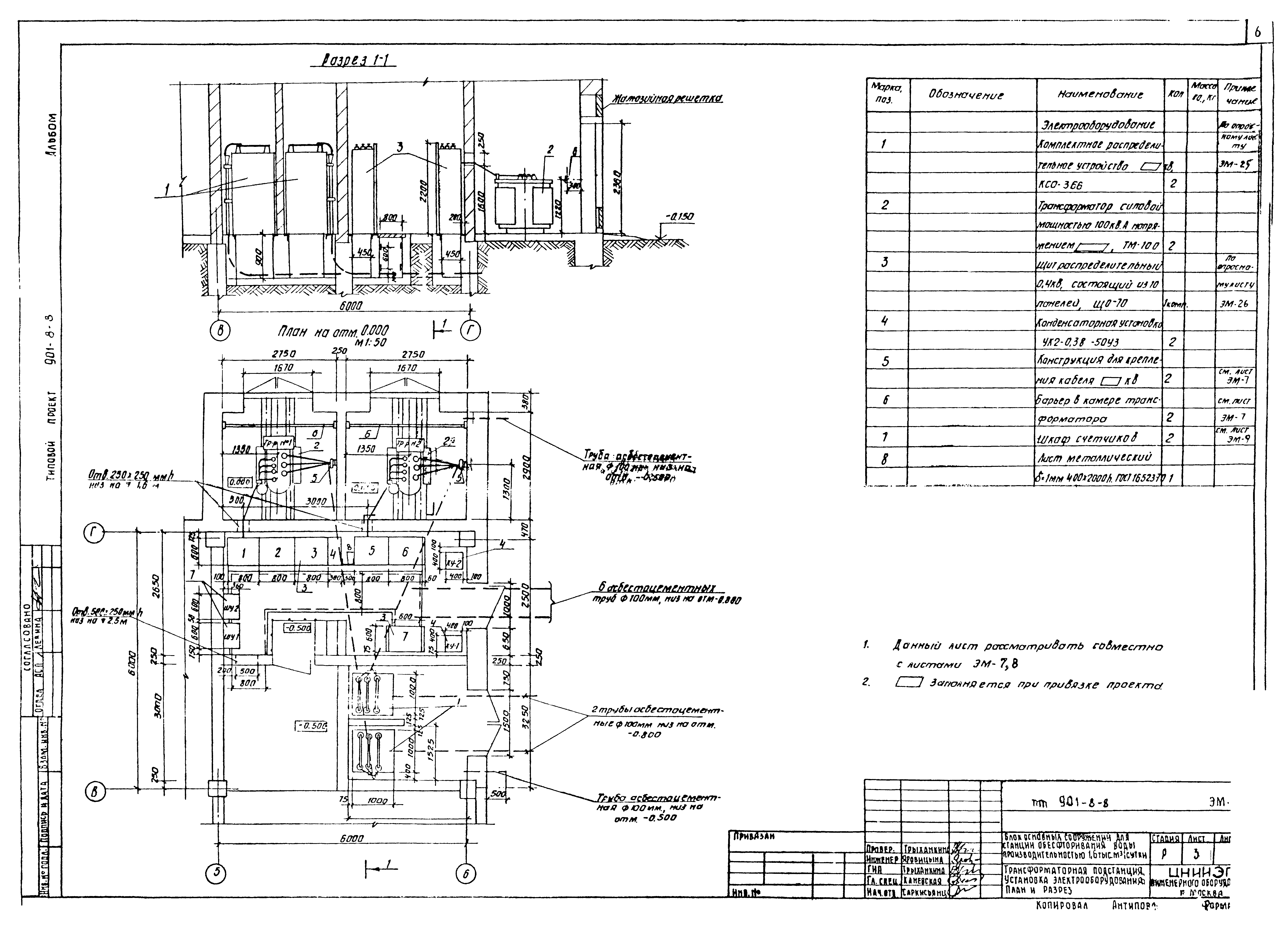
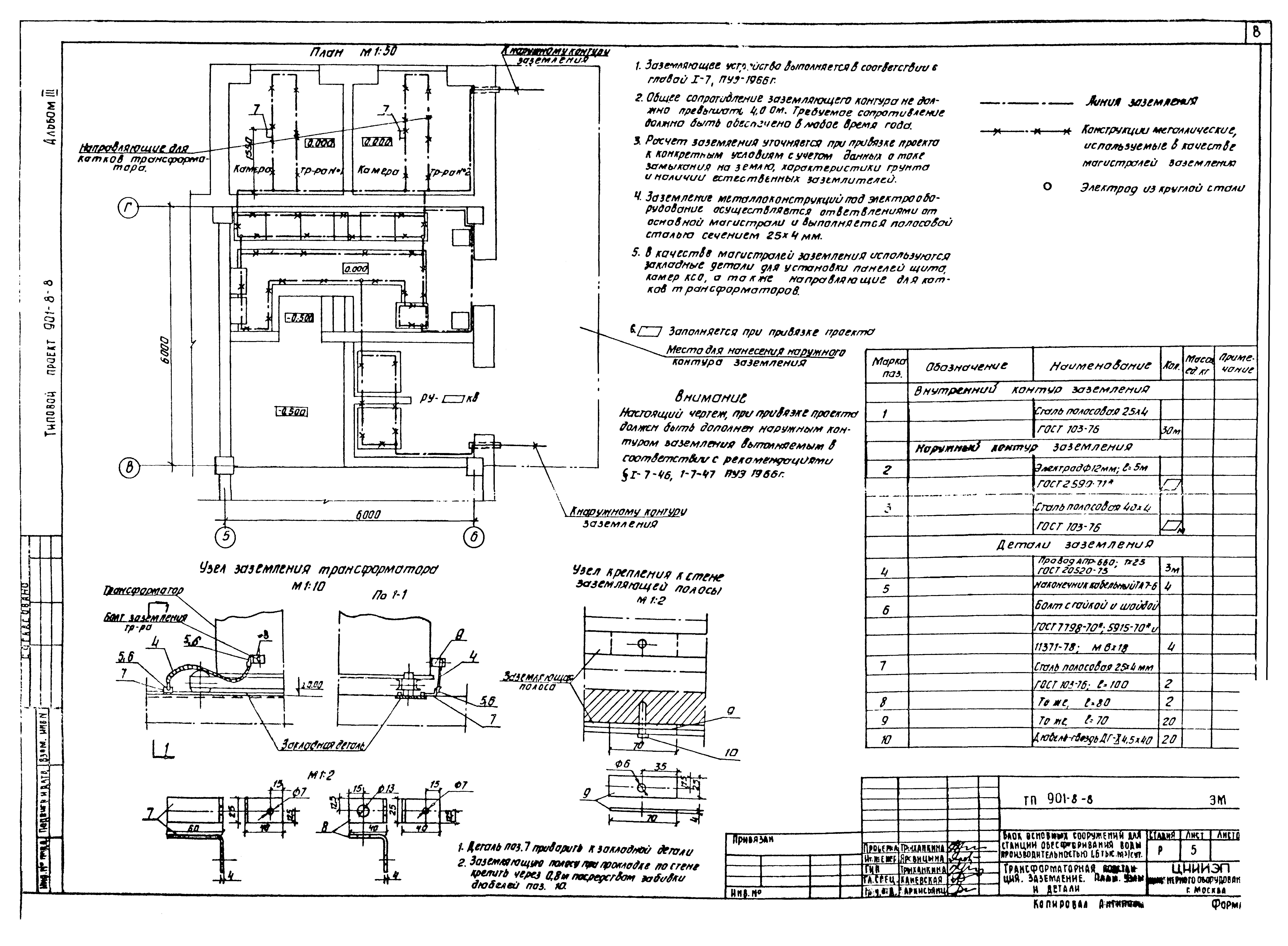
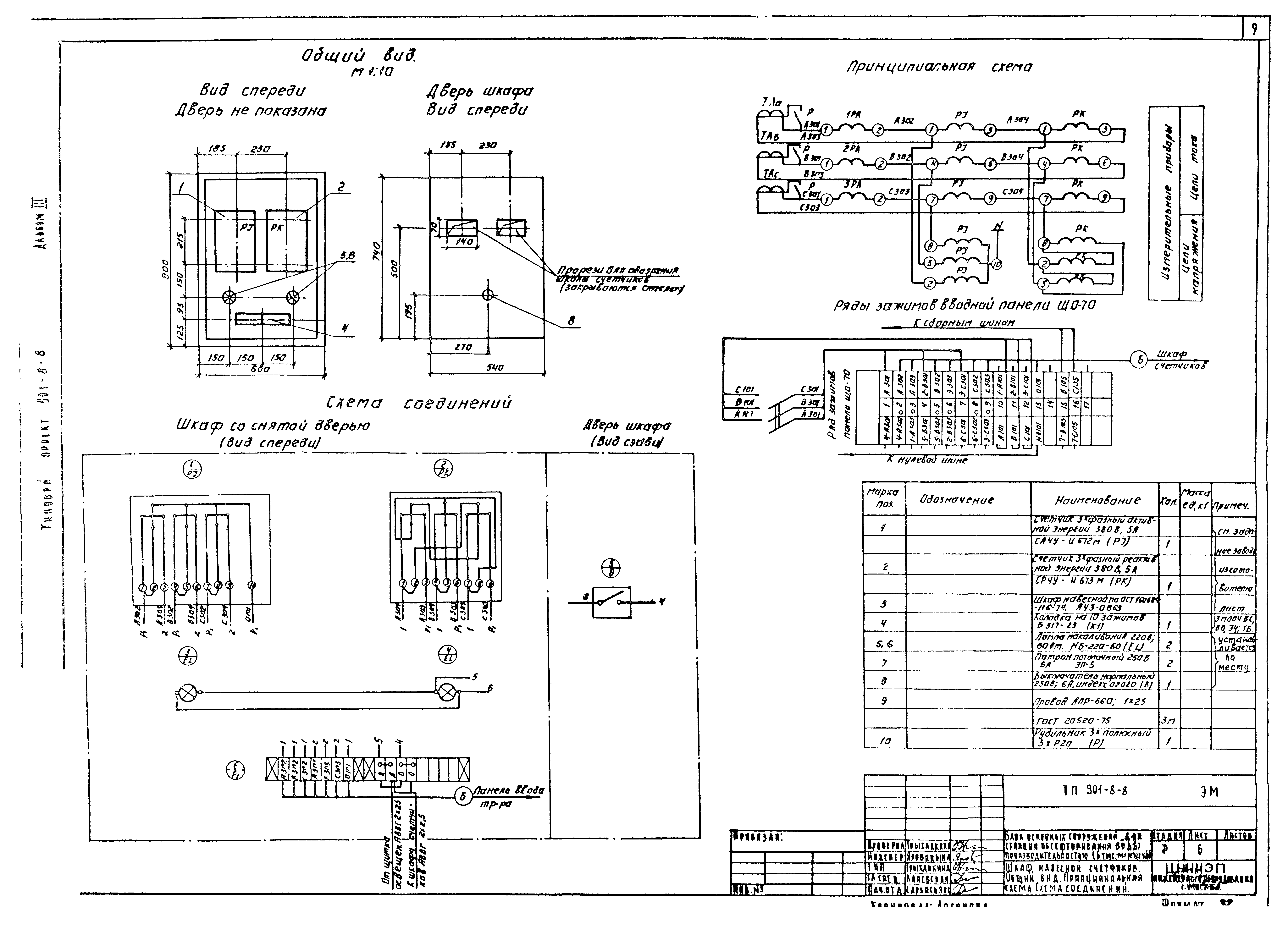
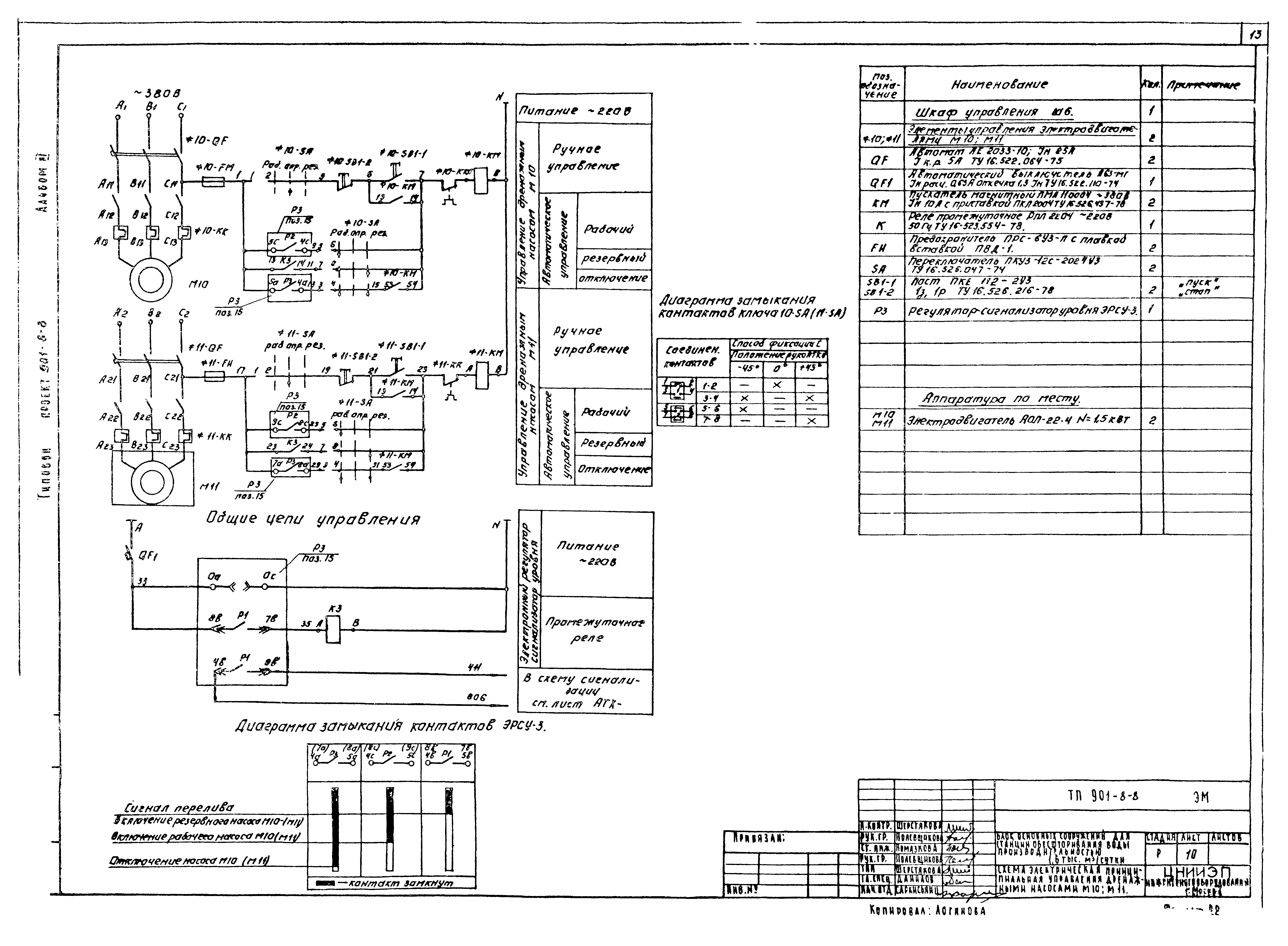
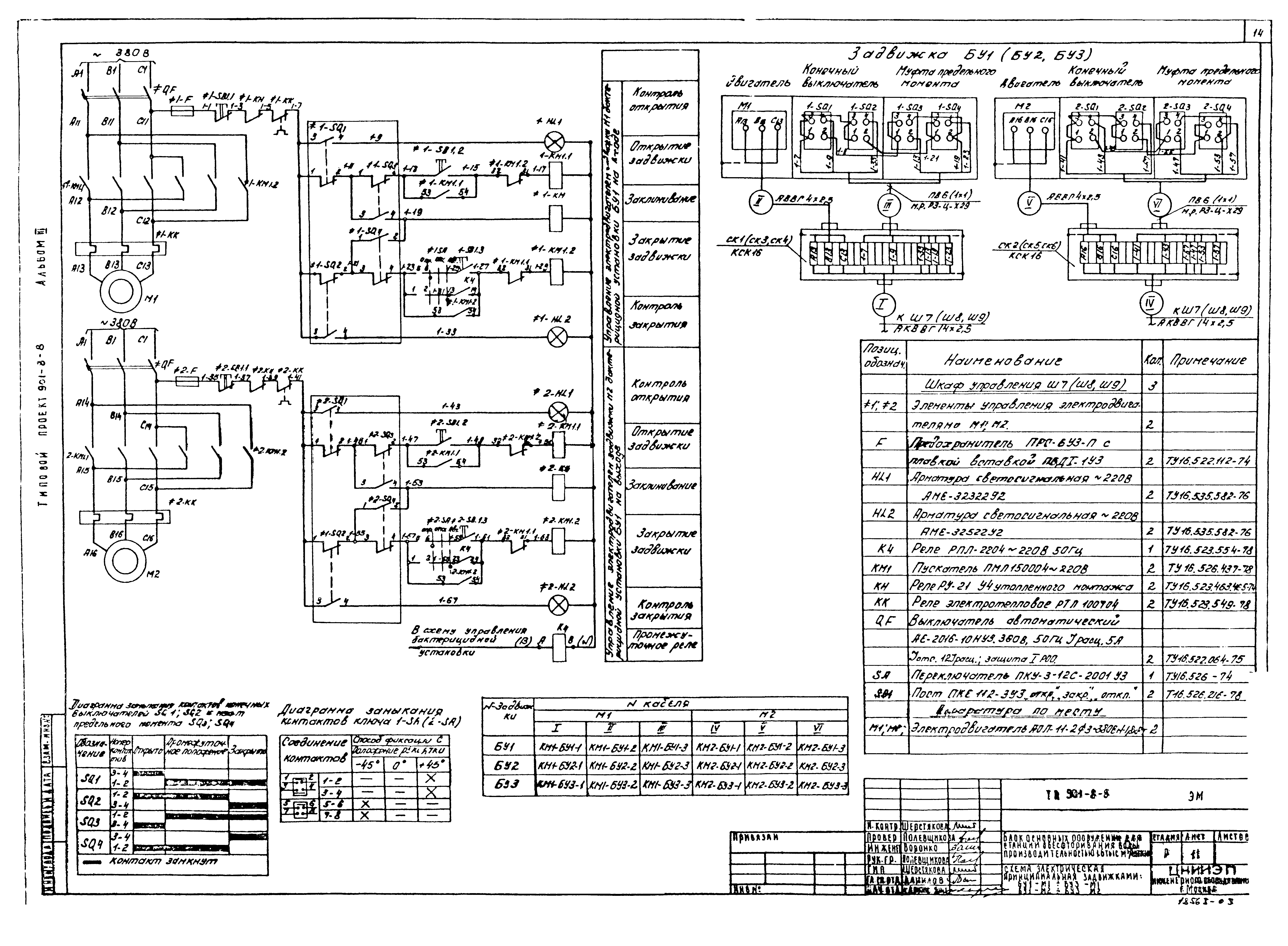
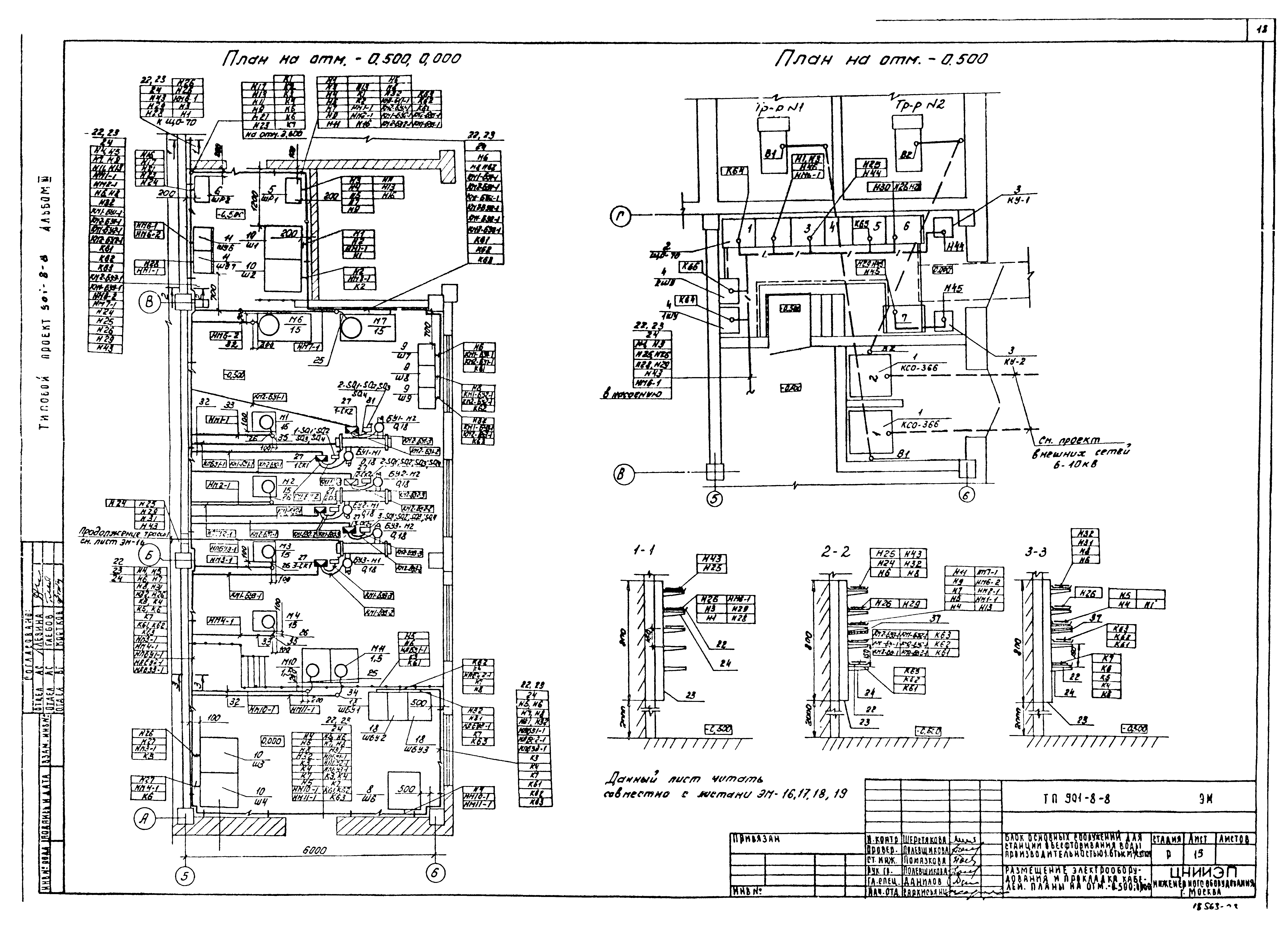
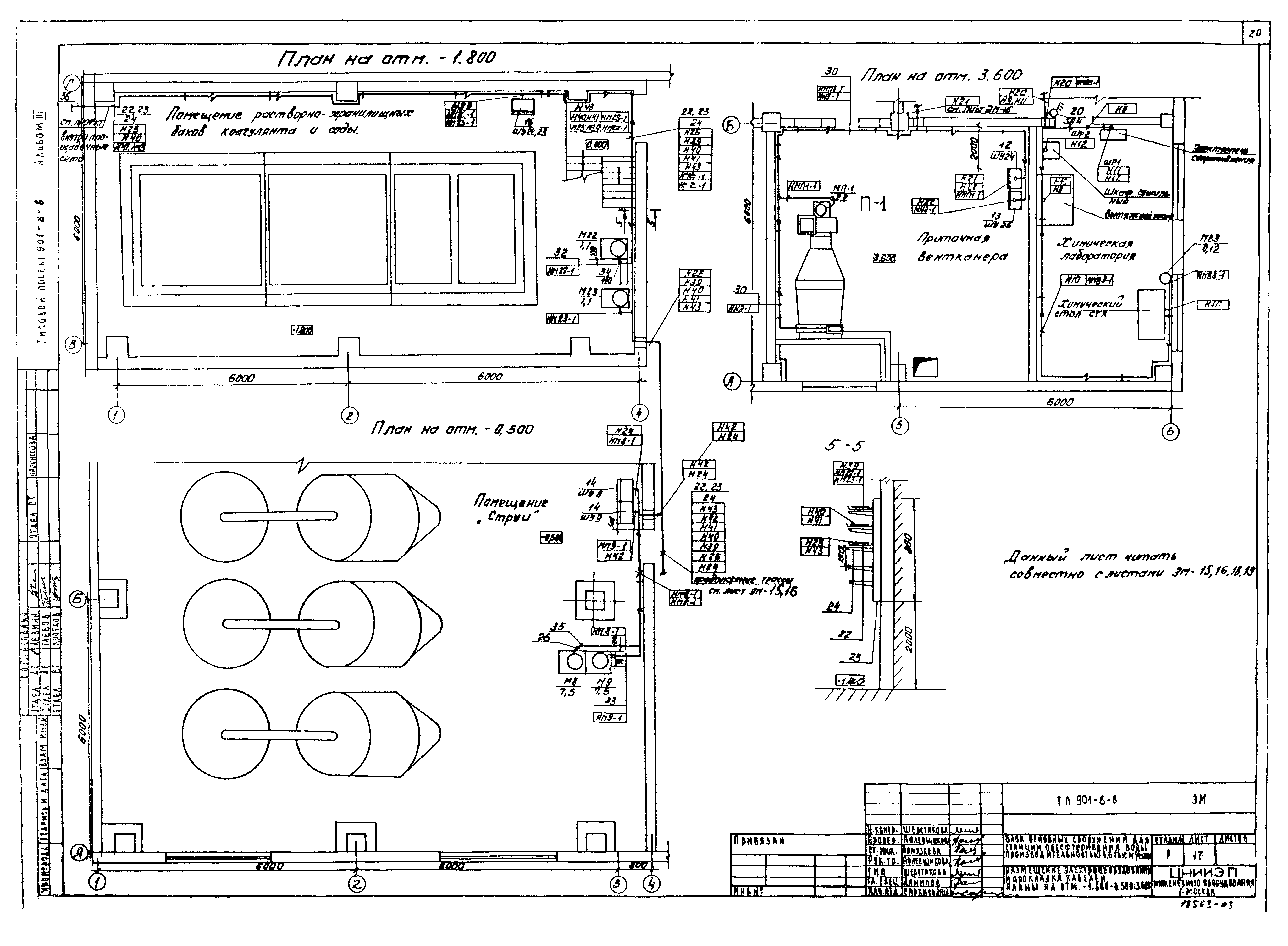
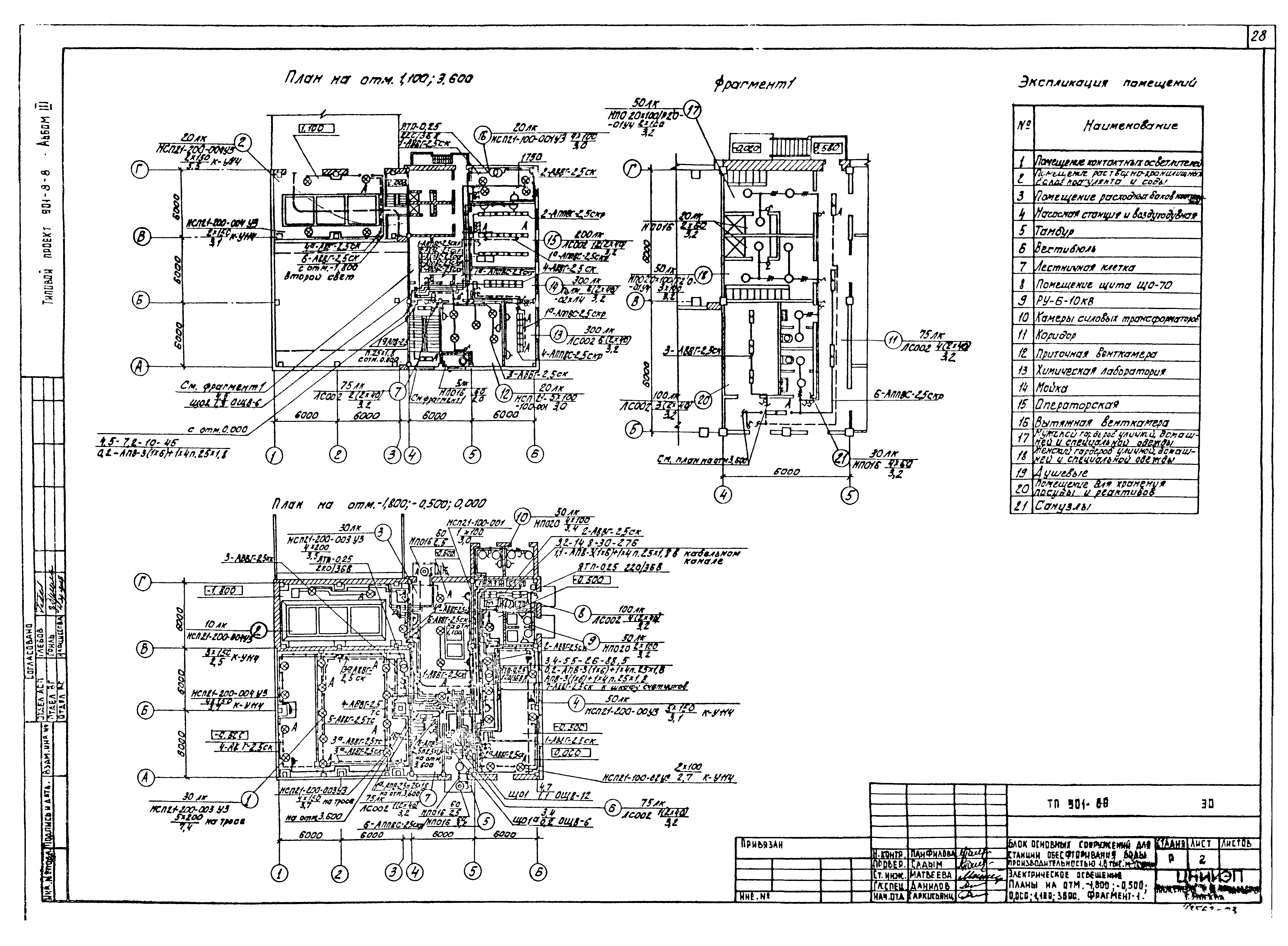
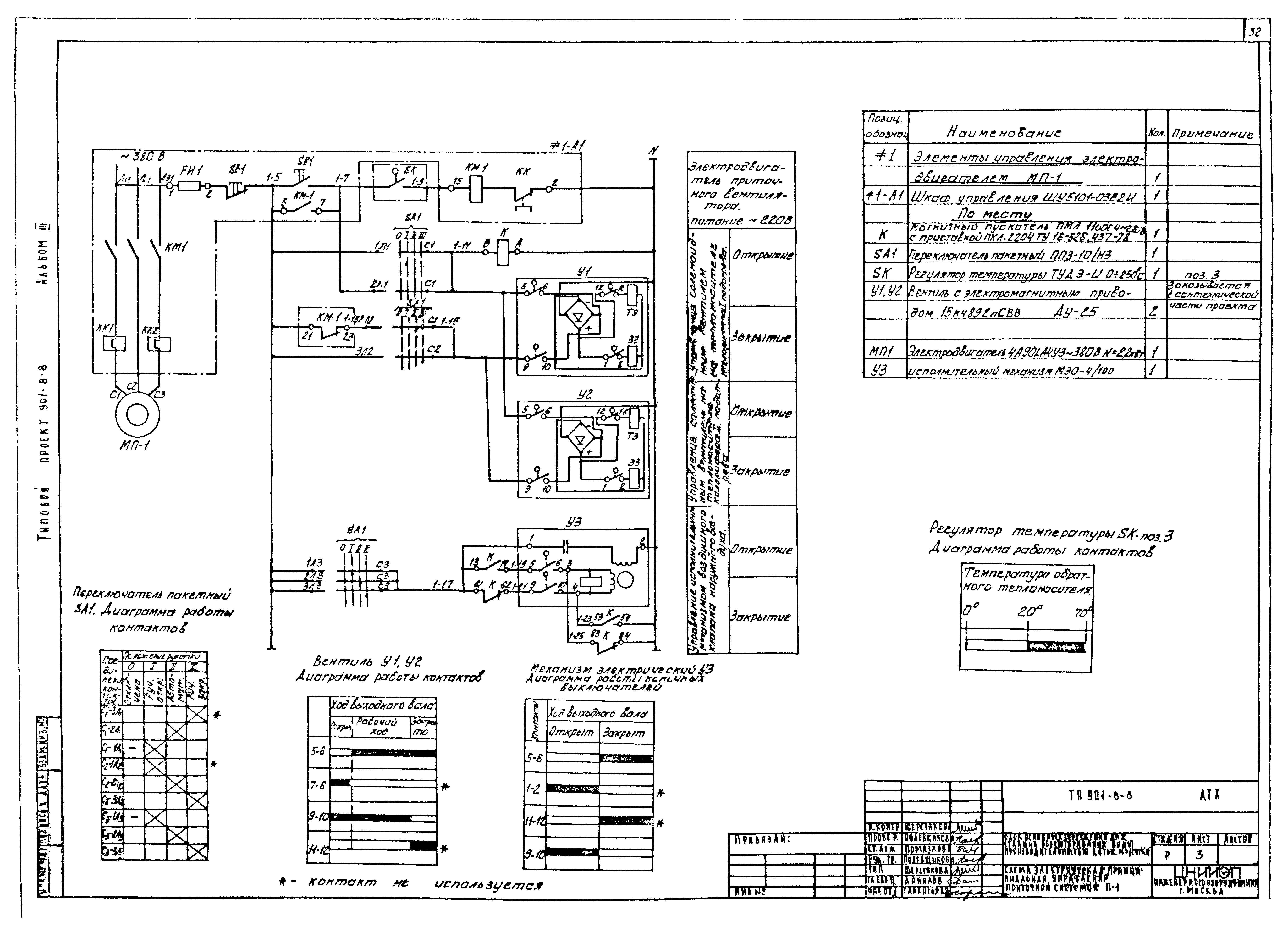
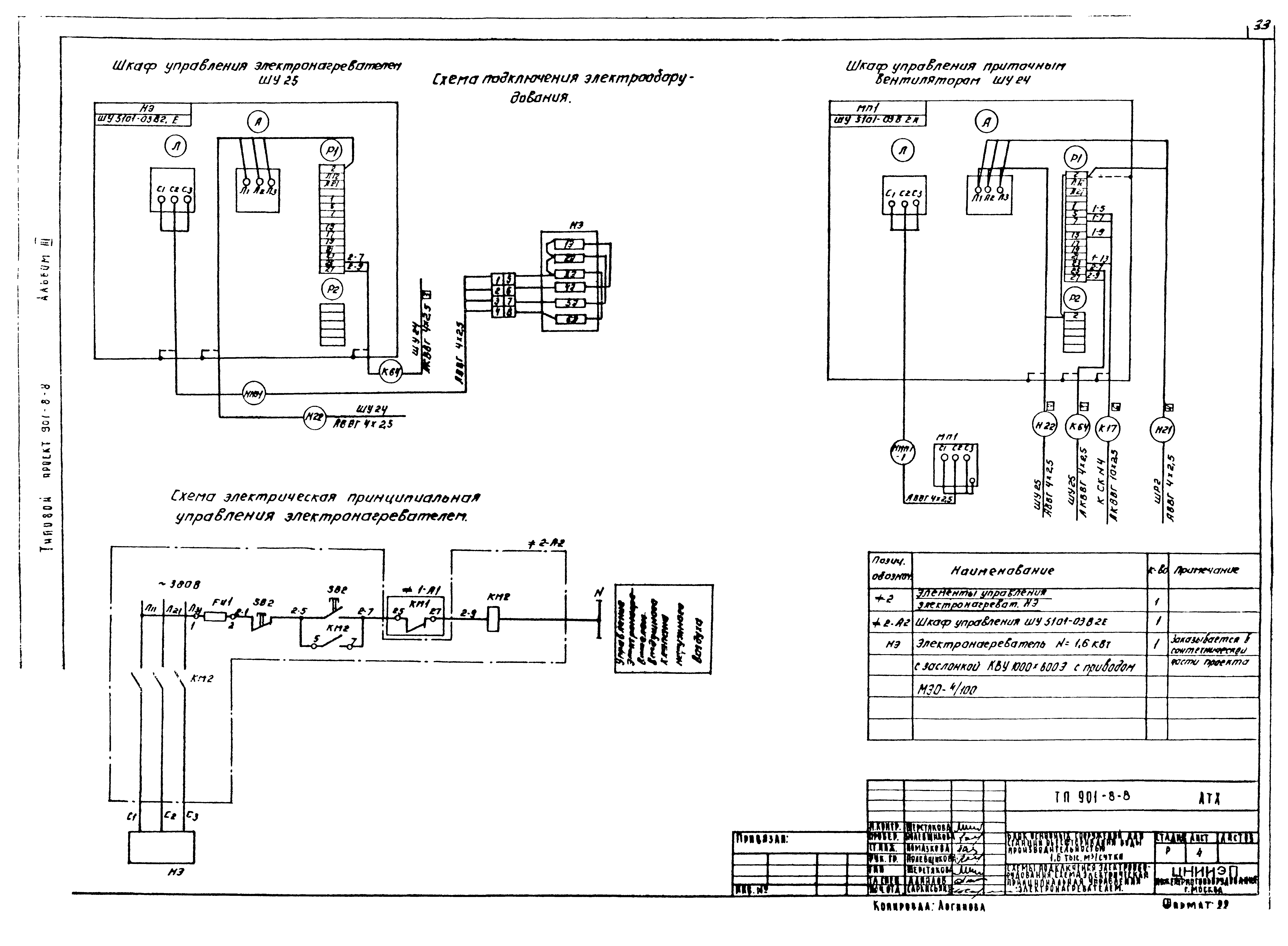
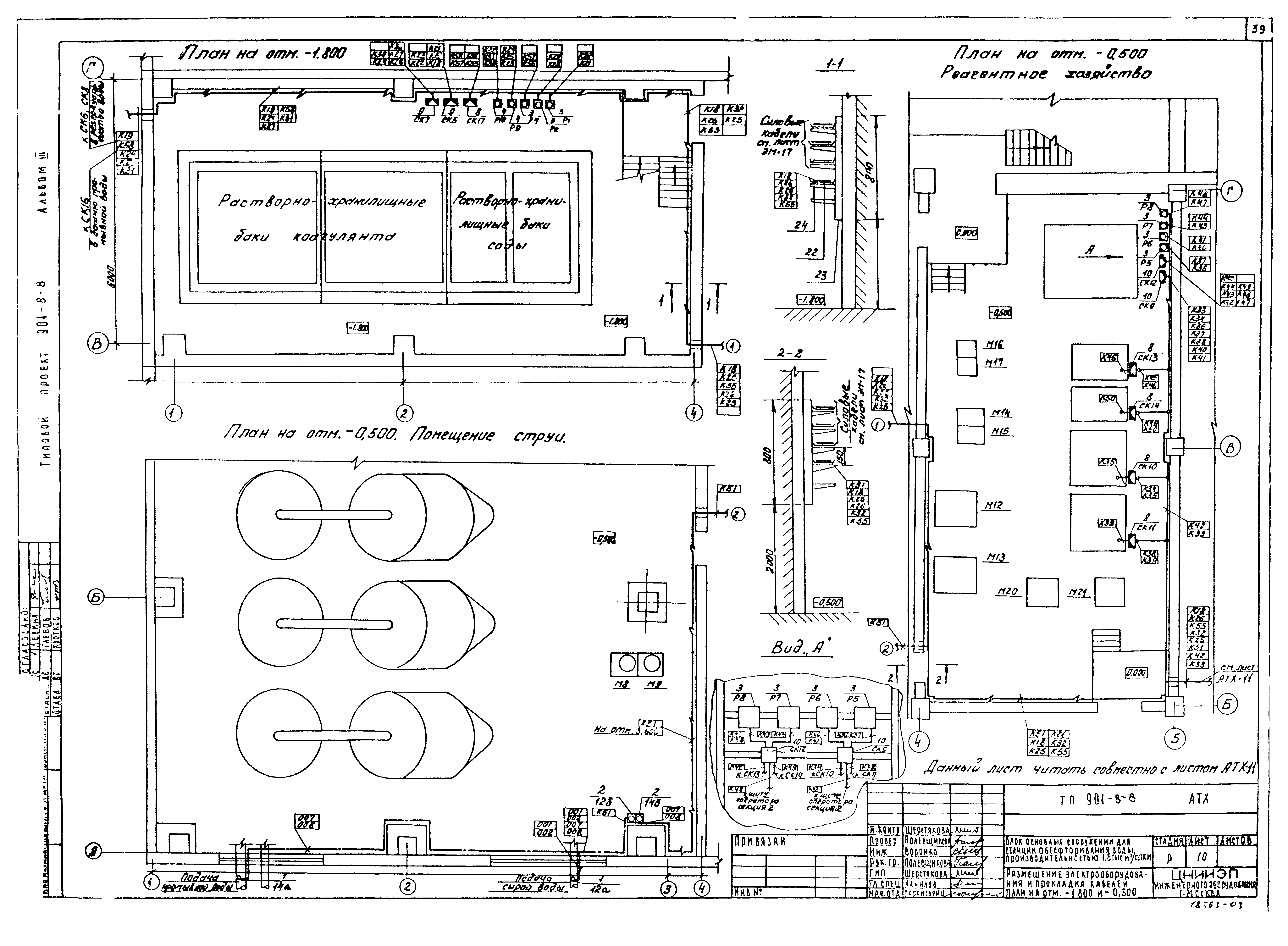
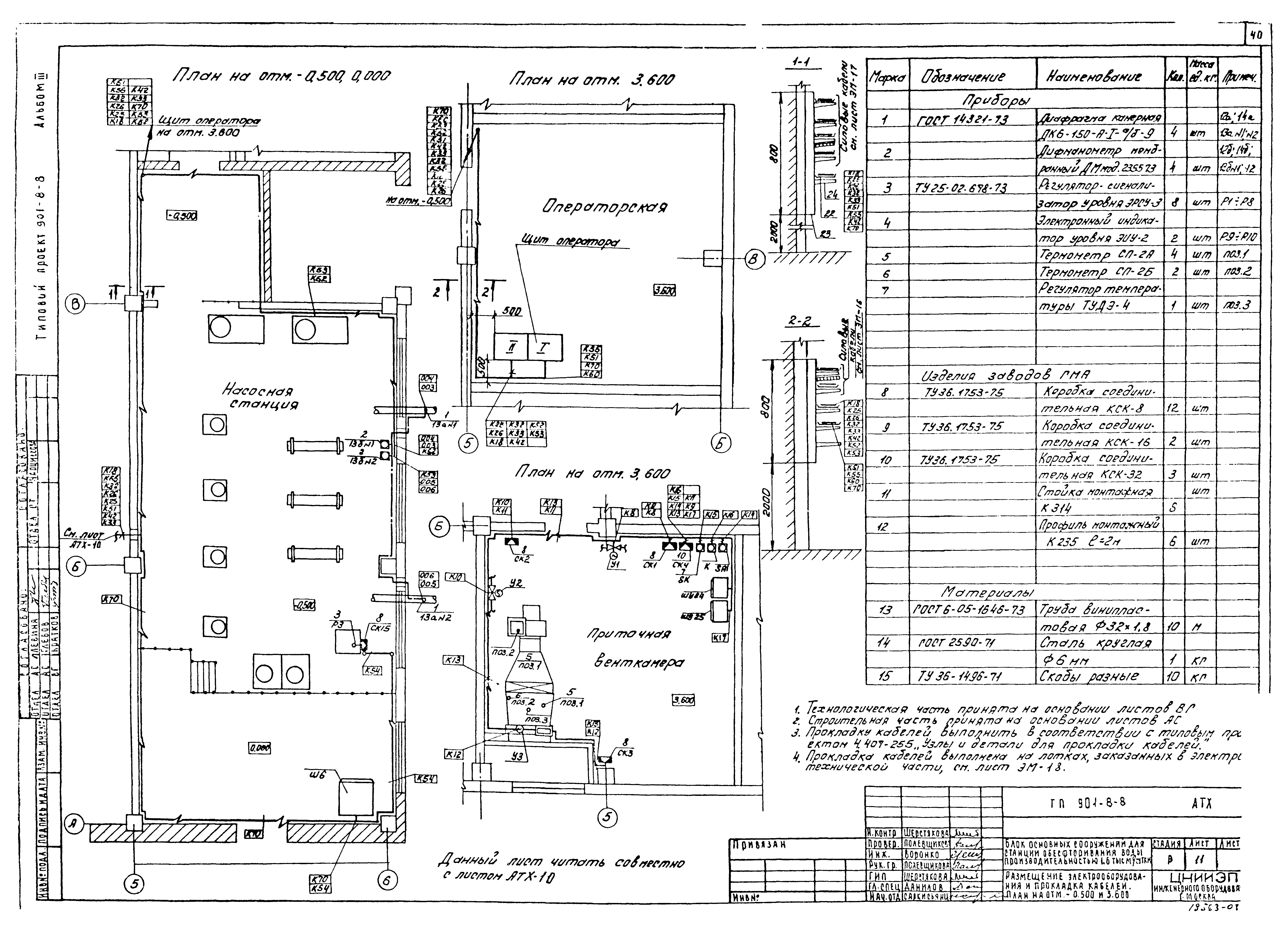
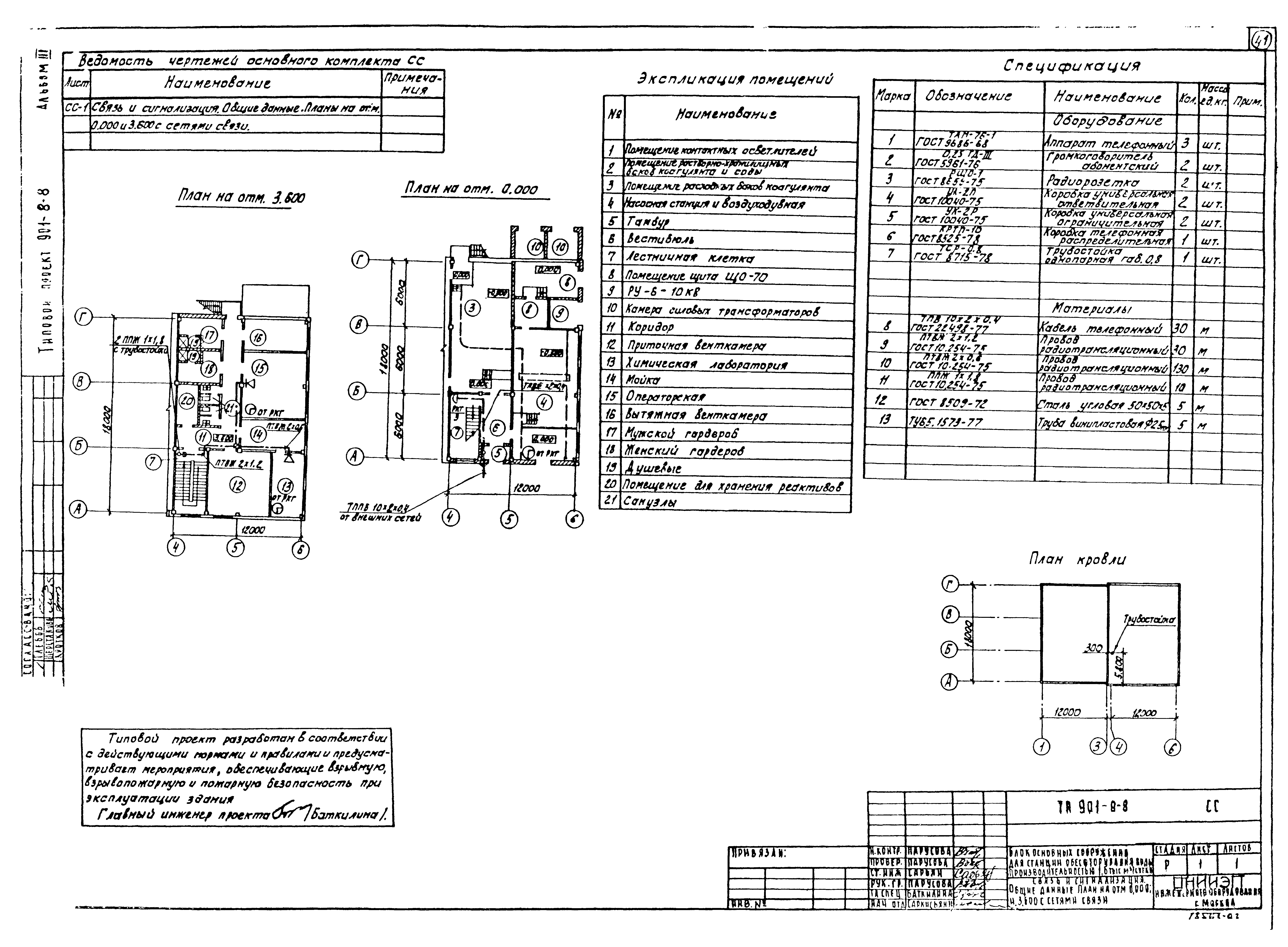
| Оглавление: | Содержание альбома Силовое электрооборудование Общие данные Трансформаторная подстанция. Схема принципиальная электрическая Трансформаторная подстанция. Установка электрооборудования. План и разрез Трансформаторная подстанция. Выводы И, Н в камере трансформатора. Конструкции Трансформаторная подстанция. Заземление. План. Узлы и детали Шкаф навесной счетчиков. Общий вид. Принципиальная схема. Схема соединений Схема электрическая принципиальная распределительной сети 380/220 В Схема электрическая принципиальная управления хозпротивопожарными насосами М1 (М2 - М4) Схема электрическая принципиальная управления дренажными насосами М10, М11 Схема электрическая принципиальная управления задвижками БУ1-М1 - БУ3-М1; БУ1-М2 - БУ3-М2 Кабельный журнал Размещение электрооборудования и прокладка кабелей. Планы на отм. - 0.500; 0.000 Размещение электрооборудования и прокладка кабелей. Планы на отм. - 0.500; 3.600 Размещение электрооборудования и прокладка кабелей. Планы на отм. - 1.800; - 0.500; 3.600 Размещение электрооборудования и прокладка кабелей. Спецификация План прокладки троллейного шинопровода для электрической тали Ведомость электрооборудования и кабельных изделий Ведомость потребности в электромонтажных изделиях Опросный лист для заказа камер серии КСО-366 Опросный лист для заказа щита из панелей ЩО-70 Электроосвещение Общие данные Электрическое освещение. Планы на отм. - 1.800; - 0.500; 0.000; 1.000; 3.600. Фрагмент 1 Ведомость электрооборудования и кабельных изделий, объемов электромонтажных работ, потребности в электромонтажных изделиях Автоматизация технологического процесса Общие данные. Схема функциональная приточной системы П-1 Схема функциональная технологического процесса Схема электрическая принципиальная управления приточной системой П-1 Схема подключения электрооборудования. Схема электрическая принципиальная управления электронагревателем Схема подключения приборов и устройств технологического контроля приточной системы П-1 Схема электрическая принципиальная распределительной сети Схема электрическая принципиальная сигнализации Схема внешних проводок Схема подключения Размещение электрооборудования и прокладка кабелей. План на отм. - 1.800; - 0.500 Размещение электрооборудования и прокладка кабелей. План на отм. - 0.500; 3.600 Связь и сигнализация Общие данные. План на отм. 0.000 и 3.600 с сетями связи |
| Разработан: | ЦНИИЭП |
| Утверждён: | 22.07.1981 Госгражданстрой (Gosgrazhdanstroy 219) |







































