Скачать Серия ИИ-62 Выпуск 3. Колонны под полезные нормативные нагрузки 500 и 1000 кг/кв. мДата актуализации: 01.01.2021
|
| Обозначение: | Серия ИИ-62 |
| Обозначение англ: | Series ИИ-62 |
| Статус: | действует |
| Название рус.: | Выпуск 3. Колонны под полезные нормативные нагрузки 500 и 1000 кг/кв. м |
| Дата добавления в базу: | 01.10.2014 |
| Дата актуализации: | 01.01.2021 |
| Дата введения: | 14.12.1962 |
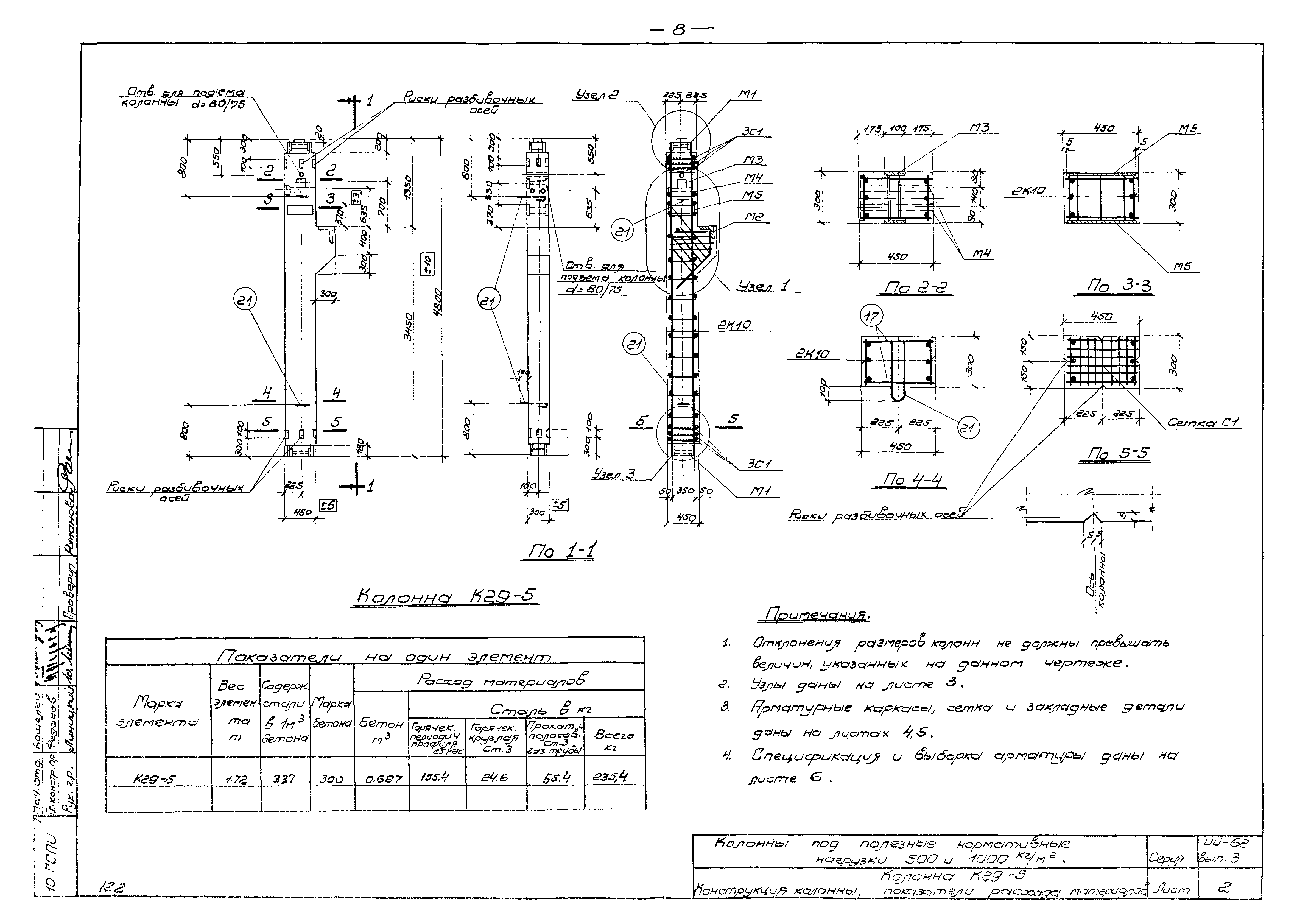
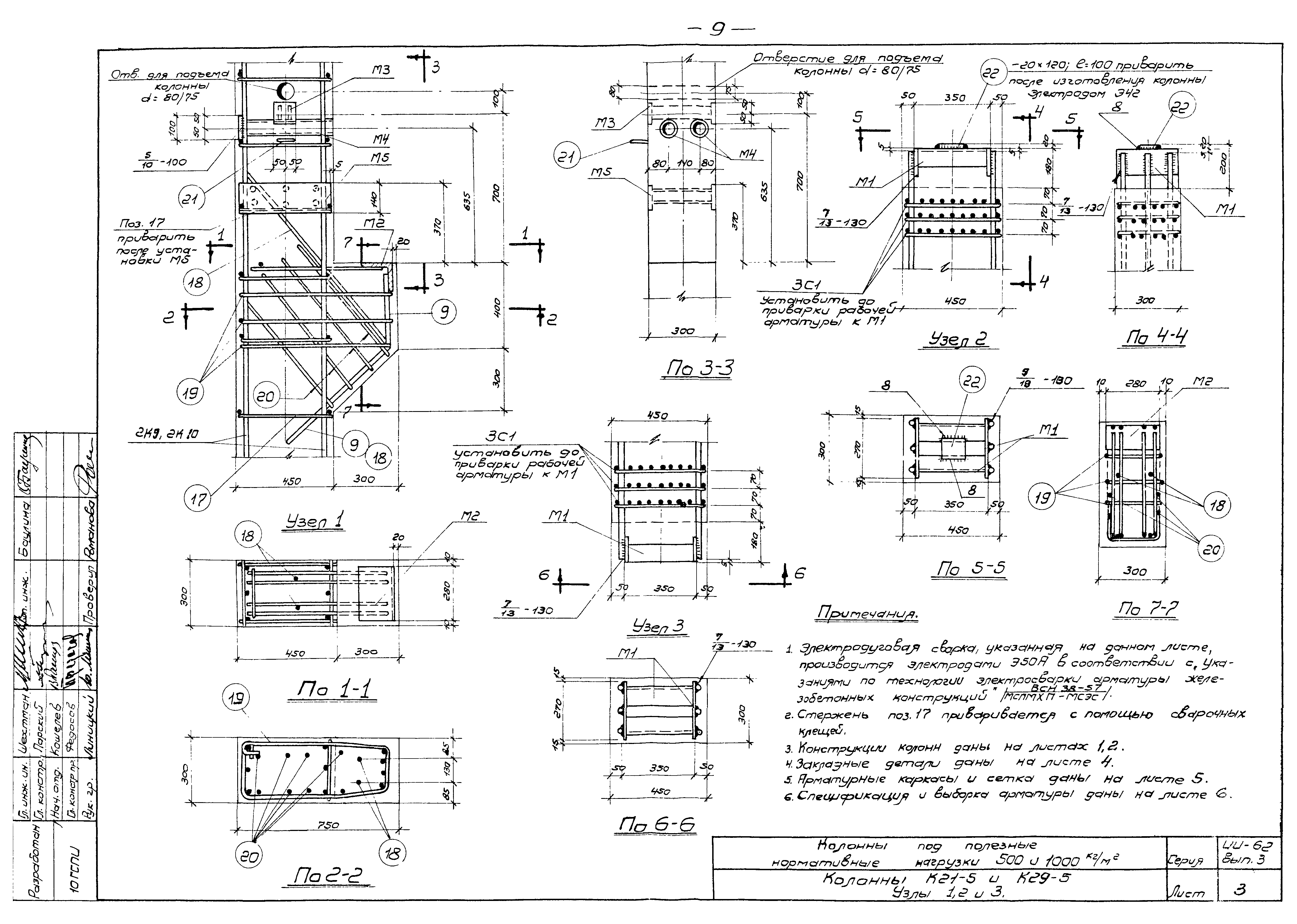
| Оглавление: | Содержание альбома Пояснительная записка Колонна К21-5. Конструкция колонны, показатели расхода материалов Колонна К29-5. Конструкция колонны, показатели расхода материалов Колонны К21-5 и К29-5. Узлы 1, 2 и 3 Колонны К21-5 и К29-5. Закладные детали Колонны К21-5 и К29-5. Арматурные каркасы и сетка Колонны К21-5 и К29-5. Спецификация и выборка арматуры Колонны К19-1-С; К21-2-С; К21-3-С; К21-4-С; К21-5-С; К-27-1-С; К29-2-С; К29-3-С; К29-4-С; К29-5-С. Схемы расположения закладных деталей для крепления связей. Показатели расхода материалов Колонны К19-1-С; К21-2-С; К21-3-С; К21-4-С; К21-5-С; К-27-1-С; К29-2-С; К29-3-С; К29-4-С; К29-5-С. Узлы с размещением закладных деталей для крепления связей Закладные детали МС1, МС2, МС3 Колонны К19-1-С; К21-2-С; К21-3-С; К21-4-С; К21-5-С. Спецификация и выборка арматуры Колонны К-27-1-С; К29-2-С; К29-3-С; К29-4-С; К29-5-С. Спецификация и выборка арматуры Колонны К21-4-С; К29-4-С. Спецификация и выборка арматуры |
| Разработан: | ГСПИ-10 Гипротис |
| Утверждён: | 14.12.1962 Государственный комитет Совета Министров СССР по делам строительства (466) |
| Принят: | НИИЖБ |
















