Скачать Типовой проект 409-28-40 Альбом II. Теплотехническая частьДата актуализации: 01.01.2021
|
| Обозначение: | Типовой проект 409-28-40 |
| Обозначение англ: | 409-28-40 |
| Статус: | действует |
| Название рус.: | Альбом II. Теплотехническая часть |
| Дата добавления в базу: | 01.10.2014 |
| Дата актуализации: | 01.01.2021 |
| Дата введения: | 18.09.1981 |
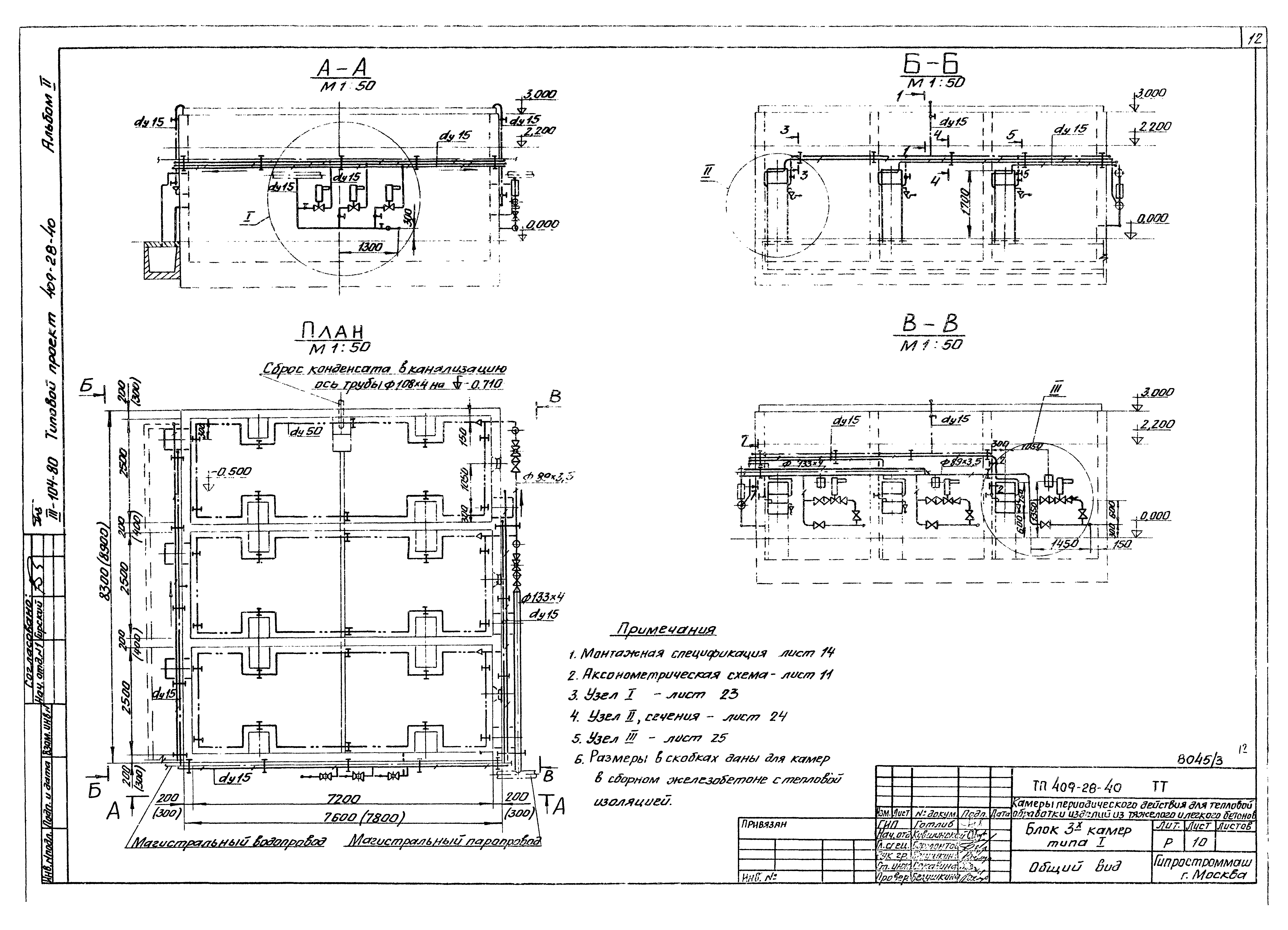
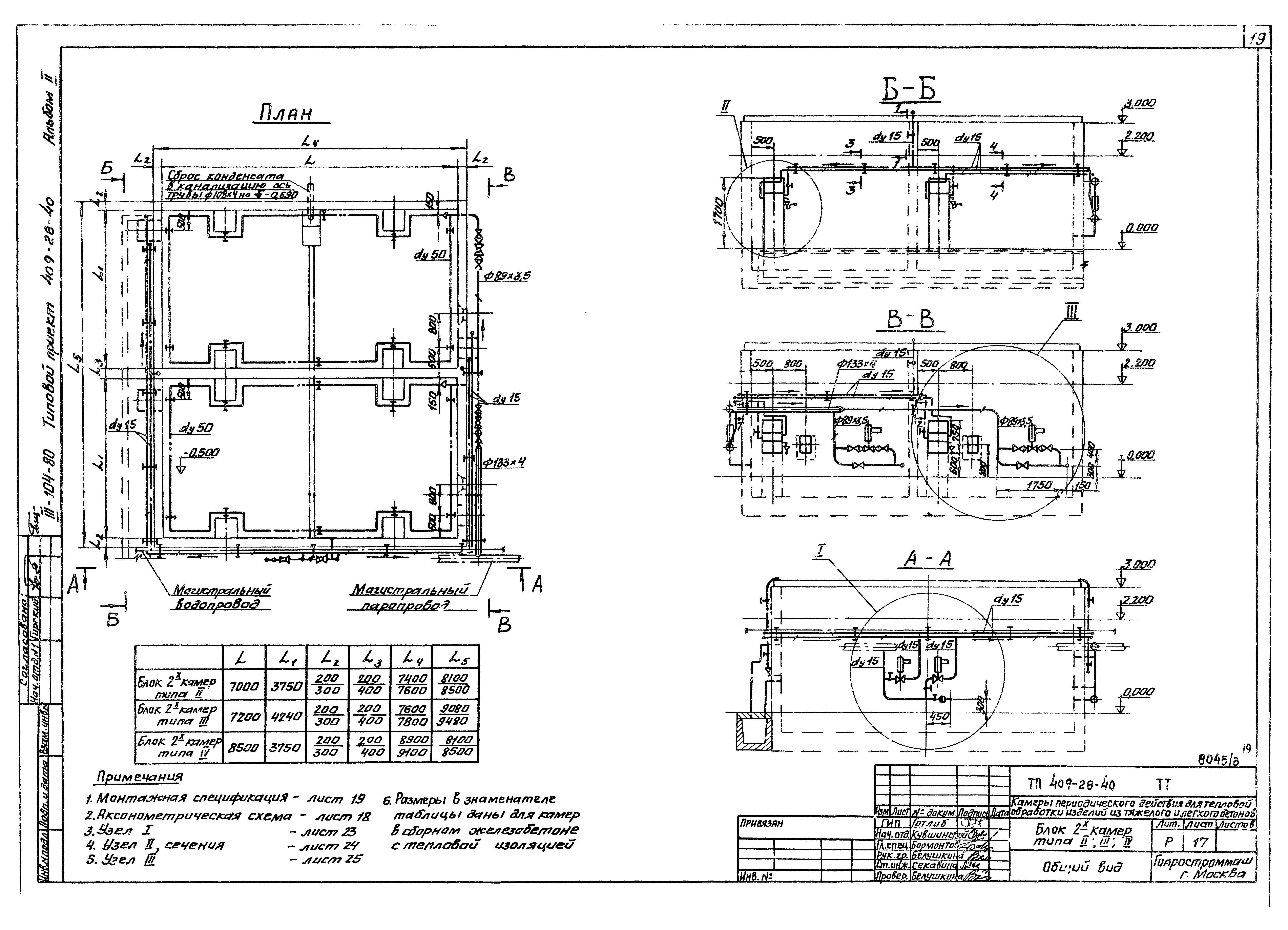
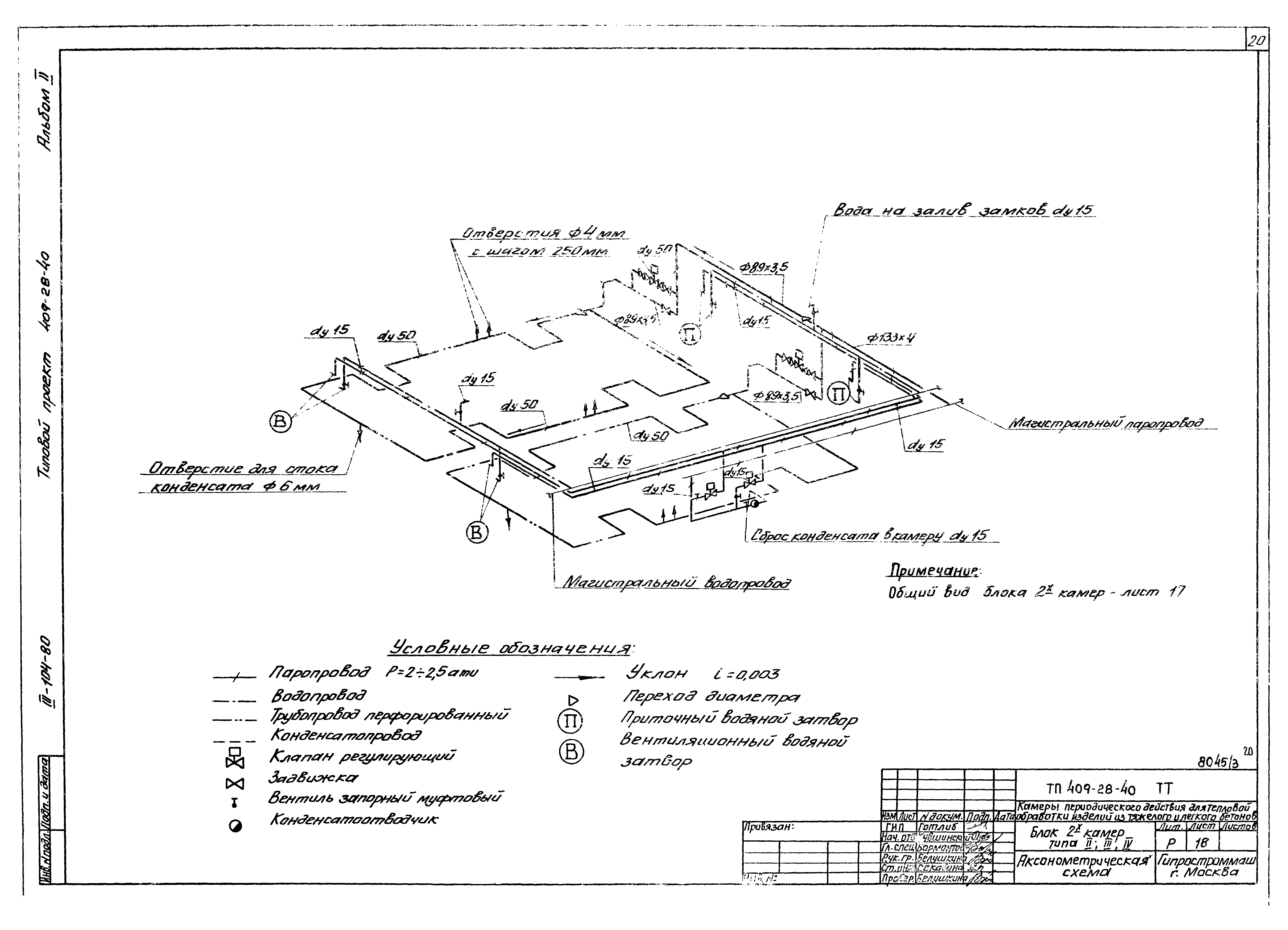
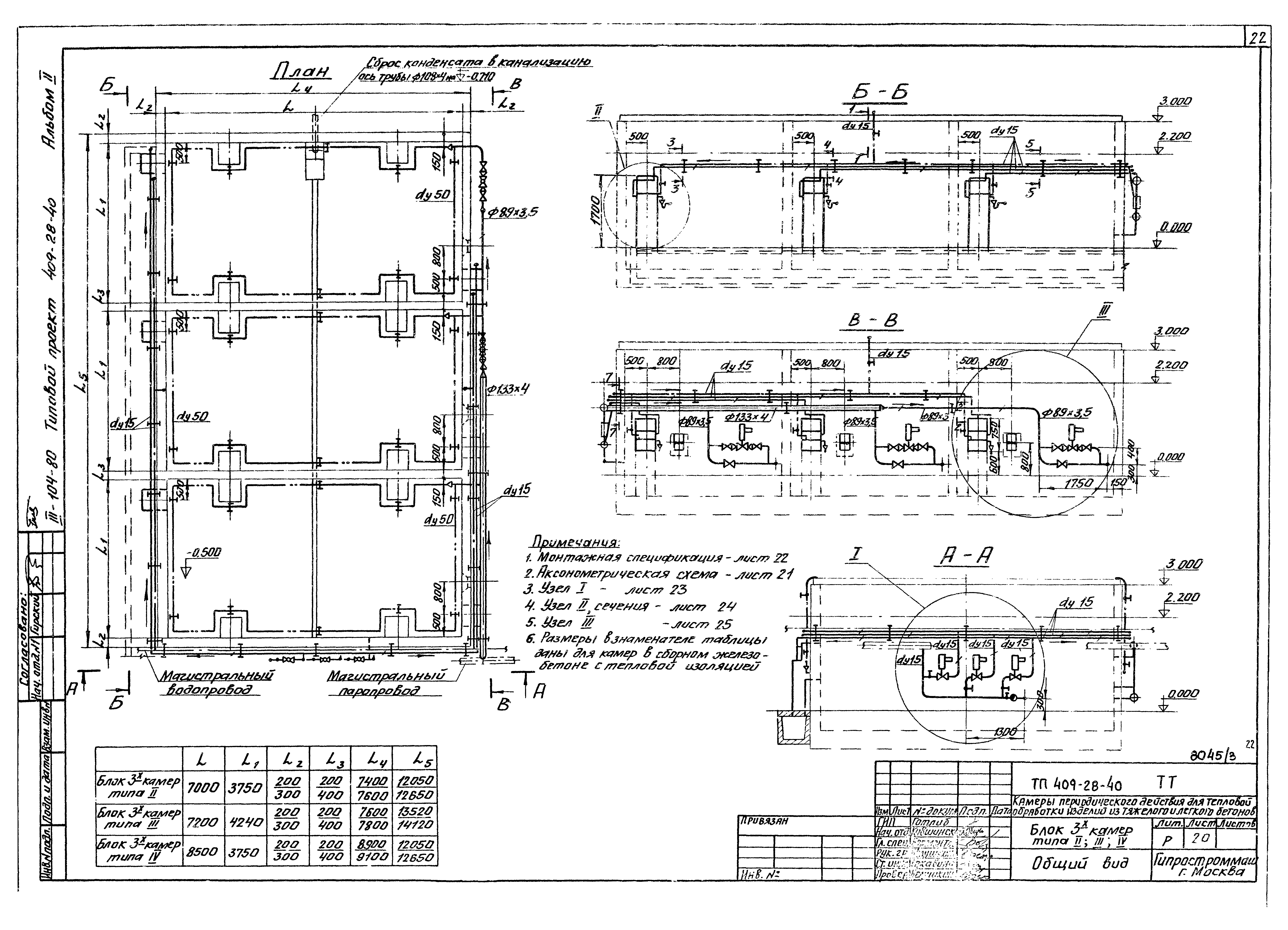
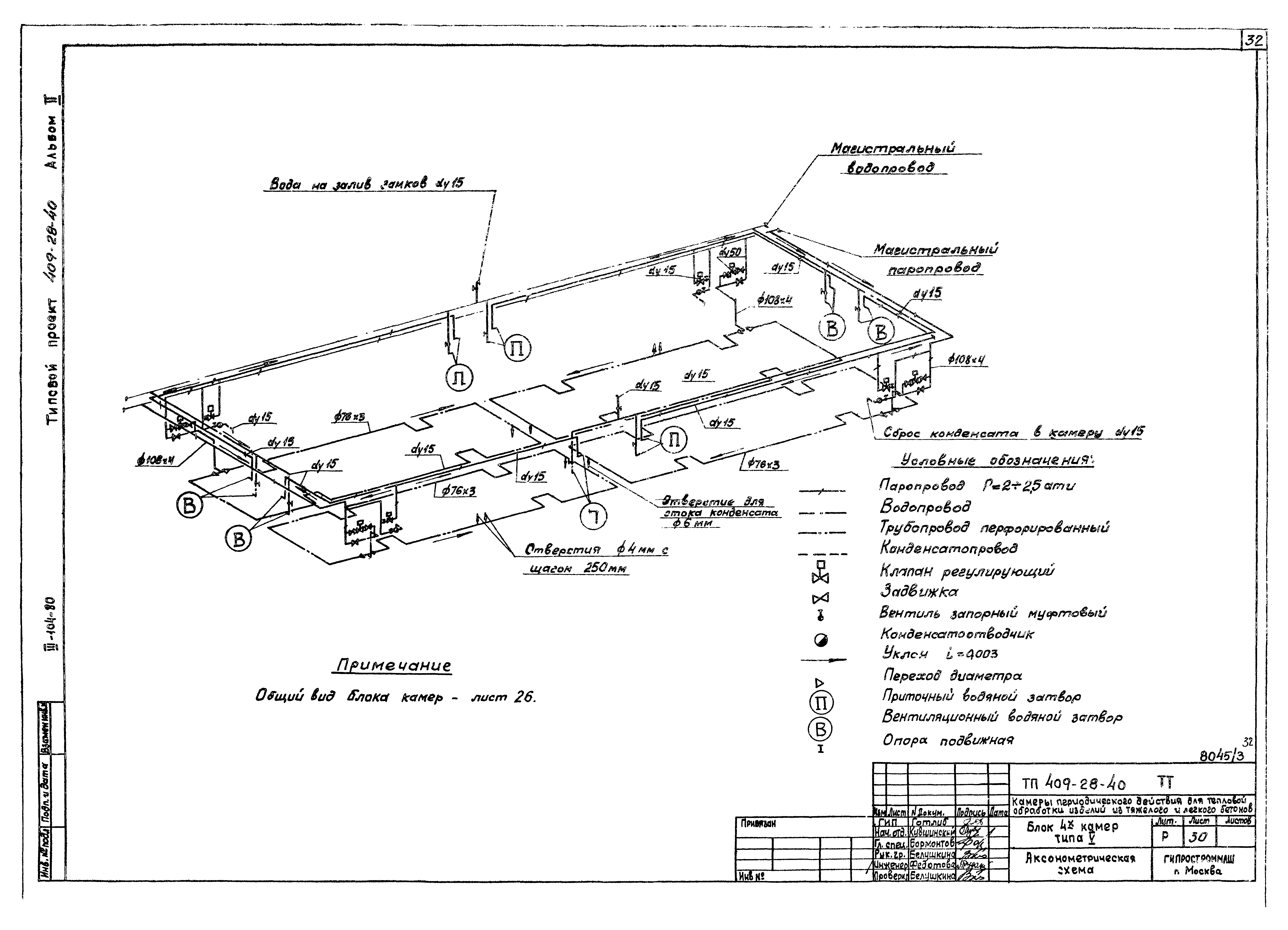
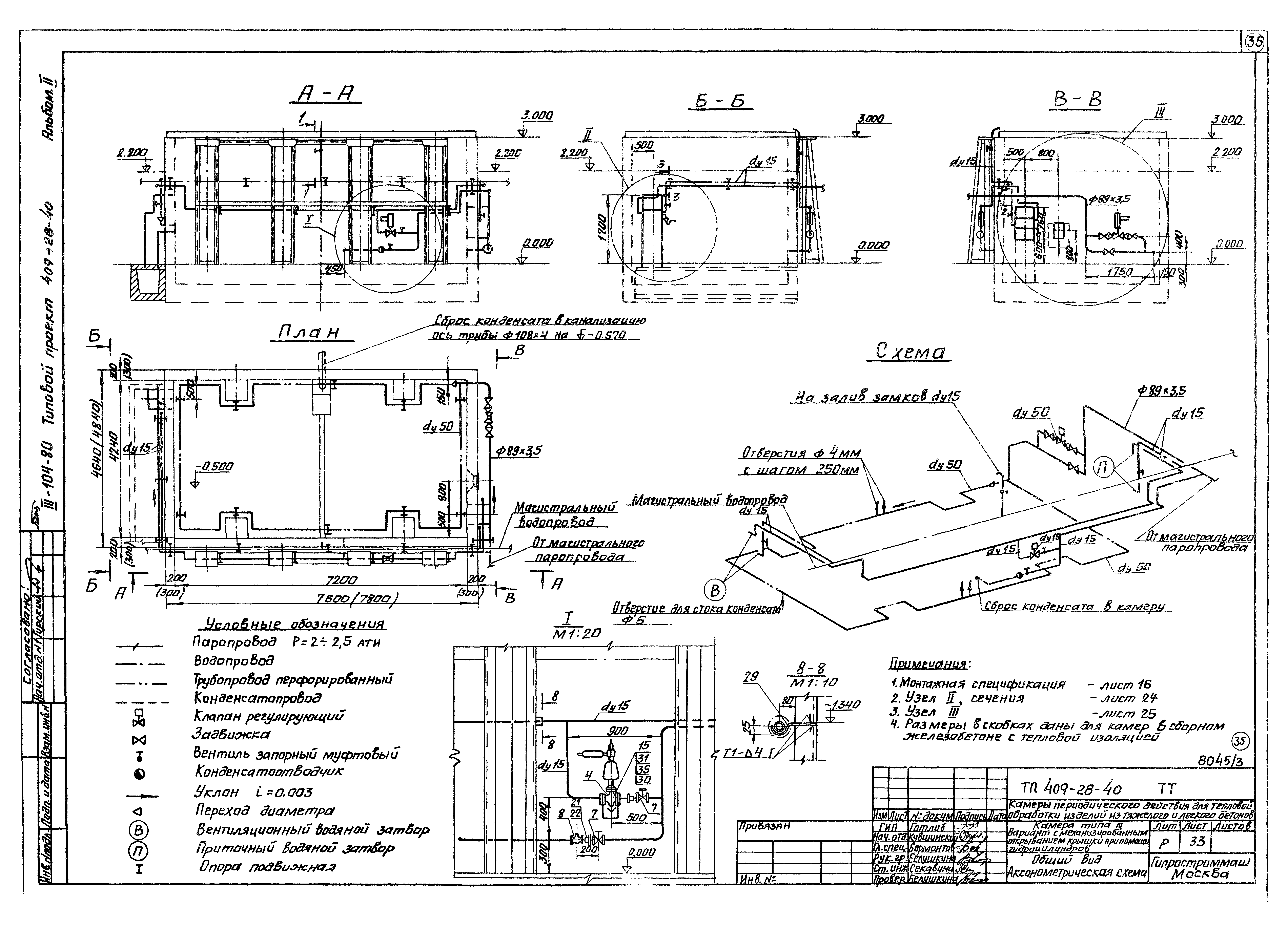
| Оглавление: | Общие данные Пояснительная записка Камера типа I. Общий вид. Аксонометрическая схема Блок 2-х камер типа I. Общий вид Блок 2-х камер типа I. Аксонометрическая схема Блок 3-х камер типа I. Общий вид Блок 3-х камер типа I. Аксонометрическая схема Блок 4-х камер типа I. Общий вид Блок 4-х камер типа I. Аксонометрическая схема Камера и блоки камер типа I. Монтажная спецификация Камера типа II, III, IV. Общий вид. Аксонометрическая схема Камера типа II, III, IV. Монтажная спецификация Блок 2-х камер типа II, III, IV. Общий вид Блок 2-х камер типа II, III, IV. Аксонометрическая схема Блок 2-х камер типа II, III, IV. Монтажная спецификация Блок 3-х камер типа II, III, IV. Общий вид Блок 3-х камер типа II, III, IV. Аксонометрическая схема Блок 3-х камер типа II, III, IV. Монтажная спецификация Камера и блоки камер типа I, II, III, IV. Узел I Камера и блоки камер типа I, II, III, IV. Узел II, сечения Камера и блоки камер типа I, II, III, IV. Узел III Блок 4-х камер типа V. Общий вид Блок 4-х камер типа V. Разрезы Б-Б, В-В. Монтажная спецификация Блок 4-х камер типа V. Узлы I, II Блок 4-х камер типа V. Узел III Блок 4-х камер типа V. Аксонометрическая схема Камера и блоки камер типа I, II, III, IV, V. Техномонтажная ведомость на изоляцию трубопроводов. Узлы и сечения Камера и блоки камер типа I, II, III, IV, V. Техномонтажная ведомость на изоляцию трубопроводов. Таблица Камера типа III. Вариант с механизированным открыванием крышки при помощи гидроцилиндров. Общий вид. Аксонометрическая схема |
| Разработан: | Гипростроммаш Минстройдормаша ВНИИжелезобетон |
| Утверждён: | 06.08.1981 Госстрой СССР (61) |
| Заменяет собой: |
|


































