Скачать Типовой проект 409-28-40 Альбом V. Часть 2. Строительные конструкции камер типа III. Вариант в сборном керамзитобетонеДата актуализации: 01.01.2021
|
| Обозначение: | Типовой проект 409-28-40 |
| Обозначение англ: | 409-28-40 |
| Статус: | действует |
| Название рус.: | Альбом V. Часть 2. Строительные конструкции камер типа III. Вариант в сборном керамзитобетоне |
| Дата добавления в базу: | 01.10.2014 |
| Дата актуализации: | 01.01.2021 |
| Дата введения: | 18.09.1981 |
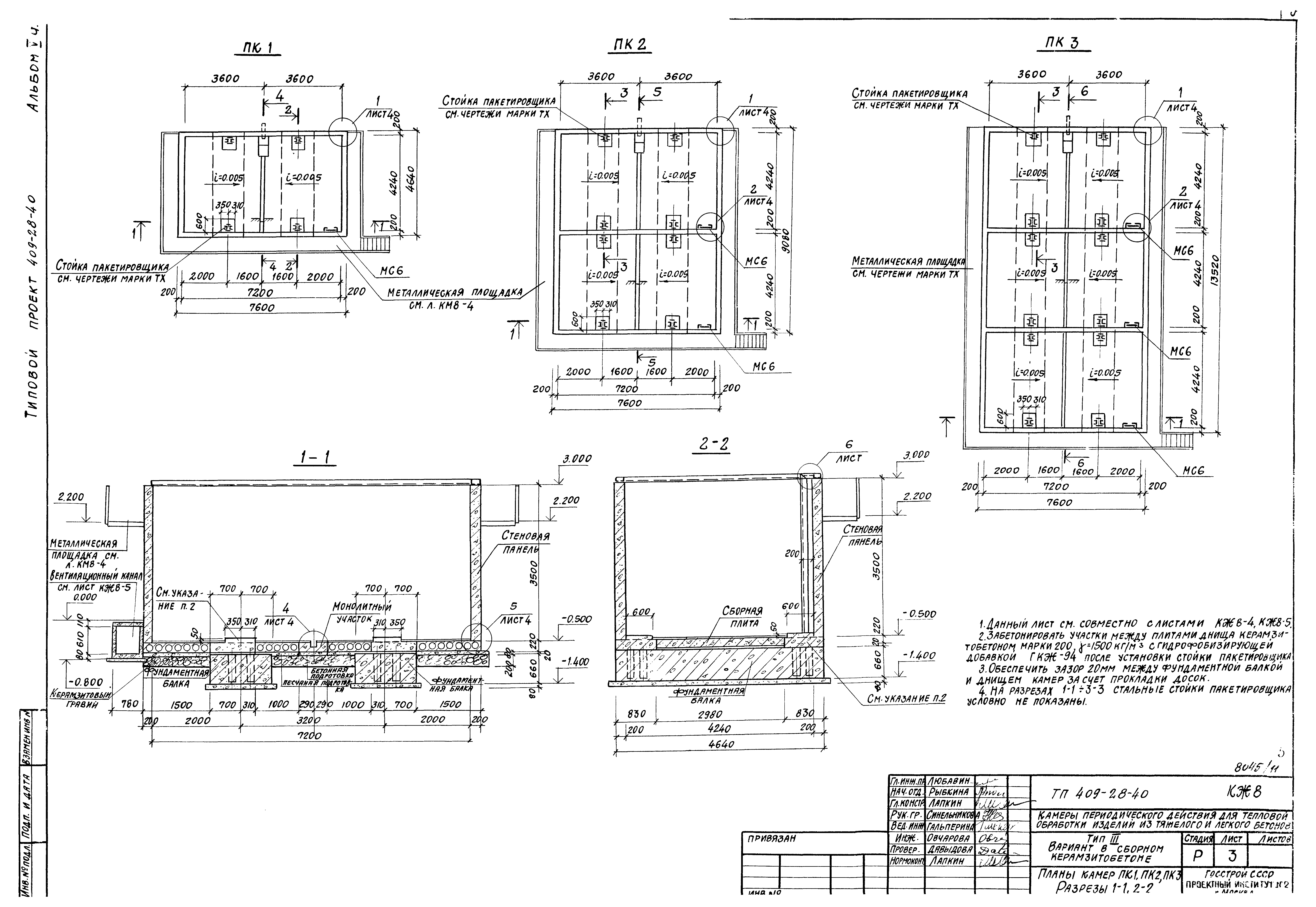
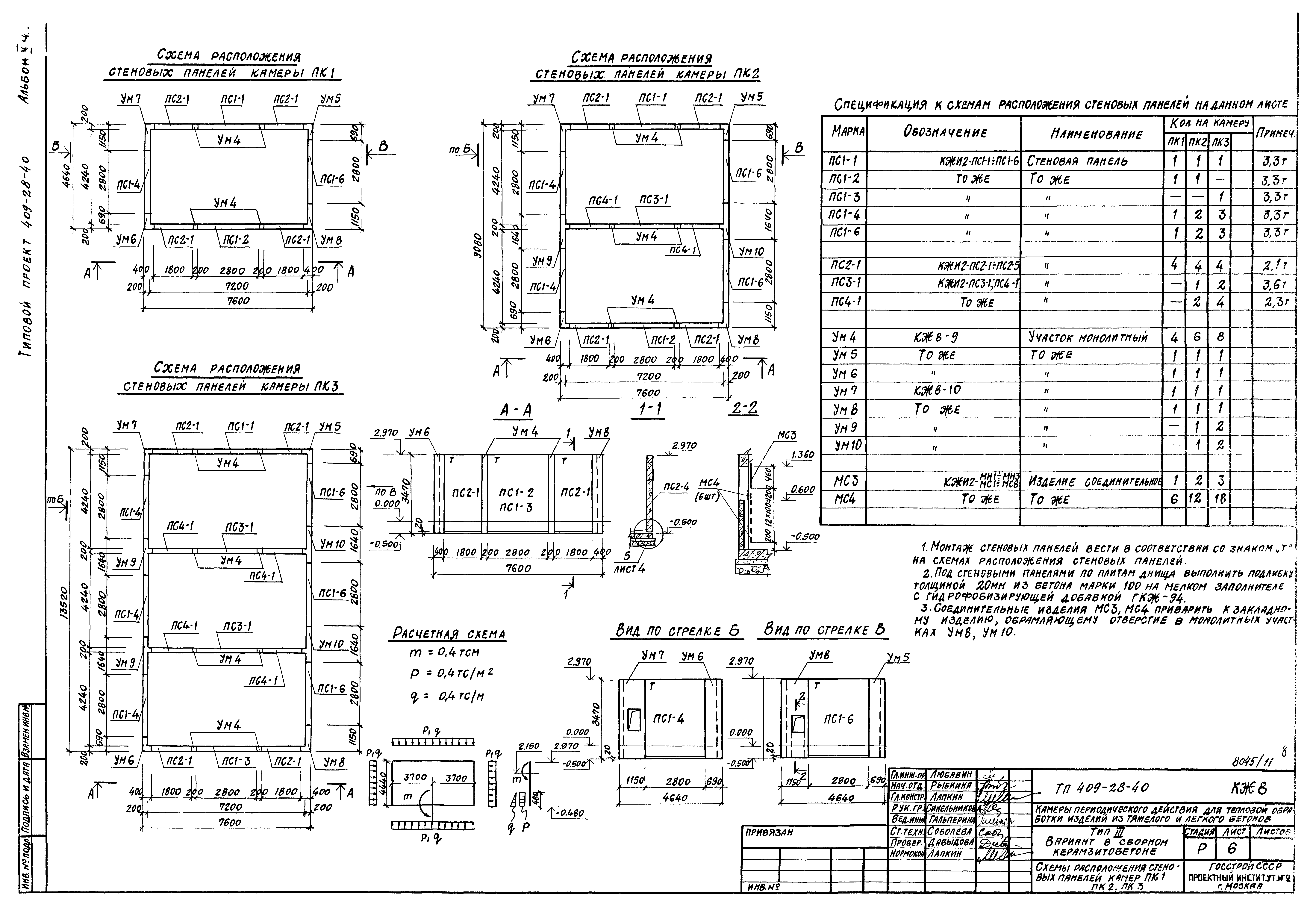
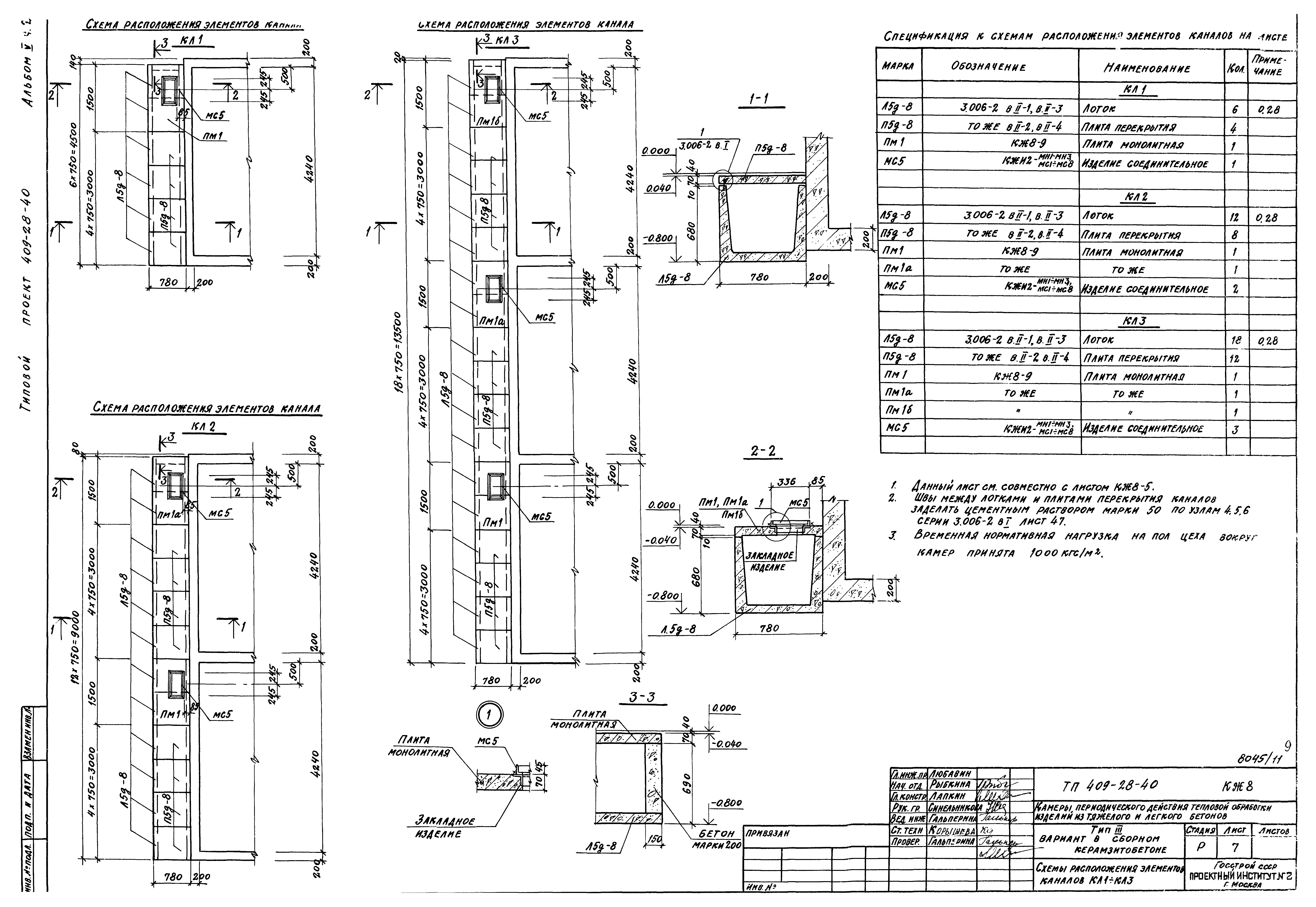
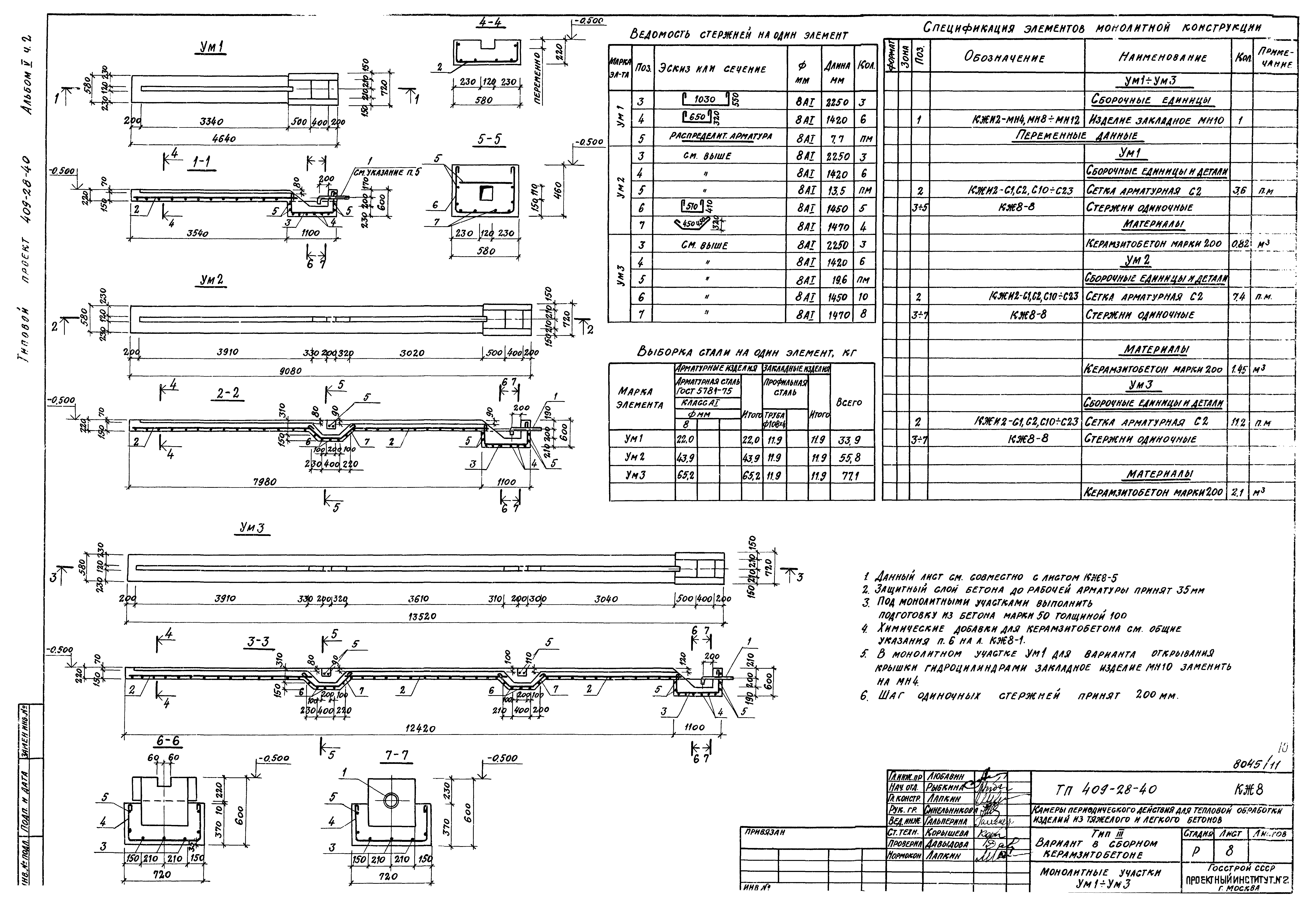
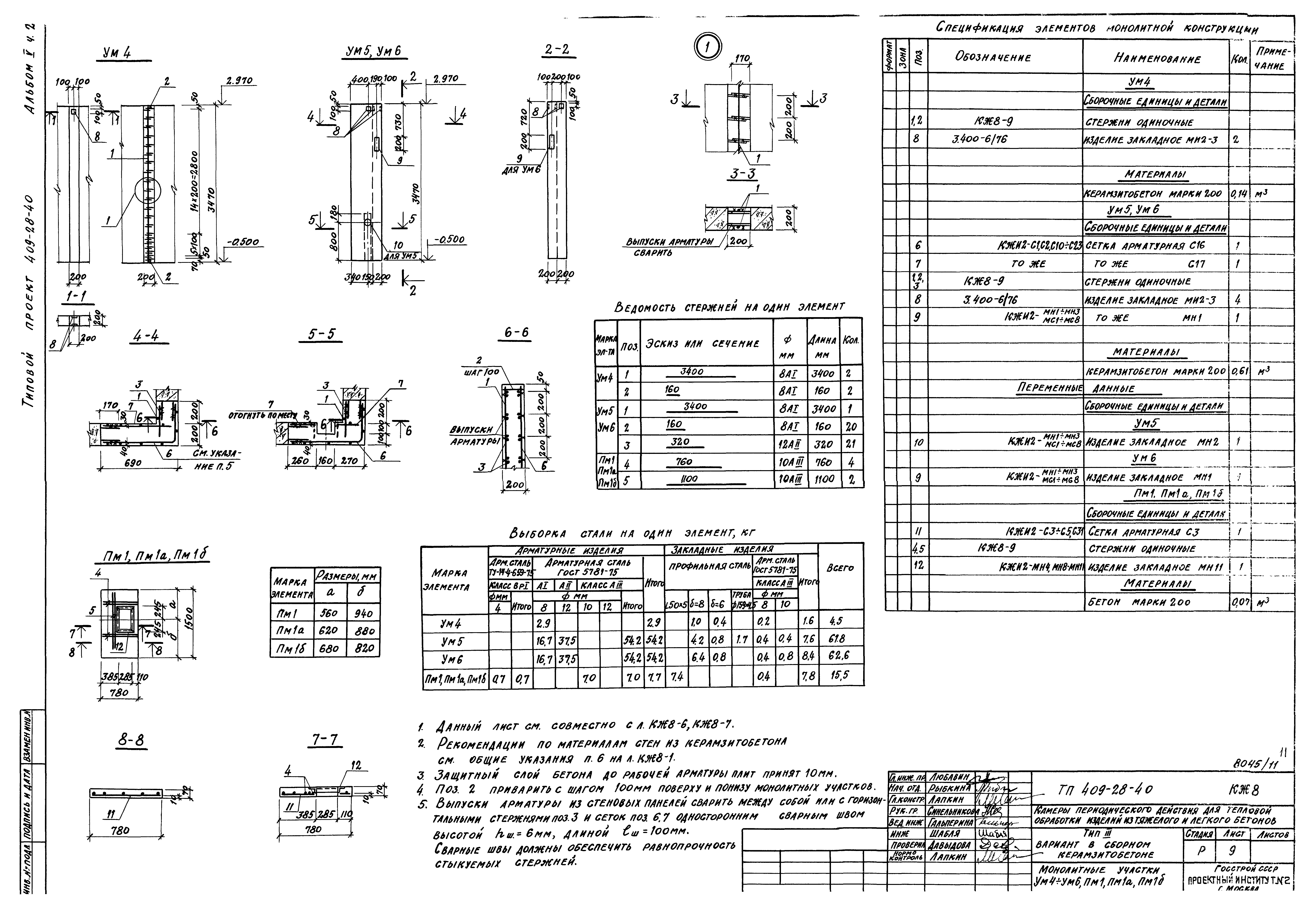
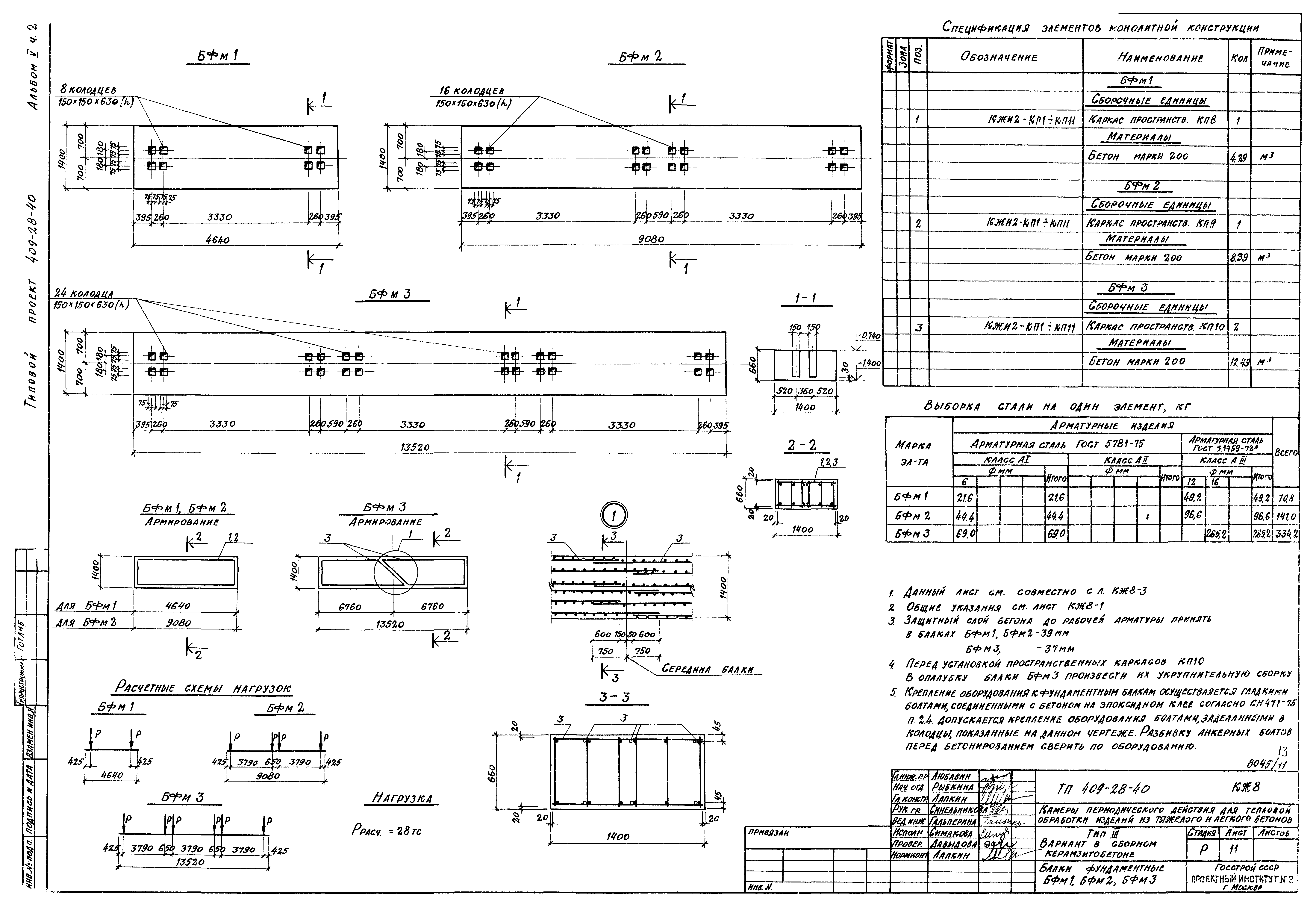
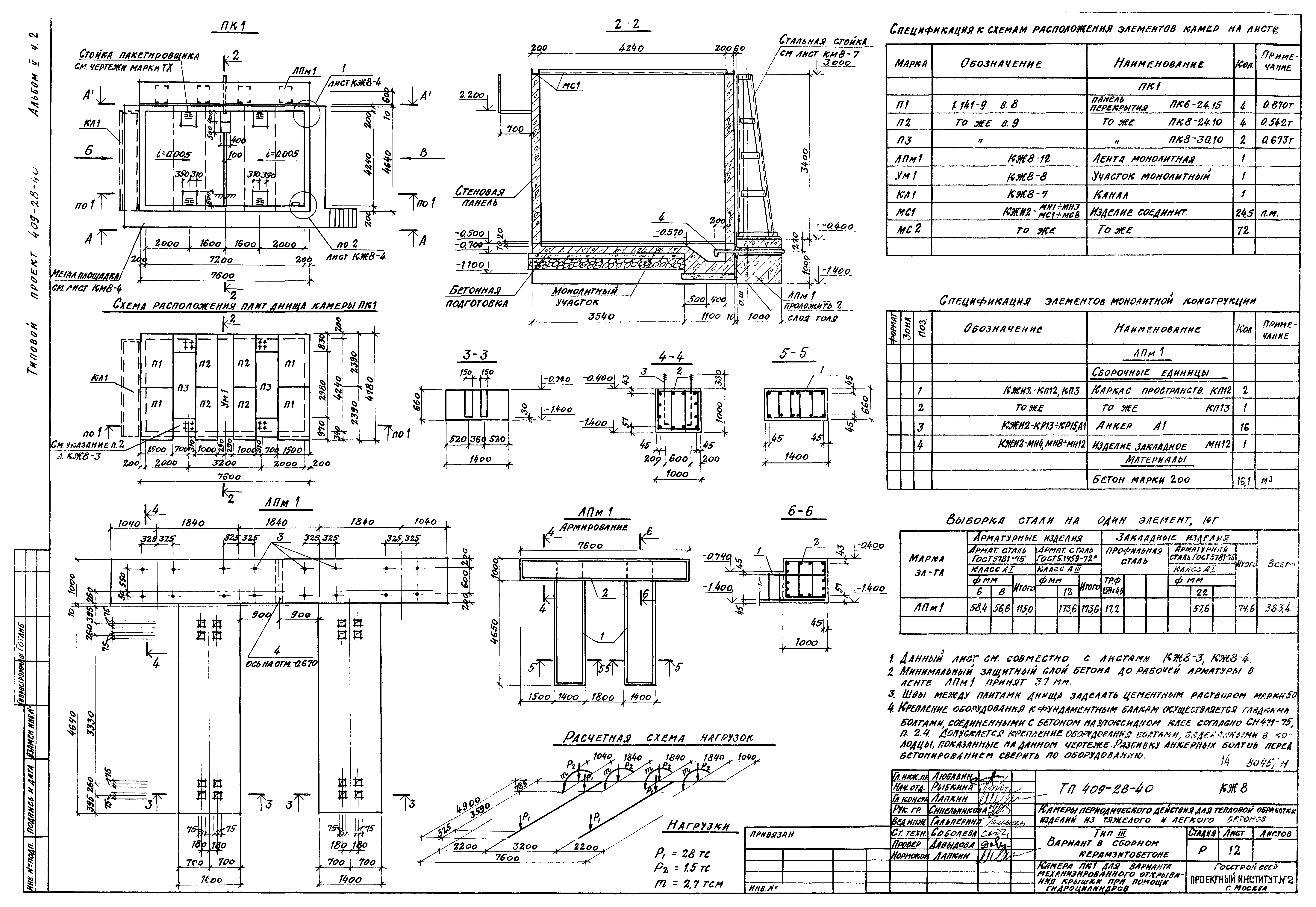
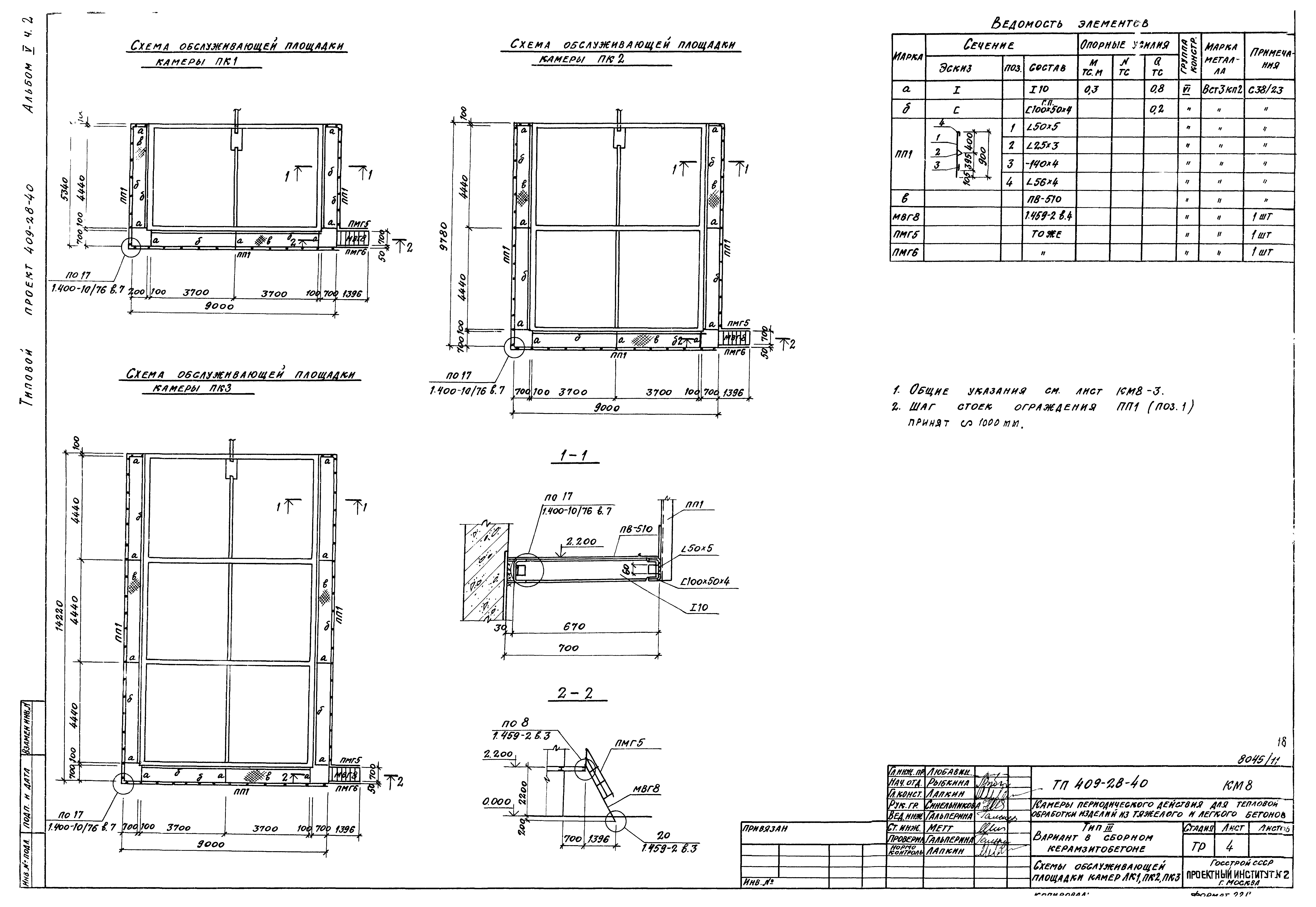
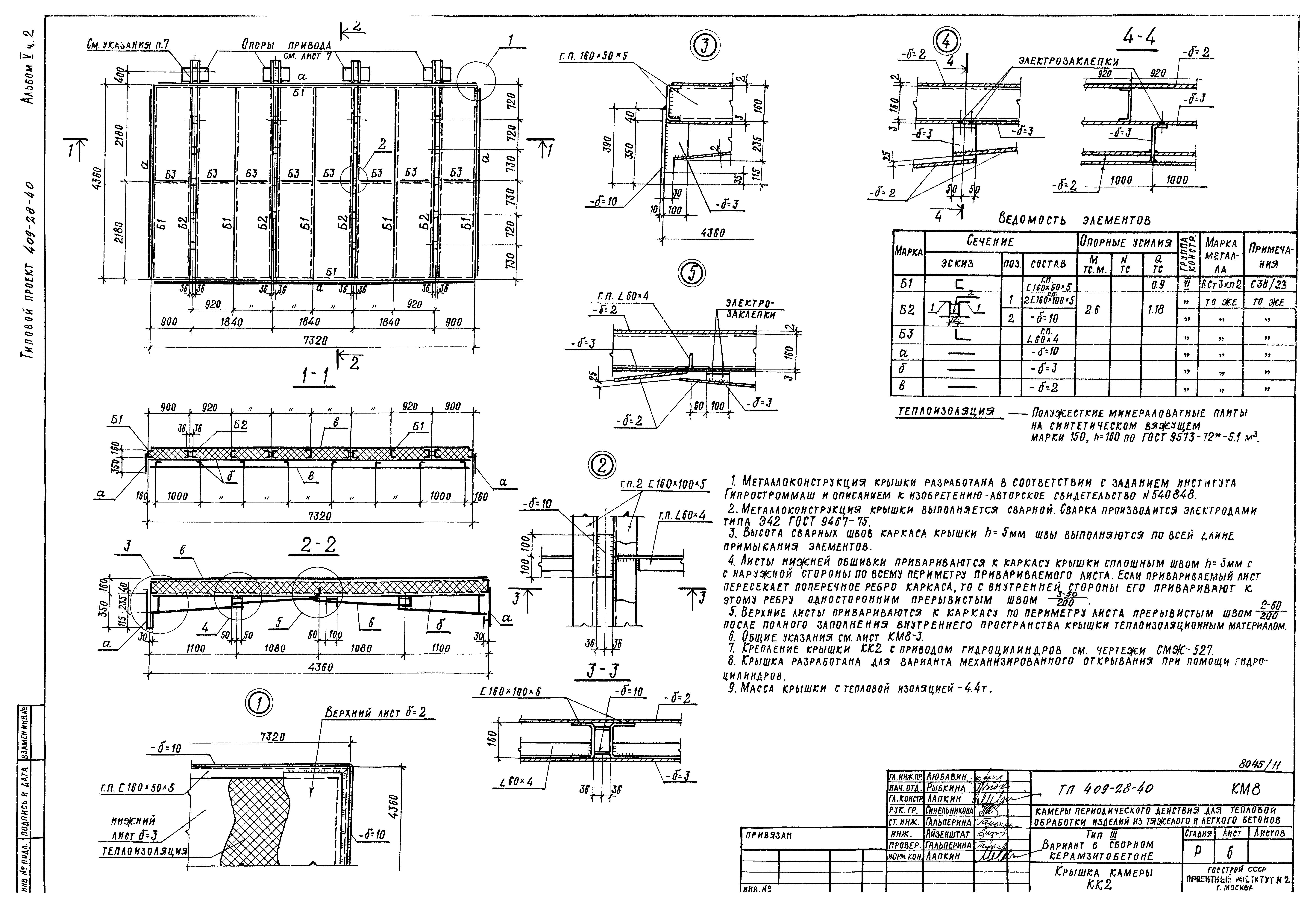
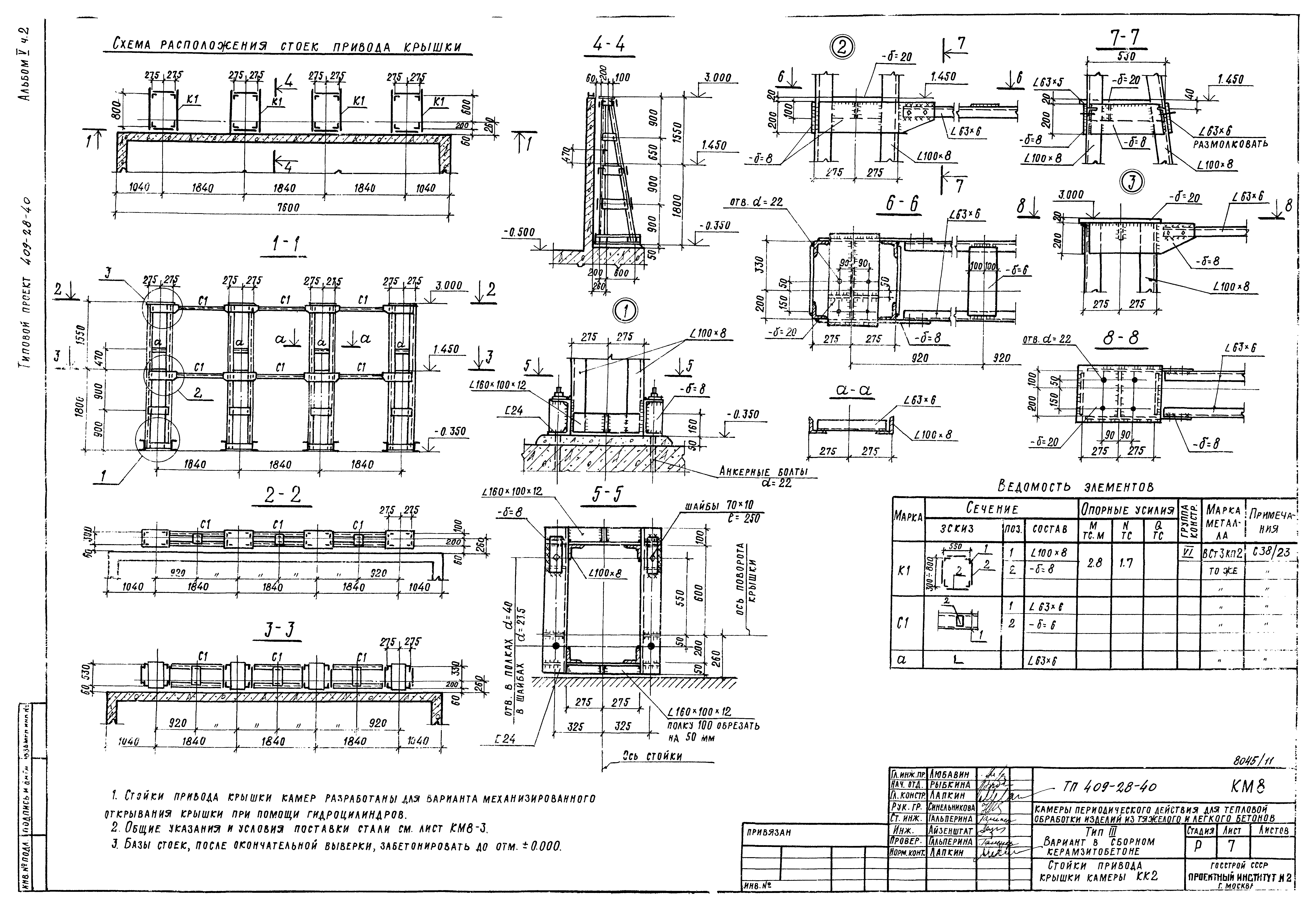
| Оглавление: | Содержание альбома Конструкции железобетонные Общие данные Планы камер ПК1, ПК2, ПК3. Разрезы 1-1, 2-2 Разрезы 3-3 - 6-6. Узлы 1 - 6 Схемы расположения плит днища камер ПК1, ПК2, ПК3 Схемы расположения стеновых панелей камер ПК1, ПК2, ПК3 Схемы расположения элементов каналов КЛ1 - КЛ3 Монолитные участки Ум1 - Ум3 Монолитные участки Ум4 - Ум6, Пм1, Пм1а, Пм1б Монолитные участки Ум7 - Ум10 Балки фундаментные БФм1, БФм2, БФм3 Камера ПК1 для варианта механизированного открывания крышки при помощи гидроцилиндров Конструкции металлические Общие данные. Техническая спецификация металла на камеры Общие данные. Техническая спецификация металла по лестницам, площадкам и ограждениям Общие данные. Ведомость металлоконструкций по видам профилей Схемы обслуживающей площадки камер ПК1, ПК2, ПК3 Крышка камеры КК1 Крышка камеры КК2 Стойки привода крышки камеры КК2 Организация строительства Основные положения по организации строительства |
| Разработан: | ВНИИжелезобетон Проектный институт № 2 Госстроя СССР |
| Утверждён: | 06.08.1981 Госстрой СССР (61) |
| Заменяет собой: |
|























