Скачать Типовой проект 409-28-40 Альбом VI. Часть 1. Строительные конструкции камер типа IV. Вариант в монолитном керамзитобетонеДата актуализации: 01.01.2021
|
| Обозначение: | Типовой проект 409-28-40 |
| Обозначение англ: | 409-28-40 |
| Статус: | действует |
| Название рус.: | Альбом VI. Часть 1. Строительные конструкции камер типа IV. Вариант в монолитном керамзитобетоне |
| Дата добавления в базу: | 01.10.2014 |
| Дата актуализации: | 01.01.2021 |
| Дата введения: | 18.09.1981 |
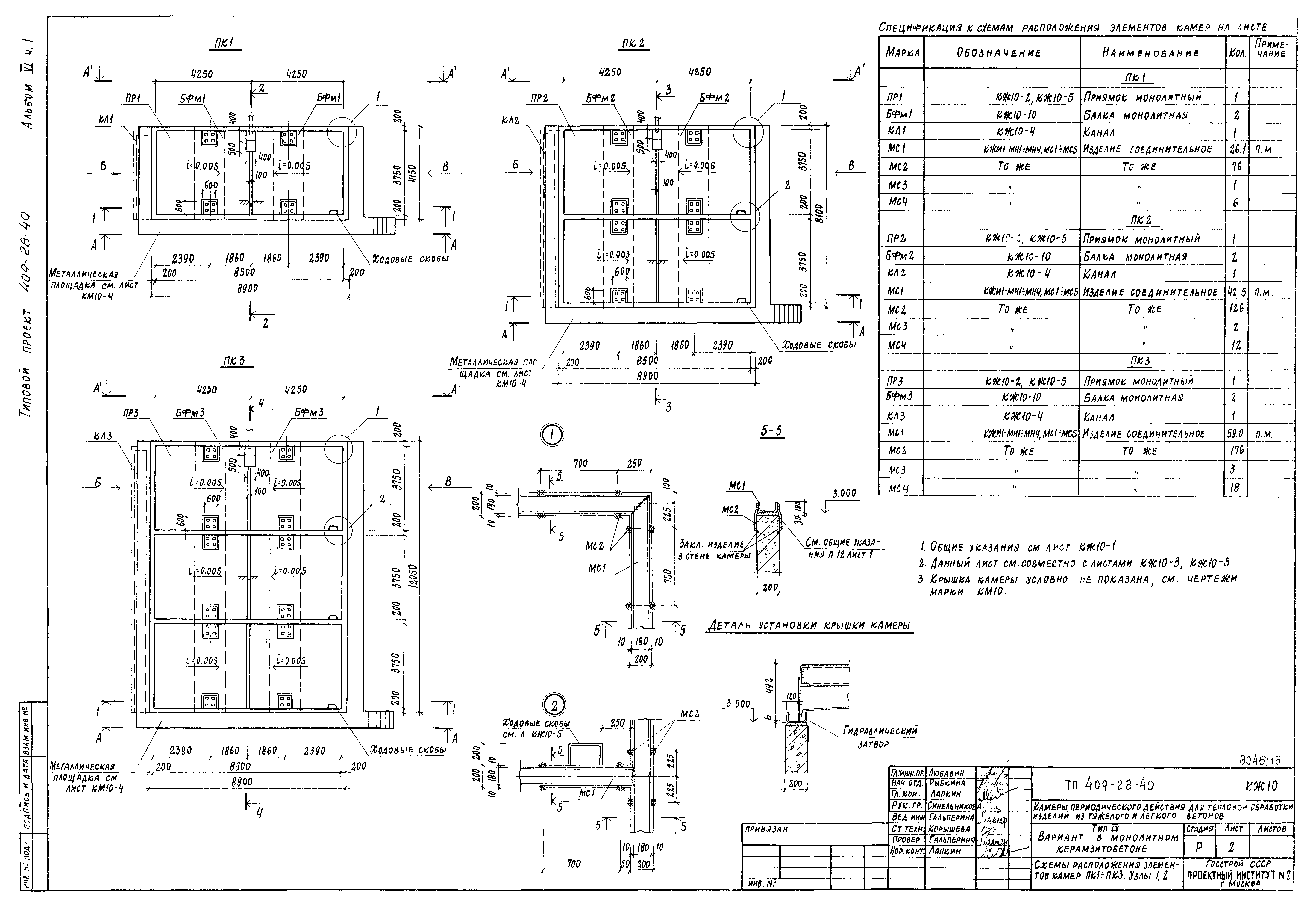
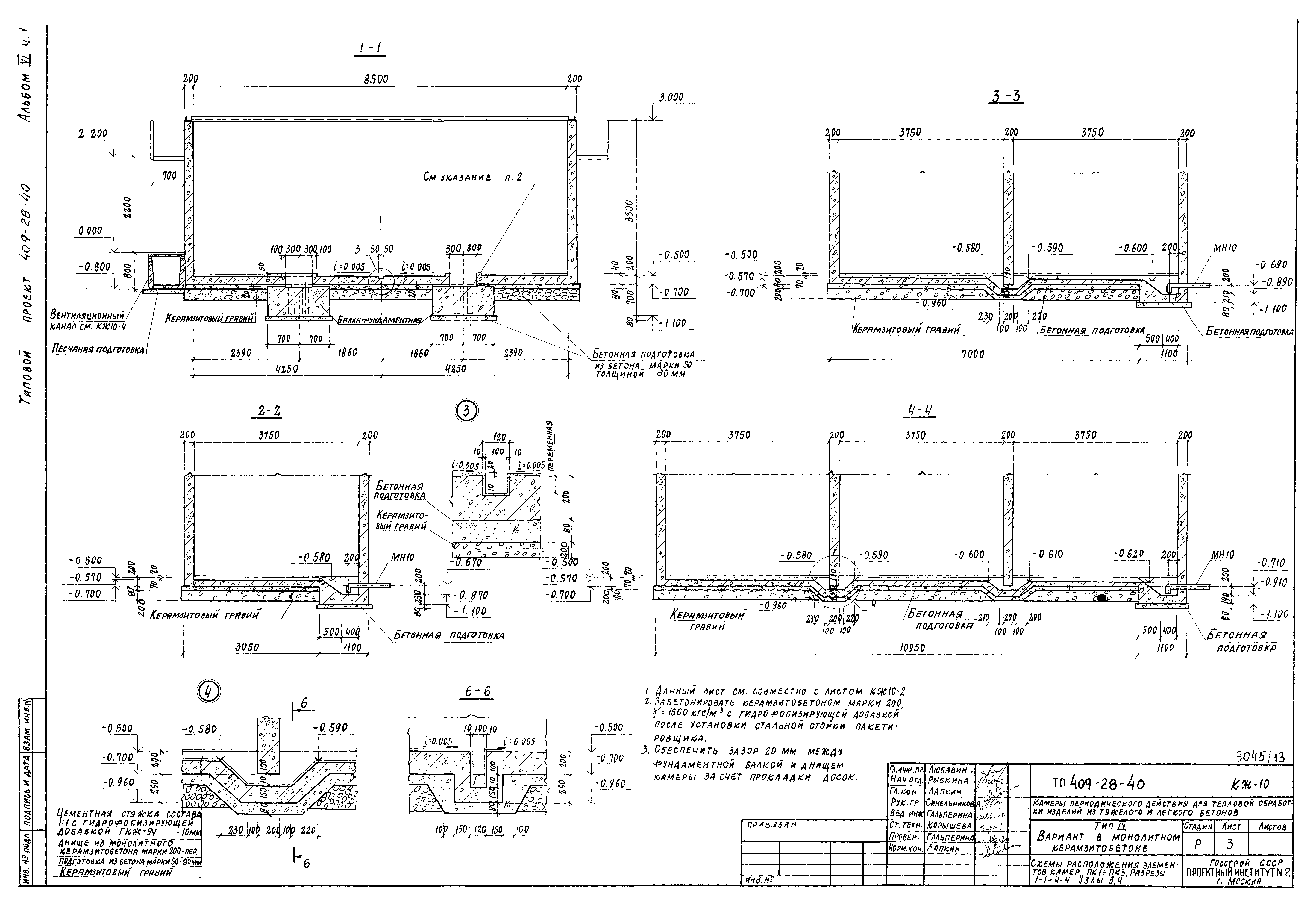
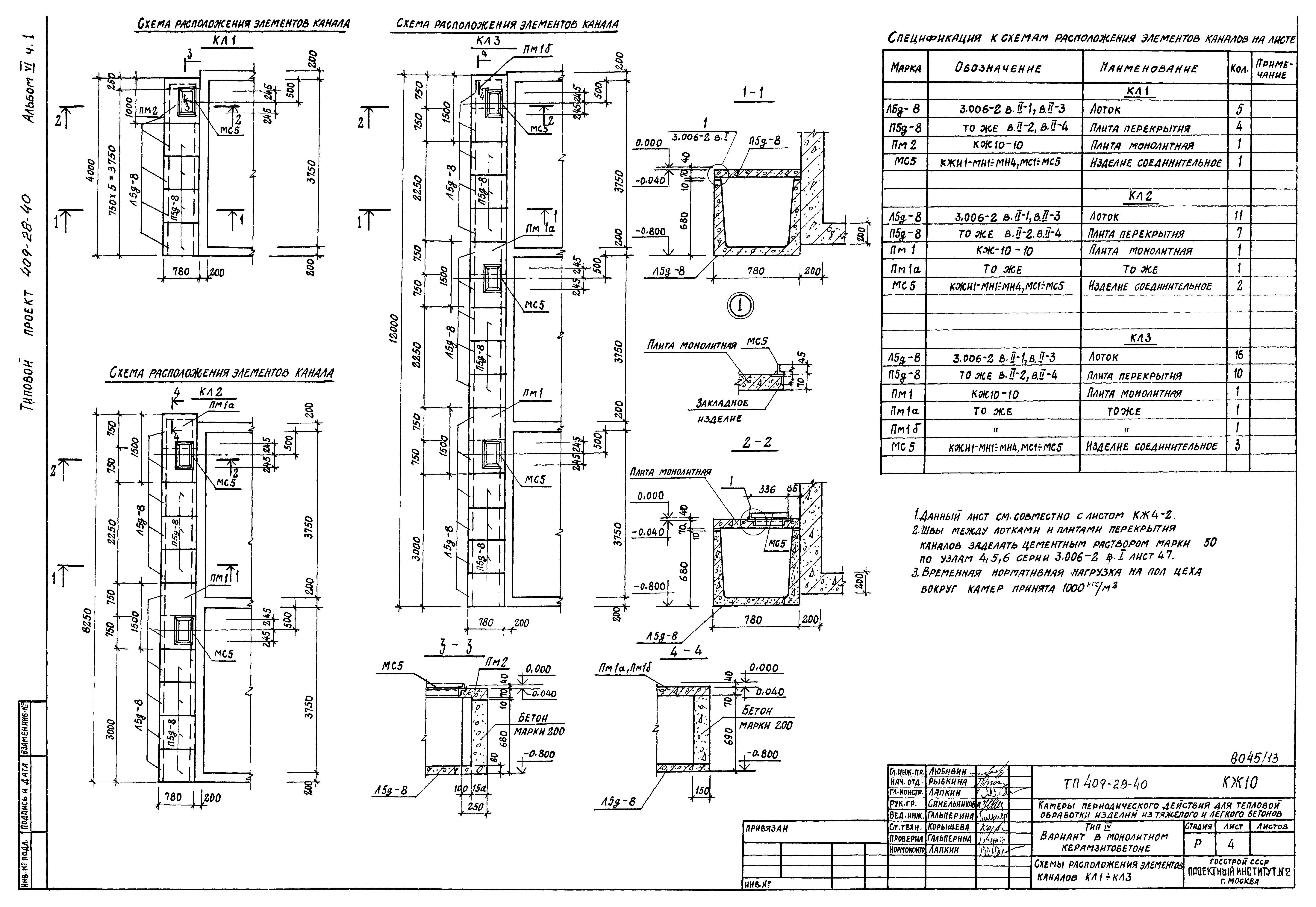
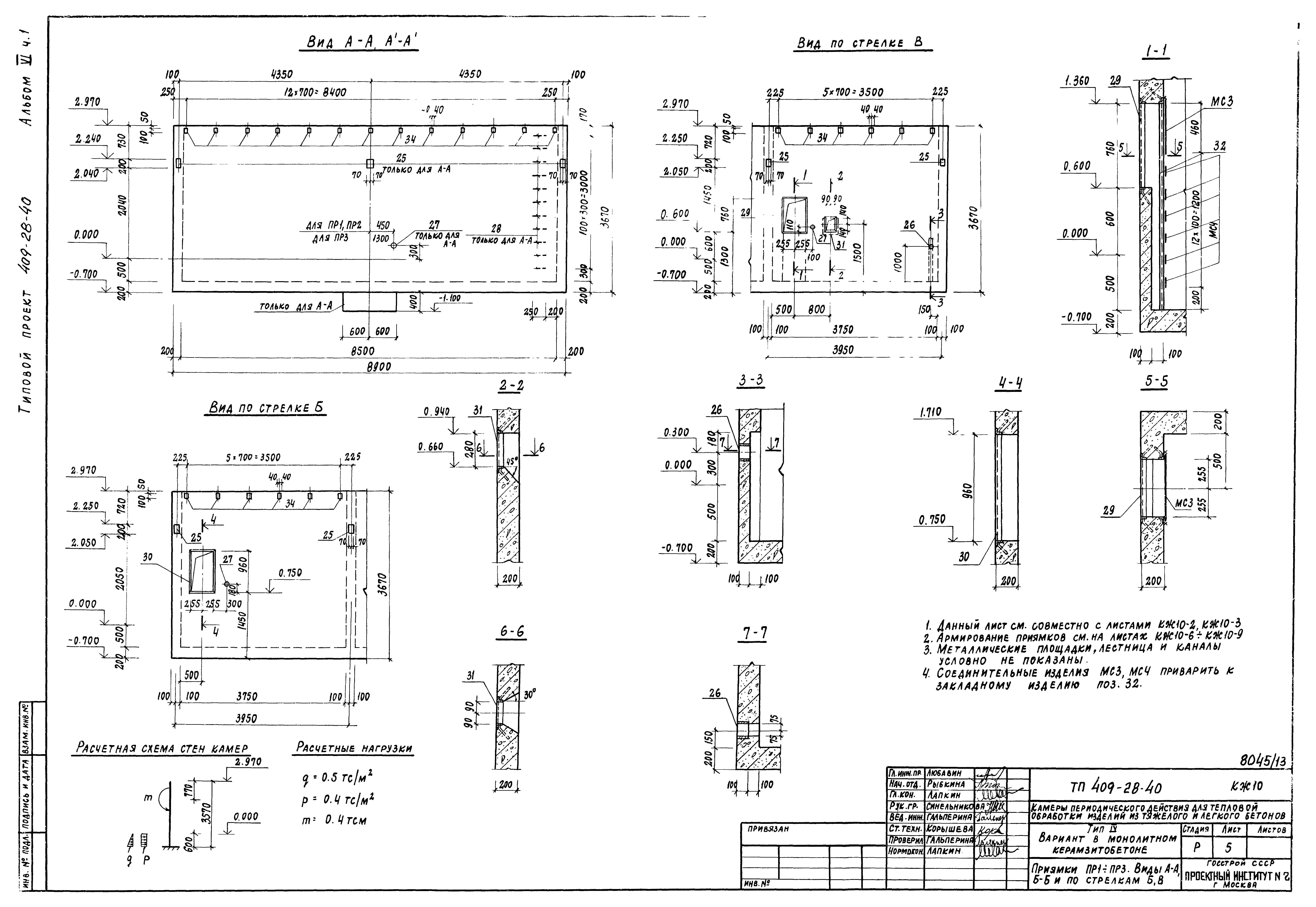
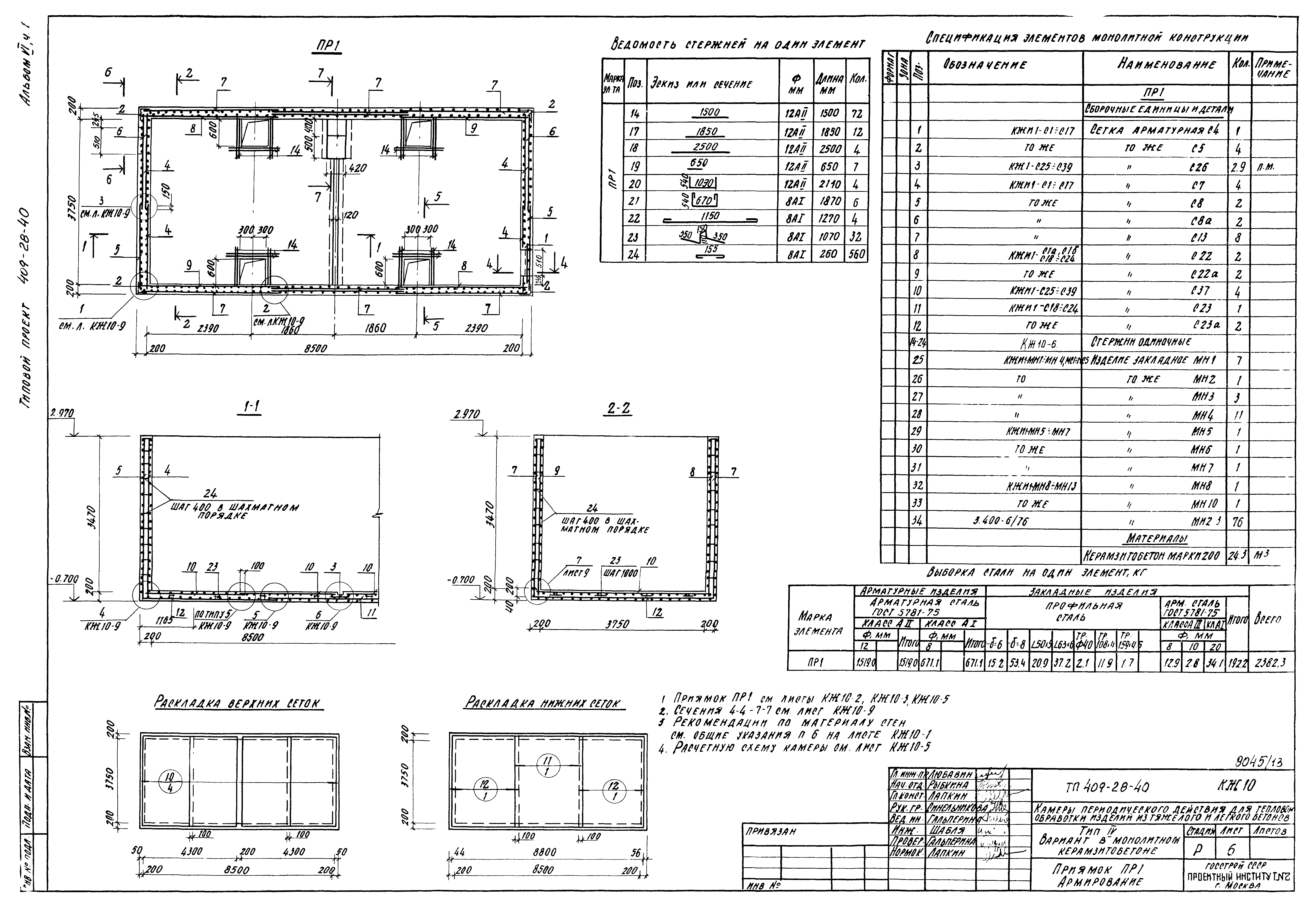
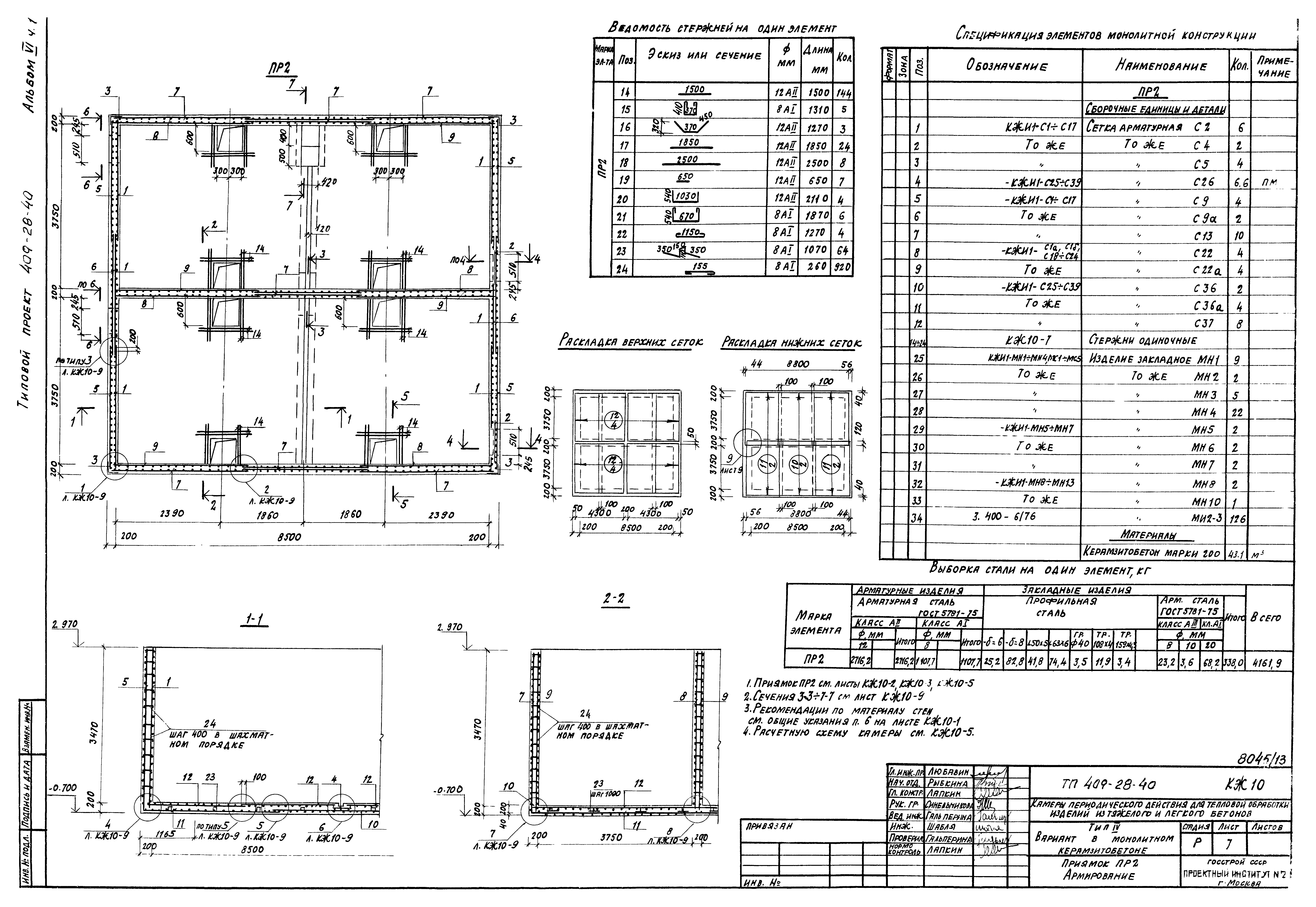
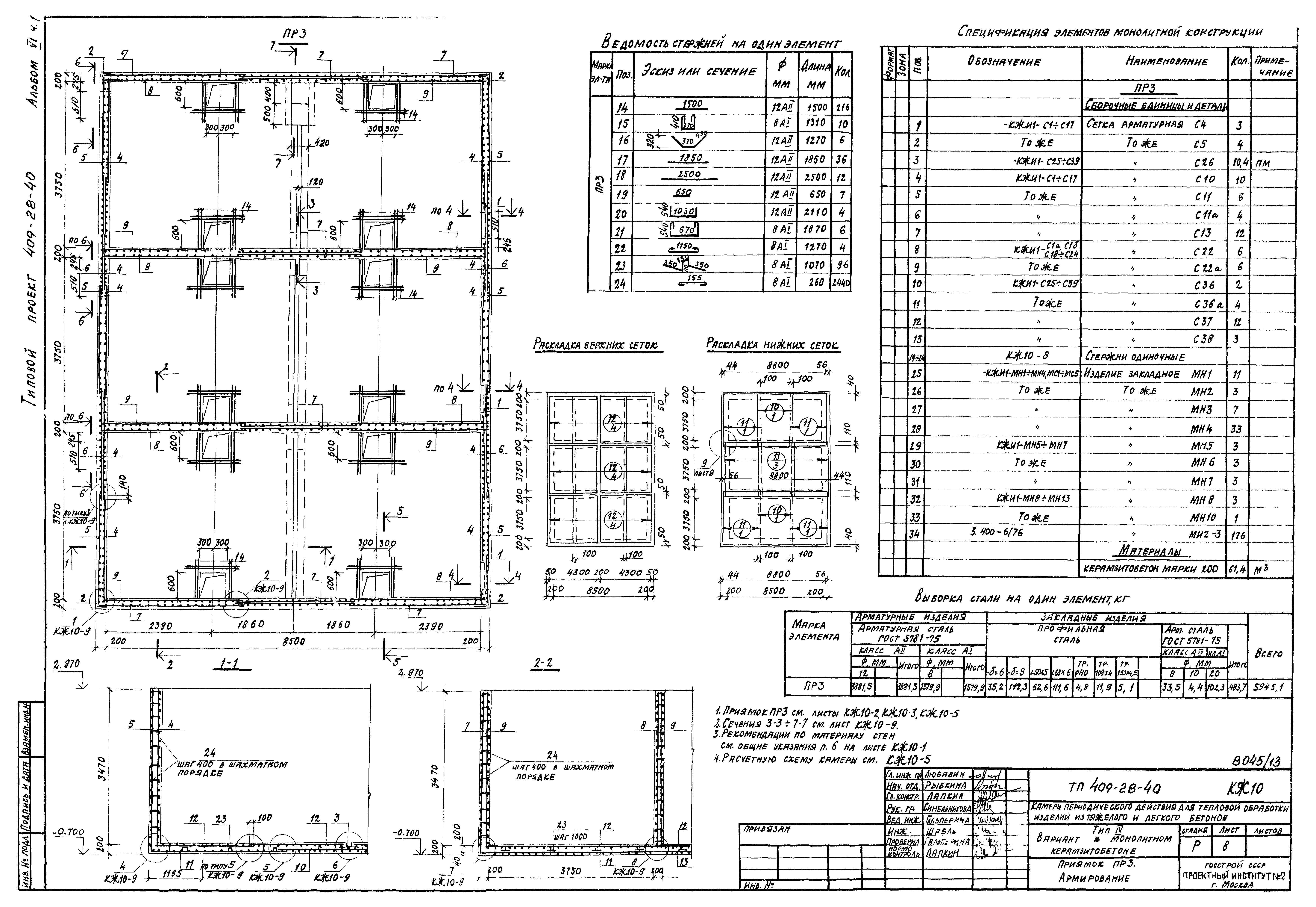
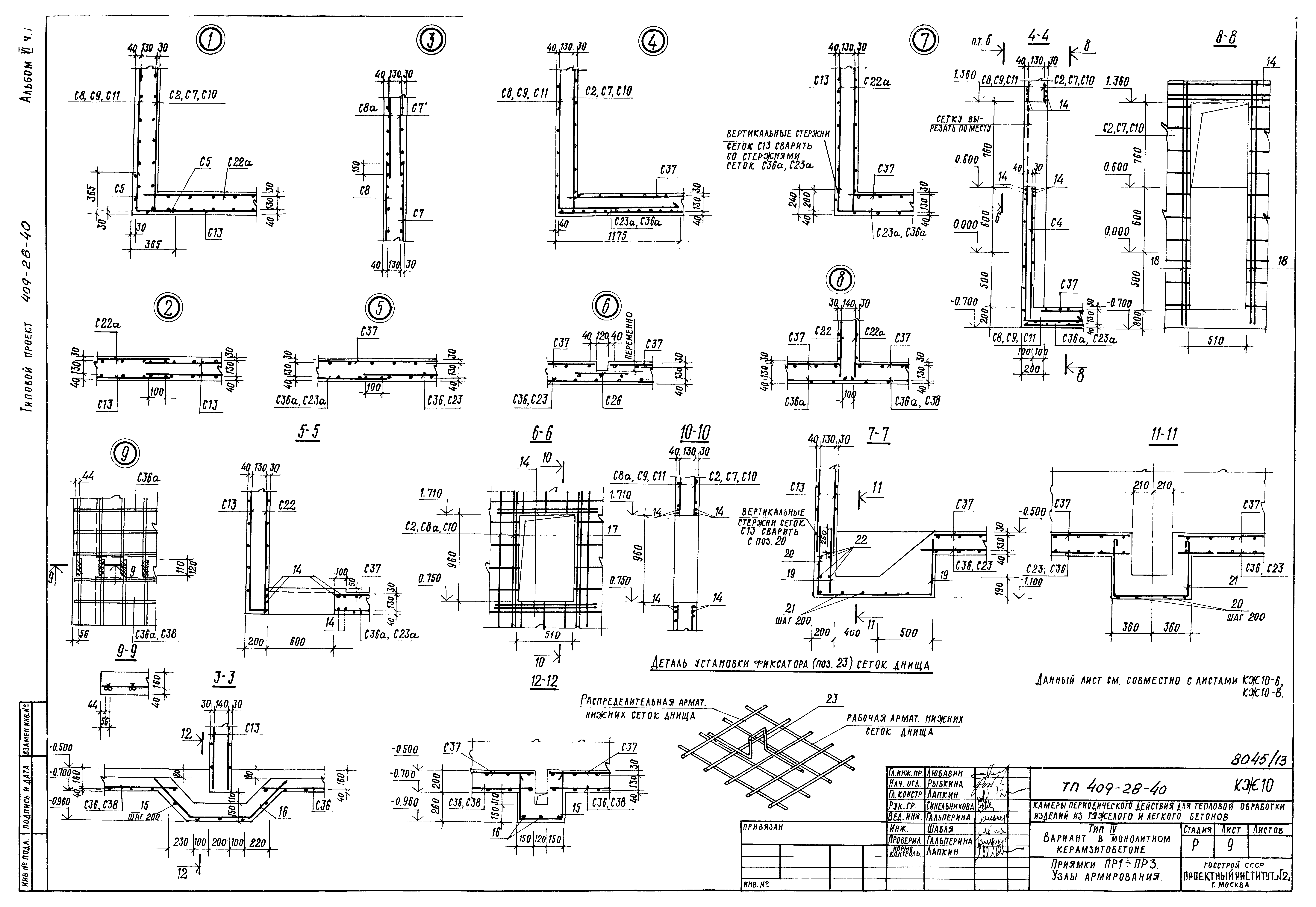
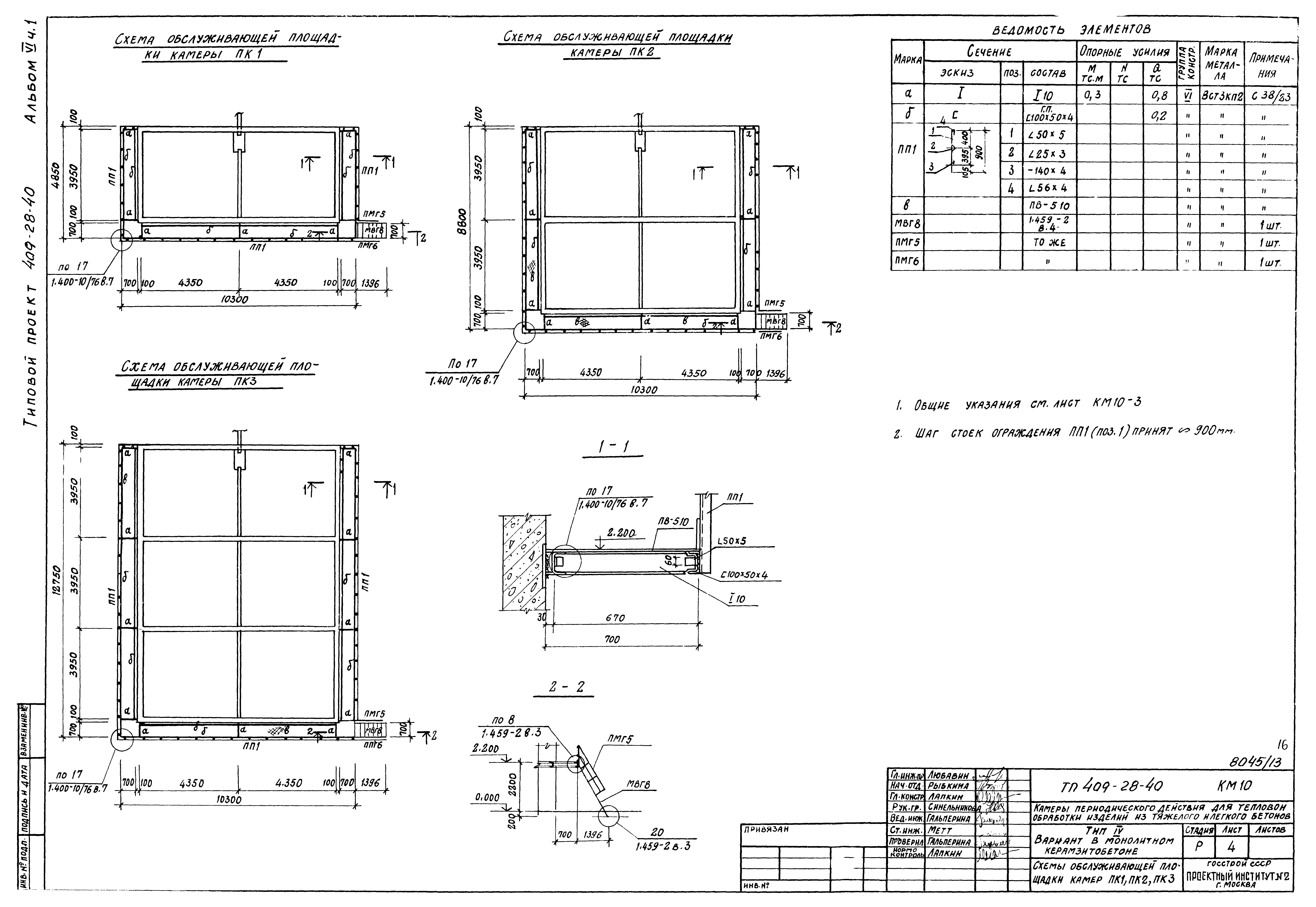
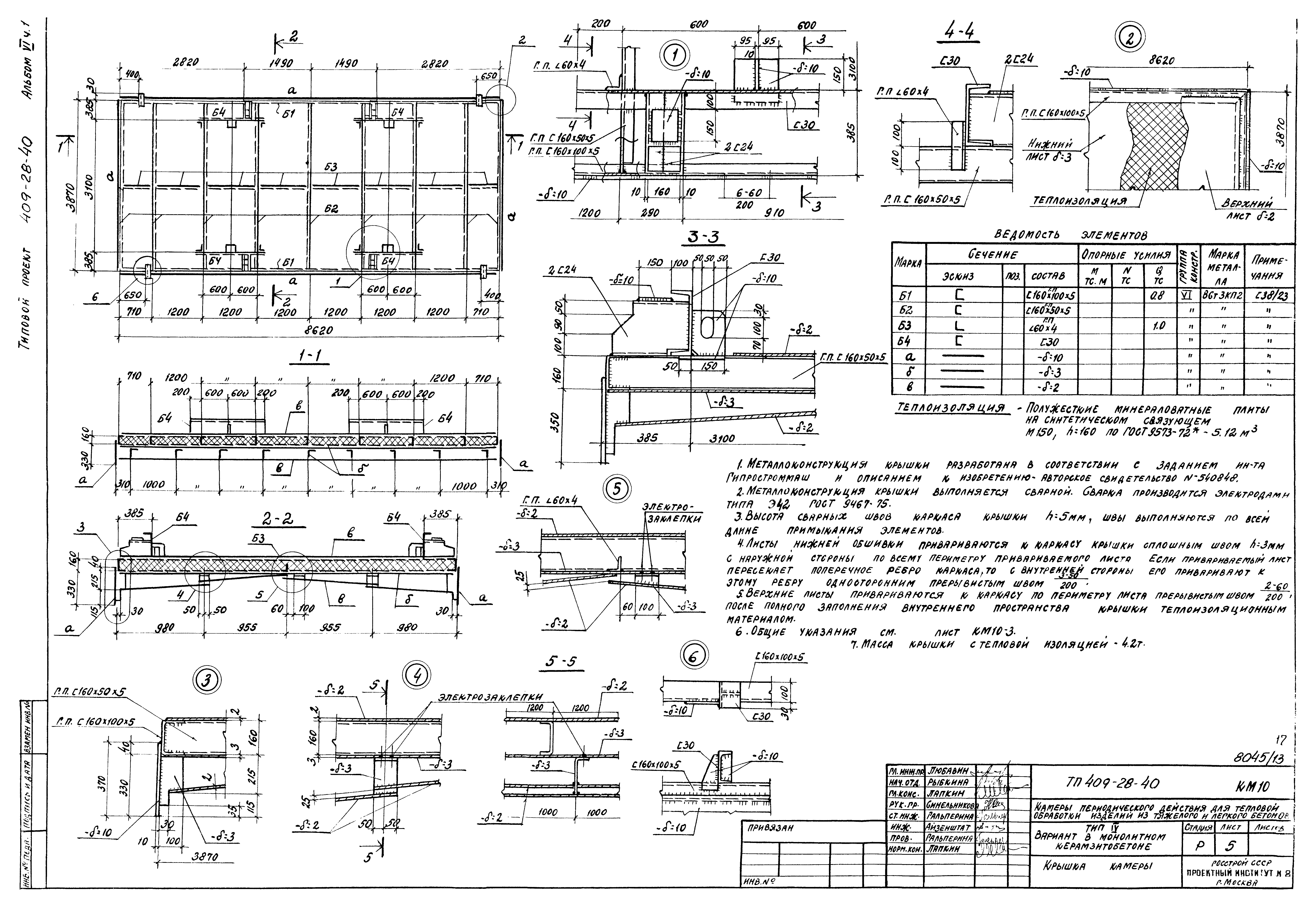
| Оглавление: | Содержание альбома Конструкции железобетонные Общие данные Схемы расположения элементов камер ПК1 - ПК3. Узлы 1, 2 Схемы расположения элементов камер ПК1 - ПК3. Разрезы 1-1 - 4-4. Узлы 3, 4 Схемы расположения элементов каналов КЛ1 - КЛ3 Приямки ПР1 - ПР3. Виды А-А, А`-А` и по стрелкам Б, В Приямок ПР1. Армирование Приямок ПР2. Армирование Приямок ПР3. Армирование Приямки ПР1 - ПР3. Узлы армирования Балки фундаментов БФм1 - БФм3. Плиты монолитные Пм1 - Пм1б, Пм2 Конструкции металлические Общие данные. Техническая спецификация металла на камеры Общие данные. Техническая спецификация металла по площадкам, лестницам и ограждениям Общие данные. Ведомость металлоконструкций по видам профилей Схемы обслуживающей площадки камер ПК1, ПК2, ПК3 Крышка камеры Организация строительства Основные положения по организации строительства |
| Разработан: | ВНИИжелезобетон Проектный институт № 2 Госстроя СССР |
| Утверждён: | 06.08.1981 Госстрой СССР (61) |
| Заменяет собой: |
|



















