Скачать Типовой проект 409-28-40 Альбом VII. Часть 1. Строительные конструкции камер типа V. Вариант в монолитном керамзитобетонеДата актуализации: 01.01.2021
|
| Обозначение: | Типовой проект 409-28-40 |
| Обозначение англ: | 409-28-40 |
| Статус: | действует |
| Название рус.: | Альбом VII. Часть 1. Строительные конструкции камер типа V. Вариант в монолитном керамзитобетоне |
| Дата добавления в базу: | 01.10.2014 |
| Дата актуализации: | 01.01.2021 |
| Дата введения: | 18.09.1981 |
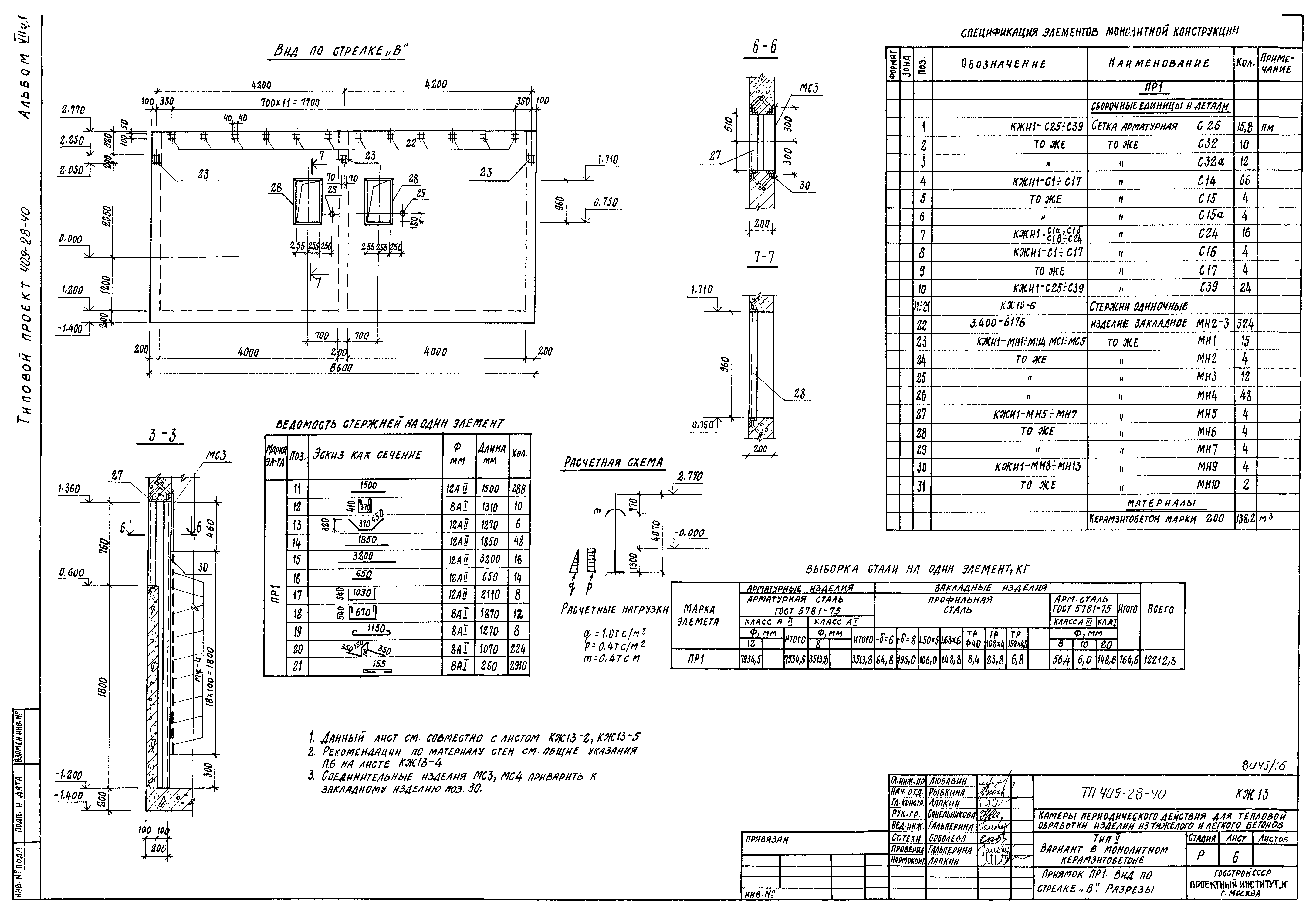
| Оглавление: | Содержание альбома Конструкции железобетонные Общие данные Схемы расположения элементов камеры ПК1. Разрез 1-1. Узел 1 Схемы расположения элементов камеры ПК1. Разрез 2-2. Узлы 2 - 4 Схемы расположения элементов каналов КЛ1, КЛ1а Приямок ПР1. Виды А-А, А`-А`, Б-Б, Б`-Б` Приямок ПР1. Вид по стрелке "В". Разрезы Приямок ПР1. Армирование Приямок ПР1. Раскладка сеток днища Приямок ПР1. Узлы армирования Балка фундаментная БФм1. Плиты монолитные Пм1 - Пм2а Конструкции металлические Общие данные. Техническая спецификация металла на камеру Общие данные. Техническая спецификация металла по площадкам, лестницам и ограждениям. Ведомость металлоконструкций по видам профилей Схемы обслуживающей площадки камеры ПК1 Крышка камеры Организация строительства Основные положения по организации строительства |
| Разработан: | ВНИИжелезобетон Проектный институт № 2 Госстроя СССР |
| Утверждён: | 06.08.1981 Госстрой СССР (61) |
| Заменяет собой: |
|


















