Скачать Типовой проект 901-8-14.86 Альбом III. Электротехническая часть. Автоматизация. Связь и сигнализацияДата актуализации: 01.01.2021
|
| Обозначение: | Типовой проект 901-8-14.86 |
| Обозначение англ: | 901-8-14.86 |
| Статус: | не определен законодательством |
| Название рус.: | Альбом III. Электротехническая часть. Автоматизация. Связь и сигнализация |
| Дата добавления в базу: | 01.10.2014 |
| Дата актуализации: | 01.01.2021 |
| Дата введения: | 26.03.1986 |
| Дата окончания срока действия: | 30.06.2003 |
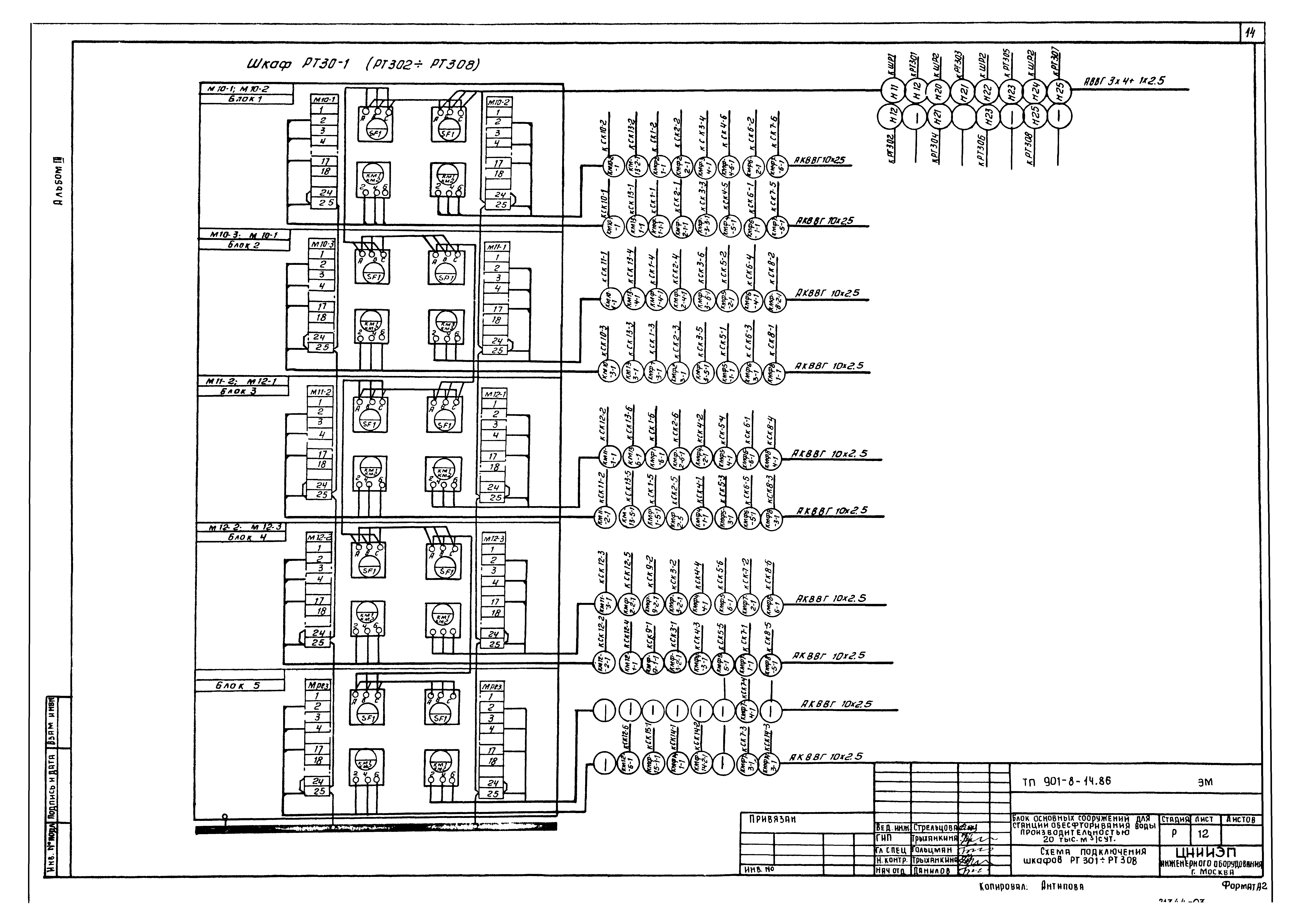
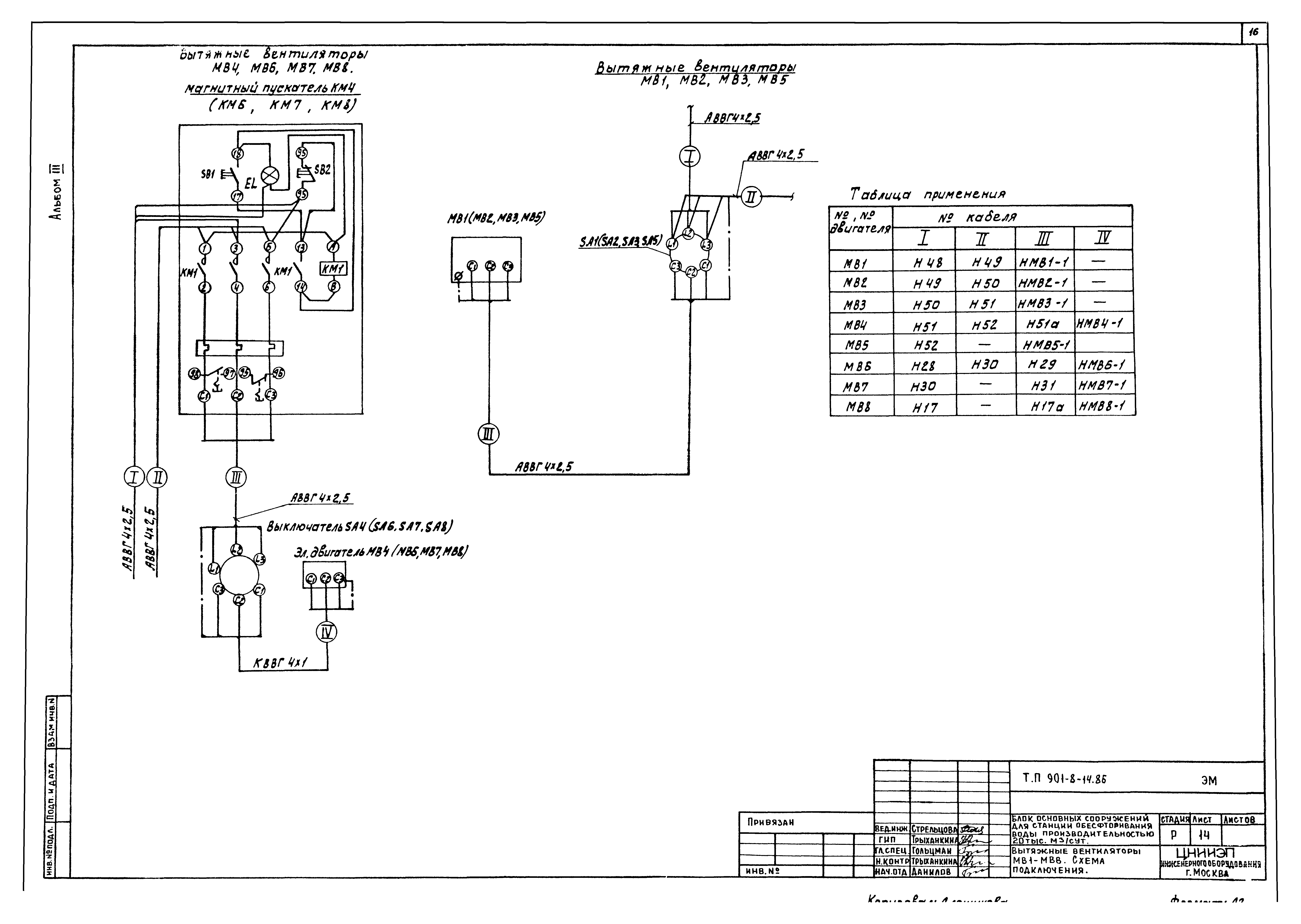
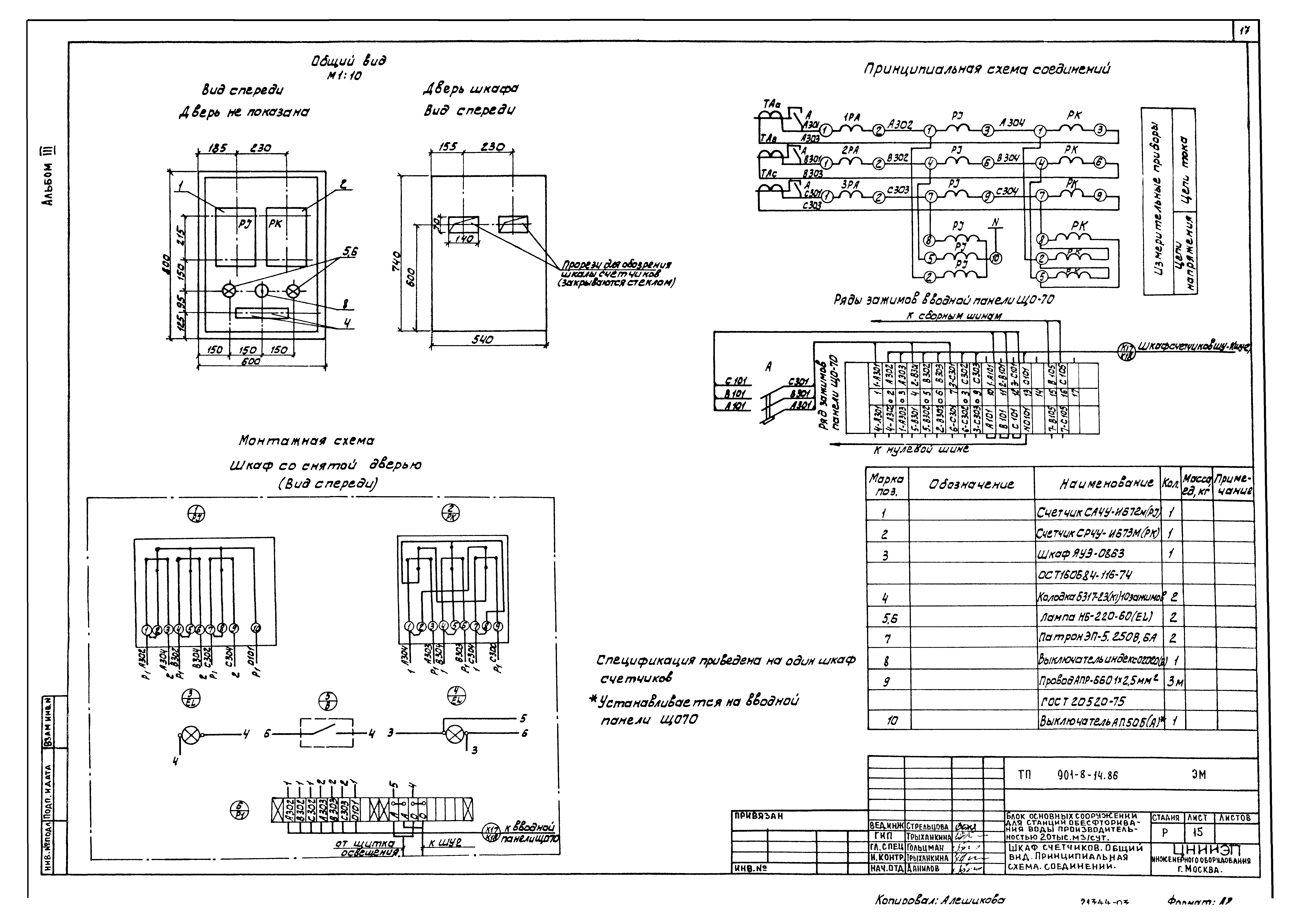
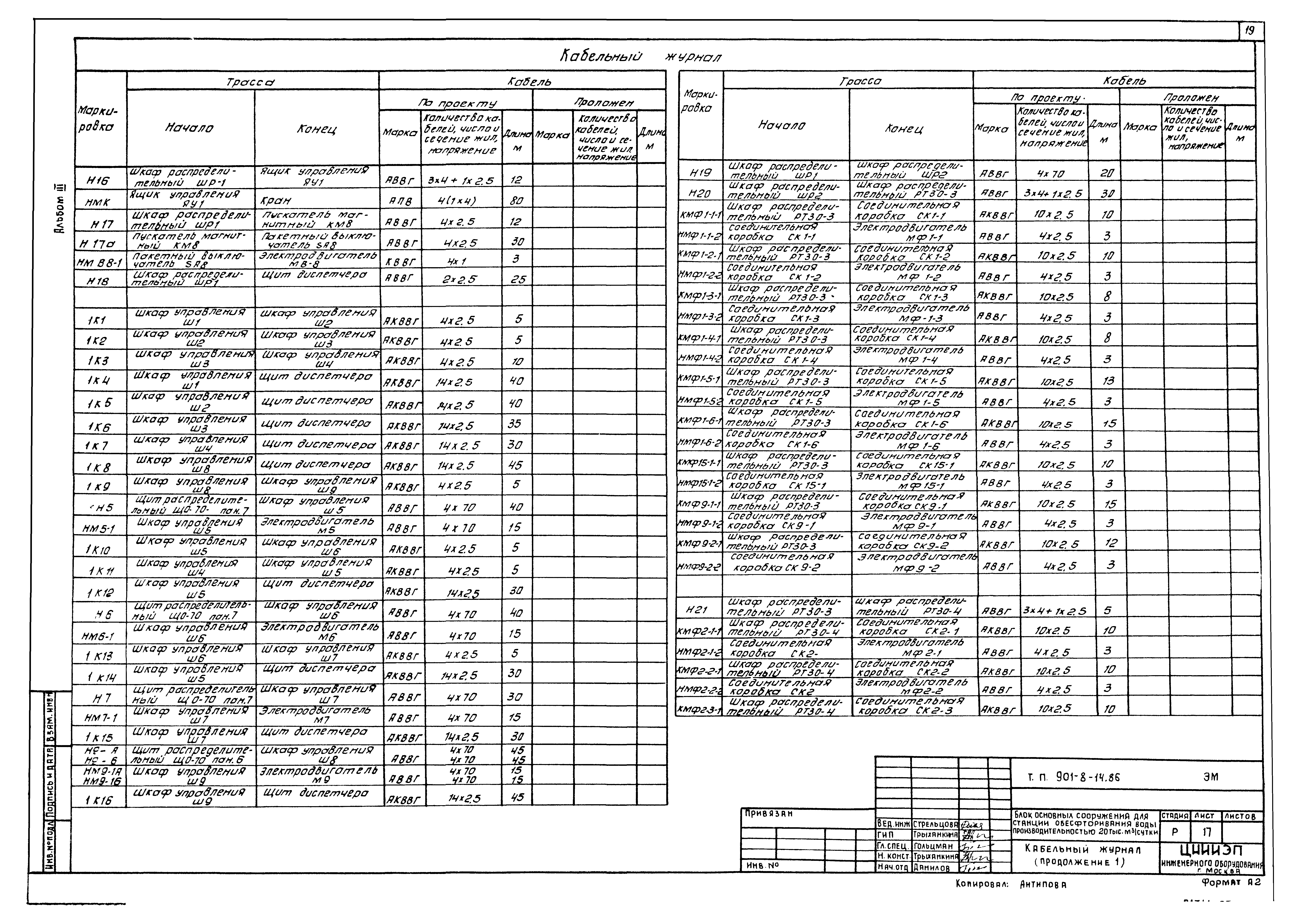
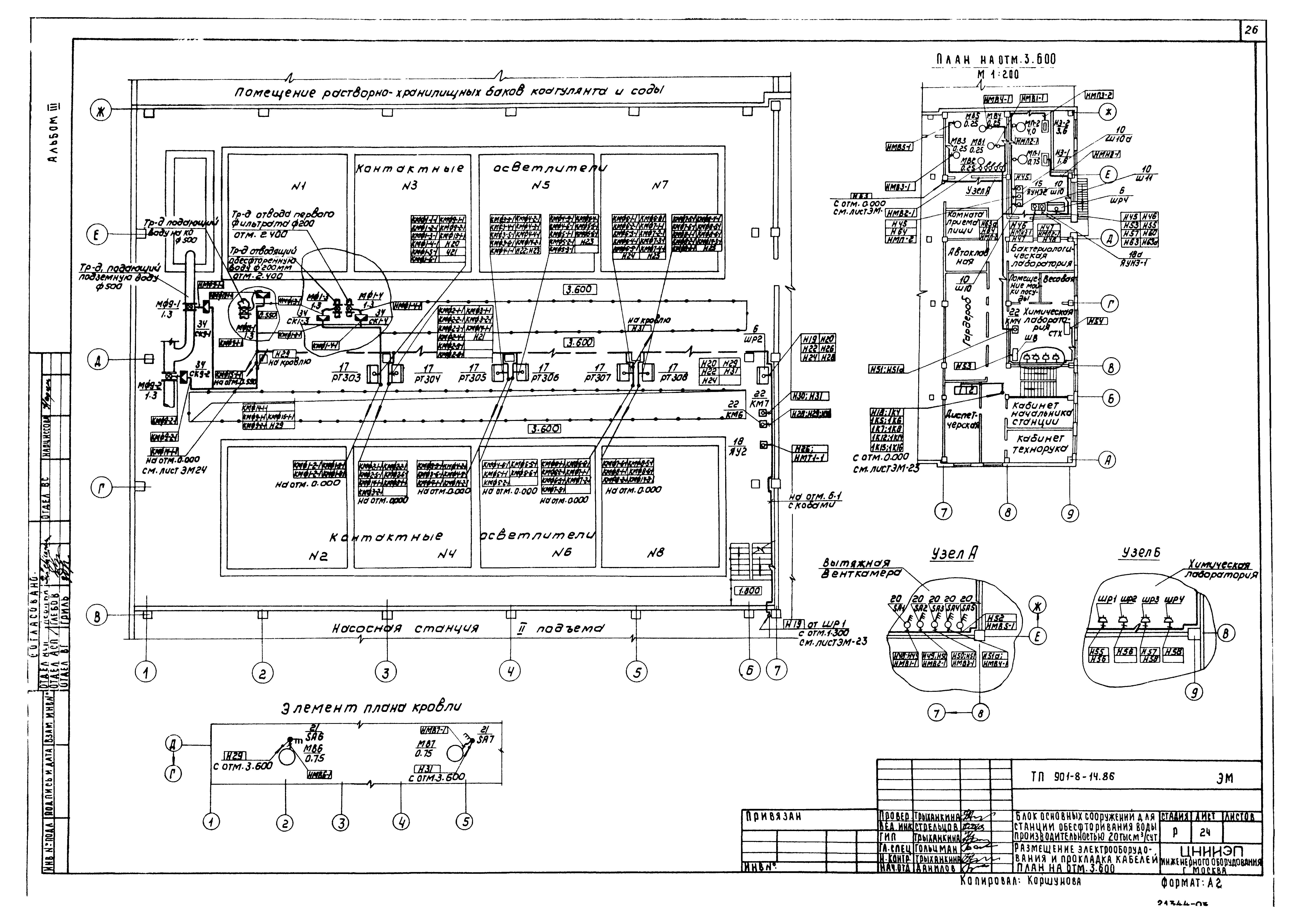
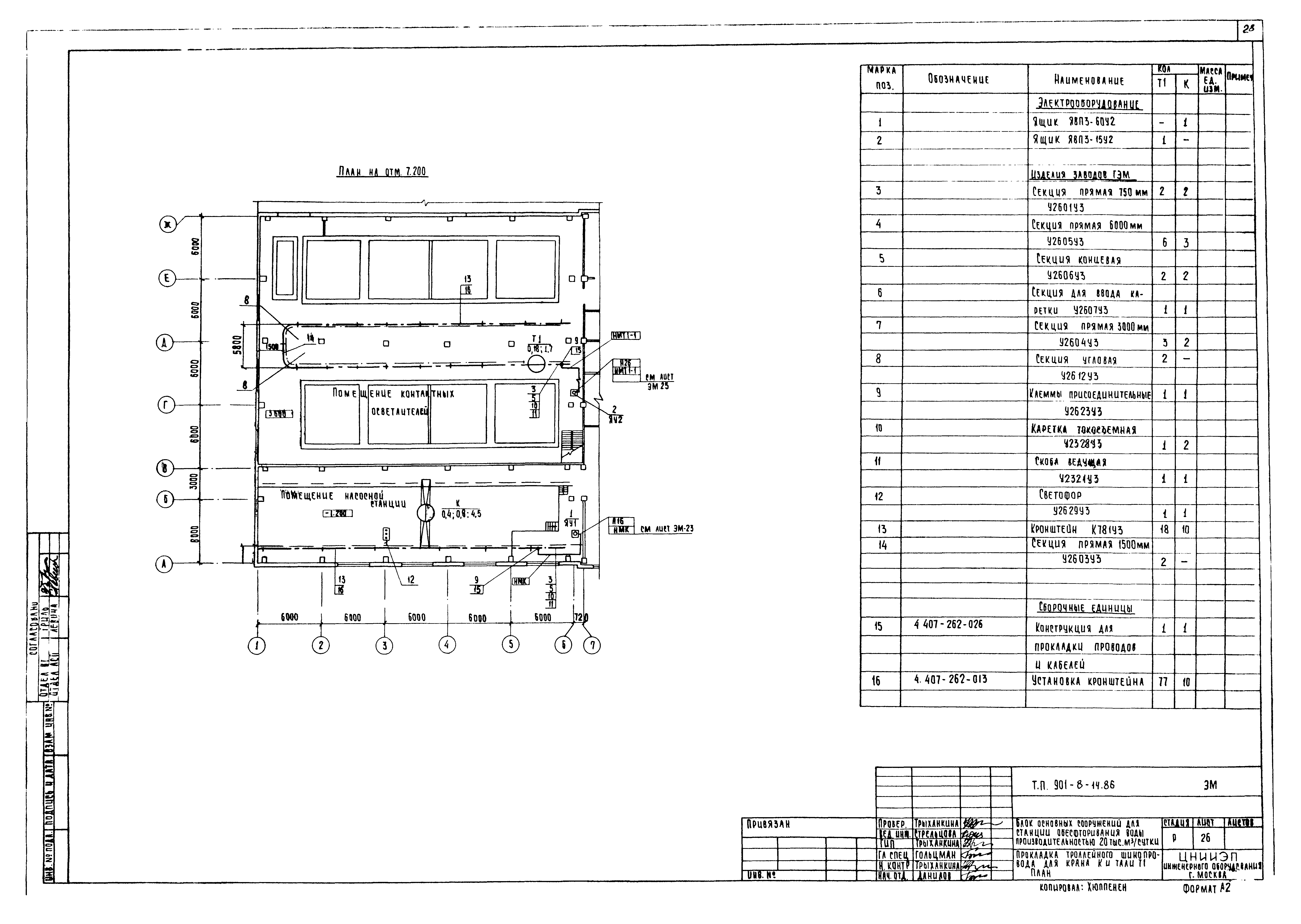
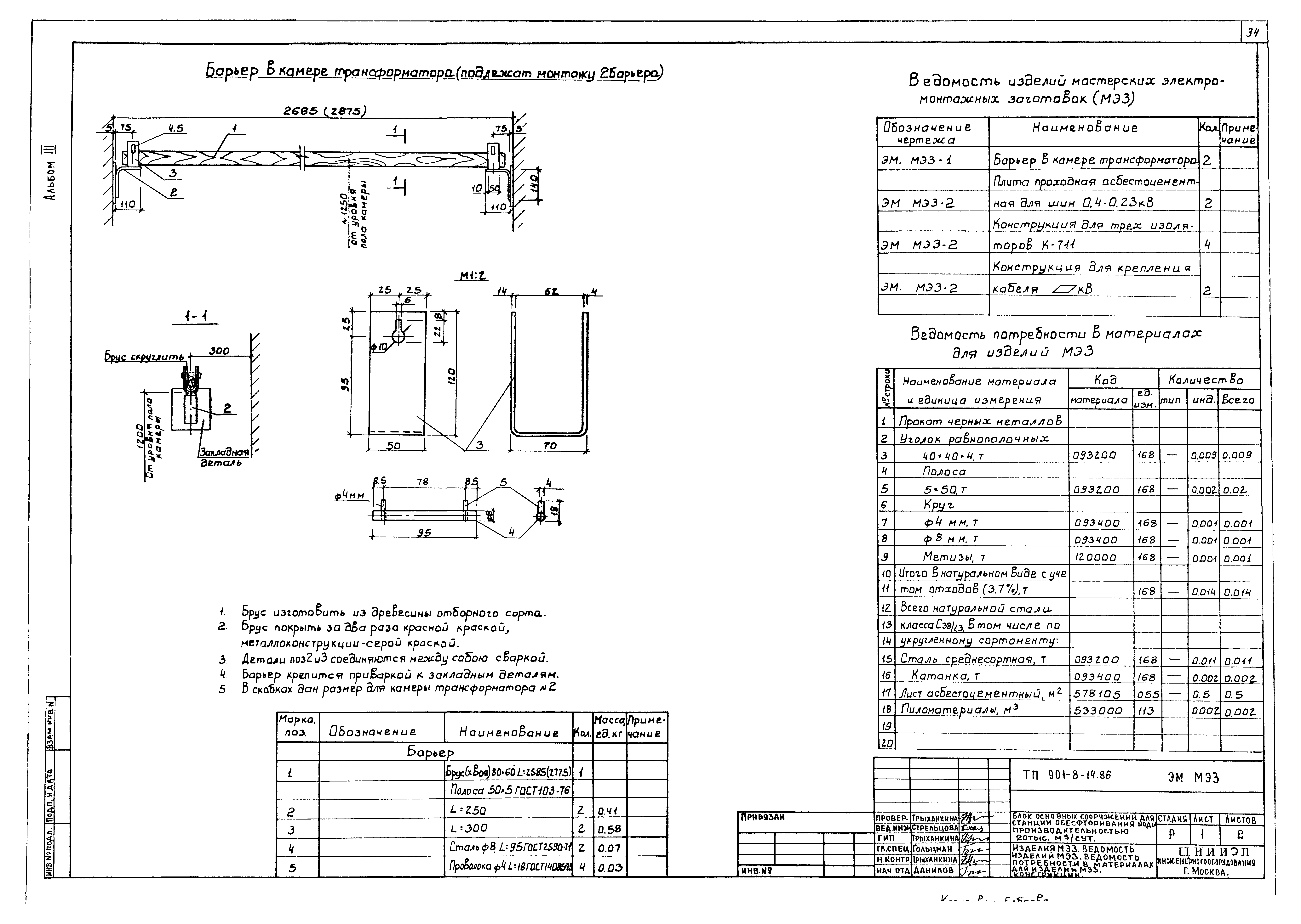
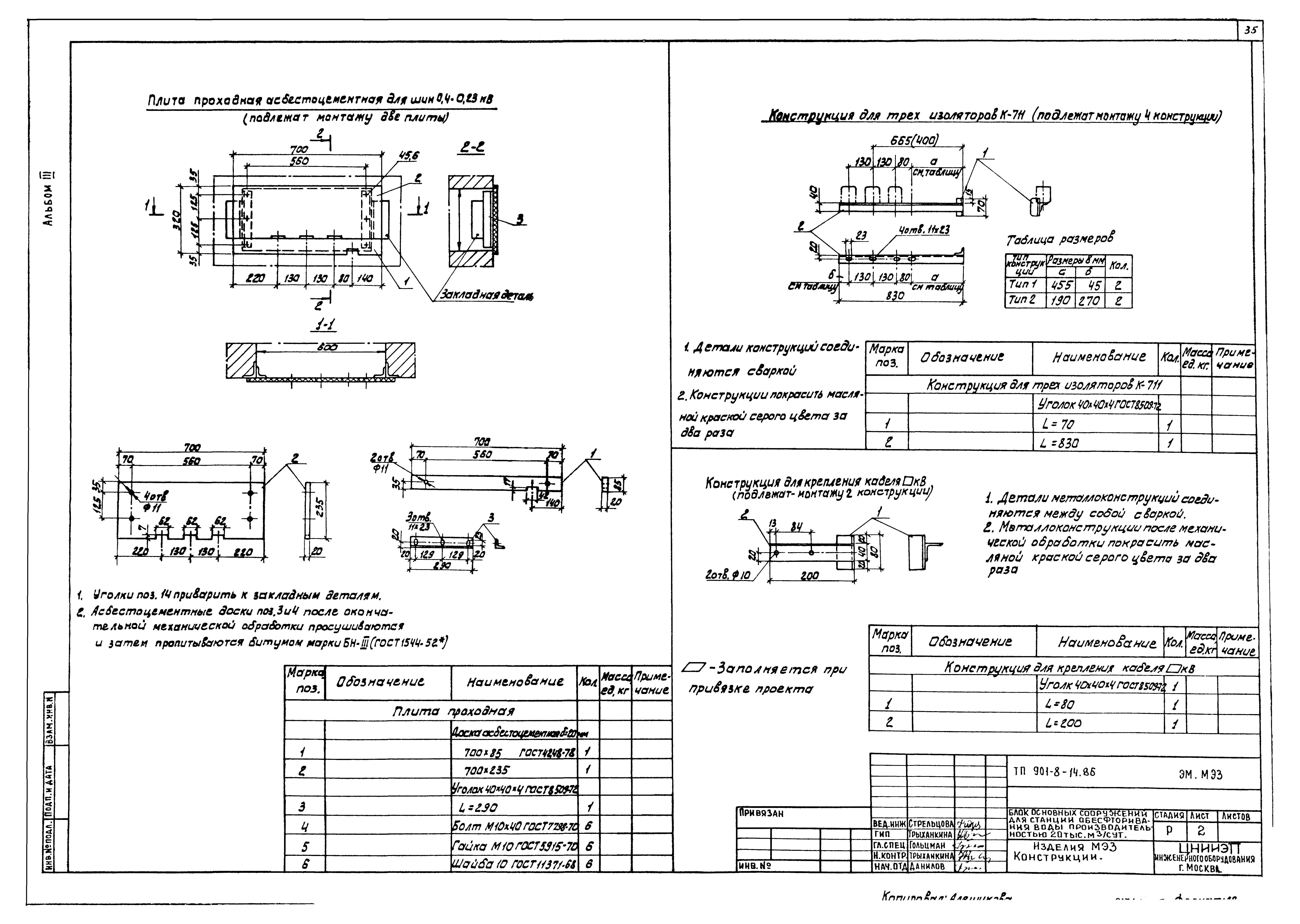
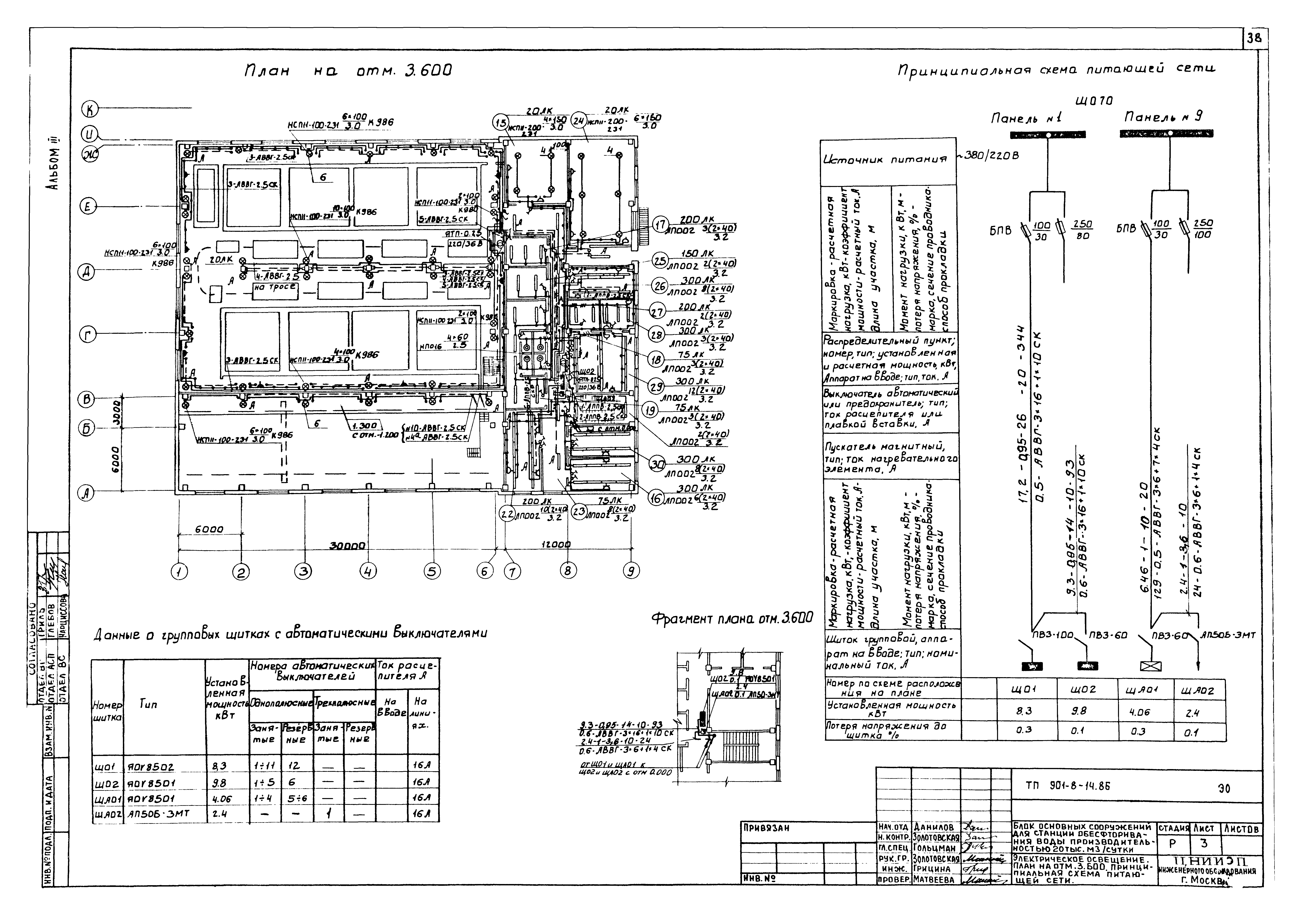
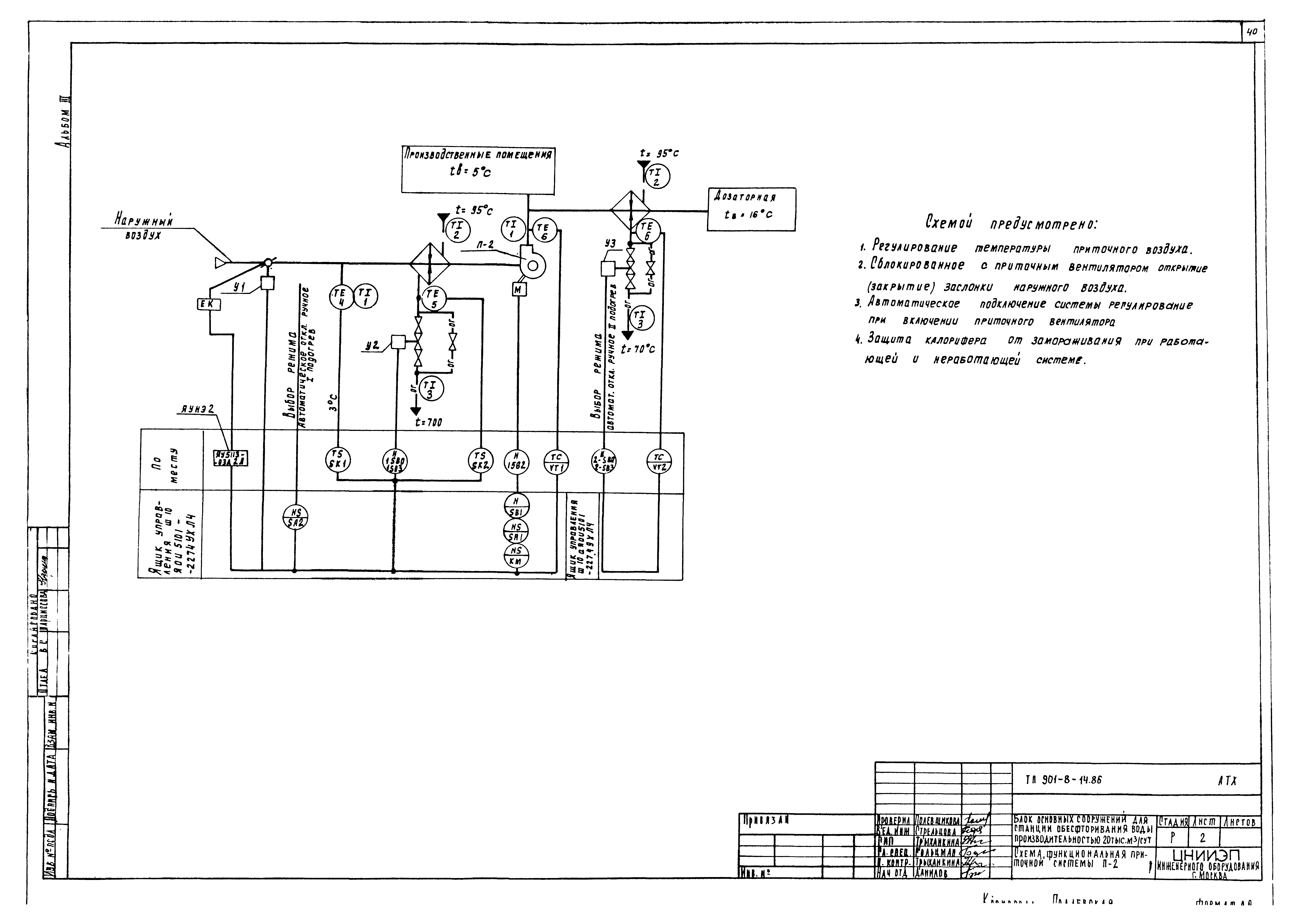
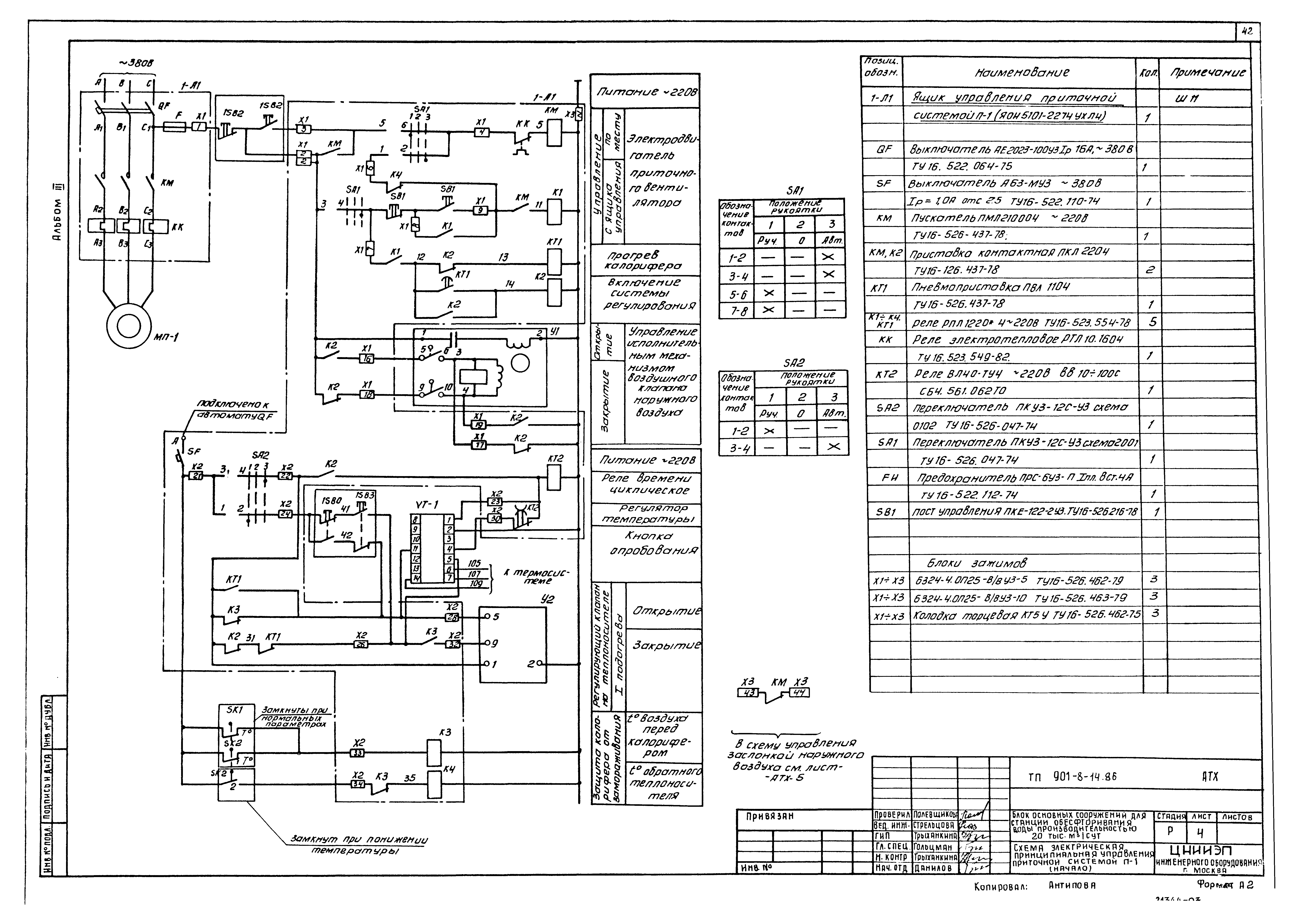
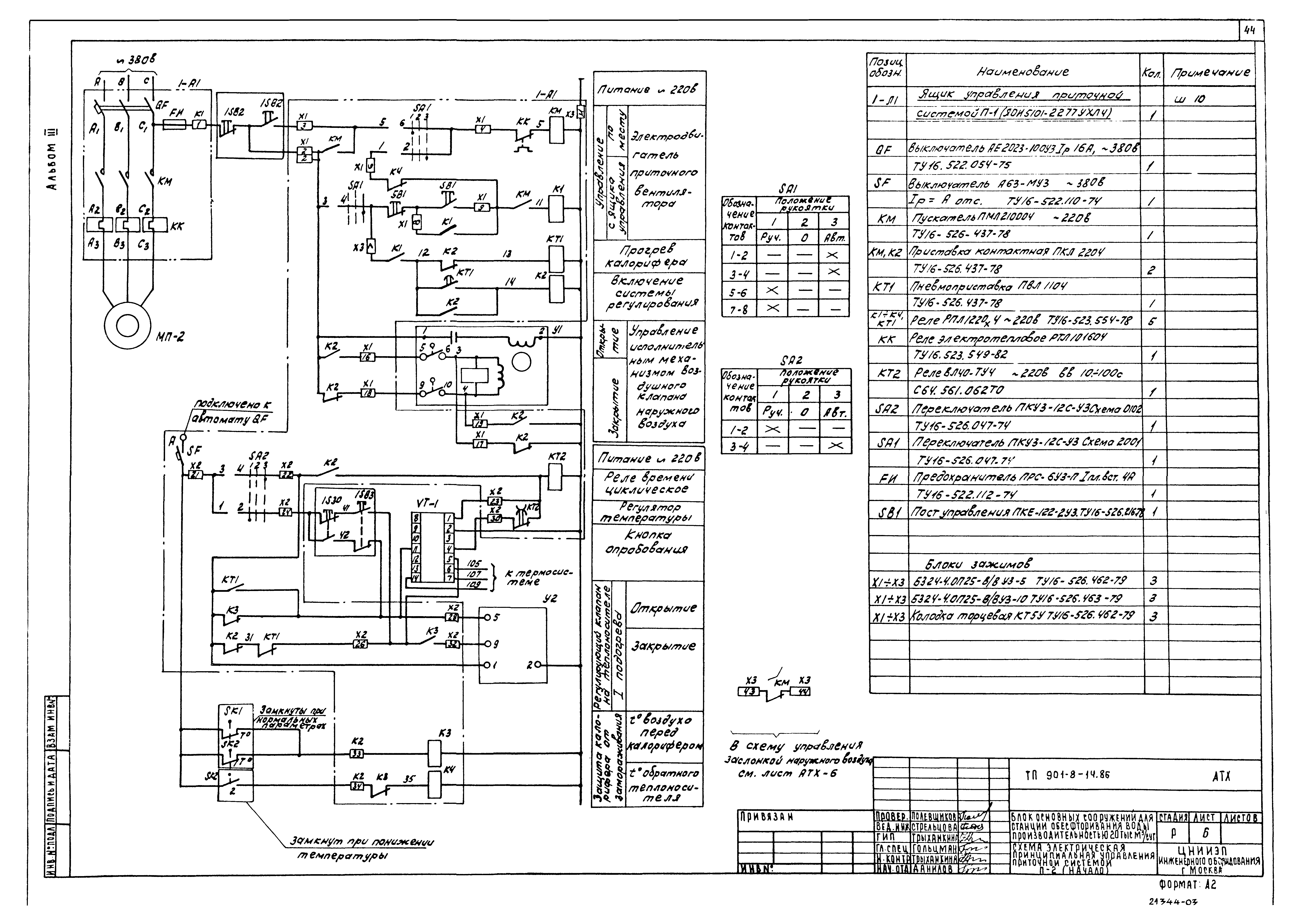
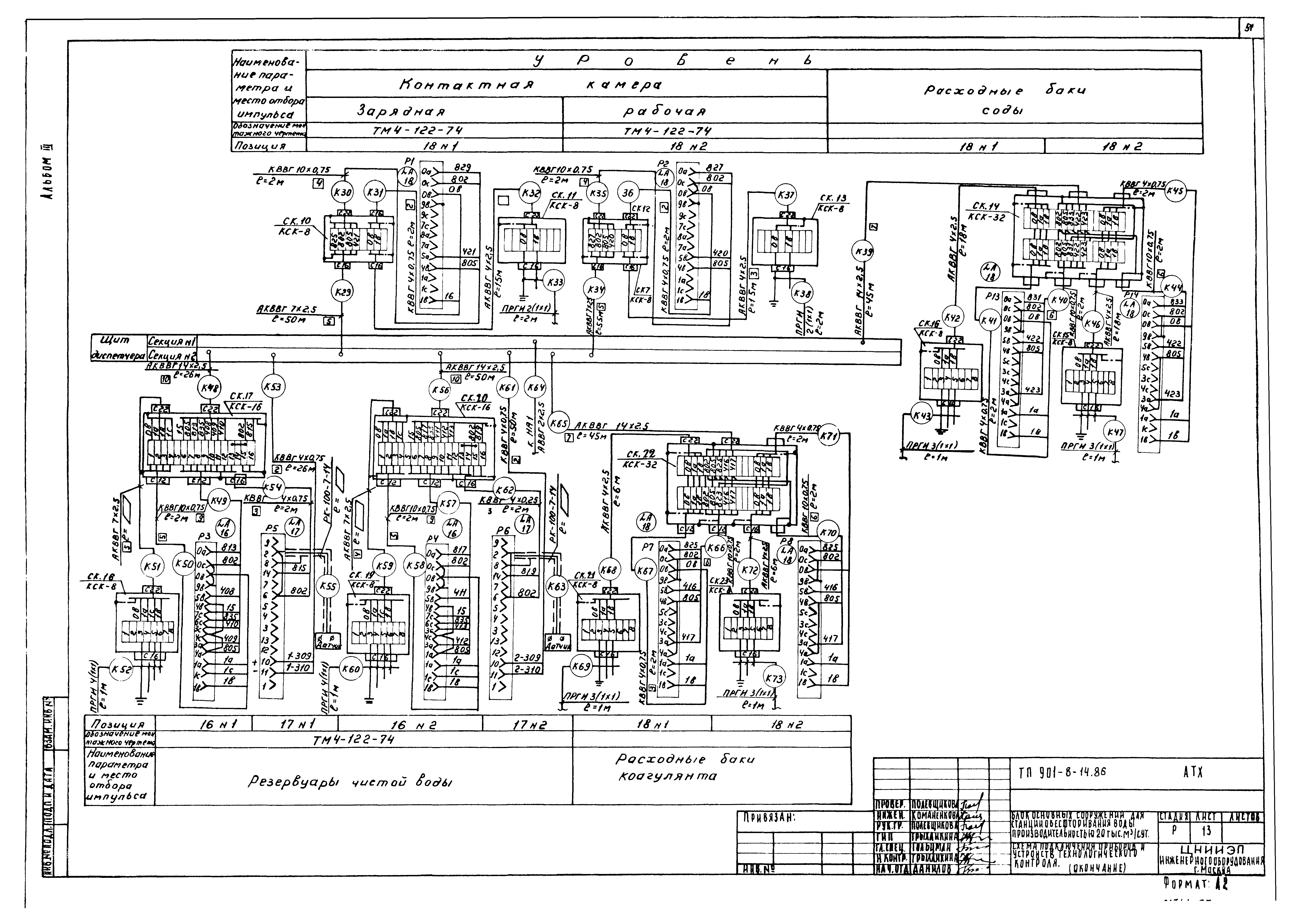
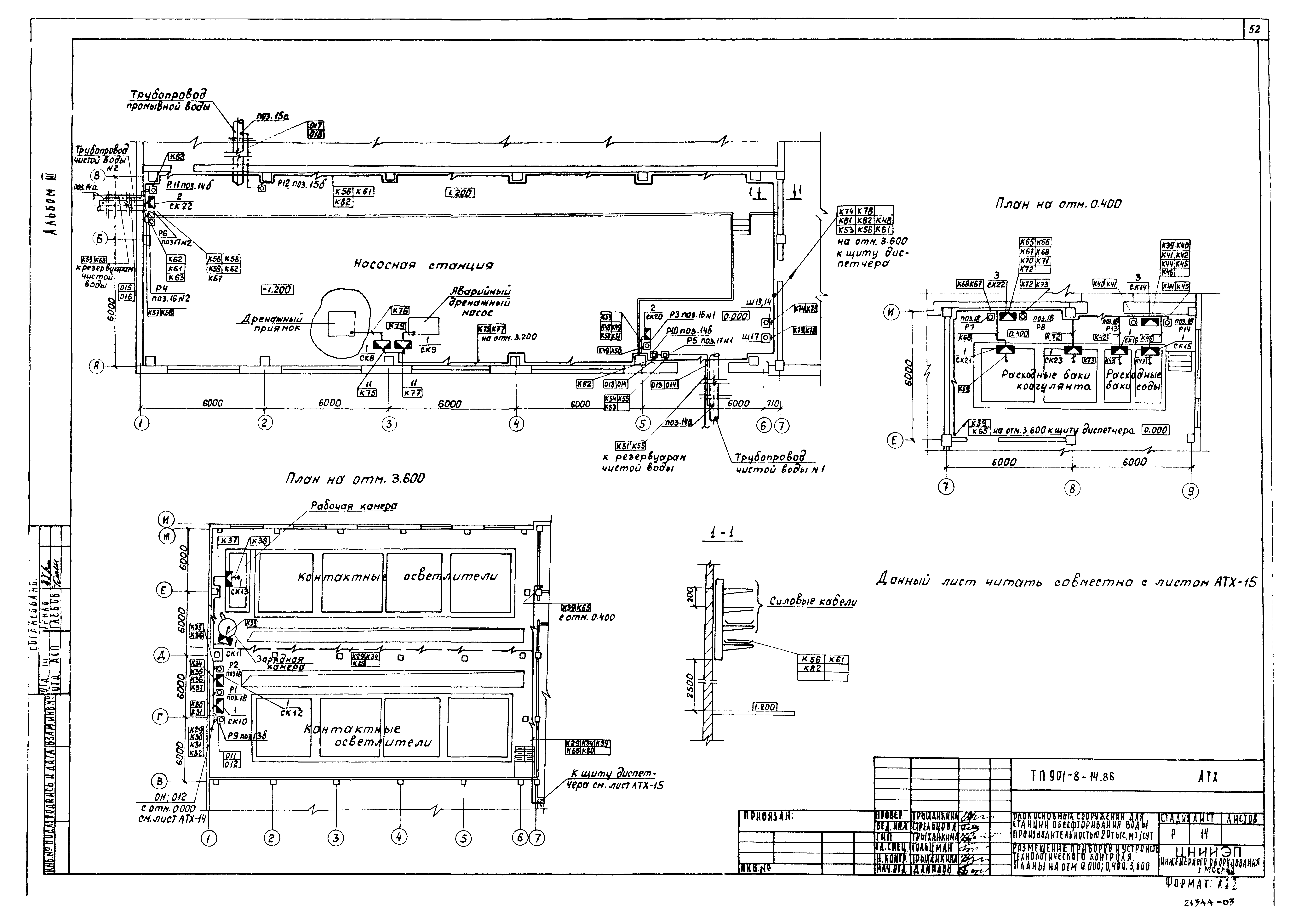
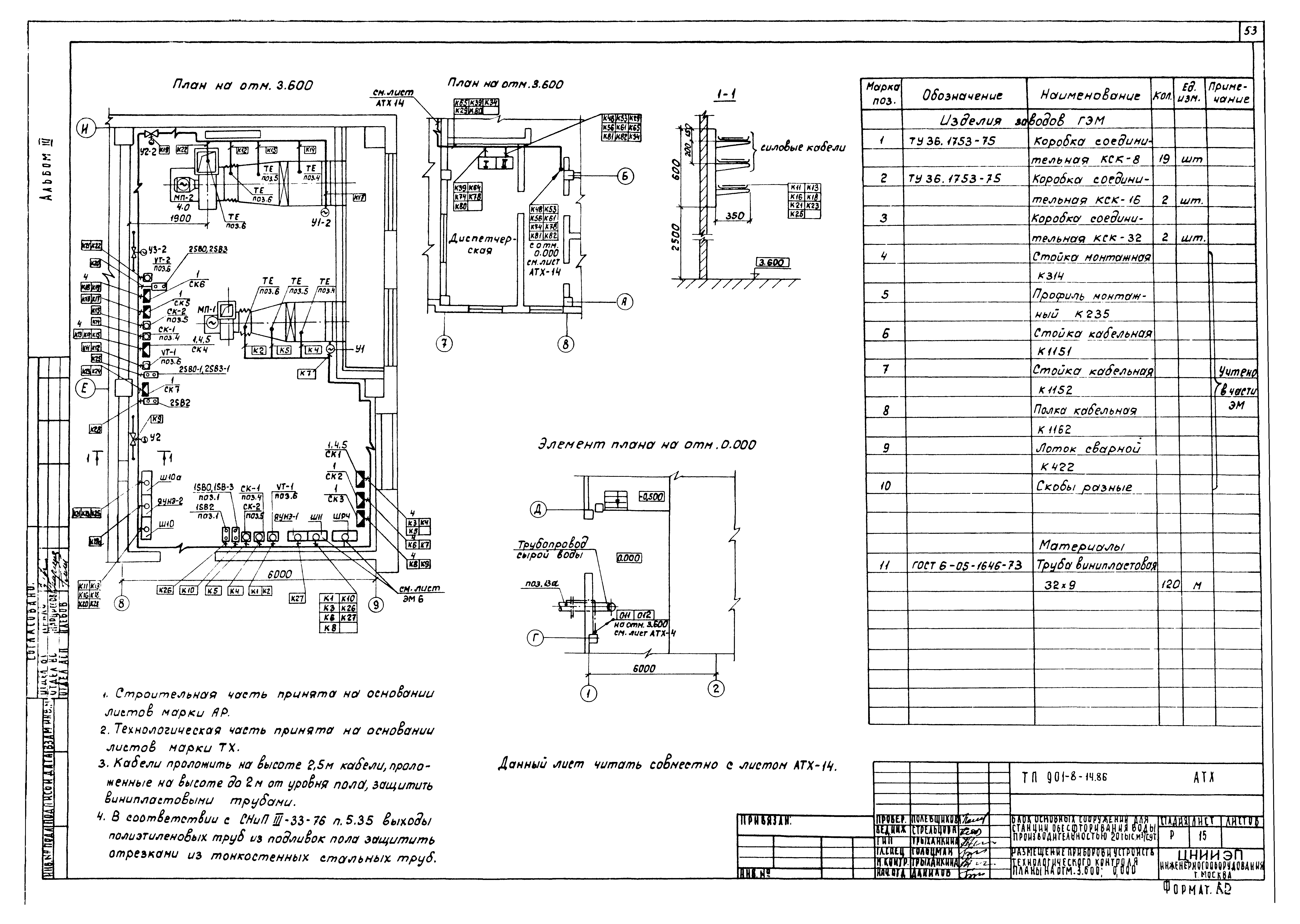
| Оглавление: | Содержание альбома Силовое электрооборудование Общие данные Трансформаторная подстанция. Схема принципиальная однолинейная 0,4 кВ Схема электрическая принципиальная распределительной сети 380/220 В Схема электрическая принципиальная управления хозпротивопожарными насосами М1 - М7 Схема электрическая принципиальная управления промывными насосами М8 - М9 Схема электрическая принципиальная управления дренажными насосами М13, М14 Схема электрическая принципиальная управления дренажным насосом М17 Схема электрическая принципиальная управления затворами М9-1 - М9-3; М10-1; М10-3; М11-1 - М11-2; МФ1-1 - МФ1-6; МФ8-1 - МФ86; МФ14-1 - МФ14-3; МФ15 Схема подключения шкафов РТ30-1 - РТ30-8 Схема подключения затворов М9-1 - М9-3; М10-1 - М10-3; М11-1 - М11-2; МФ1-1 - МФ1-6; МФ8-1 - МФ8-6; МФ14-1 - МФ14-3; МФ15 Вытяжные вентиляторы МВ1 - МВ8. Схема подключения Шкаф счетчиков. Общий вид. Принципиальная схема соединений Кабельный журнал Размещение электрооборудования и прокладка кабелей. Планы на отм. - 1.200; 0.000; 1.200 Размещение электрооборудования и прокладка кабелей. Планы на отм. - 2.400; 0.000 Размещение электрооборудования и прокладка кабелей. Планы на отм. 3.600 Размещение электрооборудования и прокладка кабелей. Спецификация Прокладка троллейного шинопровода для крана "К" и тали Т1. План Трансформаторная подстанция. Установка электрооборудования Трансформаторная подстанция. Узлы установки электрооборудования Трансформаторная подстанция. Заземление Опросный лист для заказа камер серии КСО-366 Опросный лист для заказа щита из панели ЩО-70 Изделия МЭЗ. Ведомость изделий МЭЗ. Ведомость изделий МЭЗ. Ведомость потребности в материалах для изделий МЭЗ. Конструкции Изделия МЭЗ. Конструкции Электроосвещение Общие данные Электрическое освещение. План на отм. - 2.400; - 1.200; - 0.500; 0.000 Электрическое освещение. План на отм. 3.600. Принципиальная схема питающей сети Автоматизация технологического процесса Общие данные. Схема функциональная приточной системы П-1 Схема функциональная приточной системы П-2 Схема функциональная технологического процесса Схема электрическая принципиальная управления приточной системой П-1 Схема электрическая принципиальная управления приточной системой П-2 Схема электрическая принципиальная питания Схема электрическая принципиальная сигнализации Схема подключения приборов и устройств технологического контроля Размещение приборов и устройств технологического контроля. Планы на отм. 0.000; 0.400; 3.600 Данные для разработки задания на изготовление щита диспетчера Связь и сигнализация Общие данные. Спецификация. Экспликация помещений. Скелетная схема План на отм. 0.000 и 3.600 с сетями связи |
| Разработан: | ЦНИИЭП инженерного оборудования |
| Утверждён: | 22.07.1981 Госгражданстрой (Gosgrazhdanstroy 219) |




























































