Скачать Типовой проект 3.503-2 Раздел 2. УстоиДата актуализации: 01.01.2021
|
| Обозначение: | Типовой проект 3.503-2 |
| Обозначение англ: | 3.503-2 |
| Статус: | не действует |
| Название рус.: | Раздел 2. Устои |
| Дата добавления в базу: | 01.10.2014 |
| Дата актуализации: | 01.01.2021 |
| Дата введения: | 24.05.1966 |
| Дата окончания срока действия: | 01.04.1989 |
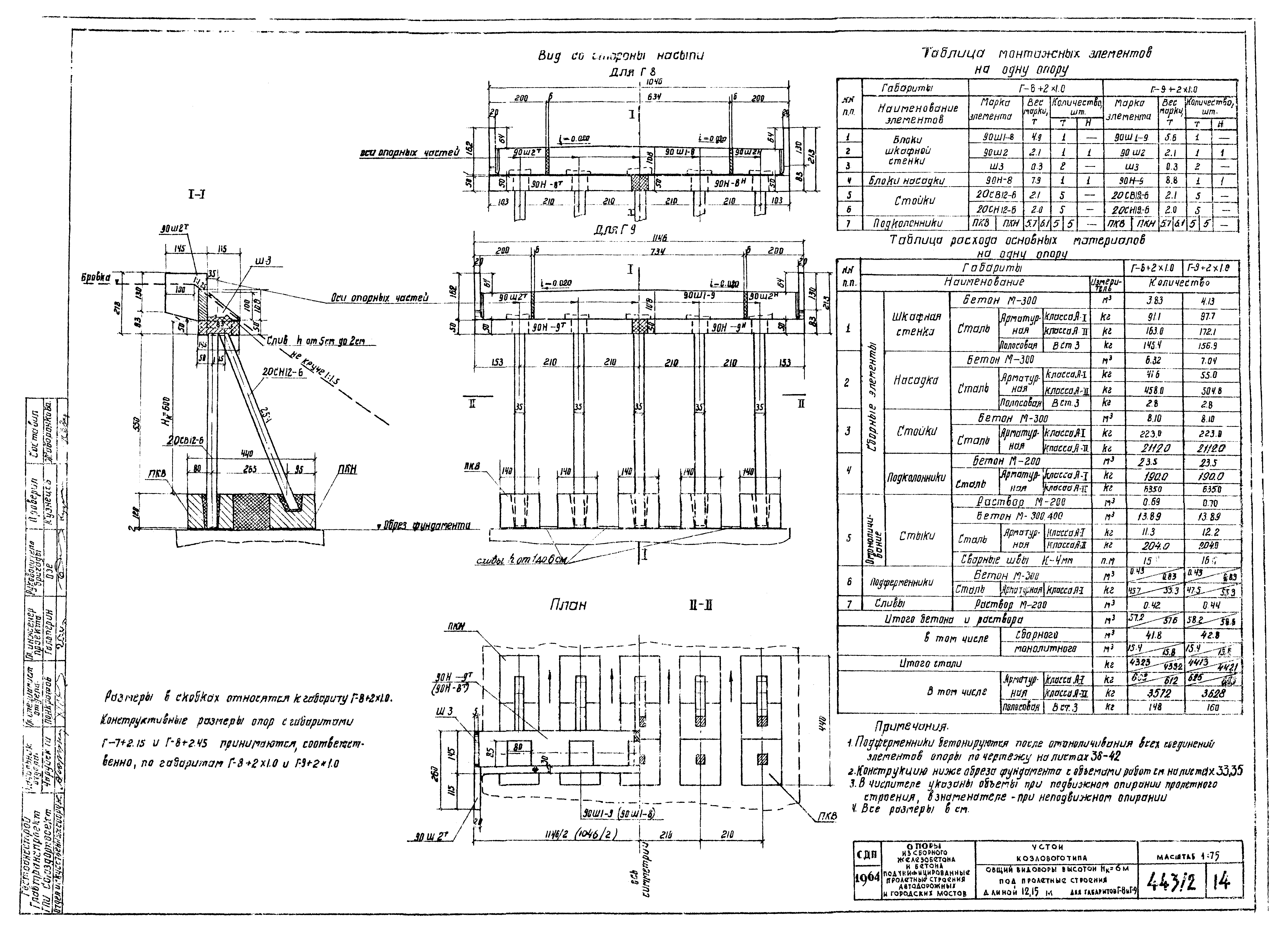
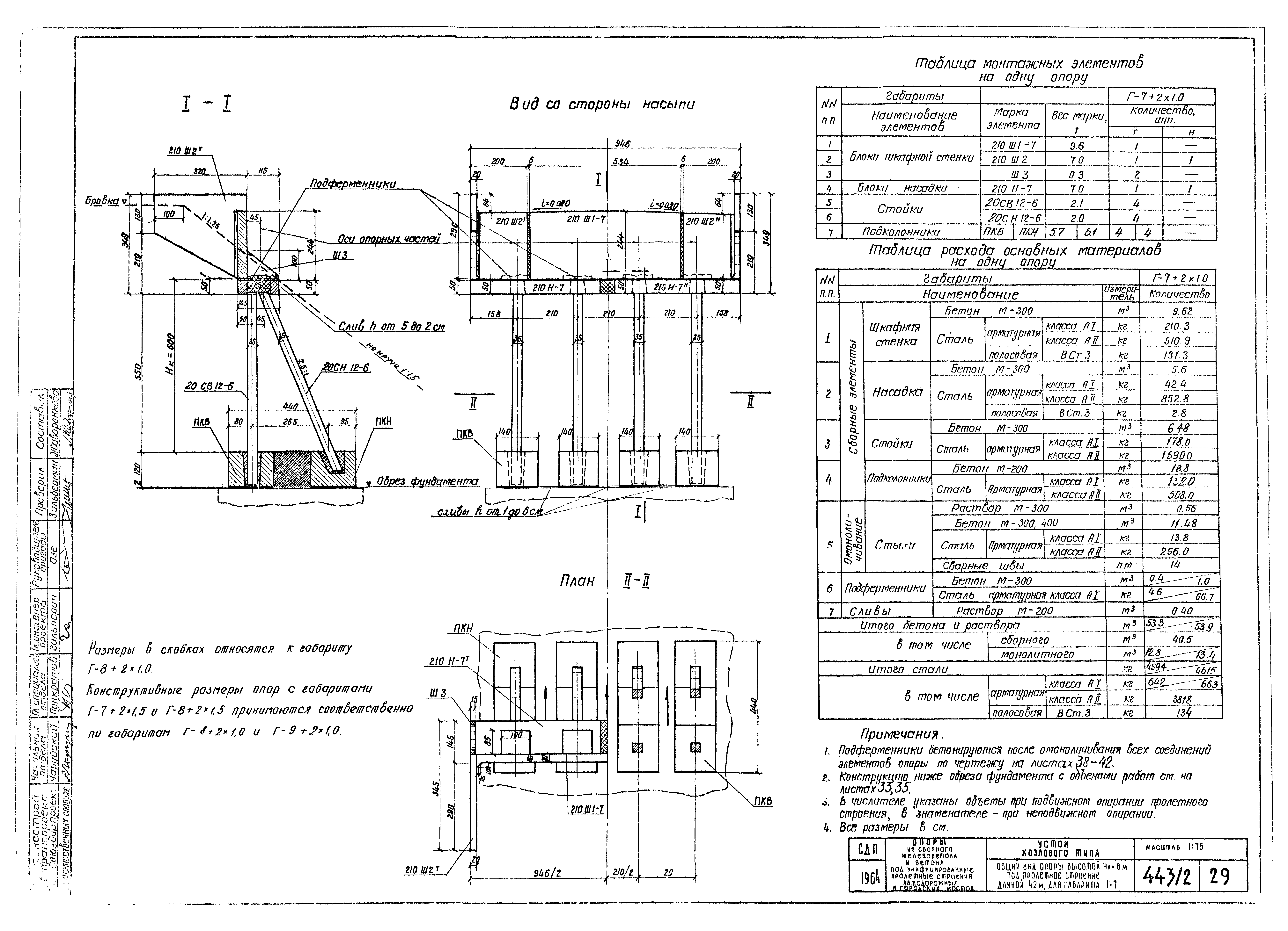
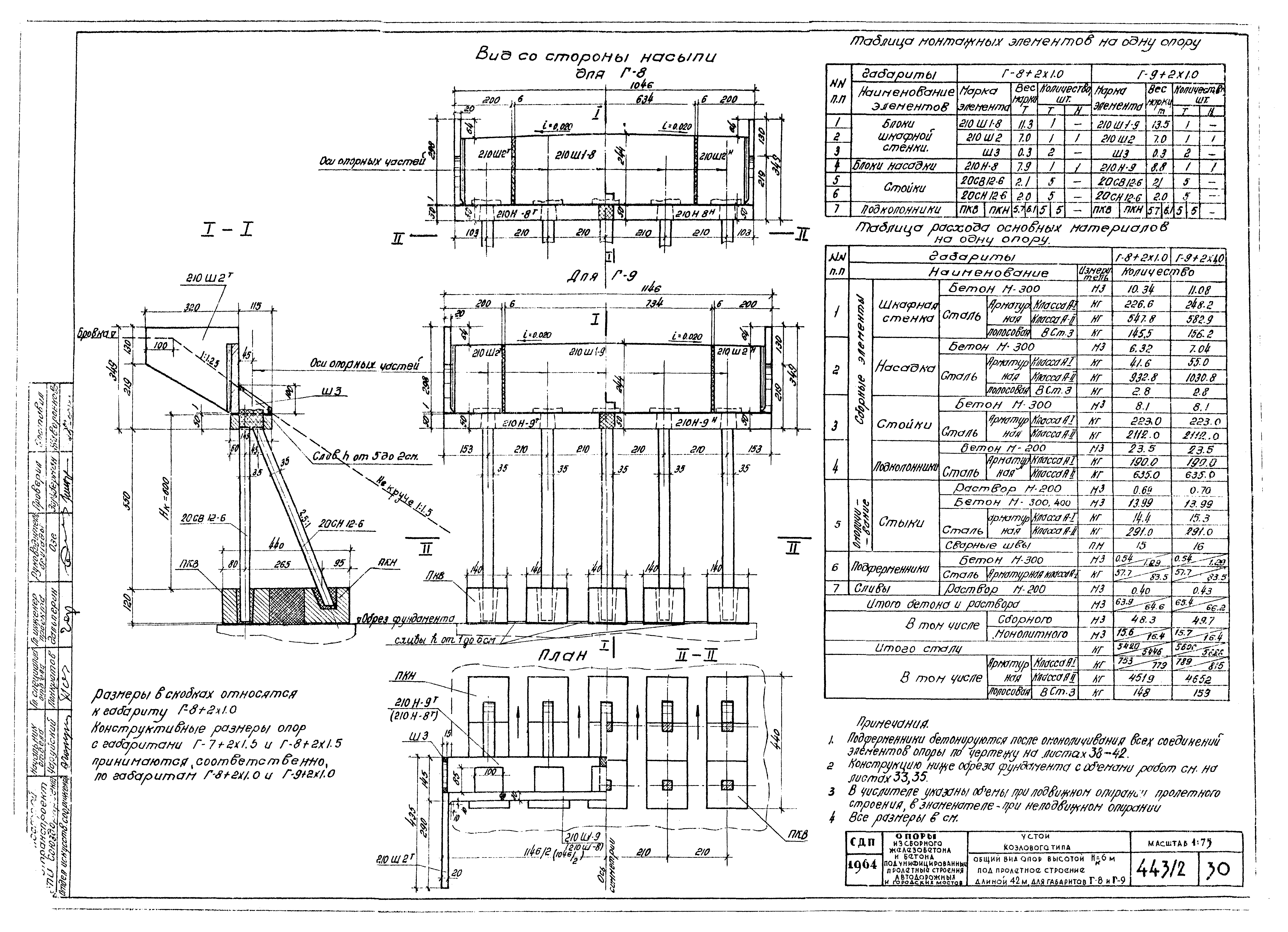
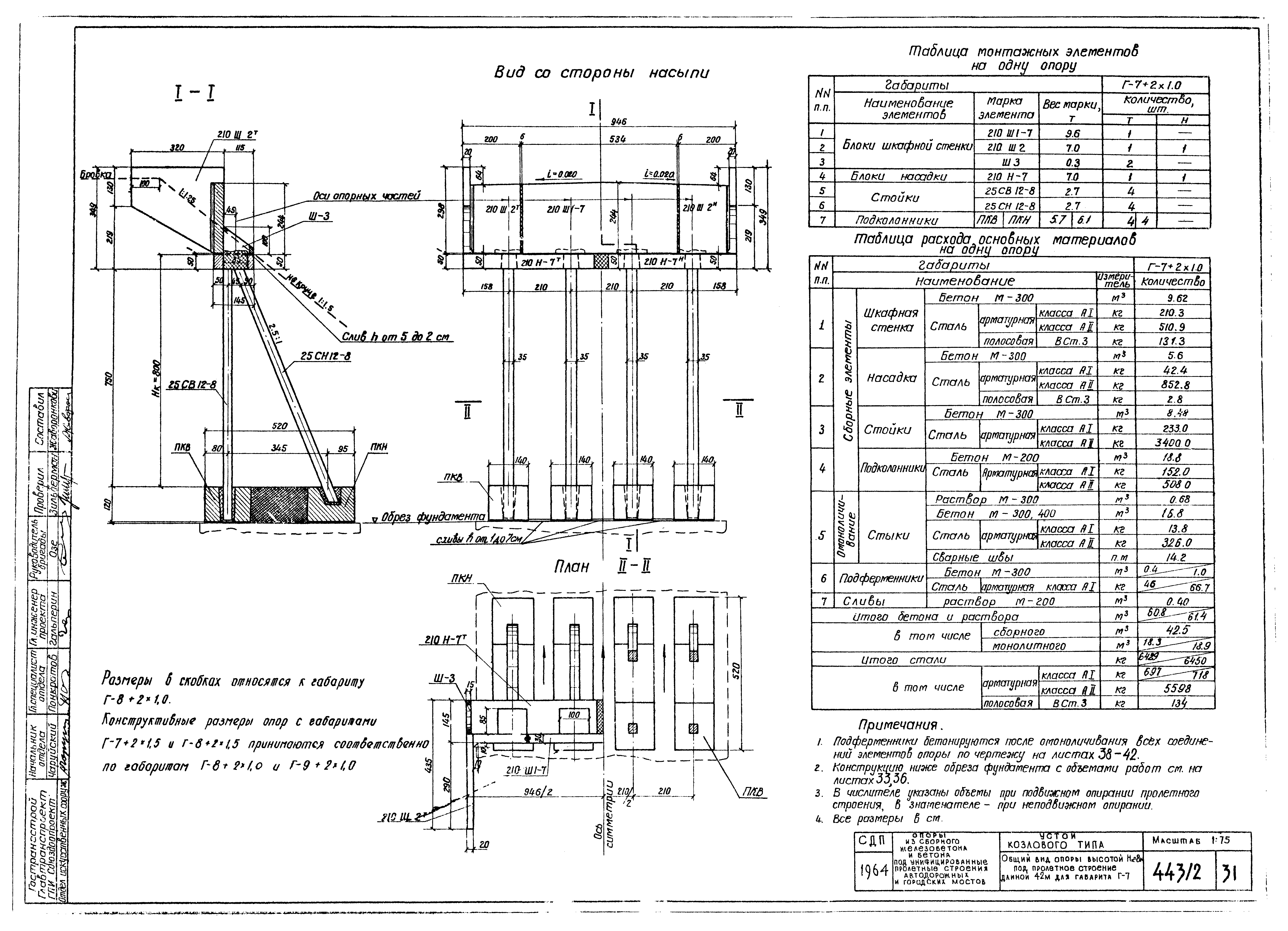
| Оглавление: | Содержание Пояснения Расчетные листы Сводные таблицы расхода материалов Общие виды опор под пролетные строения длиной 12 и 15 м высотой Нк = 4 м Общие виды опор под пролетные строения длиной 12 и 15 м высотой Нк = 6 м Общие виды опор под пролетные строения длиной 18 и 24 м высотой Нк = 4 м Общие виды опор под пролетные строения длиной 18 и 24 м высотой Нк = 6 м Общие виды опор под пролетные строения длиной 18 и 24 м высотой Нк = 8 м Общие виды опор под пролетные строения длиной 33 м высотой Нк = 4 м Общие виды опор под пролетные строения длиной 33 м высотой Нк = 6 м Общие виды опор под пролетные строения длиной 33 м высотой Нк = 8 м Общие виды опор под пролетные строения длиной 42 м высотой Нк = 4 м Общие виды опор под пролетные строения длиной 42 м высотой Нк = 6 м Общие виды опор под пролетные строения длиной 42 м высотой Нк = 8 м Общие виды фундаментов на естественном основании Фундаменты опор на свайном основании для высоты Нк = 4 м Фундаменты опор на свайном основании для высоты Нк = 6 м Фундаменты опор на свайном основании для высоты Нк = 8 м Сопряжение с берегом Детали соединения элементов опор Конструкция подферменников Детали установки опорных частей на подферменники Опалубочные чертежи шкафных стенок Опалубочные чертежи насадок и стоек Армирование блоков шкафных стенок и насадок для пролетных строений длиной 12 и 15 м 90Ш1-7 и 90Н-7 Армирование блоков шкафных стенок и насадок для пролетных строений длиной 12 и 15 м 90Ш1-8 и 90Н-8 Армирование блоков шкафных стенок и насадок для пролетных строений длиной 12 и 15 м 90Ш1-9 и 90Н-9 Армирование блоков шкафных стенок и насадок для пролетных строений длиной 12 и 15 м 90Ш2 и Ш3 Армирование блоков шкафных стенок и насадок для пролетных строений длиной 18 и 24 м 120Ш1-7 и 120Н-7 Армирование блоков шкафных стенок и насадок для пролетных строений длиной 18 и 24 м 120Ш1-8 и 120Н-8 Армирование блоков шкафных стенок и насадок для пролетных строений длиной 18 и 24 м 120Ш1-9 и 120Н-9 Армирование блоков шкафных стенок и насадок для пролетных строений длиной 18 и 24 м 120Ш2 и Ш3 Армирование блоков шкафных стенок и насадок для пролетных строений длиной 33 м 150Ш1-7 и 150Н-7 Армирование блоков шкафных стенок и насадок для пролетных строений длиной 33 м 150Ш1-8 и 150Н-8 Армирование блоков шкафных стенок и насадок для пролетных строений длиной 33 м 150Ш1-9 и 150Н-9 Армирование блоков шкафных стенок и насадок для пролетных строений длиной 33 м 150Ш2 и Ш3 Армирование блоков шкафных стенок и насадок для пролетных строений длиной 42 м 210Ш1-7 и 210Н-7 Армирование блоков шкафных стенок и насадок для пролетных строений длиной 42 м 210Ш1-8 и 210Н-8 Армирование блоков шкафных стенок и насадок для пролетных строений длиной 42 м 210Ш1-9 и 210Н-9 Армирование блоков шкафных стенок и насадок для пролетных строений длиной 42 м 210Ш2 и Ш3 Армирование вертикальных стоек 18СВ8-4; 20СВ12-6 и 25СВ12-8 Армирование наклонных стоек 18СН8-4; 20СН12-6 и 25СН12-8 Конструкция блоков подколонников ПКВ и ПКН Конструкция блоков фундаментов Конструкция свай СВ20 Конструкция свай СВ22 Конструкция свай СВ25 Опалубочные чертежи блоков сопряжения, переходных плит, парапетов Армирование блоков сопряжения Армирование переходных плит Армирование парапетов Схема производства работ по сооружению опор |
| Разработан: | ГПИ Союздорпроект |
| Утверждён: | 24.05.1966 Министерство транспортного строительства СССР (USSR Ministry of Transport Construction Л-876) |










































































