Скачать Серия ИИС-04-7 Выпуск 2. Железобетонные лестницы для зданий с высотой этажей 3,0 и 3,3 мДата актуализации: 01.01.2021
|
| Обозначение: | Серия ИИС-04-7 |
| Обозначение англ: | Series ИИС-04-7 |
| Статус: | заменен |
| Название рус.: | Выпуск 2. Железобетонные лестницы для зданий с высотой этажей 3,0 и 3,3 м |
| Дата добавления в базу: | 01.10.2014 |
| Дата актуализации: | 01.01.2021 |
| Дата введения: | 31.12.1970 |
| Дата окончания срока действия: | 01.10.1980 |
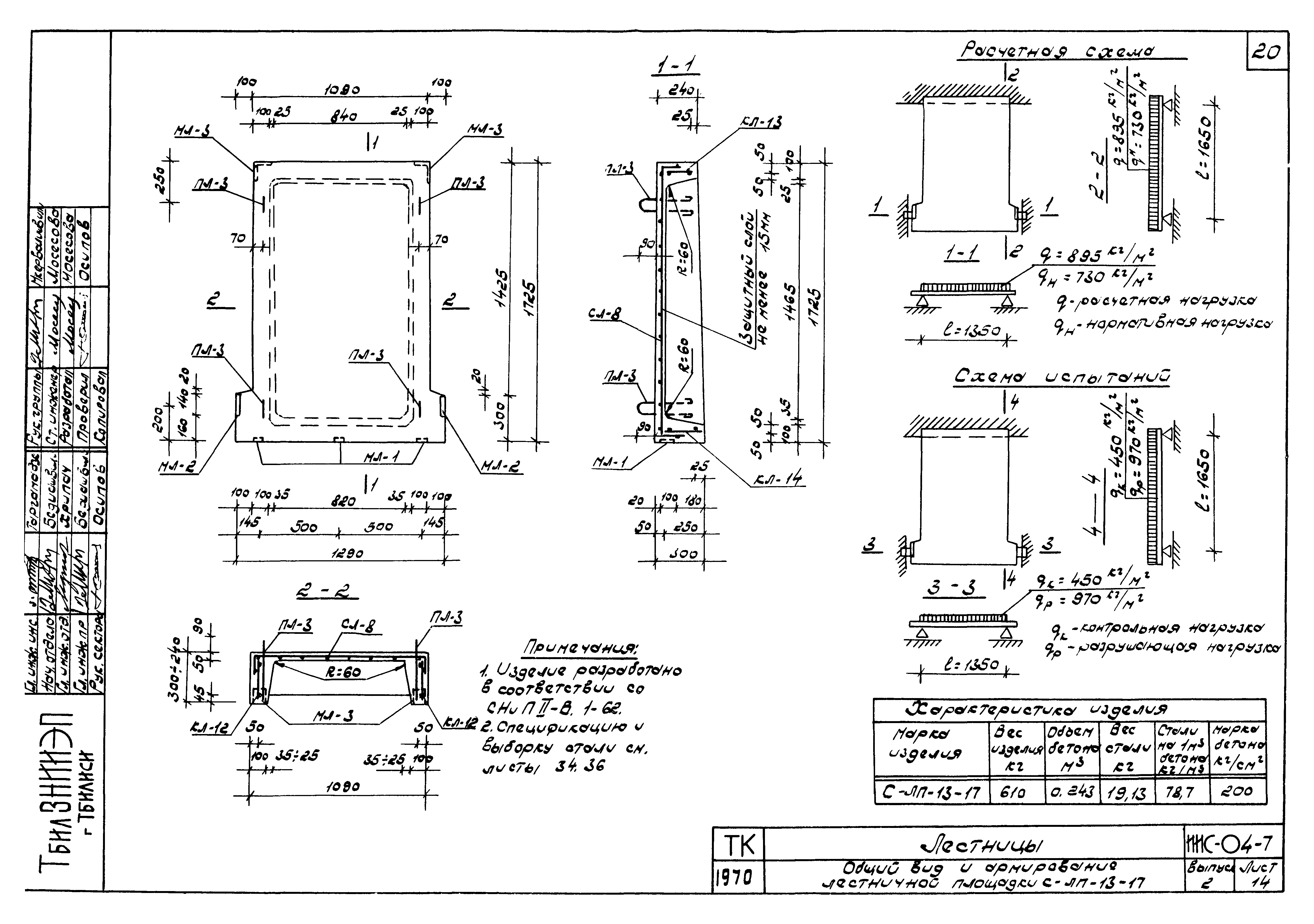
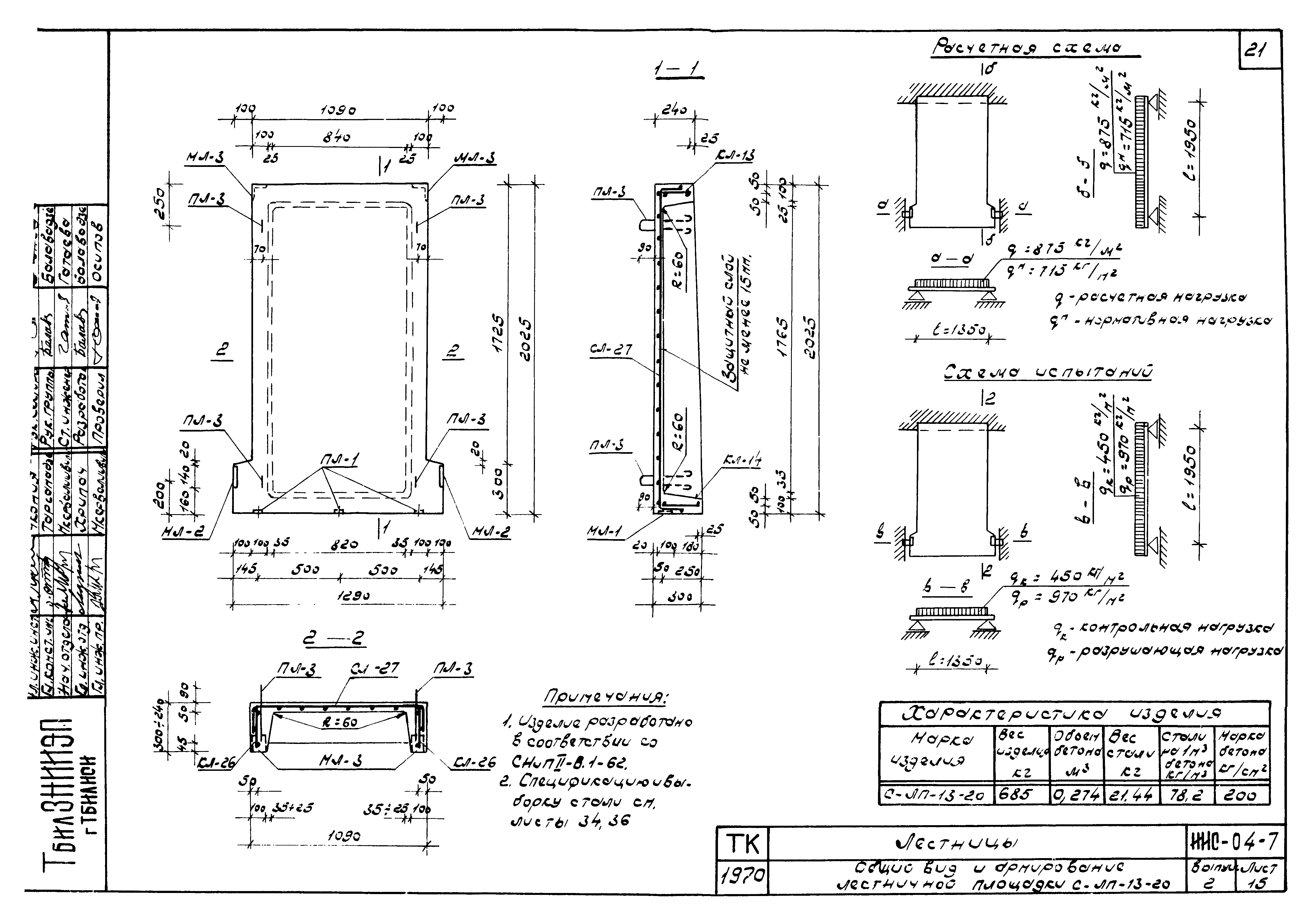
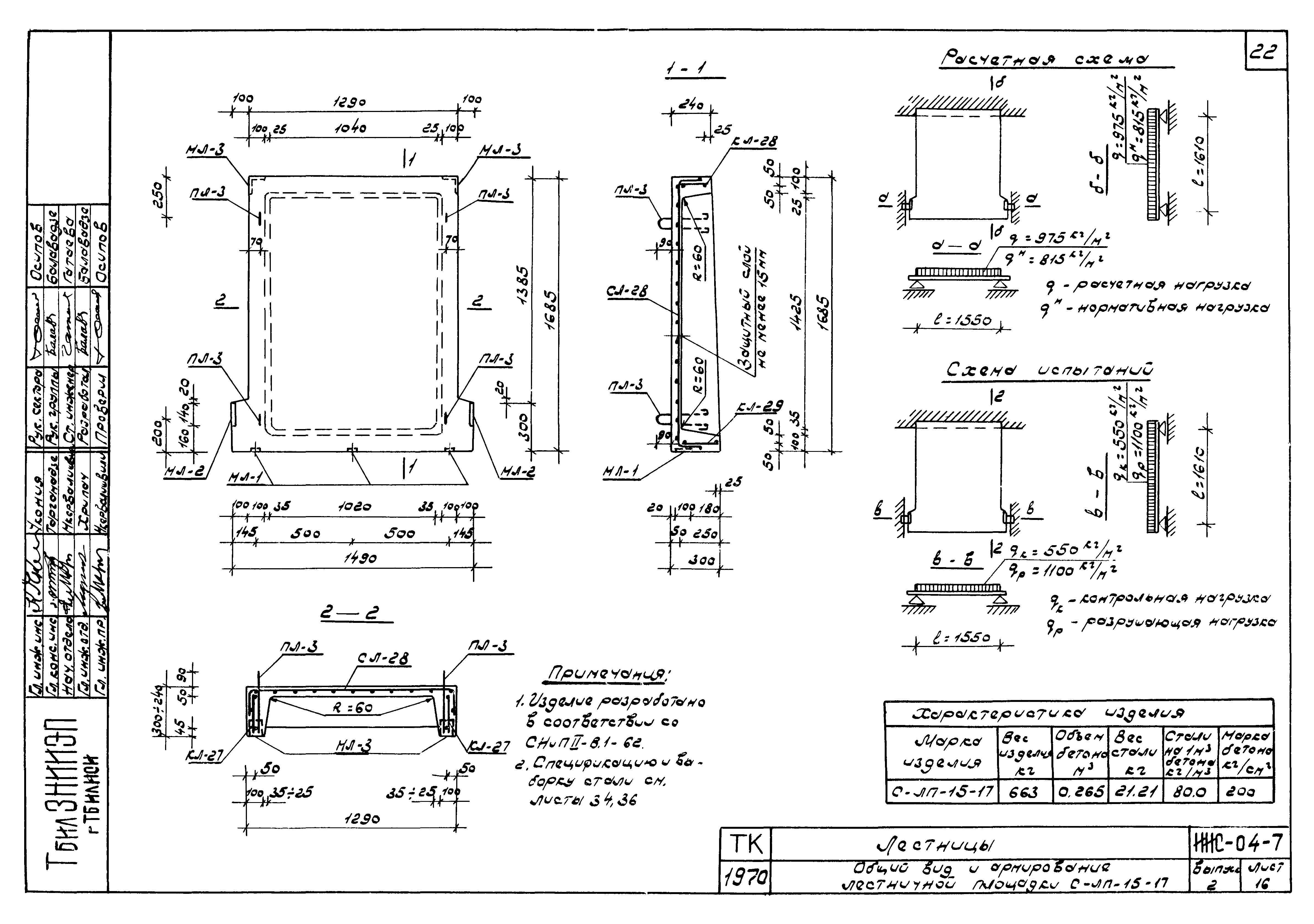
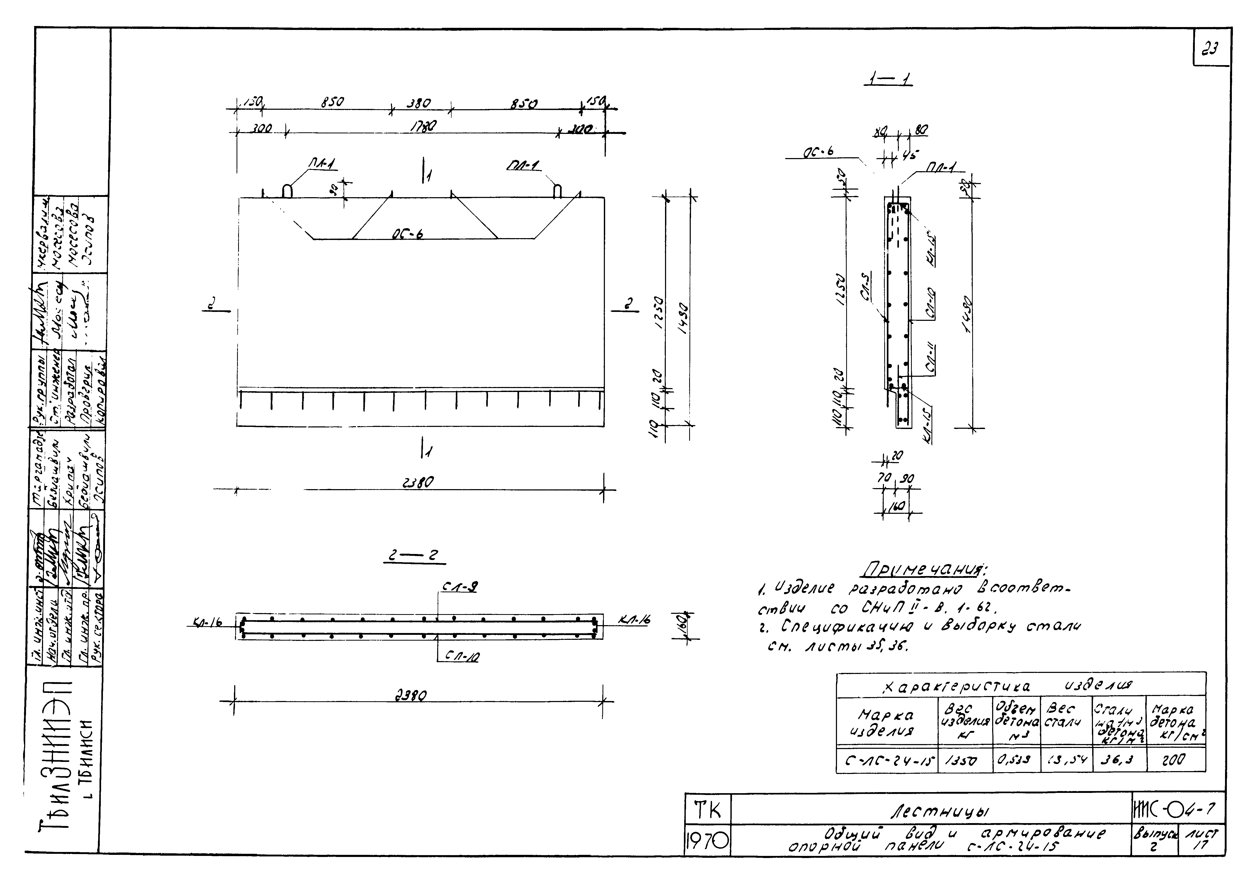
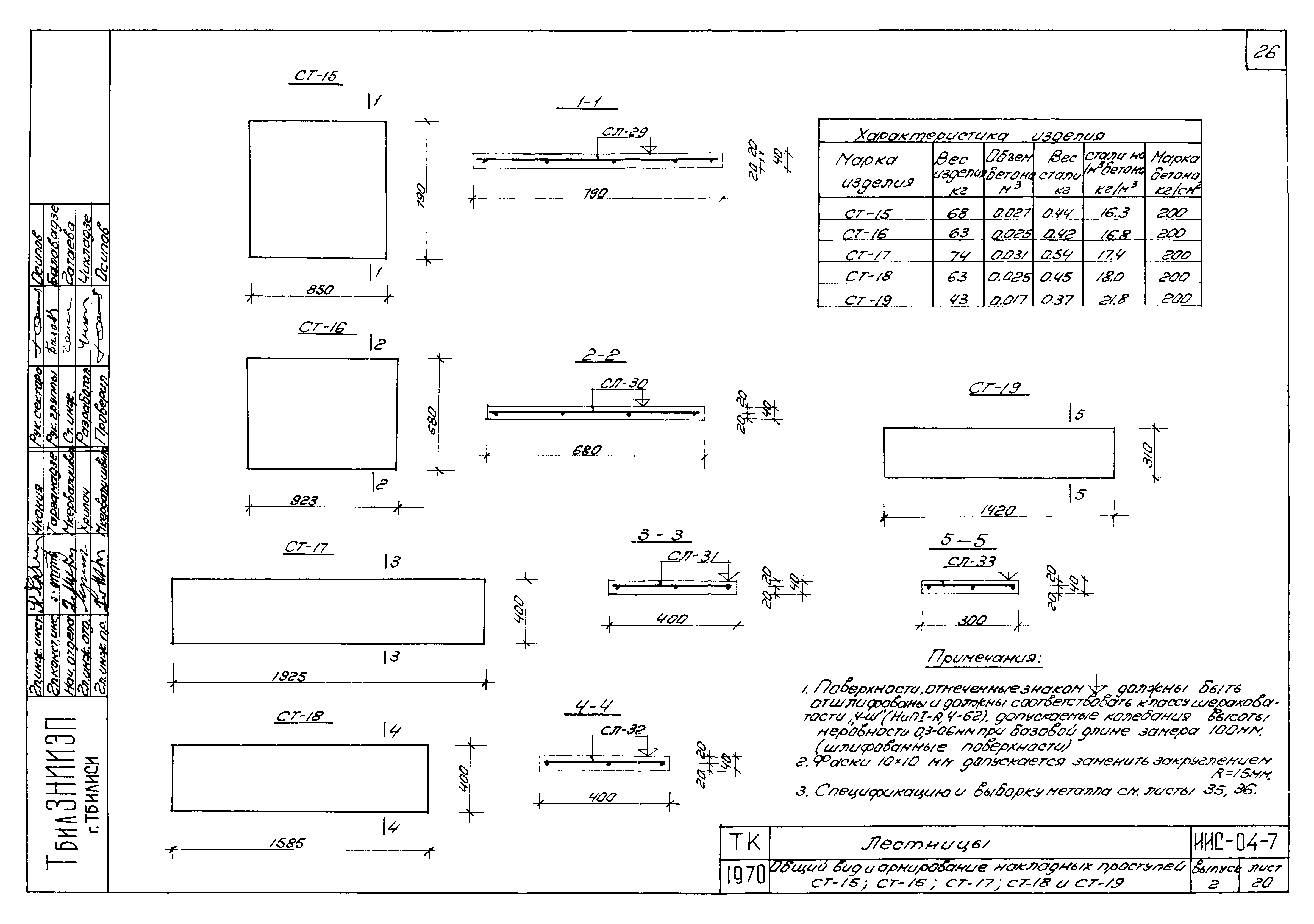
| Оглавление: | Перечень серий и выпусков Содержание выпуска Пояснительная записка Номенклатура изделий Общий вид и армирование лестничного марша С-ЛМ-52-12-15 Общий вид и армирование лестничного марша С-ЛМ-55-12-15 Общий вид и армирование лестничного марша С-ЛМ-58-12-15 Общий вид и армирование лестничного марша С-ЛМ-64-12-15 Общий вид и армирование лестничного марша С-ЛМ-64-14-17 Детали 1 и 2 Детали 3, 4, 6 и 6 Детали 7 и 8 Детали 9, 10, 11 и 12 Общий вид и армирование лестничной площадки С-ЛП-13-14 Общий вид и армирование лестничной площадки С-ЛП-13-16 Общий вид и армирование лестничной площадки С-ЛП-13-17 Общий вид и армирование лестничной площадки С-ЛП-13-20 Общий вид и армирование лестничной площадки С-ЛП-15-17 Общий вид и армирование опорной панели С-ЛС-24-15 Общий вид и армирование опорной панели С-ЛС-28-17 Общий вид и армирование накладных проступей СТ-7, СТ-8, СТ-9, СТ-10, СТ-11, СТ-12, СТ-13, СТ-14 Общий вид и армирование накладных проступей СТ-15, СТ-16, СТ-17, СТ-18, СТ-19 Арматурные каркасы КЛ-1 - КЛ-6, КЛ-19 Арматурные каркасы КЛ-7, КЛ-8, КЛ-9, арматурные сетки СЛ-1, СЛ-2 Арматурные сетки СЛ-3, СЛ-4, СЛ-5, отдельные стержни ОС-1 - ОС-8 Арматурные каркасы КЛ-10 - КЛ-14, арматурные сетки СЛ-6, СЛ-7, СЛ-8 Арматурные каркасы КЛ-15, КЛ-16, арматурные сетки СЛ-9, СЛ-10, СЛ-11 Арматурные сетки СЛ-12 - СЛ-19 Арматурные каркасы КЛ-17, КЛ-18, арматурные сетки СЛ-20 - СЛ-22 Арматурные сетки СЛ-23, СЛ-24, СЛ-25, арматурные каркасы КЛ-20, КЛ-21 Арматурные каркасы КЛ-22 - КЛ-25, арматурная сетка СЛ-26 Арматурные каркасы КЛ-26 - КЛ-29, арматурные сетки СЛ-27, СЛ-28 Арматурные сетки СЛ-29 - СЛ-33 Закладные детали МЛ-1, МЛ-2, МЛ-3, петли ПЛ-1, ПЛ-2, ПЛ-3, инвентарная петля Спецификация арматурных элементов на одно изделие Выборка стали на одно изделие |
| Разработан: | ТбилЗНИИЭП НИИЖБ ИСМиС АН ГССР |
| Утверждён: | 31.12.1970 Государственный комитет по гражданскому строительству и архитектуре при Госстрое СССР (219) |
| Чем заменён: |
|














































