Скачать Типовой проект 901-6-82.86 Альбом IV. Строительные изделия (из ТП 901-6-81.86)Дата актуализации: 01.01.2021
|
| Обозначение: | Типовой проект 901-6-82.86 |
| Обозначение англ: | 901-6-82.86 |
| Статус: | отменен |
| Название рус.: | Альбом IV. Строительные изделия (из ТП 901-6-81.86) |
| Дата добавления в базу: | 01.10.2014 |
| Дата актуализации: | 01.01.2021 |
| Дата введения: | 22.08.1985 |
| Дата окончания срока действия: | 01.01.1991 |
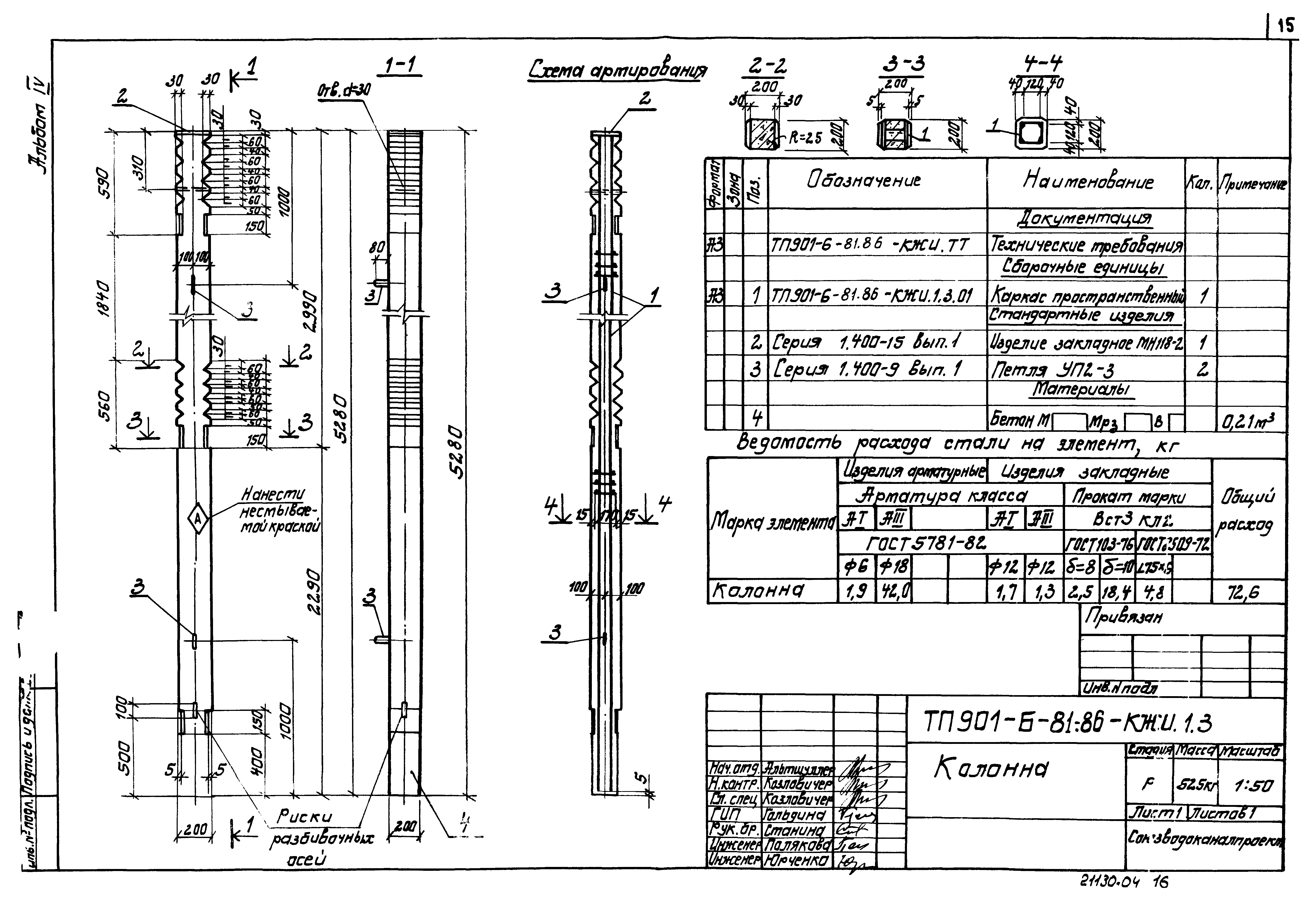
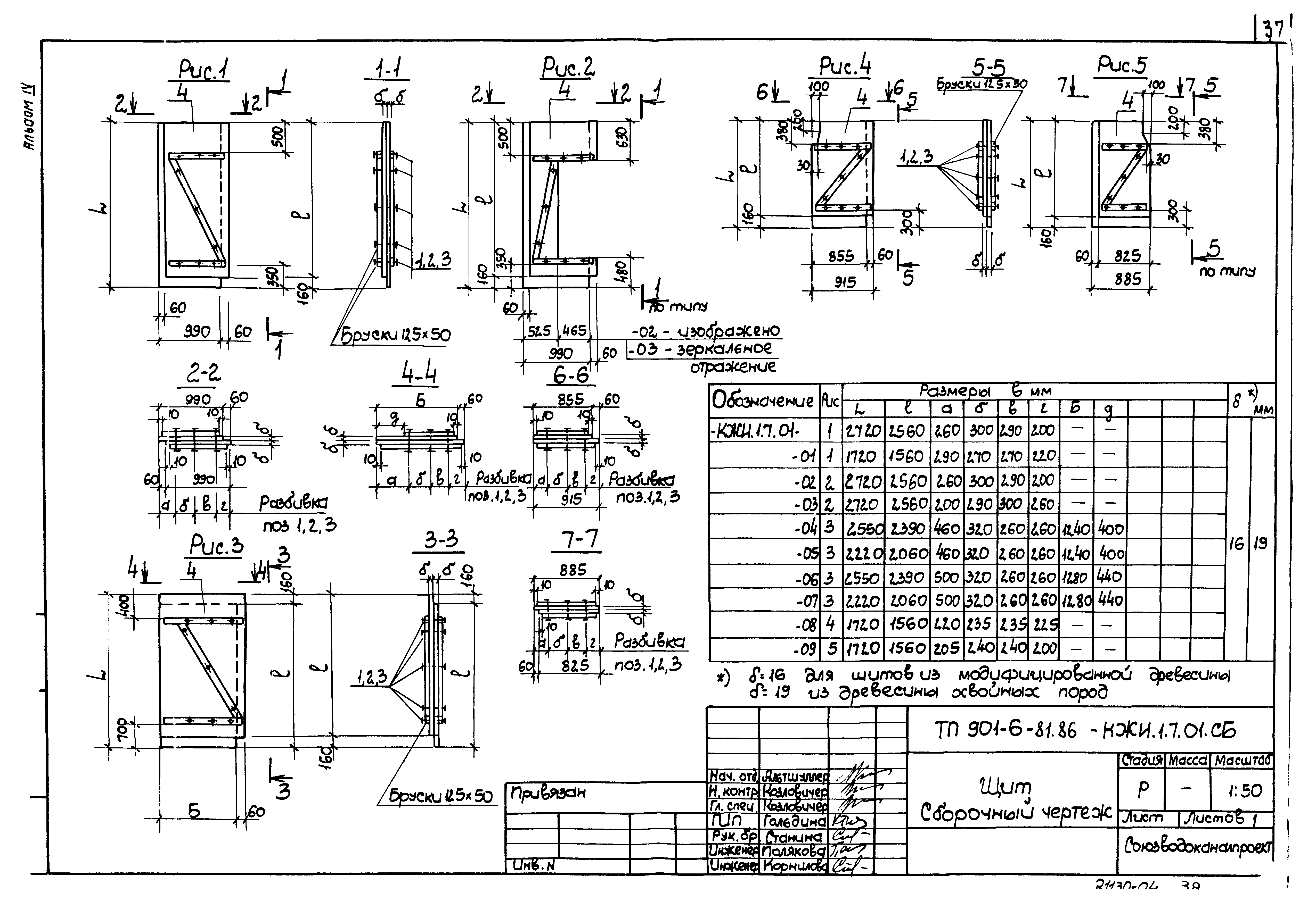
| Оглавление: | 901-6-81.86-КЖИ.ДО Содержание альбома 901-6-81.86-КЖИ.ТТ Технические требования 901-6-81.86-КЖИ.1.1.01 Каркас пространственный 901-6-81.86-КЖИ.1.1.01.01 Каркас плоский 901-6-81.86-КЖИ.1.1.02 Каркас пространственный 901-6-81.86-КЖИ.1.1.02.01 Каркас плоский 901-6-81.86-КЖИ.12 Стеновая панель 901-6-81.86-КЖИ.1.2.01 Каркас пространственный 901-6-81.86-КЖИ.1.2.01.01 Каркас плоский 901-6-81.86-КЖИ.1.9.01 Изделие закладное 901-6-81.86-КЖИ.1.2.01.02 Сетка арматурная 901-6-81.86-КЖИ.1.3 Колонна 901-6-81.86-КЖИ.1.3.01 Каркас пространственный 901-6-81.86-КЖИ.1.3.01.01 Каркас плоский 901-6-81.86-КЖИ.1.3.01.02 Каркас плоский 901-6-81.86-КЖИ.1.4 Ригель 901-6-81.86-КЖИ.1.4. ВМС Ригель. Ведомость расхода стали 901-6-81.86-КЖИ.1.4.СБ Ригель. Сборочный чертеж 901-6-81.86-КЖИ.1.4.01 Каркас пространственный 901-6-81.86-КЖИ.1.4.01СБ Каркас пространственный. Сборочный чертеж 901-6-81.86-КЖИ.1.4.01.01 Каркас плоский 901-6-81.86-КЖИ.1.4.01.01СБ Каркас плоский. Сборочный чертеж 901-6-81.86-КЖИ.1.4.01.02 Каркас плоский 901-6-81.86-КЖИ.1.5 Балка 901-6-81.86-КЖИ.1.5.01 Каркас пространственный 901-6-81.86-КЖИ.1.5.01.01 Каркас плоский 901-6-81.86-КЖИ.1.6.01 Щит 901-6-81.86-КЖИ.1.6.02 Металлический козырек 901-6-81.86-КЖИ.1.6.03 Ограждение 901-6-81.86-КЖИ.1.6.04 Опора вентилятора 901-6-81.86-КЖИ.1.7.01 Щит 901-6-81.86-КЖИ.1.7.02 Щит 901-6-81.86-КЖИ.1.7.01.СБ Щит. Сборочный чертеж 901-6-81.86-КЖИ.1.7.02.СБ Щит. Сборочный чертеж 901-6-81.86-КЖИ.1.7.03 Щит 901-6-81.86-КЖИ.1.7.04 Щит 901-6-81.86-КЖИ.1.7.03.СБ Щит. Сборочный чертеж 901-6-81.86-КЖИ.1.7.04.СБ Щит. Сборочный чертеж 901-6-81.86-КЖИ.1.8.01 Изделие соединительное 901-6-81.86-КЖИ.1.8.01СБ Изделие соединительное. Сборочный чертеж 901-6-81.86-КЖИ.1.8.02 Изделие соединительное 901-6-81.86-КЖИ.1.8.03 Изделие соединительное 901-6-81.86-КЖИ.1.8.04 Изделие соединительное 901-6-81.86-КЖИ.1.10 Колонна стальная 901-6-81.86-КЖИ.1.11.01 Изделие соединительное 901-6-81.86-КЖИ.1.11.02 Изделие соединительное 901-6-81.86-КЖИ.1.11.03 Изделие соединительное 901-6-81.86-КЖИ.1.11.04 Изделие соединительное 901-6-81.86-КЖИ.1.11.05 Изделие соединительное 901-6-81.86-КЖИ.1.11.06 Каркас пространственный 901-6-81.86-КЖИ.1.11.06.01 Каркас плоский 901-6-81.86-КЖИ.1.11.07 Изделие закладное 901-6-81.86-КЖИ.1.11.08 Изделие закладное |
| Разработан: | Союзводоканалпроект |
| Утверждён: | 03.12.1984 Госстрой СССР (37) |
| Заменяет собой: |
|





















































