Скачать Типовой проект 244-1-66.86 Альбом III. Часть 2. Архитектурно-строительные решения выше отм. 0.000. Лечебная технологияДата актуализации: 01.01.2021
|
| Обозначение: | Типовой проект 244-1-66.86 |
| Обозначение англ: | 244-1-66.86 |
| Статус: | не определен законодательством |
| Название рус.: | Альбом III. Часть 2. Архитектурно-строительные решения выше отм. 0.000. Лечебная технология |
| Дата добавления в базу: | 01.10.2014 |
| Дата актуализации: | 01.01.2021 |
| Дата введения: | 08.12.1986 |
| Дата окончания срока действия: | 30.06.2003 |
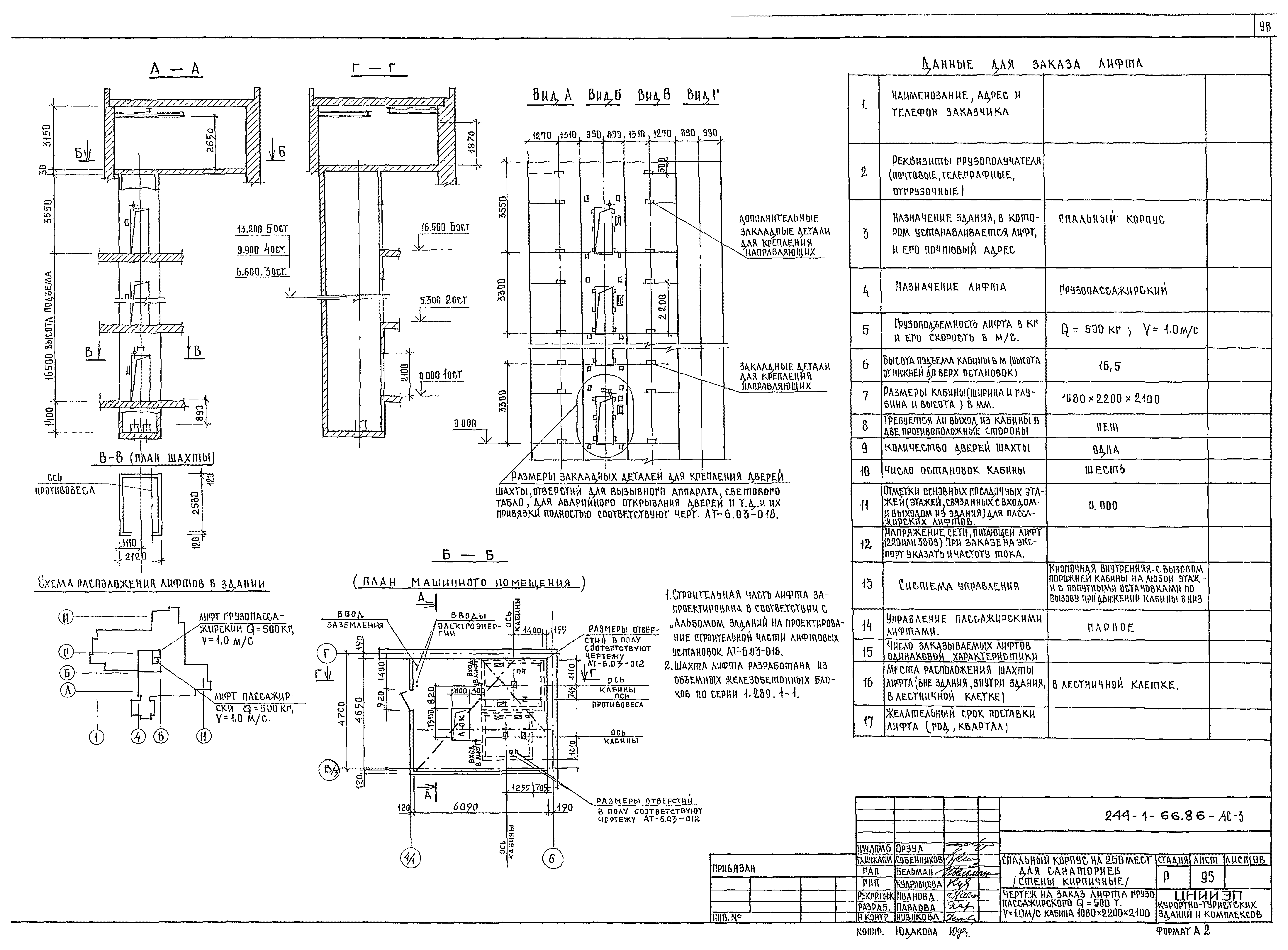
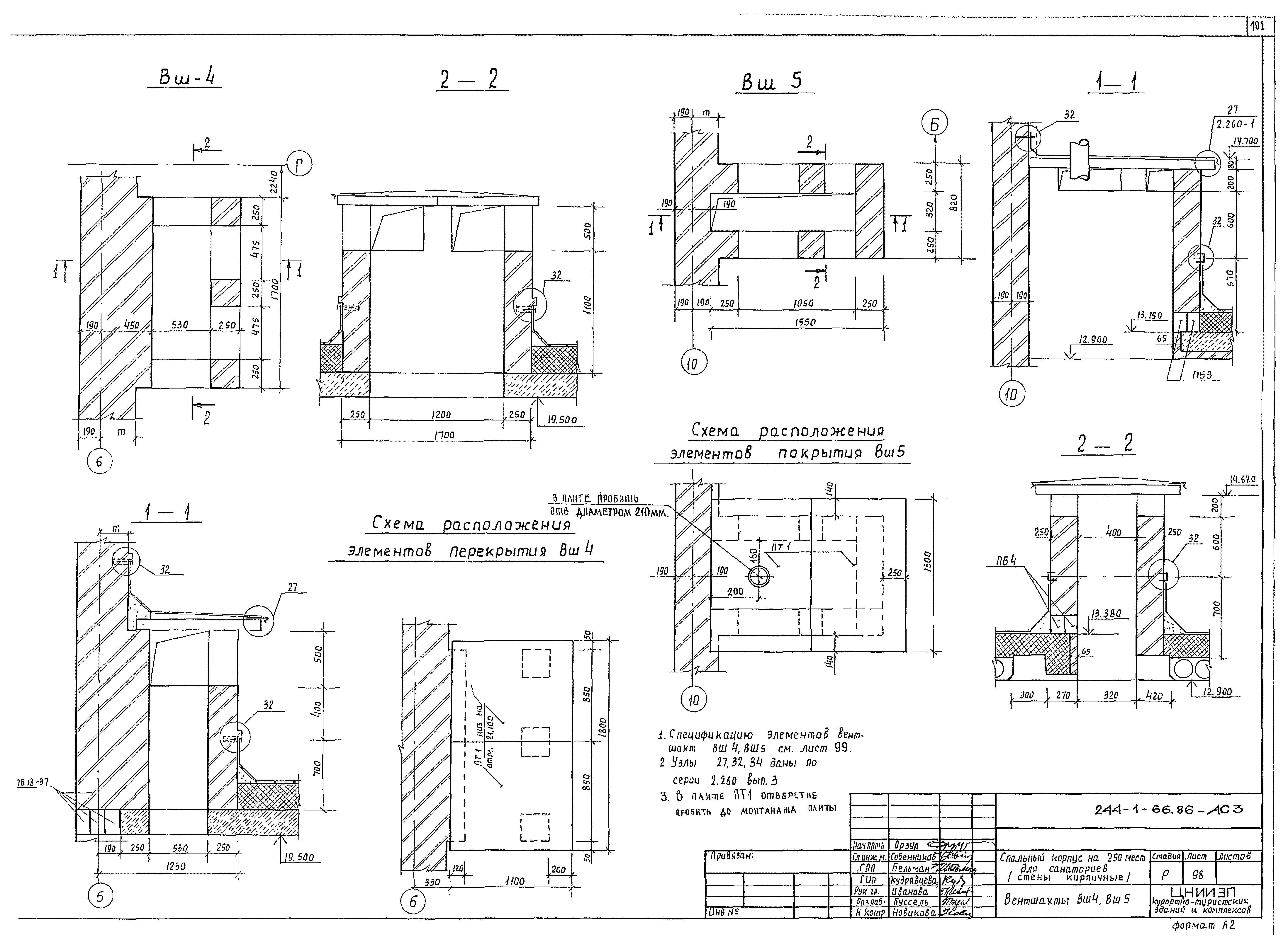
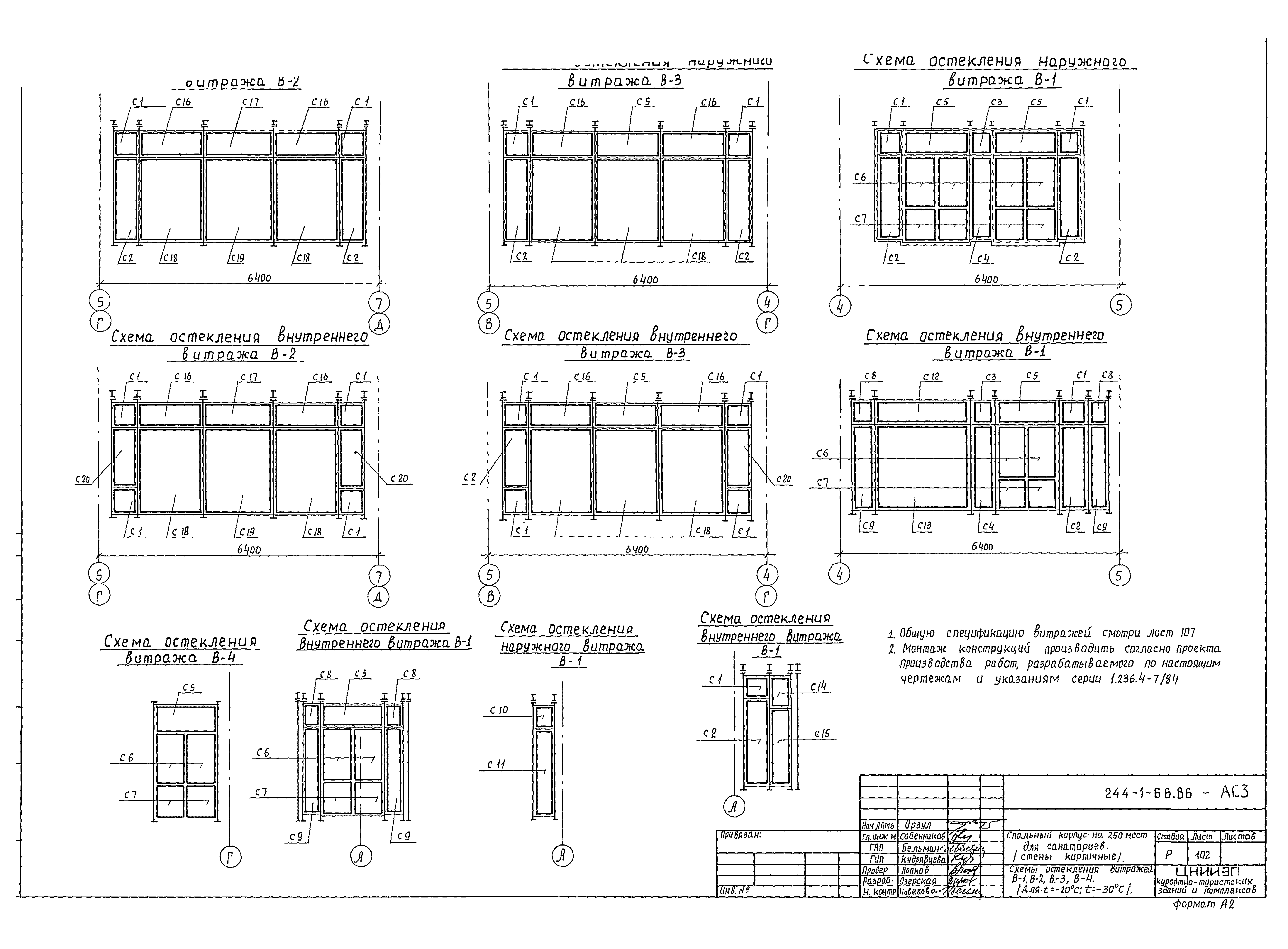
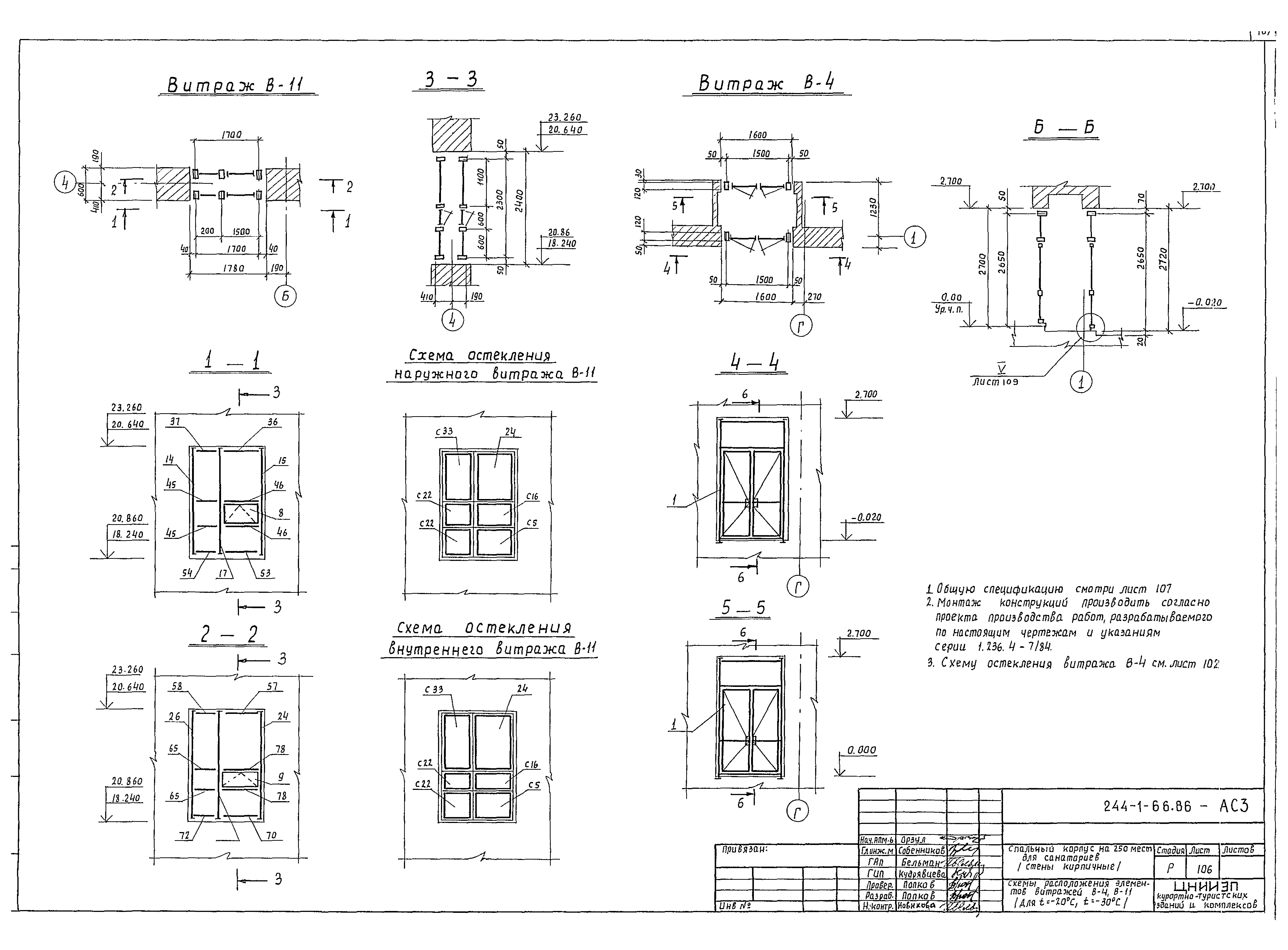
| Оглавление: | Архитектурно-строительные решения выше отм. 0.000 (продолжение) Схема расположения элементов лестницы 1 Фрагмент 1 лестницы 1 Фрагмент 2 лестницы 1 Схема расположения лестницы 2 Схема расположения объемных элементов и плит перекрытия лифтовых шахт. Разрезы 1-1…3-3 Развертки и сечения лифтовых шахт План приямка шахты и машинного помещения лифтов Развертки типового этажа шахты лифта. Виды А, Б, В, Г. Сечение 3-3 Развертки типового этажа шахты лифта. Виды Д, Е, Ж, И. Сечение 4-4 Чертеж на заказ лифта пассажирского Q = 500 т, V = 1,0 м/сек. Кабина 1020х1420х2100 Чертеж на заказ лифта пассажирского Q = 500 т, V = 1,0 м/сек. Кабина 1080х2200х2100 Вентшахта ВШ1, ВШ2 Вентшахта ВШ3 Вентшахта ВШ4, ВШ5 Вентшахта ВШ6 Схема расположения элементов витража В-1 (для Т = минус 20; минус 30 градусов Цельсия) Схема расположения элементов витражей В-2, В-3 (для Т = минус 20; минус 30 градусов Цельсия) Схема остекления витражей В-1, В-2, В-3 (для Т = минус 20; минус 30 градусов Цельсия) Схема остекления витражей В-5, В-6 (для Т = минус 20; минус 30 градусов Цельсия) Схема остекления витража В-6. Схема расположения элементов витражей В-7, В-8 (для Т = минус 20; минус 30 градусов Цельсия) Схема остекления витража В-8. Схема расположения элементов витражей В-9, В-10 (для Т = минус 20; минус 30 градусов Цельсия) Схема расположения элементов витражей В-4, В-11 (для Т = минус 20; минус 30 градусов Цельсия) Выборка материалов (для Т = минус 20; минус 30 градусов Цельсия) Узлы I - VI (для Т = минус 20; минус 30 градусов Цельсия) Узлы VII, VIII (для Т = минус 20; минус 30 градусов Цельсия) Подвесной потолок. Схема 1 Схема несущего каркаса подвесного потолка. Схема 1 Схема расположения элементов витражей В-1 (для Т = минус 40 градусов Цельсия) Схема расположения элементов витражей В-2, В-3 (для Т = минус 40 градусов Цельсия) Схема остекления витражей В-1, В-2, В-3, В-4 (для Т = минус 40 градусов Цельсия) Схема расположения элементов витражей В-5, В-6 (для Т = минус 40 градусов Цельсия) Схема остекления витража В-6. Схема расположения элементов витражей В-7, В-8 (для Т = минус 40 градусов Цельсия) Схема остекления витража В-8. Схема расположения элементов витражей В-9, В-10 (для Т = минус 40 градусов Цельсия) Схема расположения элементов витражей В-4, В-11 (для Т = минус 40 градусов Цельсия) Выборка материалов (для Т = минус 40 градусов Цельсия) Узлы I - VI (для Т = минус 40 градусов Цельсия) Узлы VII, VIII (для Т = минус 40 градусов Цельсия) Выборка материалов (для Т = минус 40 градусов Цельсия) Лестницы ЛМ-1, ЛМ-2, ЛМ-3 Подвесные потолки Вентшахта ВШ7 Лечебная технология Общие данные Фрагмент I плана 1 этажа Фрагменты II и III плана 1 этажа. Фрагменты 2, 3, 4, 5, 6 этажей План подвала между осями А - В, 4 - 11 (вариант с хозяйственно-бытовыми помещениями подвала) План подвала между осями Б - И, 1 - 8 (вариант с хозяйственно-бытовыми помещениями) |
| Разработан: | ЦНИИЭП курортно-туристских зданий и комплексов Госгражданстроя |
| Утверждён: | 03.10.1984 Госгражданстрой (Gosgrazhdanstroy 280) |














































