Скачать Типовой проект 244-1-66.86 Альбом V. Инженерное оборудование ниже отм. 0.000 (вариант с хозяйственно-бытовыми помещениями в подвале)Дата актуализации: 01.01.2021
|
| Обозначение: | Типовой проект 244-1-66.86 |
| Обозначение англ: | 244-1-66.86 |
| Статус: | не определен законодательством |
| Название рус.: | Альбом V. Инженерное оборудование ниже отм. 0.000 (вариант с хозяйственно-бытовыми помещениями в подвале) |
| Дата добавления в базу: | 01.10.2014 |
| Дата актуализации: | 01.01.2021 |
| Дата введения: | 08.12.1986 |
| Дата окончания срока действия: | 30.06.2003 |
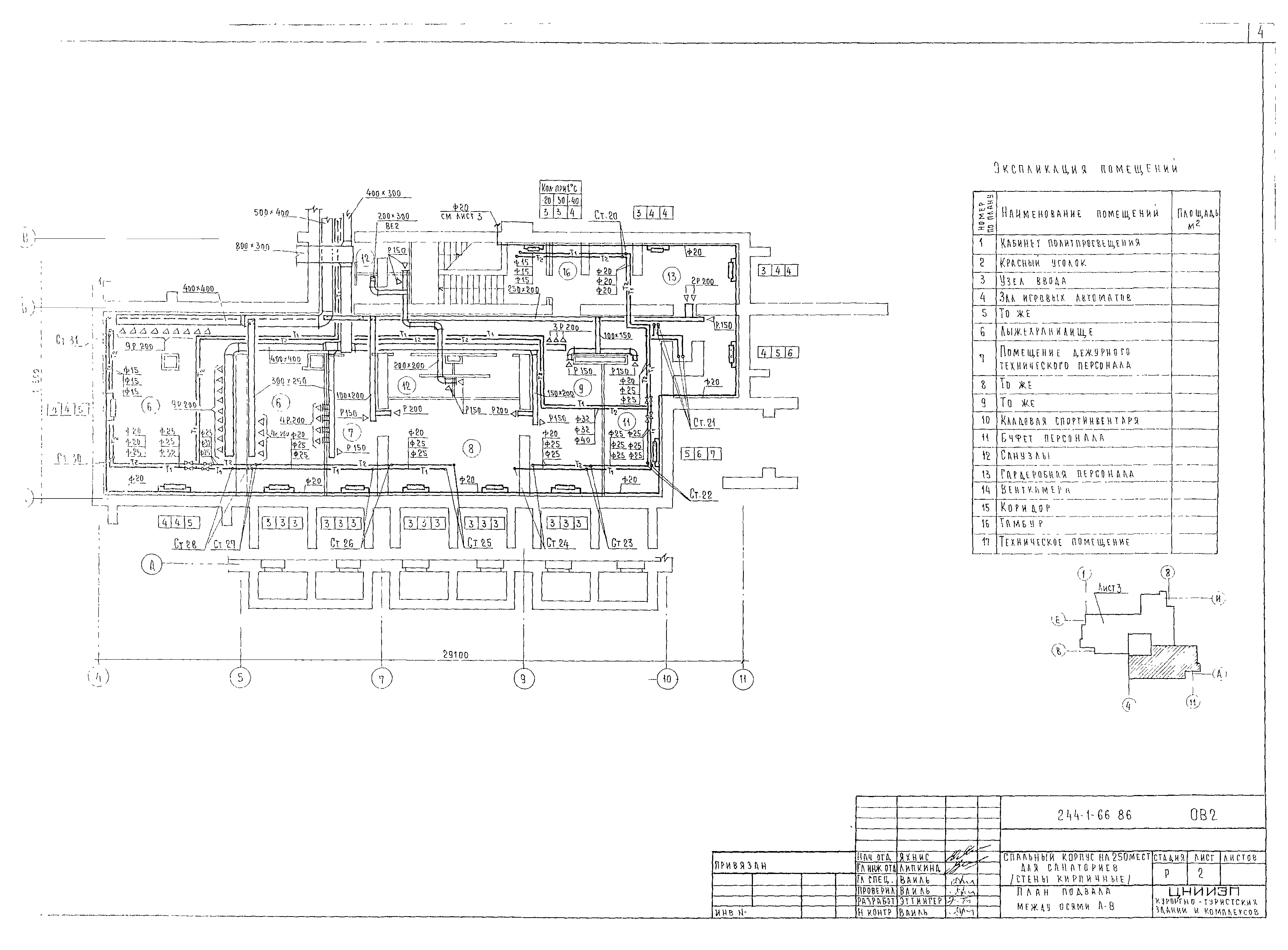
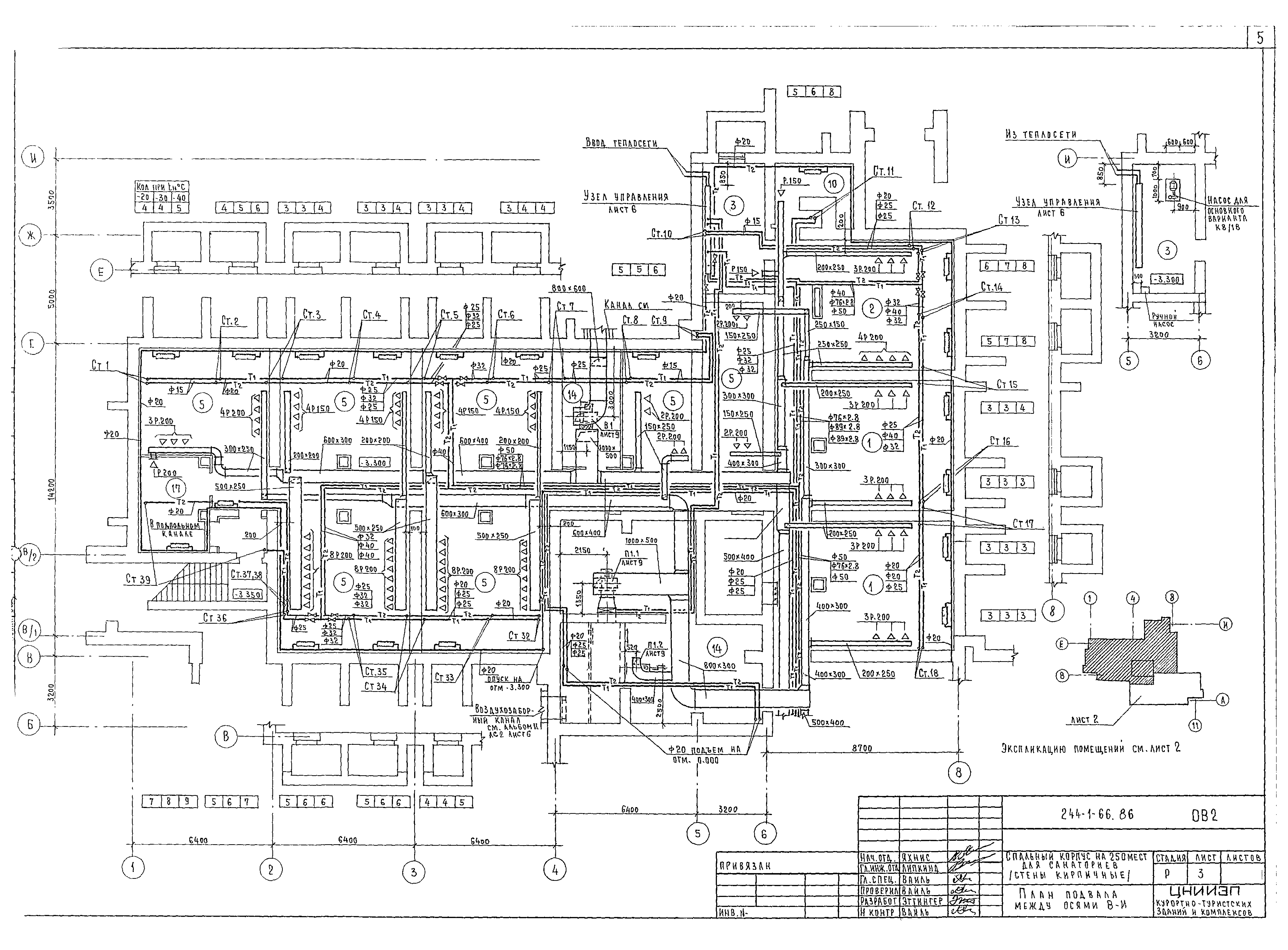
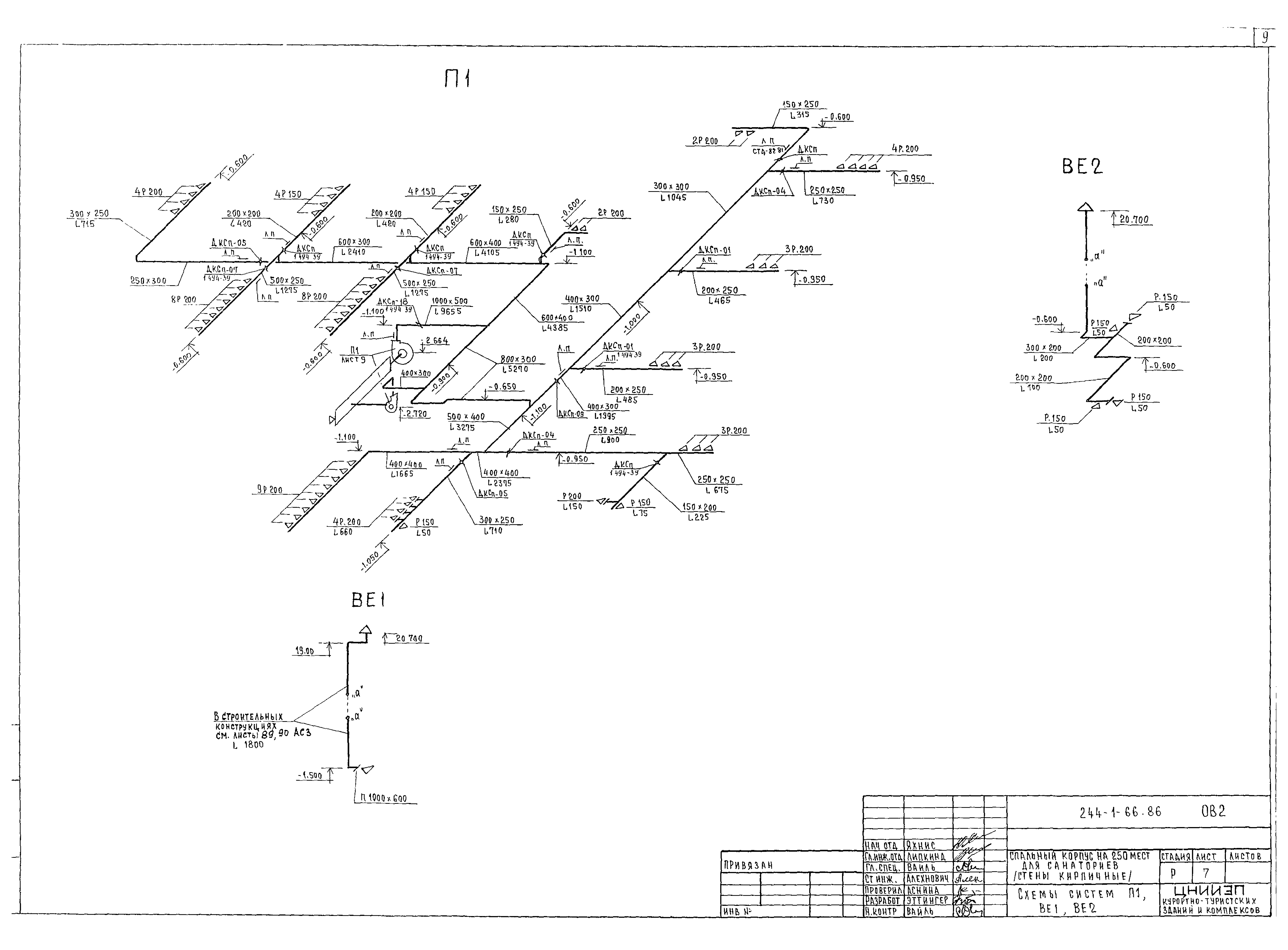
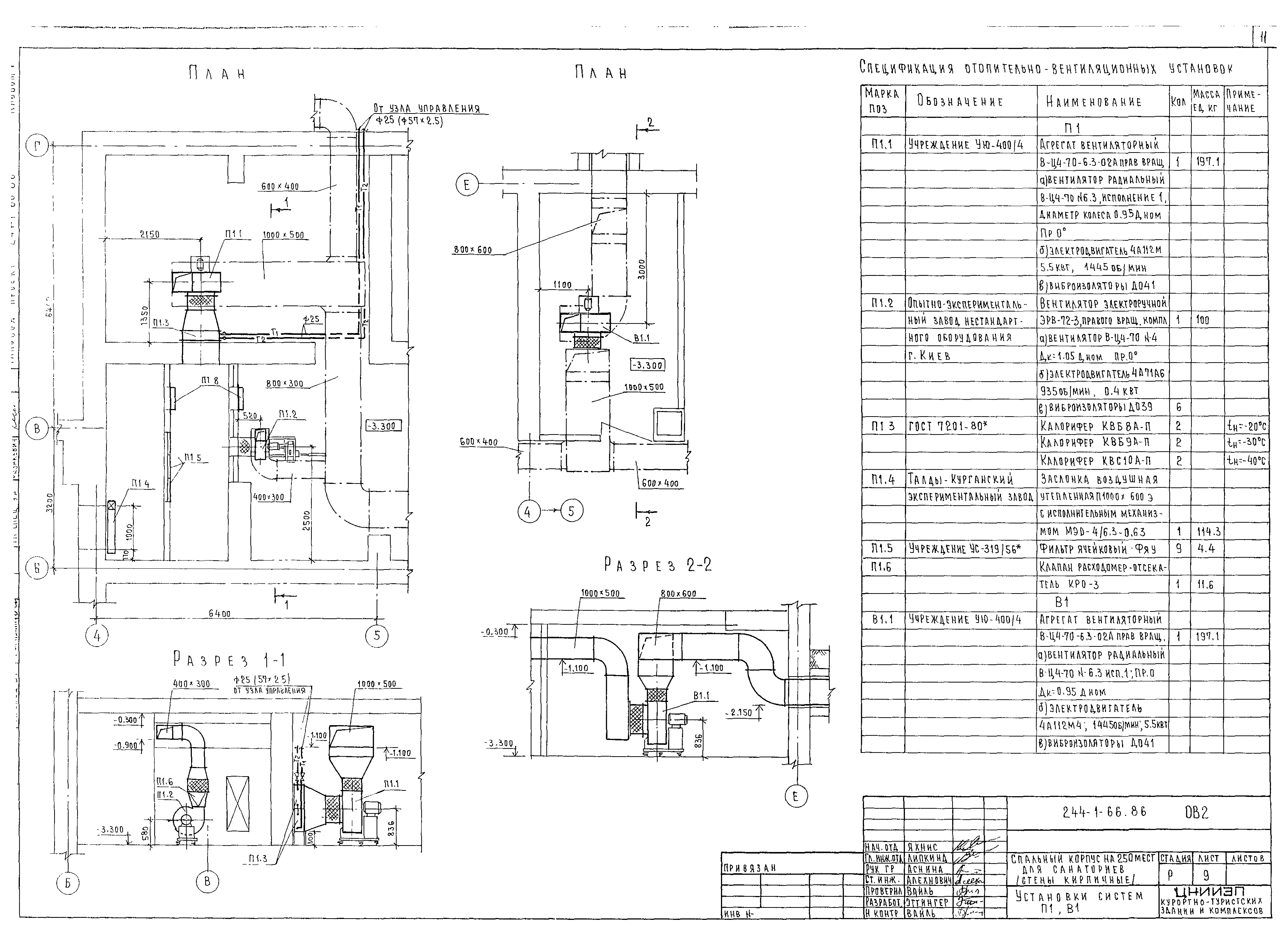
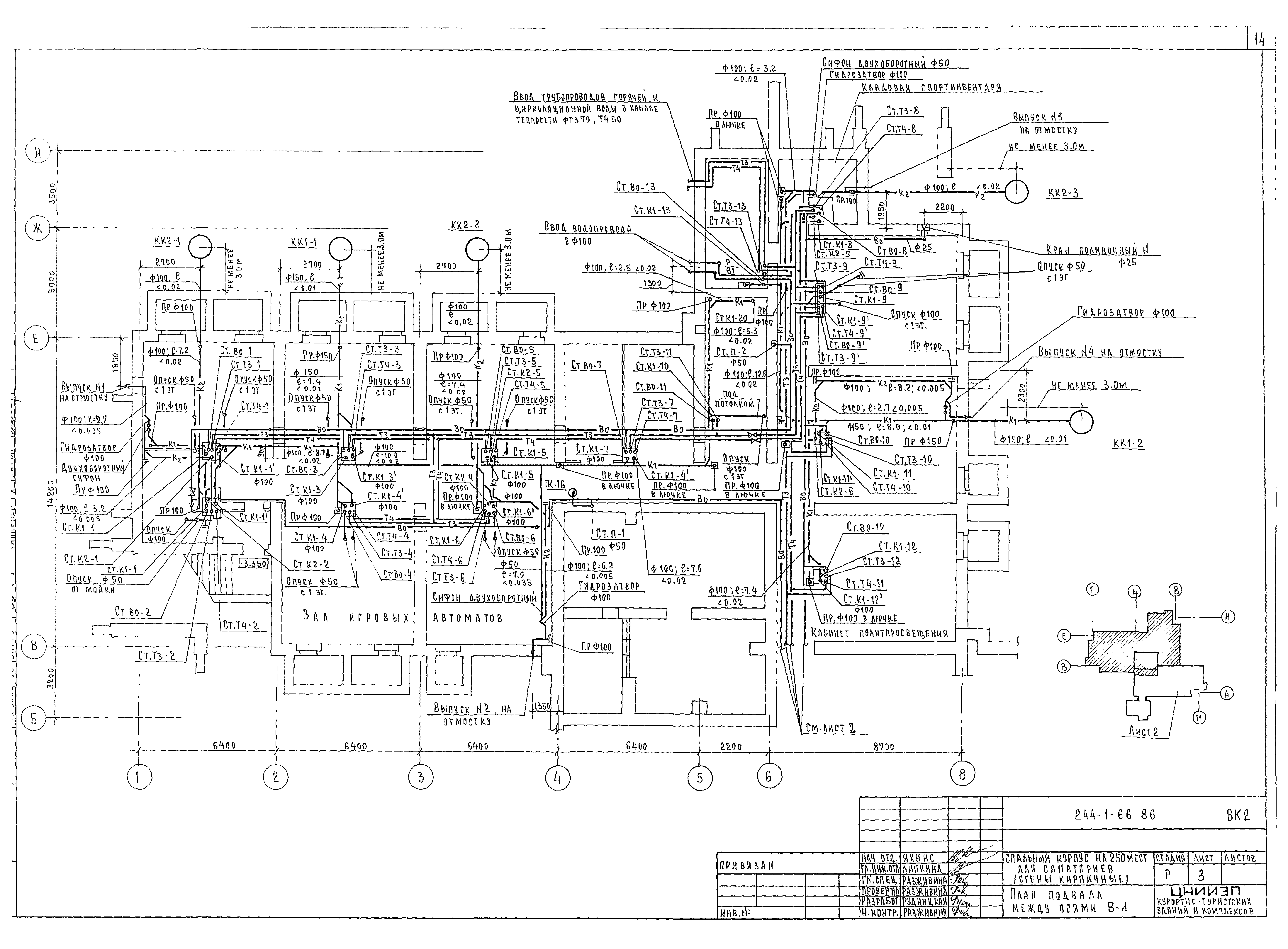
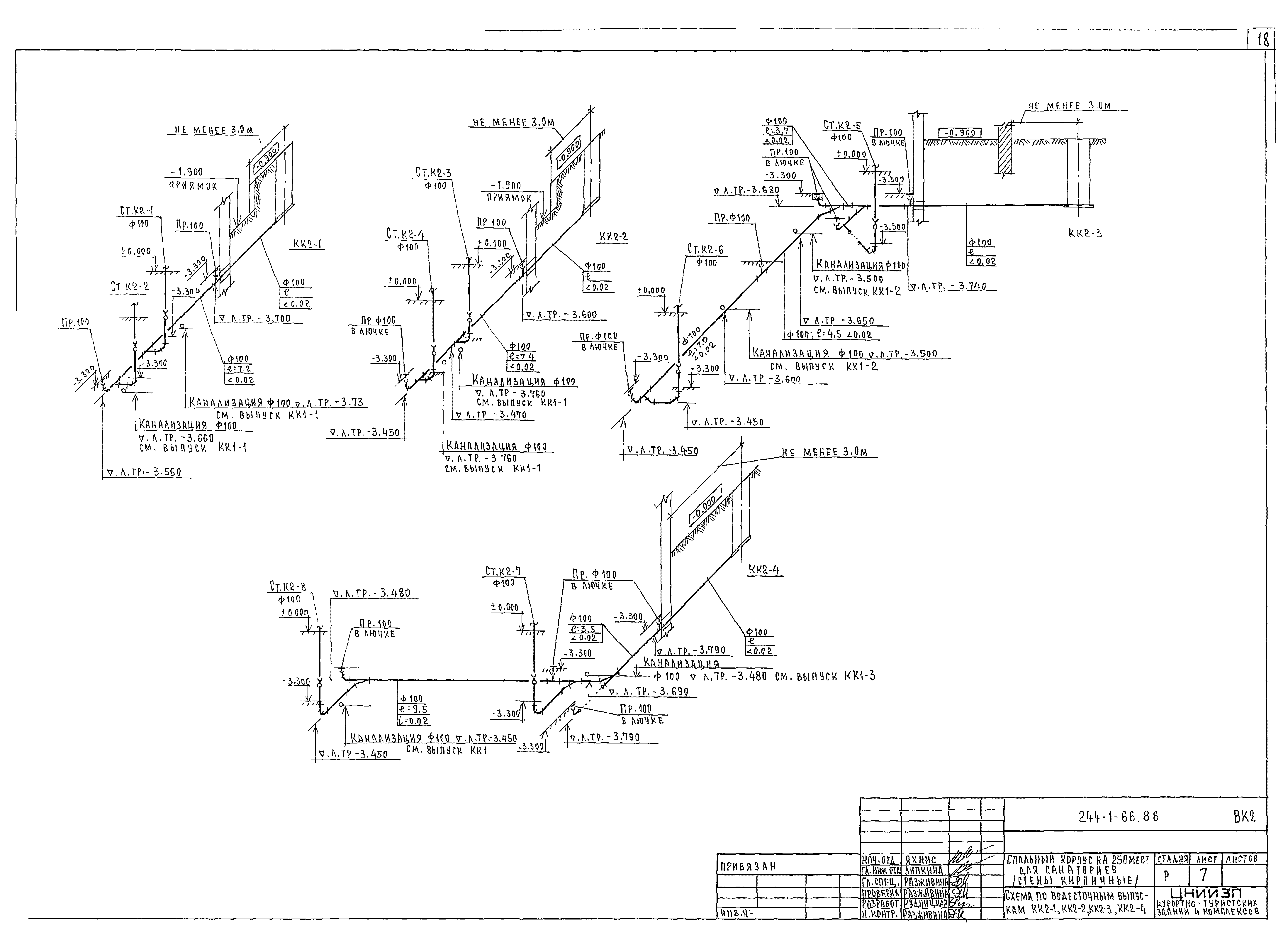
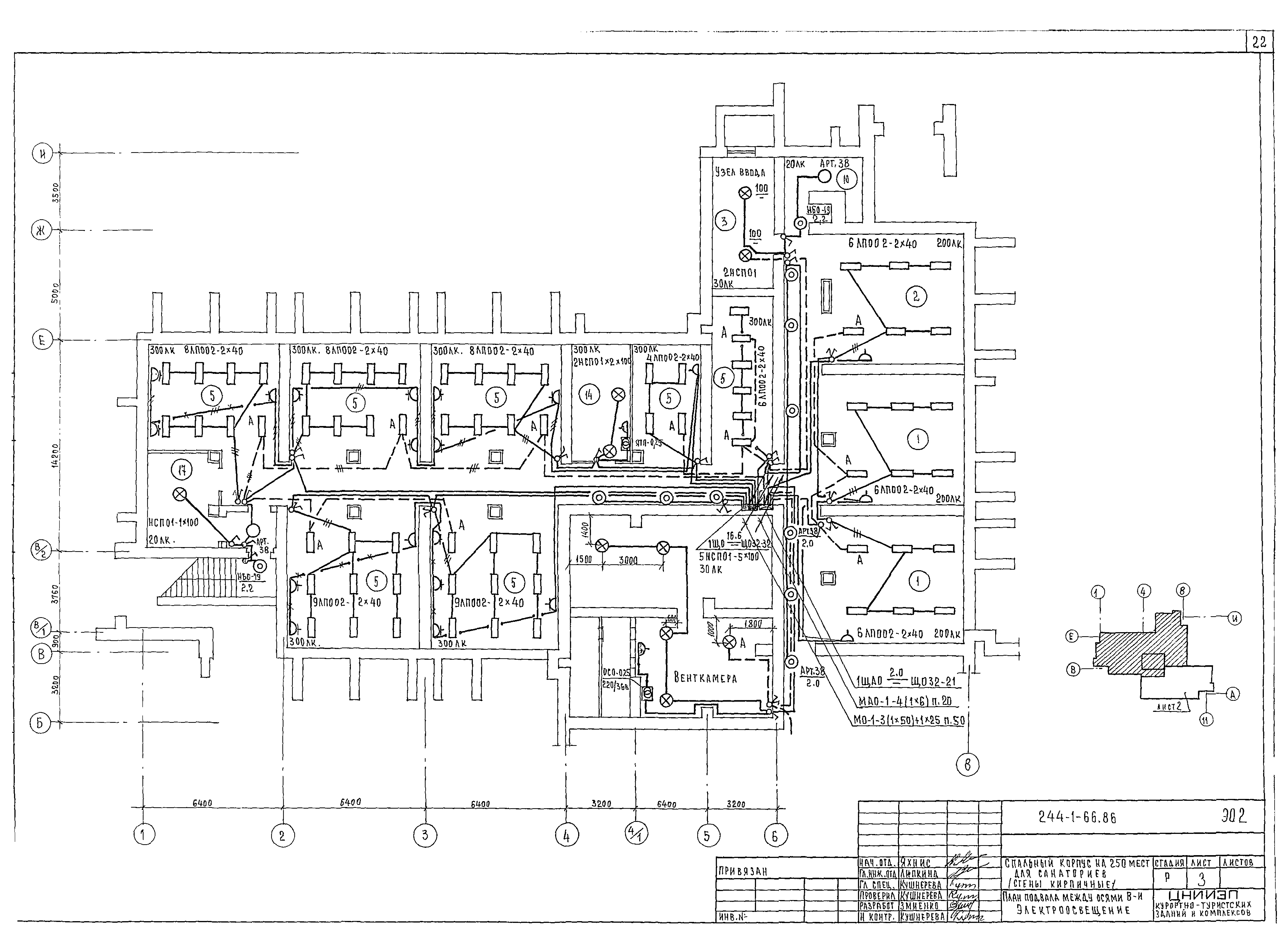
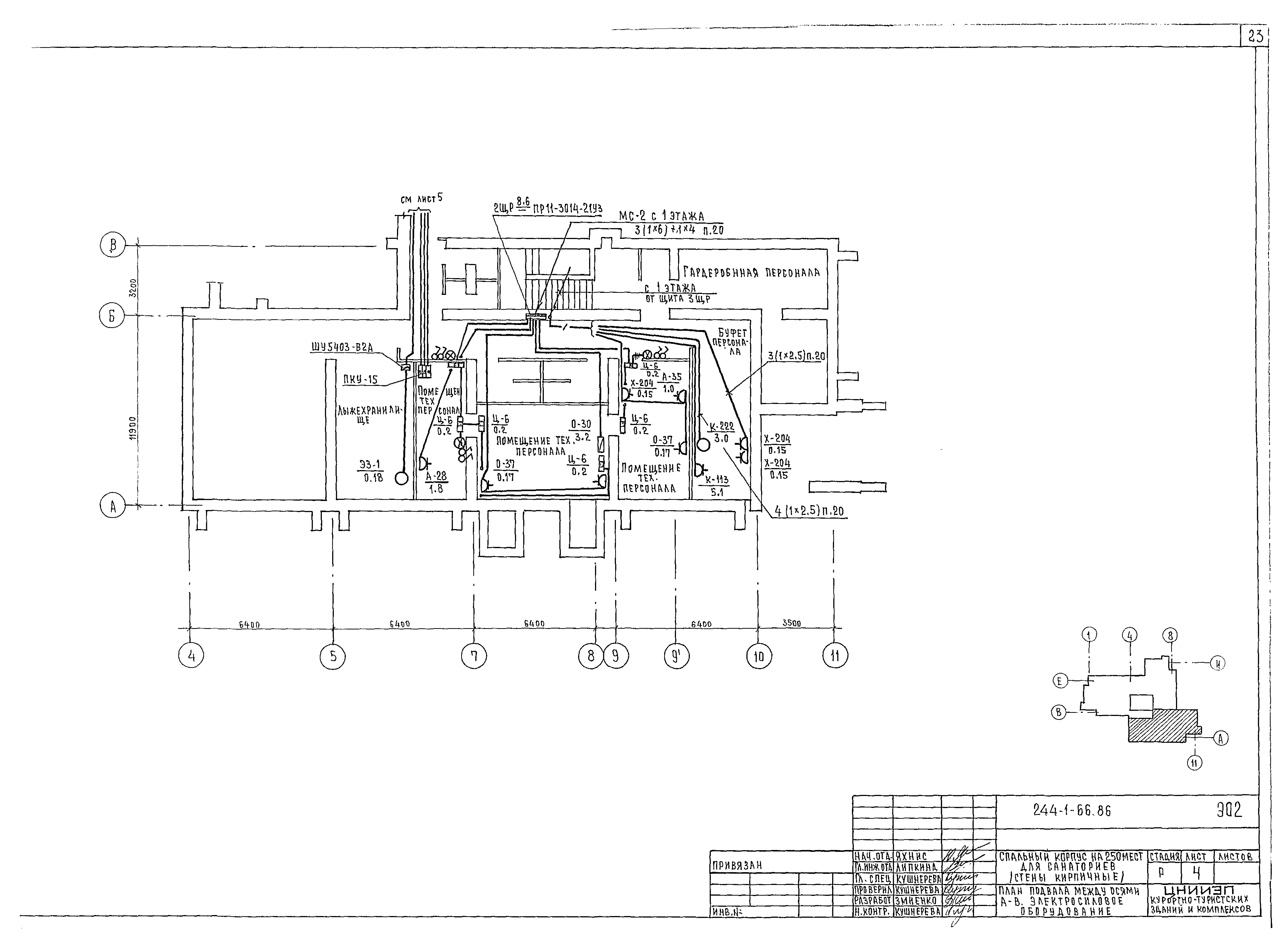
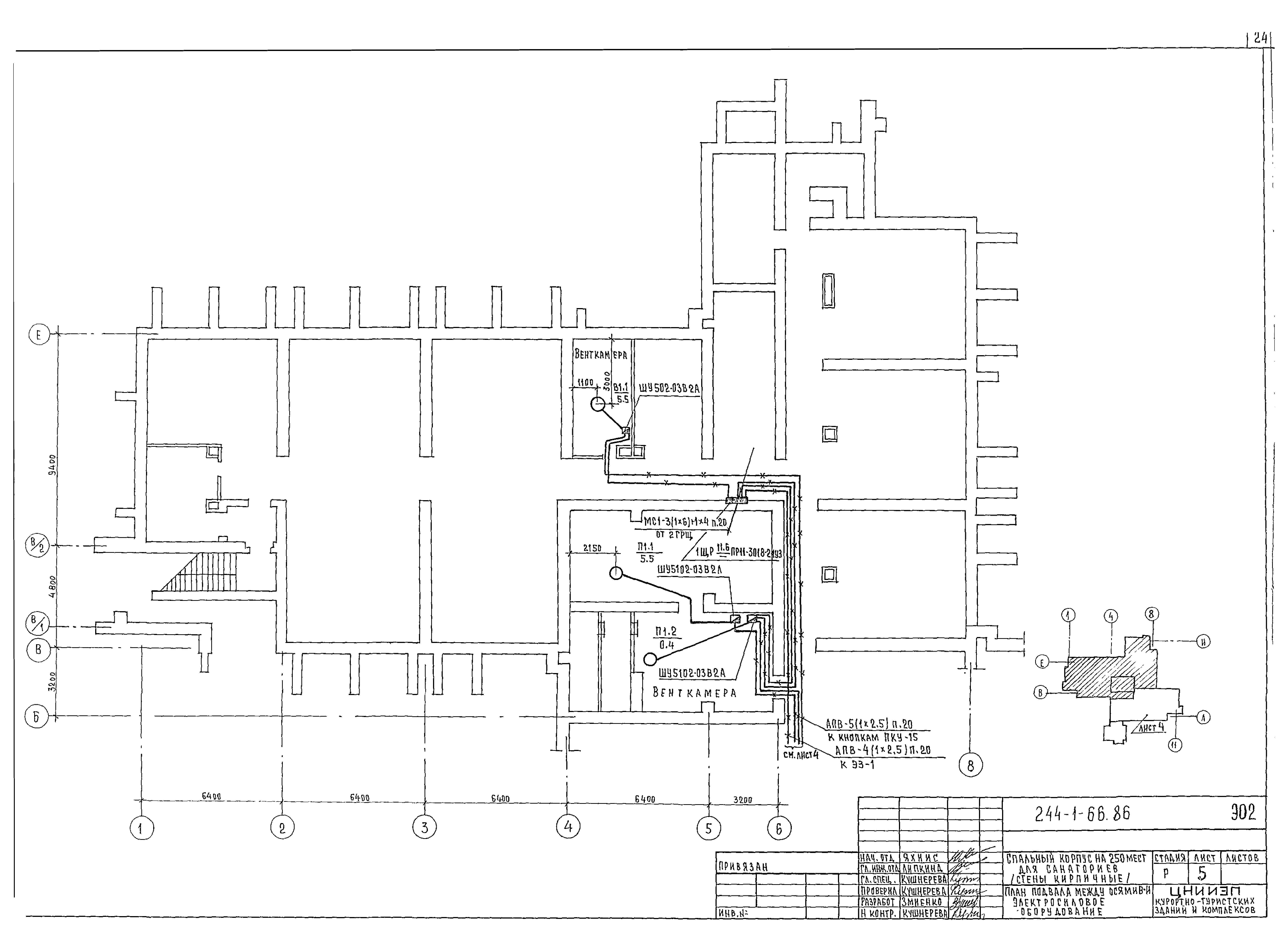
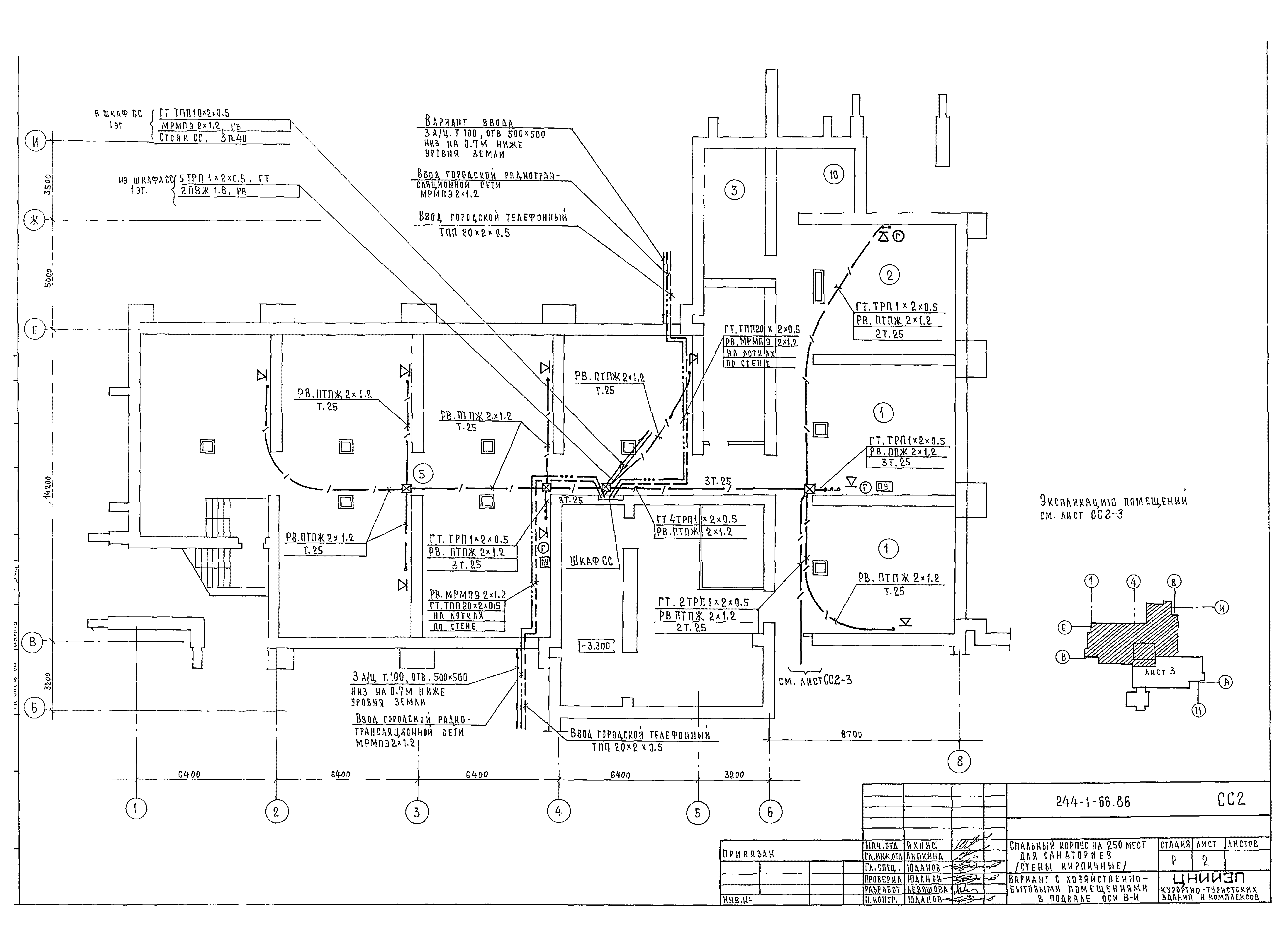
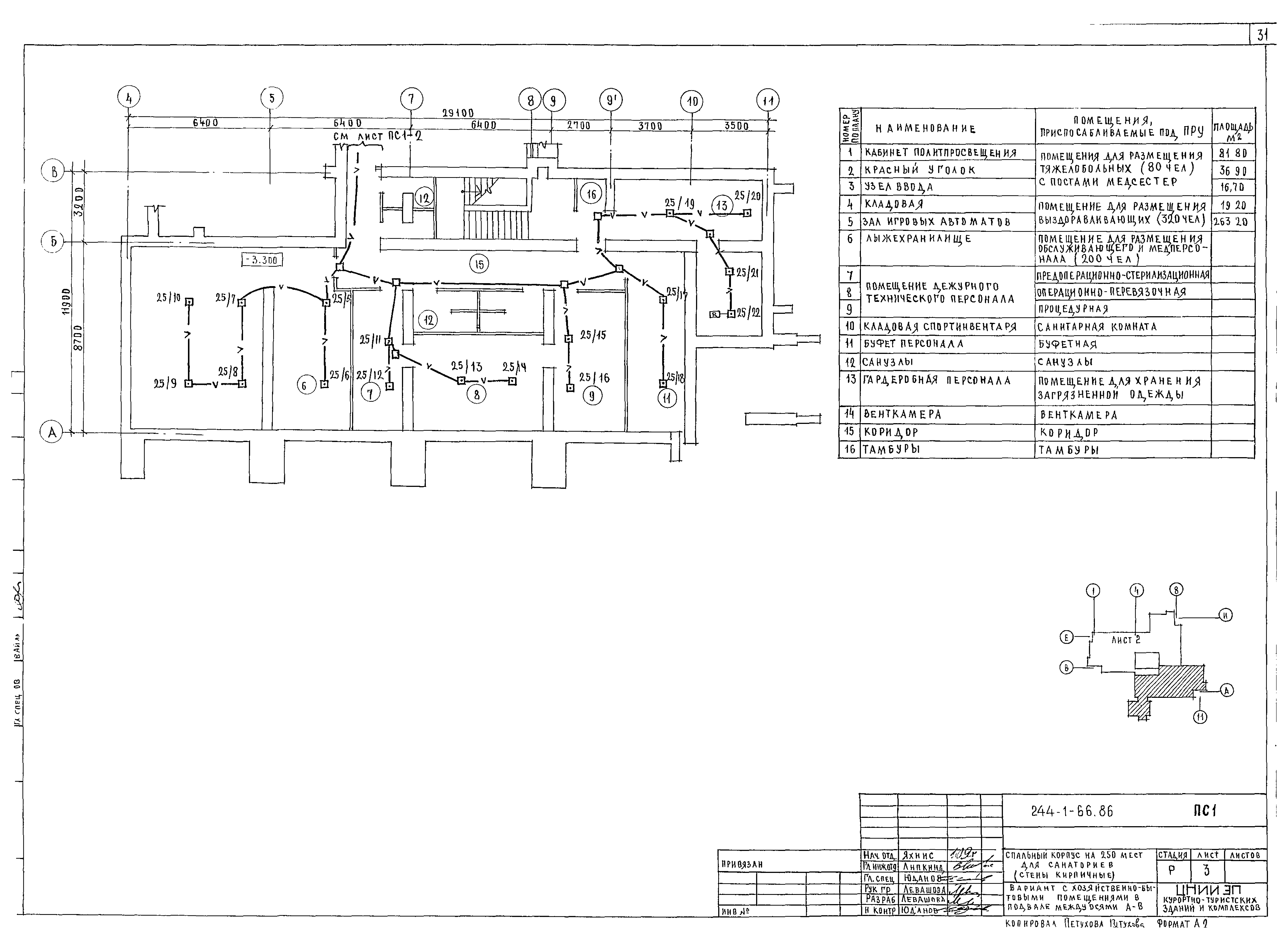
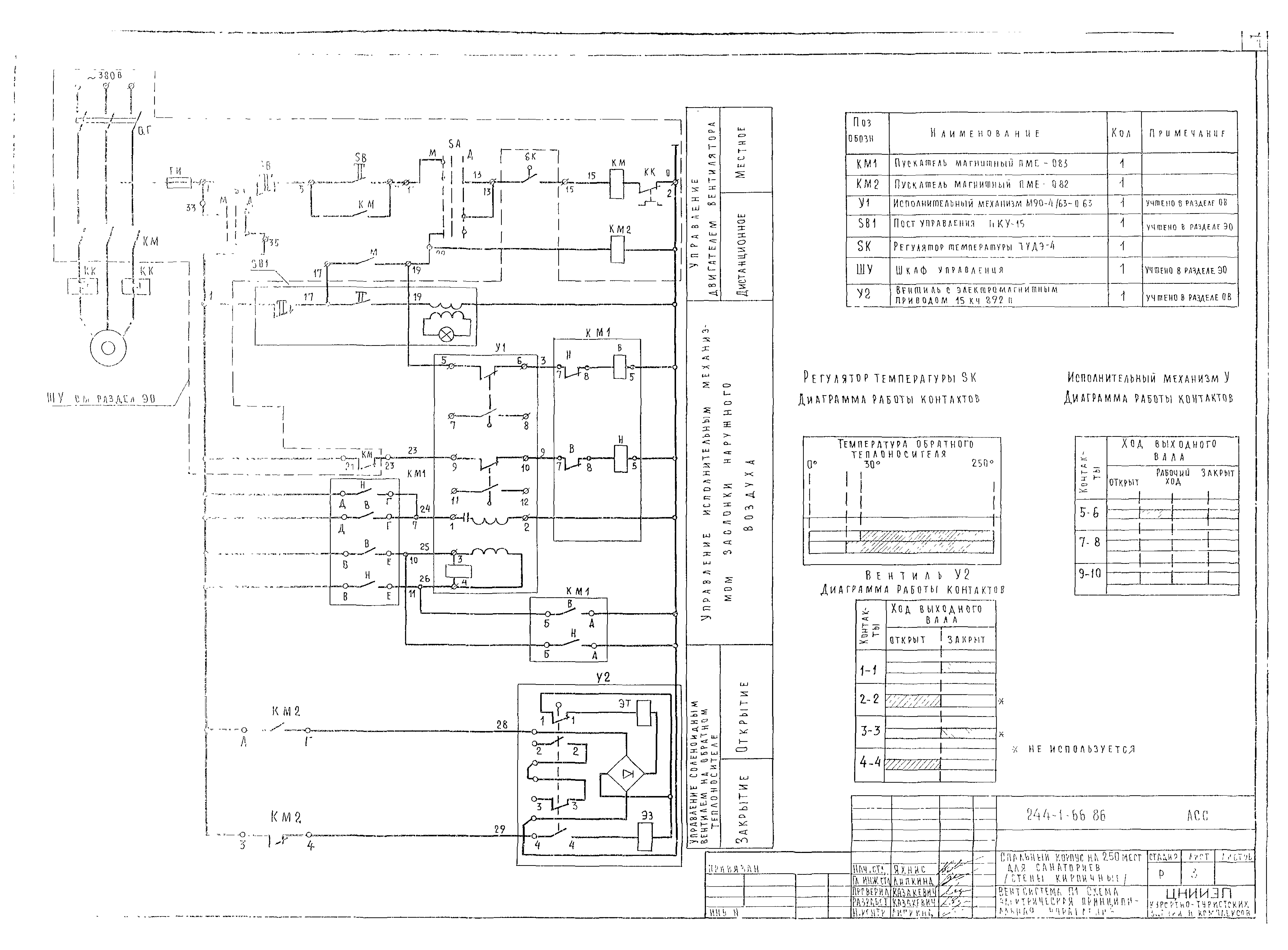
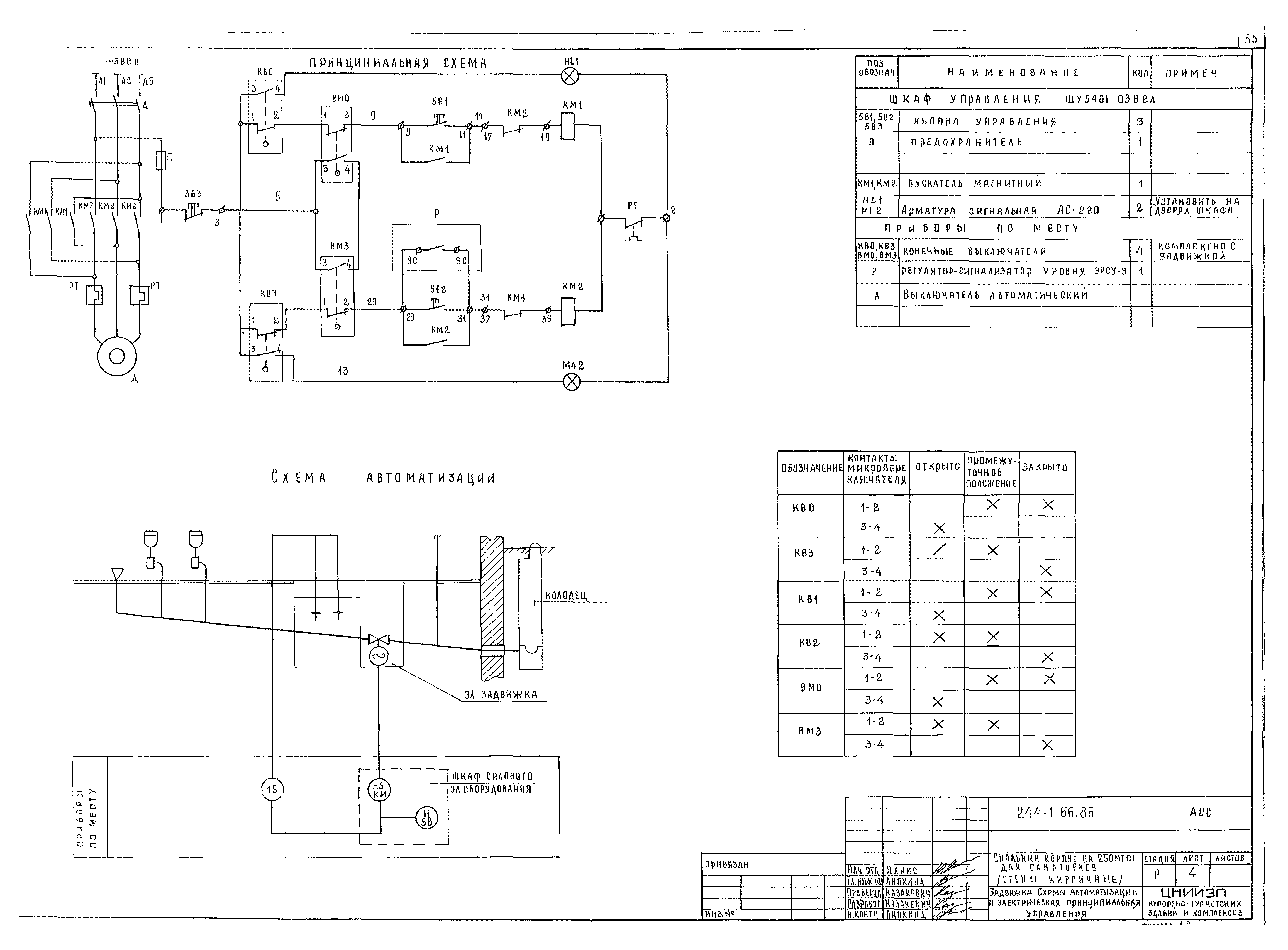
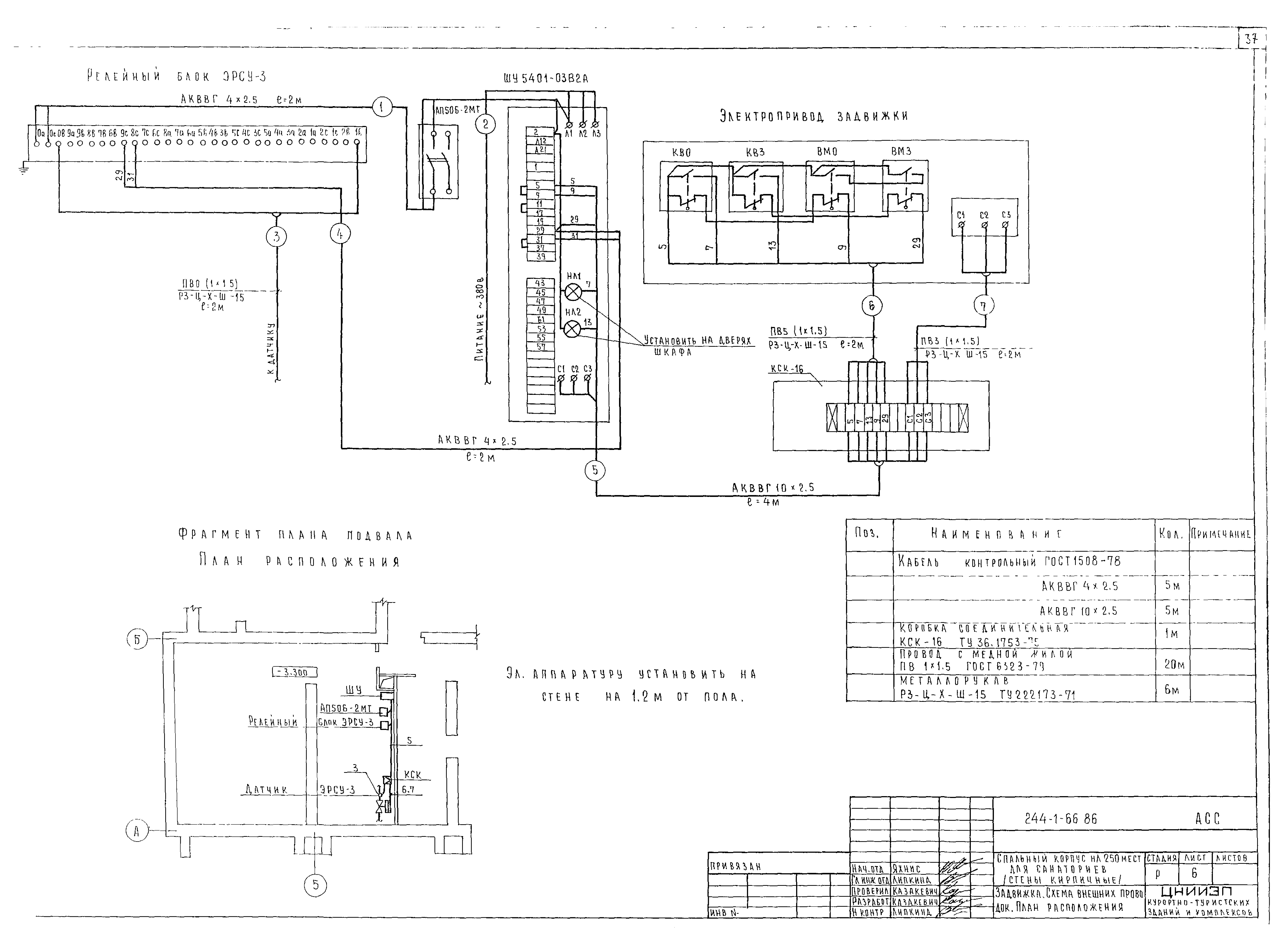
| Оглавление: | Содержание альбома Чертежи основного комплекта марки ОВ2 Общие данные План подвала между осями А - В План подвала между осями В - И Схемы систем отопления спальных номеров и лестничной клетки (магистраль) Схема системы отопления подвала Узел управления. Схема теплоснабжения установки П1 Схемы систем П1, ВЕ1, ВЕ2 Схема системы В1 Установки систем П1, В1 Чертежи основного комплекта марки ВК2 Общие данные План подвала между осями А - В План подвала между осями В - И Схема холодного, горячего и циркуляционного водоснабжения Схемы по канализационным выпускам КК1-1, КК1-2 Схемы по канализационным выпускам КК1-3, КК1-4, КК1-5 Схемы по водосточным выпускам КК2-1, КК2-2, КК2-3, КК2-4 Схемы по водосточным выпускам на отмостку (вариант выпуска водостока на отмостку) Чертежи основного комплекта марки ЭО2 Общие данные План подвала между осями А - В. Электроосвещение План подвала между осями В - И. Электроосвещение План подвала между осями А - В. Электросиловое оборудование План подвала между осями В - И. Электросиловое оборудование Расчетные схемы. Щиты 1ЩР, 2ЩР Чертежи основного комплекта марки СС2 Общие данные Вариант с хозяйственно-бытовыми помещениями в подвале оси В - И Вариант с хозяйственно-бытовыми помещениями в подвале оси А - В Чертежи основного комплекта марки ПС-1 Общие данные Вариант с хозяйственно-бытовыми помещениями в подвале между осями В - И Вариант с хозяйственно-бытовыми помещениями в подвале между осями А - В Чертежи основного комплекта марки АСС Общие данные Вентсистема П1. Схема автоматизации Вентсистема П1. Схема электрическая принципиальная управления Задвижка. Схемы автоматизации и электрическая принципиальная управления Вентсистема П1. Схема внешних проводок. План расположения Задвижка. Схема внешних проводок. План расположения Воронка стальная сливная Установка чугунного гидравлического затвора Задание заводу-изготовителю на ВРУ |
| Разработан: | ЦНИИЭП курортно-туристских зданий и комплексов Госгражданстроя |
| Утверждён: | 03.10.1984 Госгражданстрой (Gosgrazhdanstroy 280) |







































