Скачать Типовые проектные решения 705-4-094.87 Альбом 3. Автоматизация технологических процессовДата актуализации: 01.01.2021
|
| Обозначение: | Типовые проектные решения 705-4-094.87 |
| Обозначение англ: | 705-4-094.87 |
| Статус: | справочные материалы, мп, тпр |
| Название рус.: | Альбом 3. Автоматизация технологических процессов |
| Дата добавления в базу: | 01.10.2014 |
| Дата актуализации: | 01.01.2021 |
| Дата окончания срока действия: | 05.10.1985 |
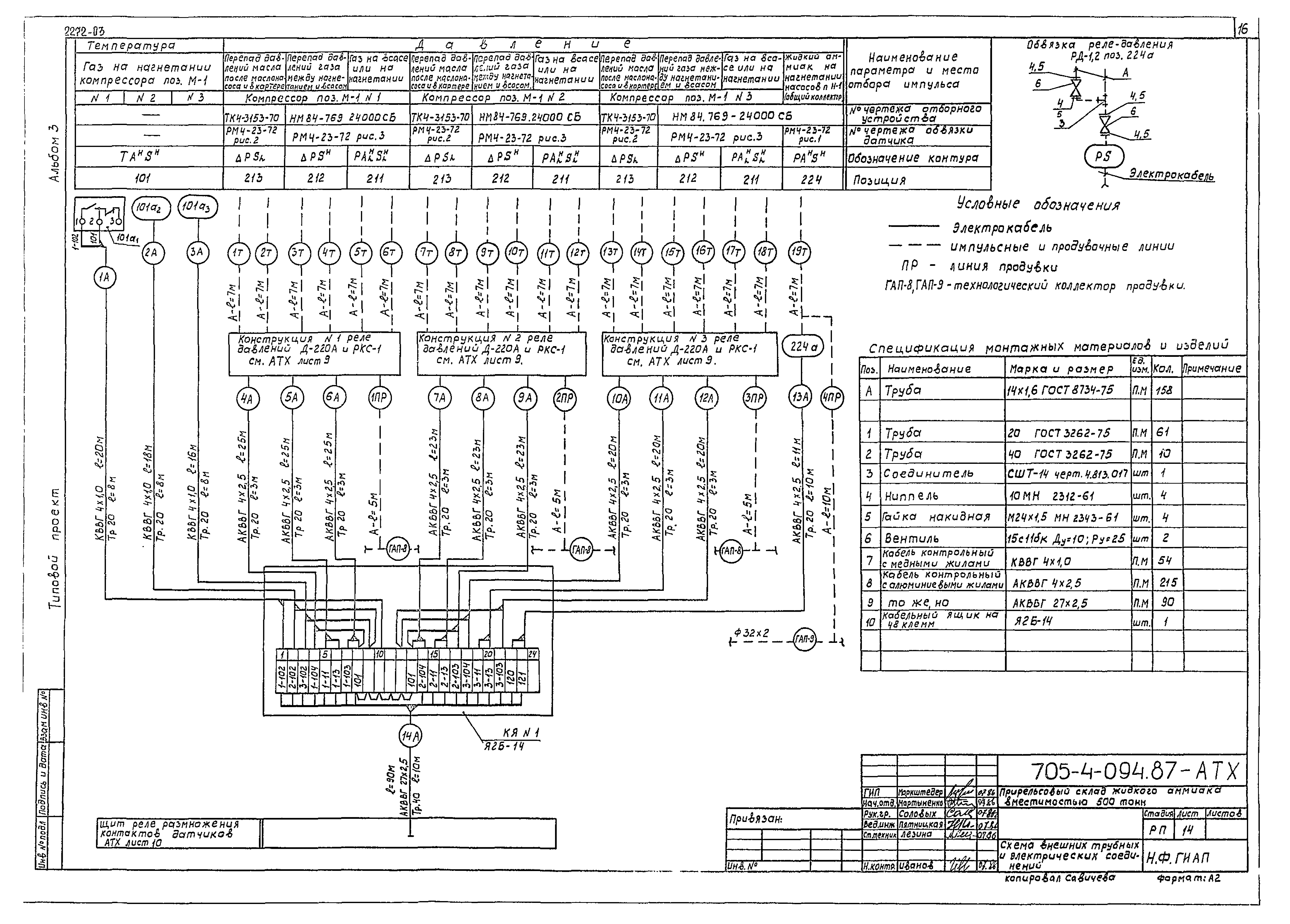
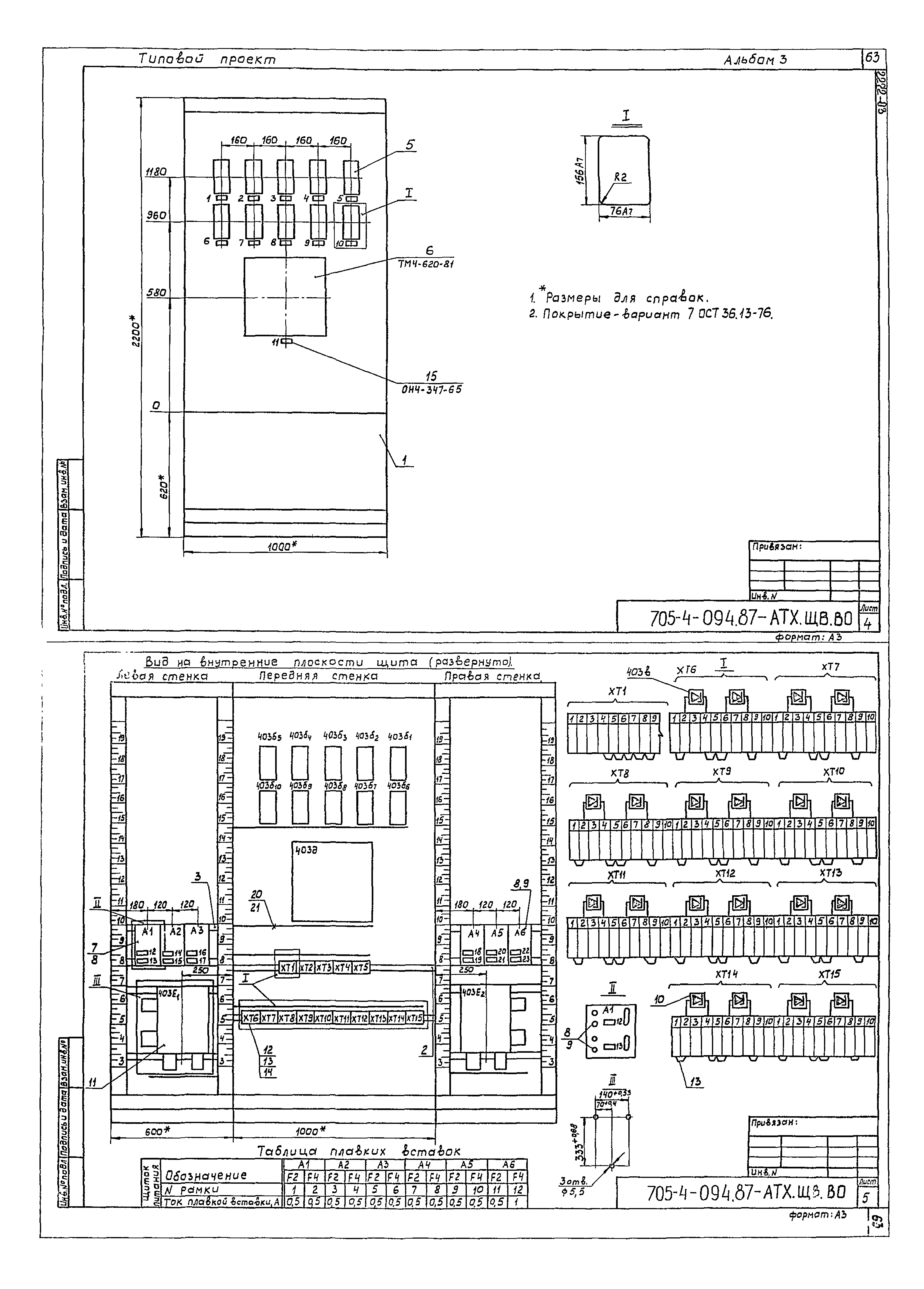
| Оглавление: | Общие данные Принципиальные схемы размножения контактов датчиков и запоминания Принципиальная схема светозвуковой сигнализации Щиты преобразователей ПИ и миллиамперметров. Схема внешних подключений Конструкция блоков ВПР-1 и ПРП. Вид общий Конструкция блоков ВПР-1 и ПРП. Монтажно-коммутационная схема Конструкция № 1 (2, 3) реле давлений Д-220А и РКС-1. Вид общий. Монтажно-коммутационная схема Щит реле размножения контактов датчиков и щит питания. Схема внешних подключений Щит реле сигнализации. Схема внешних подключений Щит КИП гребенок № 2. Монтажно-коммутационная схема Щит КИП гребенок № 3. Монтажно-коммутационная схема Схема внешних трубных и электрических соединений План расположения отм. 0.000; 5.200 хранилища поз. Е-1 План расположения отм. 0.000; - 1.600. Емкость поз. Е-5. Насосы Н-1 План расположения отм. 0.000. Компрессоры поз. М-1. Емкости поз. Е-2, Е-3 План расположения отм. 0.000; 4.650. Помещение РПА. Эстакада слива Ситуационный план План расположения отм. 0.000. Вспомогательный блок Таблица лабораторных анализов Техническое задание заводу-изготовителю щитов. Перечень документации Щит реле размножения контактов датчиков. Вид общий Щит реле размножения контактов датчиков. Таблица соединений Щит реле размножения контактов датчиков. Таблица подключений Щит реле сигнализации. Вид общий Щит реле сигнализации. Таблица соединений Щит реле сигнализации. Таблица подключений Щит питания. Вид общий Щит питания. Таблица соединений Щит питания. Таблица подключений Щит КИП гребенок № 1. Вид общий Щит КИП гребенок № 2. Вид общий Щит КИП гребенок № 3. Вид общий Щит миллиамперметров1. Вид общий Щит миллиамперметров. Таблица соединений Щит миллиамперметров. Таблица подключений Щит преобразователей ПИ1. Вид общий Щит преобразователей ПИ. Таблица соединений Щит преобразователей ПИ. Таблица подключений |
| Разработан: | Новомосковский ГИАП |
| Утверждён: | 05.10.1985 Минудобрений СССР (USSR Minudobreniy 25-101-А) |




































































