Скачать Типовые проектные решения 705-4-094.87 Альбом 5. Конструкции металлическиеДата актуализации: 01.01.2021
|
| Обозначение: | Типовые проектные решения 705-4-094.87 |
| Обозначение англ: | 705-4-094.87 |
| Статус: | справочные материалы, мп, тпр |
| Название рус.: | Альбом 5. Конструкции металлические |
| Дата добавления в базу: | 01.10.2014 |
| Дата актуализации: | 01.01.2021 |
| Дата окончания срока действия: | 05.10.1985 |
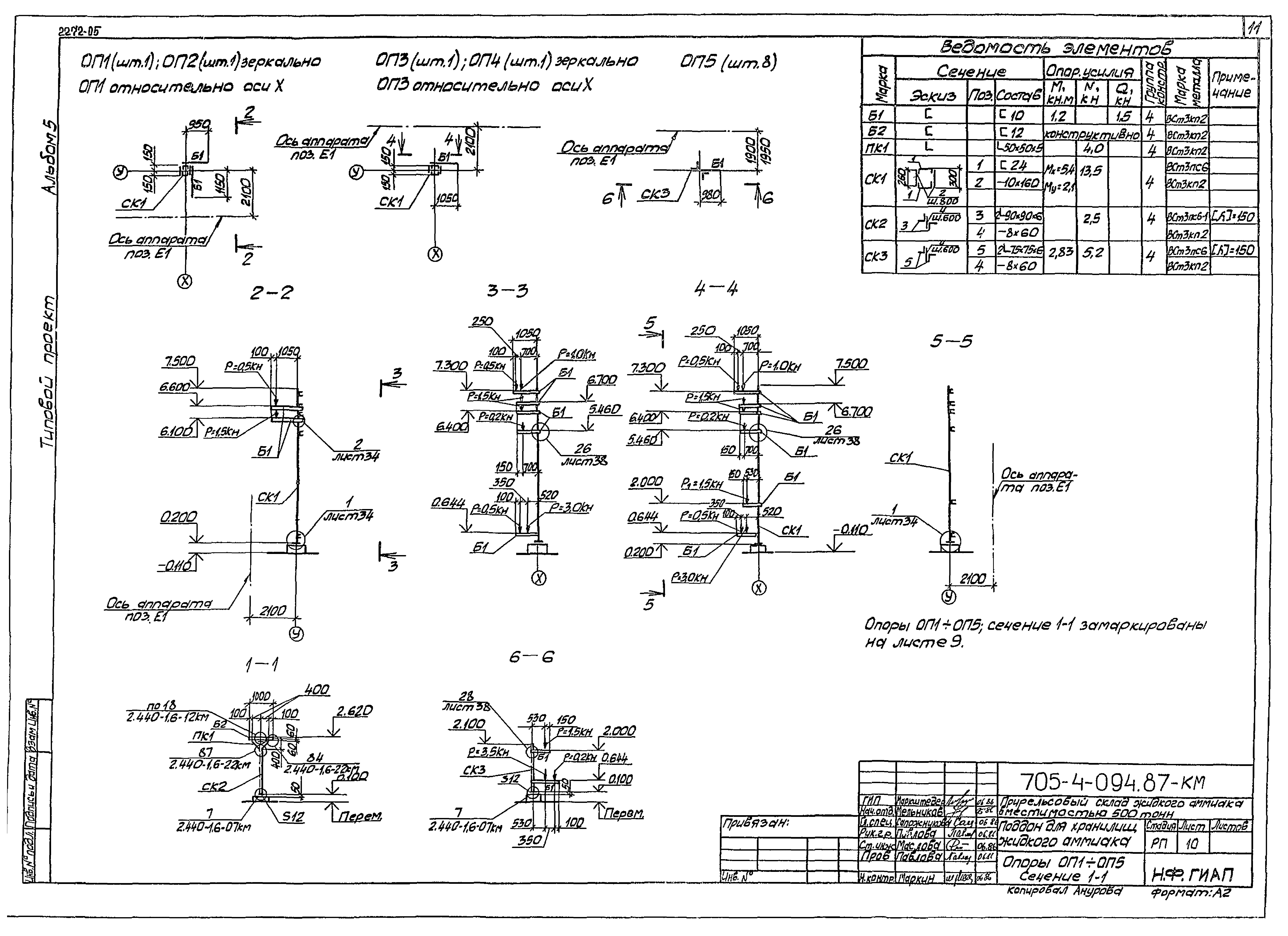
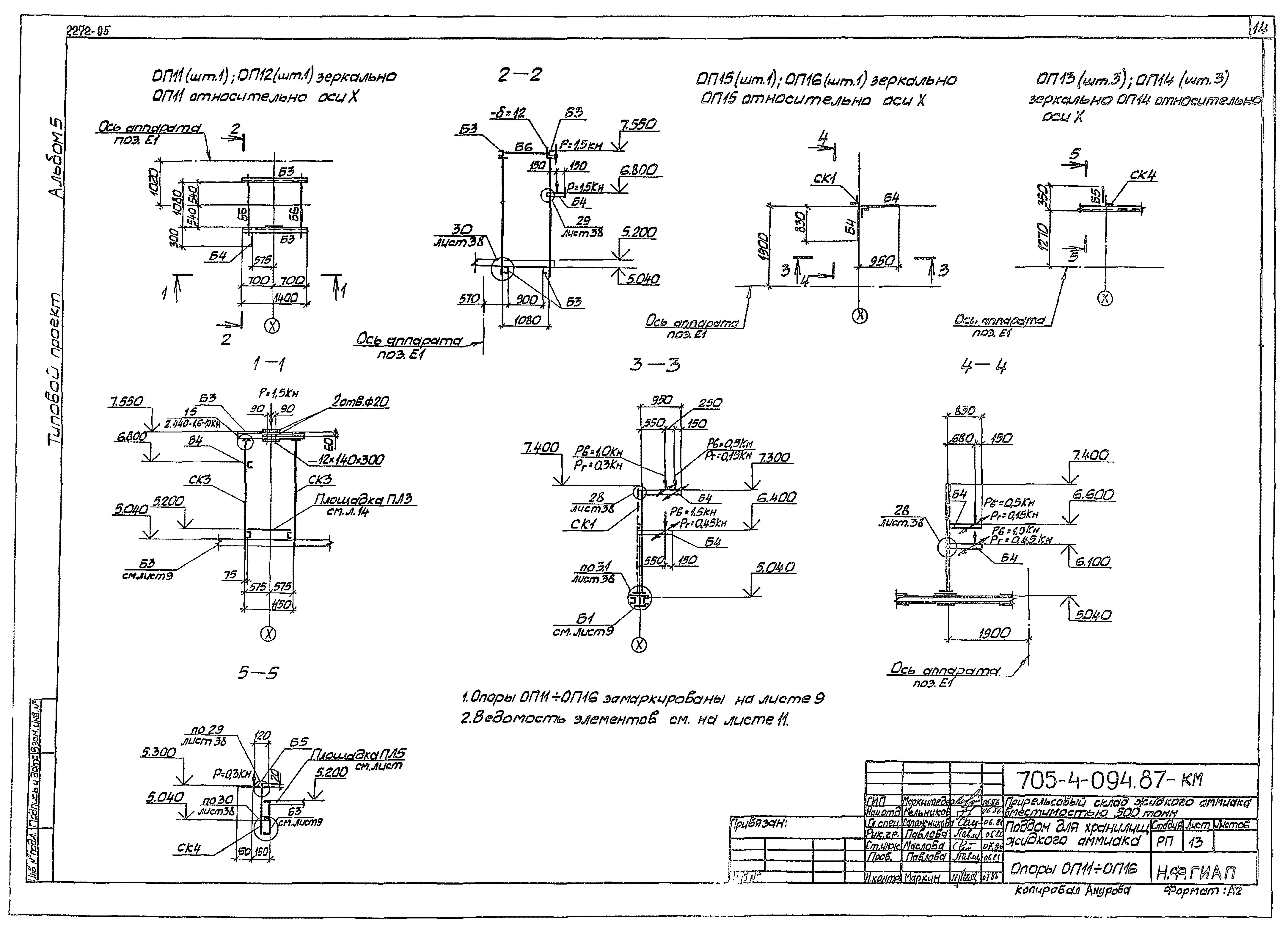
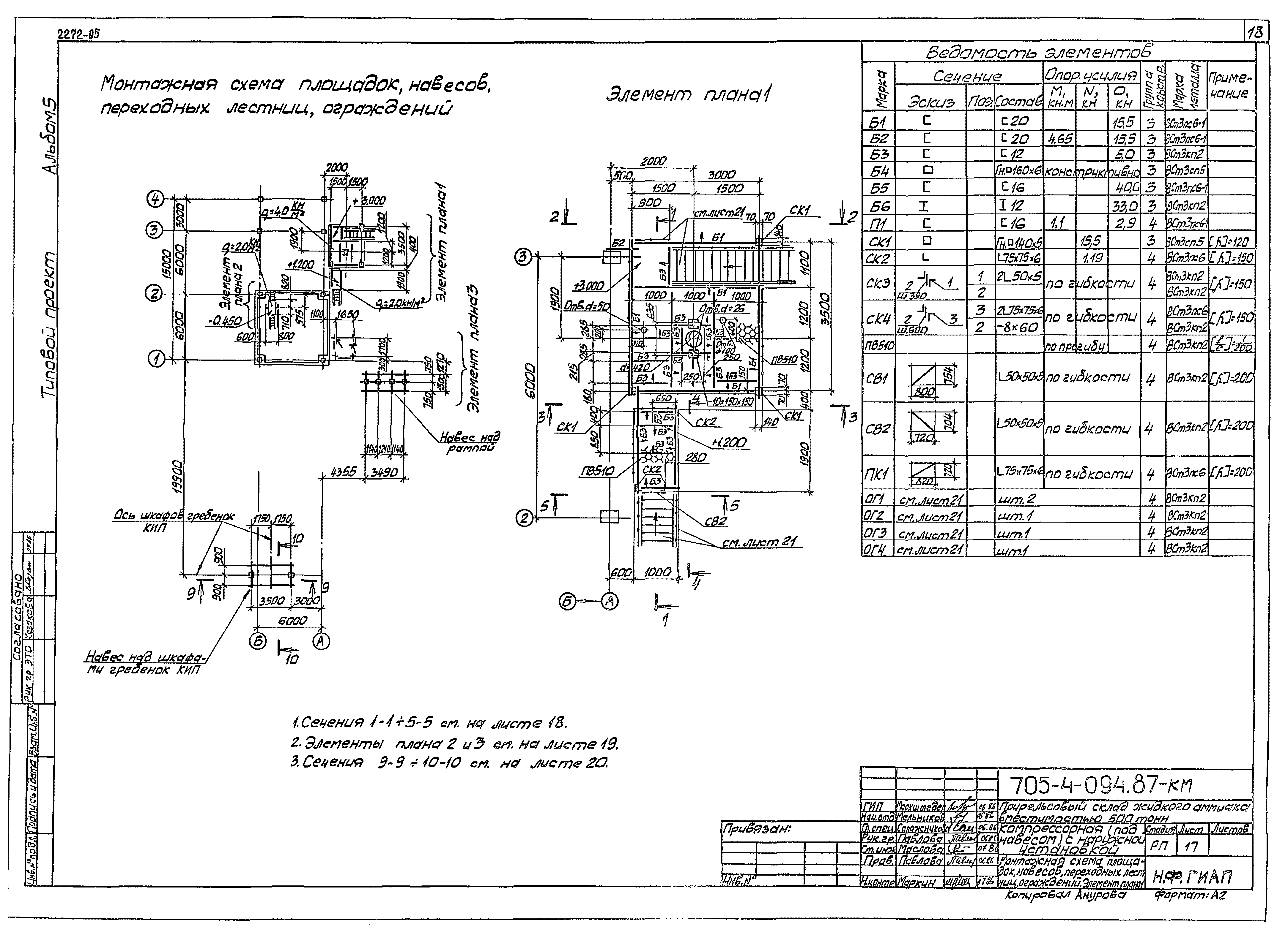
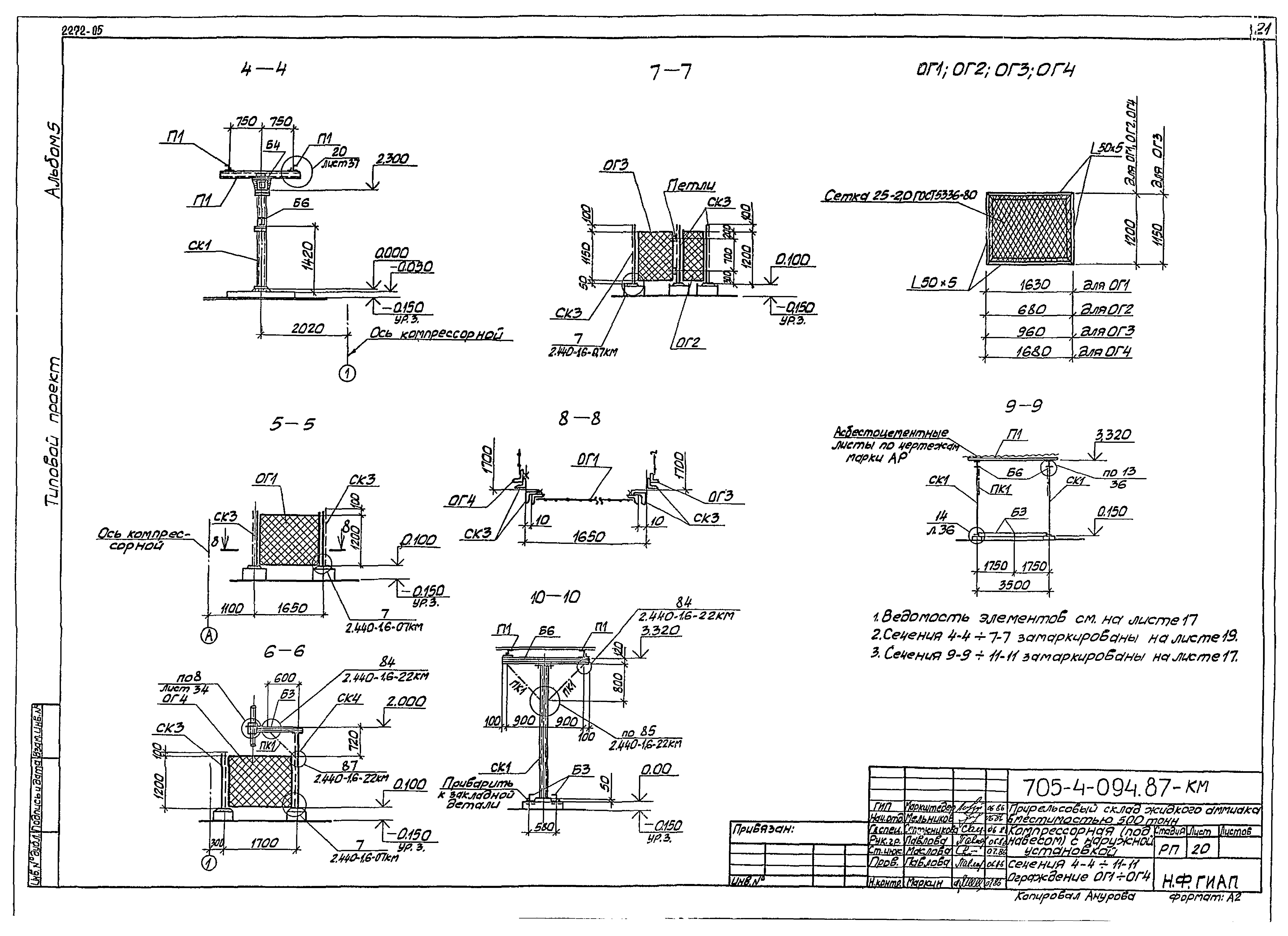
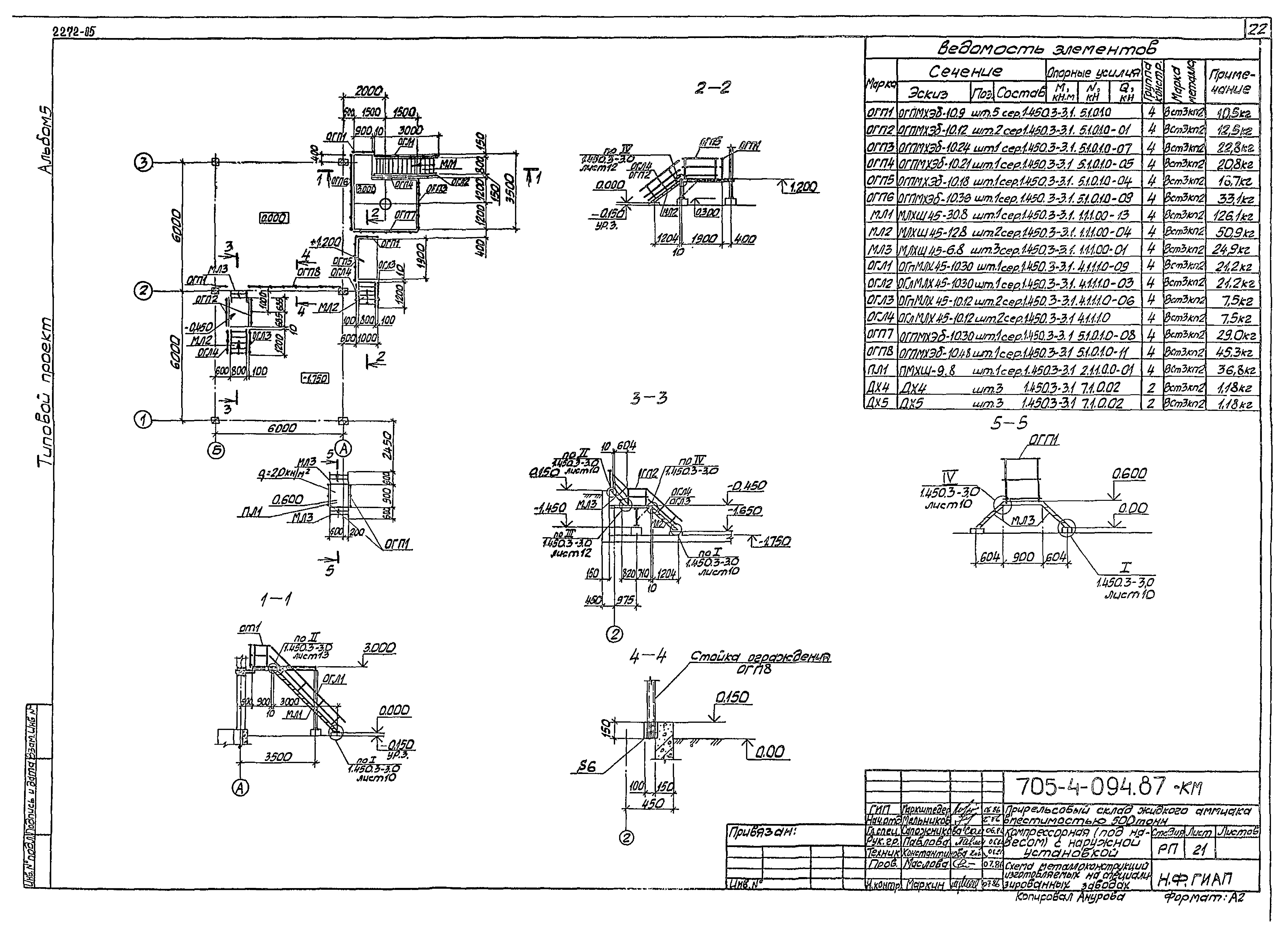
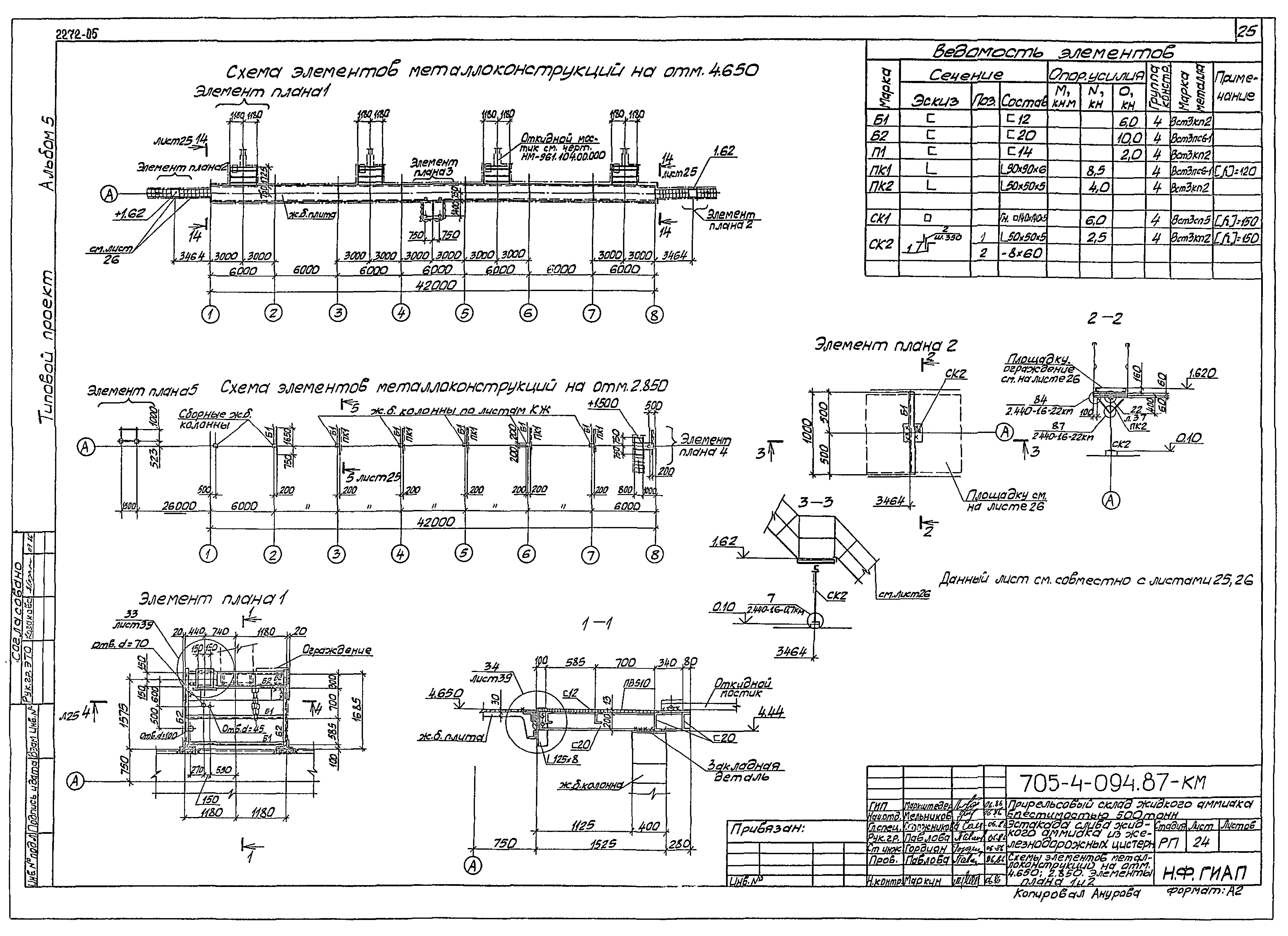
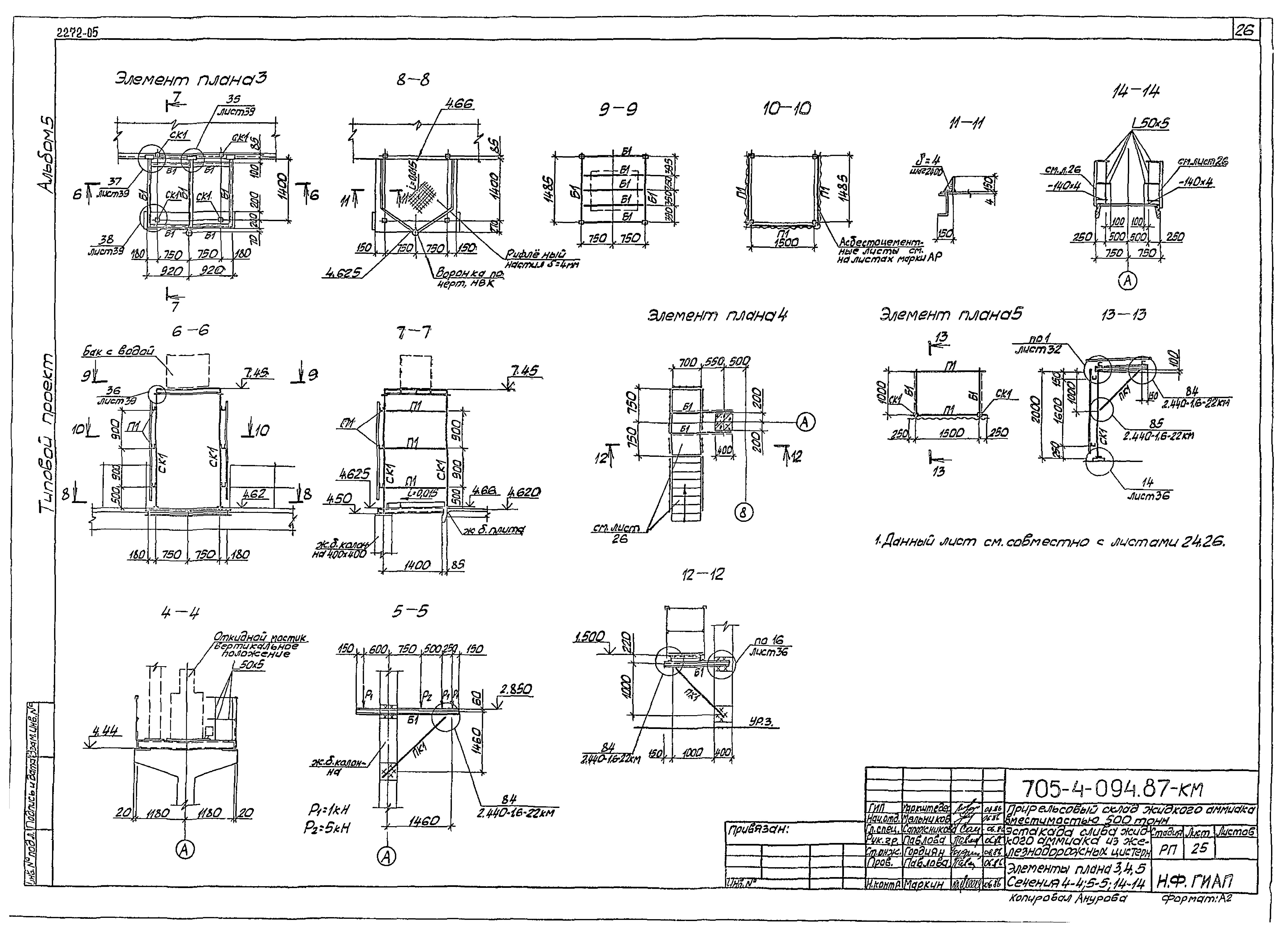
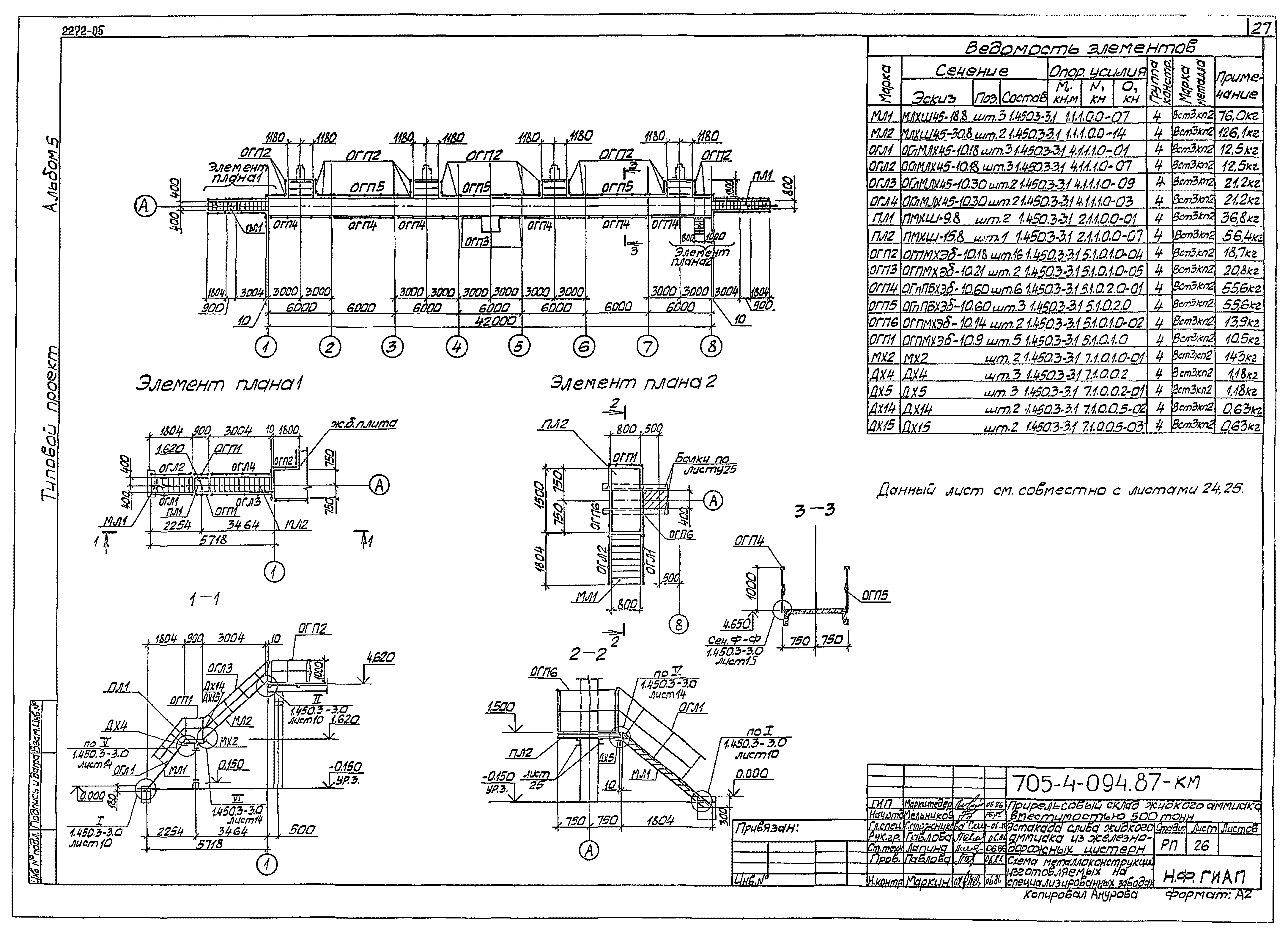
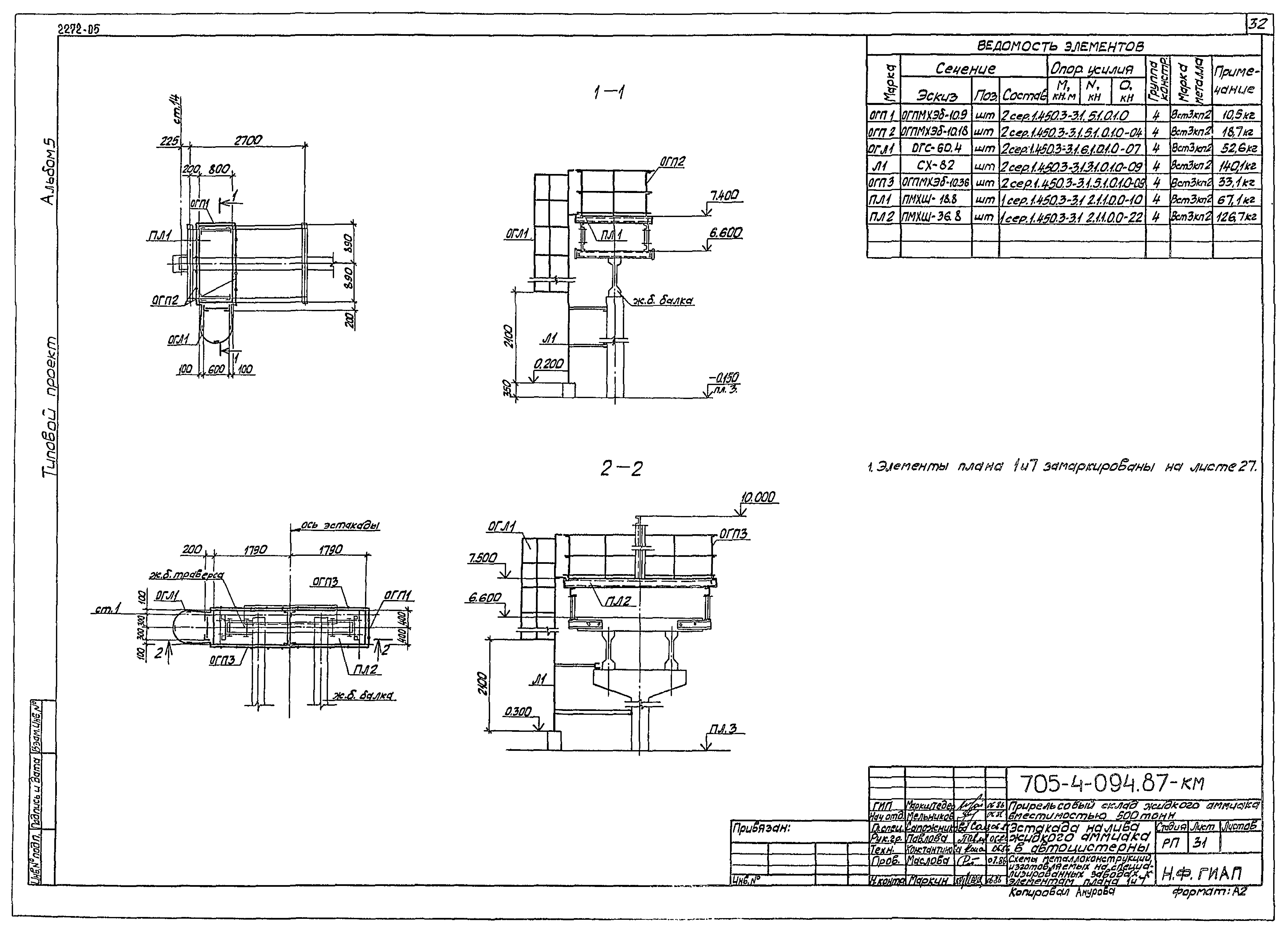
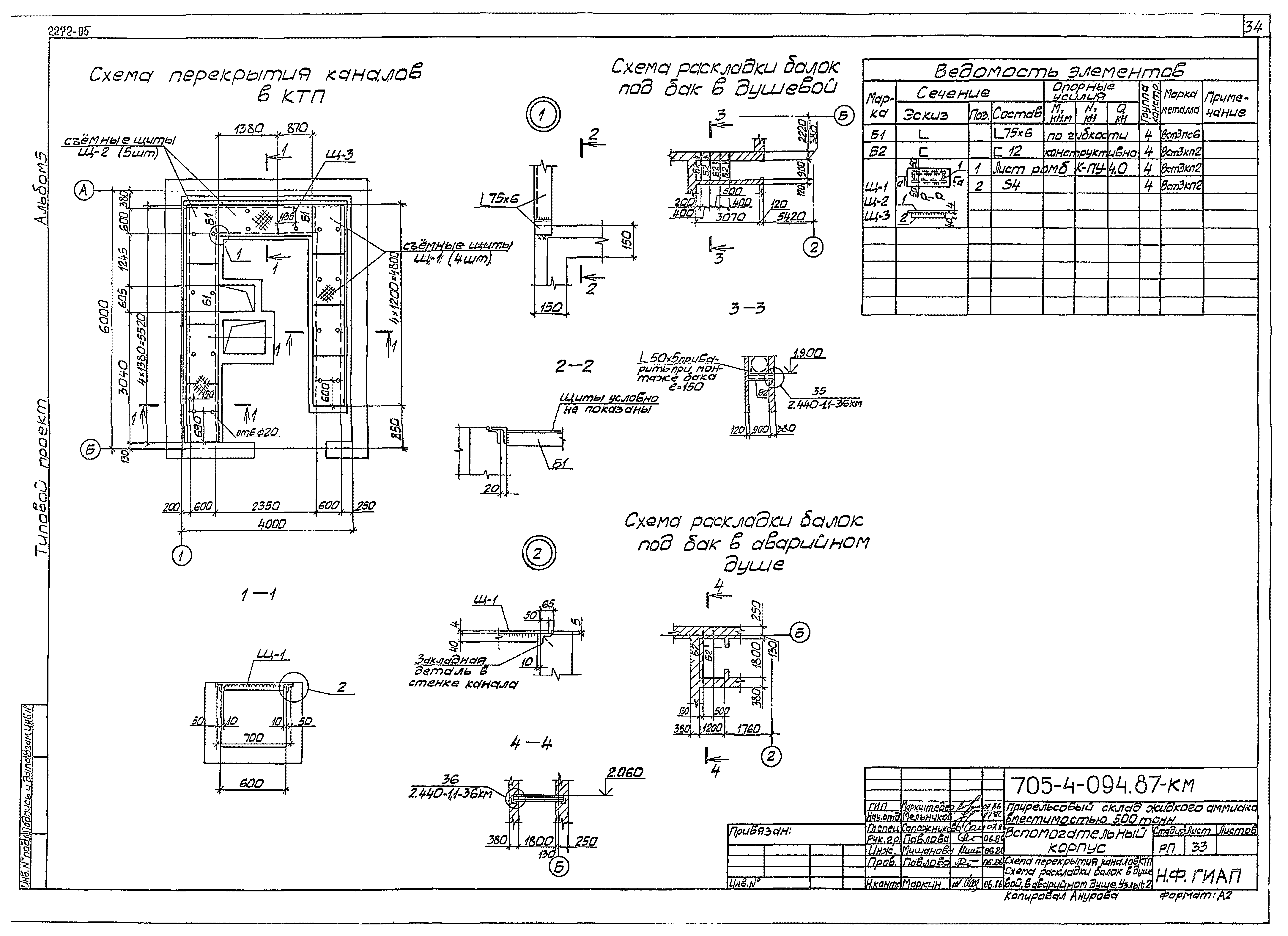
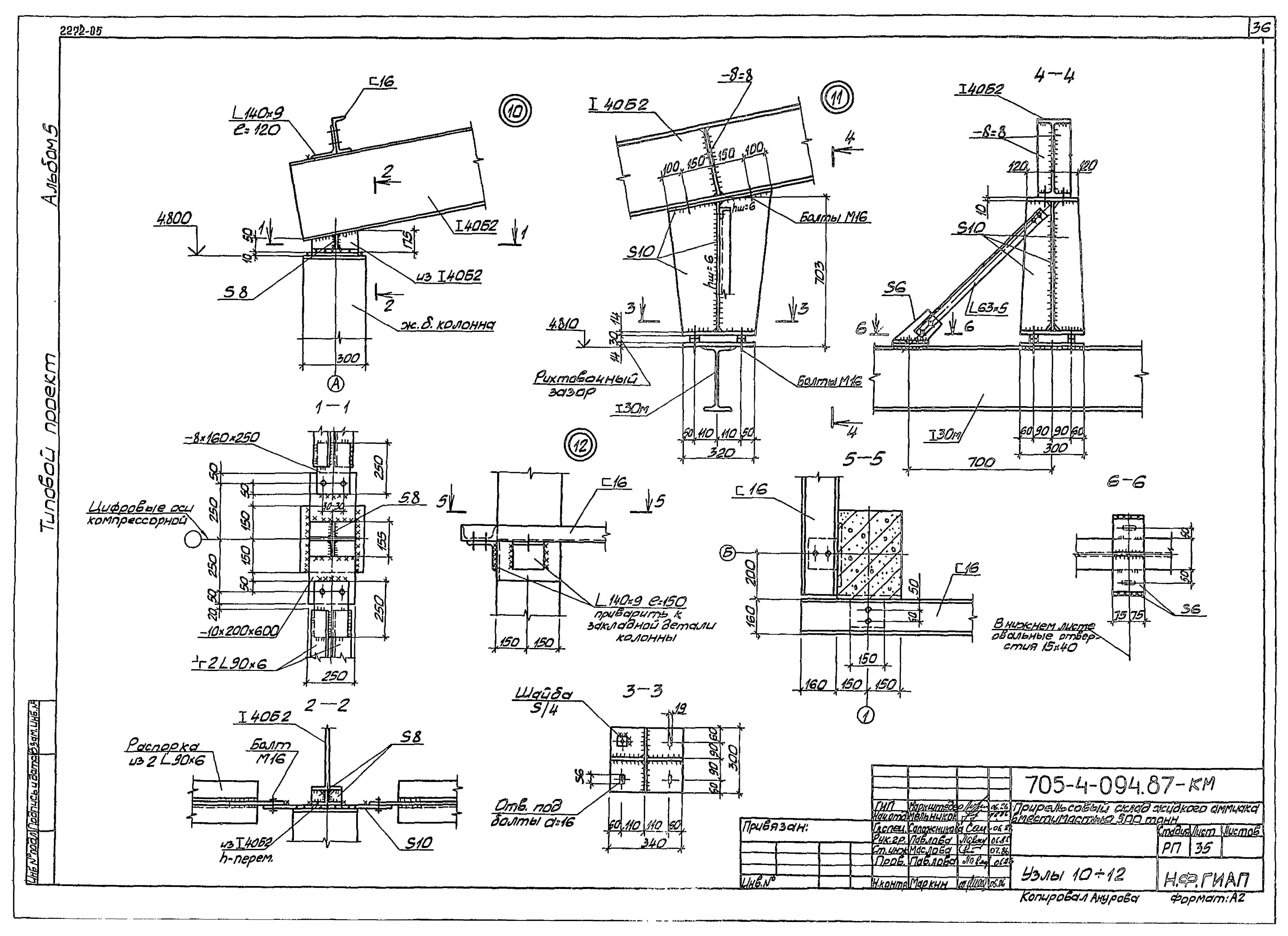
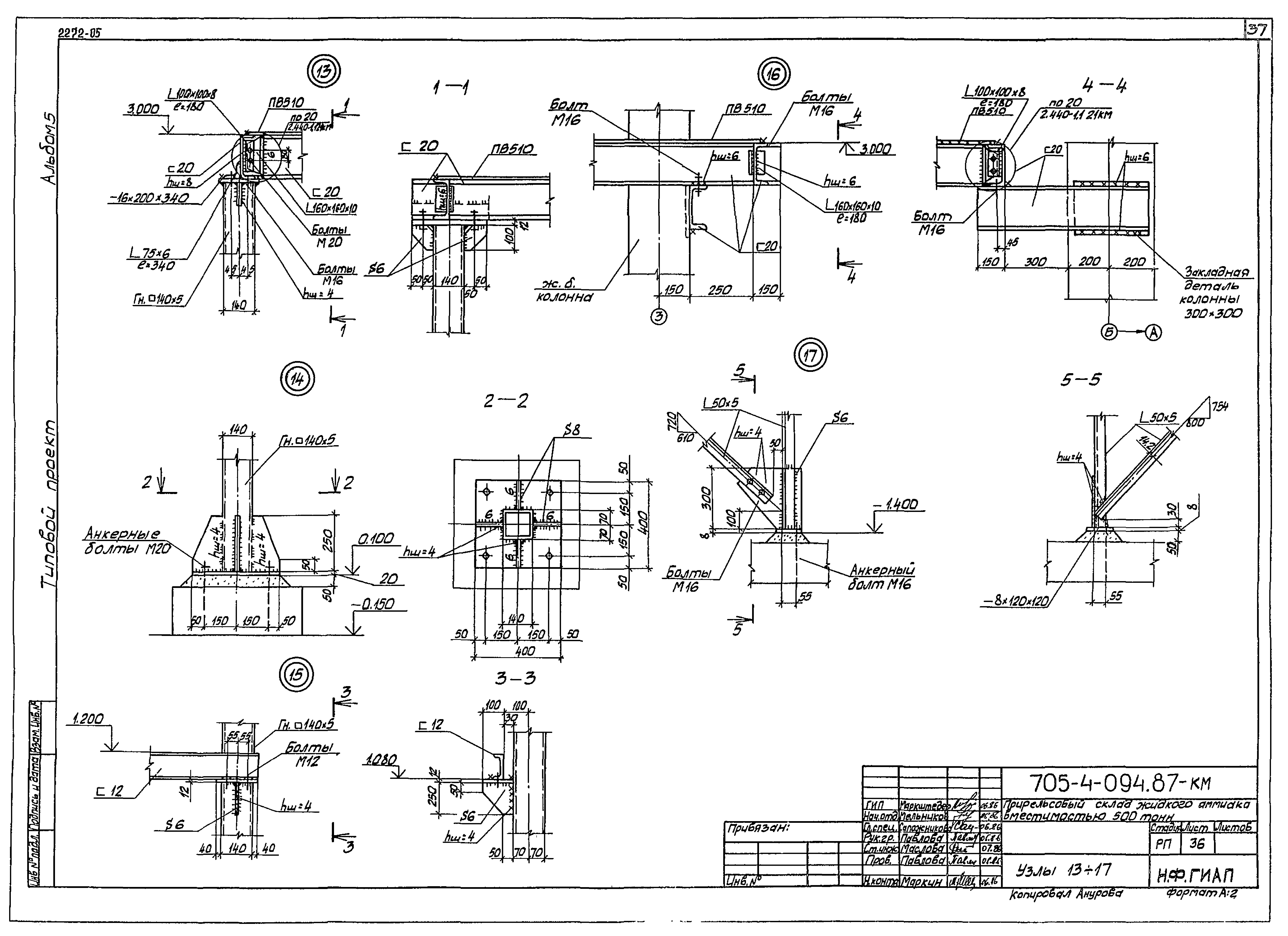
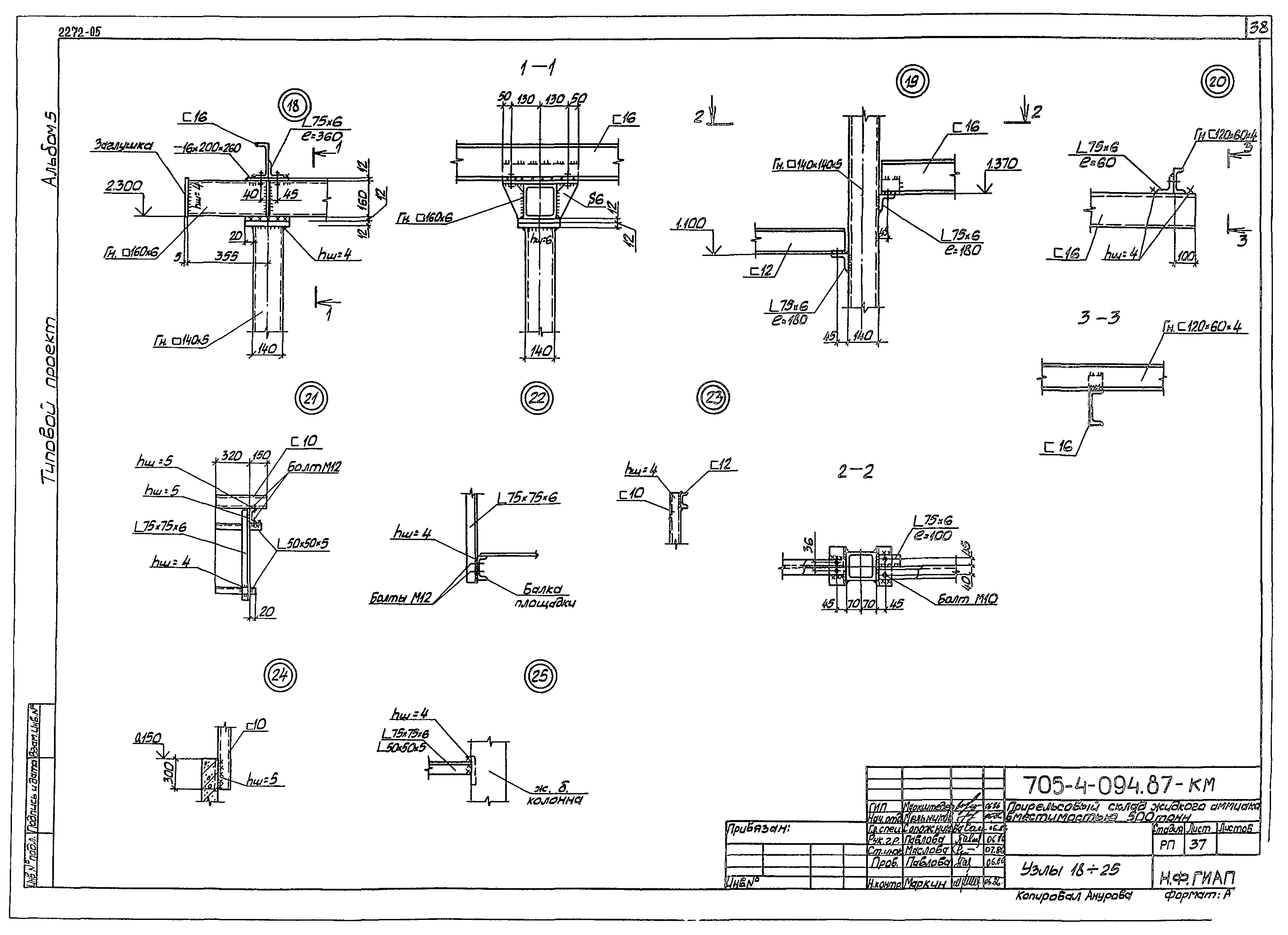
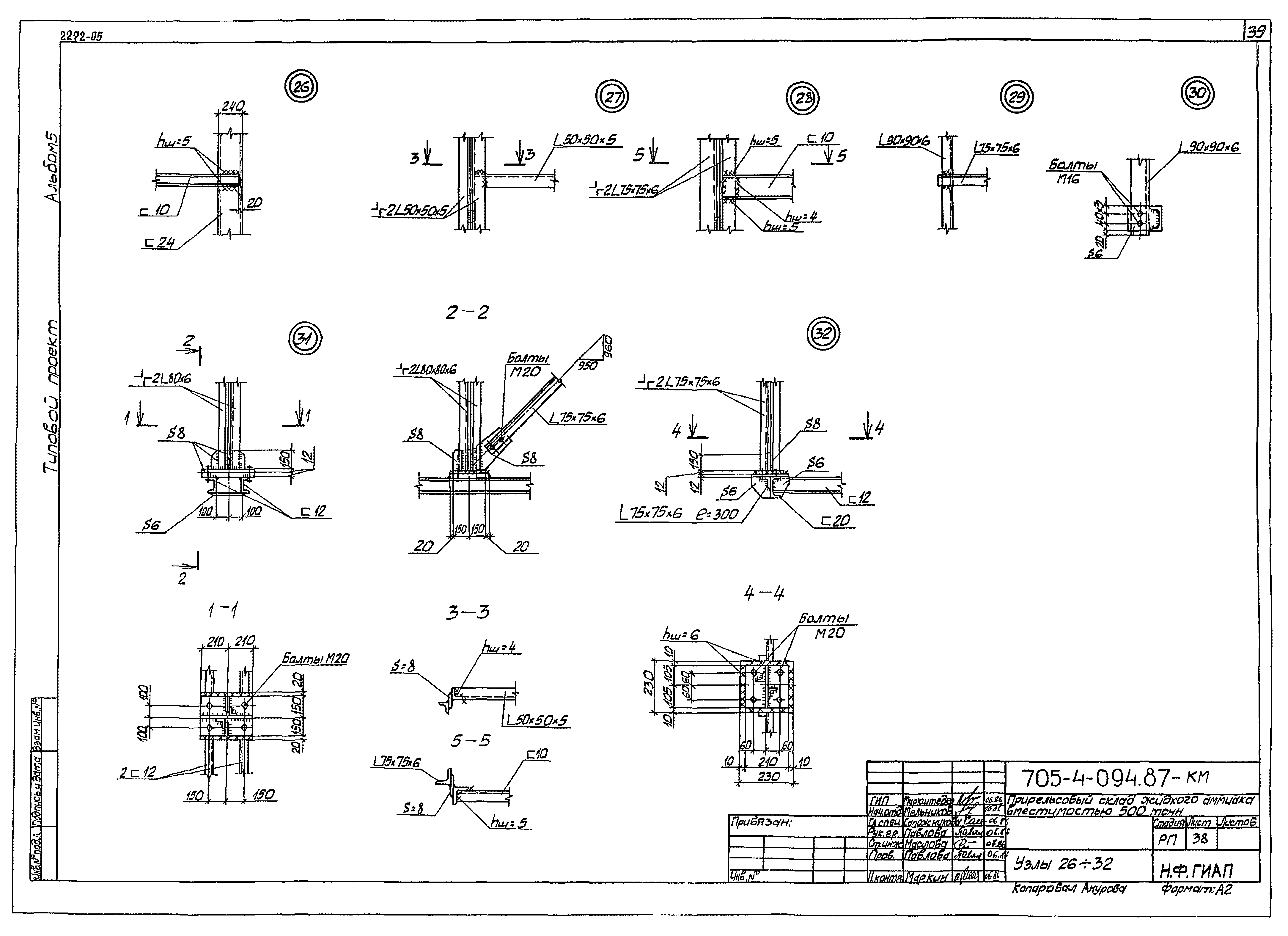
| Оглавление: | Общие данные Техническая спецификация металла Спецификация на конструкции, изготовляемые на специализированных заводах Ведомость металлоконструкций по видам профилей Поддон для хранилищ жидкого аммиака Схема опор на отм. 0.000. Схема балок и опор на емкостях Опоры ОП1 - ОП3. Сечение 1-1 Сечения 2-2 - 4-4 Опоры ОП6 - ОП10 Опоры ОП11 - ОП16 Схема площадок, лестниц и ограждений, изготовляемых на специализированных заводах Сечения 1-1 - 5-5. Ведомость элементов к листу Компрессорная (под навесом) с наружной установкой Монтажные схемы монорельса, балок для крепления гребенок и балок покрытия Монтажная схема площадок, навесов, переходных лестниц, ограждений. Элемент плана 1 Сечения 1-1 - 5-5 Элементы плана 2 и 3. Сечения 1-1 - 3-3 Сечения 4-4 - 11-11. Ограждение ОГ1 - ОГ4 Схема металлоконструкций, изготовляемых на специализированных заводах Маркировочная схема опор. Сечения 1-1 - 6-6 Сечения 7-7 - 19-19 Эстакада слива жидкого аммиака из железнодорожных цистерн Схемы элементов металлоконструкций на отм. 4.650; 2.850. Элементы плана 1 и 2 Элементы плана 3, 4, 5. Сечения 4-4, 5-5, 14-14 Схема металлоконструкций, изготовляемых на специализированных заводах Эстакада налива жидкого аммиака в автоцистерны Схема расположения элементов эстакады налива. Сечения 1-1 - 5-5 Элементы плана 1 и 2. Узел 1 Элементы плана 3, 4, 5, 6 Элементы плана 7 и 8 Схемы металлоконструкций, изготовляемых на специализированных заводах, к элементам плана 1 и 7 Аварийные фонтанчики Схема расположения навесов над аварийными фонтанчиками. Схема металлоконструкций Вспомогательный корпус Схема перекрытия каналов КТП. Схема раскладки балок в душевой, в аварийном душе. Узлы 1, 2 Узлы 1 - 9 Узлы 10 - 12 Узлы 13 - 17 Узлы 18 - 25 Узлы 26 - 32 Узлы 33 - 38 |
| Разработан: | Новомосковский ГИАП |
| Утверждён: | 05.10.1985 Минудобрений СССР (USSR Minudobreniy 25-101-А) |








































