Скачать Типовые проектные решения 705-4-094.87 Альбом 7. Электроснабжение. Электрическое освещение. Силовое электрооборудование. Связь и сигнализацияДата актуализации: 01.01.2021
|
| Обозначение: | Типовые проектные решения 705-4-094.87 |
| Обозначение англ: | 705-4-094.87 |
| Статус: | справочные материалы, мп, тпр |
| Название рус.: | Альбом 7. Электроснабжение. Электрическое освещение. Силовое электрооборудование. Связь и сигнализация |
| Дата добавления в базу: | 01.10.2014 |
| Дата актуализации: | 01.01.2021 |
| Дата окончания срока действия: | 05.10.1985 |
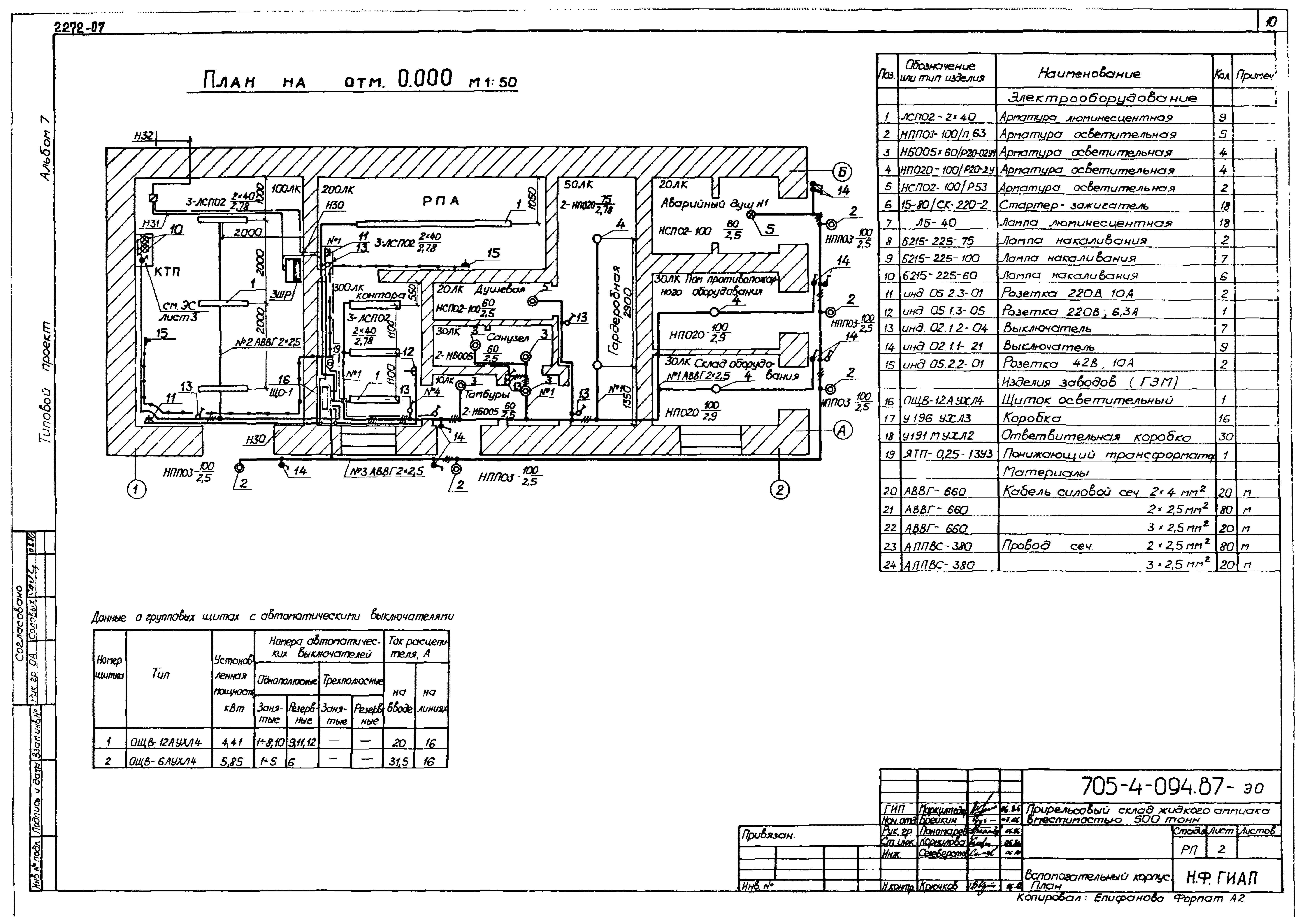
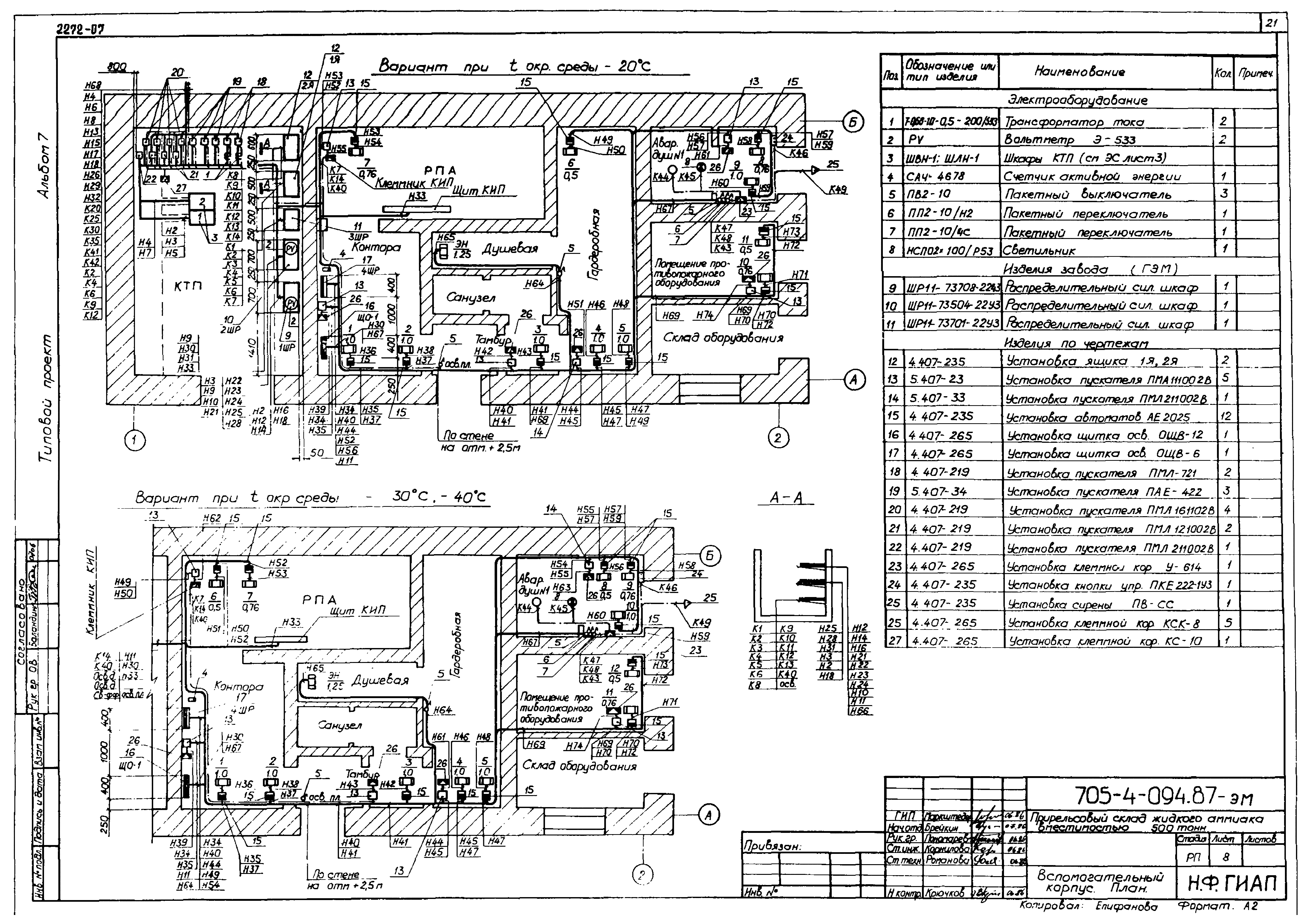
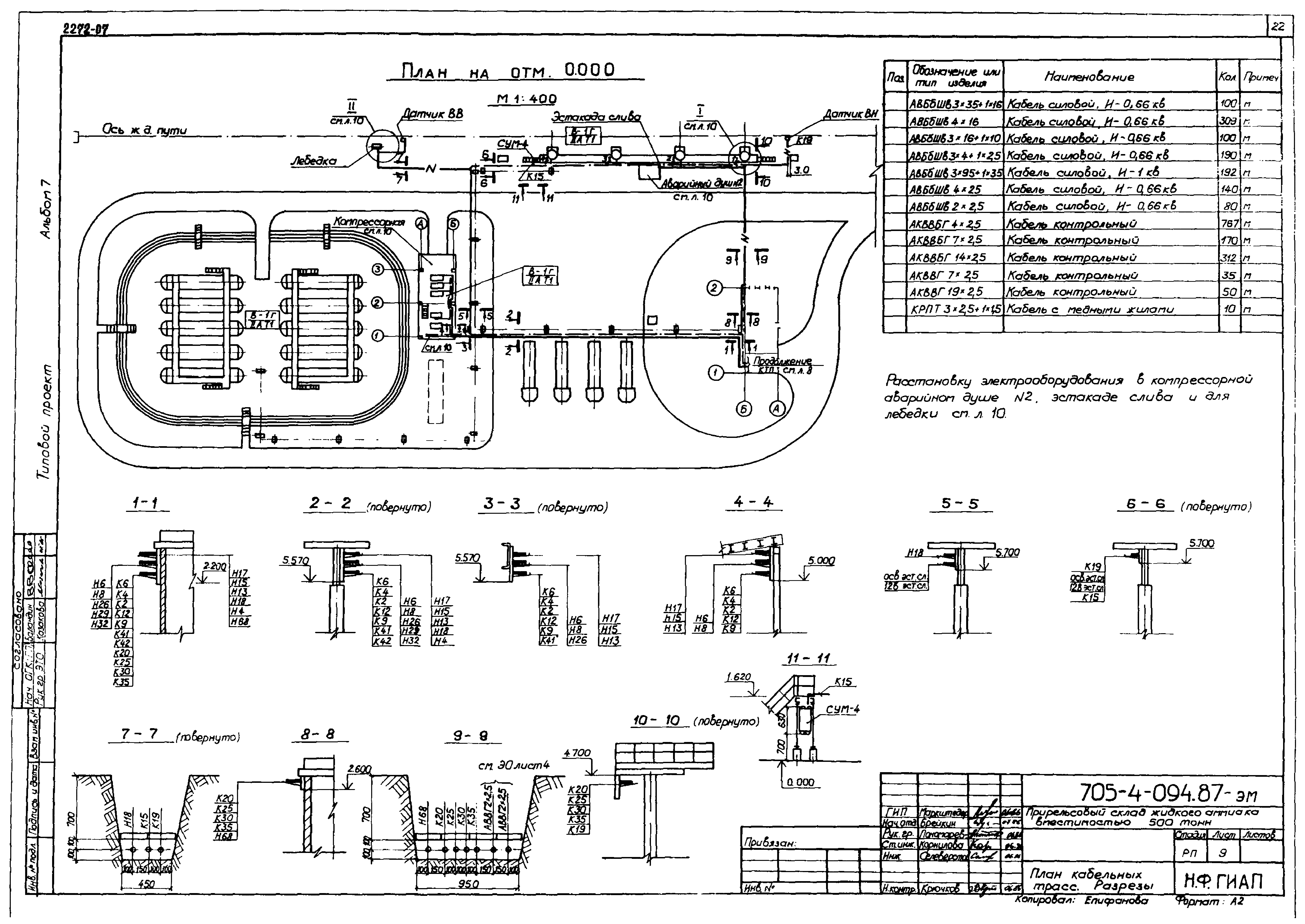
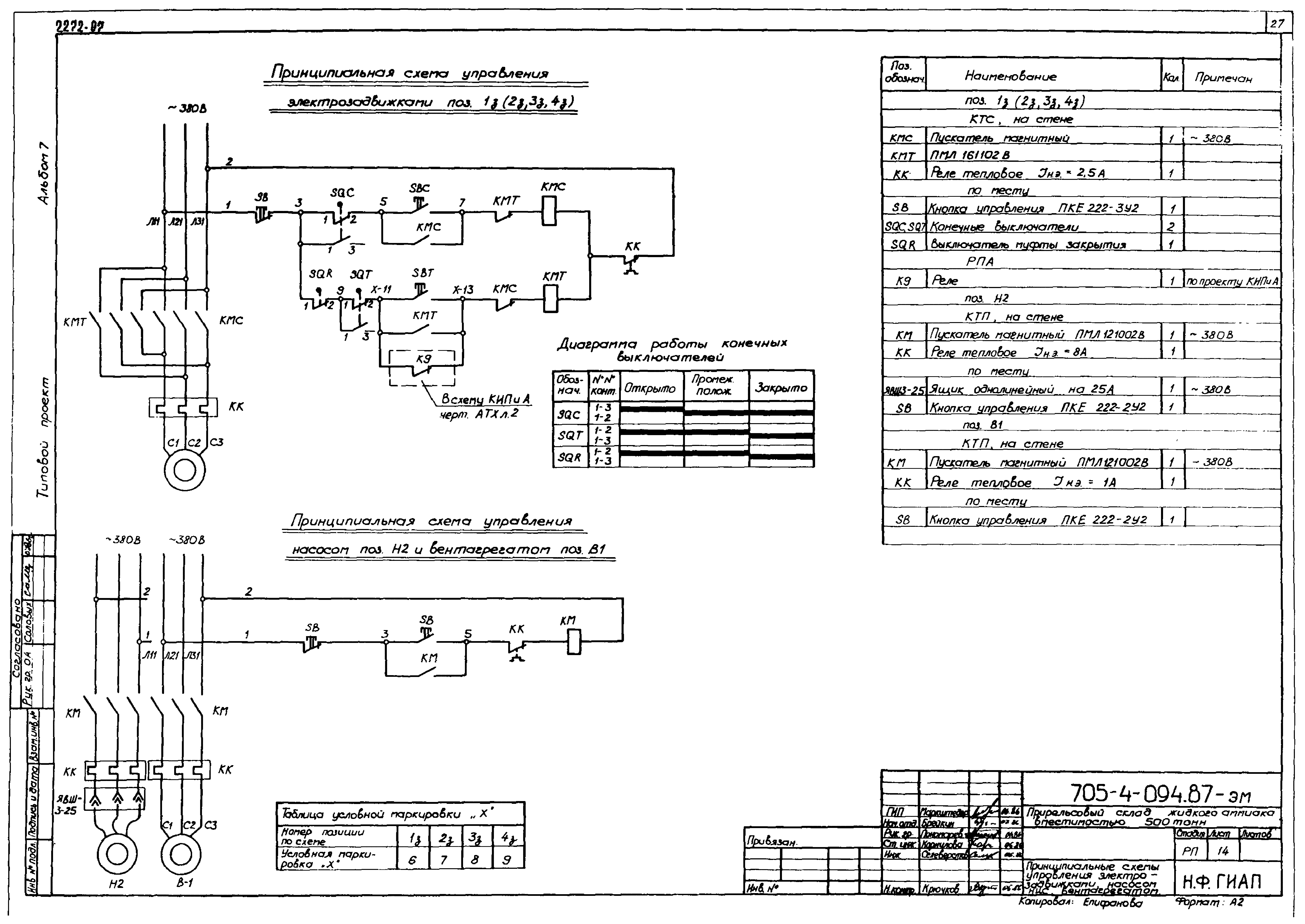
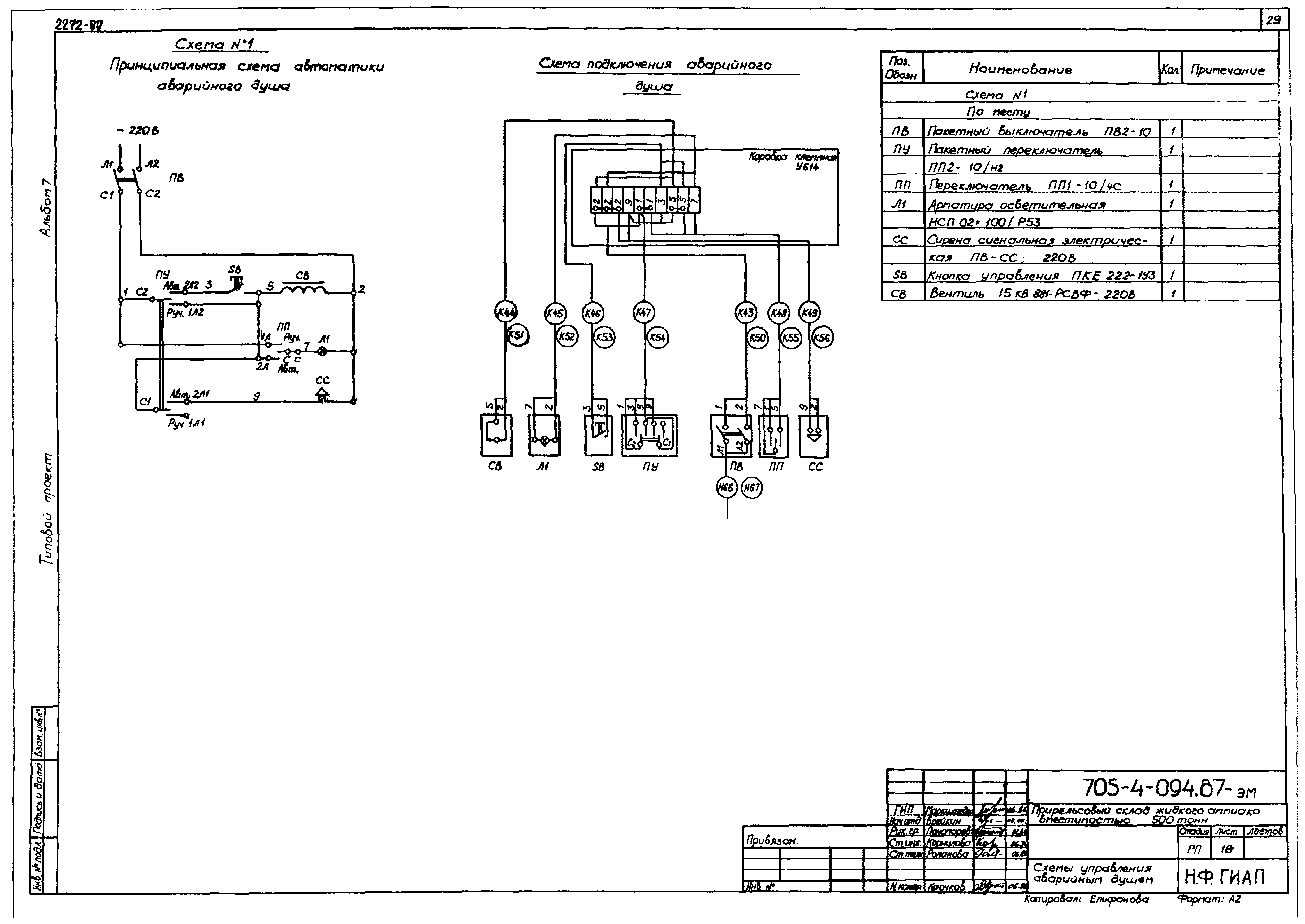
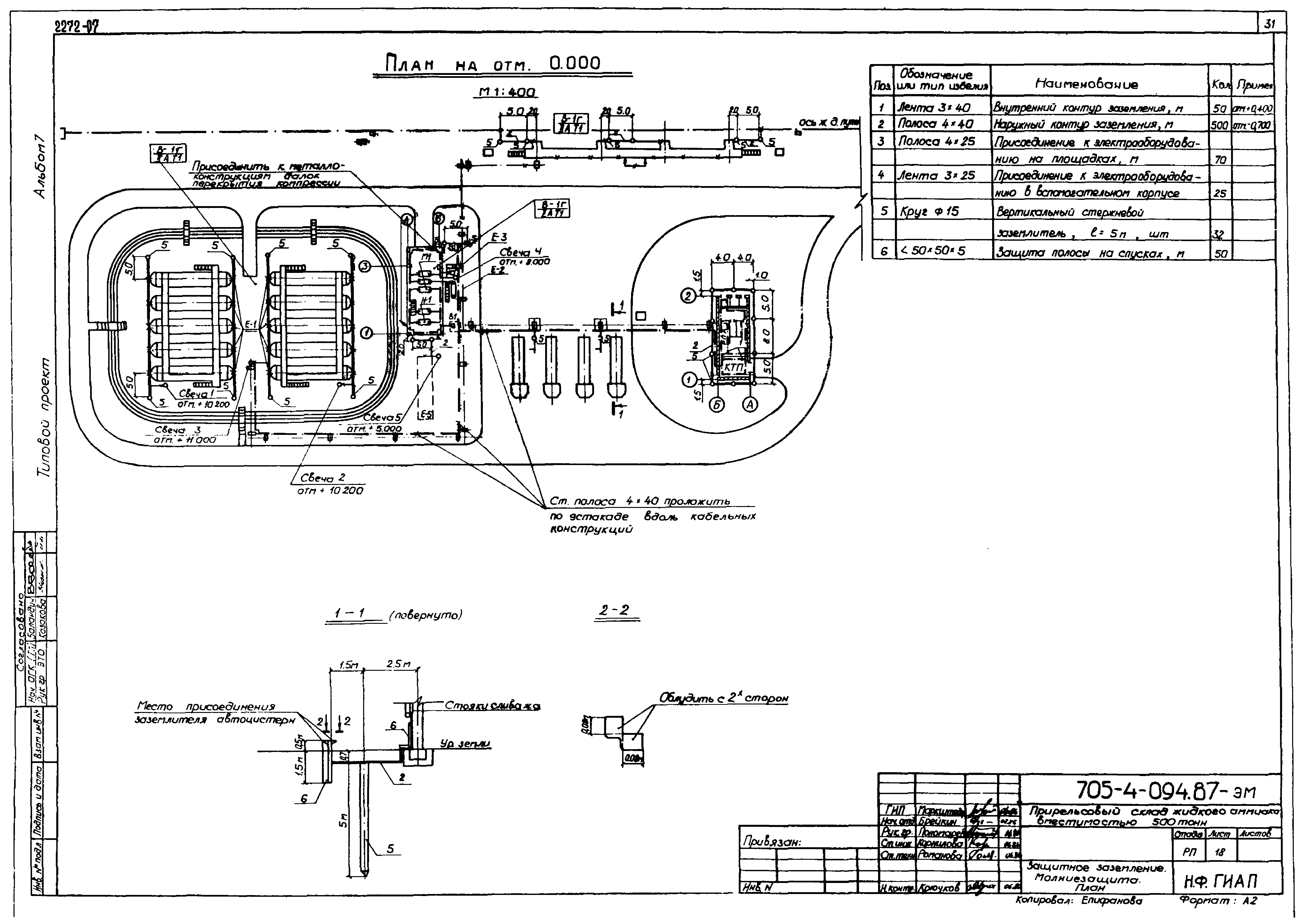
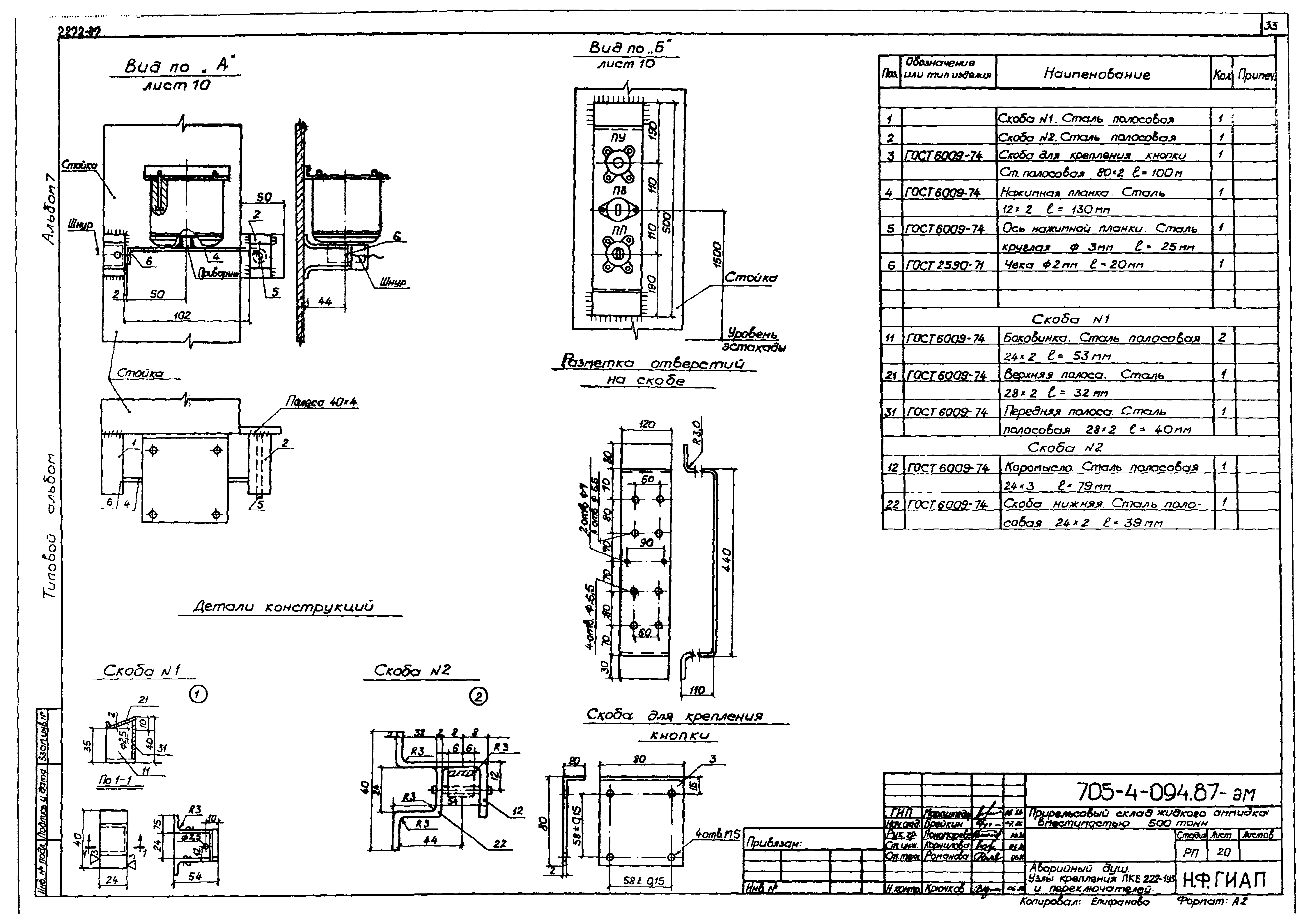
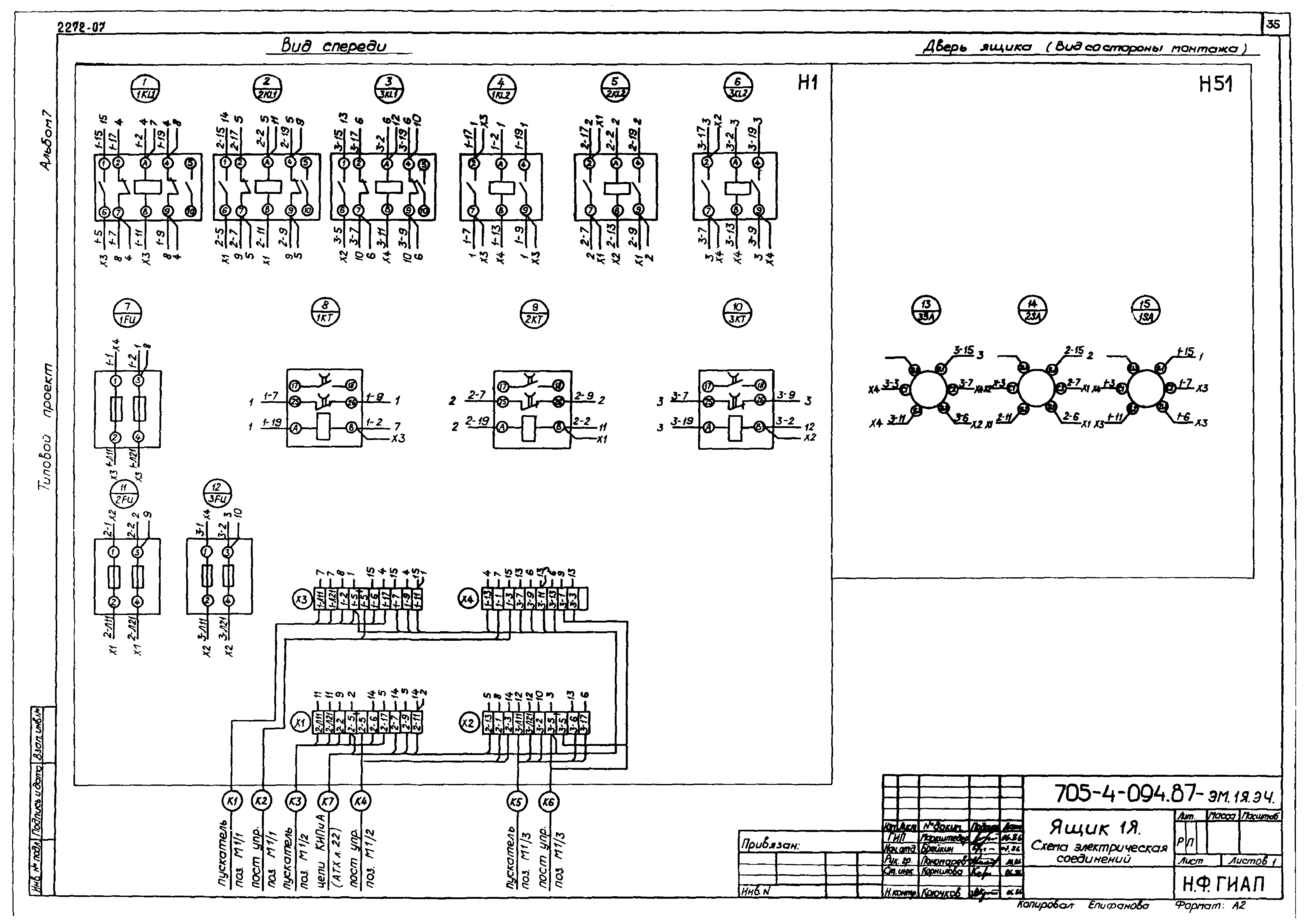
| Оглавление: | Содержание альбома Электроснабжение Общие данные Схема электрических соединений 0,4 - 0,23 кВ План расположения оборудования. Разводка кабелей Воздушный ввод 6(10) кВ Техническое задание заводу. Ящик 3Я контроля и учета. Технические данные аппаратов Ящик 3Я контроля и учета. Чертеж общего вида Ящик 3Я контроля и учета. Схема электрическая соединений Ящик 3Я контроля и учета. Таблица перечня надписей Электрическое освещение Общие данные Вспомогательный корпус. План Компрессорная. Наружные площадки. План Освещение дорог. Светофор Кронштейн для ж/б опоры Силовое электрооборудование Общие данные Кабельный журнал Принципиальная однолинейная схема сети 380/220 В Принципиальная однолинейная схема сети 380/220 В - электроотопление Вспомогательный корпус. План План кабельных трасс. Разрезы Компрессорная. Наружные площадки. План с расстановкой электрооборудования Расстановка кабельных конструкций Принципиальные схемы включения электронагревателей Принципиальные схемы управления компрессорами, насосами Принципиальные схемы управления электрозадвижками, насосом НЦС, вентагрегатом Схема подключения промклеммников задвижек Схемы управления аварийным душем Взрывоопасные зоны. План. Разрезы Защитное заземление. Молниезащита. План Расчет однофазных токов короткого замыкания Аварийный душ. Узлы крепления ПКЕ222-1У3 и переключателей Техническое задание заводу. Ящик 1Я. Технические данные аппаратов Ящик 1Я. Чертеж общего вида Ящик 1Я. Таблица перечня надписей Ящик 1Я. Схема электрическая соединений Техническое задание заводу. Ящик 2Я. Технические данные аппаратов Ящик 2Я. Чертеж общего вида Ящик 2Я. Таблица перечня надписей Ящик 2Я. Схема электрическая соединений Связь и сигнализация Общие данные. Спецификация. План расположения сетей |
| Разработан: | Новомосковский ГИАП |
| Утверждён: | 05.10.1985 Минудобрений СССР (USSR Minudobreniy 25-101-А) |






































