Скачать Типовые проектные решения 901-07-9.84 Альбом V. Архитектурно-строительная частьДата актуализации: 01.01.2021
|
| Обозначение: | Типовые проектные решения 901-07-9.84 |
| Обозначение англ: | 901-07-9.84 |
| Статус: | справочные материалы, мп, тпр |
| Название рус.: | Альбом V. Архитектурно-строительная часть |
| Дата добавления в базу: | 01.10.2014 |
| Дата актуализации: | 01.01.2021 |
| Дата введения: | 10.09.1984 |
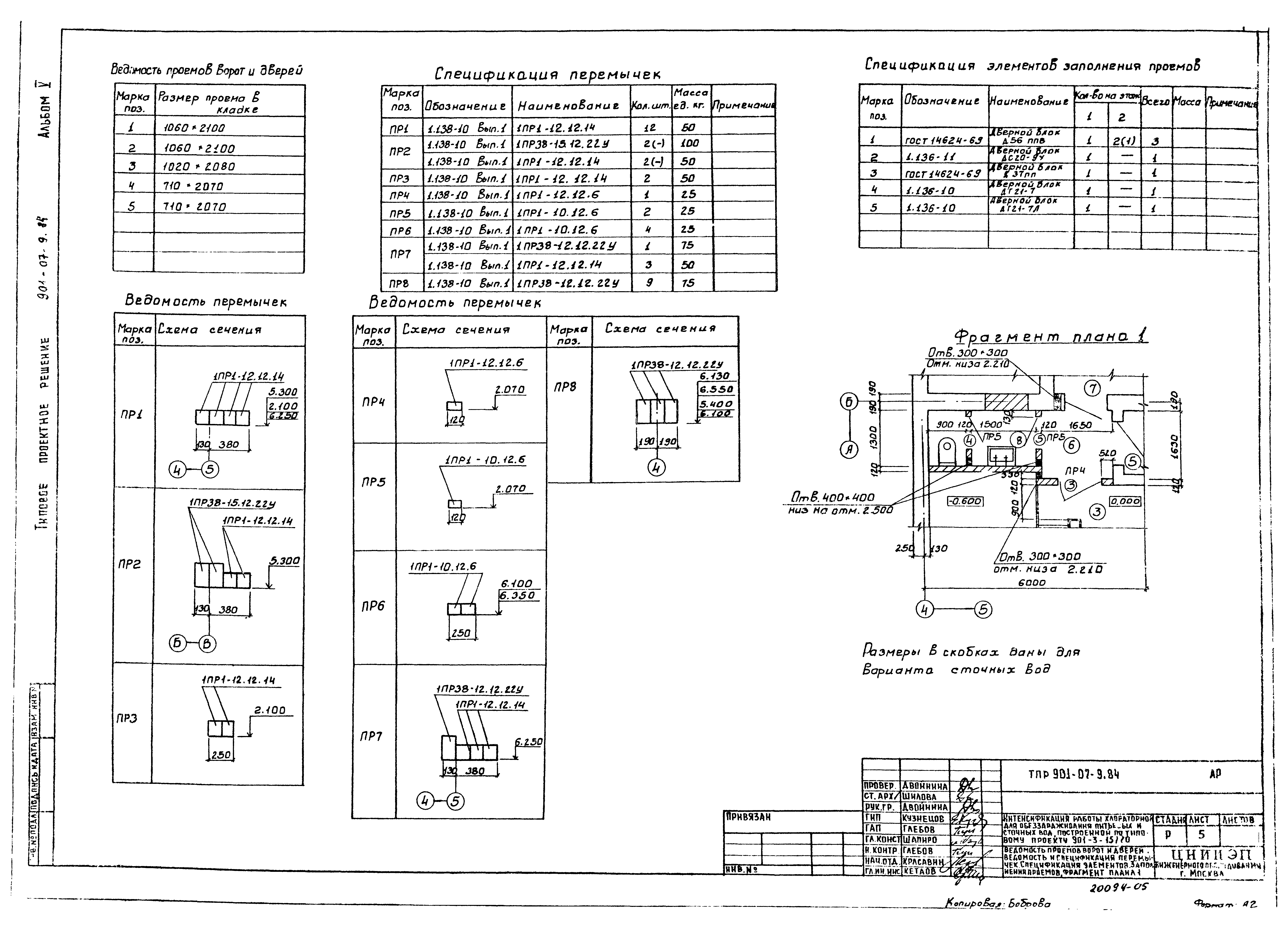
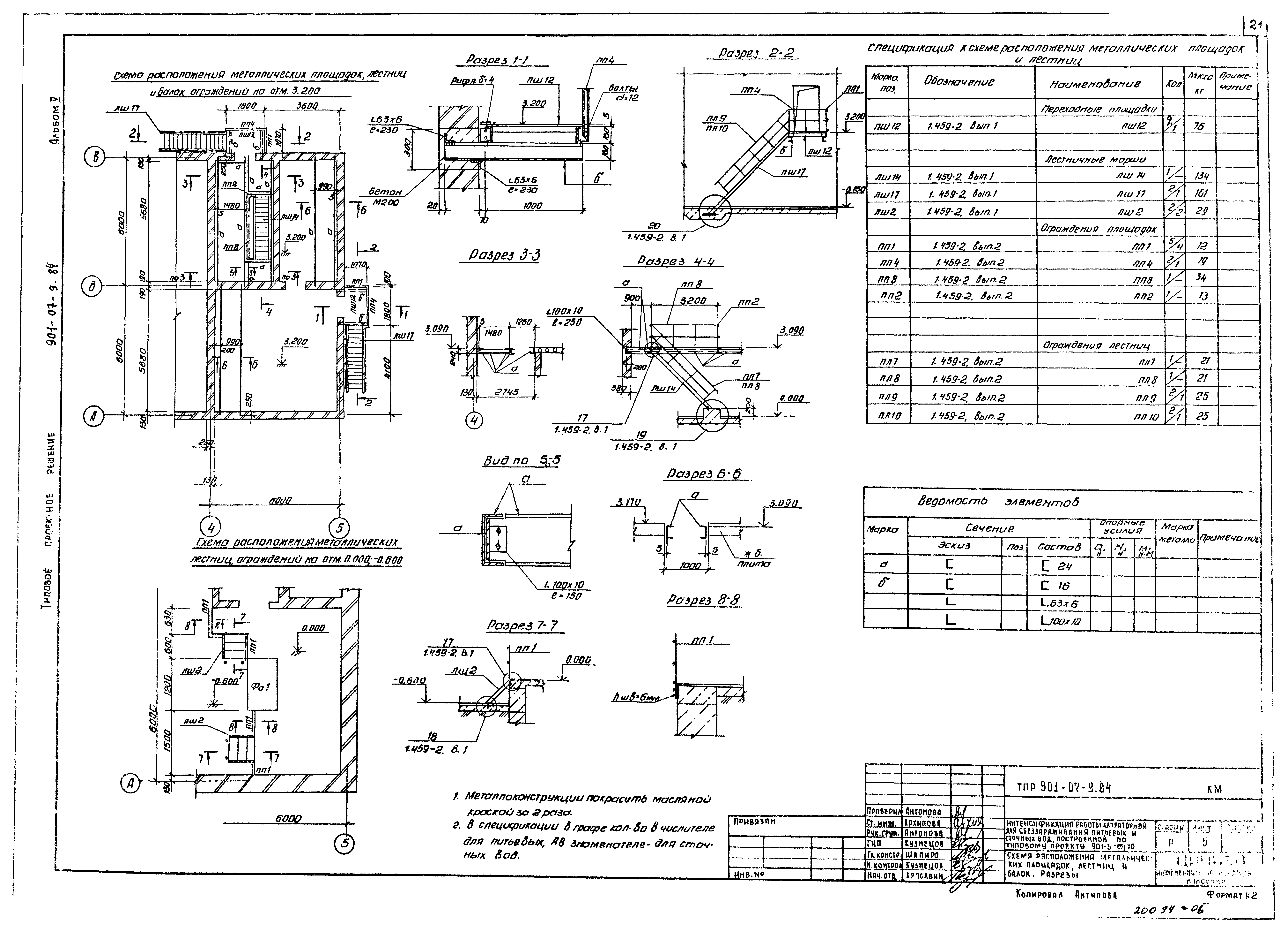
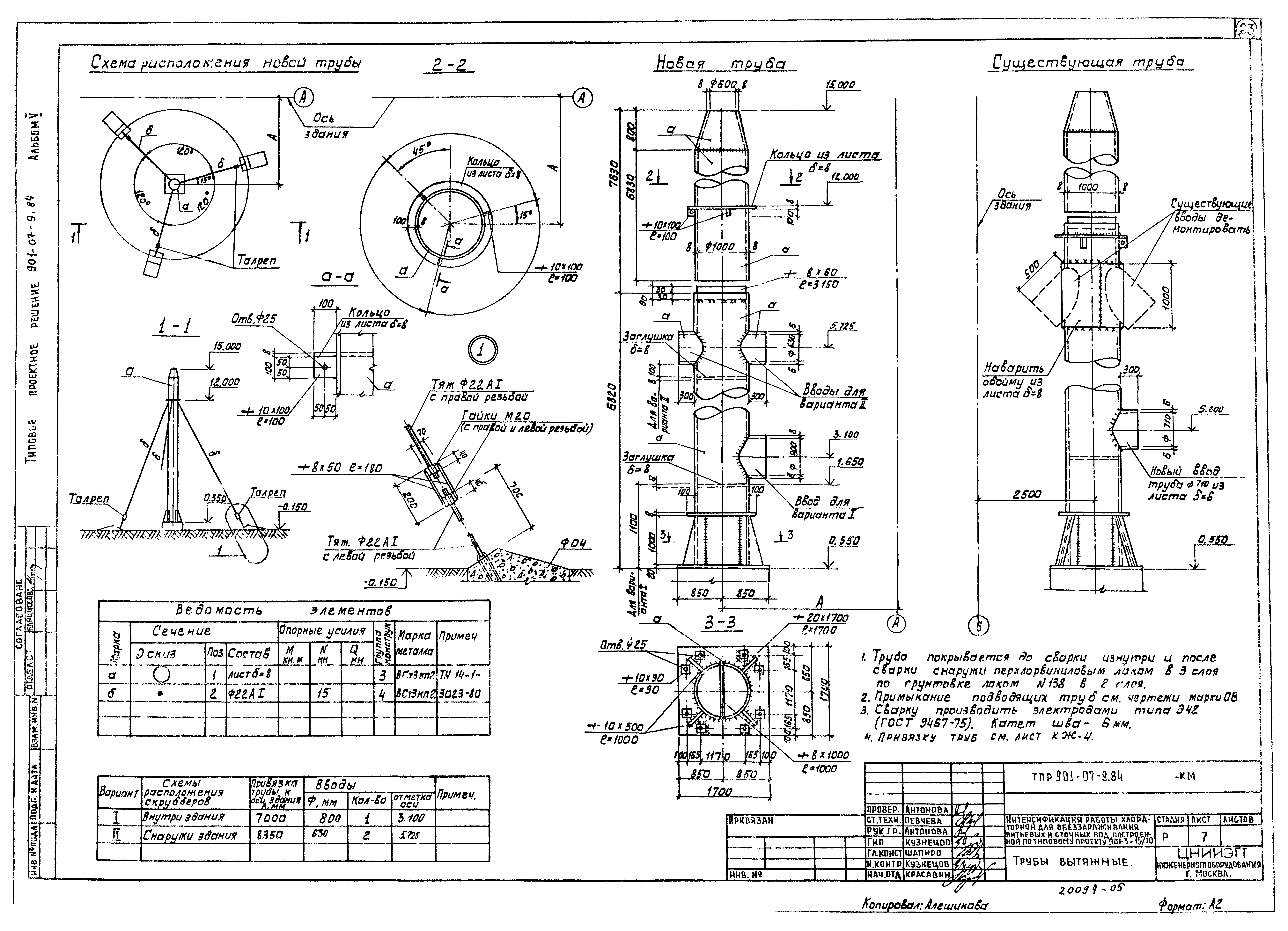
| Оглавление: | Содержание альбома Архитектурные решения Общие данные План на отм. 0.000 и 3.000 Разрезы 1-1, 2-2, 3-3 Фасады 1 - 5; 5 - 1; А - В; В - А. Деталь 1 Ведомость проемов ворот и дверей. Ведомость и спецификация перемычек. Спецификация элементов заполнения проемов. Фрагмент плана 1 Планы полов и кровли. Ведомость отделки помещений Конструкции железобетонные Общие данные Схема расположения подпольного хозяйства в осях 1 - 4. Фундаменты под оборудование Схема расположения подпольного хозяйства в осях 4 - 5. Фундаменты под оборудование Схемы расположения скрубберов, вытяжных труб и фундаментов под них Резервуар нейтрализующего раствора Скруббер Схема расположения плит перекрытия на отм. 3.200. Разрезы Венткамера приточная на отм. 3.200 Рама металлическая (МН1, МН2) Конструкции металлические Общие данные. Техническая спецификация металла Техническая спецификация металла на типовые конструкции Ведомость металлоконструкций по видам профилей Схема расположения балок, металлических площадок и лестниц. Разрезы Схема расположения подвесных путей. Узлы 1 - 3. Разрезы Трубы вытяжные |
| Разработан: | ЦНИИЭП |
| Утверждён: | 14.02.1984 Госгражданстрой (Gosgrazhdanstroy 48) |
























