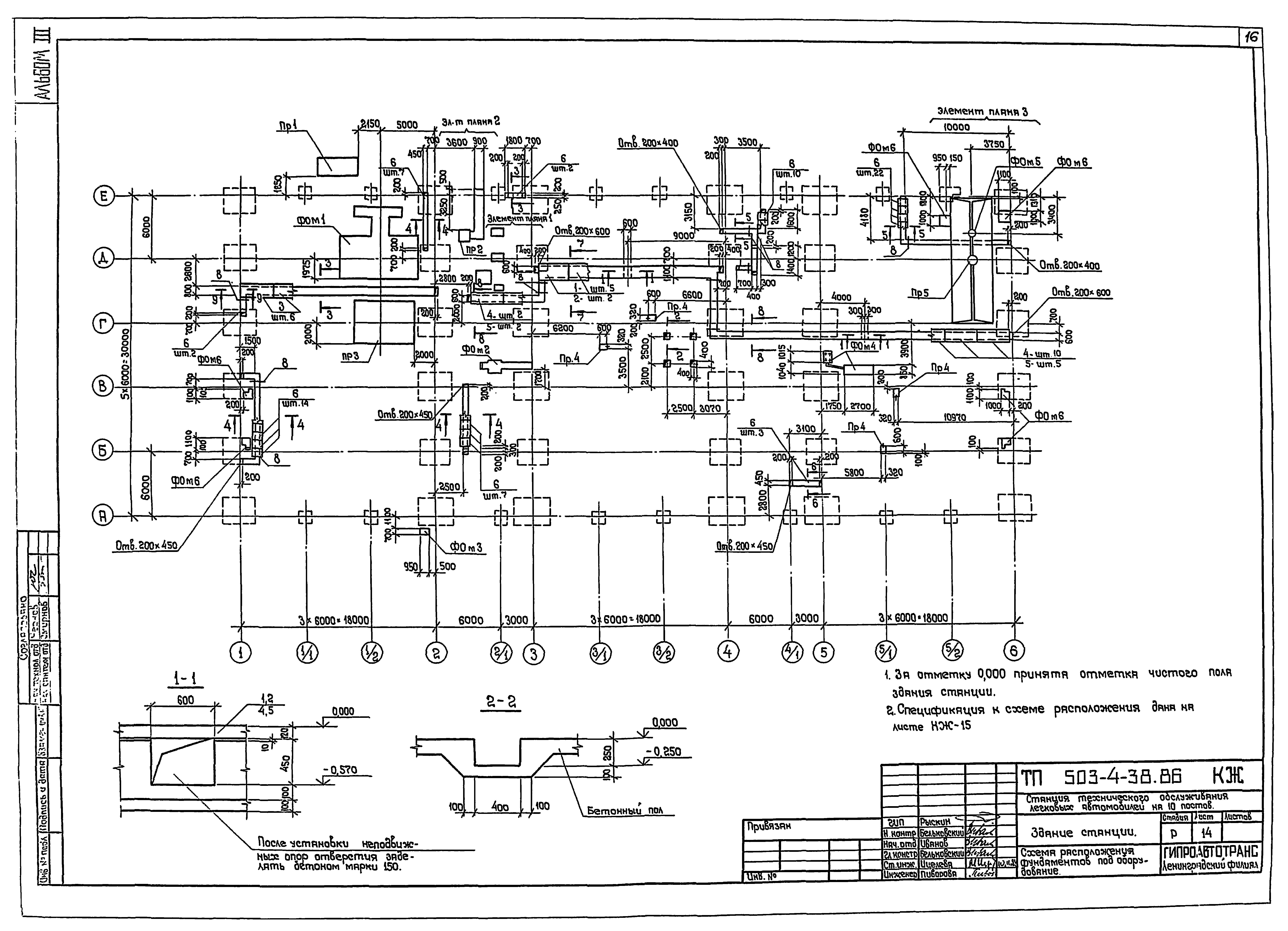
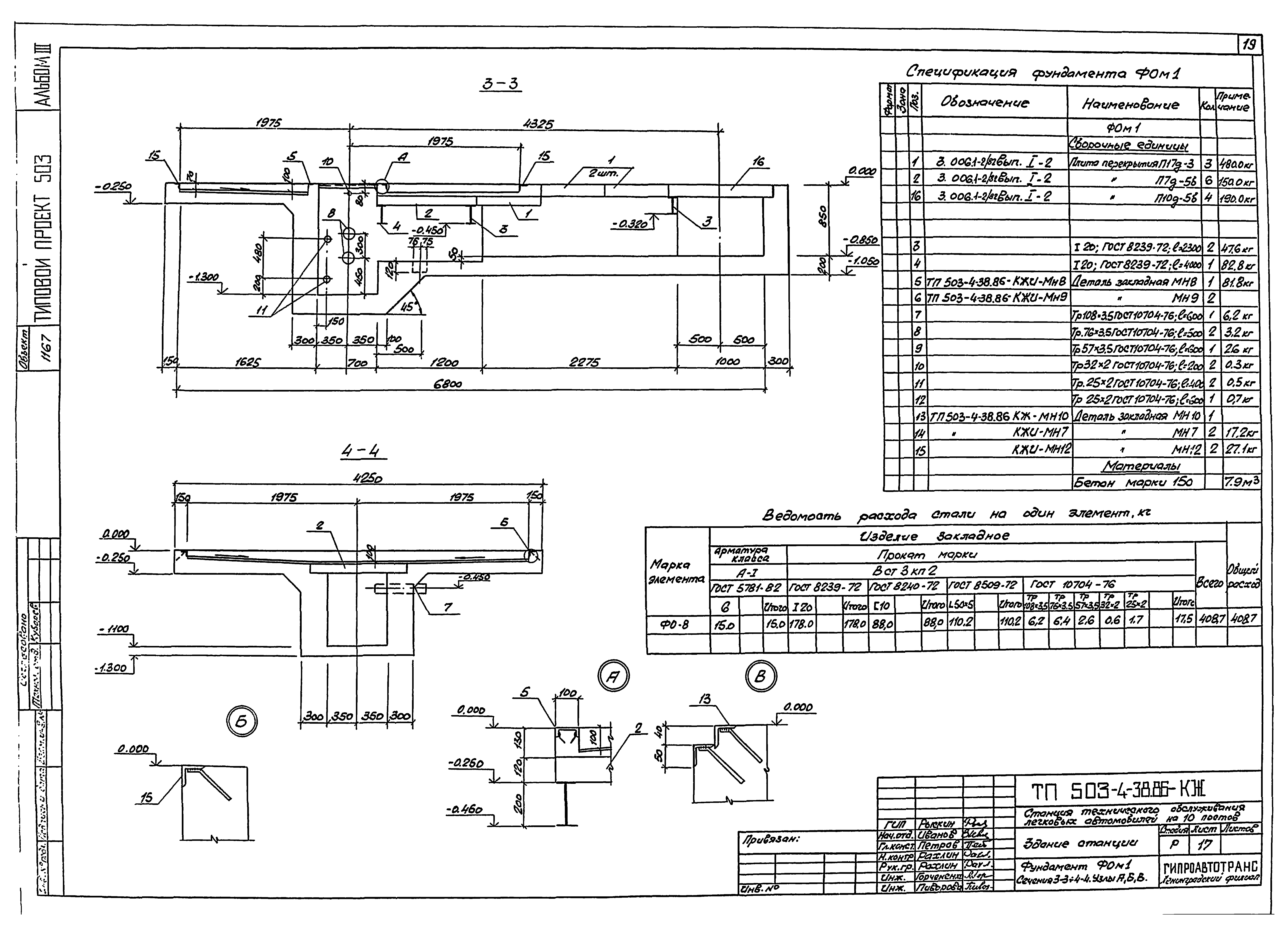
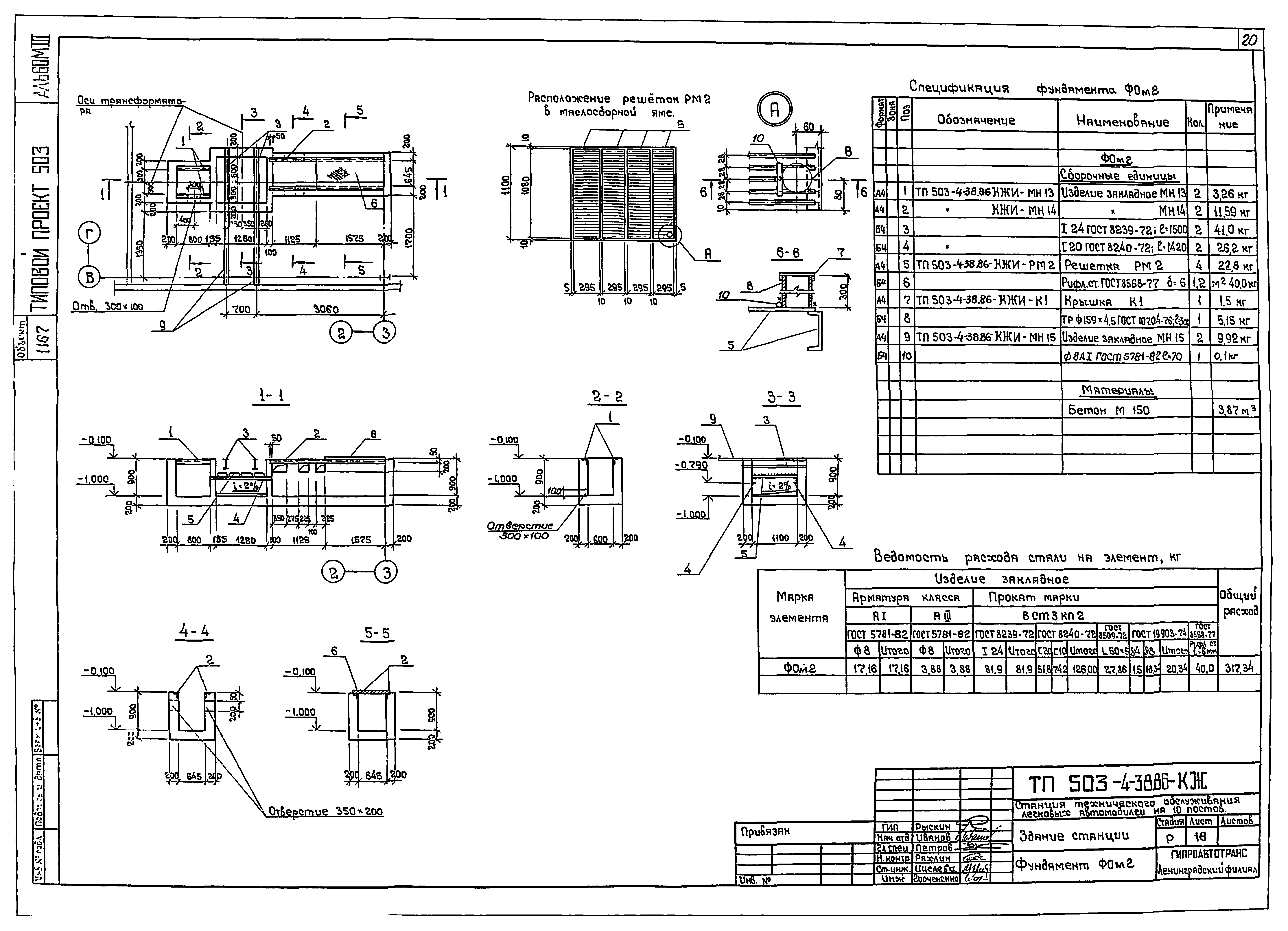
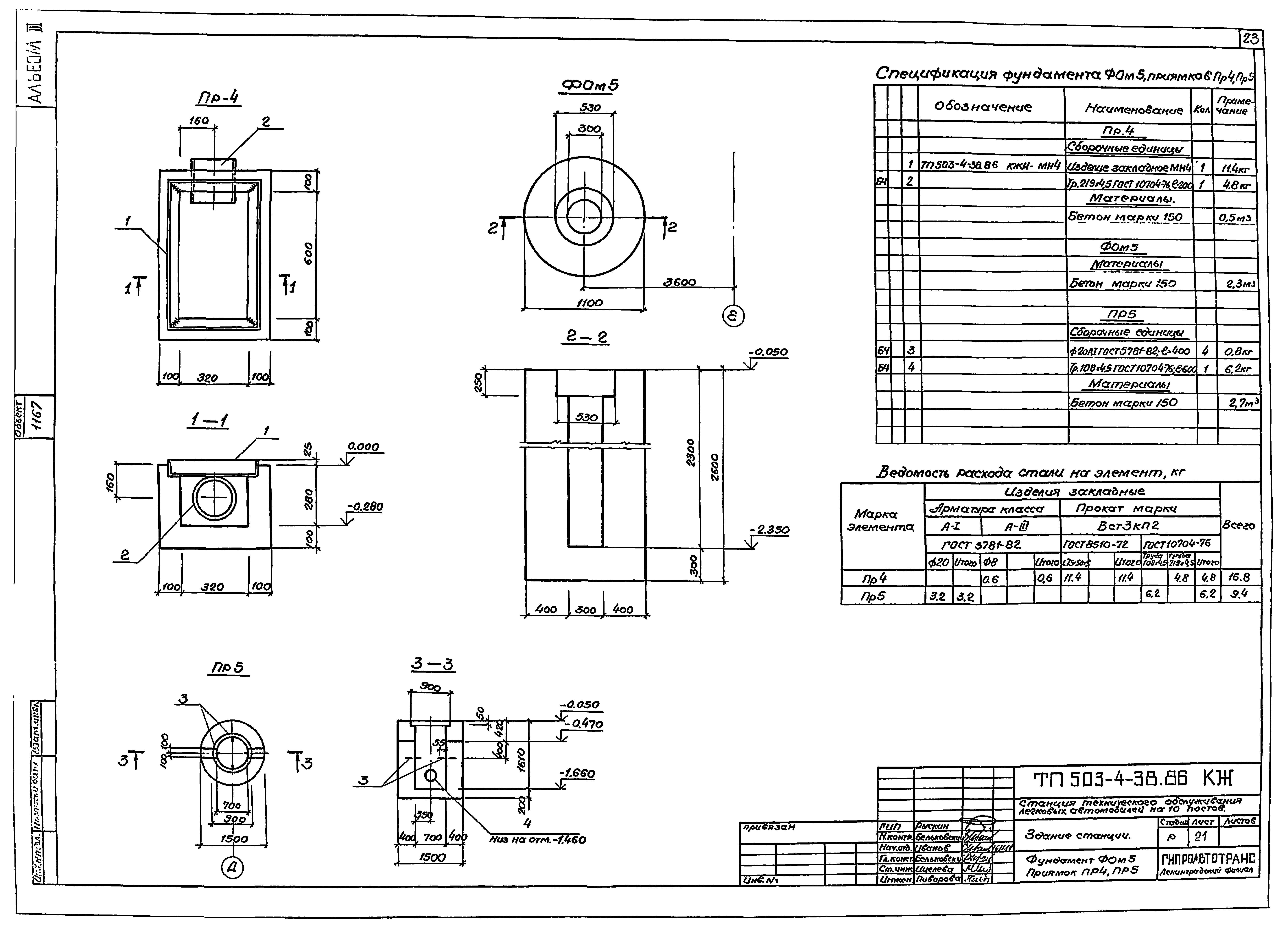
Скачать Типовой проект 503-4-38.86 Альбом III. Конструкции железобетонныеДата актуализации: 01.01.2021
|
| Обозначение: | Типовой проект 503-4-38.86 |
| Обозначение англ: | 503-4-38.86 |
| Статус: | действует |
| Название рус.: | Альбом III. Конструкции железобетонные |
| Дата добавления в базу: | 01.10.2014 |
| Дата актуализации: | 01.01.2021 |
| Дата введения: | 19.08.1985 |
| Разработан: | Гипроавтотранс |
| Утверждён: | 19.08.1985 Минавтопром СССР (USSR Minavtoprom 10) |























