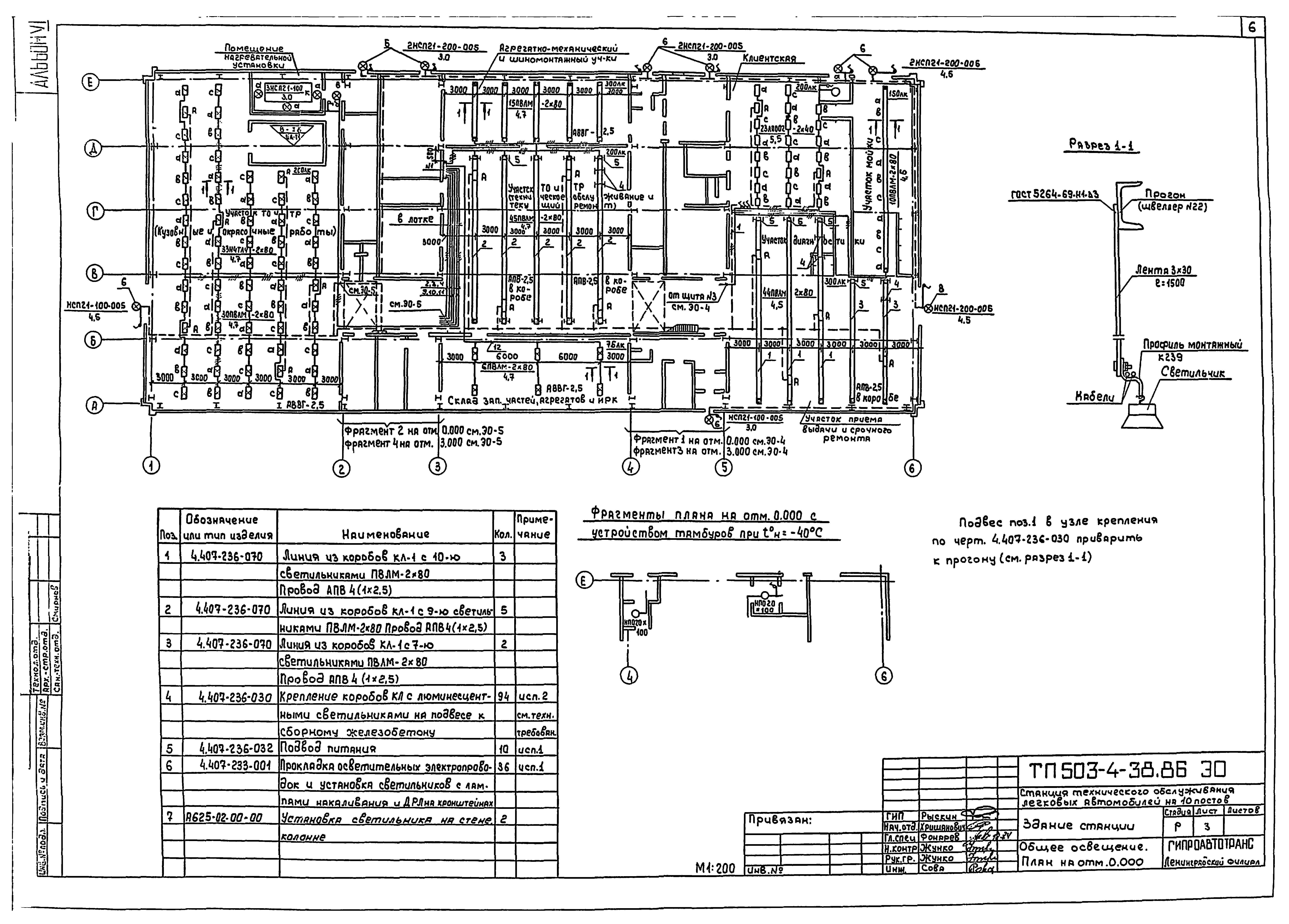
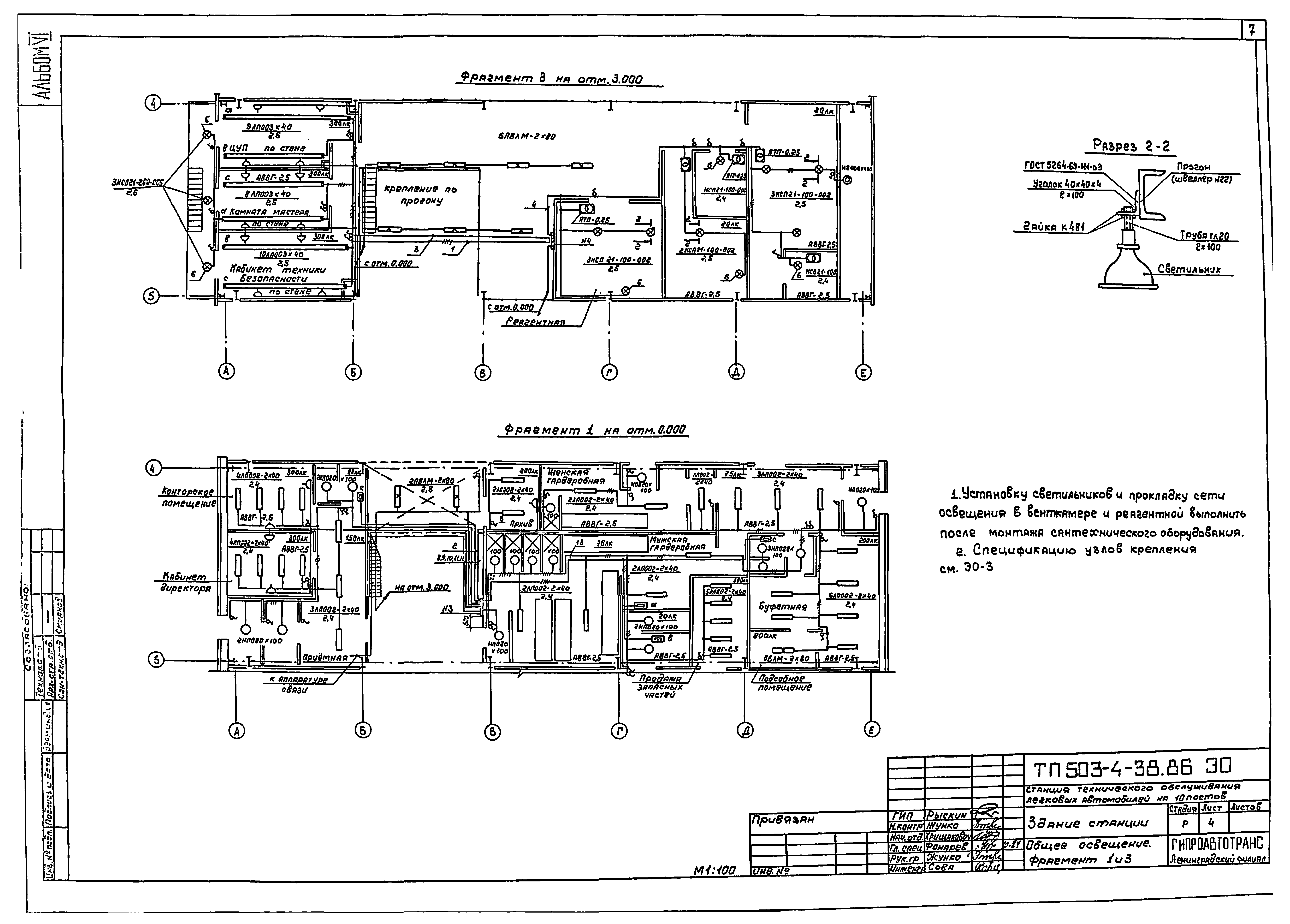
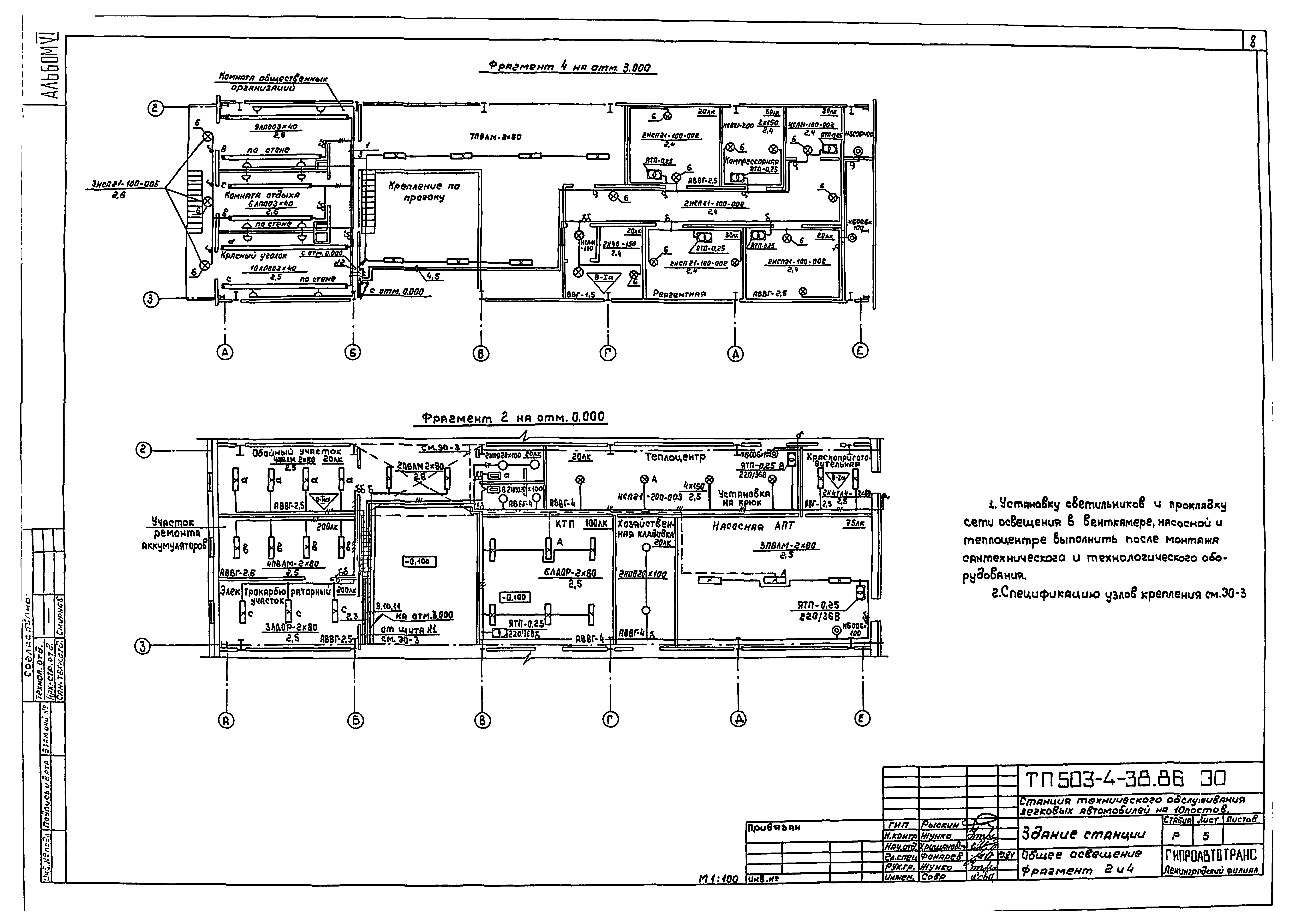
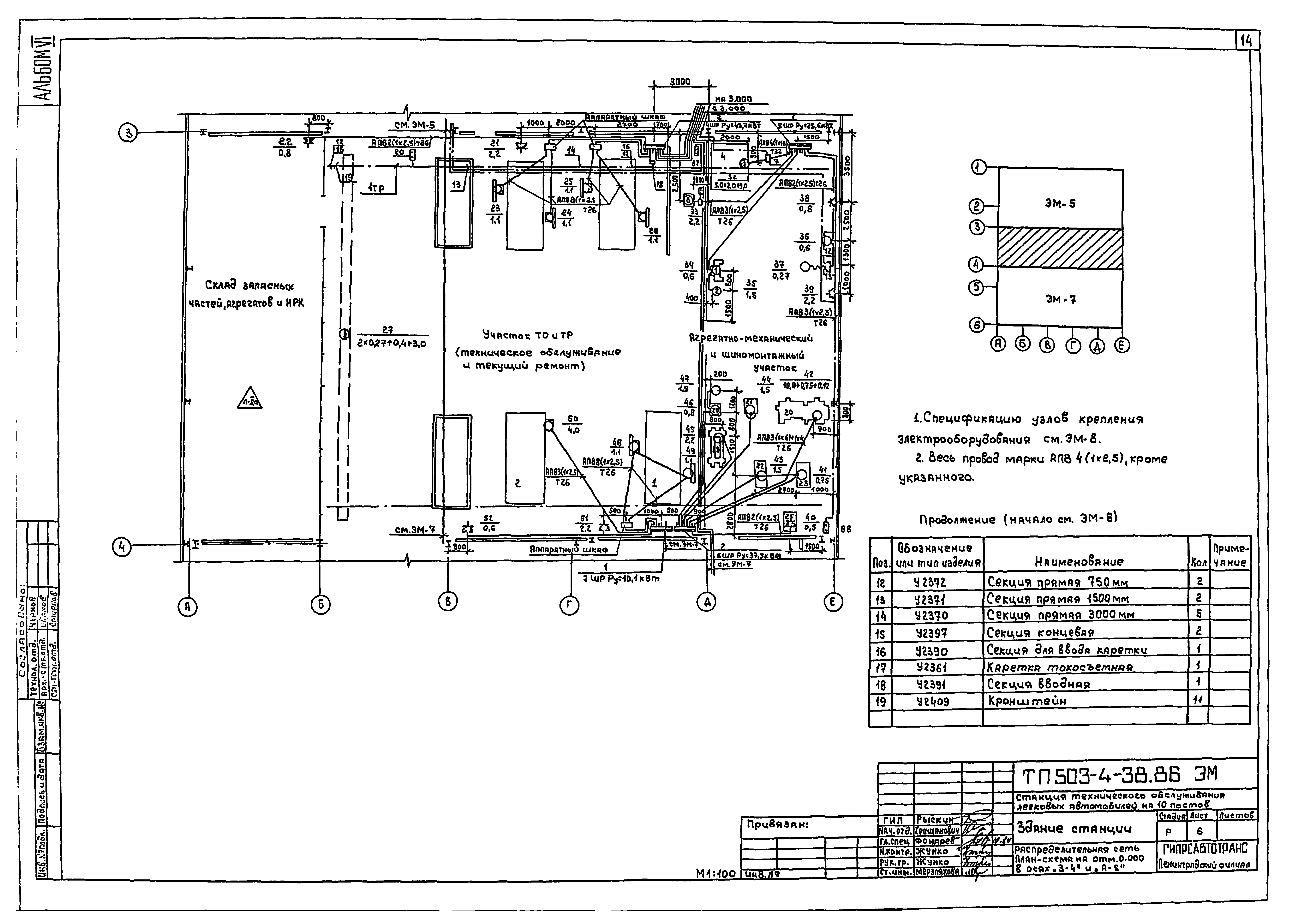
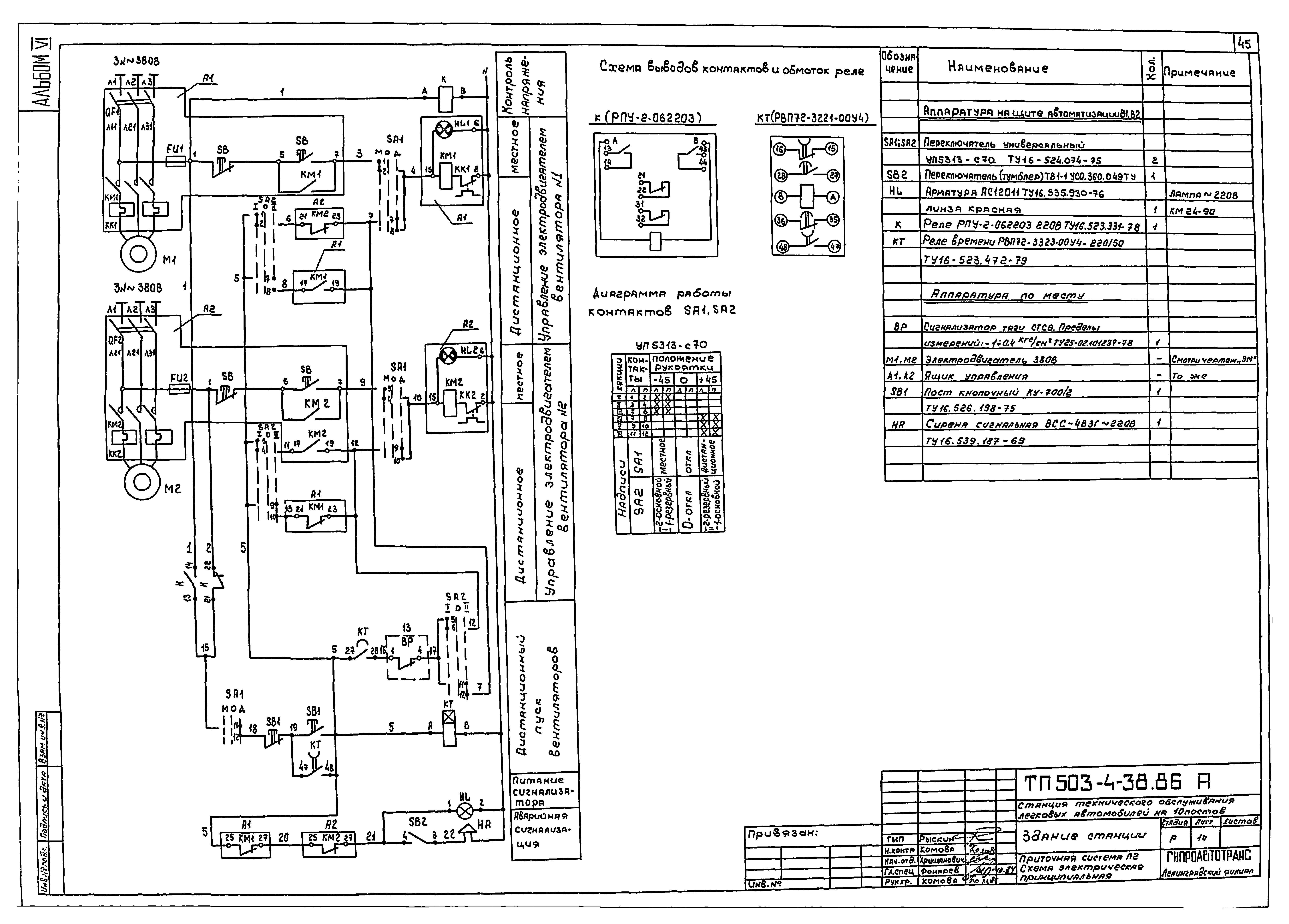
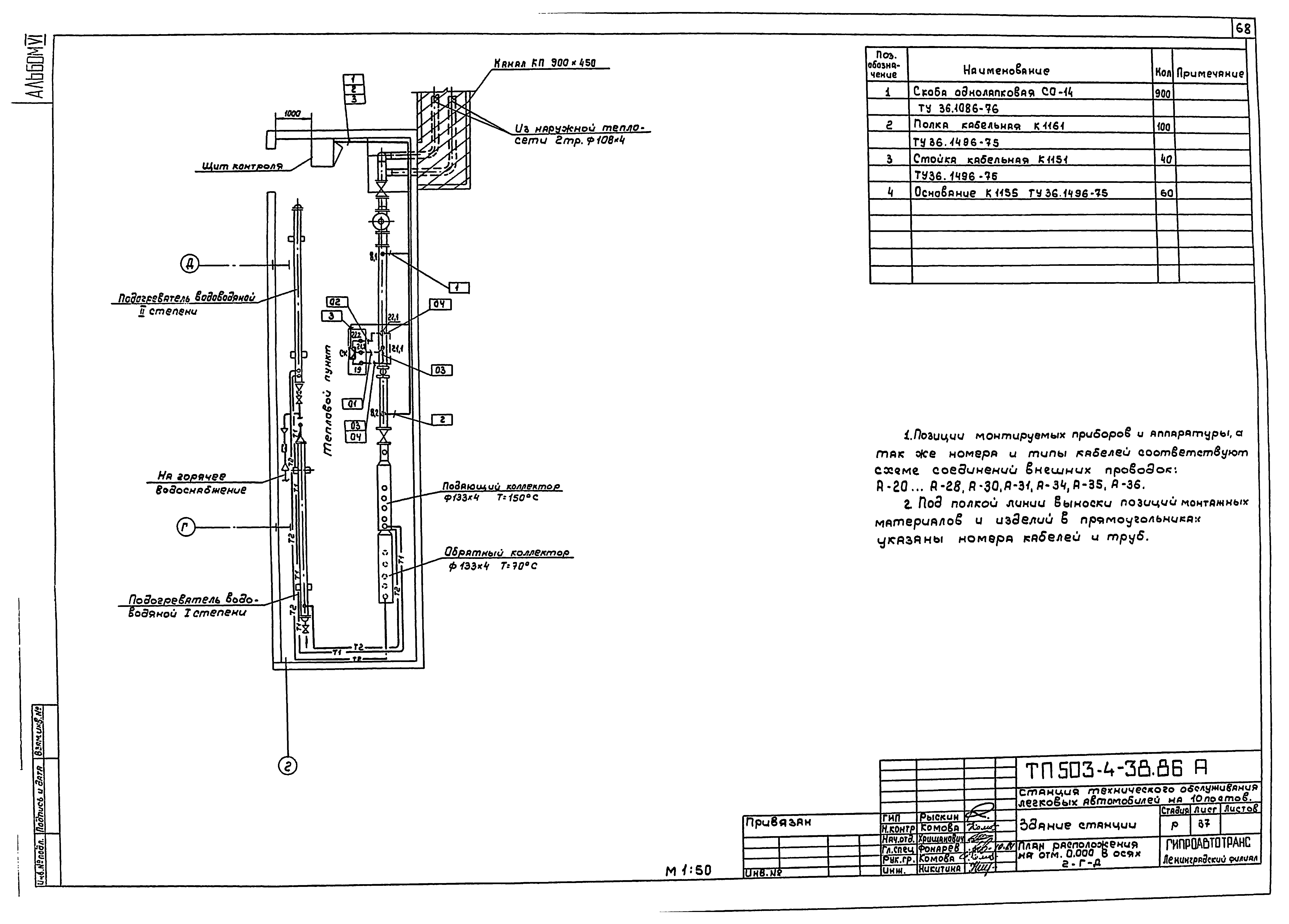
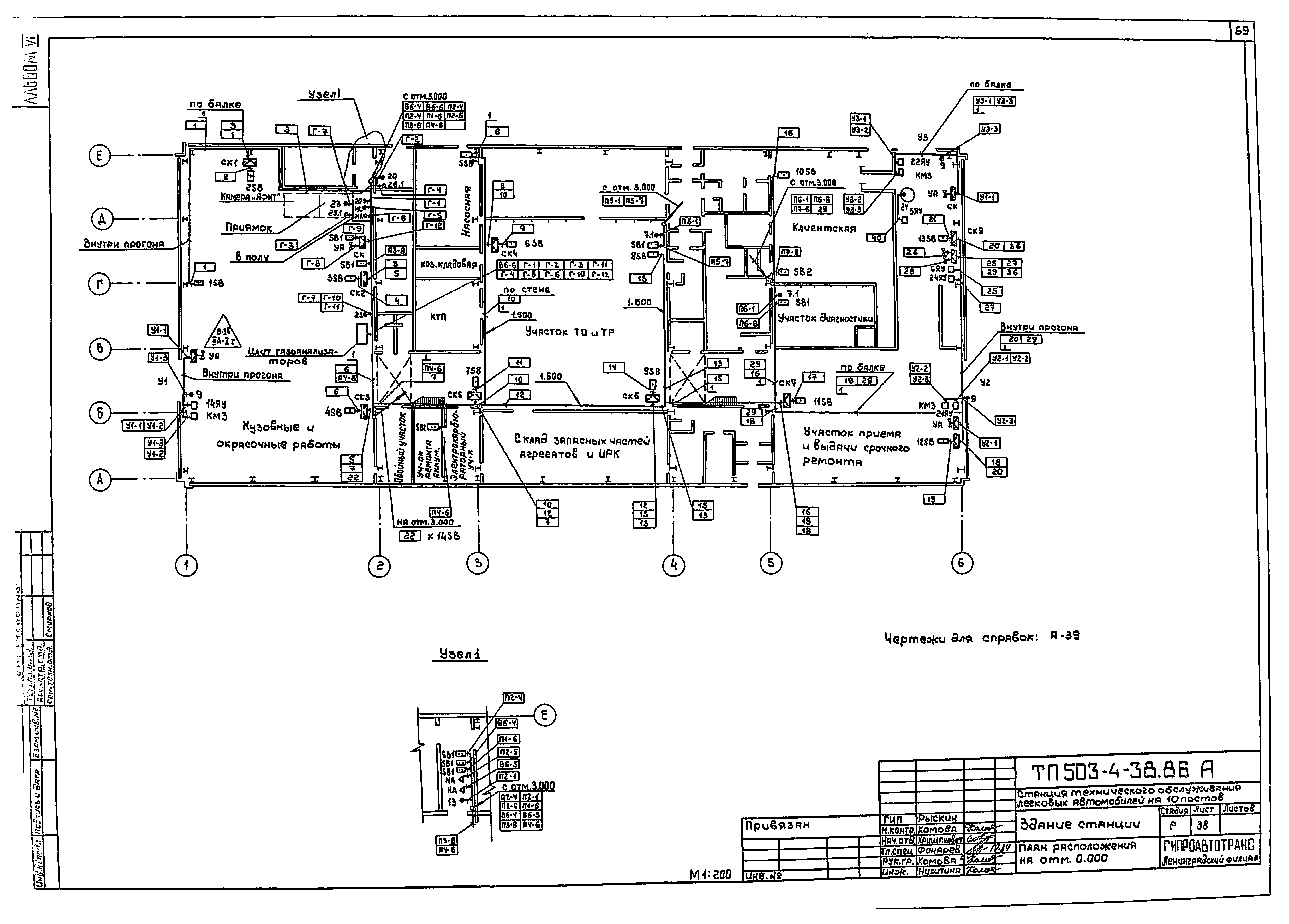
Скачать Типовой проект 503-4-38.86 Альбом VI. Электрическое освещение. Силовое электрооборудование. Связь и сигнализация. АвтоматизацияДата актуализации: 01.01.2021 Типовой проект 503-4-38.86
Альбом VI. Электрическое освещение. Силовое электрооборудование. Связь и сигнализация. Автоматизация| Обозначение: | Типовой проект 503-4-38.86 | | Обозначение англ: | 503-4-38.86 | | Статус: | действует | | Название рус.: | Альбом VI. Электрическое освещение. Силовое электрооборудование. Связь и сигнализация. Автоматизация | | Дата добавления в базу: | 01.10.2014 | | Дата актуализации: | 01.01.2021 | | Дата введения: | 19.08.1985 | | Разработан: | Гипроавтотранс
| | Утверждён: | 19.08.1985 Минавтопром СССР (USSR Minavtoprom 10)
|
                                                                    
|