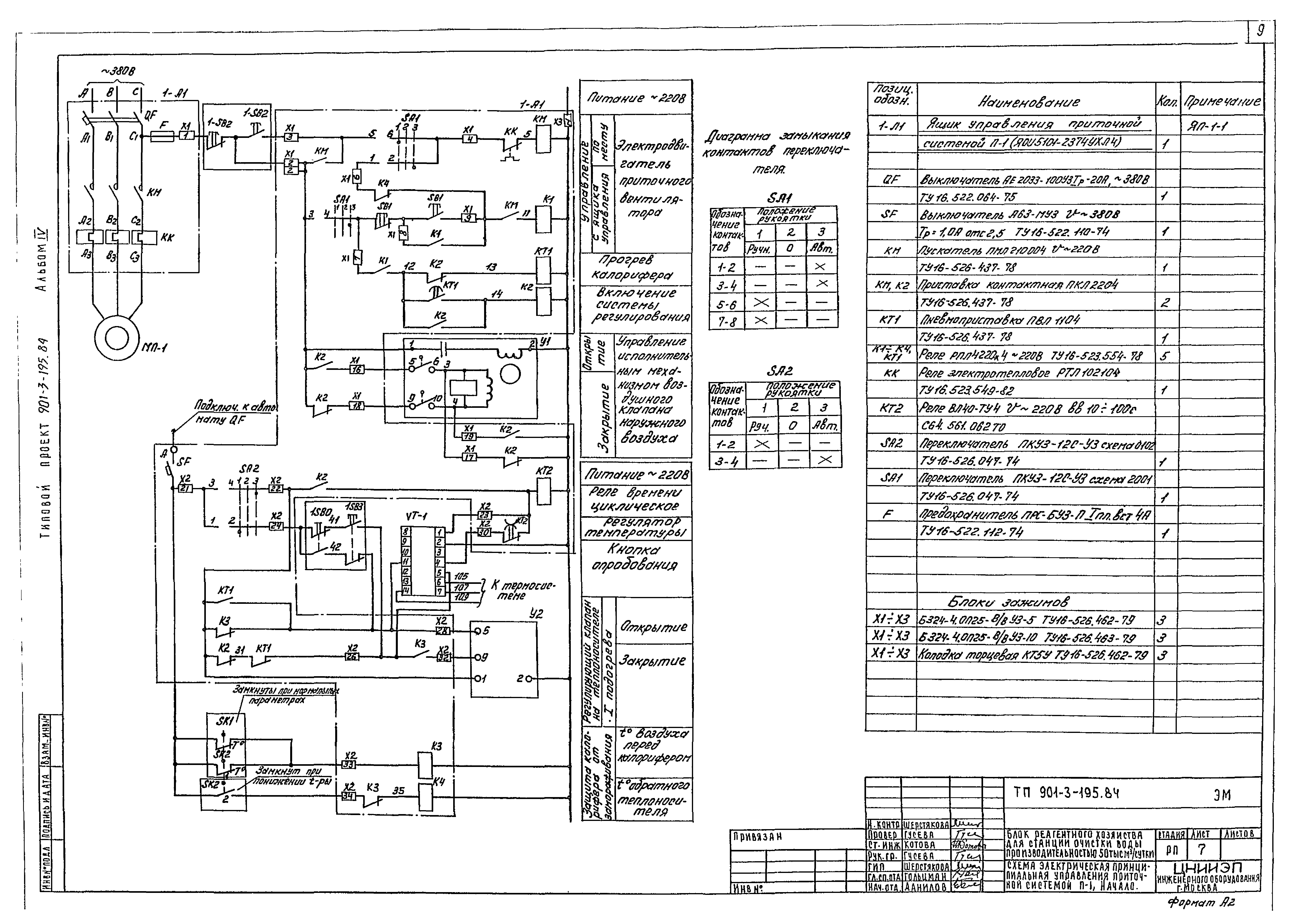
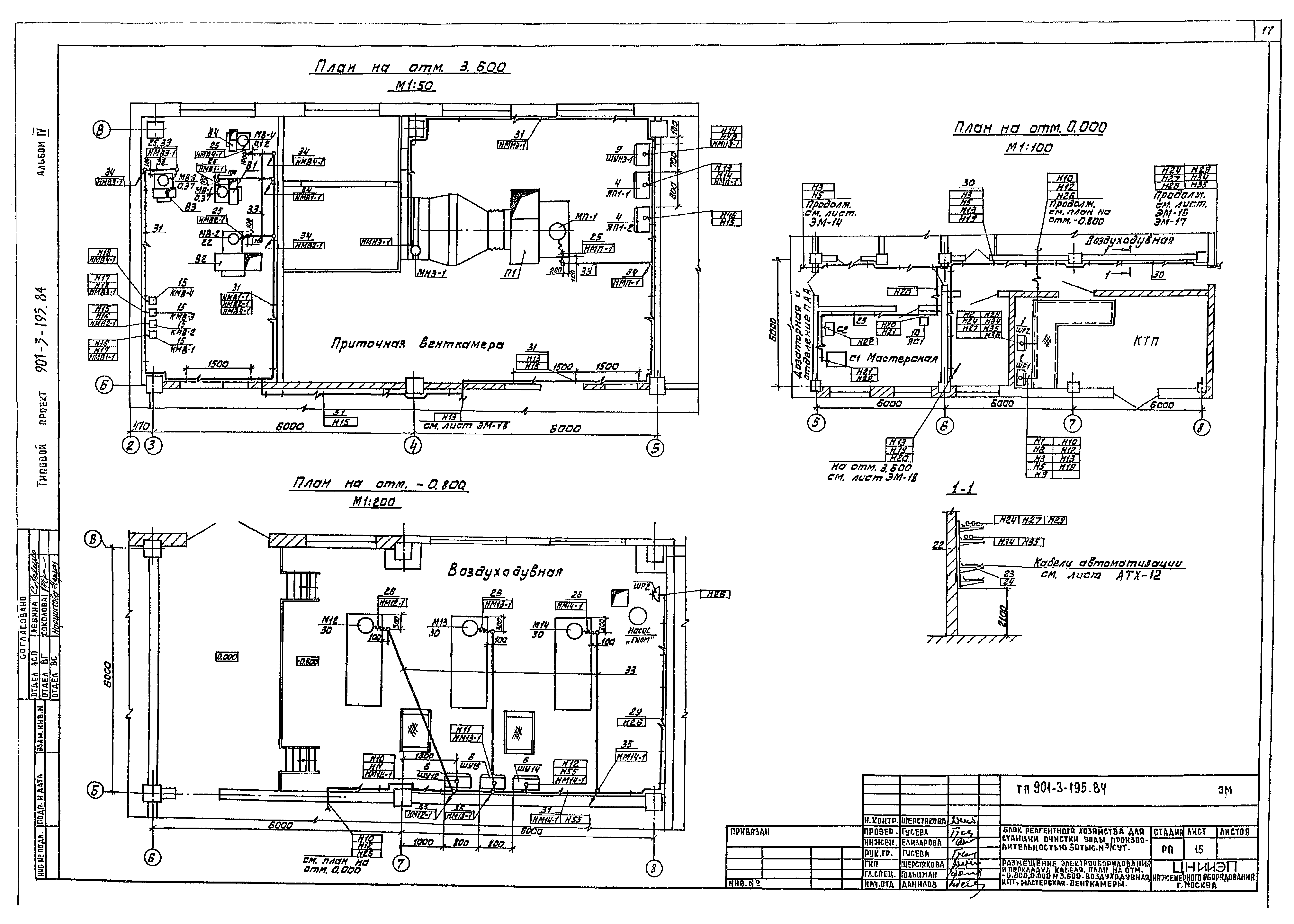
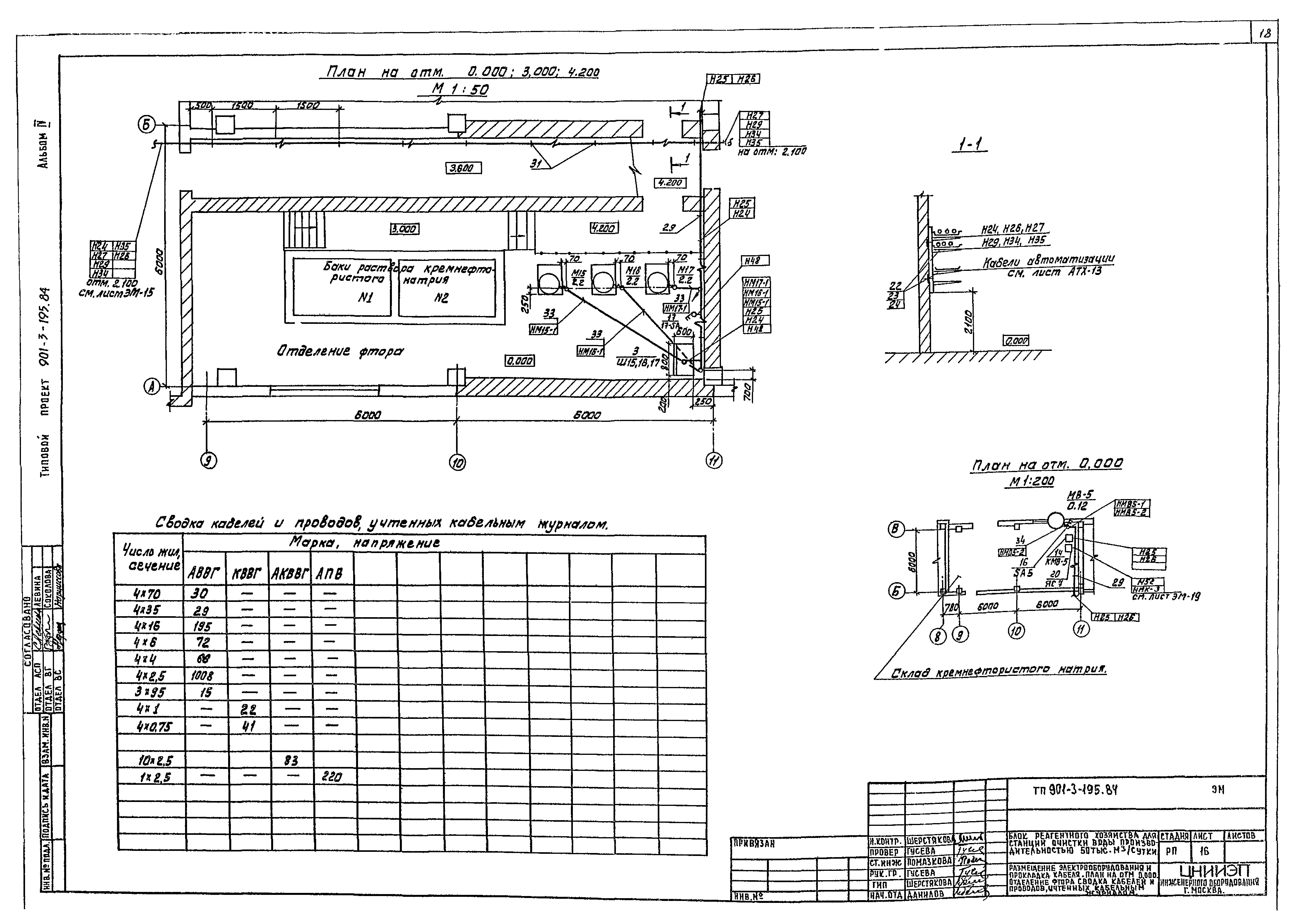
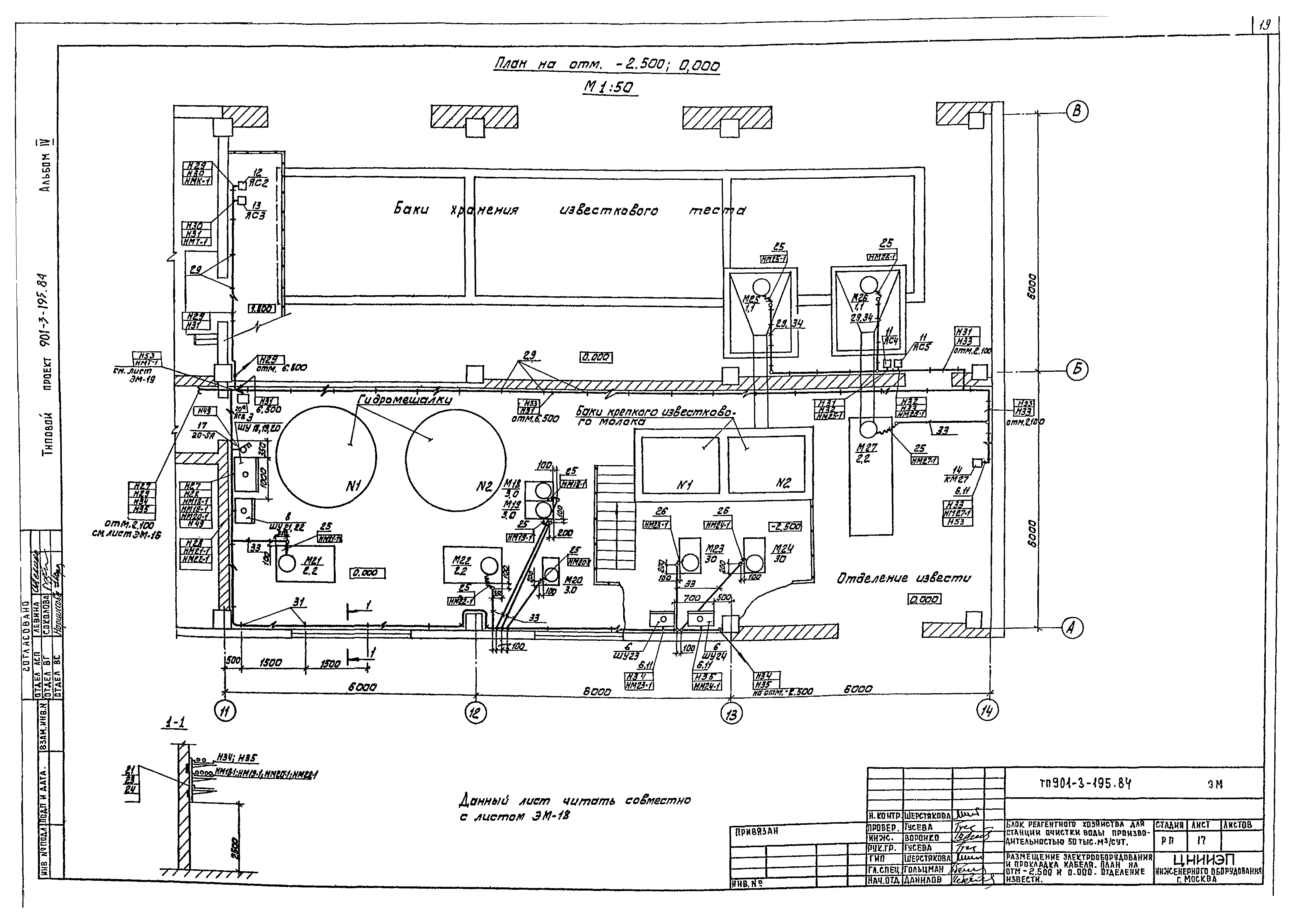
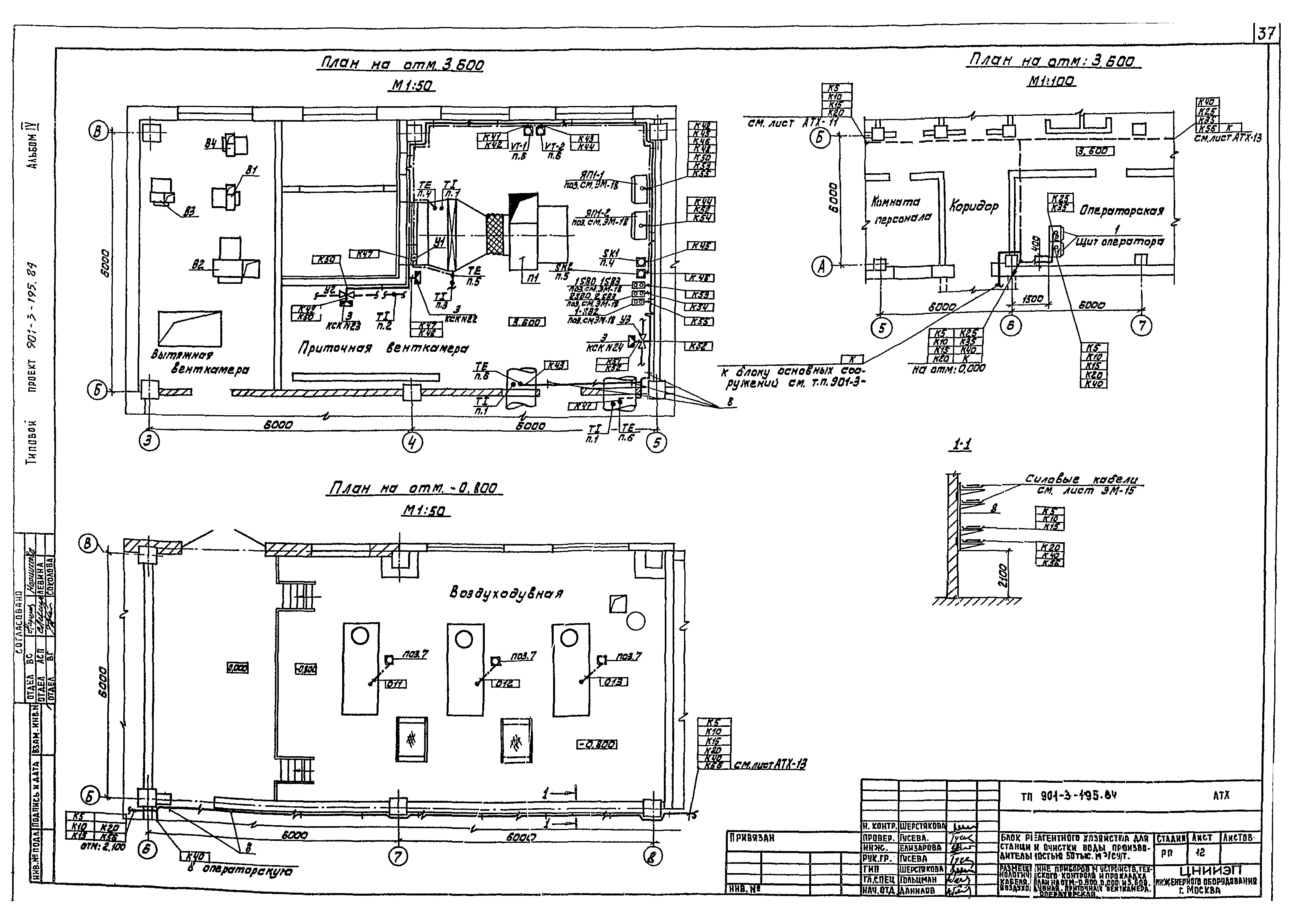
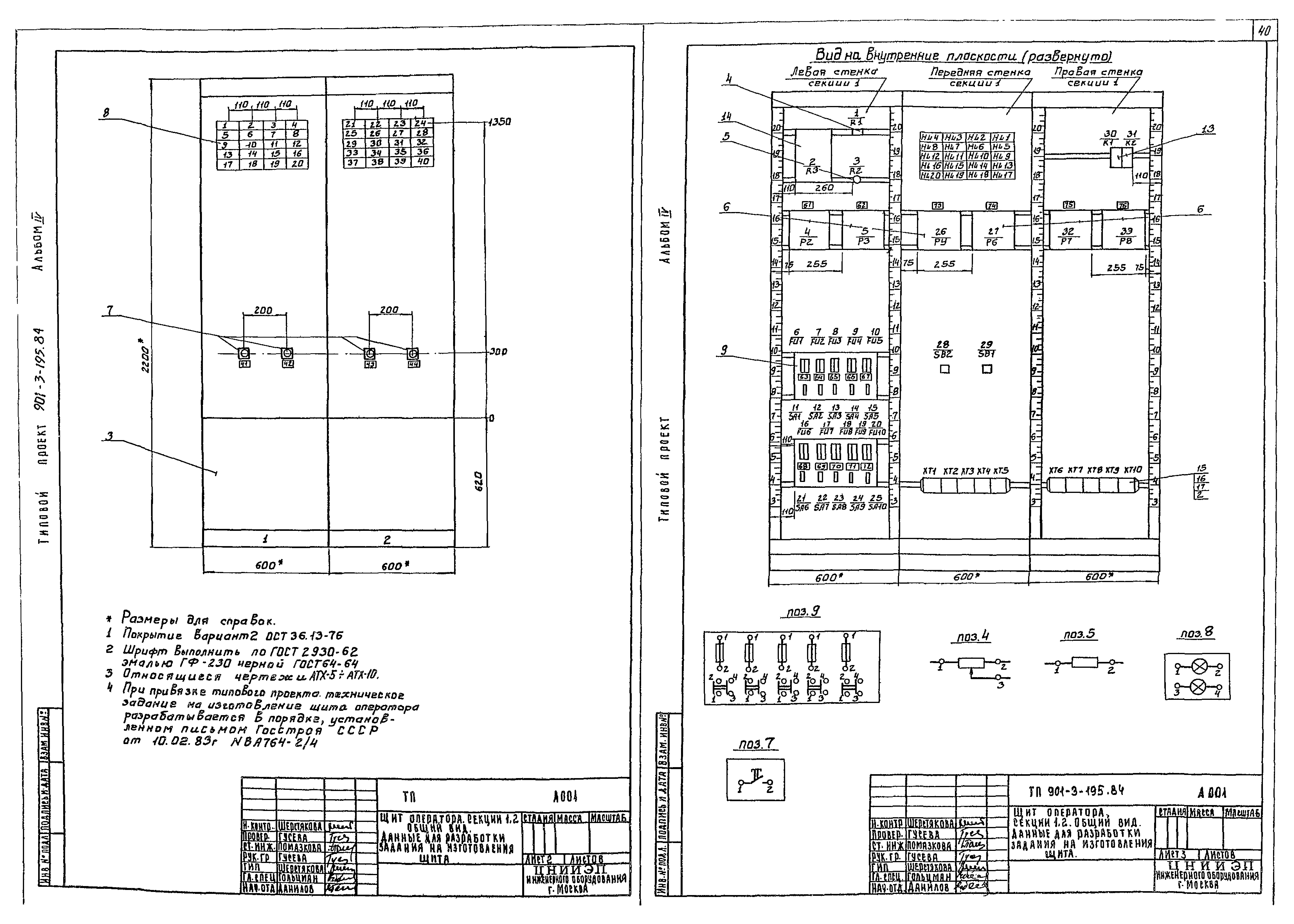
Скачать Типовой проект 901-3-195.84 Альбом IV. Электротехническая часть, автоматизация технологического процесса, электрическое освещение, связь и сигнализацияДата актуализации: 01.01.2021 Типовой проект 901-3-195.84
Альбом IV. Электротехническая часть, автоматизация технологического процесса, электрическое освещение, связь и сигнализация| Обозначение: | Типовой проект 901-3-195.84 | | Обозначение англ: | 901-3-195.84 | | Статус: | не определен законодательством | | Название рус.: | Альбом IV. Электротехническая часть, автоматизация технологического процесса, электрическое освещение, связь и сигнализация | | Дата добавления в базу: | 01.10.2014 | | Дата актуализации: | 01.01.2021 | | Дата введения: | 28.04.1984 | | Дата окончания срока действия: | 30.06.2003 | | Разработан: | ЦНИИЭП
| | Утверждён: | 31.01.1984 Госгражданстрой (Gosgrazhdanstroy 30)
|
                                             
|