Скачать Типовой проект 903-1-23/71 Альбом III. Узловые чертежи. Тип 1, 2, 3Дата актуализации: 01.01.2021
|
| Обозначение: | Типовой проект 903-1-23/71 |
| Обозначение англ: | 903-1-23/71 |
| Статус: | отменен |
| Название рус.: | Альбом III. Узловые чертежи. Тип 1, 2, 3 |
| Дата добавления в базу: | 01.10.2014 |
| Дата актуализации: | 01.01.2021 |
| Дата введения: | 01.03.1973 |
| Дата окончания срока действия: | 01.03.1983 |
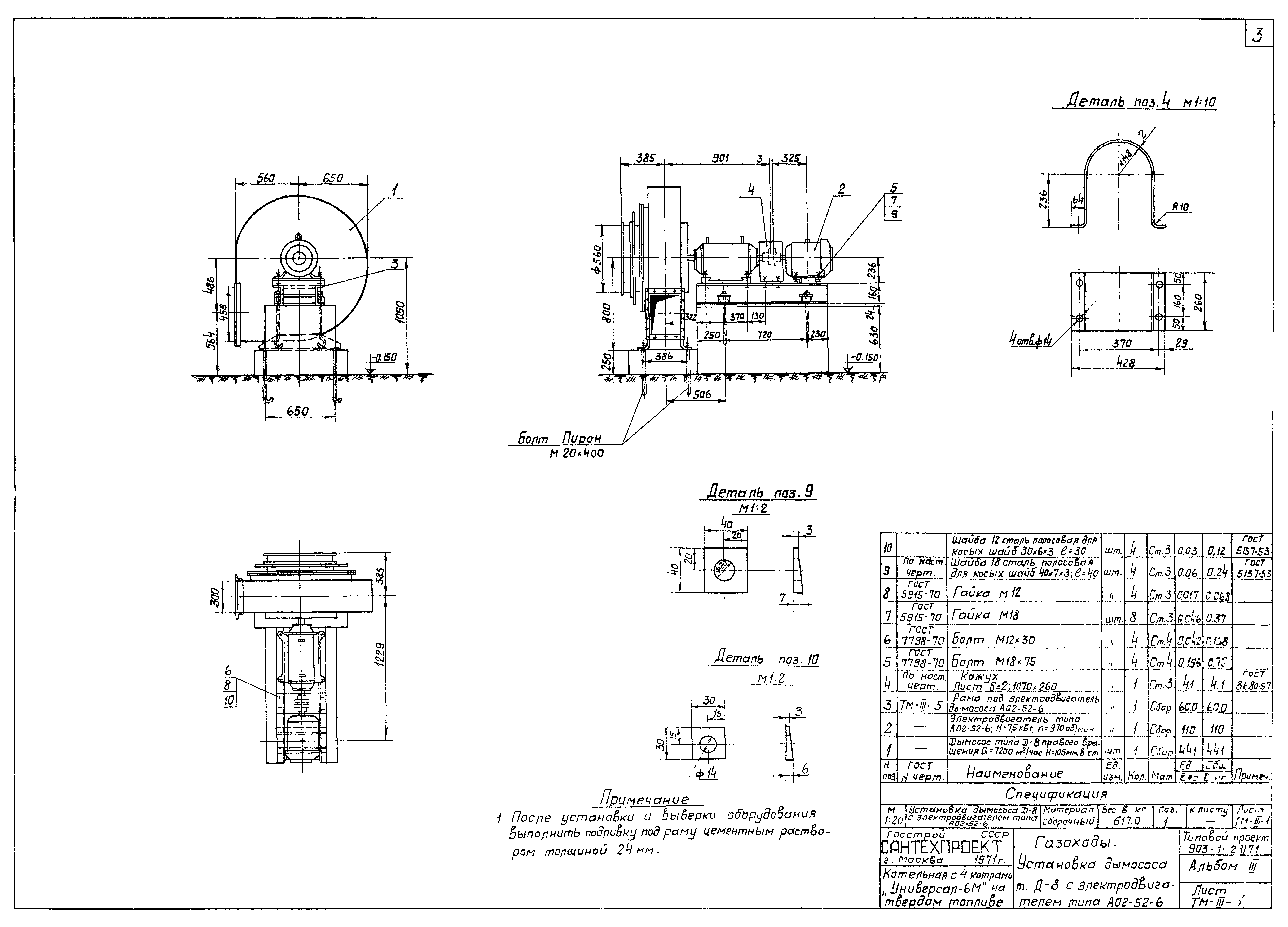
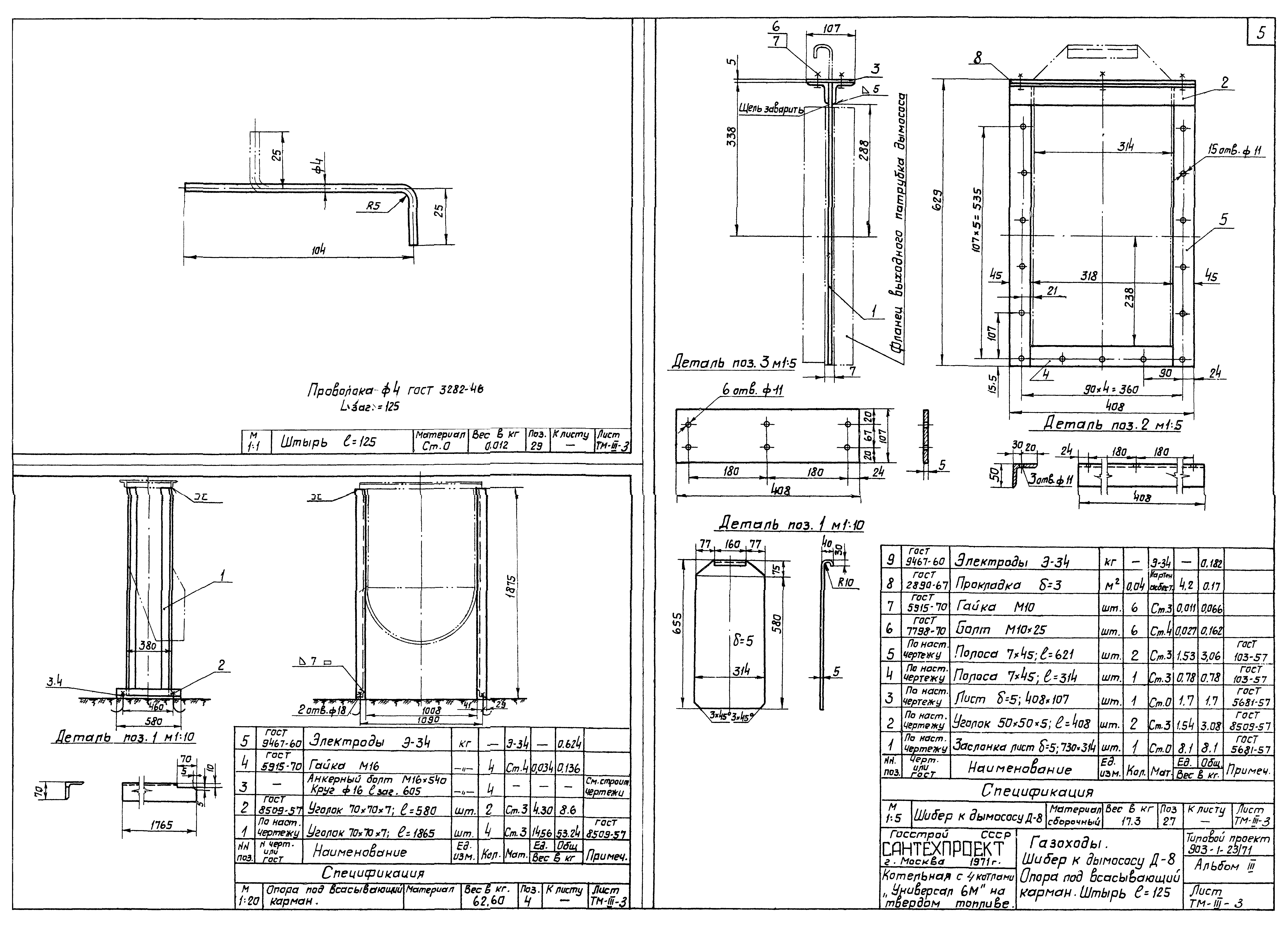
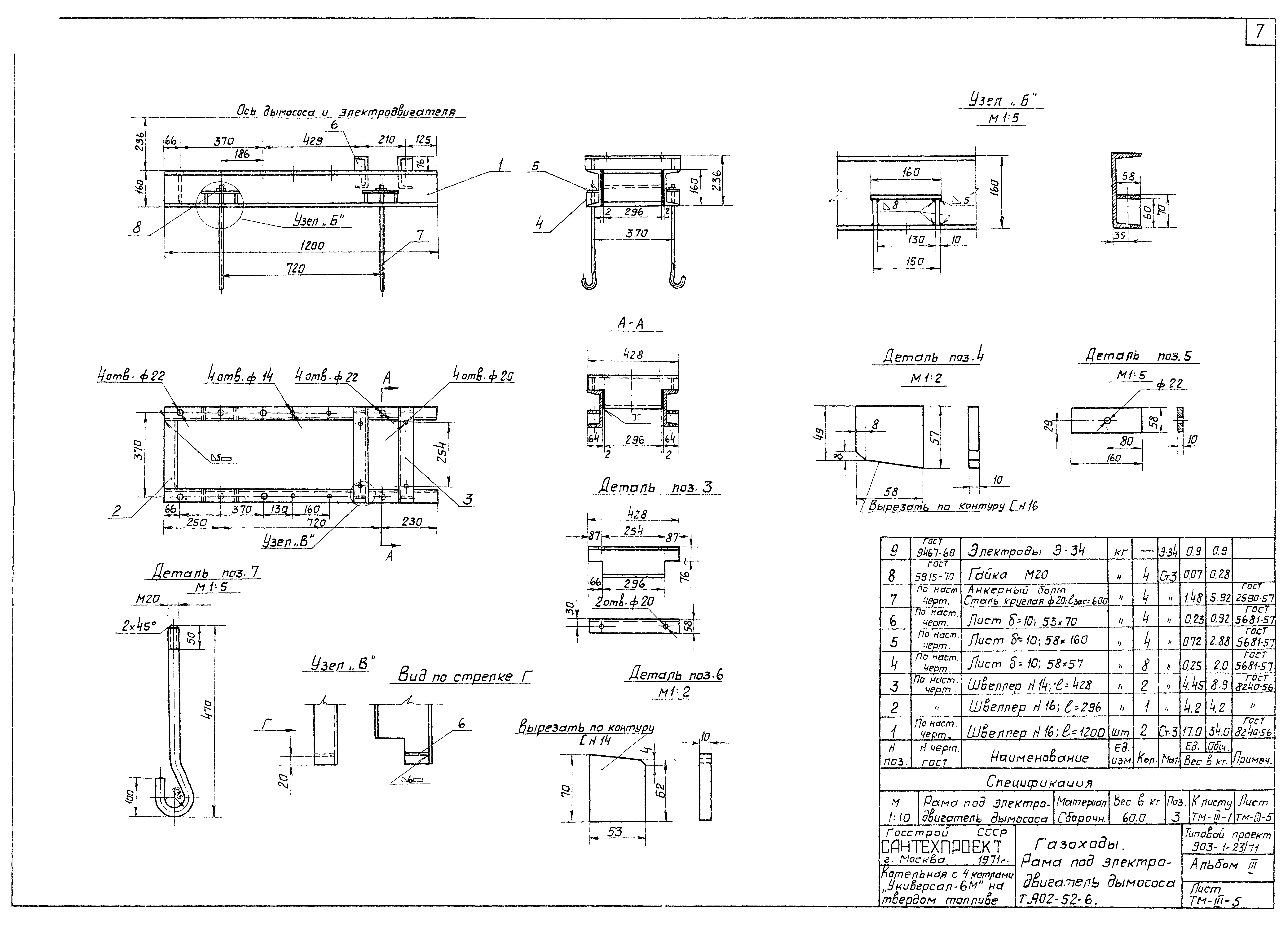
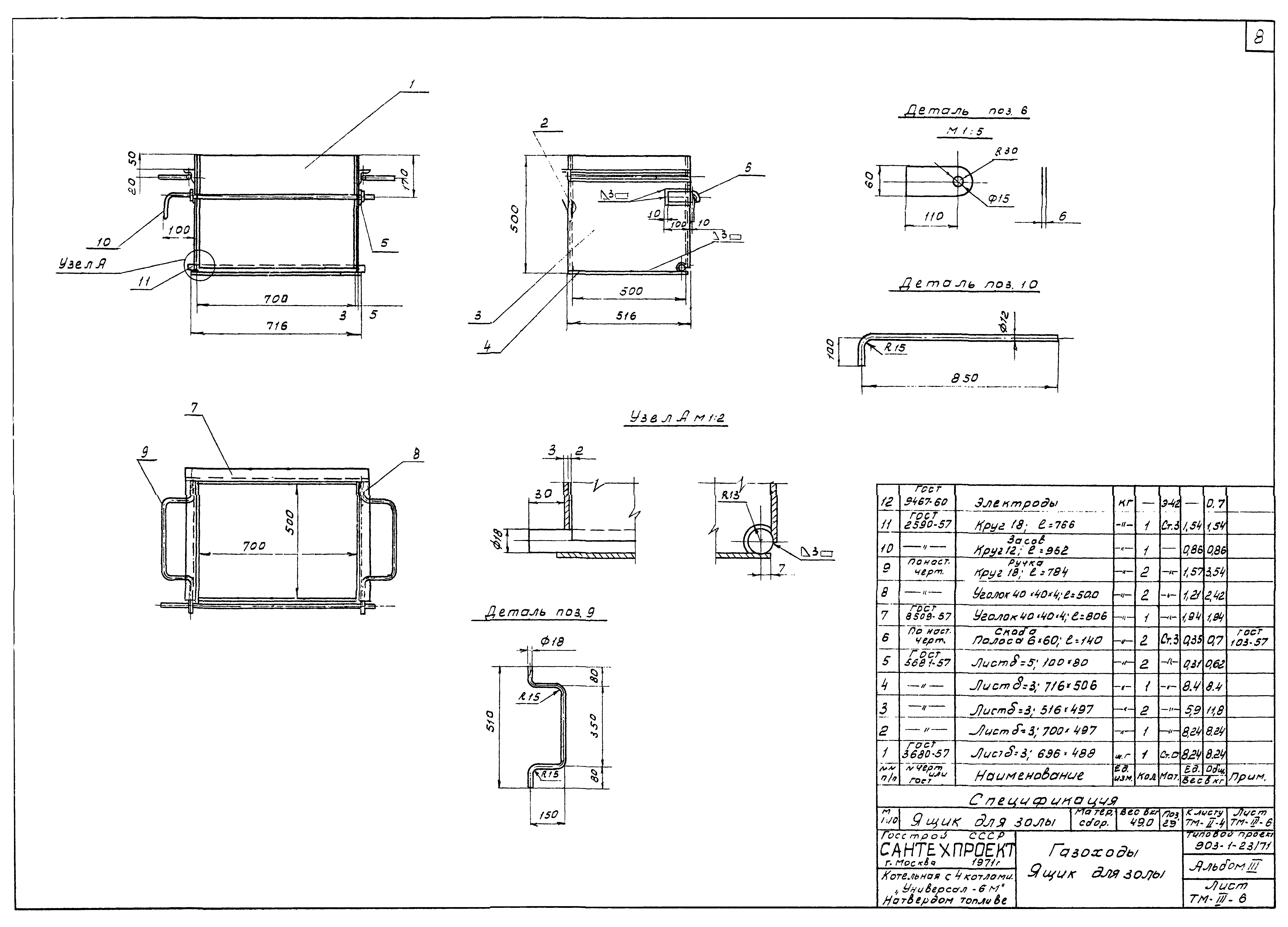
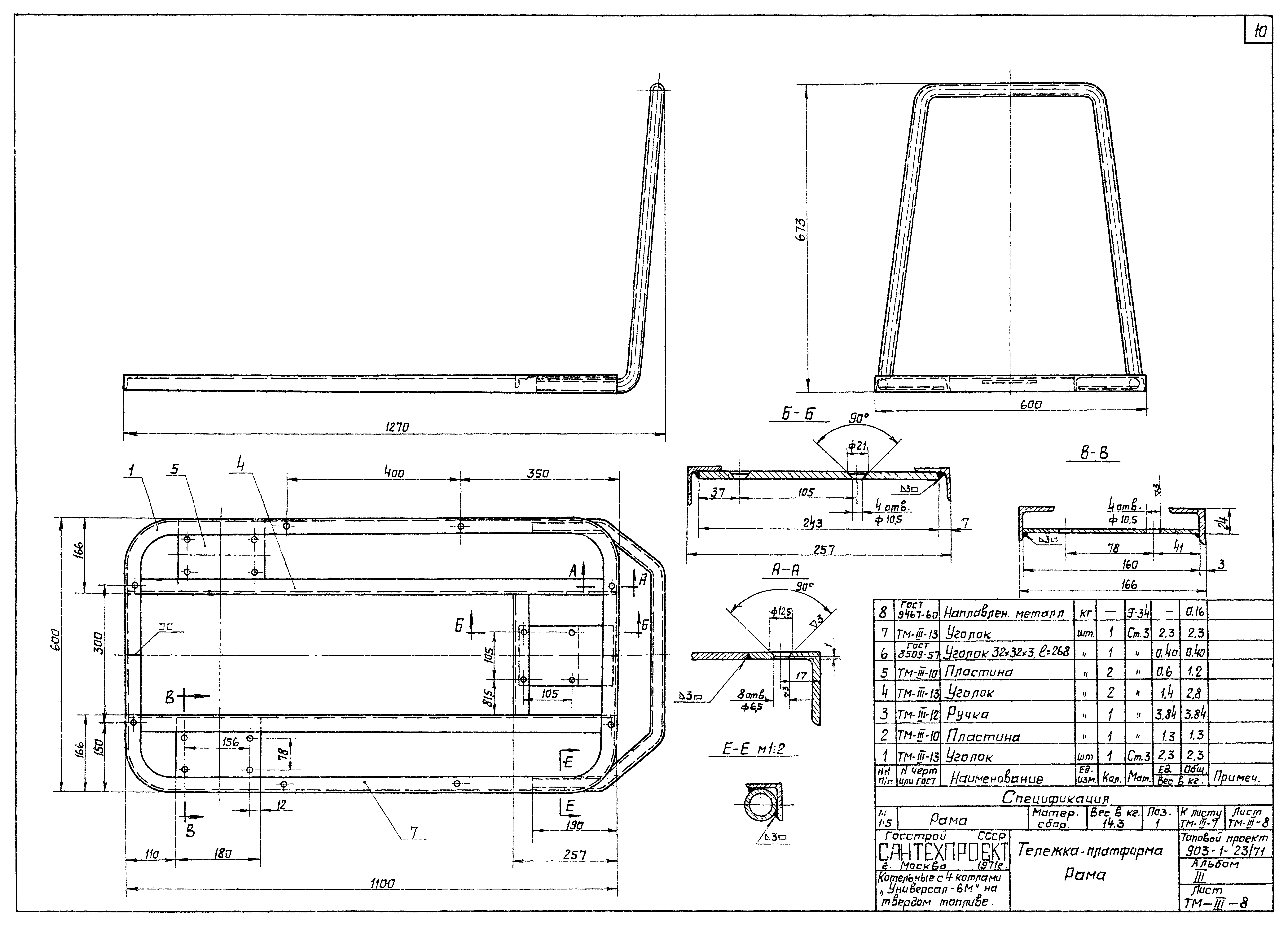
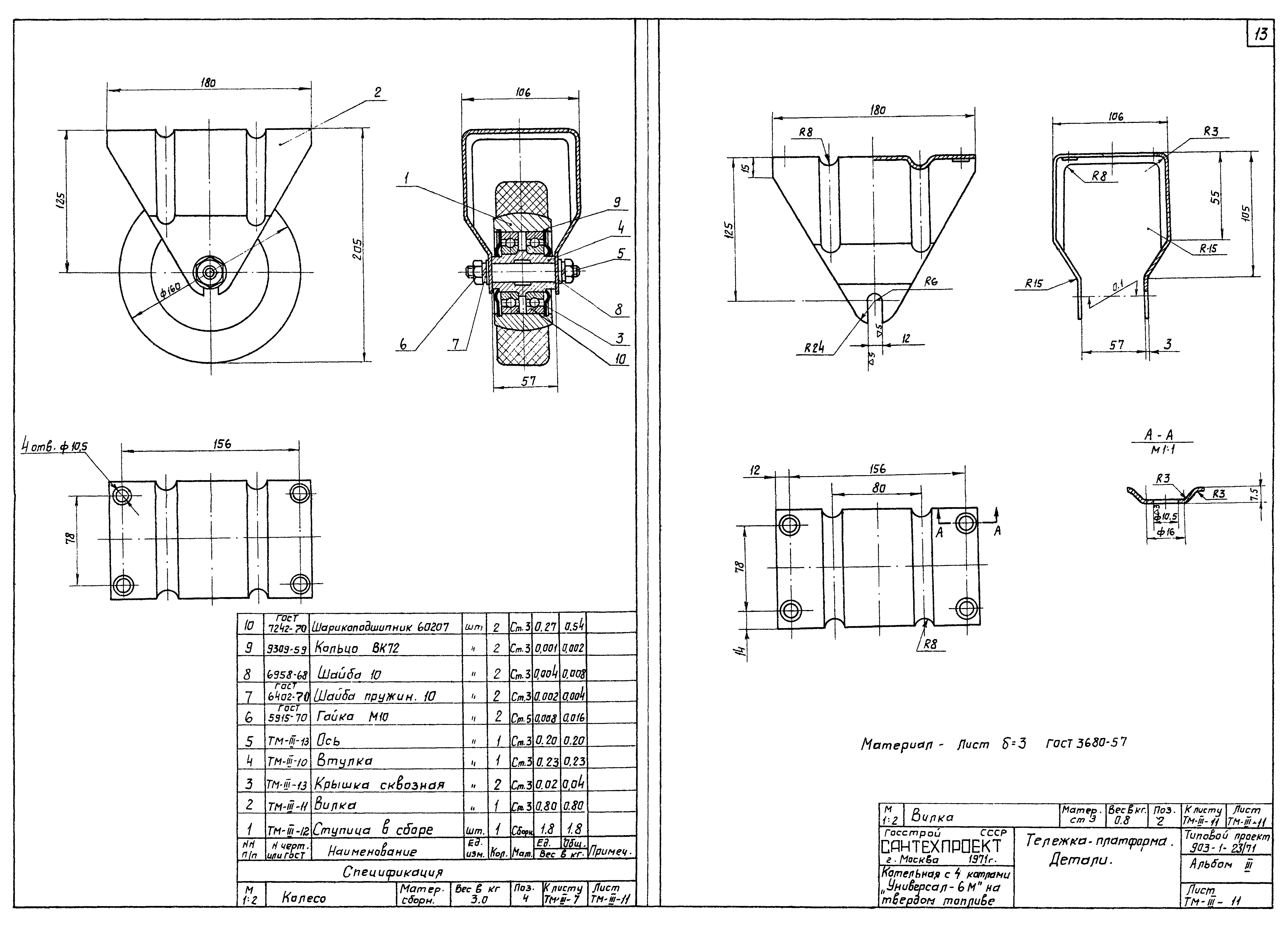
| Оглавление: | Титульный лист Содержание альбома ТМ-III-1 Установка дымососа типа Д-8 с электродвигателем типа А02-52-6 ТМ-III-2 Всасывающий карман ТМ-III-3 Шибер к дымососу Д-8. Опора под всасывающий карман. Штырь l = 125 мм ТМ-III-4 Переход l = 170 мм. Заслонка 400х200 ТМ-III-5 Рама под электродвигатель дымососа типа А02-52-6 ТМ-III-6 Ящик для залы ТМ-III-7 Тележка-платформа. Общий вид ТМ-III-8 Тележка-платформа. Рама ТМ-III-9 Тележка-платформа. Детали ТМ-III-10 Тележка-платформа. Детали ТМ-III-11 Тележка-платформа. Детали ТМ-III-12 Тележка-платформа. Детали ТМ-III-13 Тележка-платформа. Детали ТМ-III-14 Тележка-платформа. Детали |
| Разработан: | ГПИ Сантехпроект Госстроя СССР |
| Утверждён: | 15.02.1973 Главпромстройпроект Госстроя СССР (7) |
| Заменяет собой: |
|

















