Скачать Типовой проект 903-1-23/71 Альбом VI/2. Тип 2. Котельная для централизованного пароснабжения. Архитектурно-строительная частьДата актуализации: 01.01.2021
|
| Обозначение: | Типовой проект 903-1-23/71 |
| Обозначение англ: | 903-1-23/71 |
| Статус: | отменен |
| Название рус.: | Альбом VI/2. Тип 2. Котельная для централизованного пароснабжения. Архитектурно-строительная часть |
| Дата добавления в базу: | 01.10.2014 |
| Дата актуализации: | 01.01.2021 |
| Дата введения: | 01.03.1973 |
| Дата окончания срока действия: | 01.03.1983 |
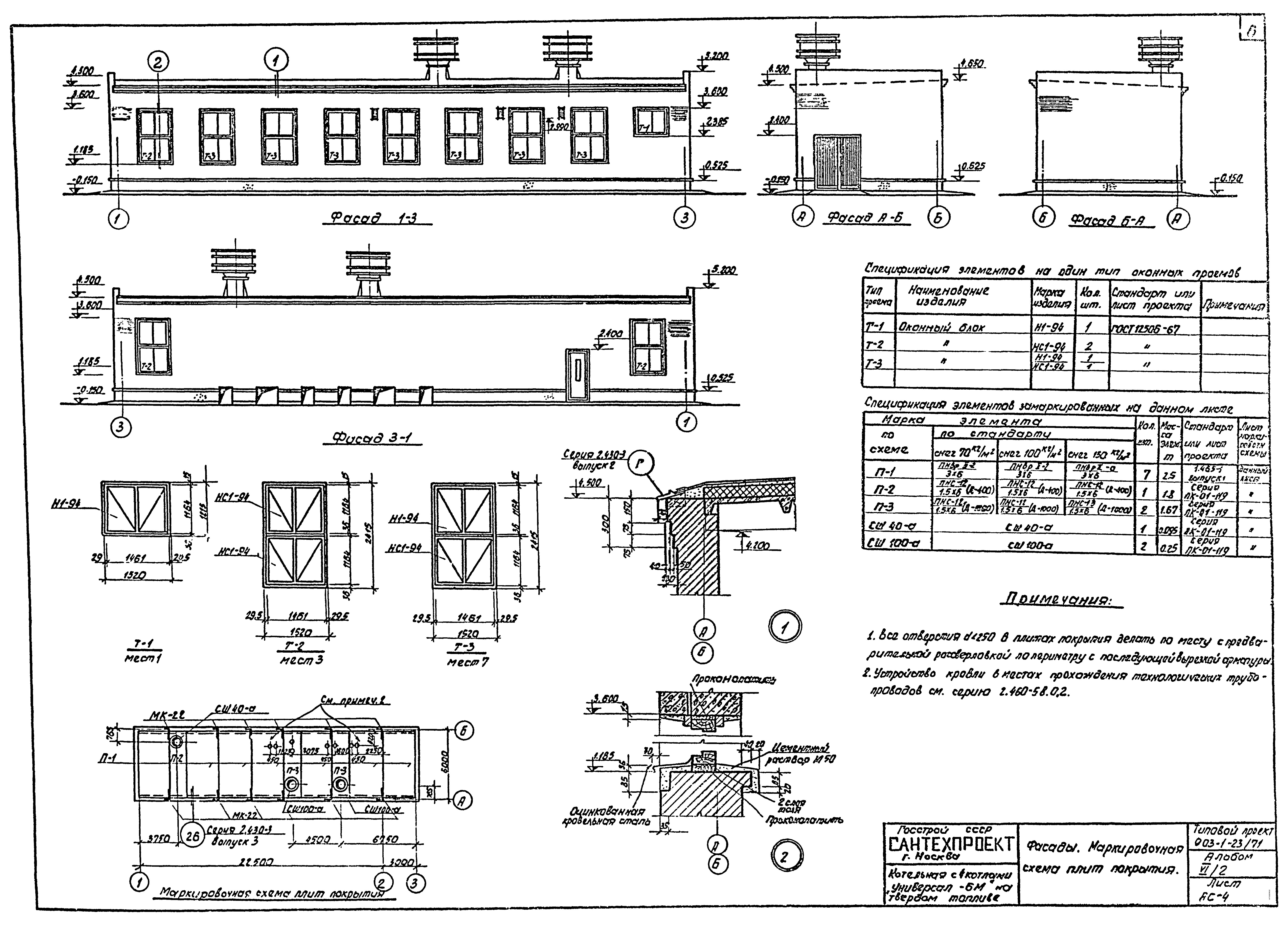
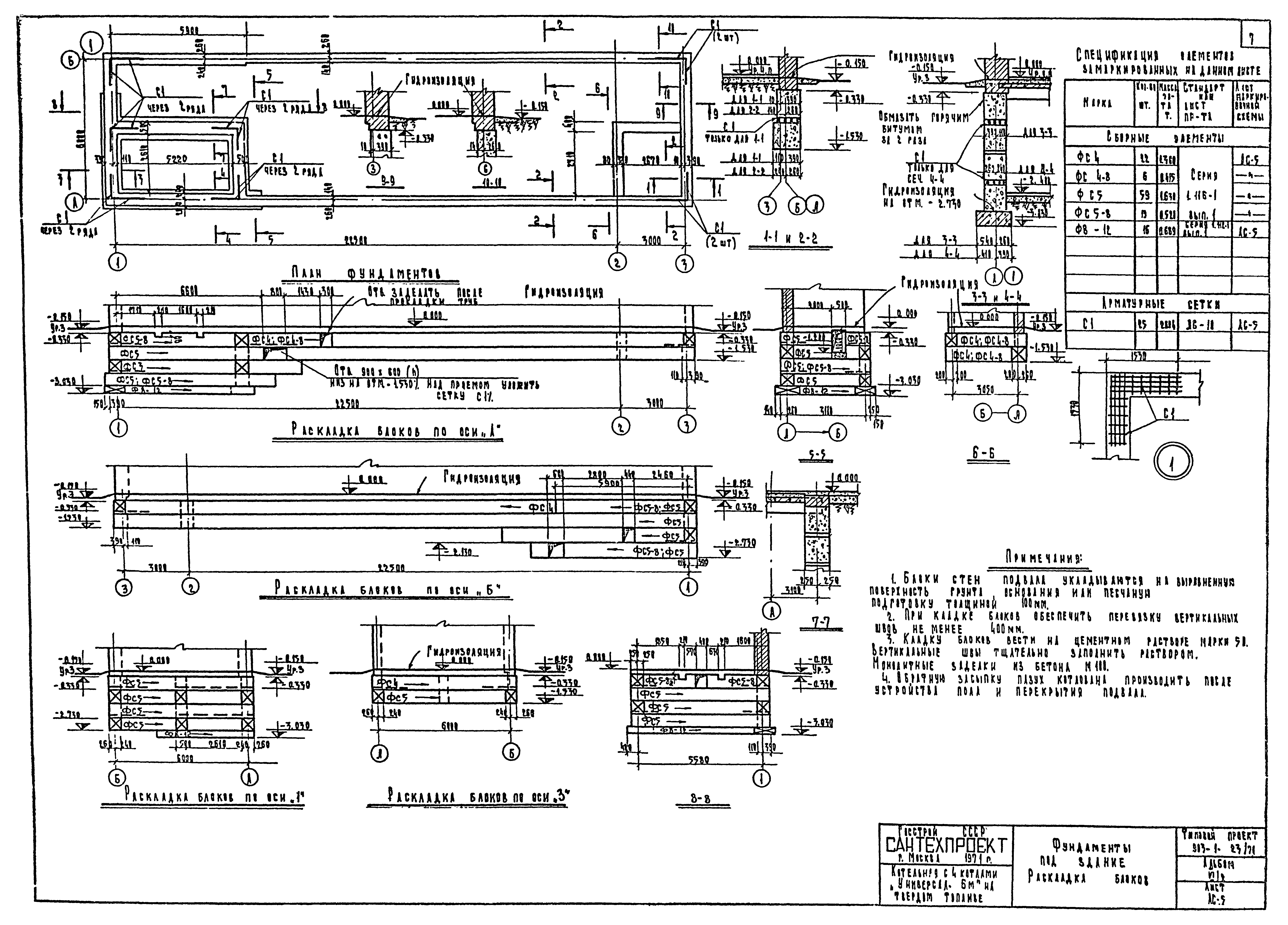
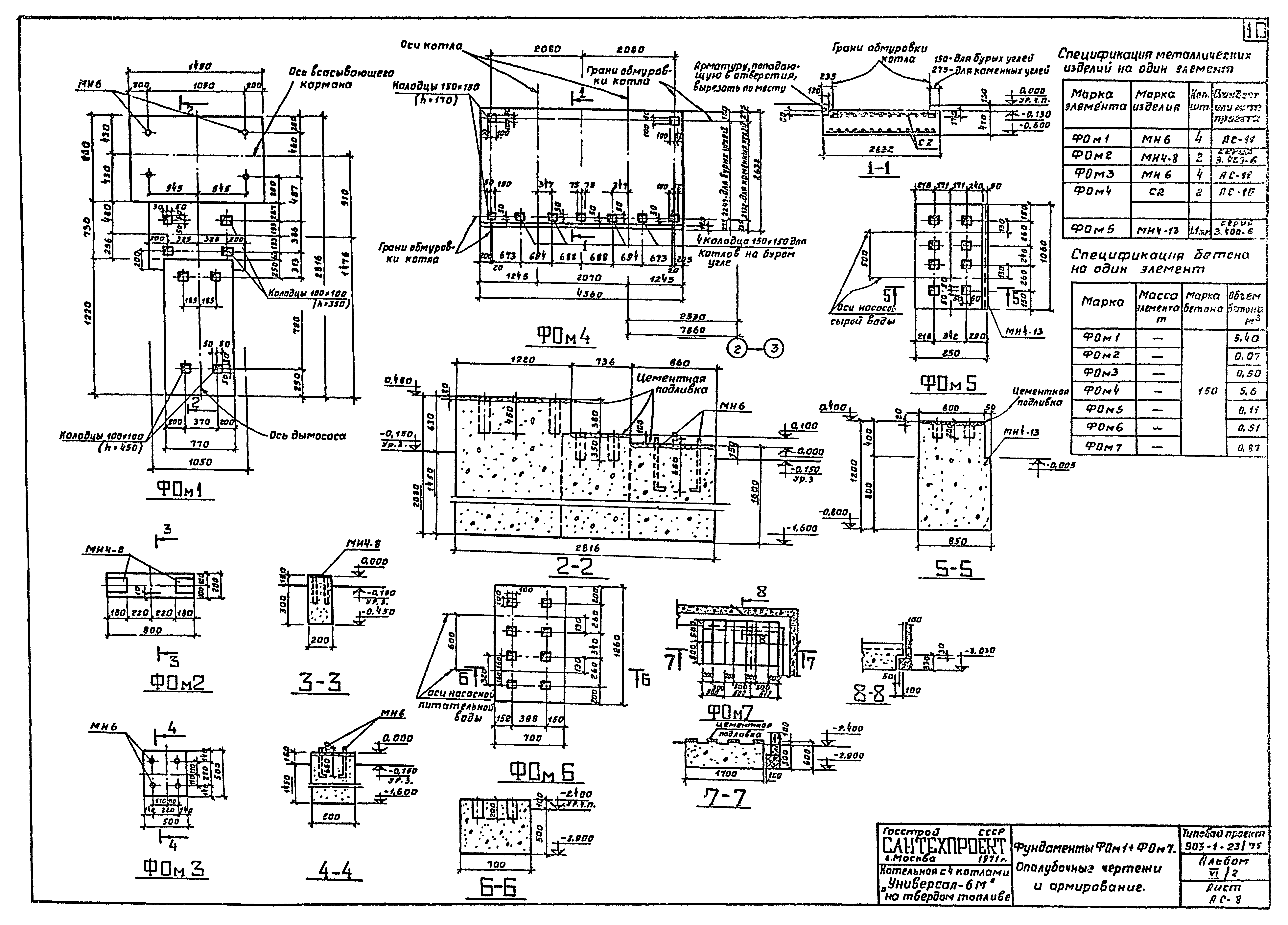
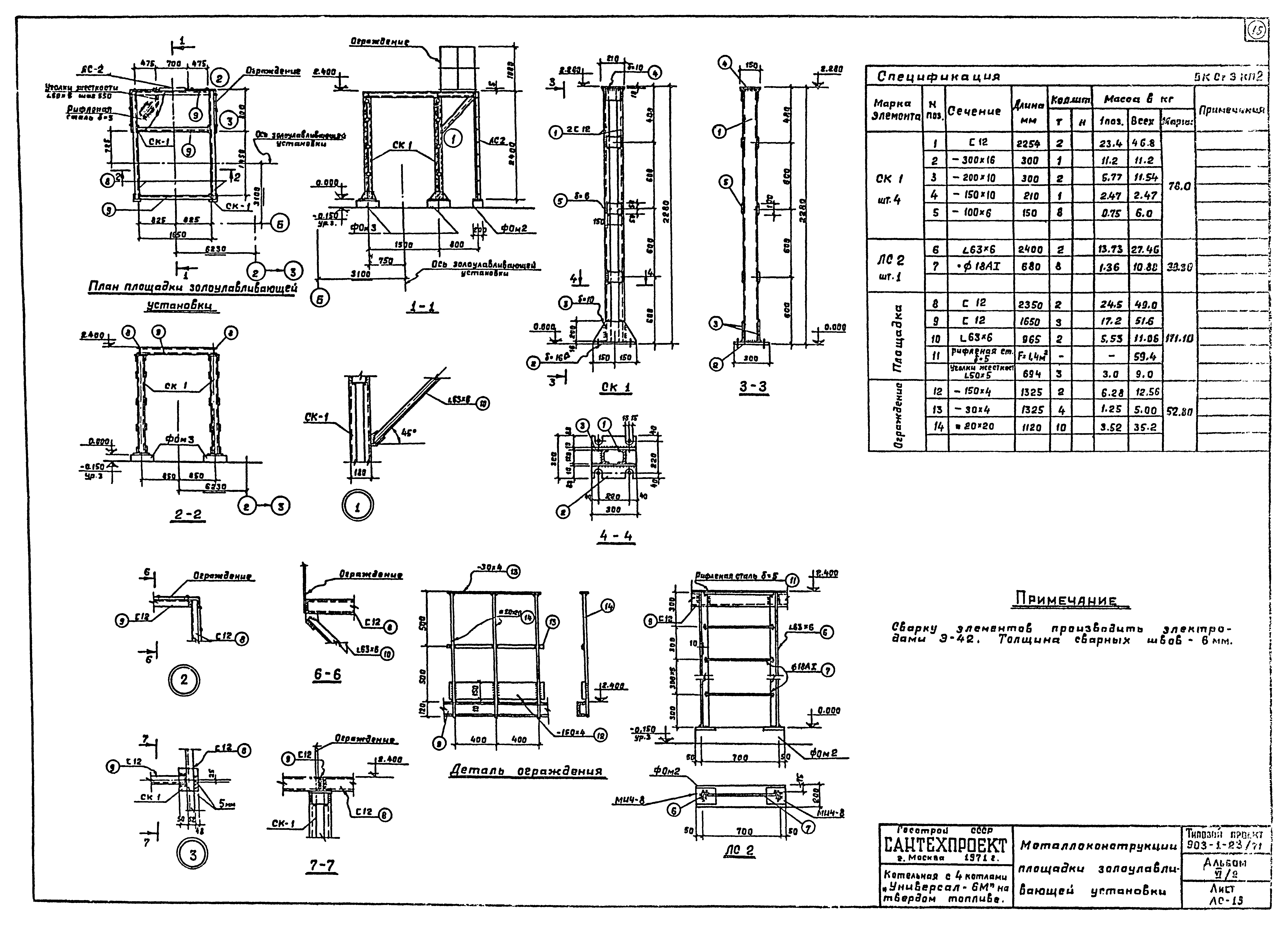
| Оглавление: | Титульный лист Содержание альбома. Пояснительная записка АС-1 Заглавный лист АС-2 Заглавный лист АС-3 План на отм. 0.000. Разрезы. Узлы АС-4 Фасады. Маркировочная схема плит покрытия АС-5 Фундаменты под здание. Раскладка блоков АС-6 План фундаментов под оборудование, каналов и боровов АС-7 Фрагмент плана боровов. Сечения АС-8 Фундаменты ФОм1 - ФОм7. Опалубочные чертежи и армирование АС-9 Охлаждающий колодец АС-10 Монолитный участок Ум1. Перекрытие на отм. 0.000. Арматурные изделия АС-11 Закладные изделия МН1 - МН10, МН13 АС-12 Металлическая лестница АС-1 АС-13 Металлоконструкции площадки золоулавливающей установки |
| Разработан: | ГПИ Сантехпроект Госстроя СССР |
| Утверждён: | 15.02.1973 Главпромстройпроект Госстроя СССР (7) |
| Заменяет собой: |
|
















