Скачать Часть XV Агентства воздушных сообщенийДата актуализации: 01.01.2021
|
| Обозначение: | Часть XV |
| Обозначение англ: | Часть XV |
| Статус: | не установлен срок действия |
| Название рус.: | Агентства воздушных сообщений |
| Дата добавления в базу: | 01.11.2014 |
| Дата актуализации: | 01.01.2021 |
| Область применения: | Пособие разработано в развитие ВНТП 1—85/МГА и предназначено для использования при проектировании агентств воздушных сообщений. |
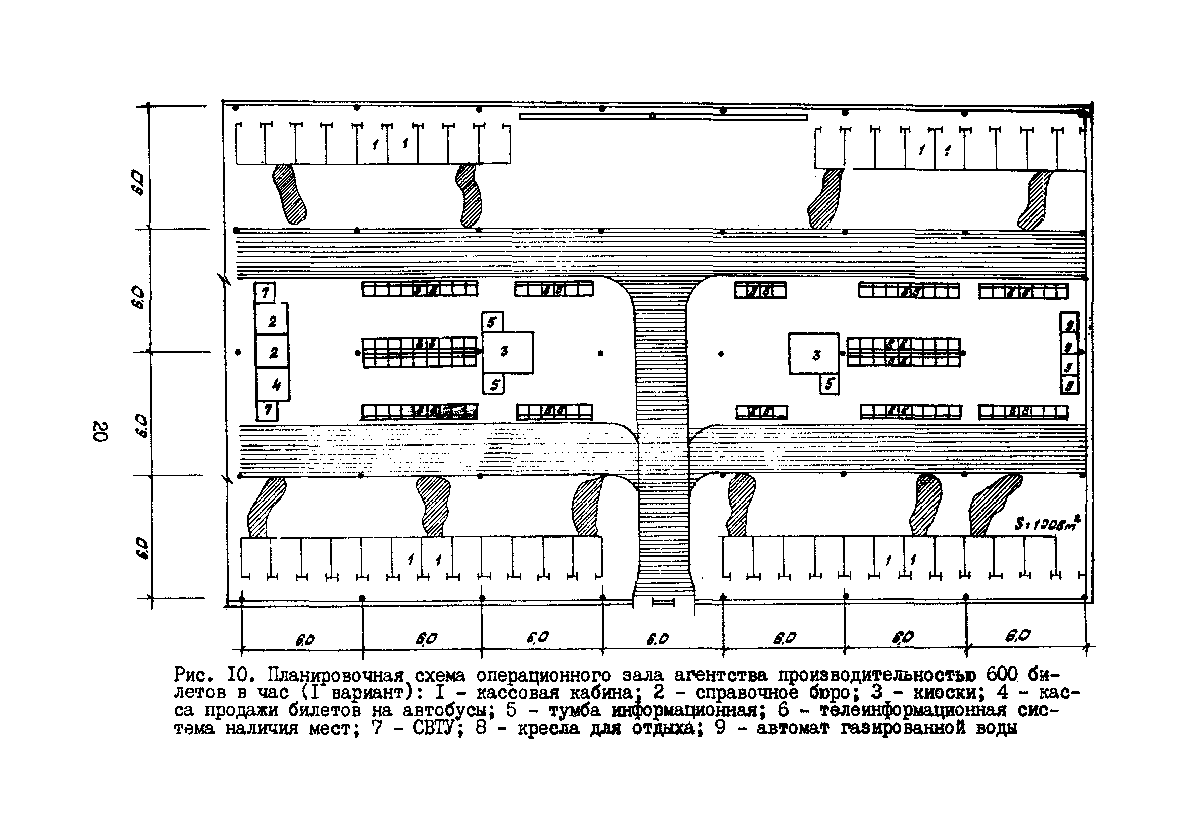
| Оглавление: | 1. Общие положения 2. Классификация и номенклатура, организация работы, режим работы агентств 3. Структурные подразделения агентств, состав и размещение помещений, нормы площади 4. Технологическое оборудование, средства автоматизации 5. Электроснабжение, электрооборудование и электроосвещение 6. Электросвязь 7. Противопожарные мероприятия 8. Режимно-охранное обеспечение 9. Требования к отделке помещений агентств 10. Удельные показатели технологического проектирования агентств Приложение 1. Перечень предприятий дополнительного обслуживания и количество рабочих мест Приложение 2. Методика расчета производительности агентств Приложение 3. Основные положения расчета площади операционных залов агентств Приложение 4. Перечень и площади помещений предприятий общественного питания Приложение 5. Количество унитазов, писсуаров и умывальников в женских и мужских туалетах клиентов и посетителей Приложение 6. Перечень и количество технологического оборудования, средств автоматизации, а также средств механизированной уборки помещений в агентствах Приложение 7. Примерный состав и количество средств электросвязи агентств Приложение 8. Примерный состав и количество средств электросвязи в отделениях агентств Приложение 9. Количество и назначение каналов телефонной и телеграфной связи агентств Приложение 10. Абоненты и места установки телефонных аппаратов и электрочасов в агентствах Приложение 11. Абоненты внутренней прямой громкоговорящей связи (ГТС) Приложение 12. Характеристика помещений агентств по пожаро— и взрывоопасности и рекомендуемые средства противопожарной защиты Приложение 13. Перечень помещений, подлежащих обязательному оборудованию техническими средствами охраны (ТСО) Приложение 14. Удельные показатели технологического проектирования агентств |
| Разработан: | ГПИ и НИИ ГА Аэропроект |
| Утверждён: | 29.05.1986 ГПИ и НИИ ГА Аэропроект |
| Заменяет собой: |
|
| Нормативные ссылки: |

















































































