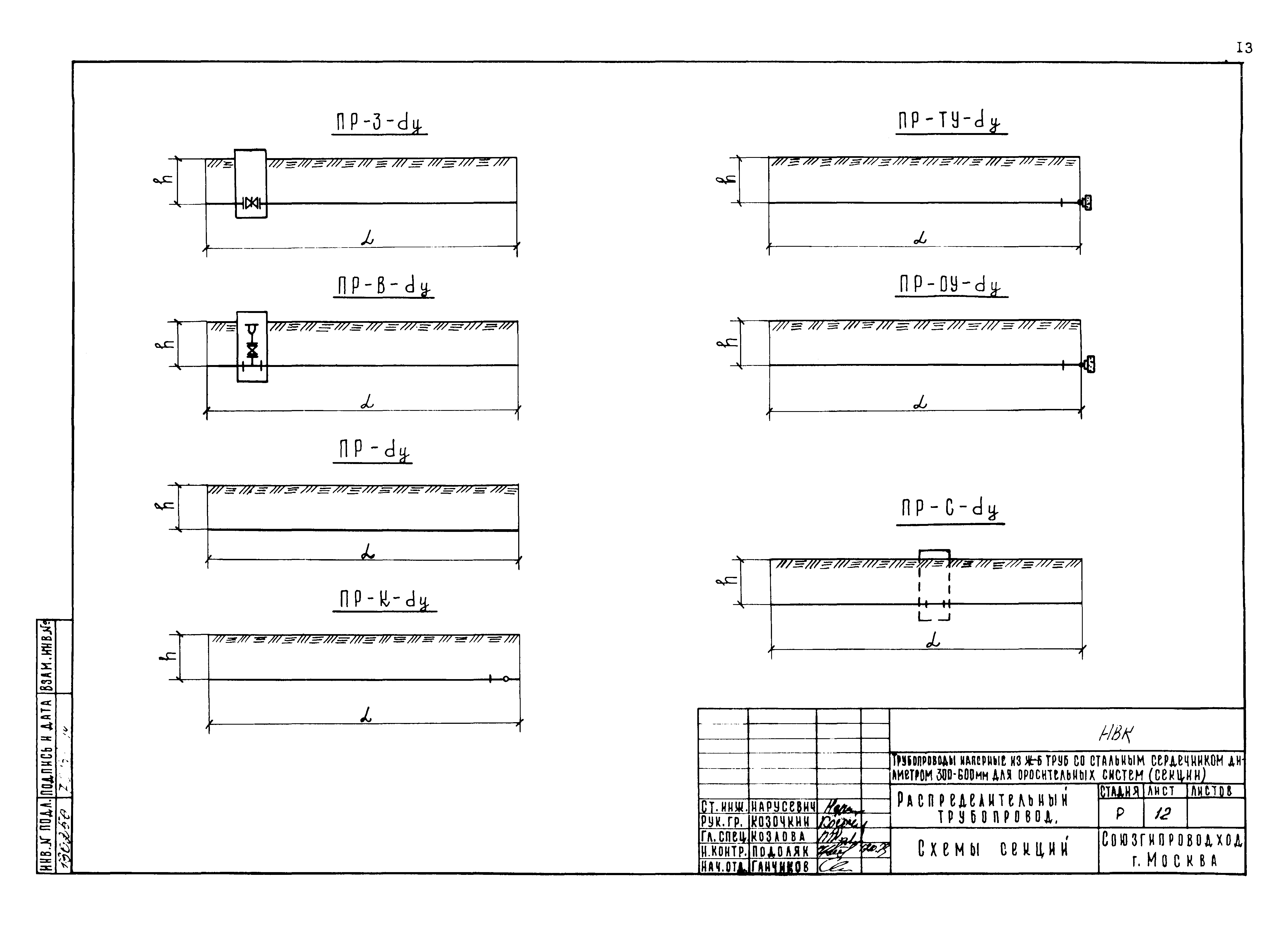
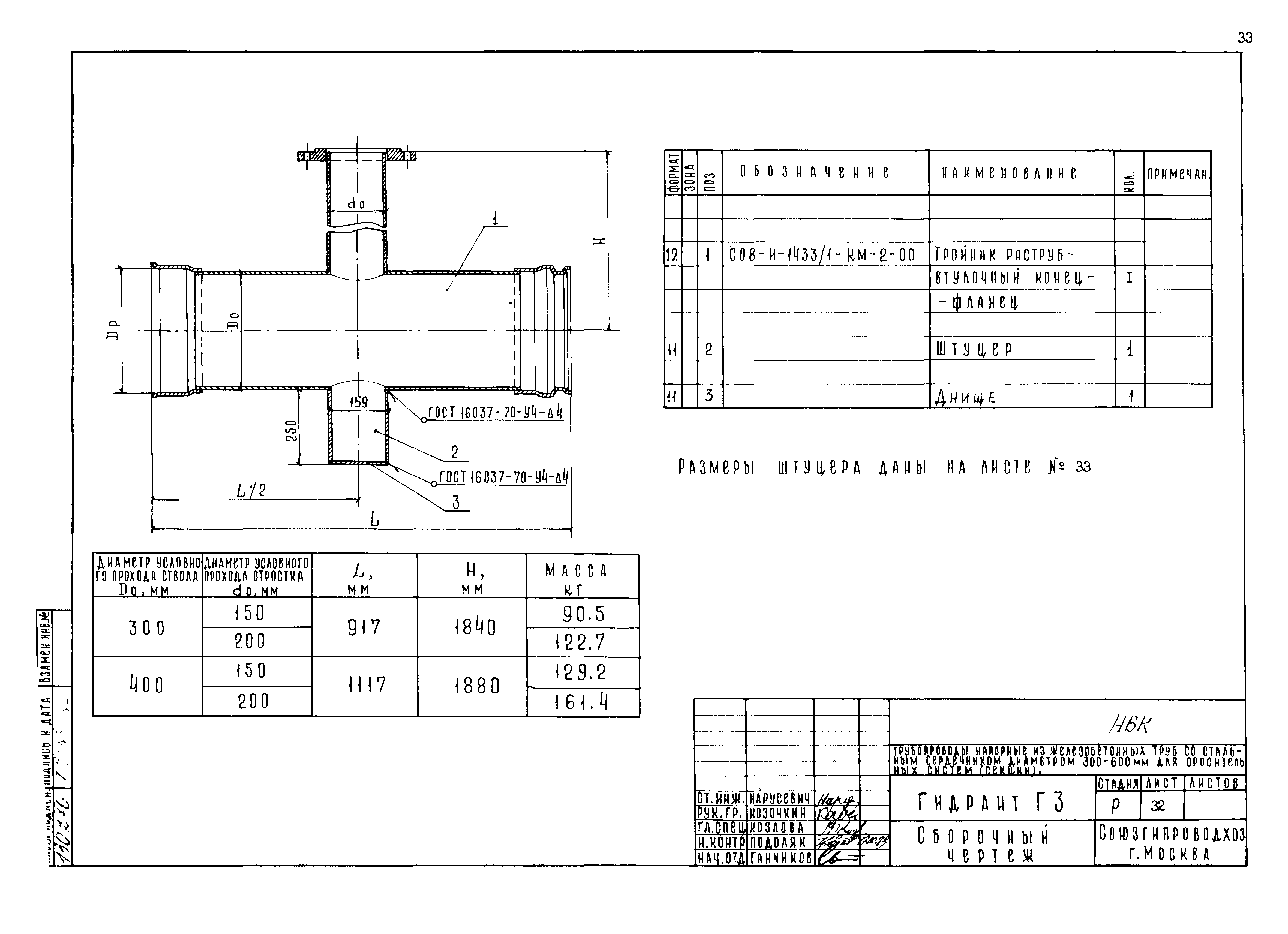
Скачать Типовые проектные решения 820-02-5 Альбом I. Пояснительная записка и чертежиДата актуализации: 01.01.2021 Типовые проектные решения 820-02-5
Альбом I. Пояснительная записка и чертежи| Обозначение: | Типовые проектные решения 820-02-5 | | Обозначение англ: | 820-02-5 | | Статус: | справочные материалы, мп, тпр | | Название рус.: | Альбом I. Пояснительная записка и чертежи | | Дата добавления в базу: | 21.05.2015 | | Дата актуализации: | 01.01.2021 | | Дата введения: | 09.06.1980 | | Разработан: | Союзгипроводхоз им. Е.Е. Алексеевского
| | Утверждён: | 09.06.1980 Минводхоз СССР (USSR Minvodkhoz 378)
|
                                    
|