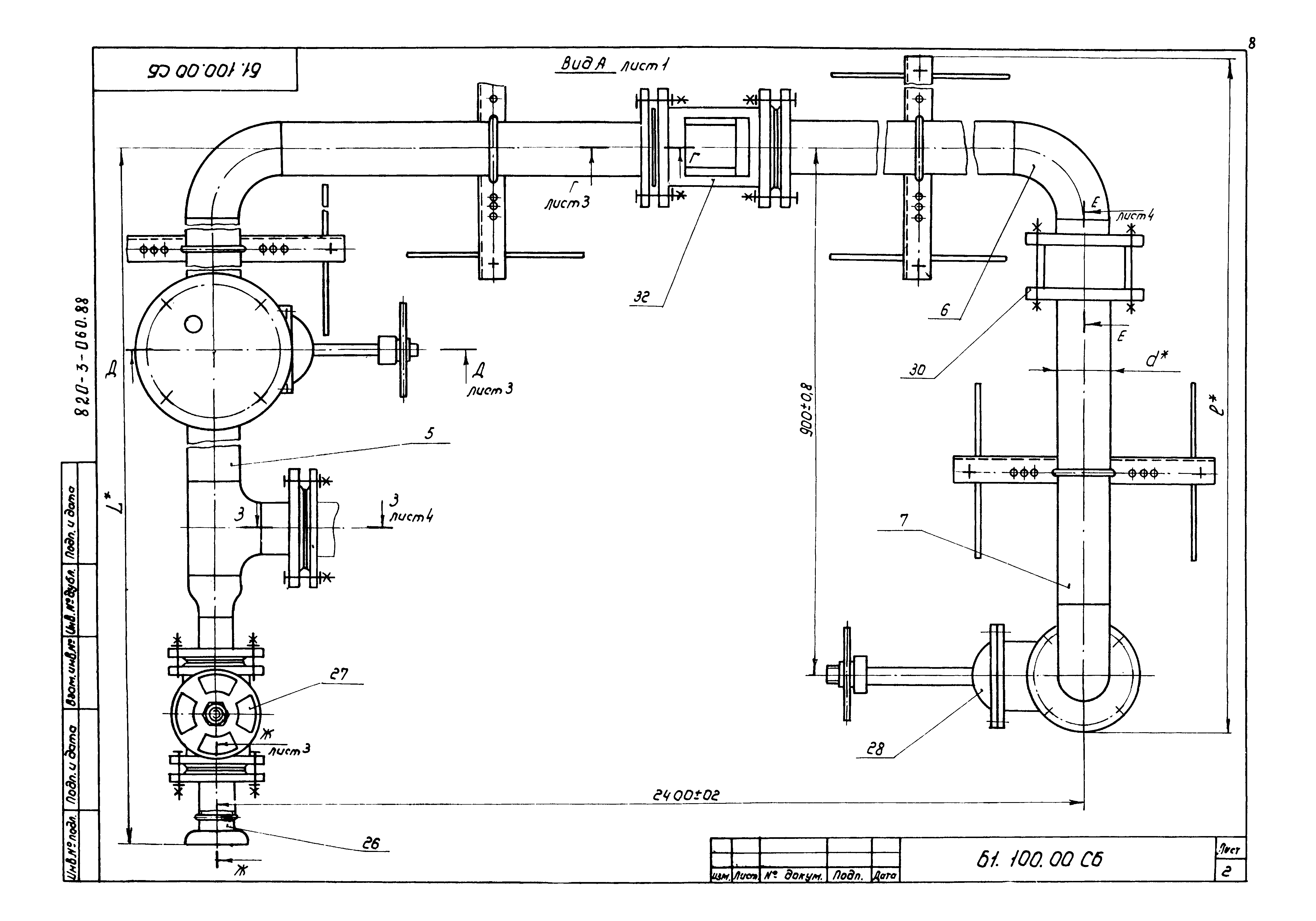
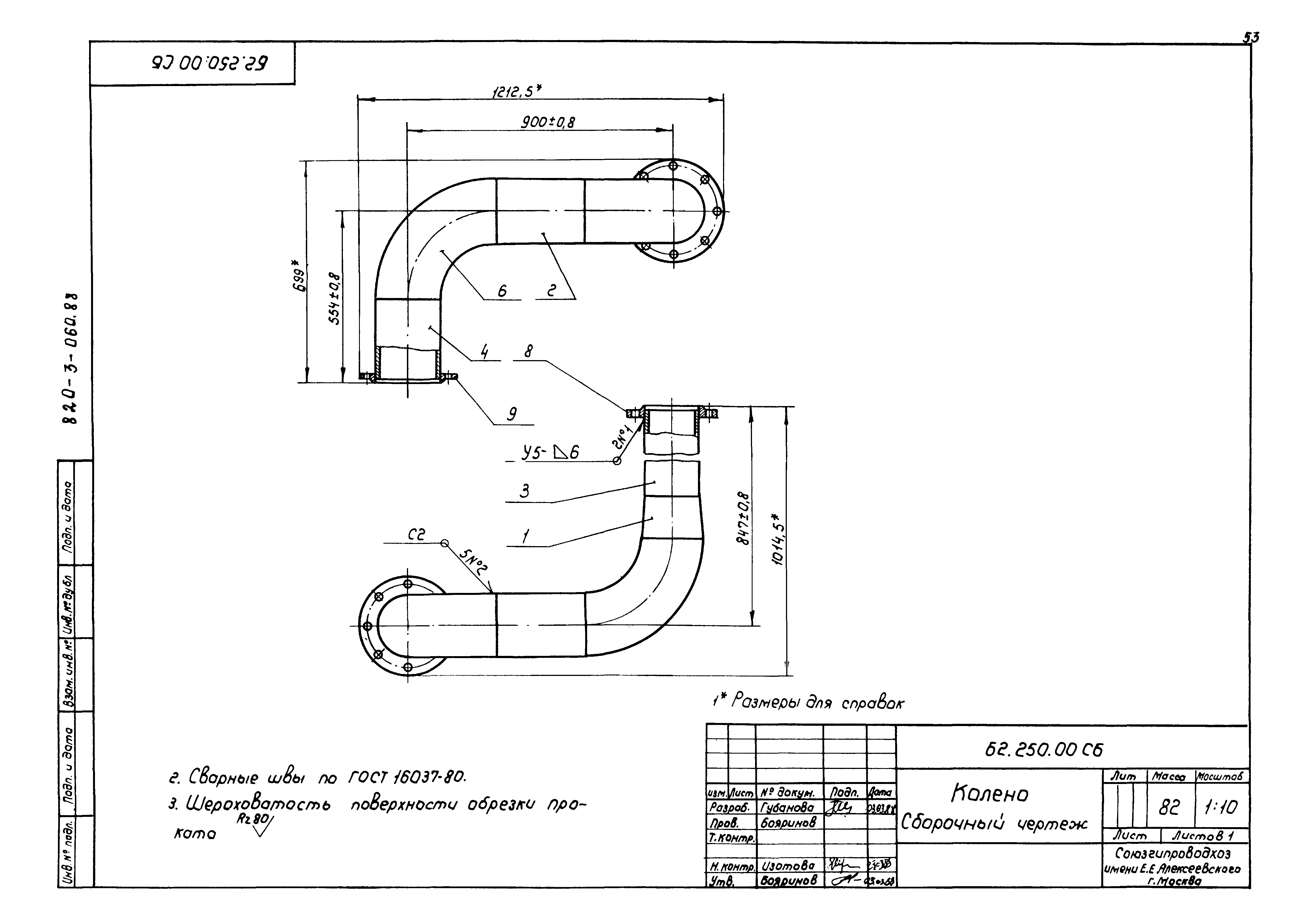
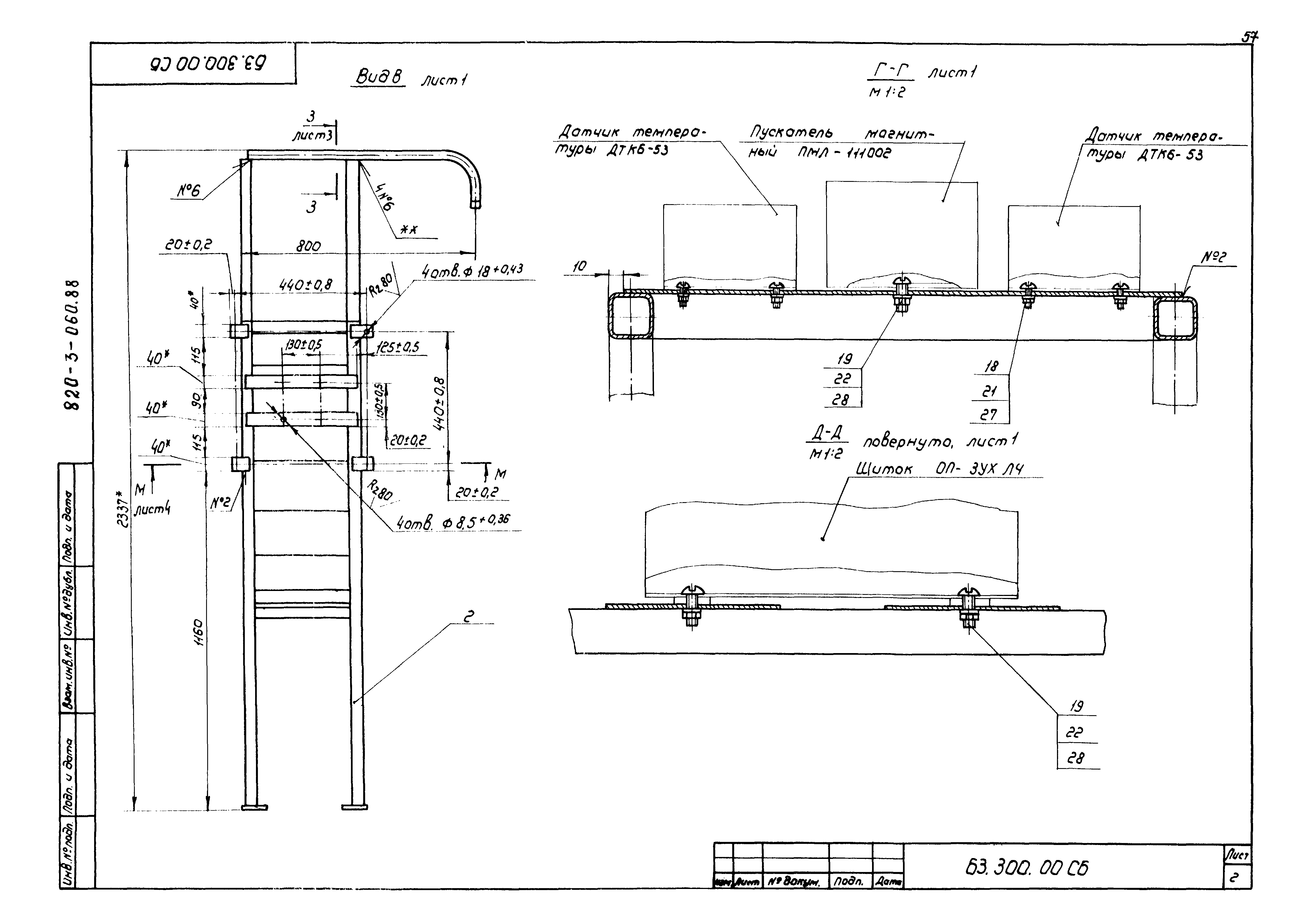
Скачать Типовые проектные решения 820-3-060.88 Альбом II. Нетиповые технологические конструкцииДата актуализации: 01.01.2021 Типовые проектные решения 820-3-060.88
Альбом II. Нетиповые технологические конструкции| Обозначение: | Типовые проектные решения 820-3-060.88 | | Обозначение англ: | 820-3-060.88 | | Статус: | справочные материалы, мп, тпр | | Название рус.: | Альбом II. Нетиповые технологические конструкции | | Дата добавления в базу: | 21.05.2015 | | Дата актуализации: | 01.01.2021 | | Дата введения: | 26.04.1988 | | Разработан: | Союзгипроводхоз им. Е.Е. Алексеевского
| | Утверждён: | 26.04.1988 Минводхоз СССР (USSR Minvodkhoz 725)
|
                                                                    
|