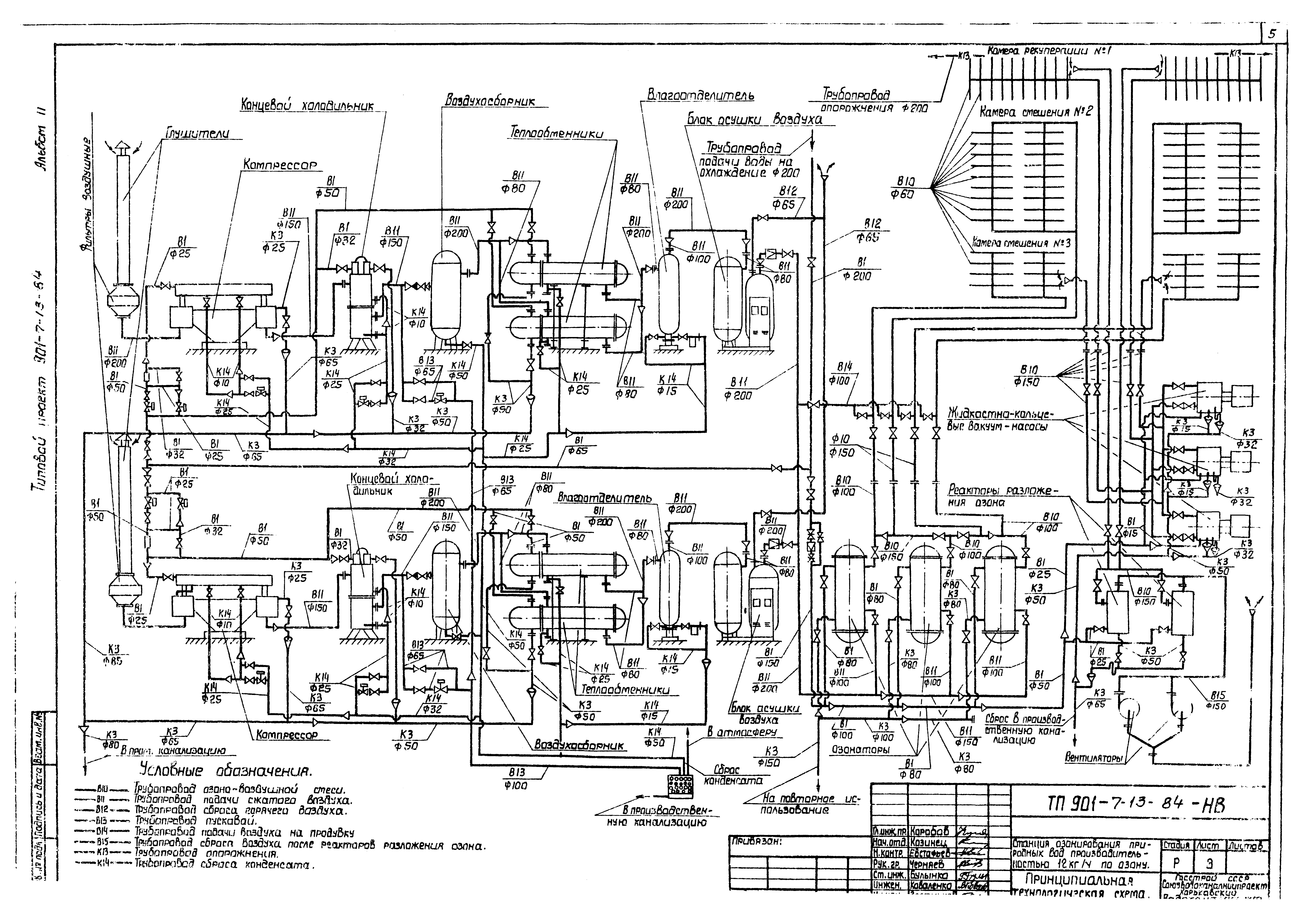
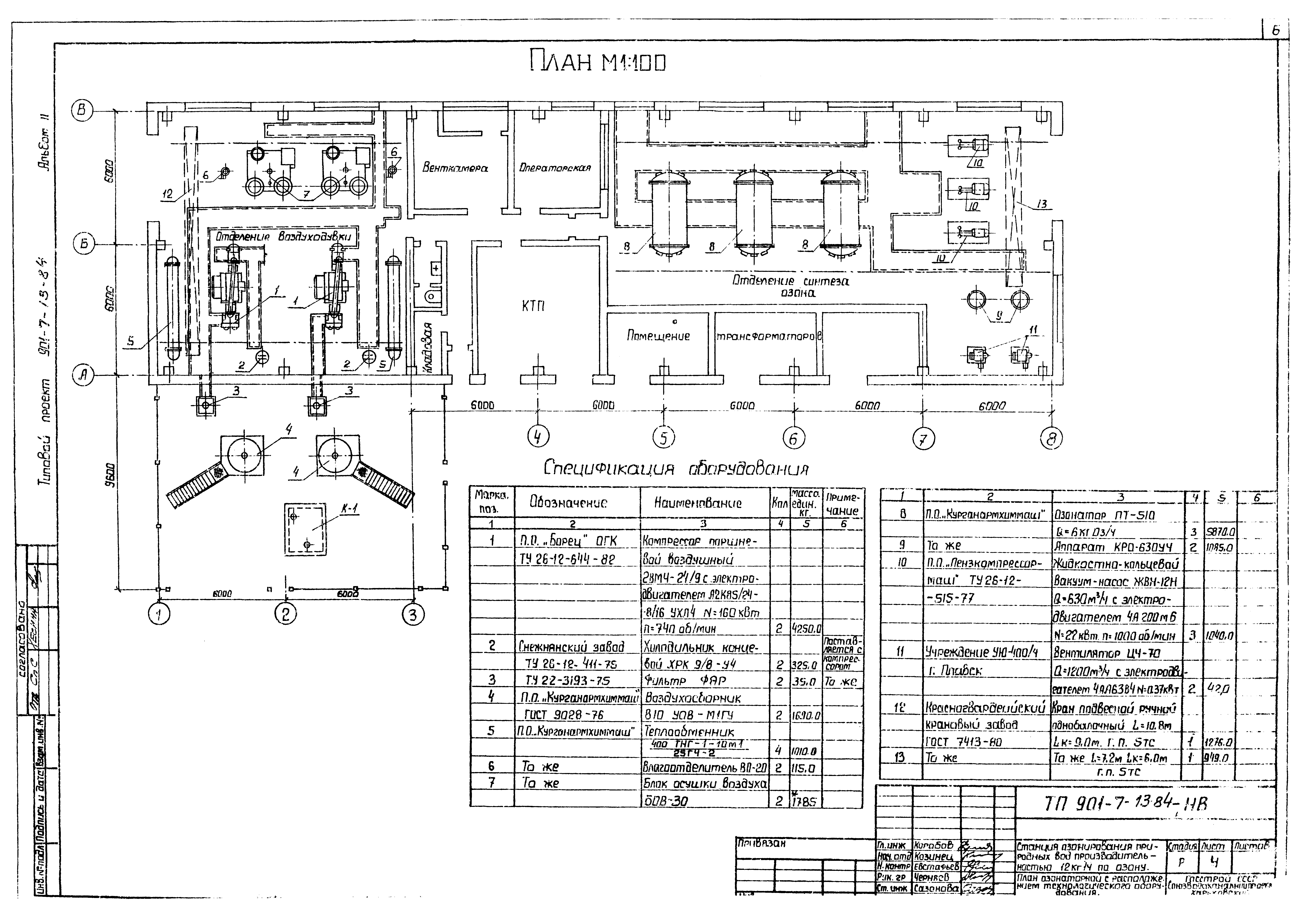
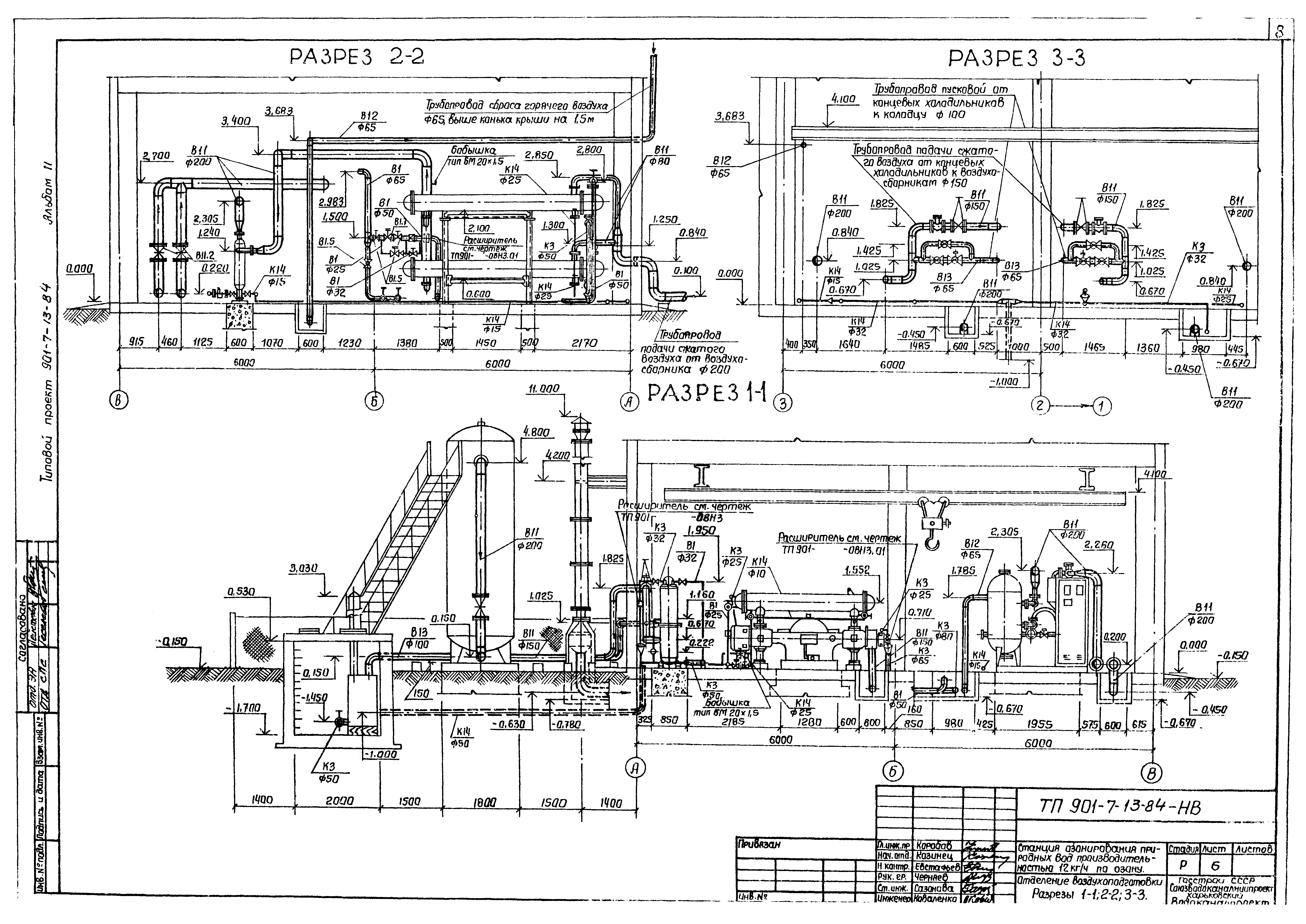
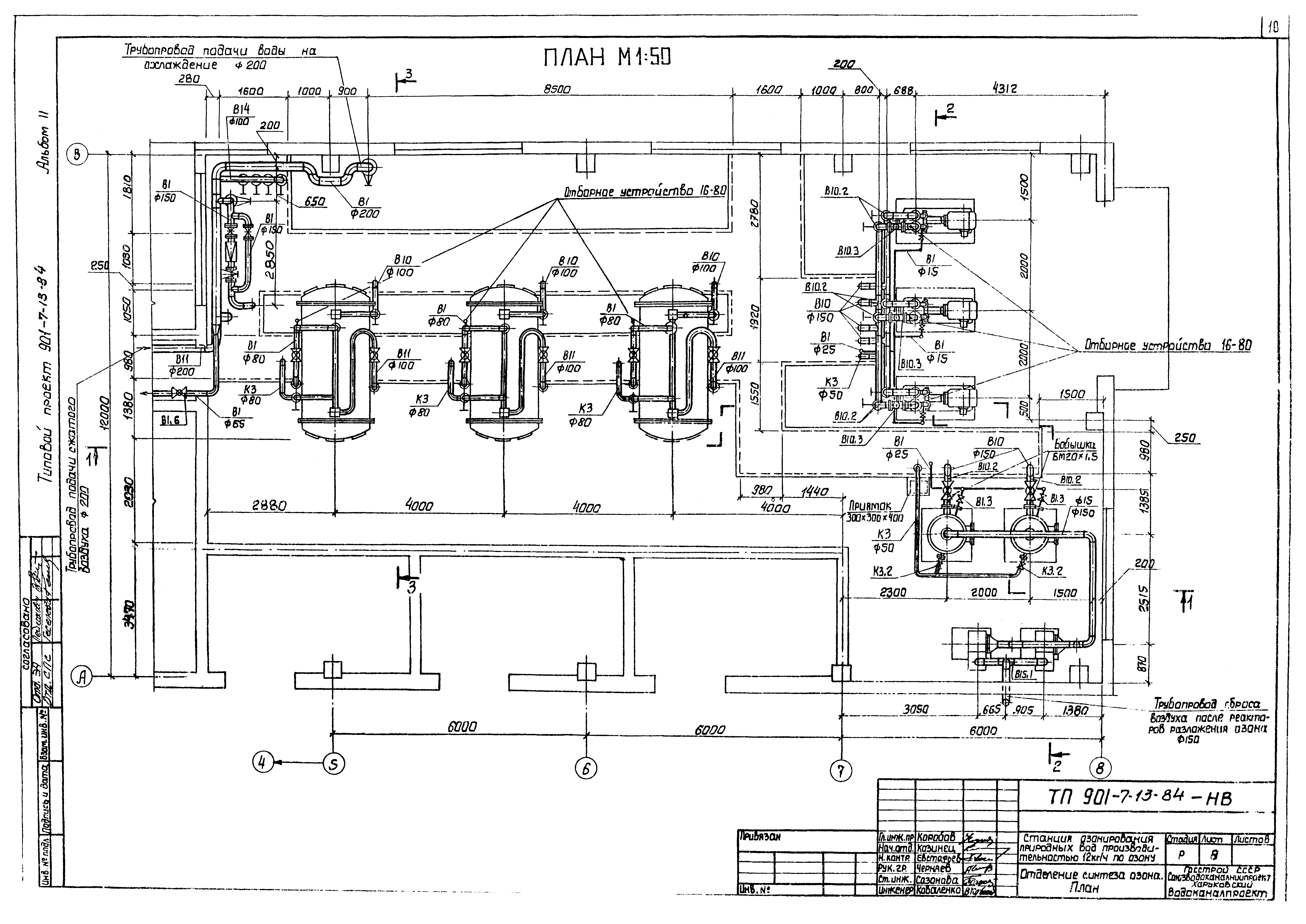
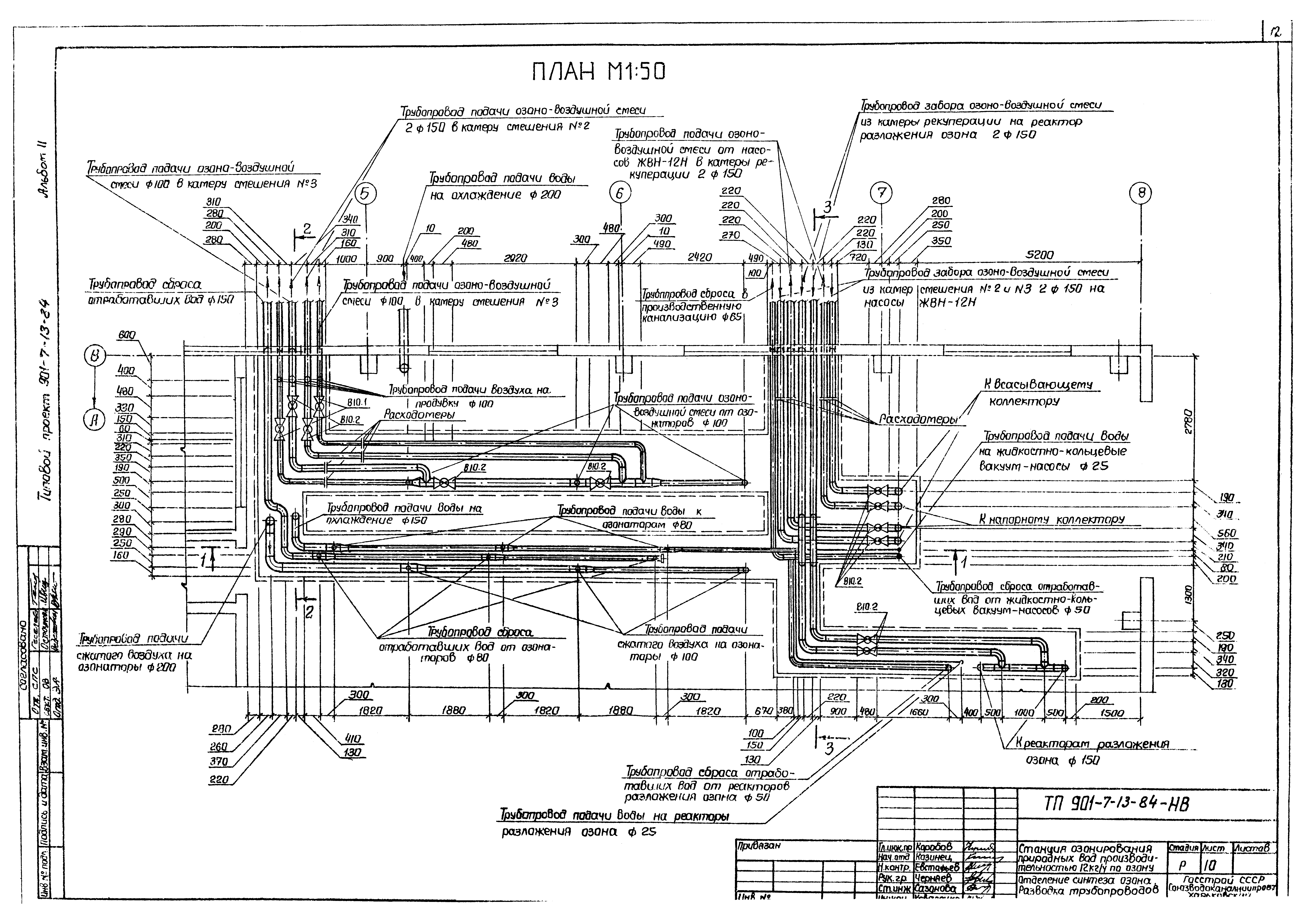
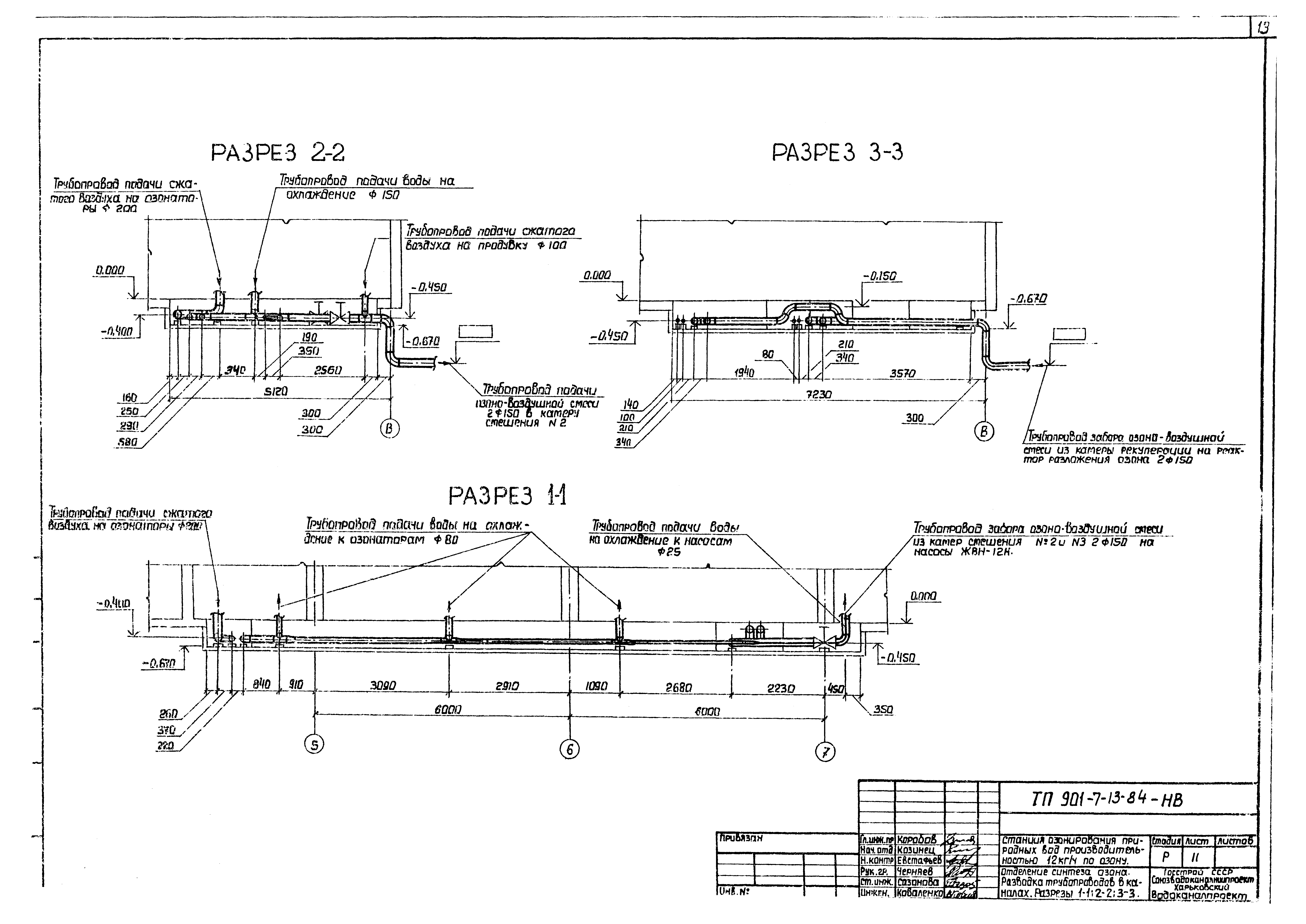
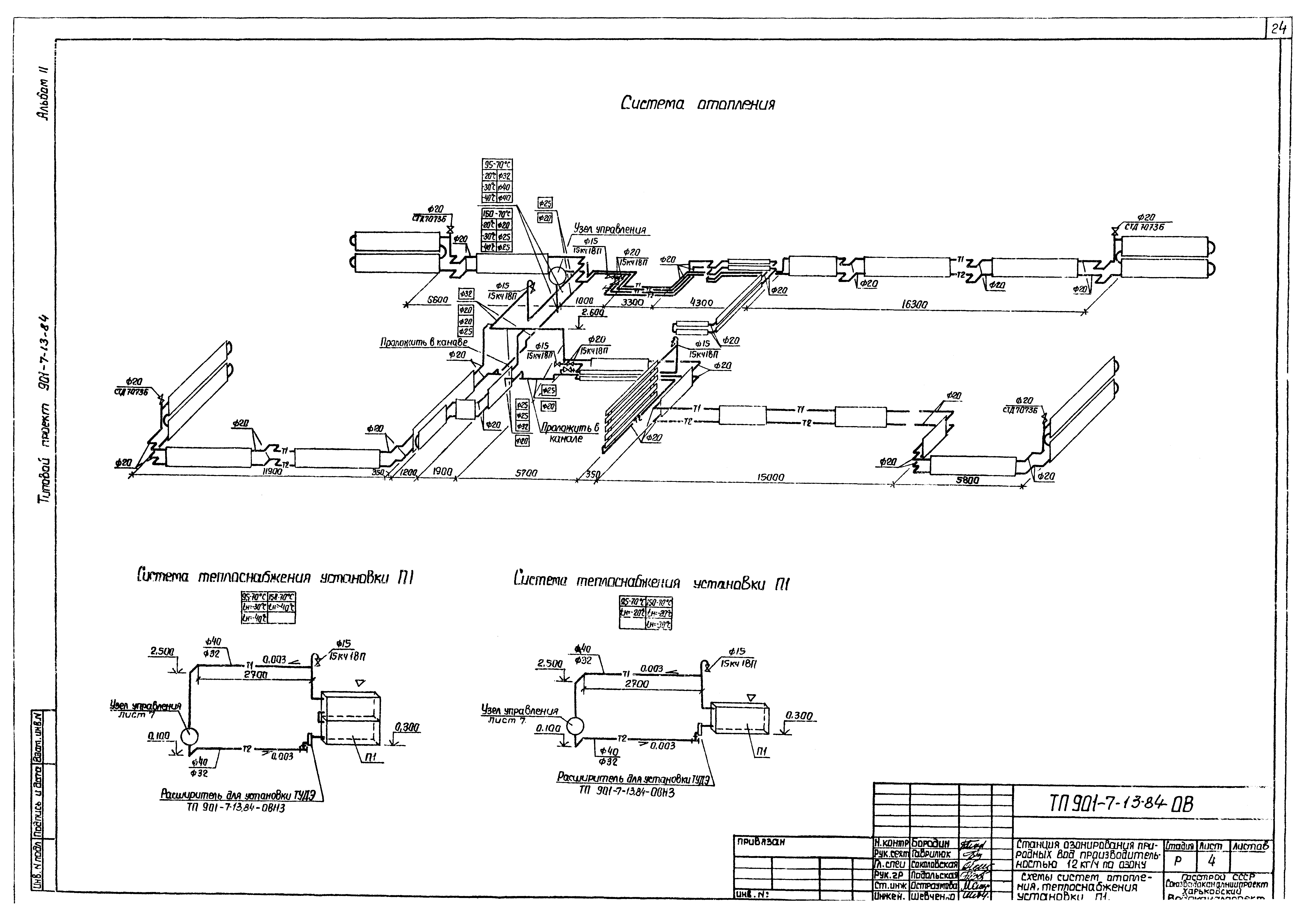
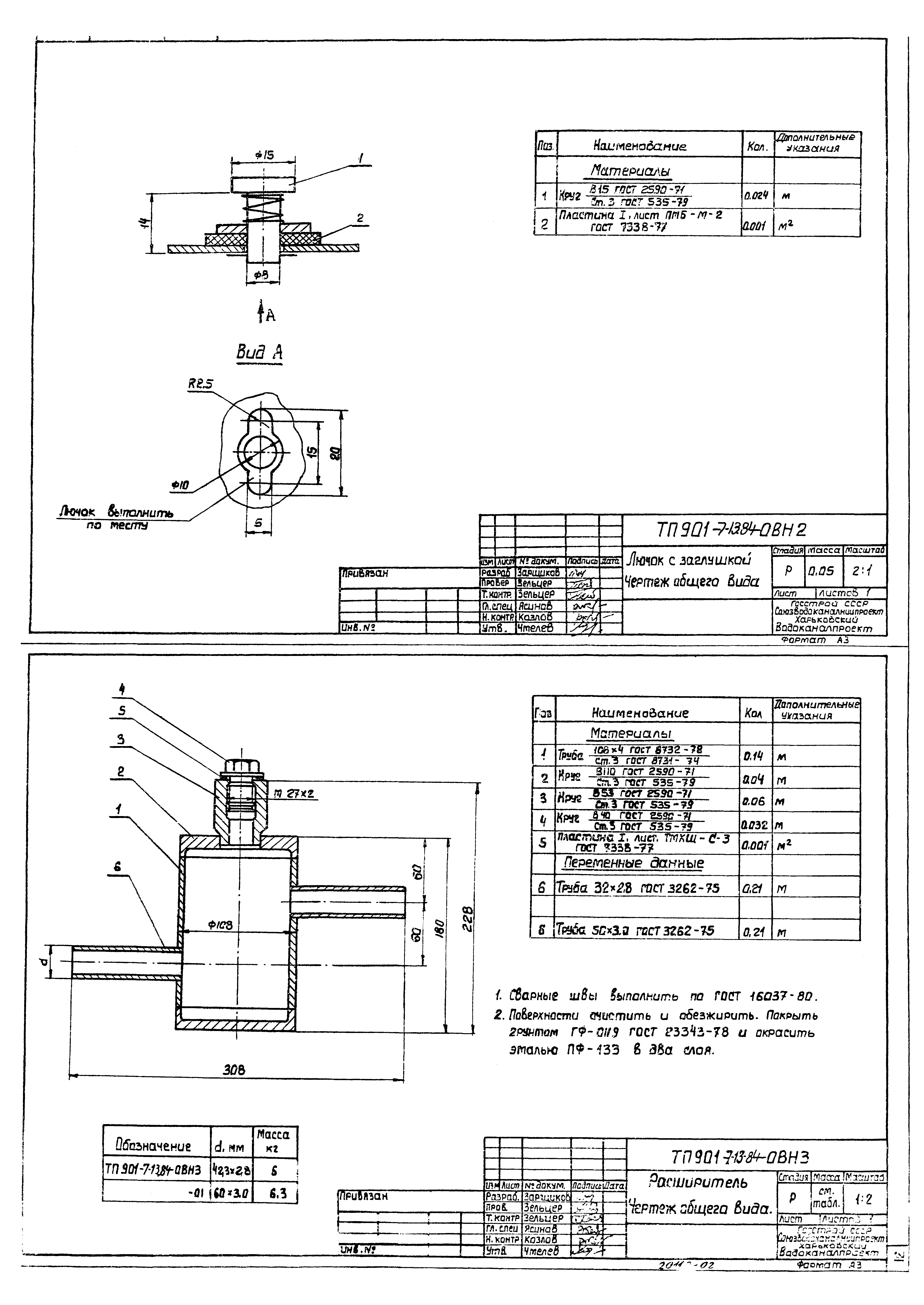
Скачать Типовой проект 901-7-13.84 Альбом II. Технические решения. Отопление и вентиляция. Внутренний водопровод и канализацияДата актуализации: 01.01.2021
|
| Обозначение: | Типовой проект 901-7-13.84 |
| Обозначение англ: | 901-7-13.84 |
| Статус: | не действует |
| Название рус.: | Альбом II. Технические решения. Отопление и вентиляция. Внутренний водопровод и канализация |
| Дата добавления в базу: | 21.05.2015 |
| Дата актуализации: | 01.01.2021 |
| Дата введения: | 15.11.1984 |
| Дата окончания срока действия: | 01.01.1989 |
| Разработан: | Харьковский Водоканалпроект |
| Утверждён: | 05.04.1982 Главпромстройпроект Госстроя СССР (19/5-952) |








































