Скачать Газоочистное оборудование, новые разработки. Каталог общепромышленныйДата актуализации: 01.01.2021
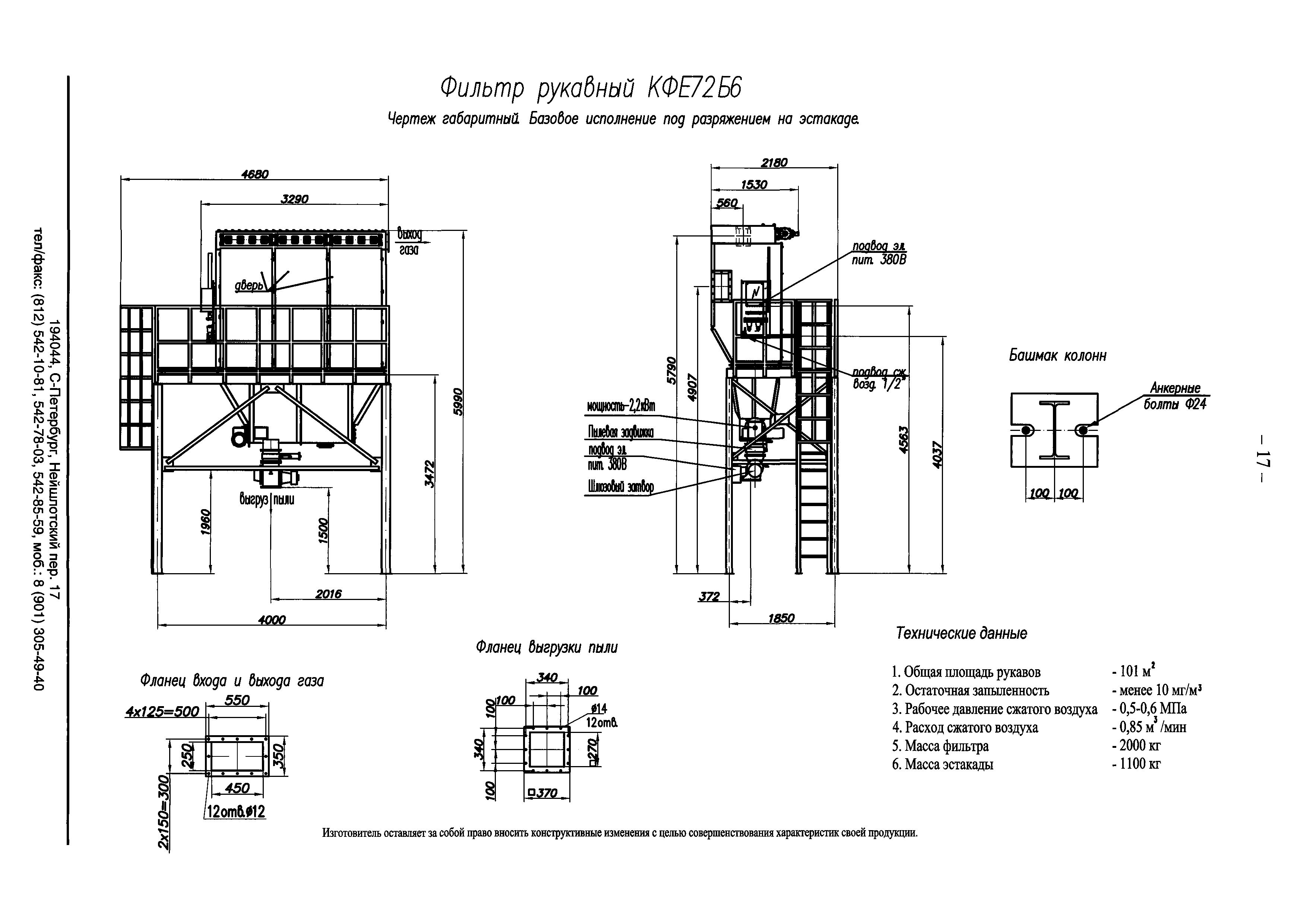
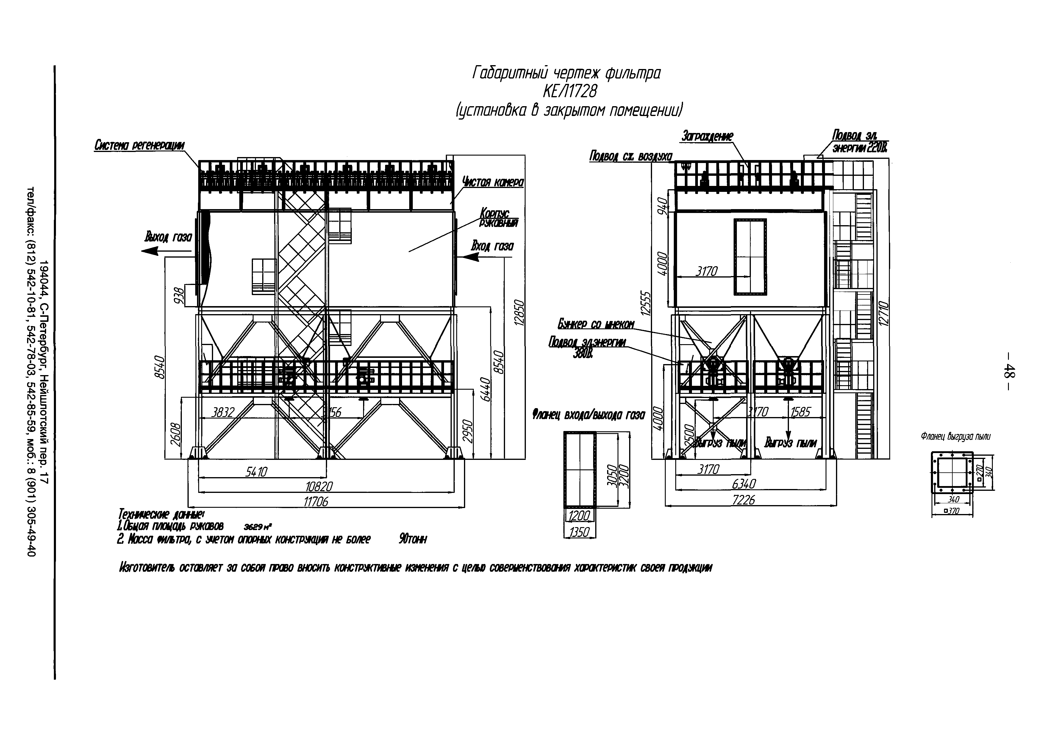
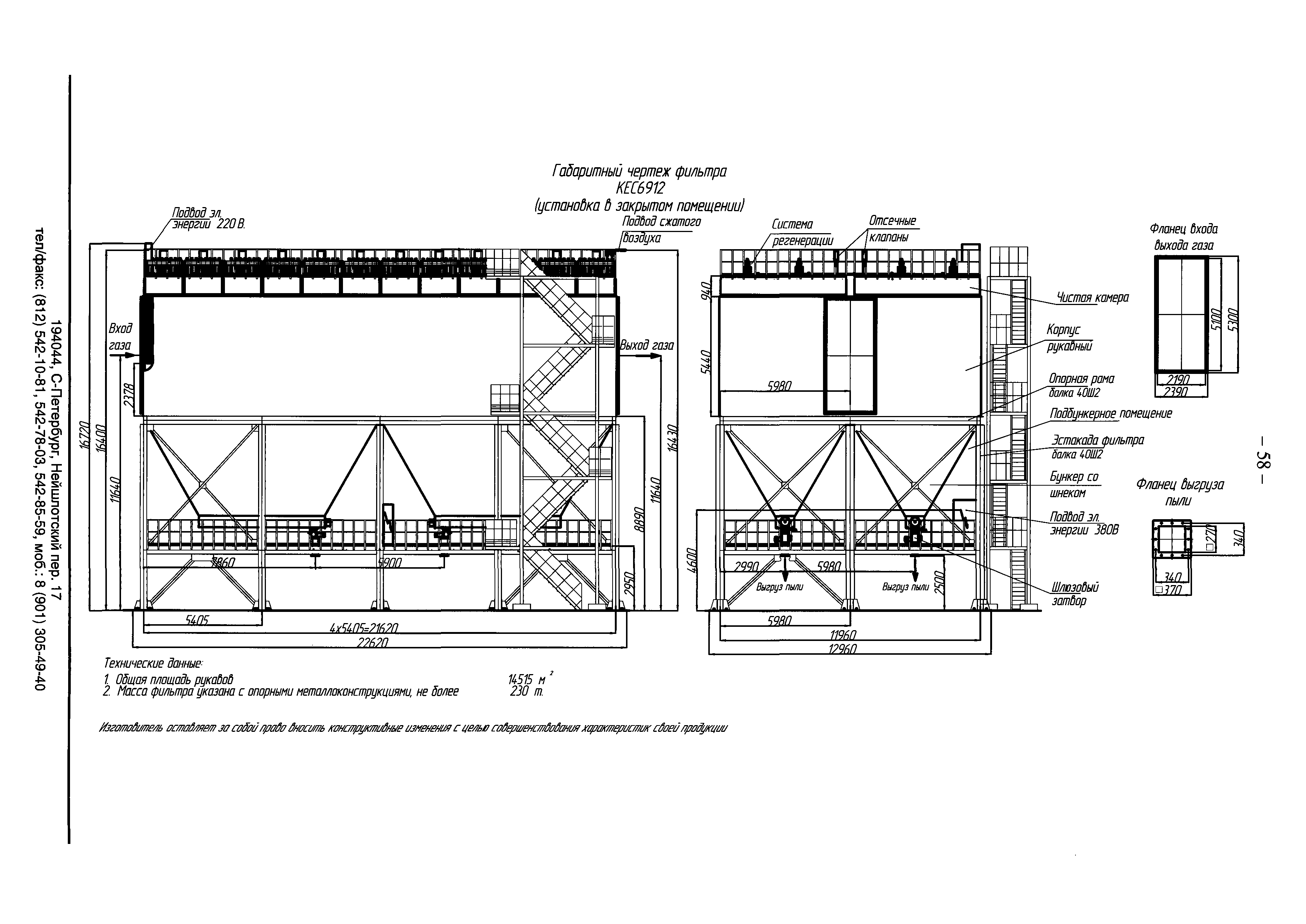
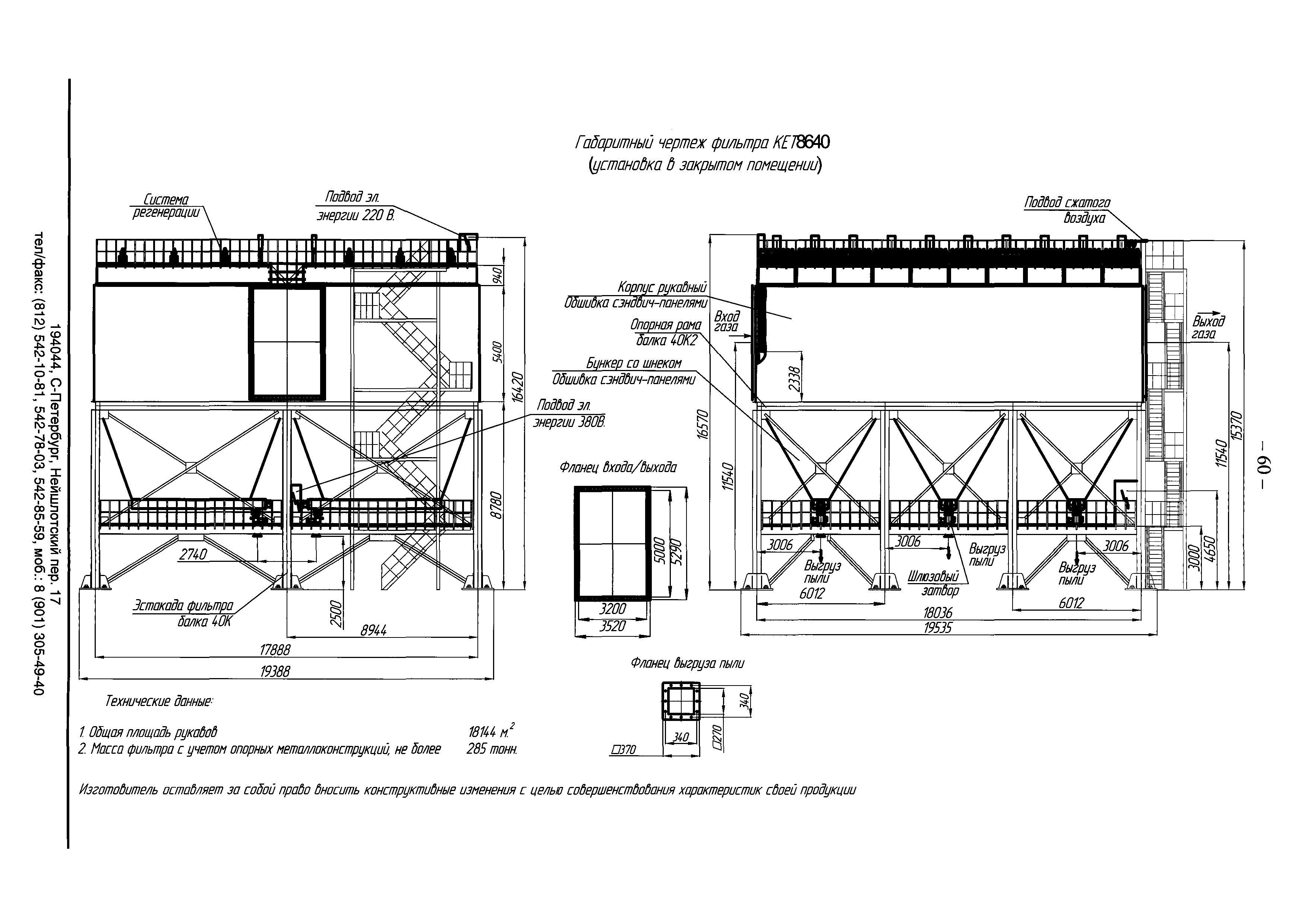
Газоочистное оборудование, новые разработки. Каталог общепромышленный| Статус: | справочные материалы, мп, тпр | | Название рус.: | Газоочистное оборудование, новые разработки. Каталог общепромышленный | | Дата добавления в базу: | 21.05.2015 | | Дата актуализации: | 01.01.2021 | | Область применения: | Данный каталог полностью посвящен сухой промышленной газоочистке. Здесь Вы можете найти наиболее полное описание современного газоочистного оборудования, включая рекомендации по его применению. | | Оглавление: | 1. Введение 2. Фильтры 2.1. Общие положения 2.2. Маркировка 2.3 Фильтроматериалы 2.4 Фильтроэлементы 2.5. Система регенерации 2.6. Кассетные фильтры 2.6.1. Определение модели фильтра КФЕ Сводная таблица технических параметров на фильтры типа КФЕ 2.6.2. Особенности некоторых типов кассетных фильтров КФЕ 2.7. Рукавные фильтры КЕ 2.7.1. Укрытие фильтров КЕ 2.7.2. Определение модели фильтра КЕ Сводная таблица технических параметров на рукавные фильтры КЕМ Сводная таблица технических параметров на рукавные фильтры КЕЛ Сводная таблица технических параметров на рукавные фильтры КЕС и КЕТ 2.8. Пылевыгрузка 3. Дополнительное стандартное оборудование 3.1. Горизонтальные циклоны—искрогасители 3.2. Охладители 3.3. Отсечные клапана газоходов 4. Дополнительное нестандартное оборудование 5. Доставка оборудования 6. Шефмонтаж и пусконаладка 7. Обслуживающий персонал 8. Безопасность 9. Гарантии | | Разработан: | ЗАО СПЕЙС-МОТОР
| | Утверждён: | ЗАО СПЕЙС-МОТОР
|
                                                                            
|