Скачать Рекомендации по классификации архитектурно-строительных решений промышленных объектов в комплектно-блочном исполнении

Дата актуализации: 01.01.2021

Рекомендации по классификации архитектурно-строительных решений промышленных объектов в комплектно-блочном исполнении

Статус:справочные материалы, мп, тпр
Название рус.:Рекомендации по классификации архитектурно-строительных решений промышленных объектов в комплектно-блочном исполнении
Дата добавления в базу:21.05.2015
Дата актуализации:01.01.2021
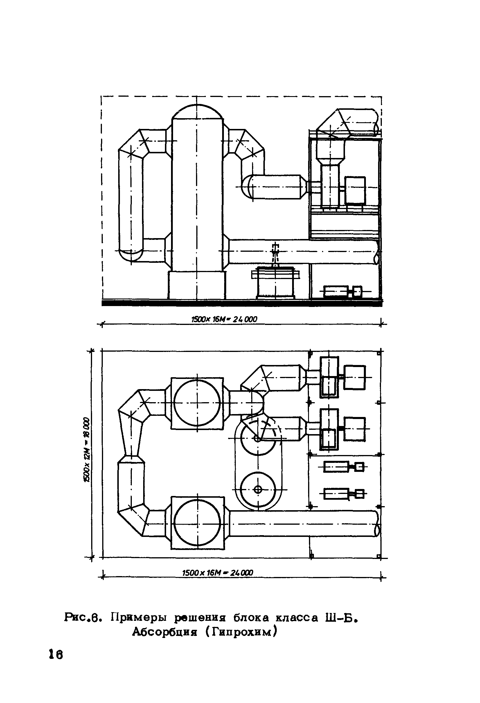
Область применения:Рекомендации содержит основные положения КБМ, термины и определения, принципиальные объемно-планировочные решения и классификационные таблицы, с помощью которых по основным признакам определяется тип объекта, его структура и конструктивная схема.
Оглавление:Предисловие
1. Общие положения
2. Основные термины и определения
3. Классификация технических решений блоков агрегированного оборудования
4. Классификация объемно—планировочных и конструктивных решений технического коридора
5. Классификация архитектурно-строительных решений промышленных объектов в блочном исполнении
Разработан: ЦНИИОМТП
ВНИИМСС
МАрхИ
ЦНИИпромзданий Госстроя СССР
Утверждён: ЦНИИпромзданий Госстроя СССР (TsNIIpromzdaniy, USSR Gosstroy )
Нормативные ссылки: