Скачать Правила начертания условных знаков на топографических планах подземных коммуникаций масштабов 1:5000, 1:2000, 1:1000, 1:500Дата актуализации: 01.01.2021
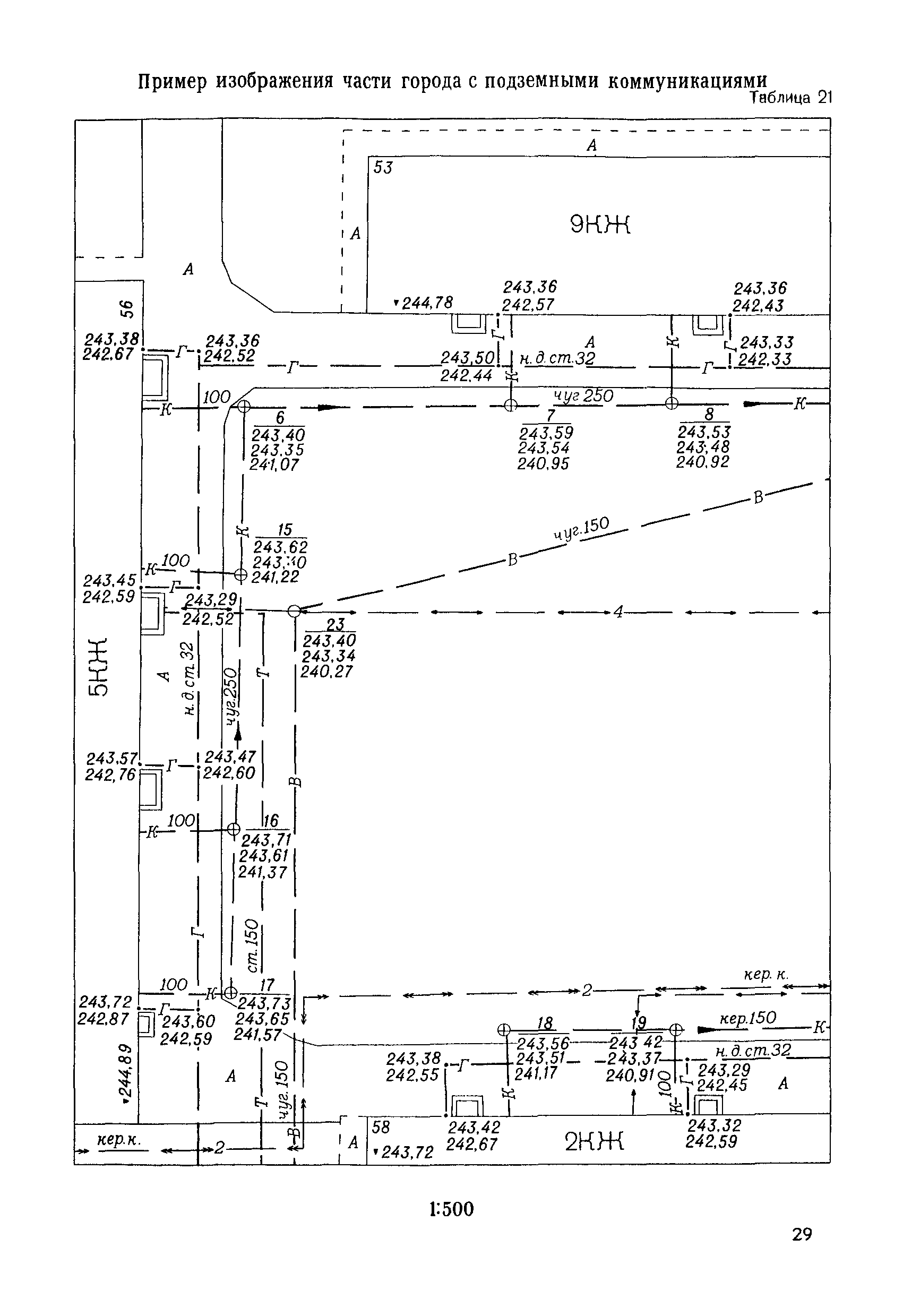
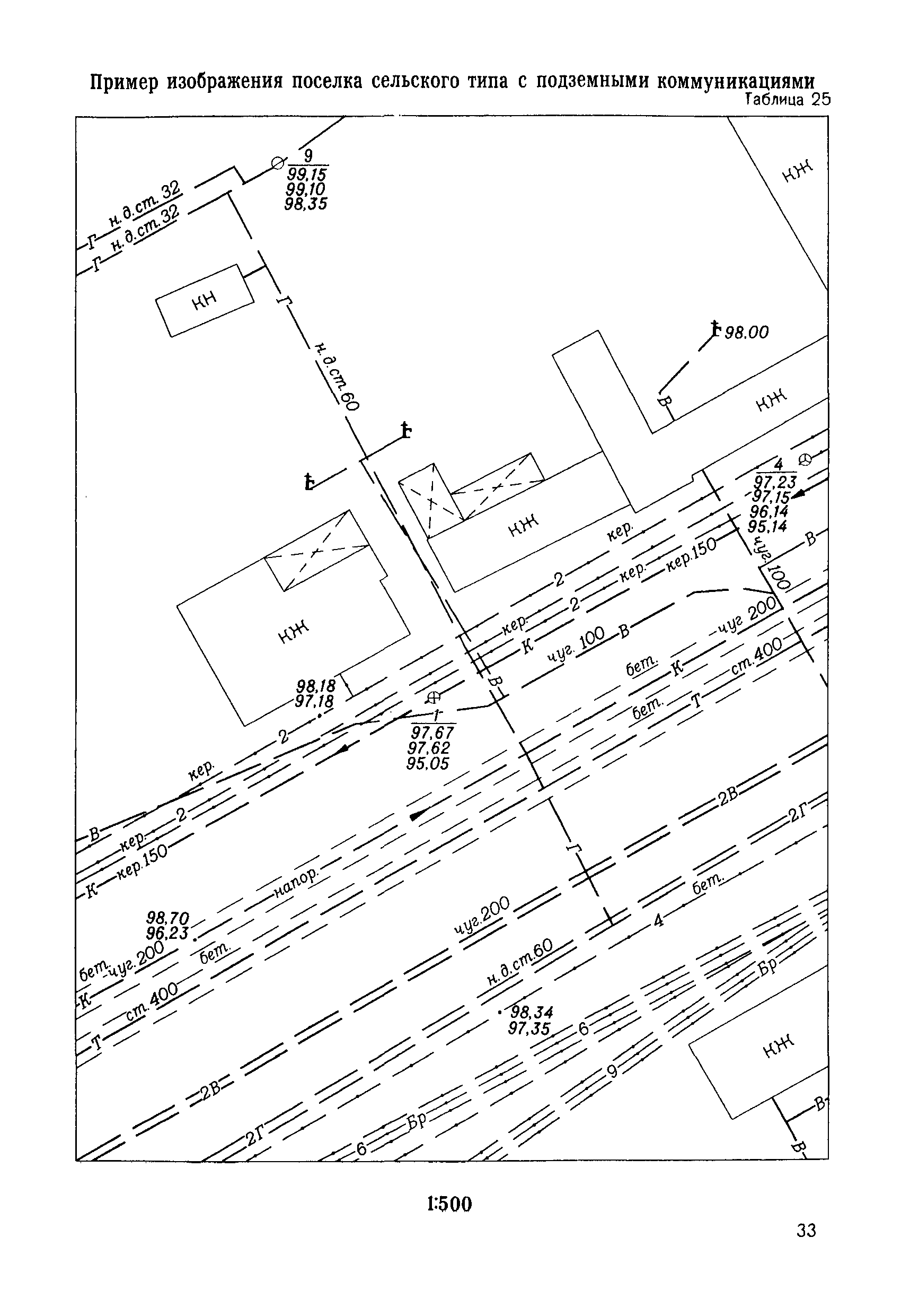
Правила начертания условных знаков на топографических планах подземных коммуникаций масштабов 1:5000, 1:2000, 1:1000, 1:500| Статус: | утратил силу | | Название рус.: | Правила начертания условных знаков на топографических планах подземных коммуникаций масштабов 1:5000, 1:2000, 1:1000, 1:500 | | Дата добавления в базу: | 21.05.2015 | | Дата актуализации: | 01.01.2021 | | Дата введения: | 01.01.1981 | | Дата окончания срока действия: | 01.01.2018 | | Оглавление: | Правила начертания условных знаков Условные знаки для планов подземных коммуникаций масштабов 1:5000, 1:2000. 1:1000, 1:500 Пример изображения части города с подземными коммуникациями, масштаб 1:2000 Пример изображения части города с подземными коммуникациями, масштаб 1:1000 Пример изображения промышленной площадки с подземными коммуникациями, масштаб 1:1000 Пример изображения промышленной площадки с раздельной сетью (трубопроводы) подземных коммуникаций, масштаб 1:1000 Пример изображения промышленной площадки с раздельной сетью (кабельные прокладки) подземных коммуникаций, масштаб 1:1000 Пример изображения части города с подземными коммуникациями, масштаб 1:500 Пример изображения проезда с подземными коммуникациями, масштаб 1:500 Пример изображения проезда с раздельной сетью (трубопроводы) подземных коммуникаций, масштаб 1:500 Пример изображения проезда с раздельной сетью (кабельные прокладки) подземных коммуникаций, масштаб 1:500 Пример изображения части города с подземными коммуникациями, масштаб 1:500 Пример изображения части улицы с подземными коммуникациями, масштаб 1:500 Пример изображения части города с подземными коммуникациями, масштаб 1:500 Пример изображения части рабочего поселка с подземными коммуникациями, масштаб 1:500 Пример изображения части города с подземными коммуникациями, масштаб 1:500 Пример изображения поселка сельского типа (районный центр) с подземными коммуникациями, масштаб 1:500 Пример изображения части города с подземными коммуникациями, масштаб 1:500 Пример изображения плана подземных коммуникаций с высотными отметками, масштаб 1:500 Пример изображения поселка сельского типа с подземными коммуникациями, масштаб 1:500 Пример изображения территории бензозаправочной станции с подземными коммуникациями, масштаб 1:500 Пример изображения плана подземных коммуникаций с высотными отметками, масштаб 1:500 Пример изображения топографического плана с подземными коммуникациями, масштаб 1:500 Пример изображения плана подземных коммуникаций с высотными отметками, масштаб 1:500 Перечень условных сокращений Алфавитный указатель условных знаков Вкладка: образец оформления рамок | | Разработан: | НИИПГ ГУГК
| | Утверждён: | 28.04.1979 Главное управление геодезии и картографии при Совете Министров СССР (National Administration for Geodesy and Cartography at the USSR Cabinet of Ministers )
| | Издан: | Издательство Недра (1981 г. )
|
                                            
|