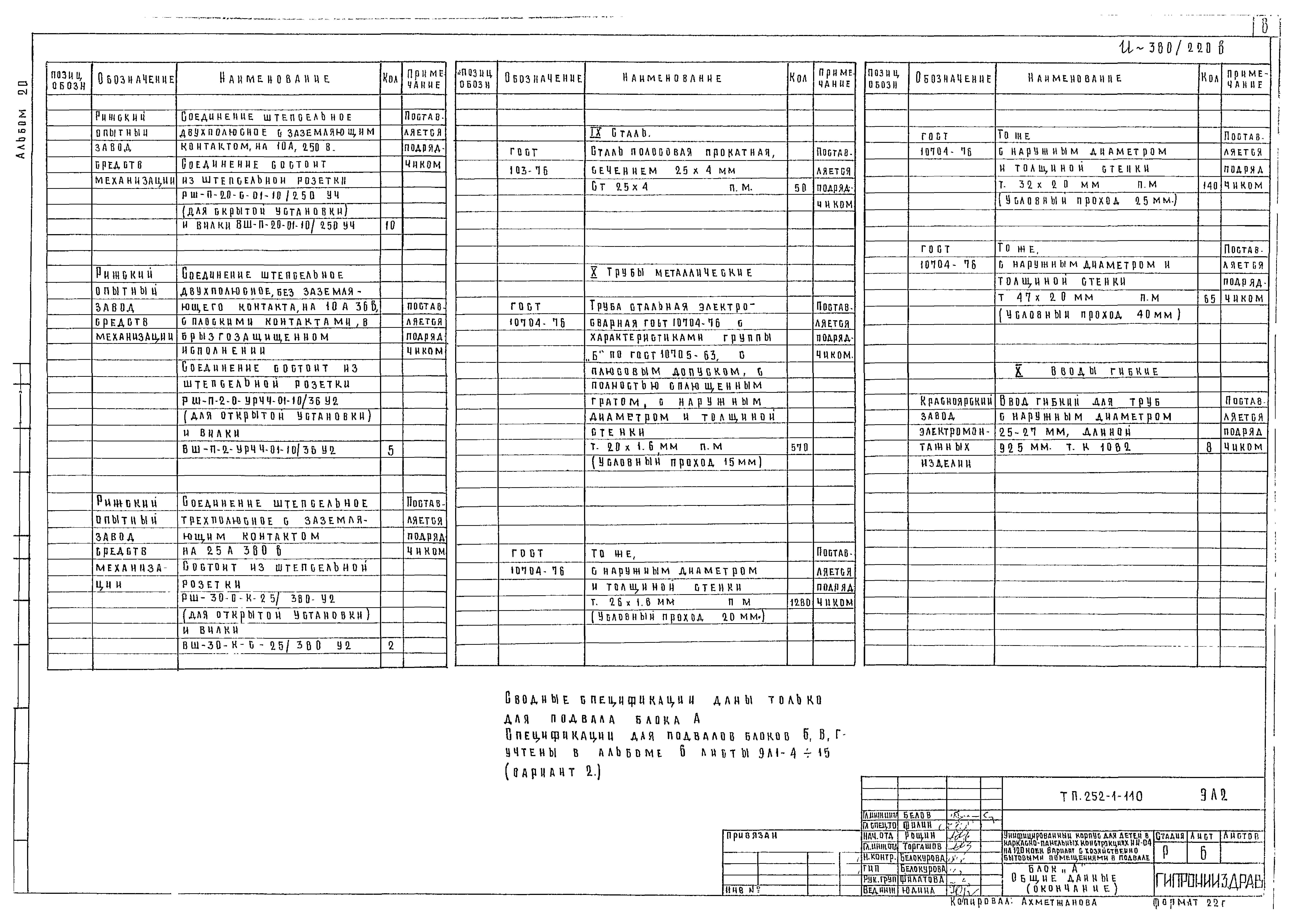
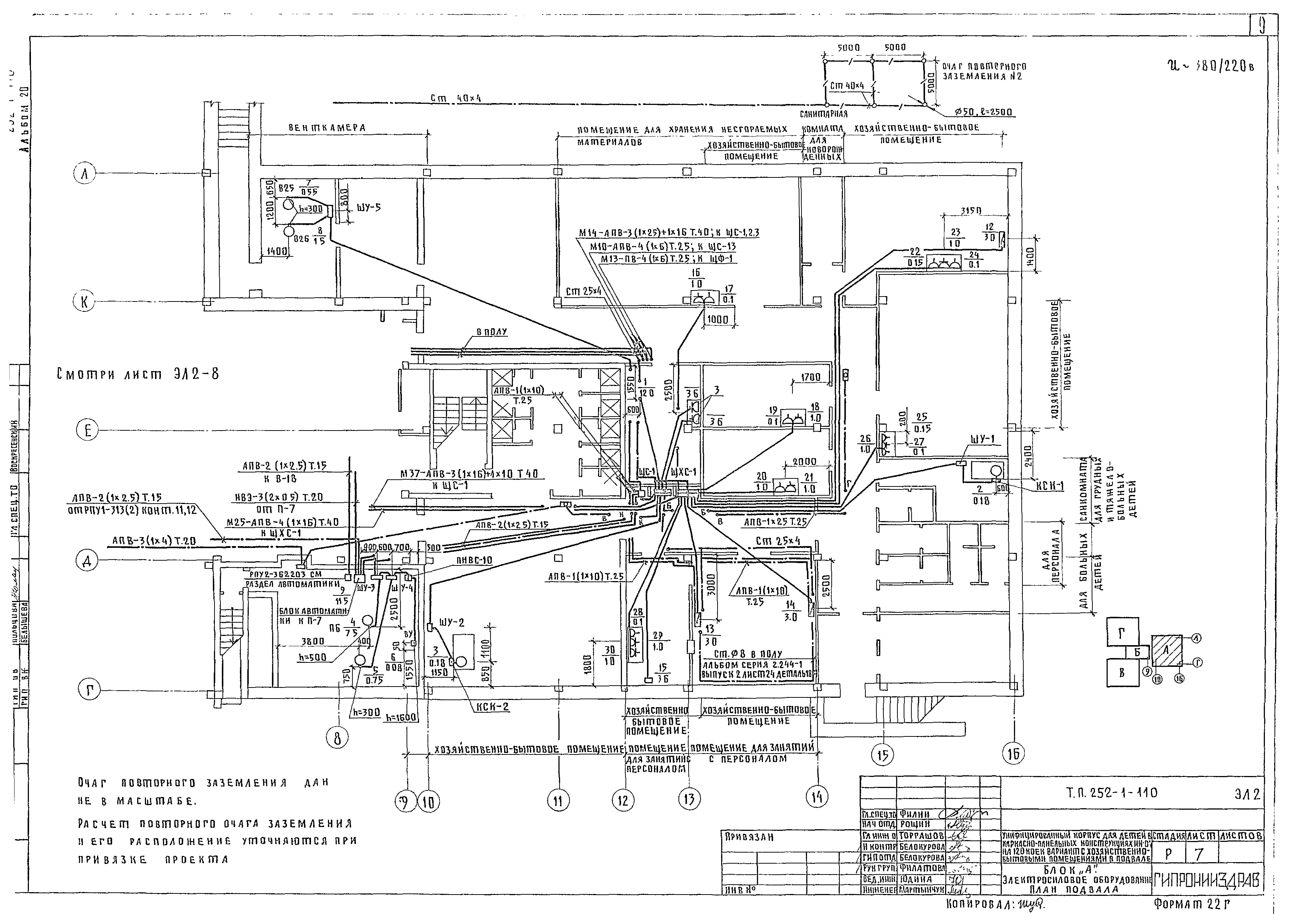
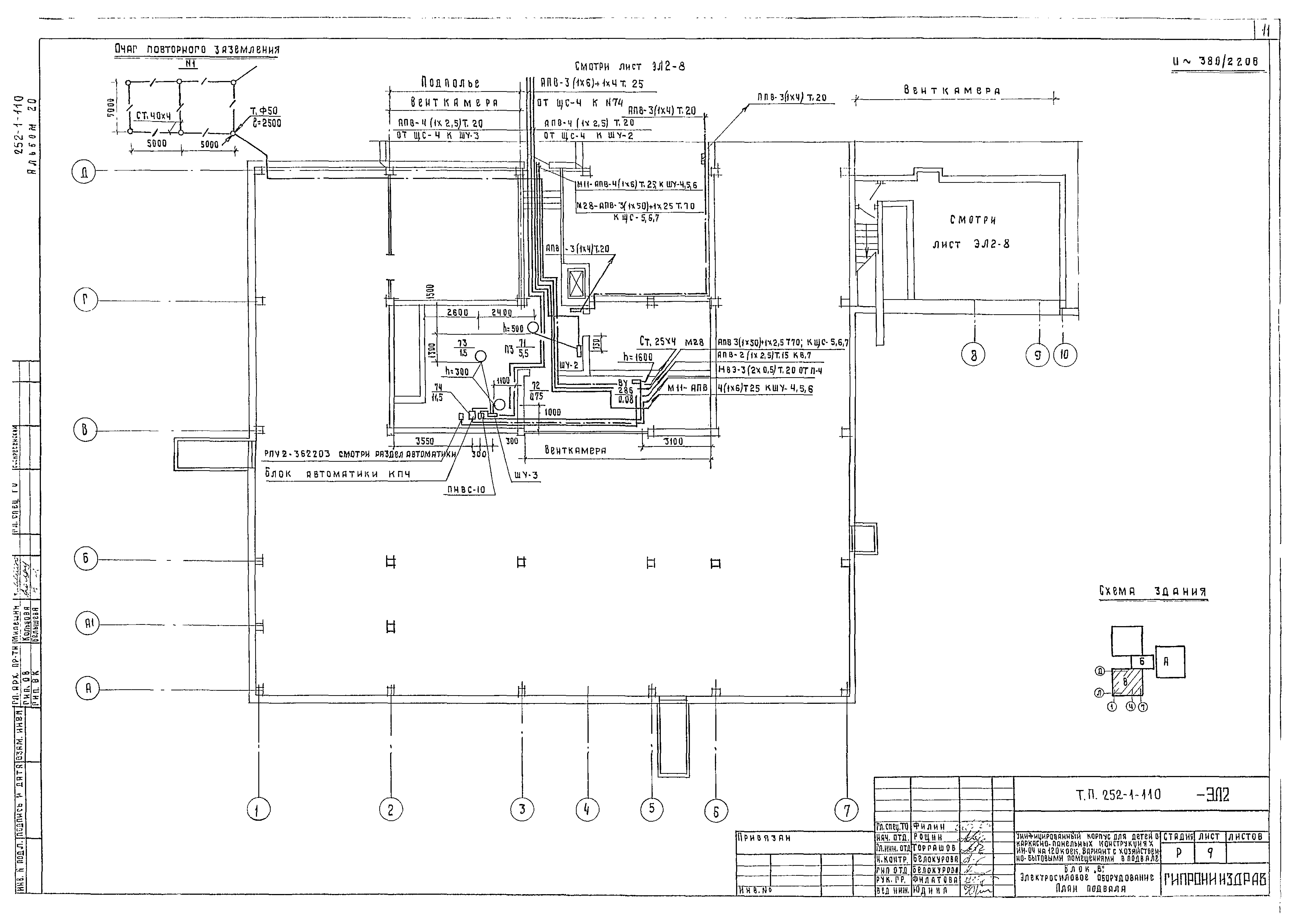
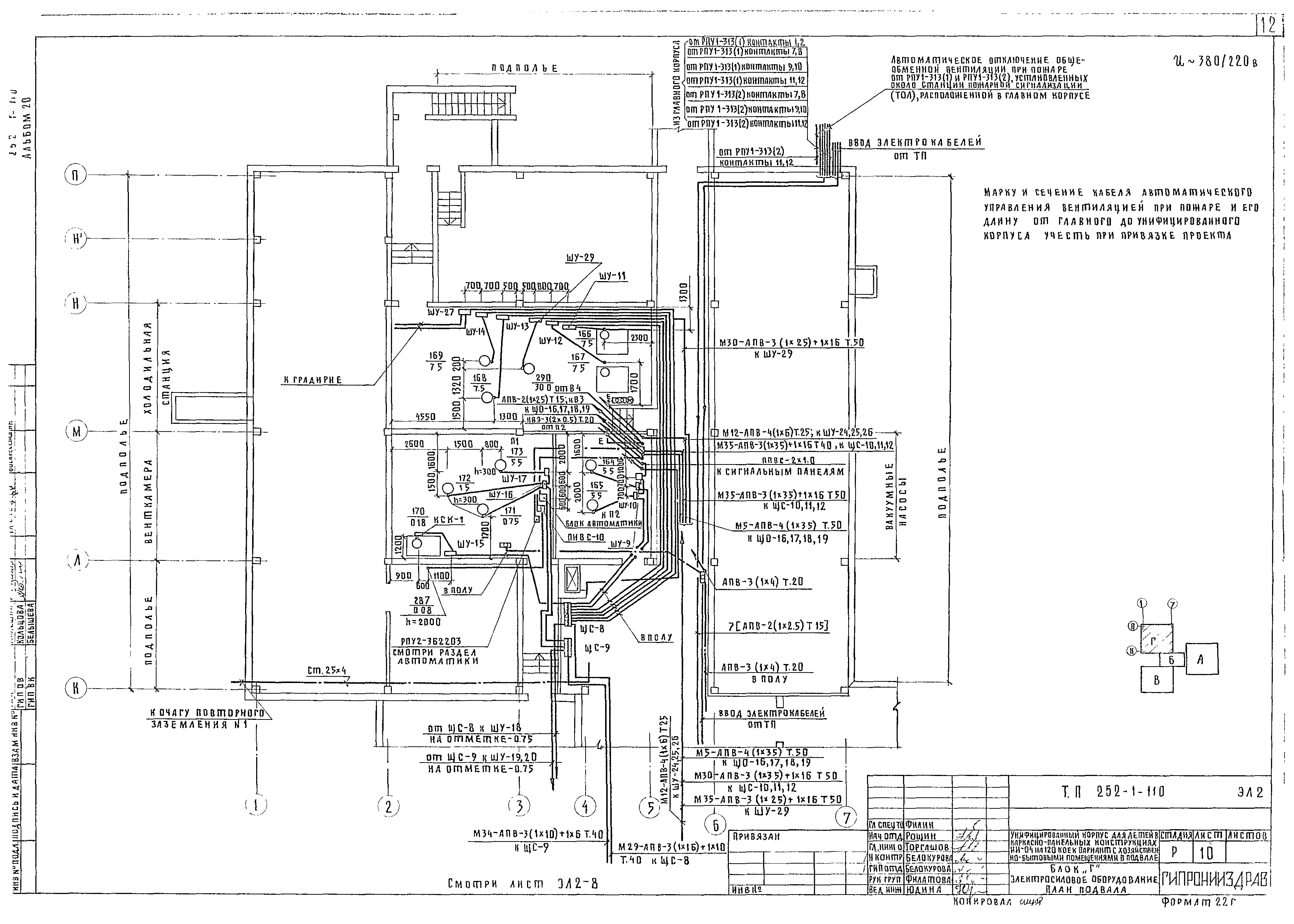
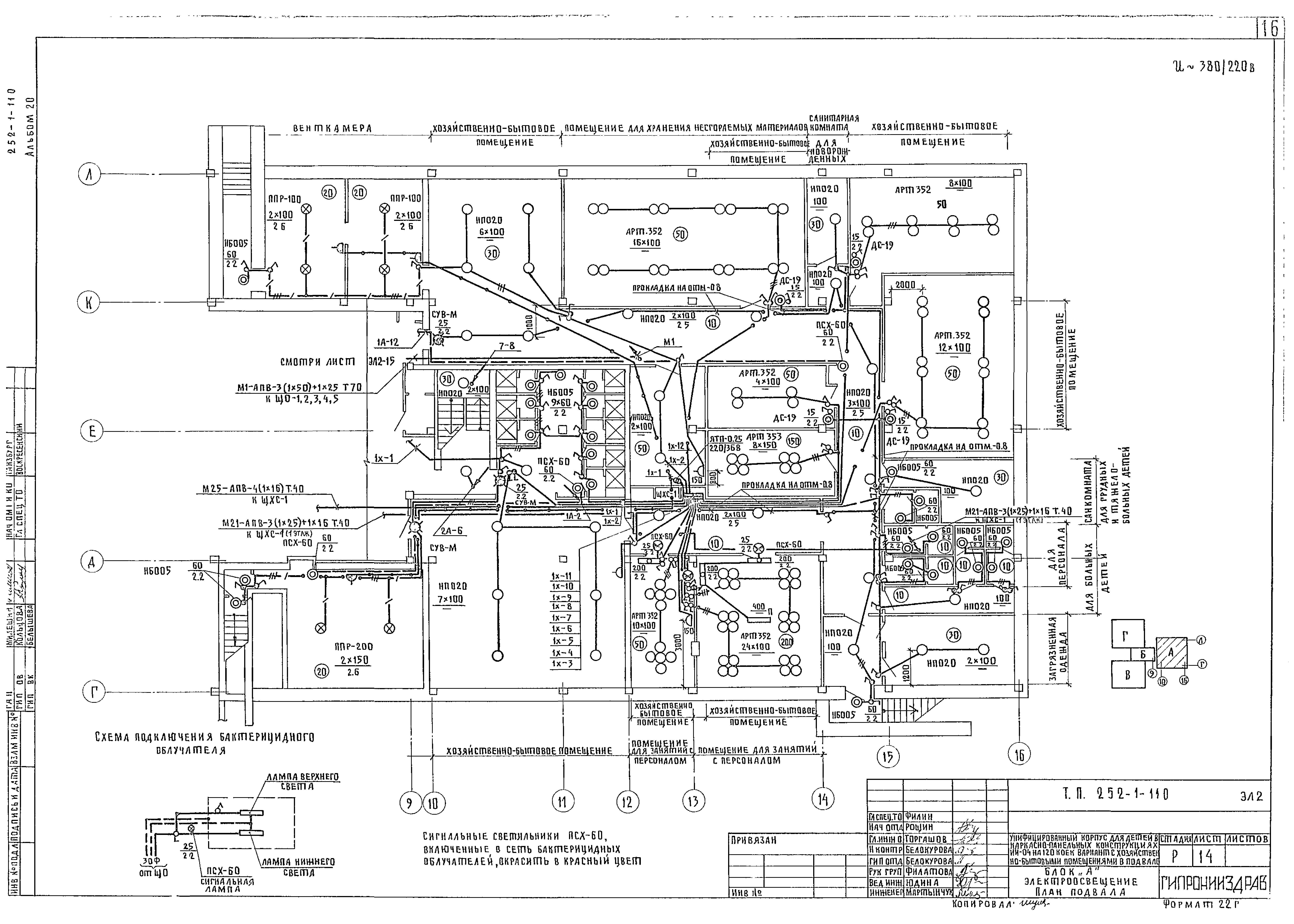
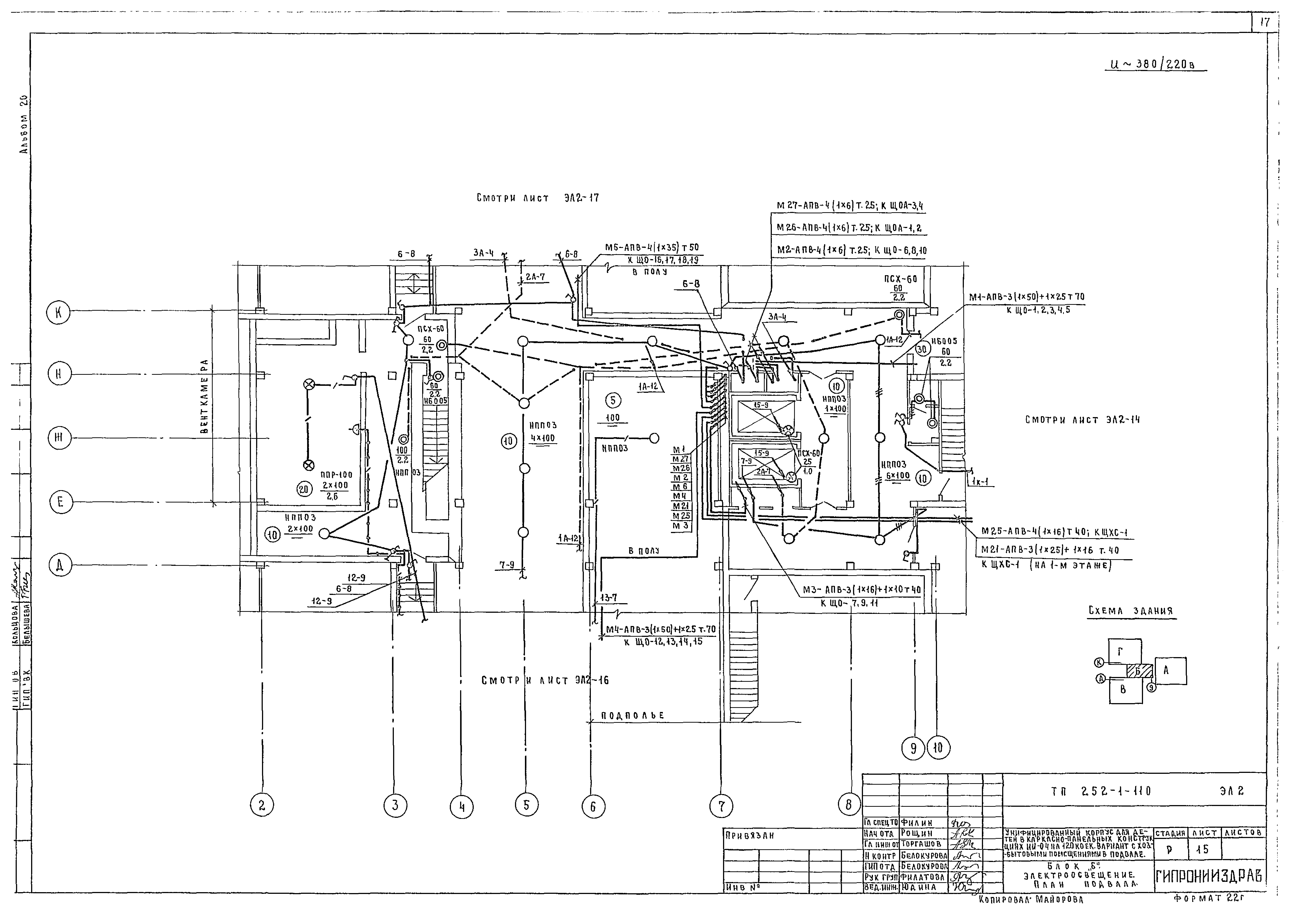
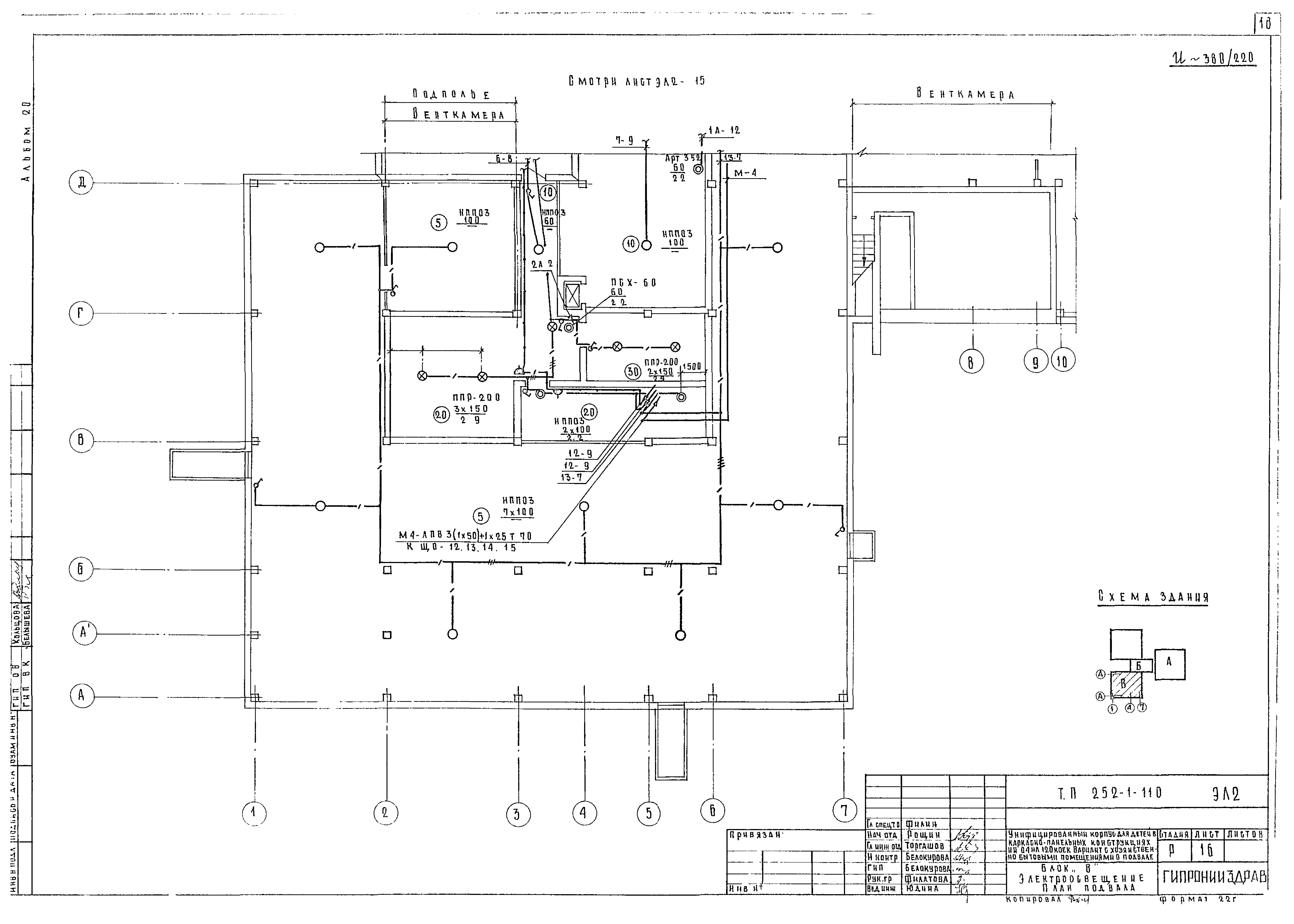
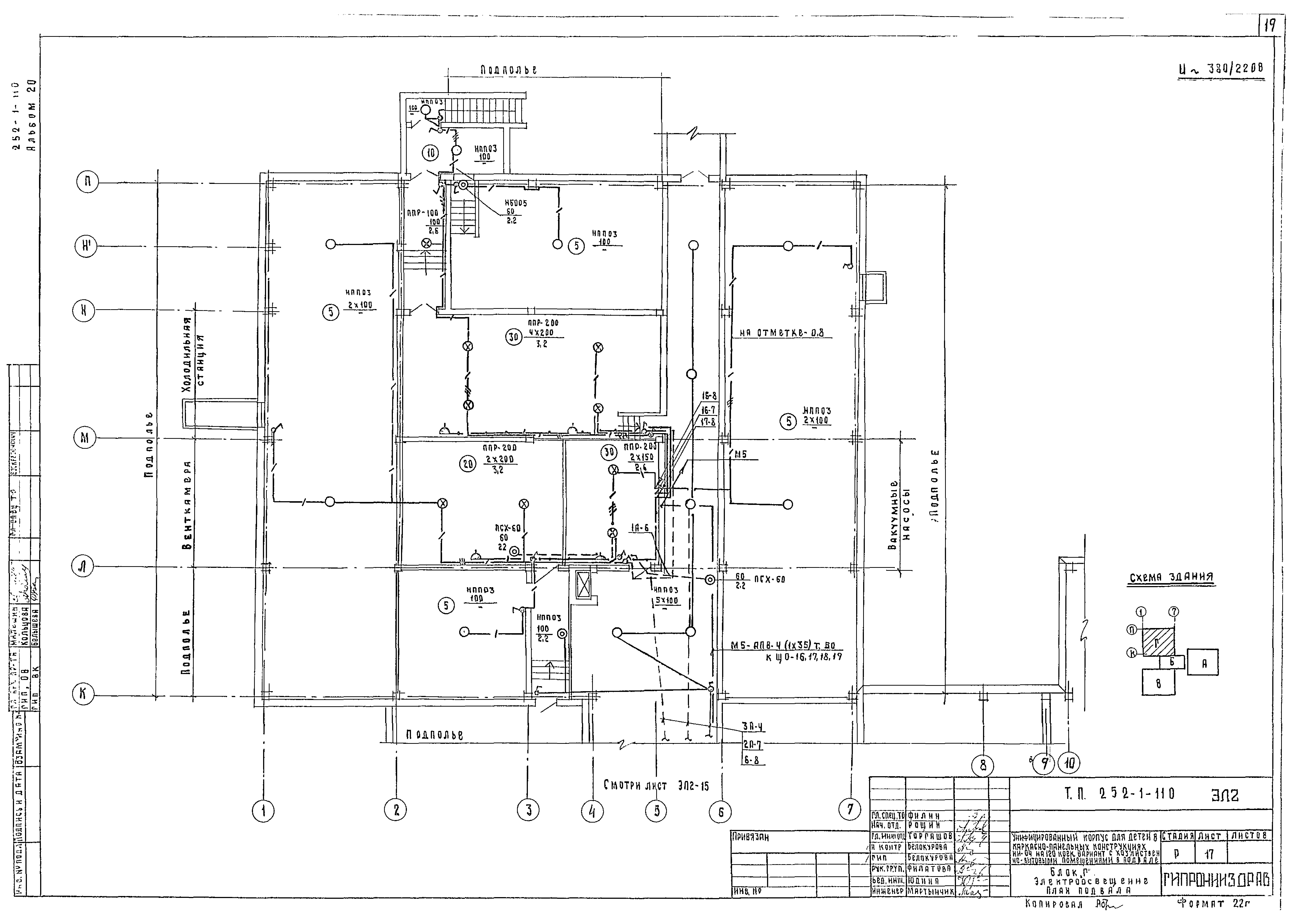
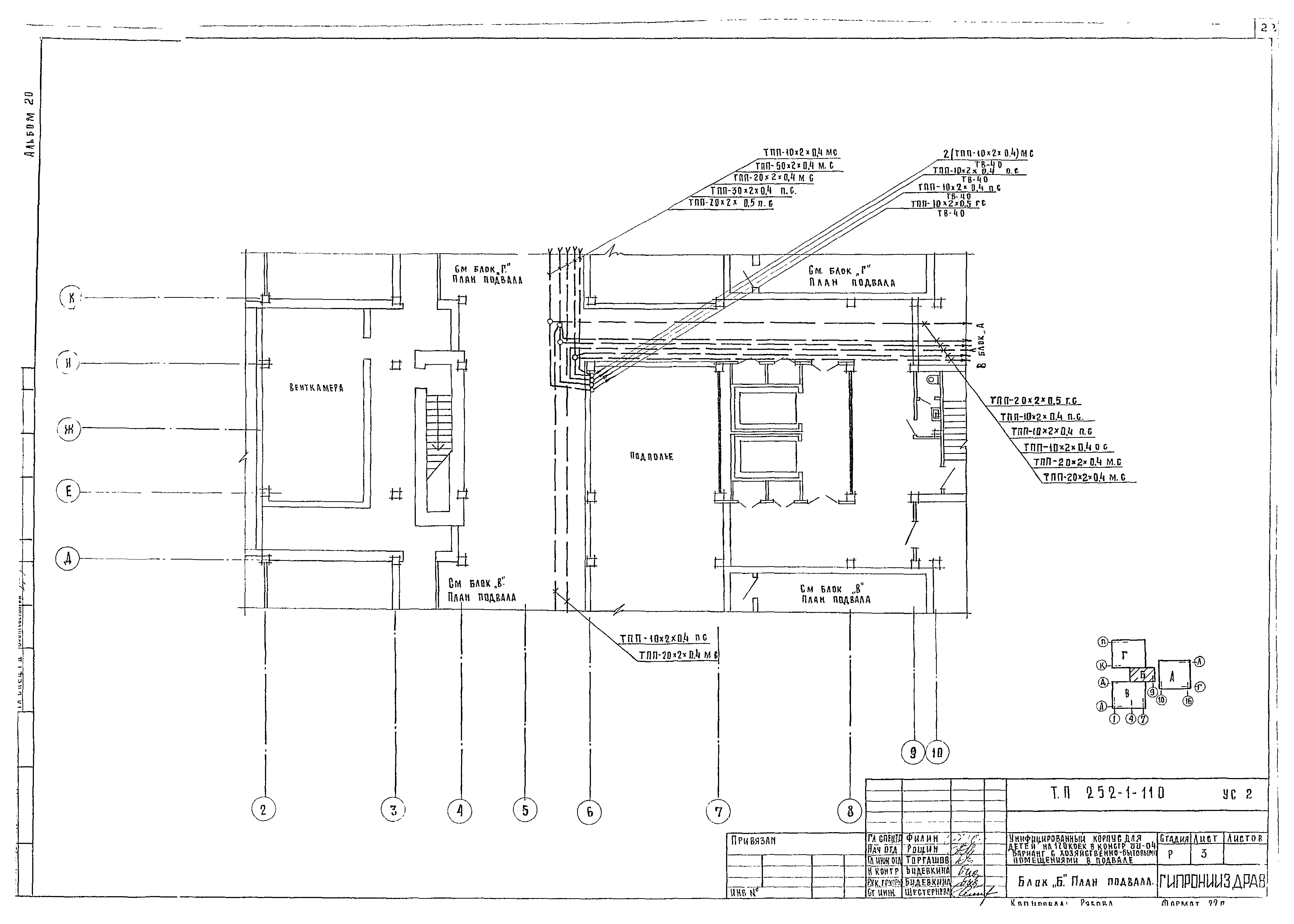
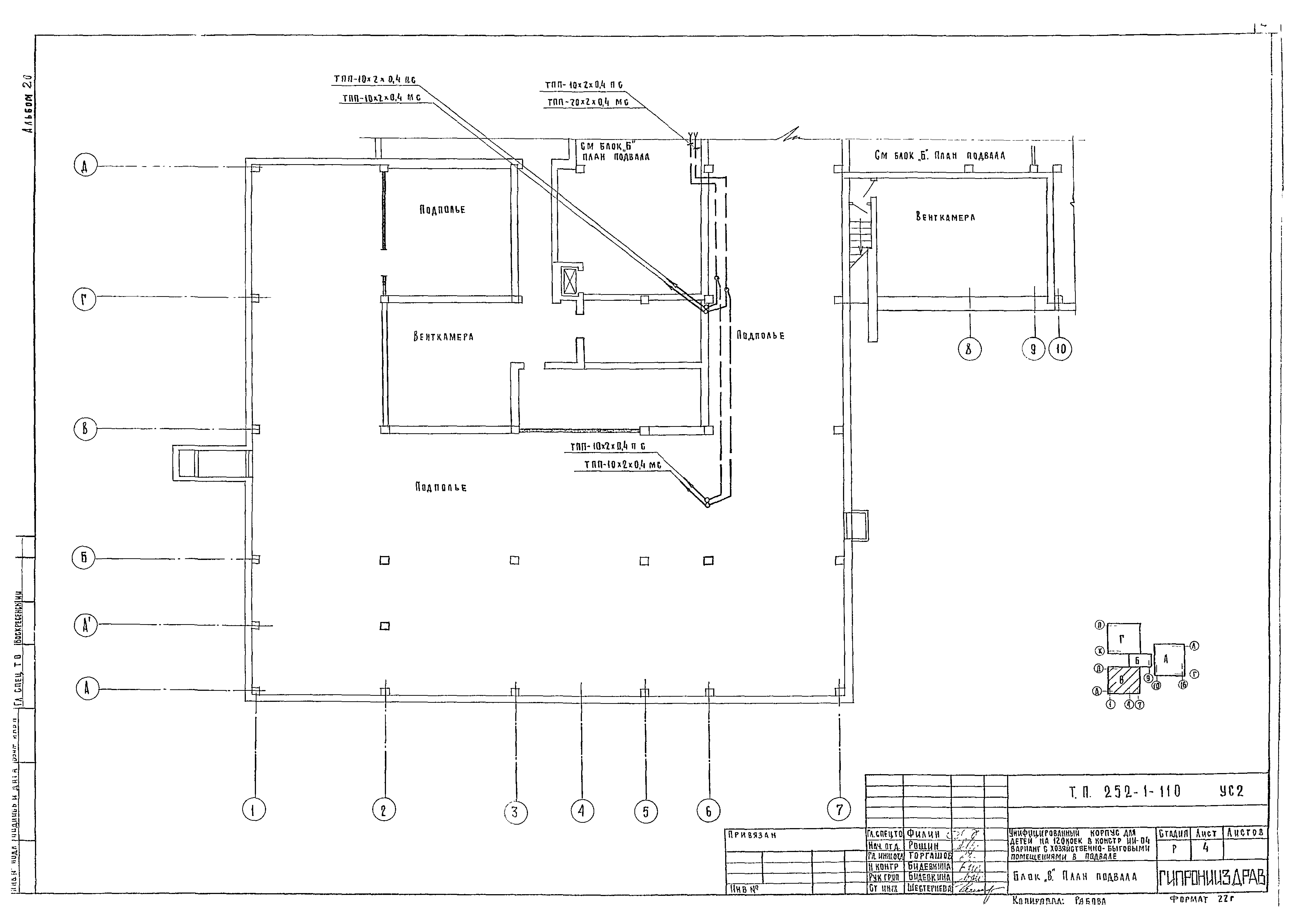
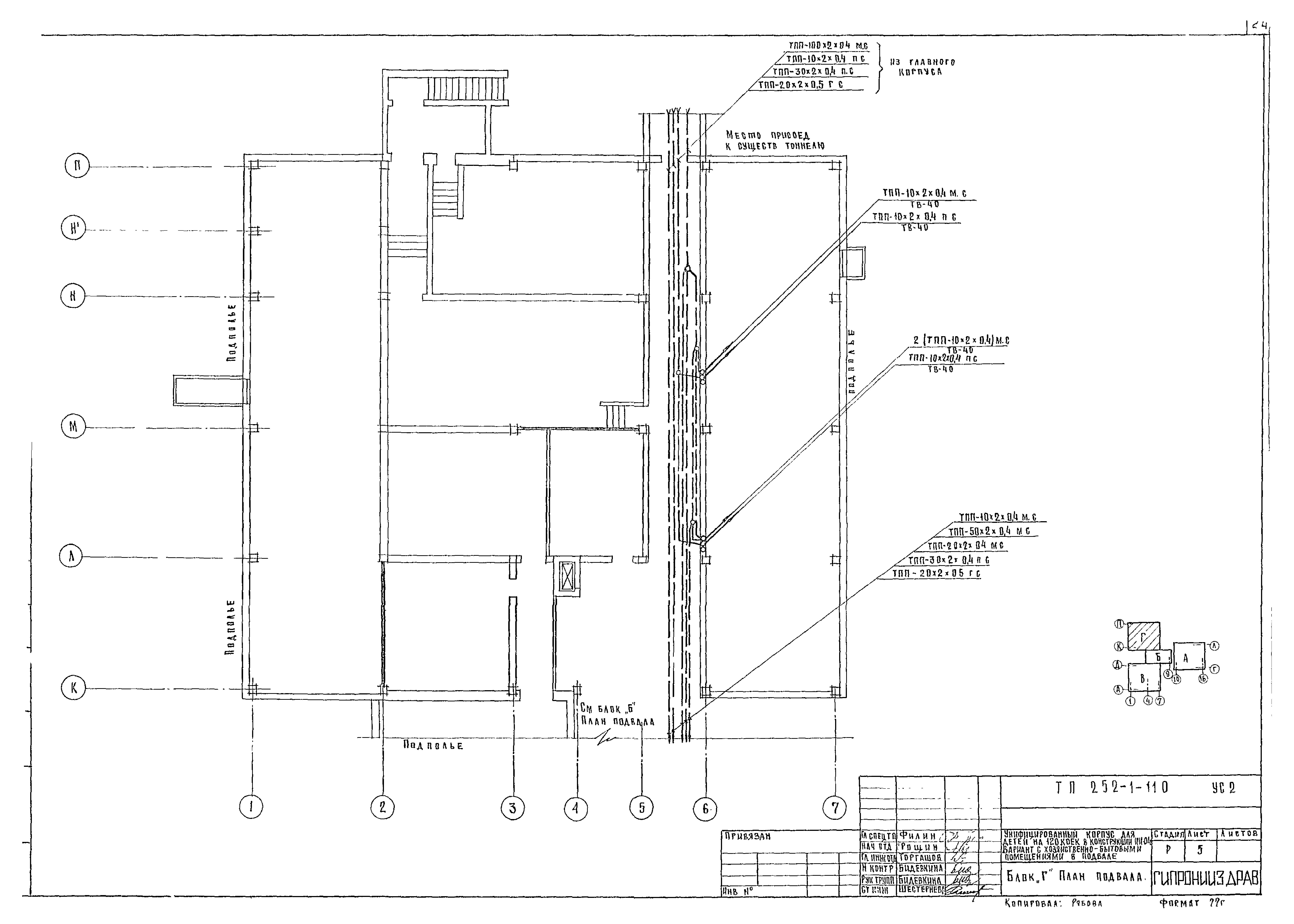
Скачать Типовой проект 252-1-110 Альбом 20. Электрооборудование. Устройство связи. Вариант с хозяйственно-бытовыми помещениями в подвале, приспособленными под ПРУДата актуализации: 01.01.2021 Типовой проект 252-1-110
Альбом 20. Электрооборудование. Устройство связи. Вариант с хозяйственно-бытовыми помещениями в подвале, приспособленными под ПРУ| Обозначение: | Типовой проект 252-1-110 | | Обозначение англ: | 252-1-110 | | Статус: | не определен законодательством | | Название рус.: | Альбом 20. Электрооборудование. Устройство связи. Вариант с хозяйственно-бытовыми помещениями в подвале, приспособленными под ПРУ | | Дата добавления в базу: | 21.05.2015 | | Дата актуализации: | 01.01.2021 | | Дата введения: | 12.02.1982 | | Дата окончания срока действия: | 30.06.2003 | | Разработан: | ГипроНИИздрав Минздрава СССР
| | Утверждён: | 27.02.1980 Минздрав СССР (USSR Minzdrav 198)
|
                      
|