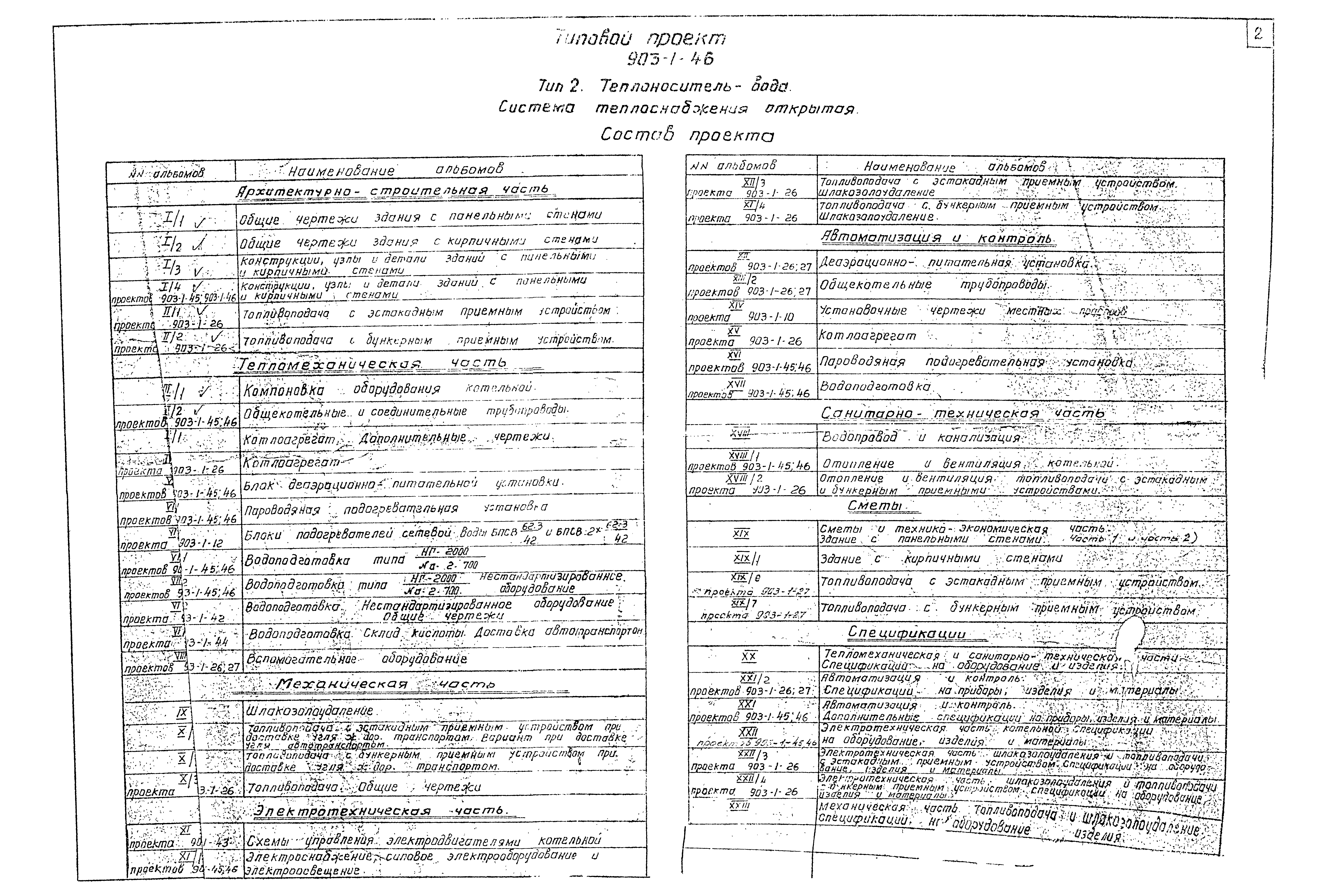
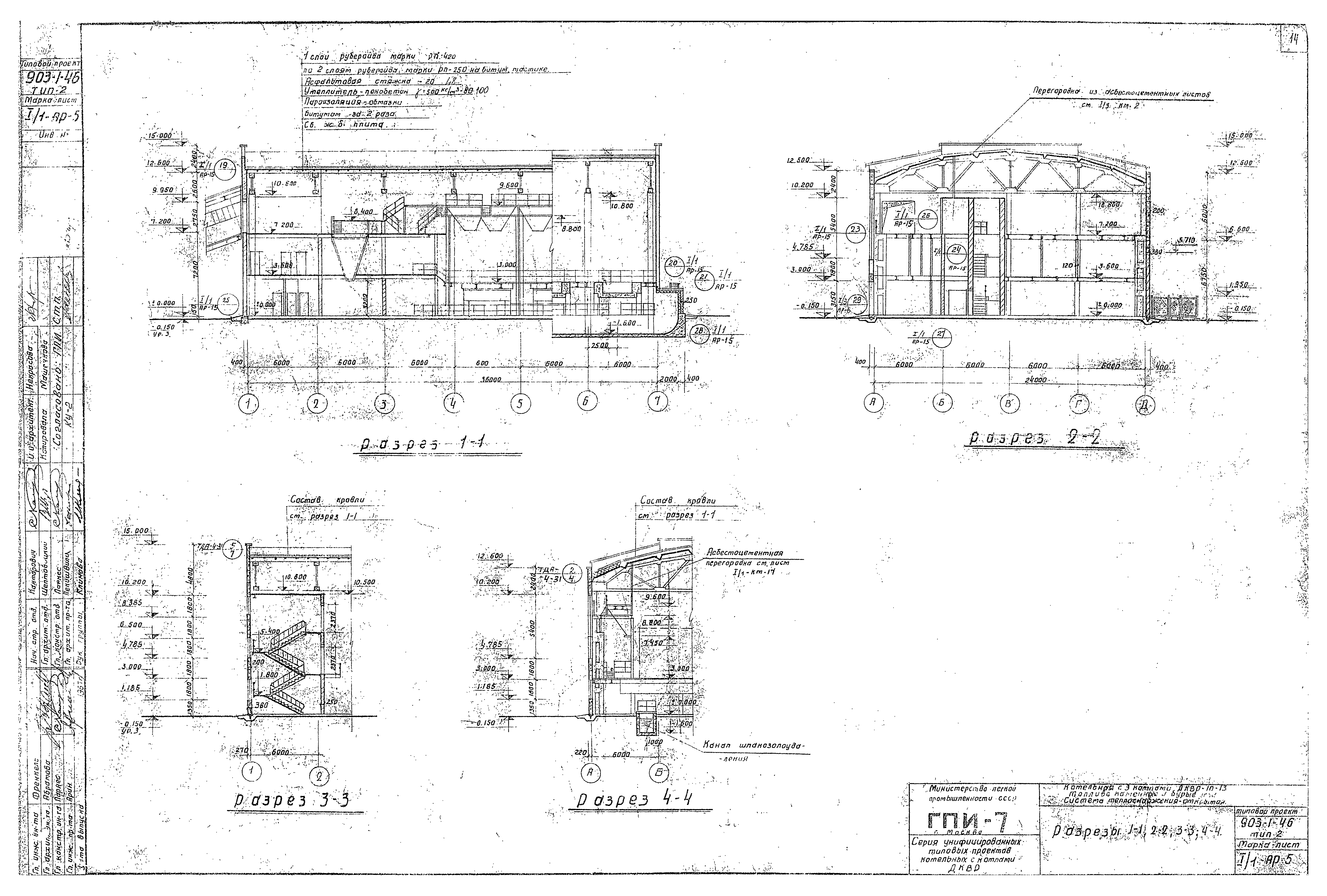
Скачать Типовой проект 903-1-46 Альбом I/1. Общие чертежи здания с панельными стенамиДата актуализации: 01.01.2021 Типовой проект 903-1-46
Альбом I/1. Общие чертежи здания с панельными стенами| Обозначение: | Типовой проект 903-1-46 | | Обозначение англ: | 903-1-46 | | Статус: | заменен | | Название рус.: | Альбом I/1. Общие чертежи здания с панельными стенами | | Дата добавления в базу: | 21.05.2015 | | Дата актуализации: | 01.01.2021 | | Дата введения: | 01.05.1968 | | Дата окончания срока действия: | 01.12.1973 | | Разработан: | ГПИ-7 Госкомлегпрома
| | Утверждён: | 01.05.1968 Сантехниипроект
| | Чем заменён: | |
                                                     
|