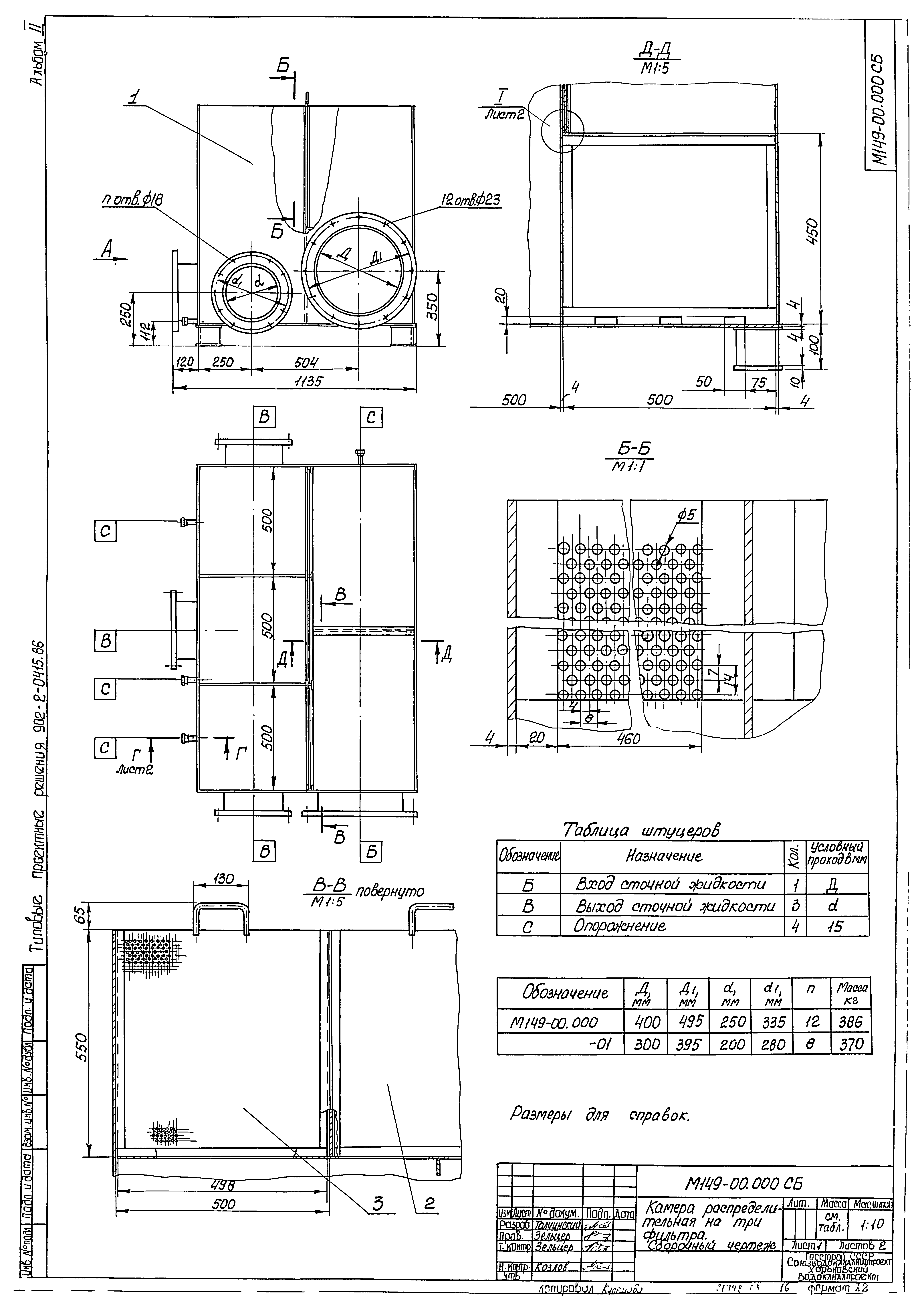
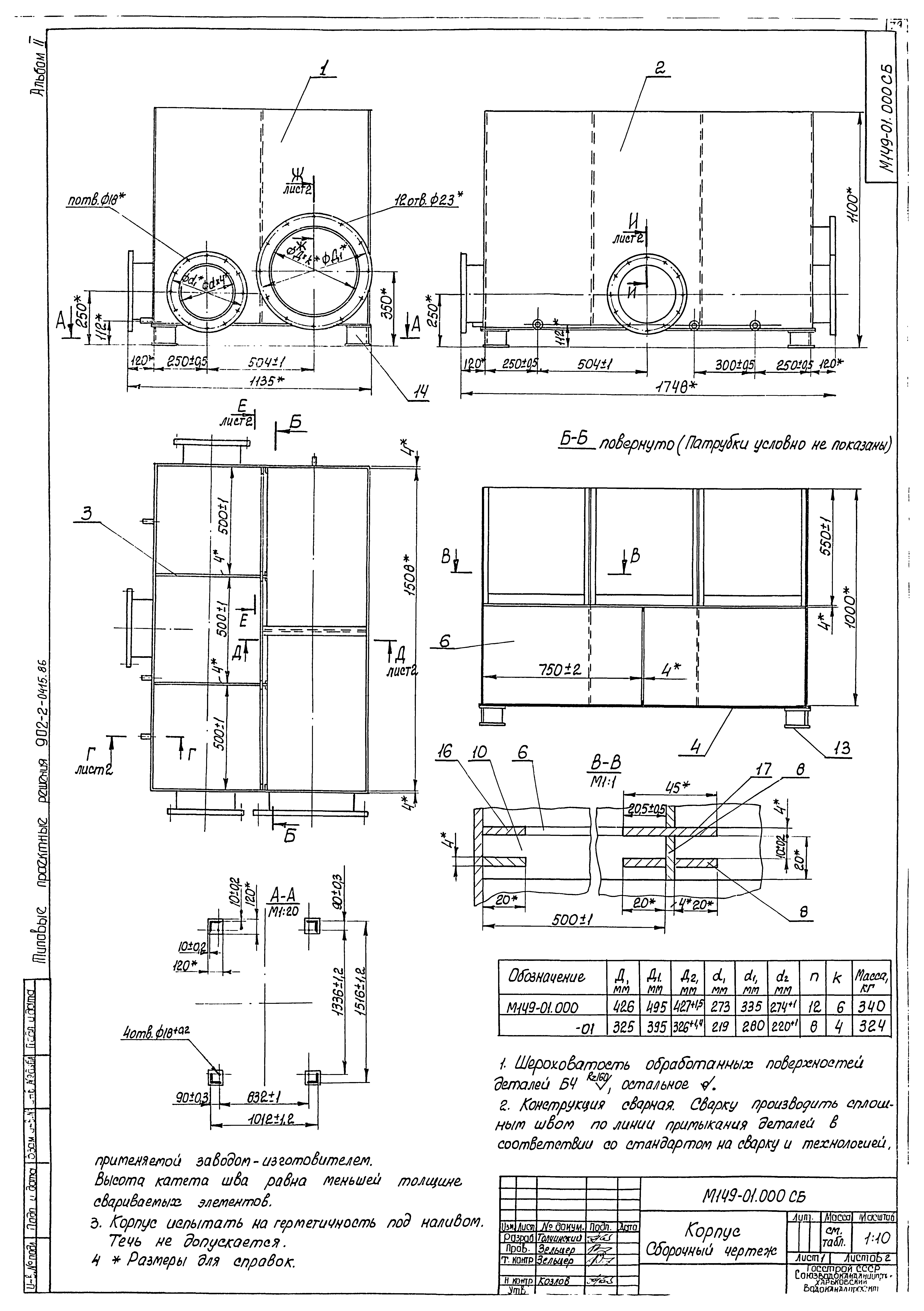
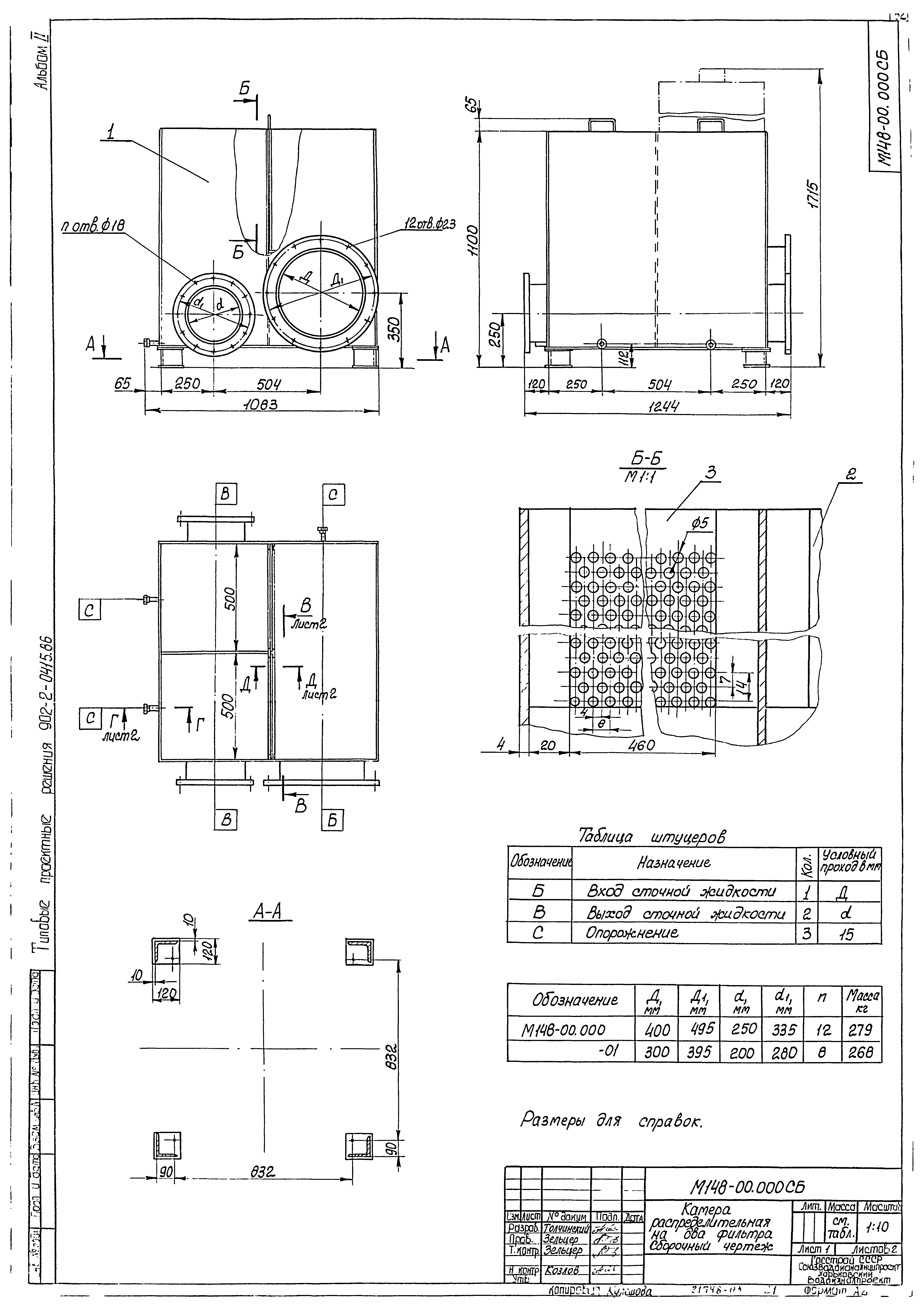
Скачать Типовые проектные решения 902-2-0415.86 Альбом II. Часть 2. Нестандартизированное оборудование. Фильтр с длиной резервуара 6; 8 и 10 м, камера распределительнаяДата актуализации: 01.01.2021 Типовые проектные решения 902-2-0415.86
Альбом II. Часть 2. Нестандартизированное оборудование. Фильтр с длиной резервуара 6; 8 и 10 м, камера распределительная| Обозначение: | Типовые проектные решения 902-2-0415.86 | | Обозначение англ: | 902-2-0415.86 | | Статус: | справочные материалы, мп, тпр | | Название рус.: | Альбом II. Часть 2. Нестандартизированное оборудование. Фильтр с длиной резервуара 6; 8 и 10 м, камера распределительная | | Дата добавления в базу: | 21.05.2015 | | Дата актуализации: | 01.01.2021 | | Дата введения: | 02.12.1986 | | Разработан: | Харьковский Водоканалпроект
| | Утверждён: | 29.08.1986 Госстрой СССР (63)
| | Издан: | ЦИТП Госстроя СССР (CITP, Gosstroy (USSR) 1987 г. )
| | Заменяет собой: | - Типовые проектные решения 902-02-342
|
                      
|