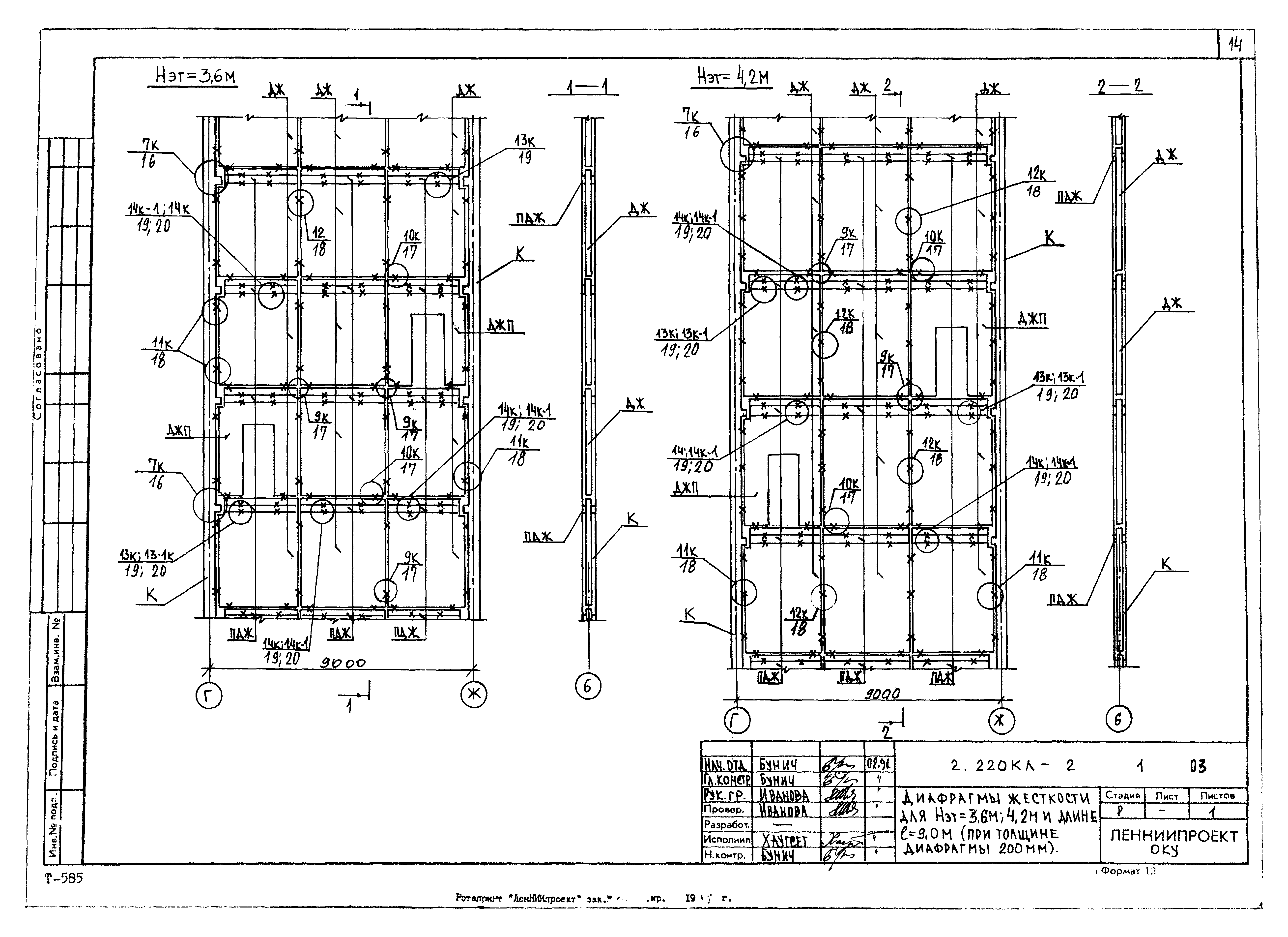
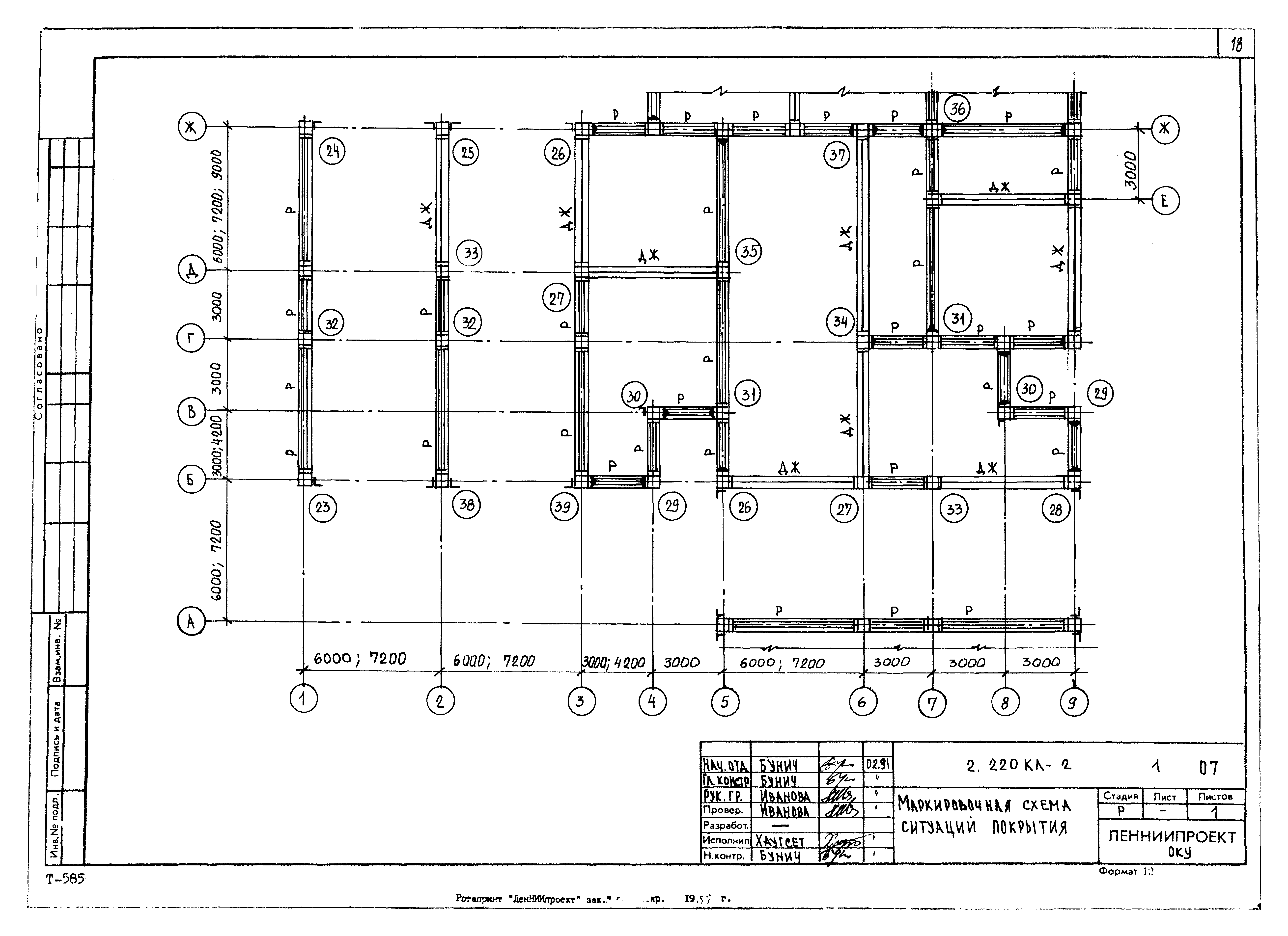
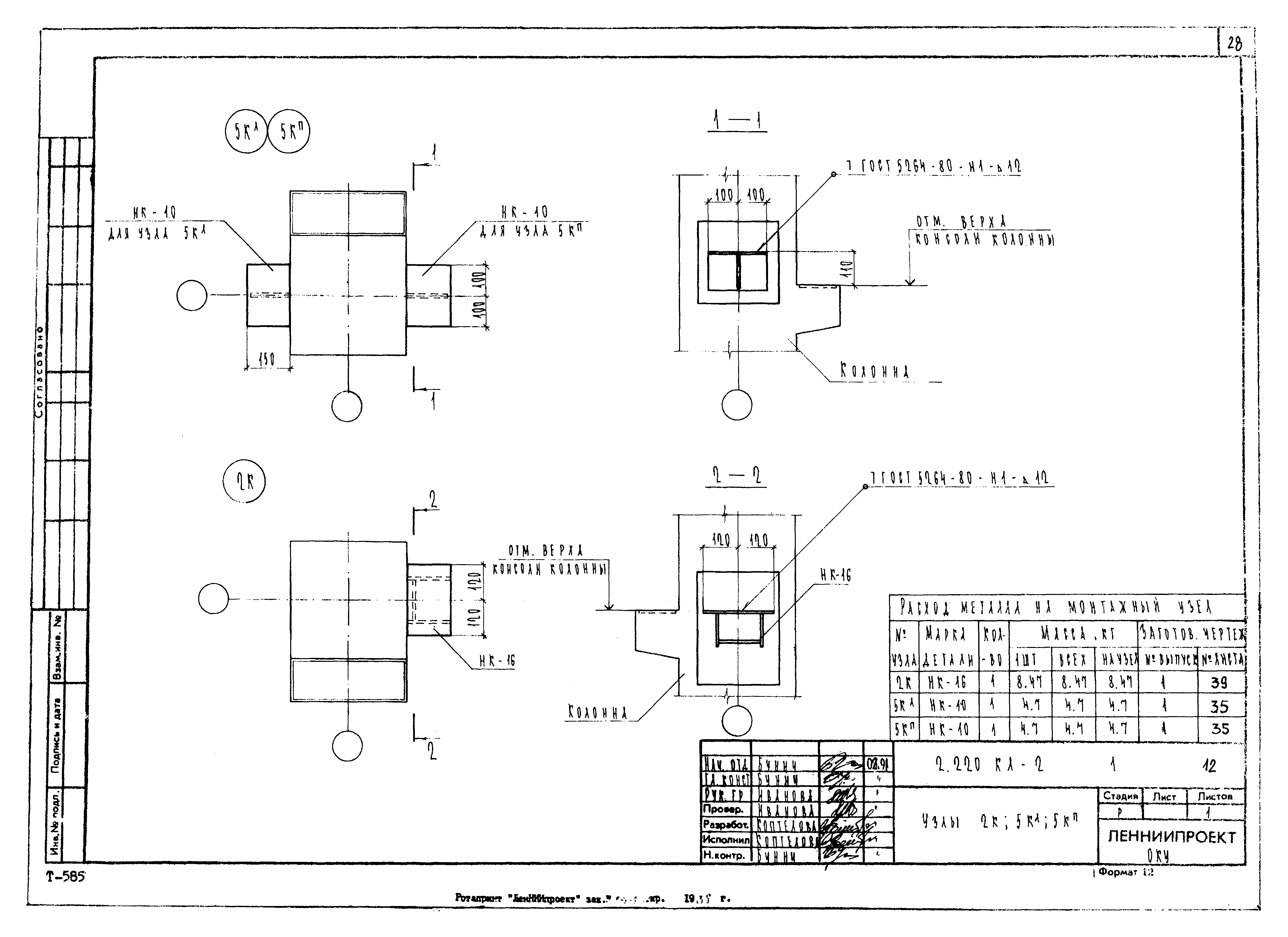
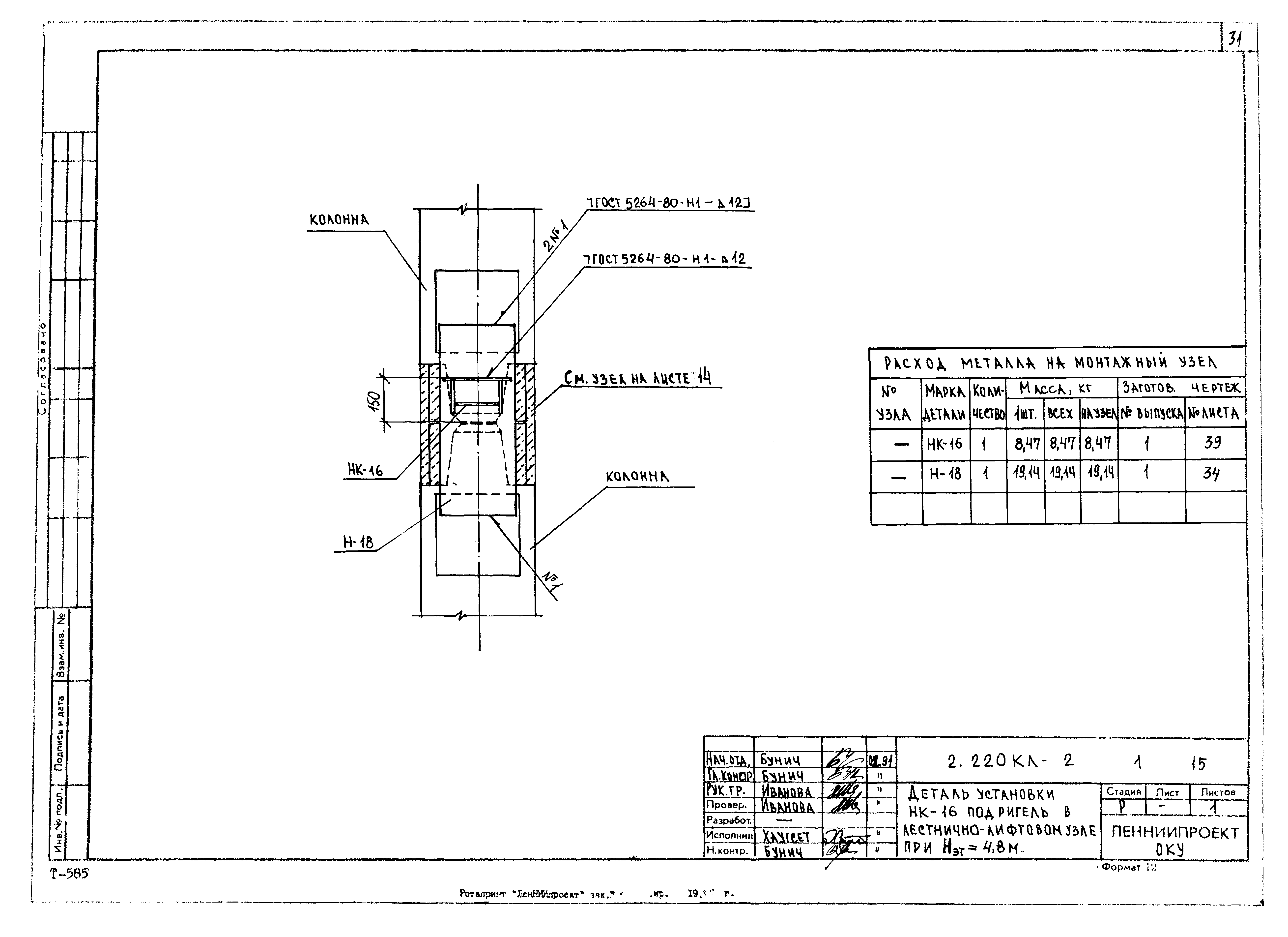
Скачать Серия 2.220 КЛ-2 Выпуск 1. Узлы сопряжения элементов связевого каркасаДата актуализации: 01.01.2021
|
| Обозначение: | Серия 2.220 КЛ-2 |
| Обозначение англ: | Series 2.220 КЛ-2 |
| Статус: | действует |
| Название рус.: | Выпуск 1. Узлы сопряжения элементов связевого каркаса |
| Дата добавления в базу: | 21.05.2015 |
| Дата актуализации: | 01.01.2021 |
| Дата введения: | 19.03.1991 |
| Разработан: | Ленниипроект |
| Утверждён: | 19.03.1991 Ленниипроект (17-у) |


















































