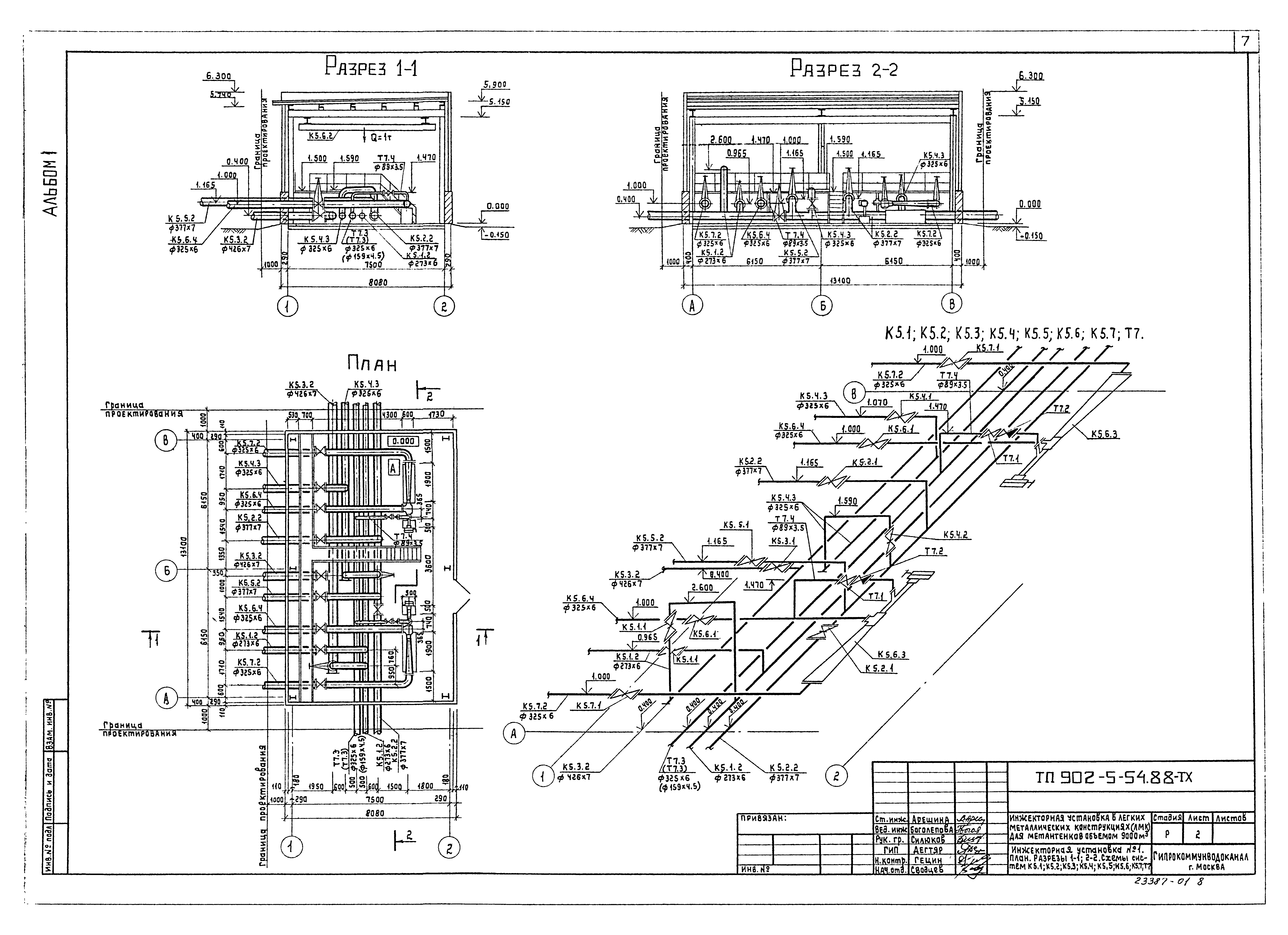
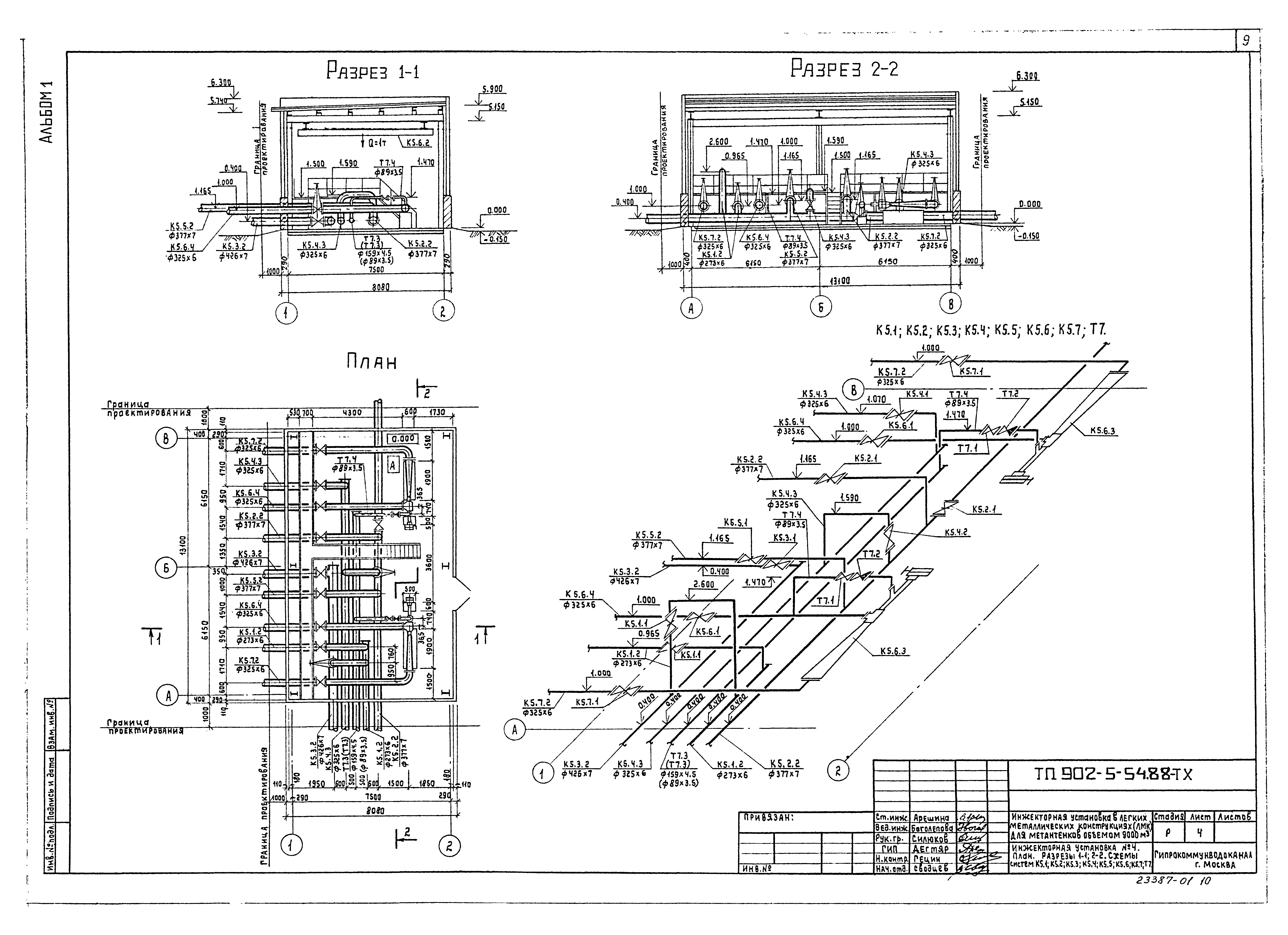
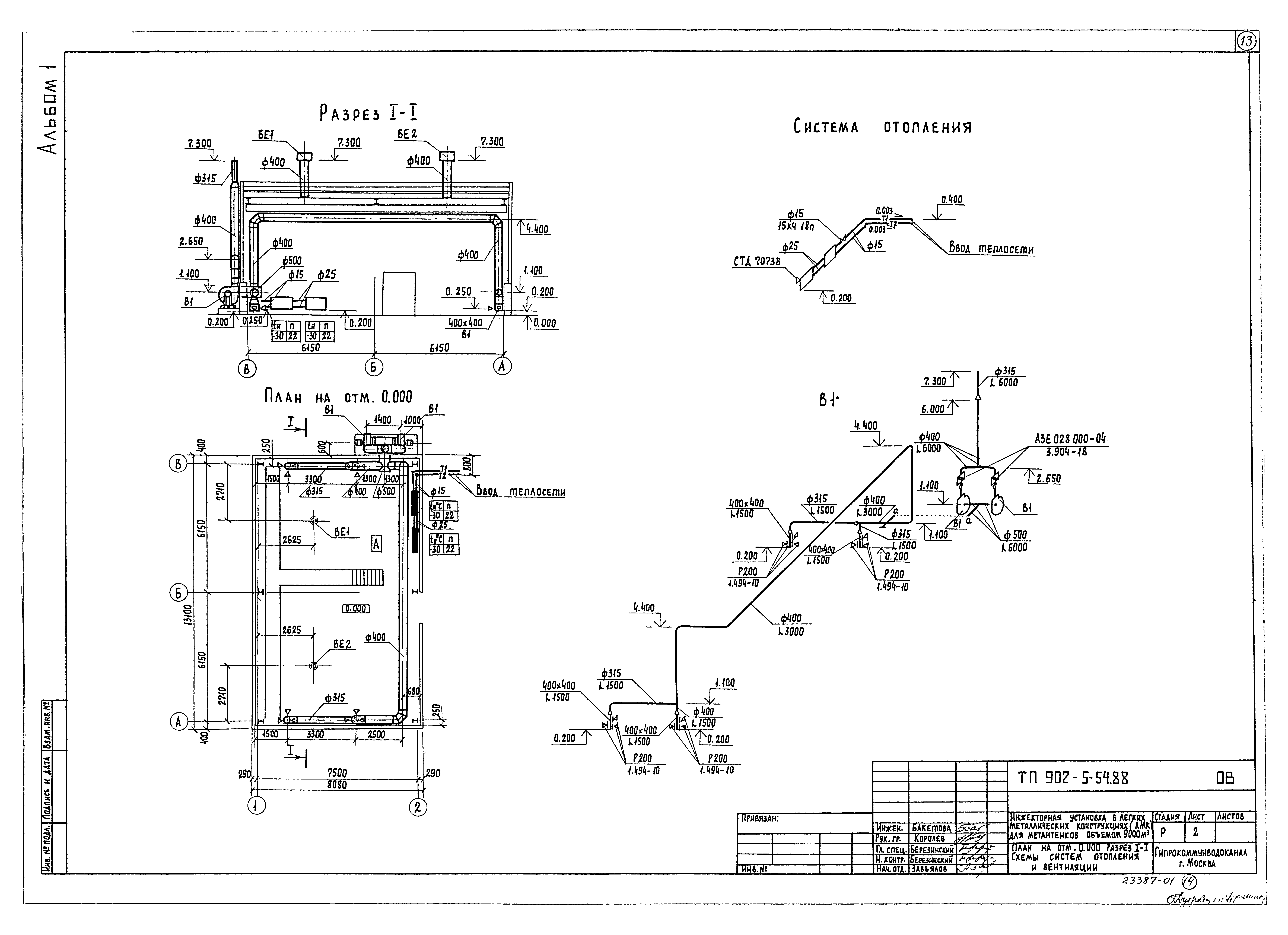
Скачать Типовой проект 902-5-54.88 Альбом 1. Пояснительная записка. Технология производства. Отопление и вентиляцияДата актуализации: 01.01.2021
|
| Обозначение: | Типовой проект 902-5-54.88 |
| Обозначение англ: | 902-5-54.88 |
| Статус: | не определен законодательством |
| Название рус.: | Альбом 1. Пояснительная записка. Технология производства. Отопление и вентиляция |
| Дата добавления в базу: | 21.05.2015 |
| Дата актуализации: | 01.01.2021 |
| Дата введения: | 07.09.1988 |
| Дата окончания срока действия: | 30.06.2003 |
| Разработан: | Гипрокоммунводоканал Минжилкомхоза РСФСР |
| Утверждён: | 07.09.1988 МЖКХ РСФСР (232) |
| Издан: | ЦИТП Госстроя СССР (CITP, Gosstroy (USSR) 1988 г. ) |













