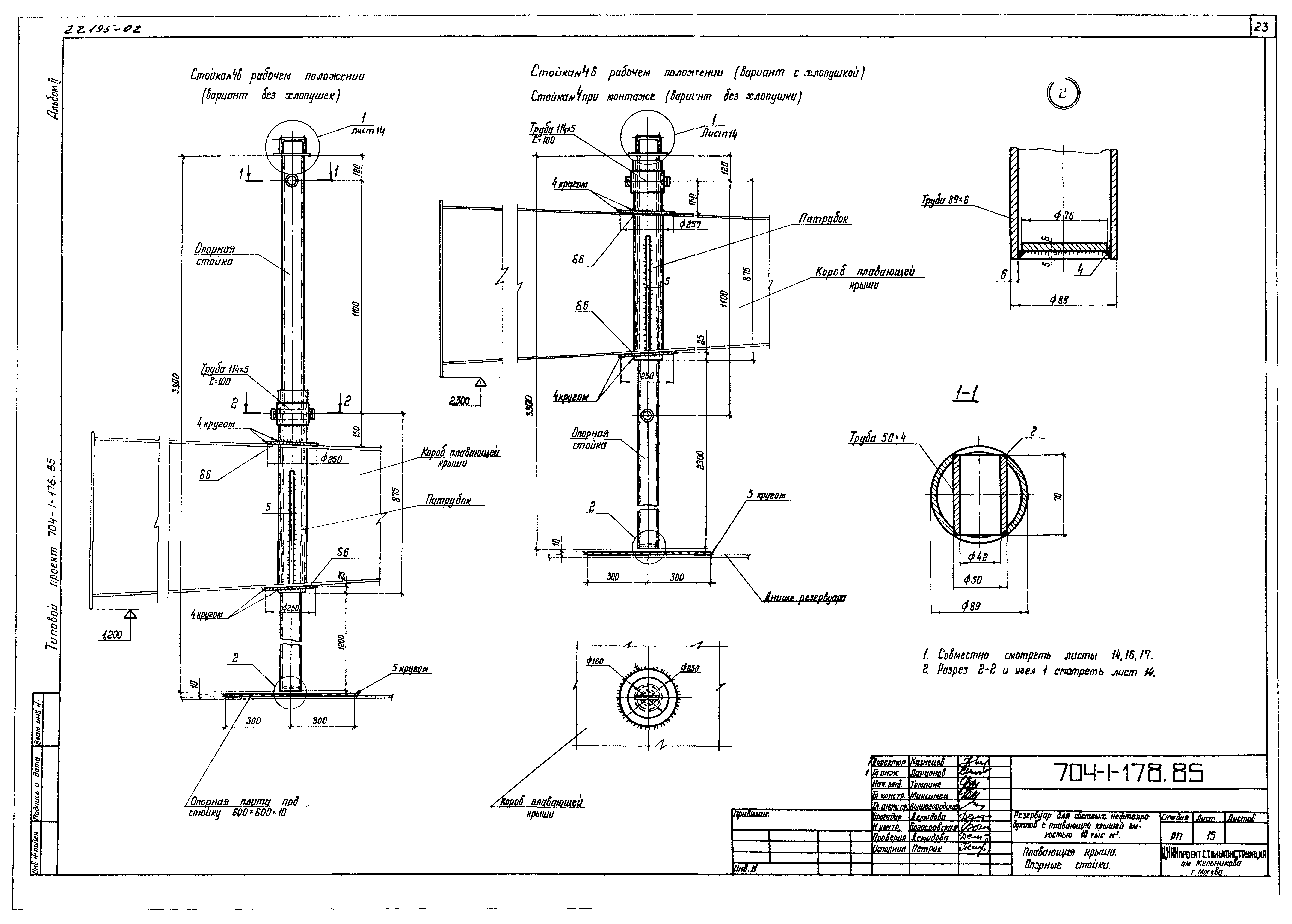
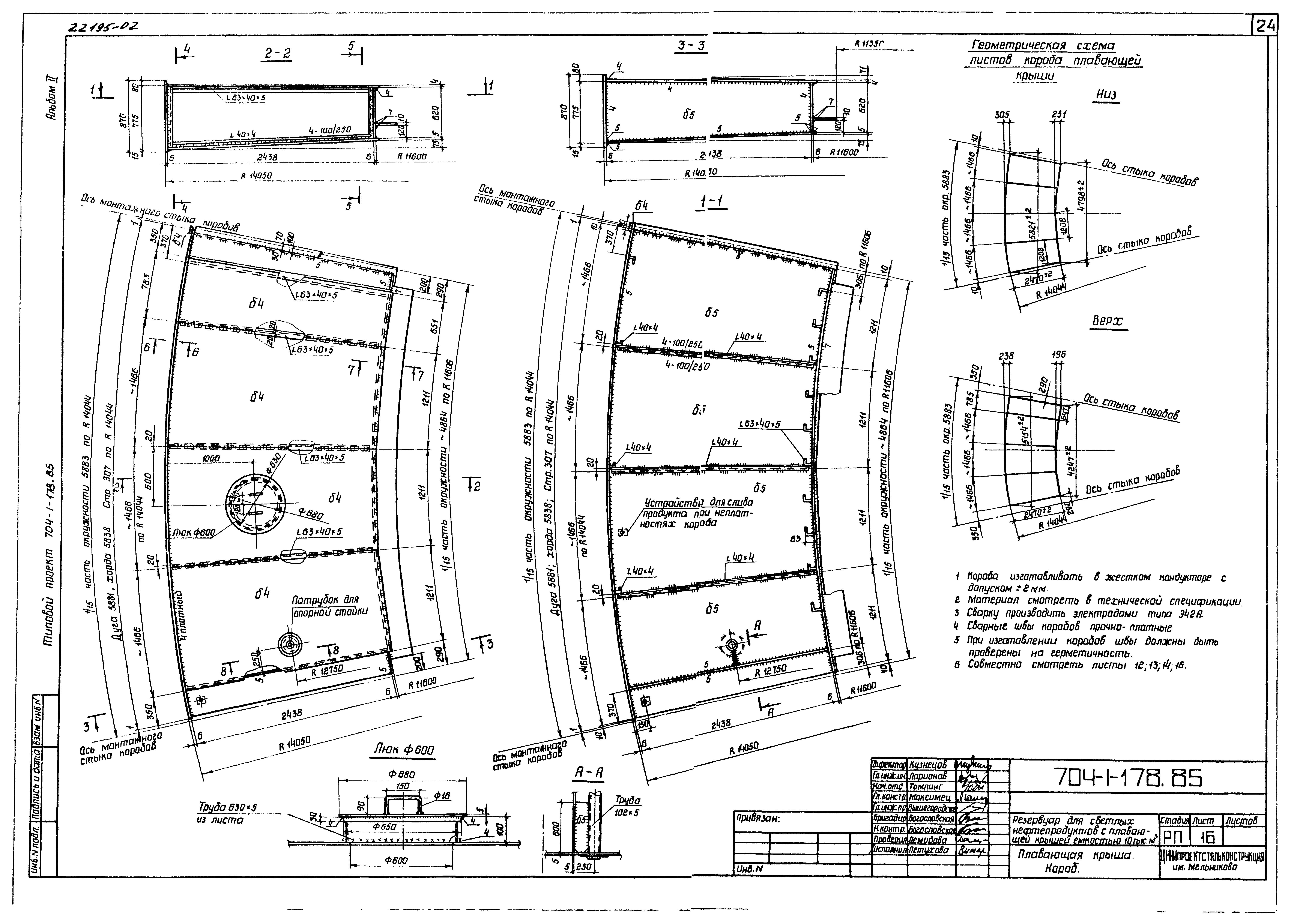
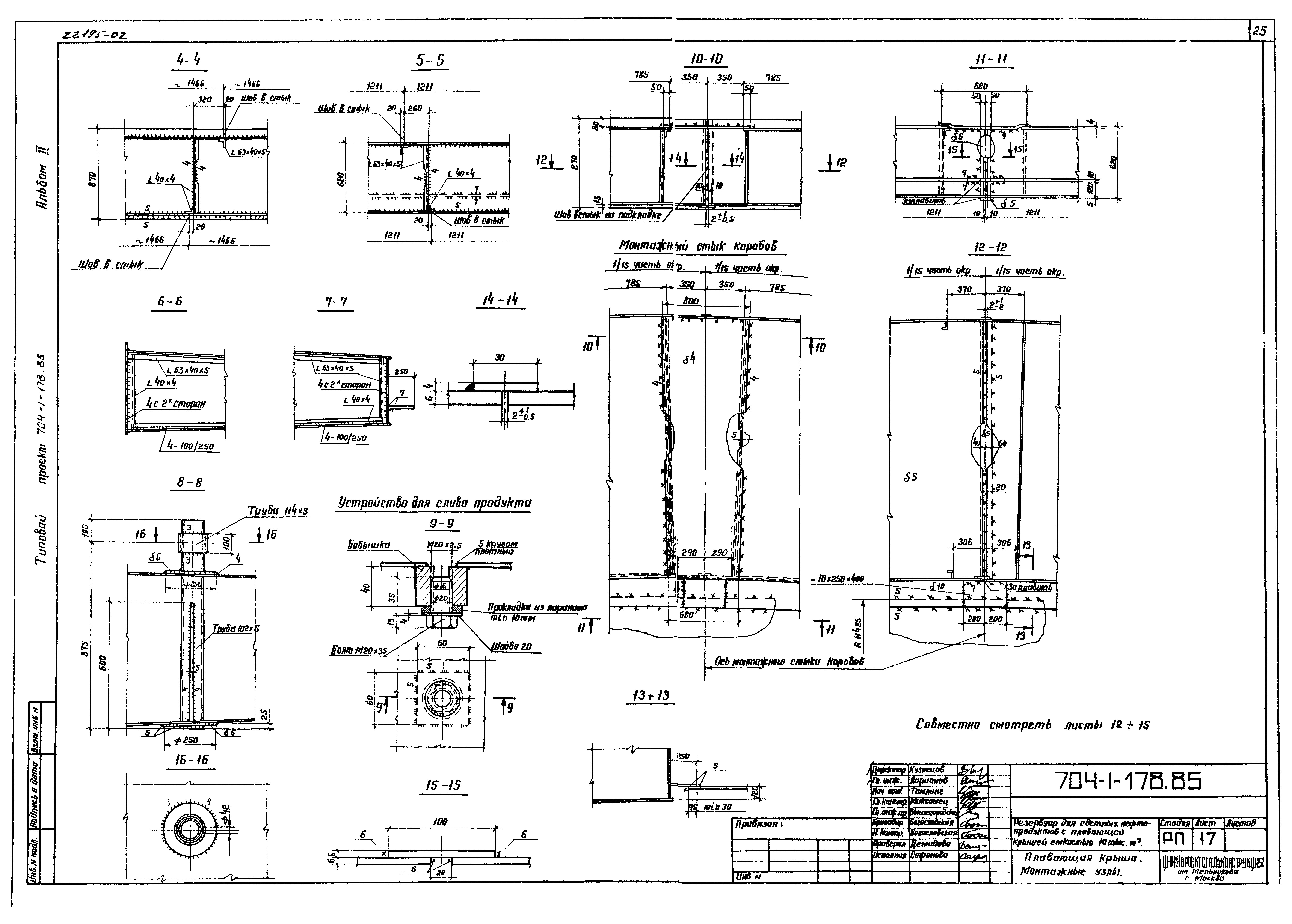
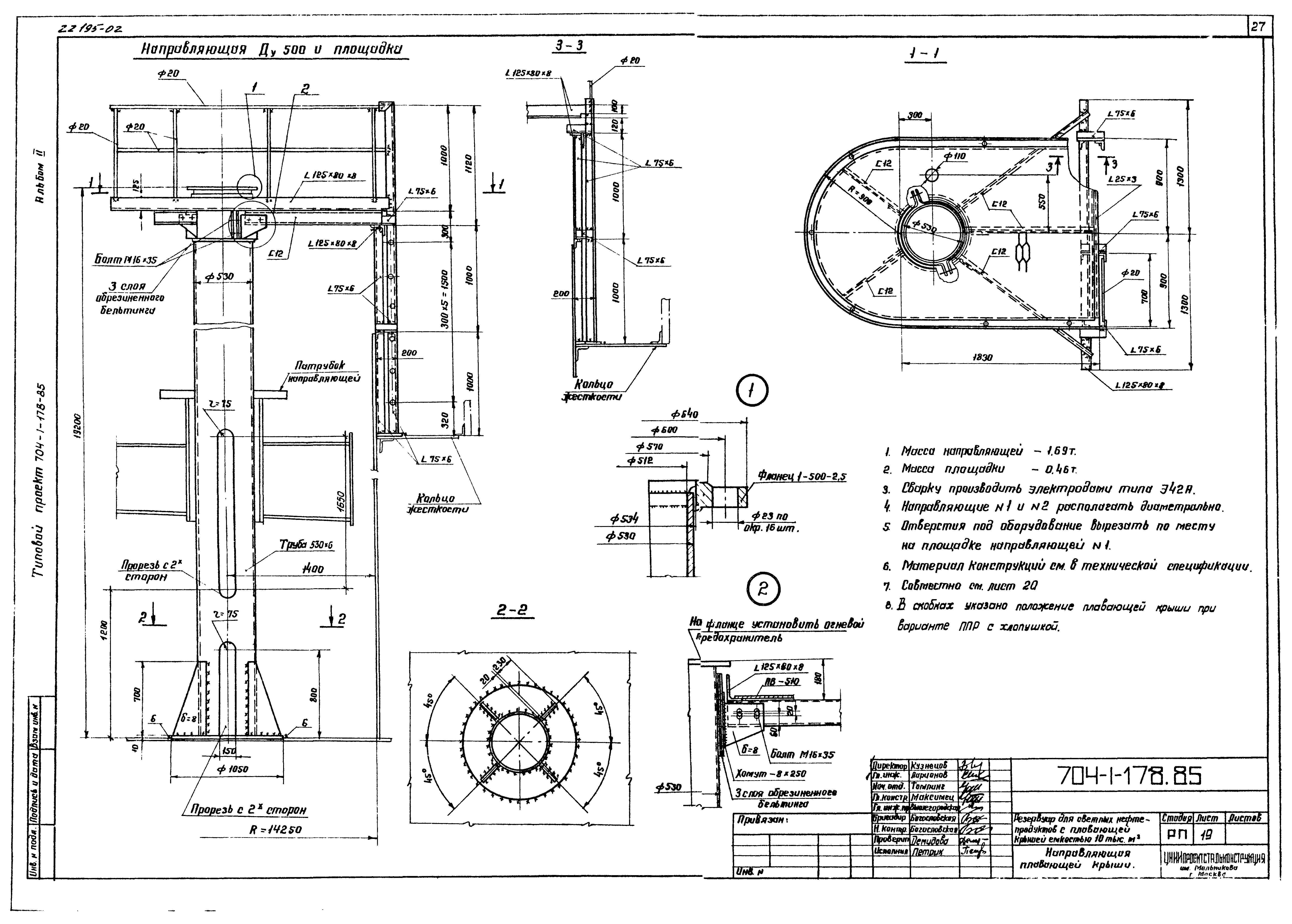
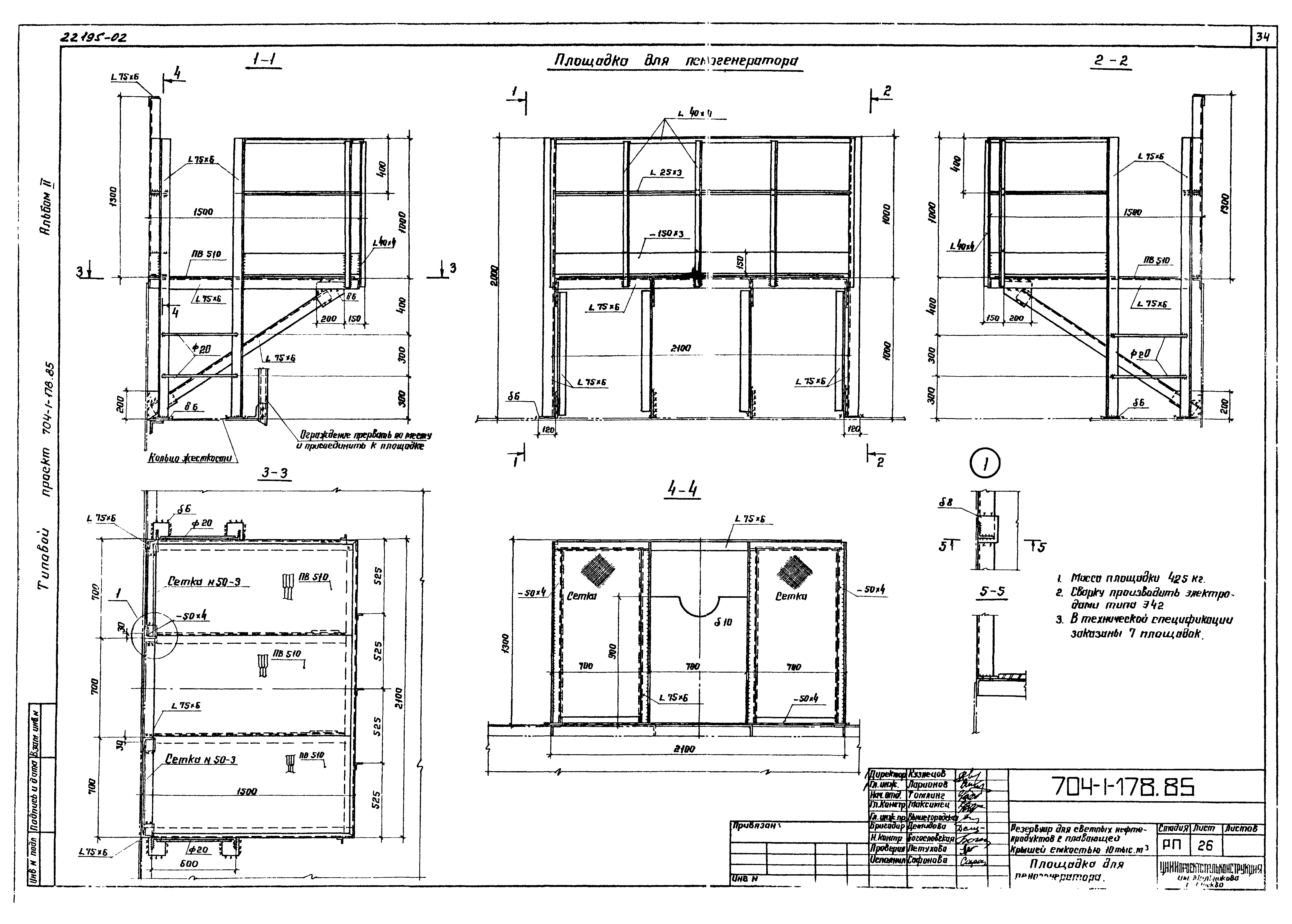
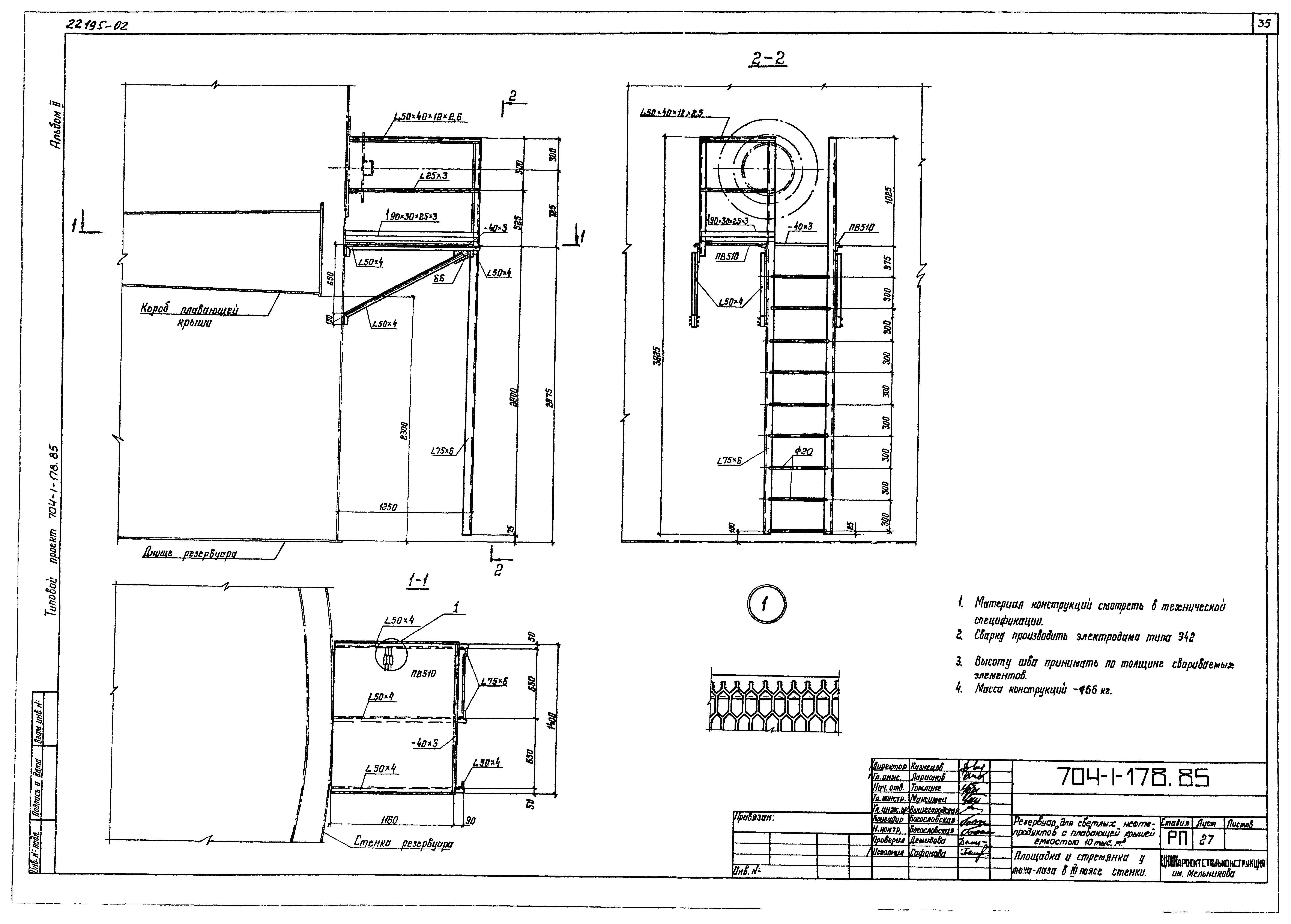
Скачать Типовой проект 704-1-178.85 Альбом II. Конструкции металлические. РезервуарДата актуализации: 01.01.2021 Типовой проект 704-1-178.85
Альбом II. Конструкции металлические. Резервуар| Обозначение: | Типовой проект 704-1-178.85 | | Обозначение англ: | 704-1-178.85 | | Статус: | действует | | Название рус.: | Альбом II. Конструкции металлические. Резервуар | | Дата добавления в базу: | 21.05.2015 | | Дата актуализации: | 01.01.2021 | | Дата введения: | 07.06.1984 | | Разработан: | ЦНИИпроектстальконструкция
| | Утверждён: | 07.06.1984 Миннефтехимпром СССР (USSR Minneftekhimprom 20/1077-б)
|
                                         
|