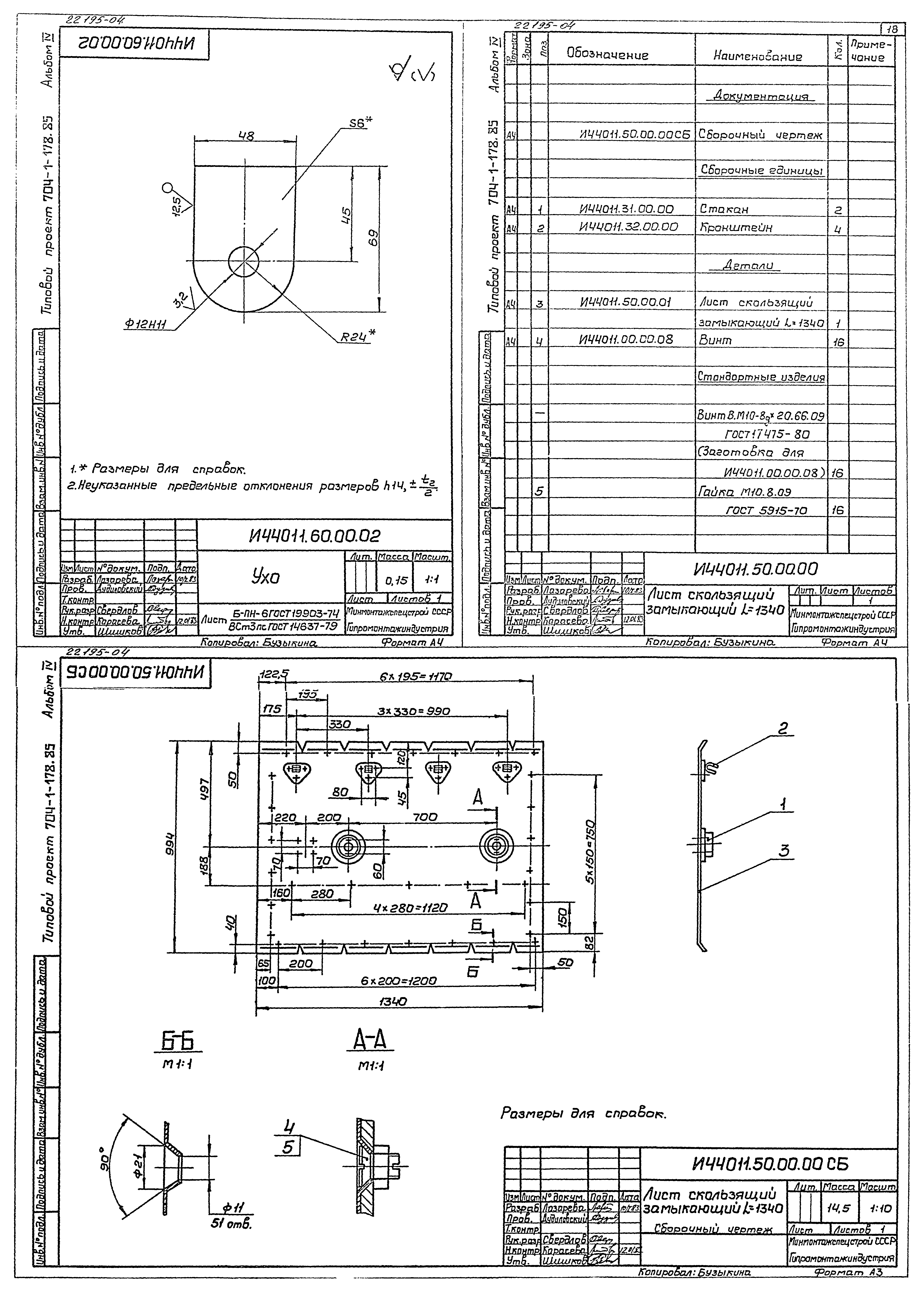
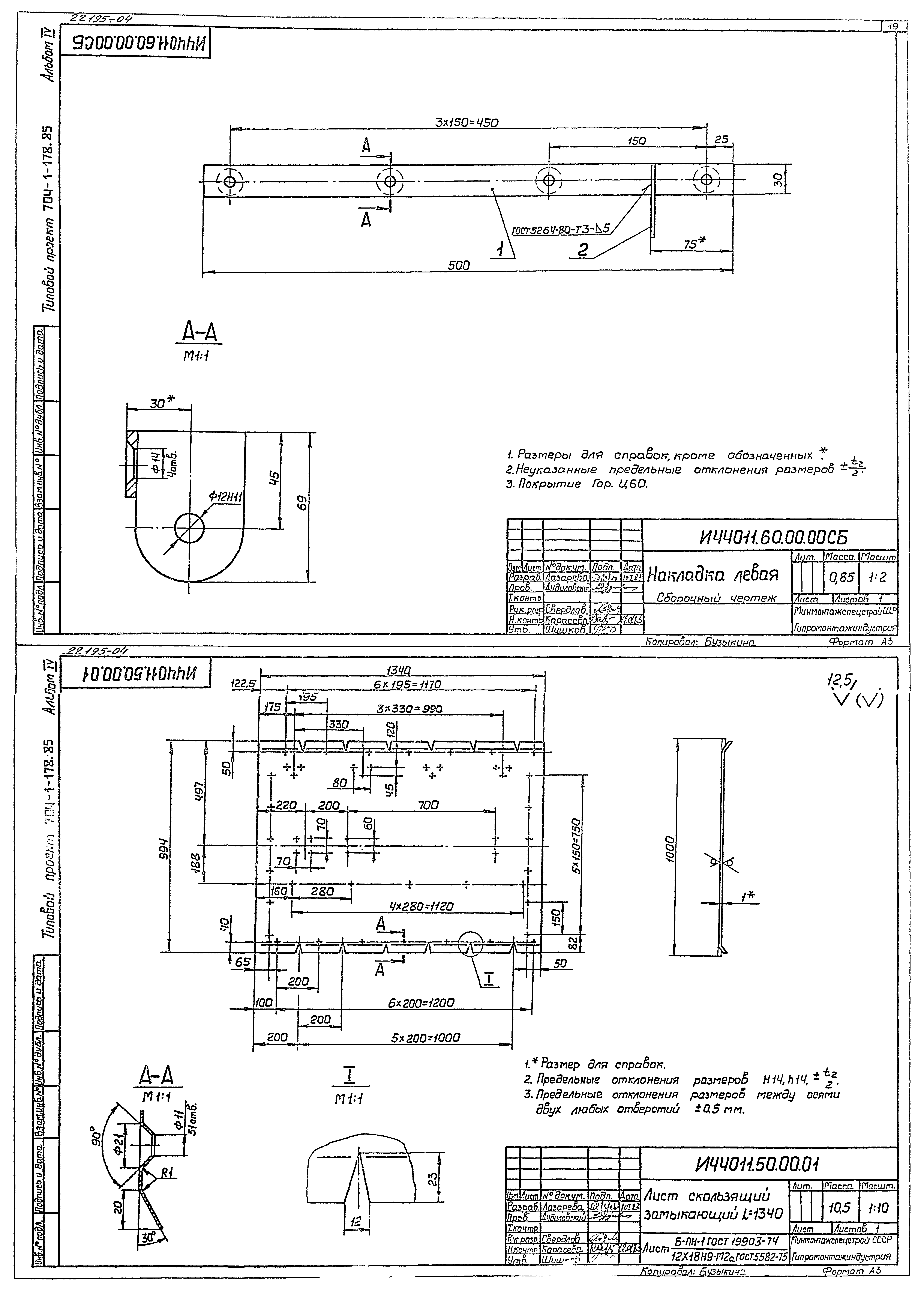
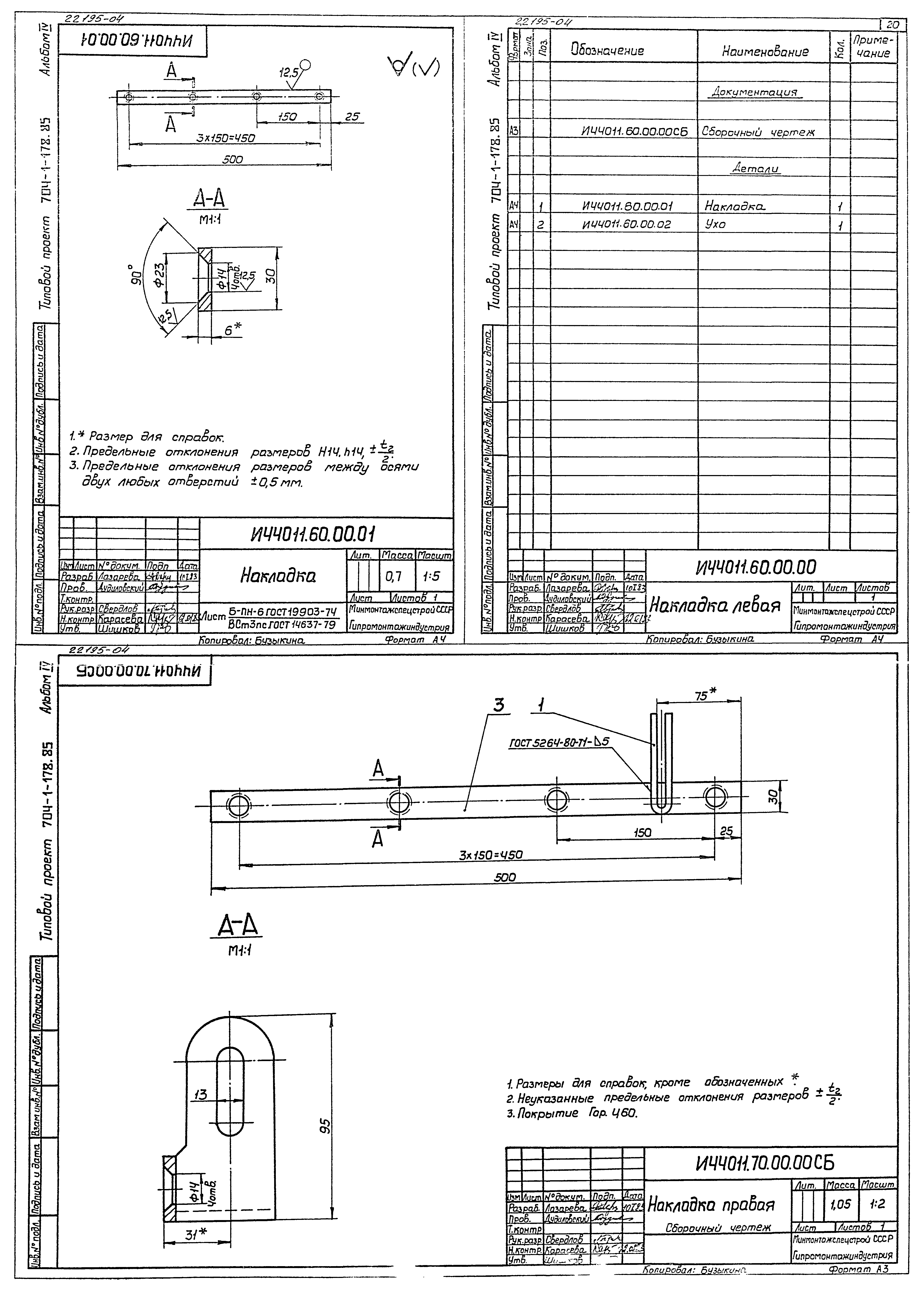
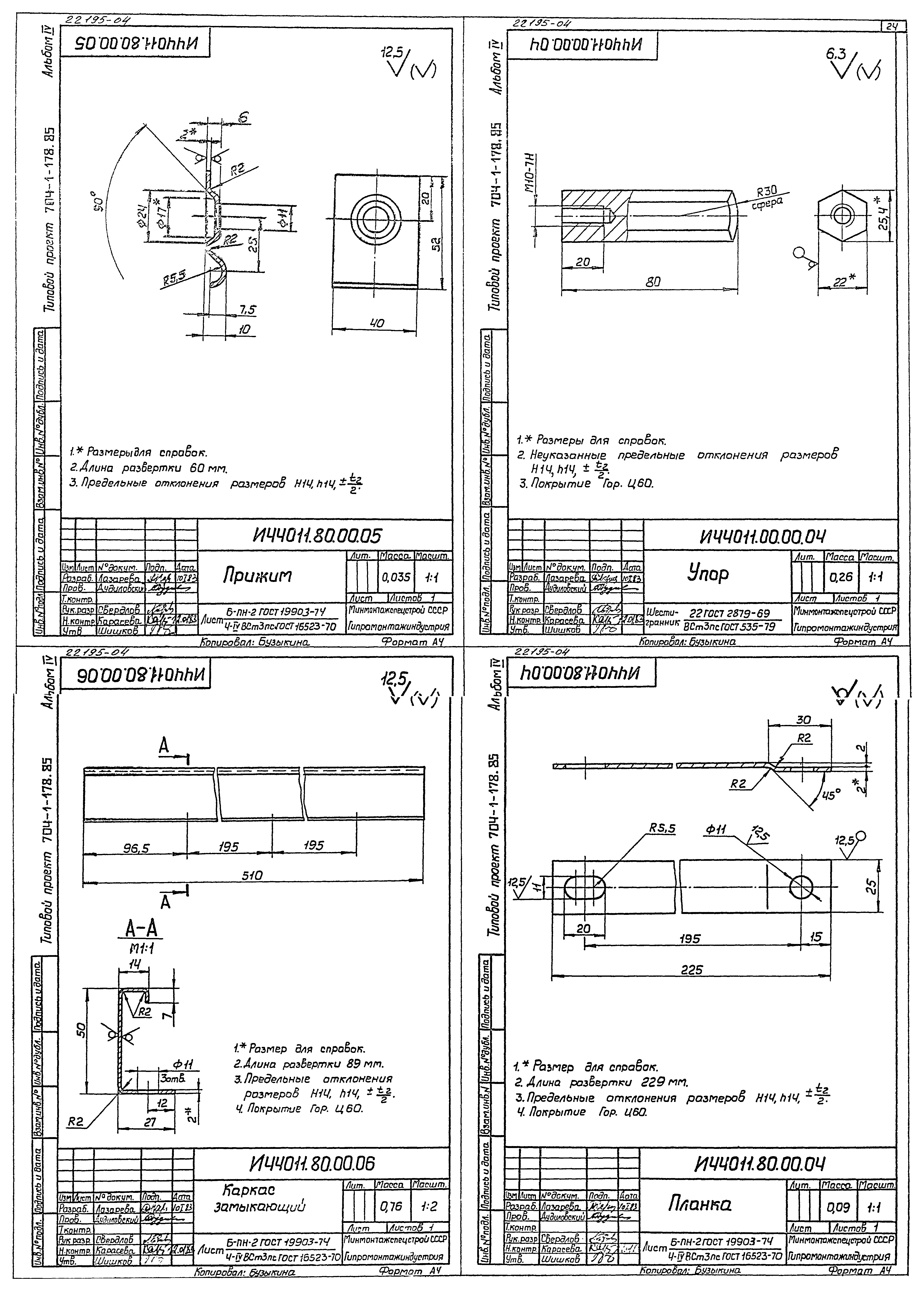
Скачать Типовой проект 704-1-178.85 Альбом IV. Затвор уплотняющийДата актуализации: 01.01.2021
|
| Обозначение: | Типовой проект 704-1-178.85 |
| Обозначение англ: | 704-1-178.85 |
| Статус: | действует |
| Название рус.: | Альбом IV. Затвор уплотняющий |
| Дата добавления в базу: | 21.05.2015 |
| Дата актуализации: | 01.01.2021 |
| Дата введения: | 07.06.1984 |
| Разработан: | Гипромонтажиндустрия Минмонтажспецстроя СССР |
| Утверждён: | 07.06.1984 Миннефтехимпром СССР (USSR Minneftekhimprom 20/1077-б) |



























