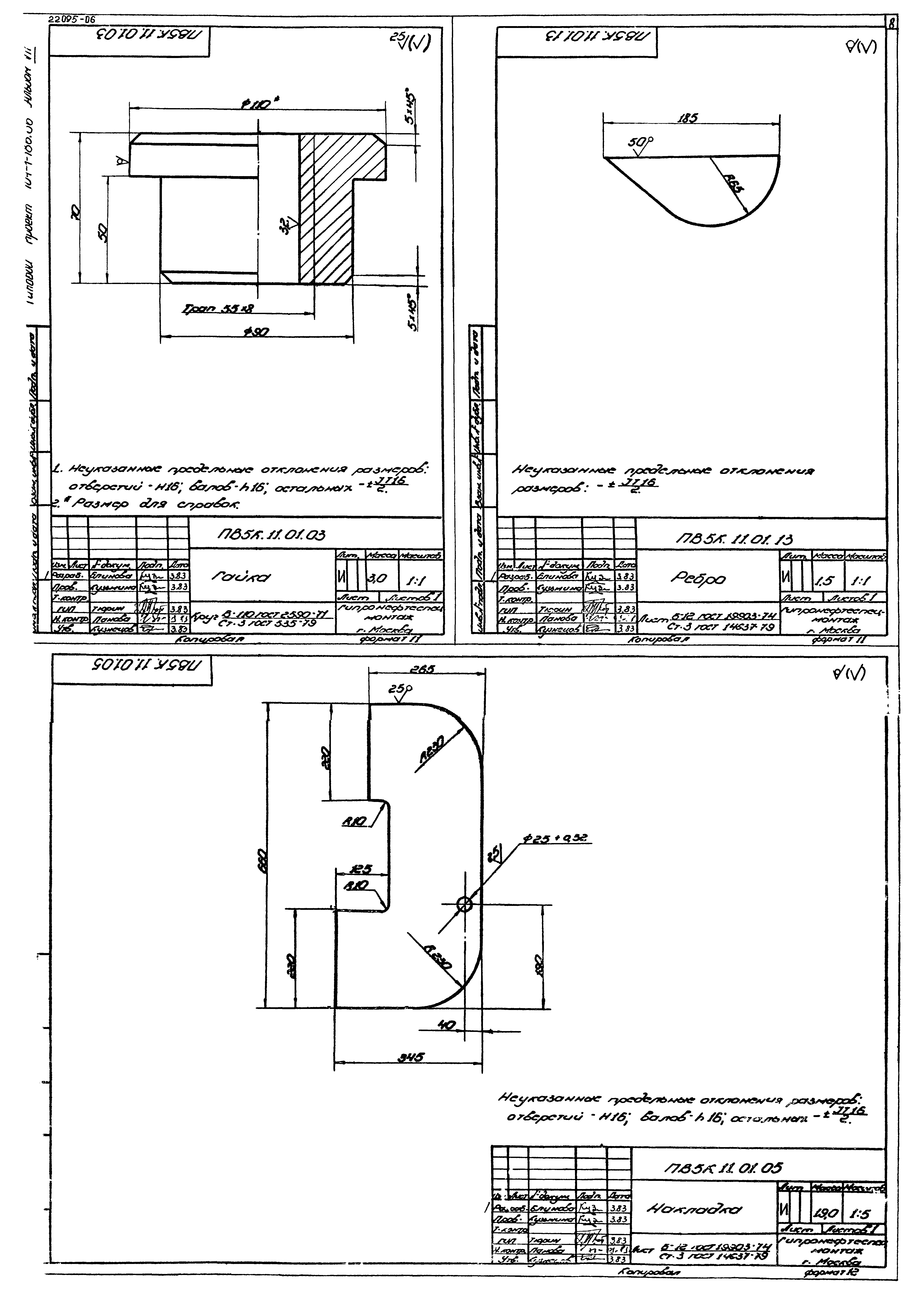
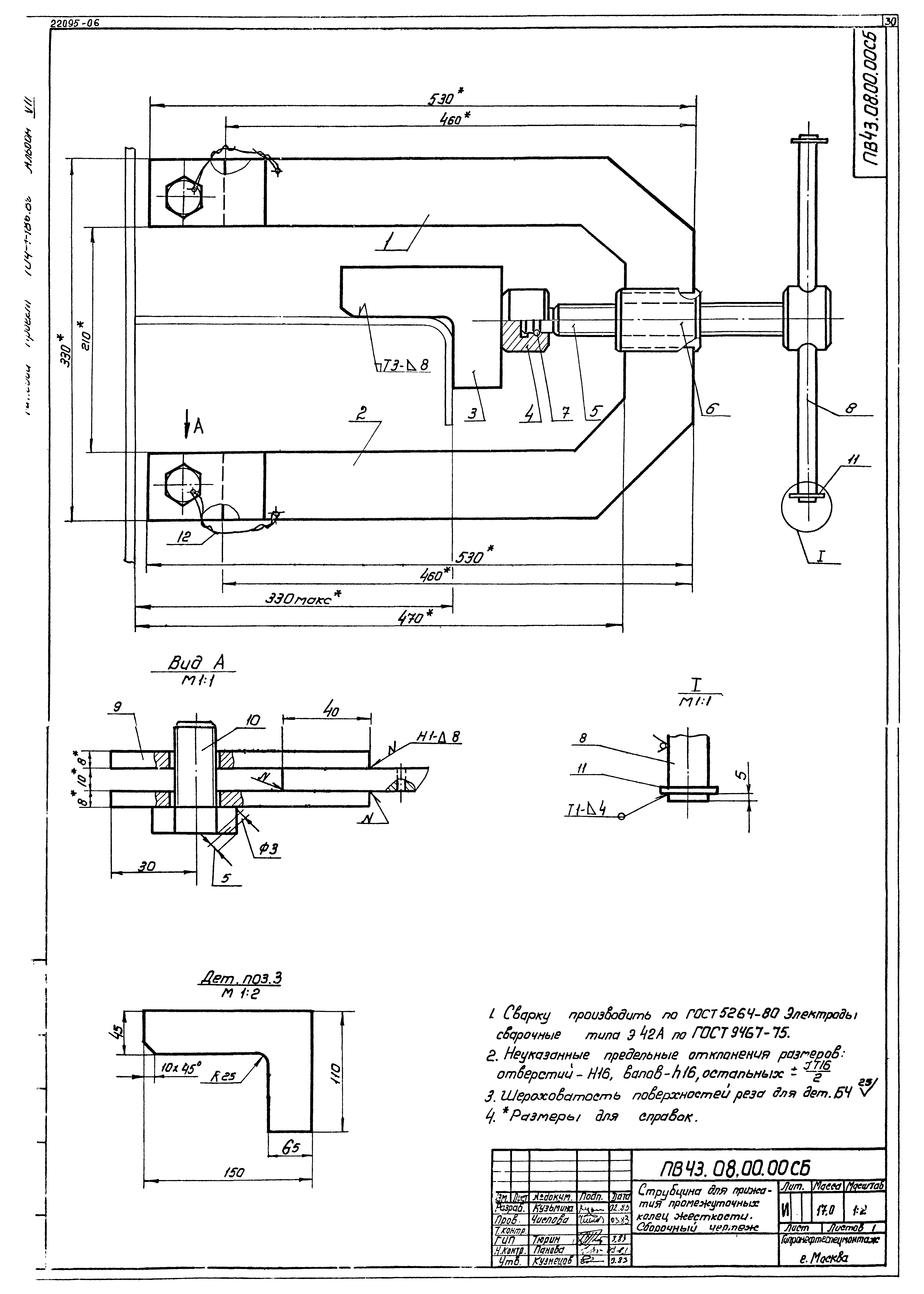
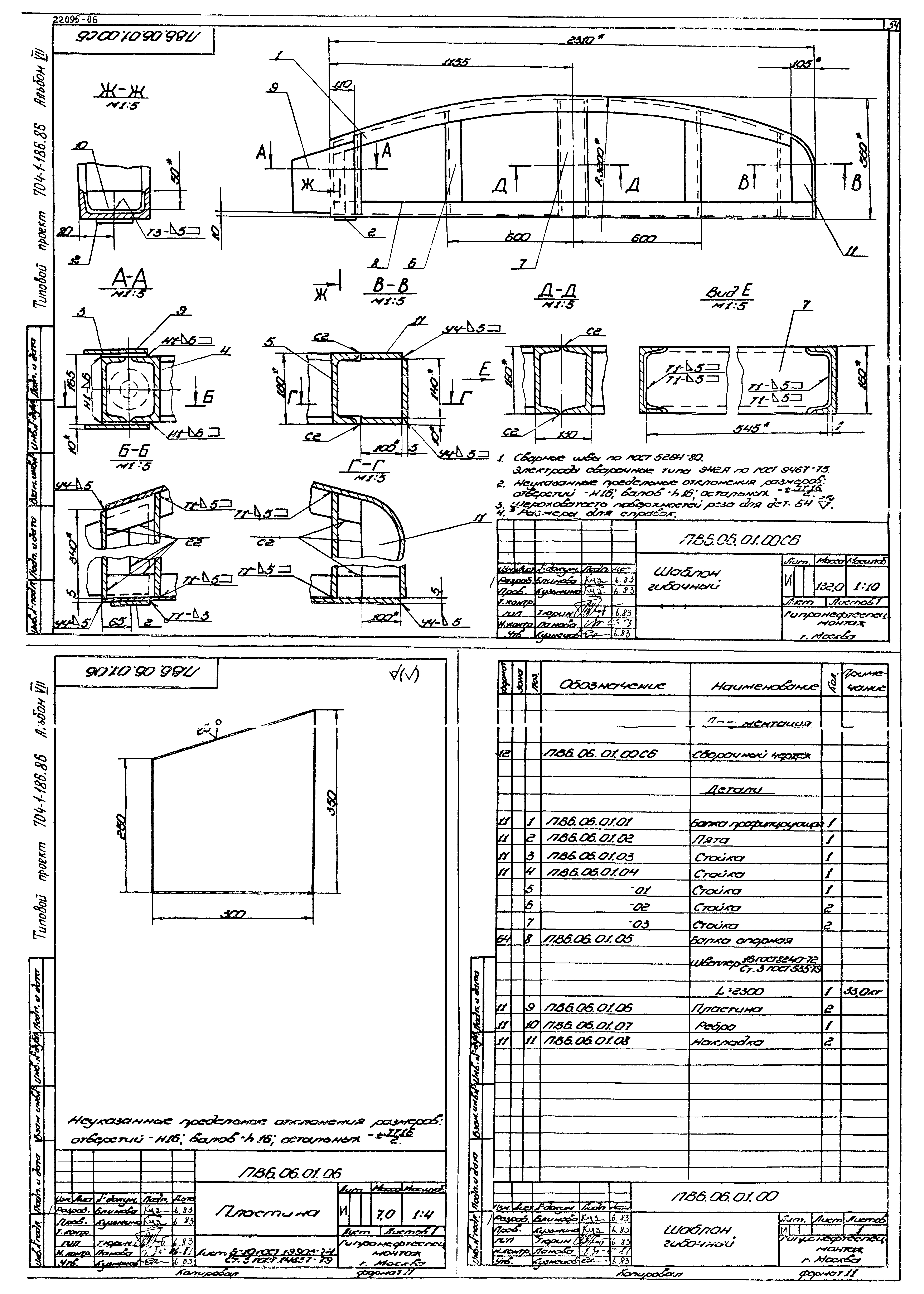
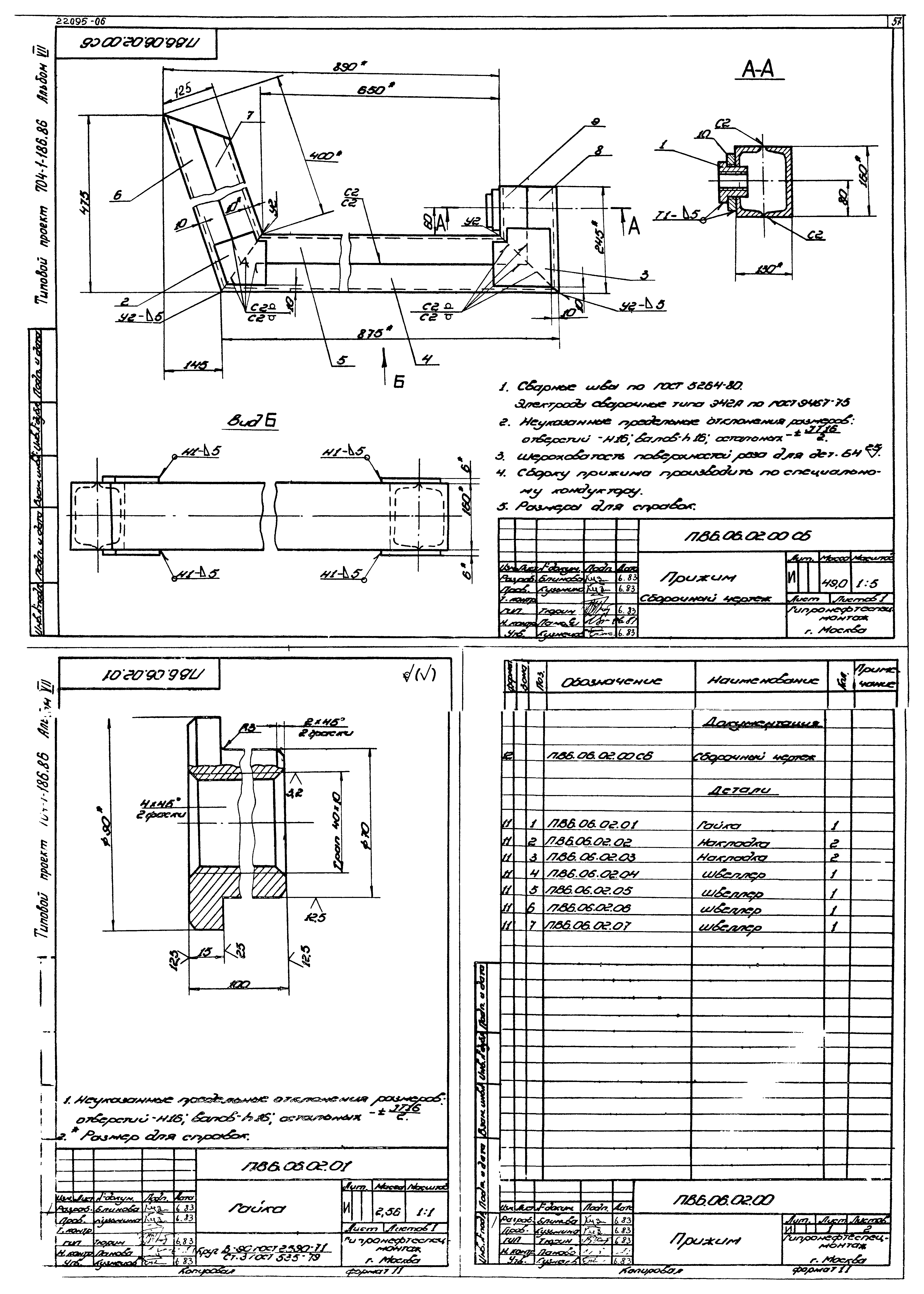
Скачать Типовой проект 704-1-178.85 Альбом VII. Монтажные приспособления для резервуаров емкостью 5, 10, 20 и 40 тыс. куб. м (из ТП 704-1-186.86)Дата актуализации: 01.01.2021 Типовой проект 704-1-178.85
Альбом VII. Монтажные приспособления для резервуаров емкостью 5, 10, 20 и 40 тыс. куб. м (из ТП 704-1-186.86)| Обозначение: | Типовой проект 704-1-178.85 | | Обозначение англ: | 704-1-178.85 | | Статус: | действует | | Название рус.: | Альбом VII. Монтажные приспособления для резервуаров емкостью 5, 10, 20 и 40 тыс. куб. м (из ТП 704-1-186.86) | | Дата добавления в базу: | 21.05.2015 | | Дата актуализации: | 01.01.2021 | | Дата введения: | 07.06.1984 | | Разработан: | Гипронефтеспецмонтаж Минмонтажспецстроя СССР (Giproneftespetsmontazh, Minmontazhspetsstroy (USSR) )
| | Утверждён: | 07.06.1984 Миннефтехимпром СССР (USSR Minneftekhimprom 20/1077-б)
|
                                                                           
|