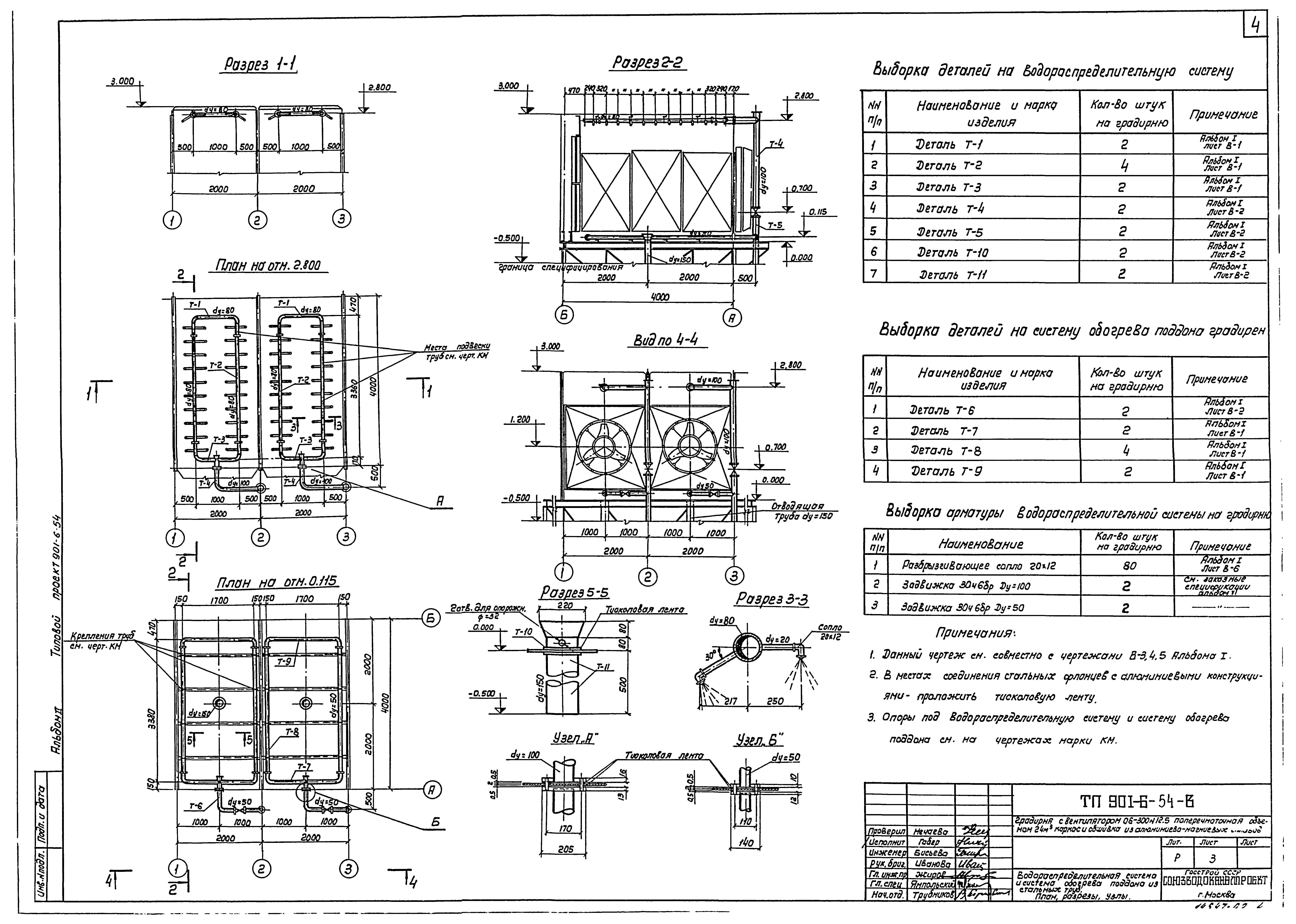
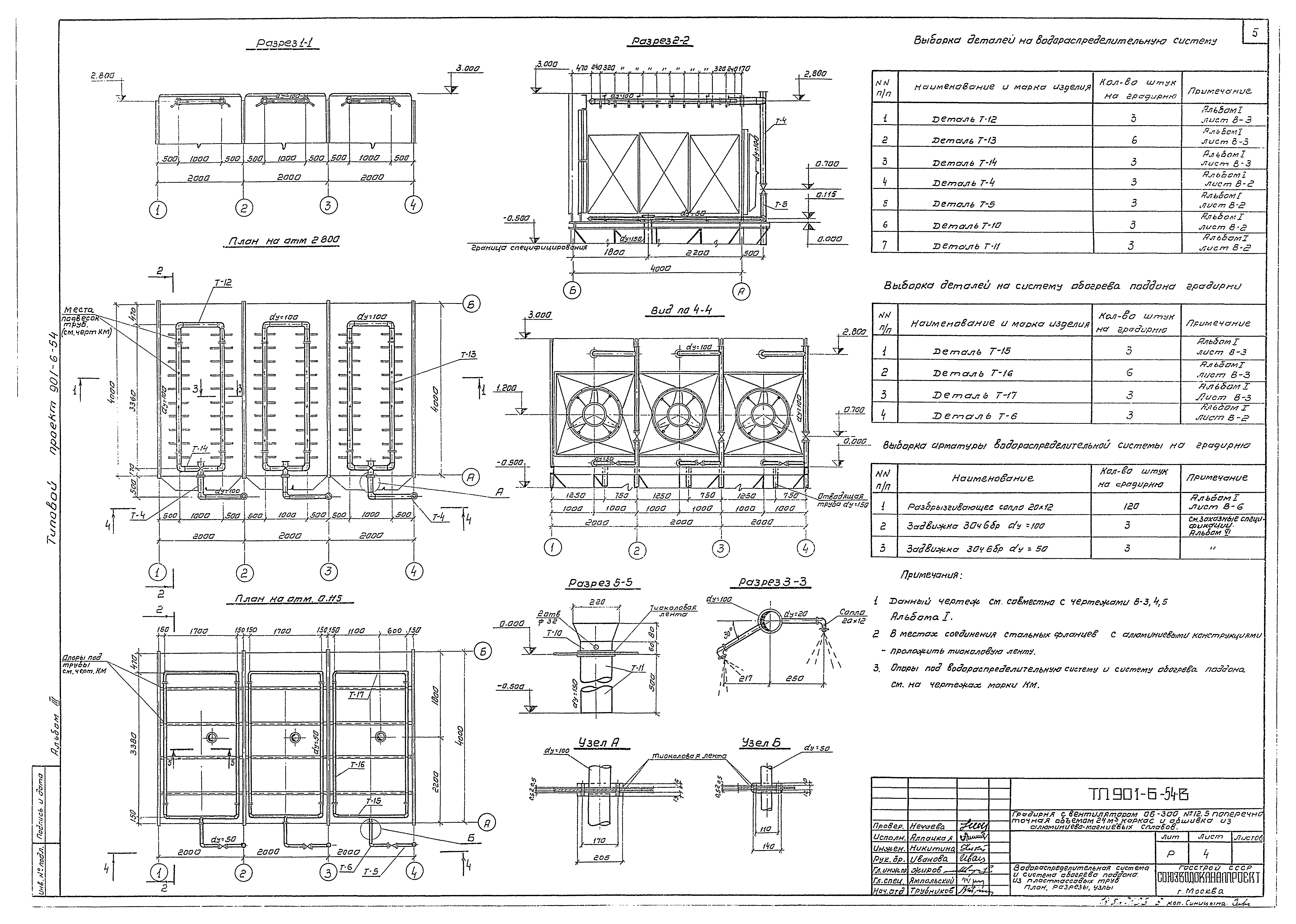
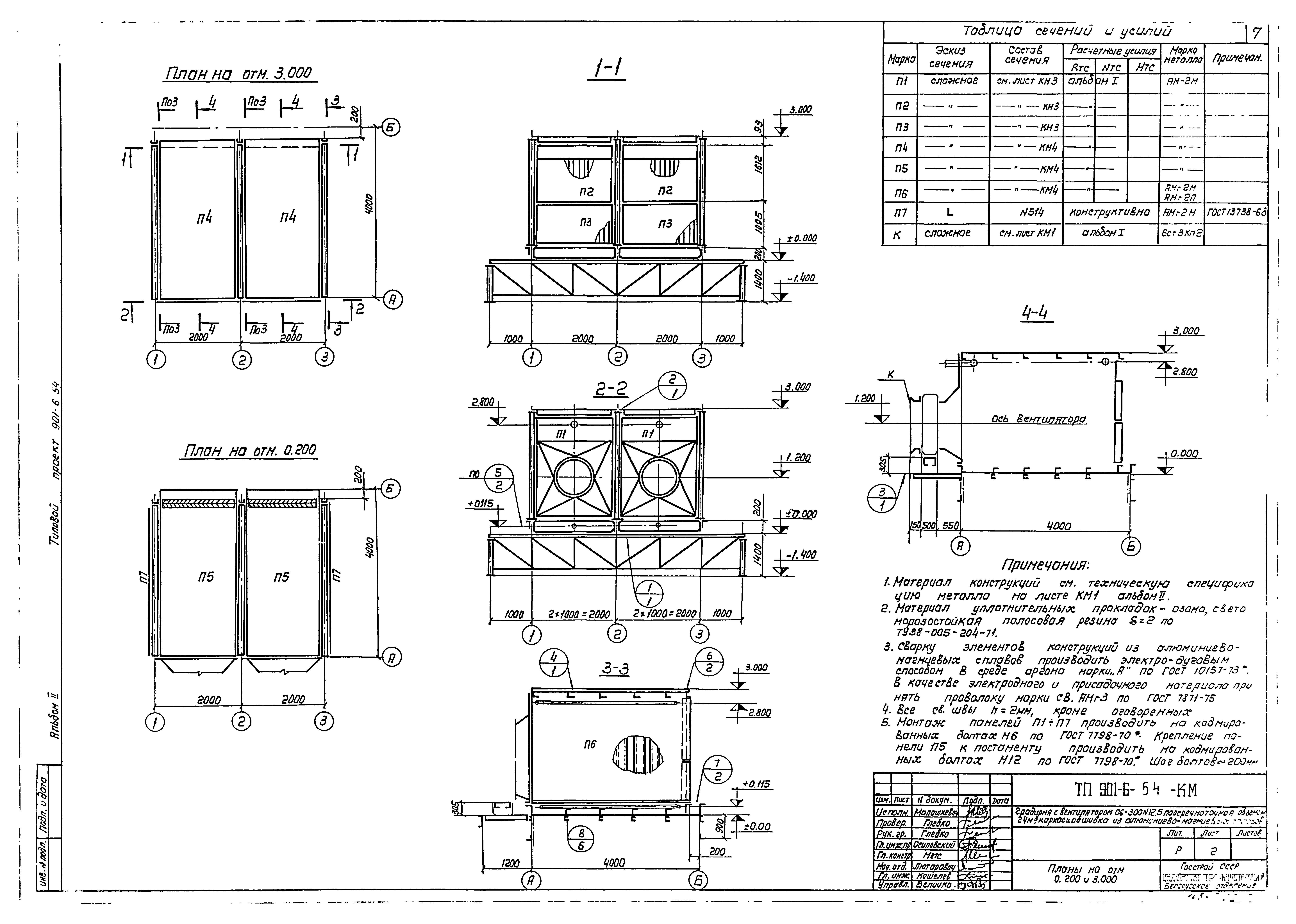
Скачать Типовой проект 901-6-54 Альбом II. Двухсекционная градирняДата актуализации: 01.01.2021
|
| Обозначение: | Типовой проект 901-6-54 |
| Обозначение англ: | 901-6-54 |
| Статус: | отменен |
| Название рус.: | Альбом II. Двухсекционная градирня |
| Дата добавления в базу: | 21.05.2015 |
| Дата актуализации: | 01.01.2021 |
| Дата введения: | 01.11.1977 |
| Дата окончания срока действия: | 01.07.1996 |
| Разработан: | Союзводоканалпроект ЦНИИпроектстальконструкция |
| Утверждён: | 20.12.1976 Главпромстройпроект Госстроя СССР (90) |
| Издан: | ЦИТП Госстроя СССР (CITP, Gosstroy (USSR) 1978 г. ) |








