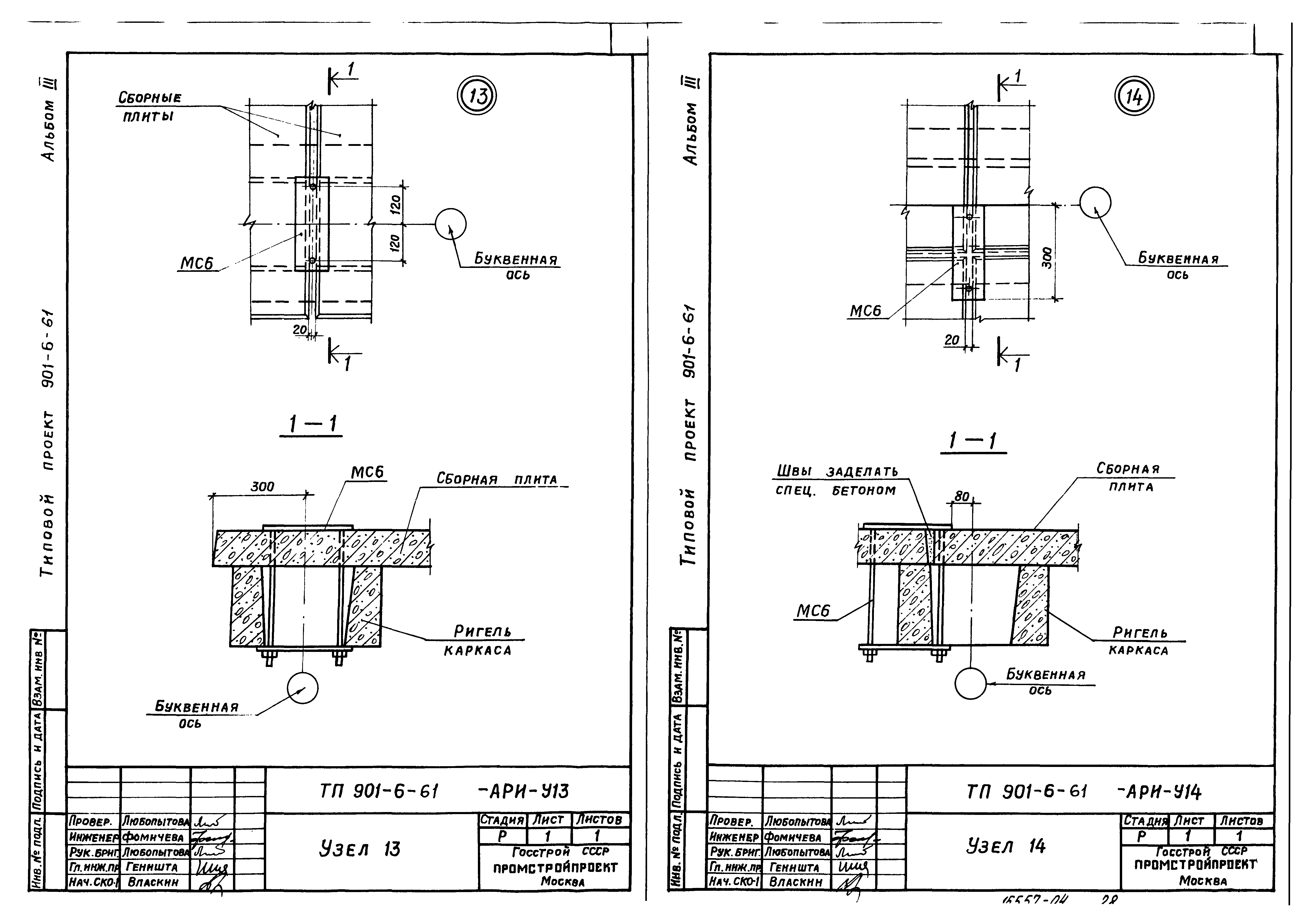
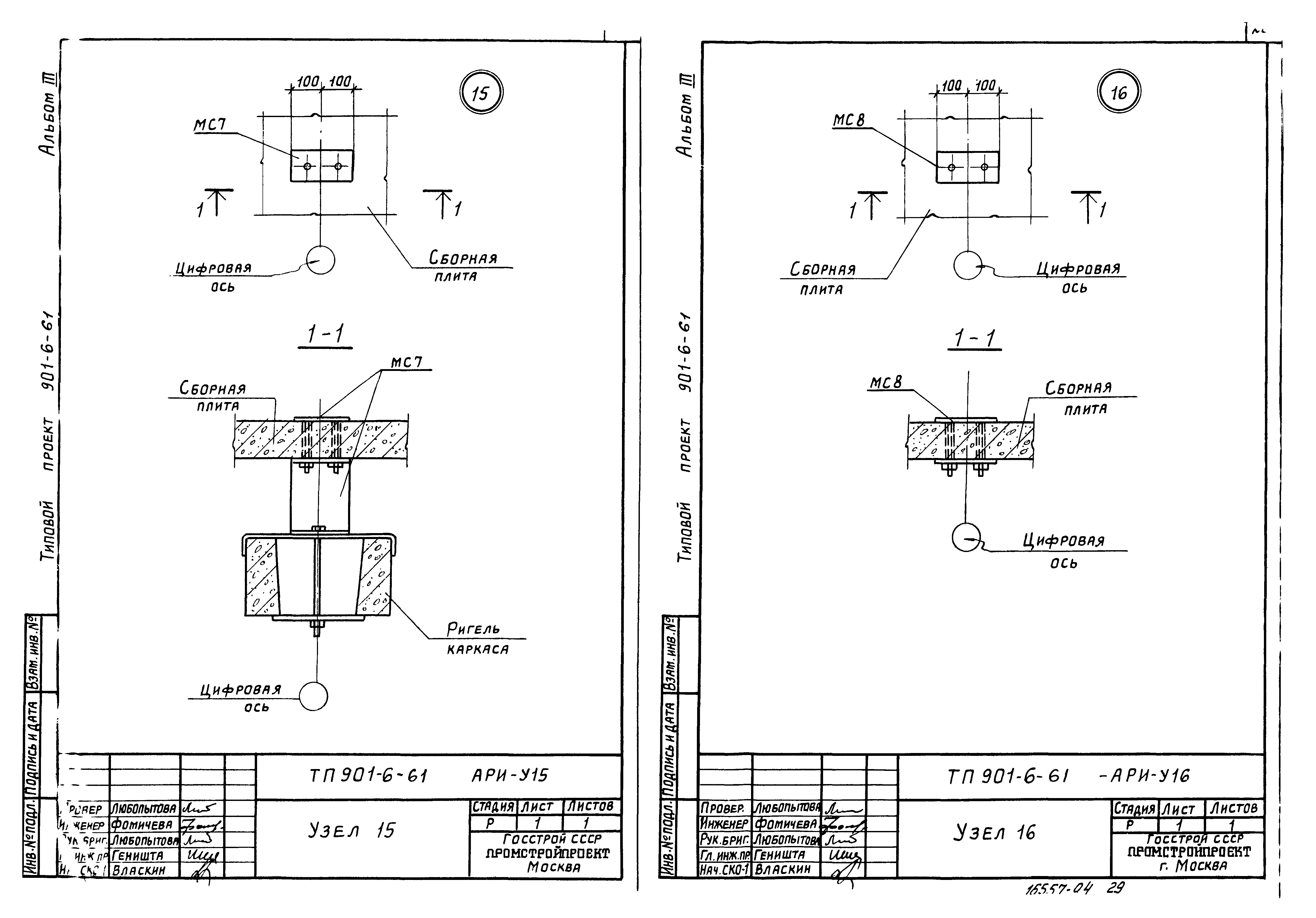
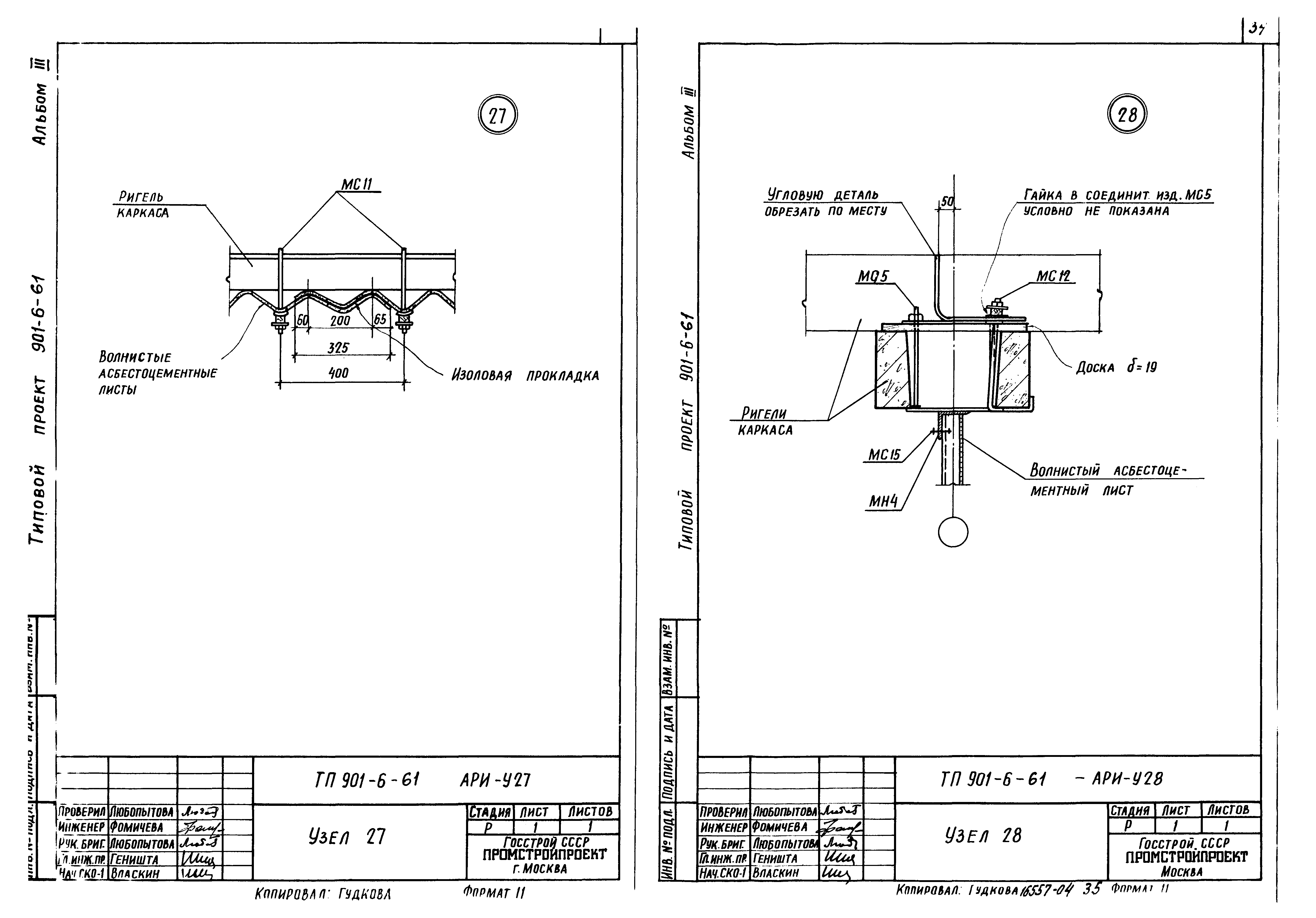
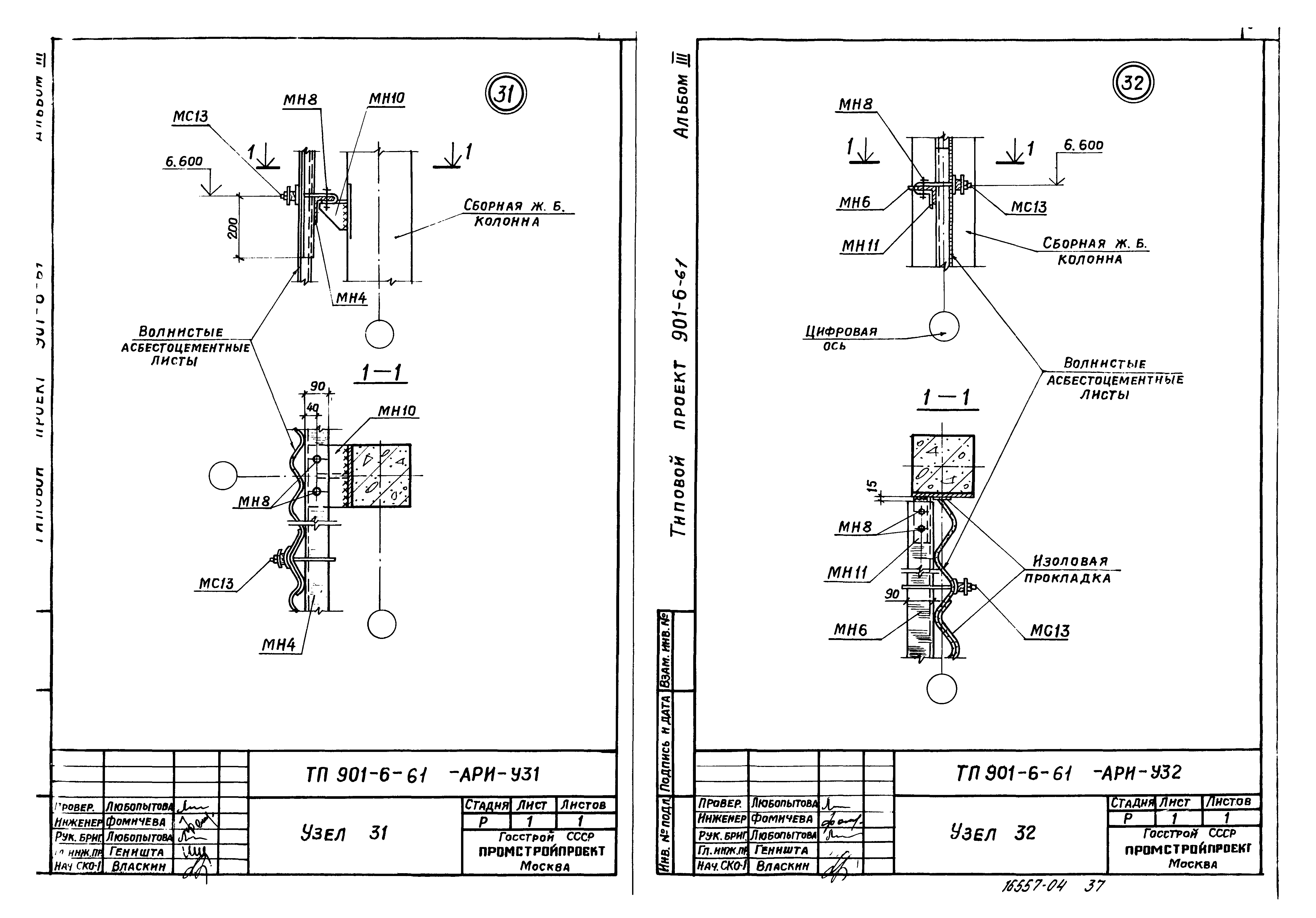
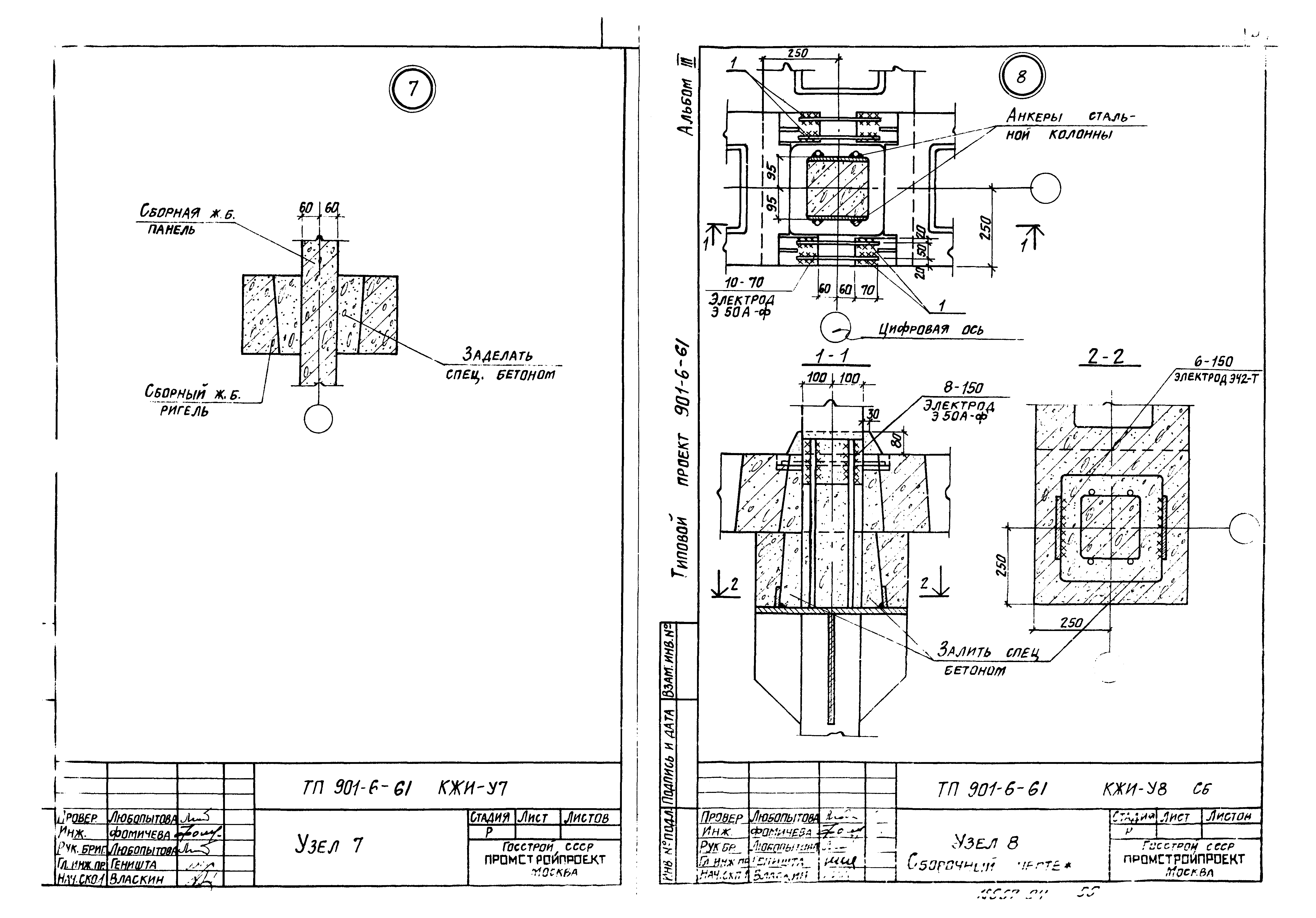
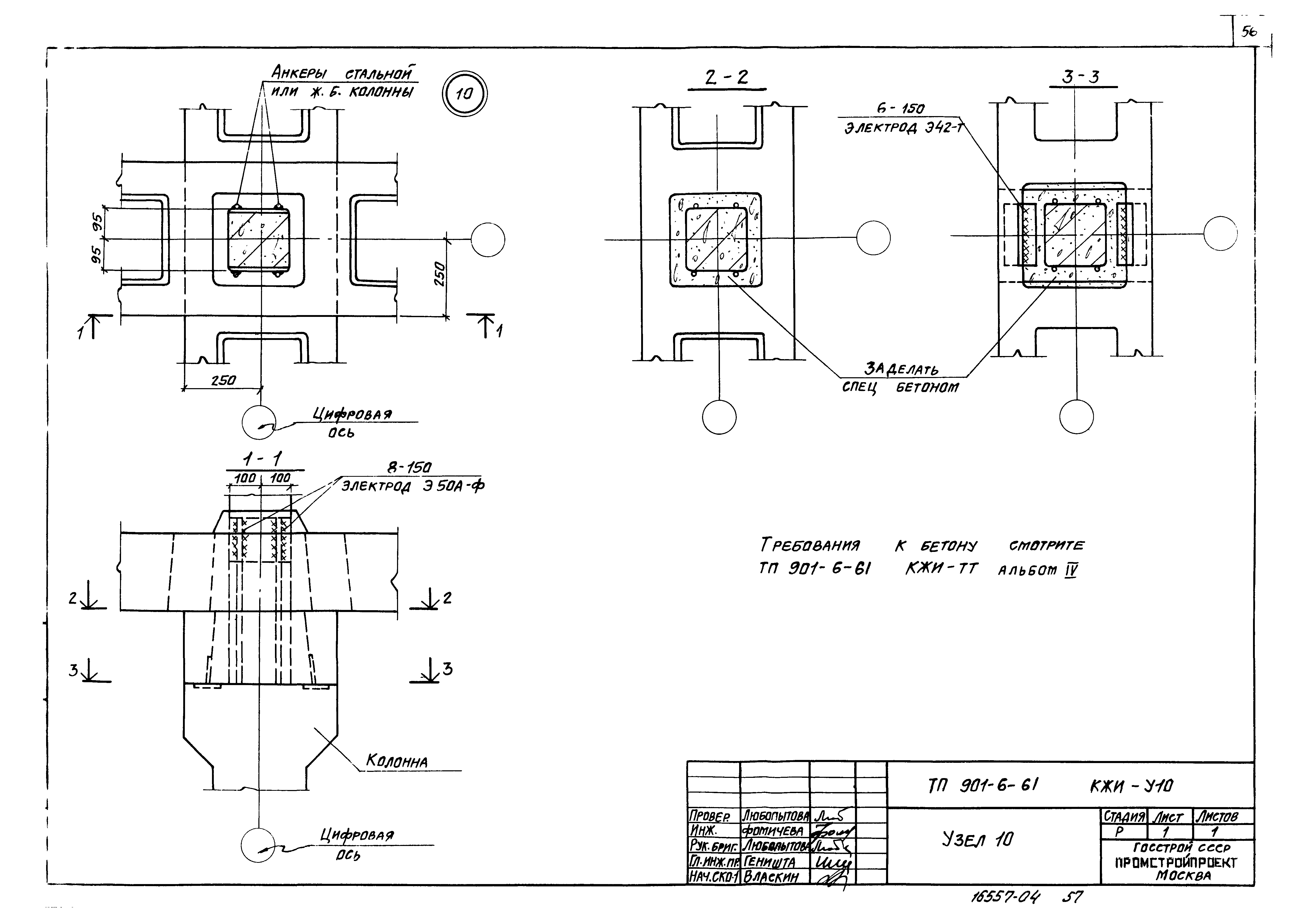
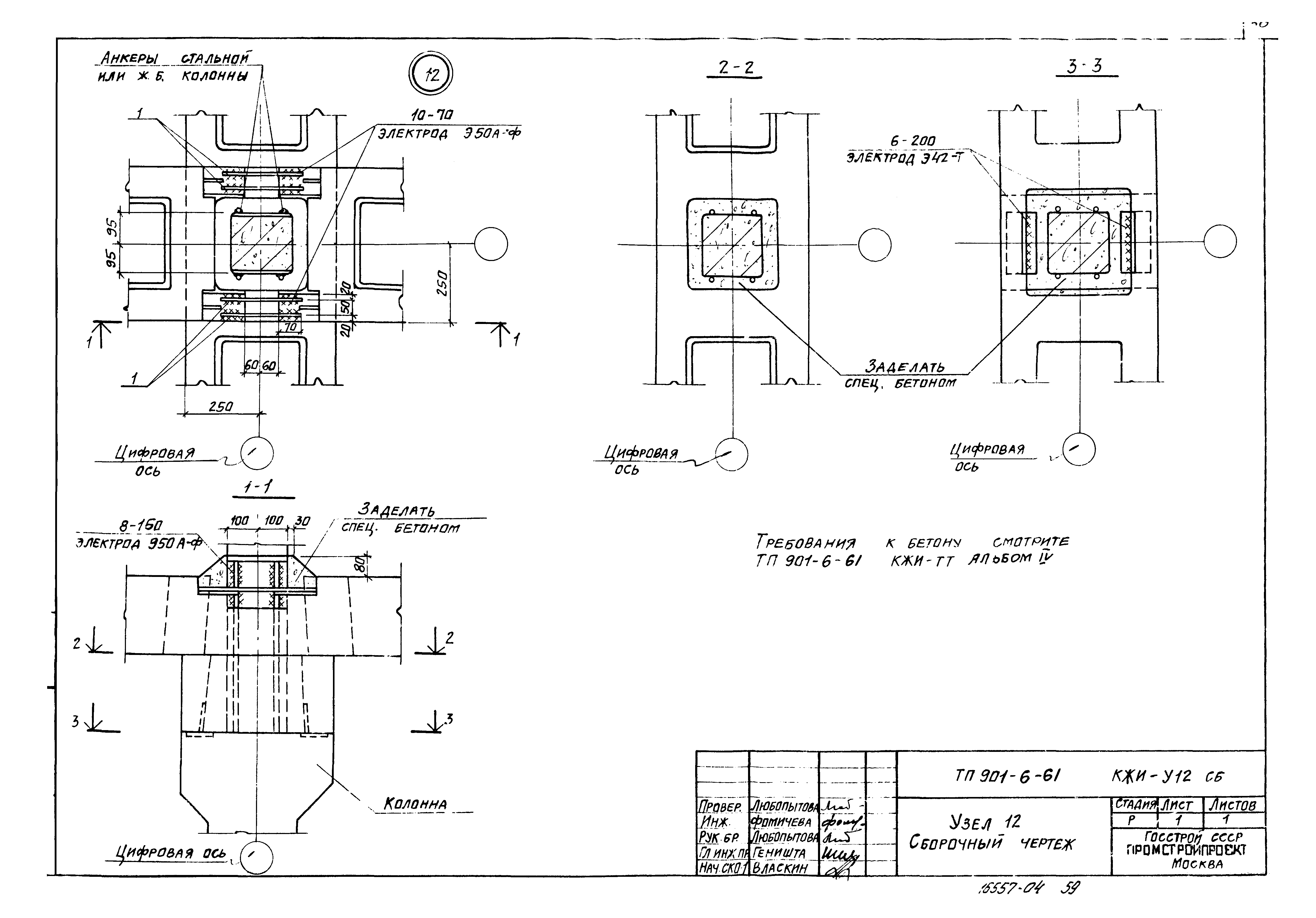
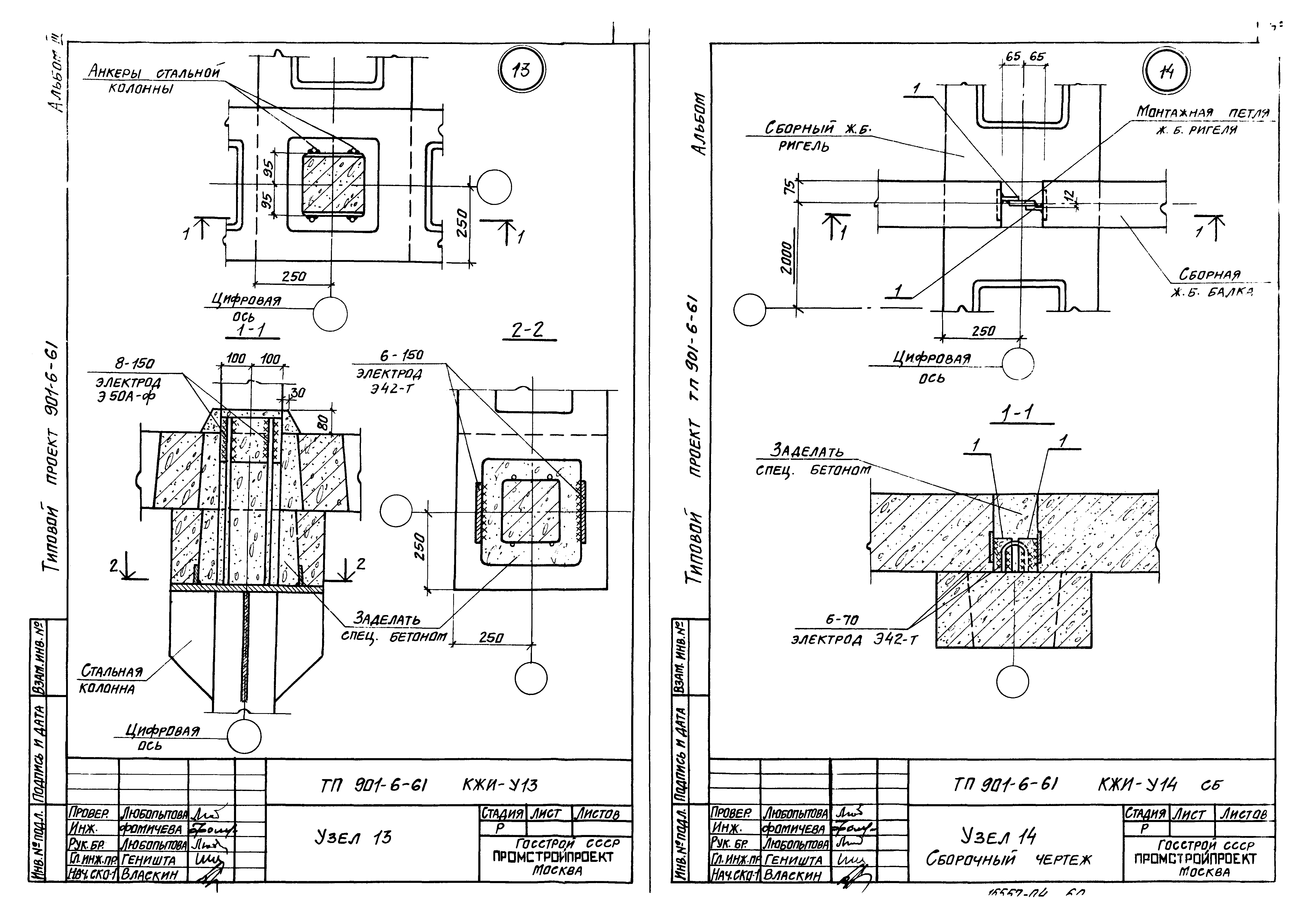
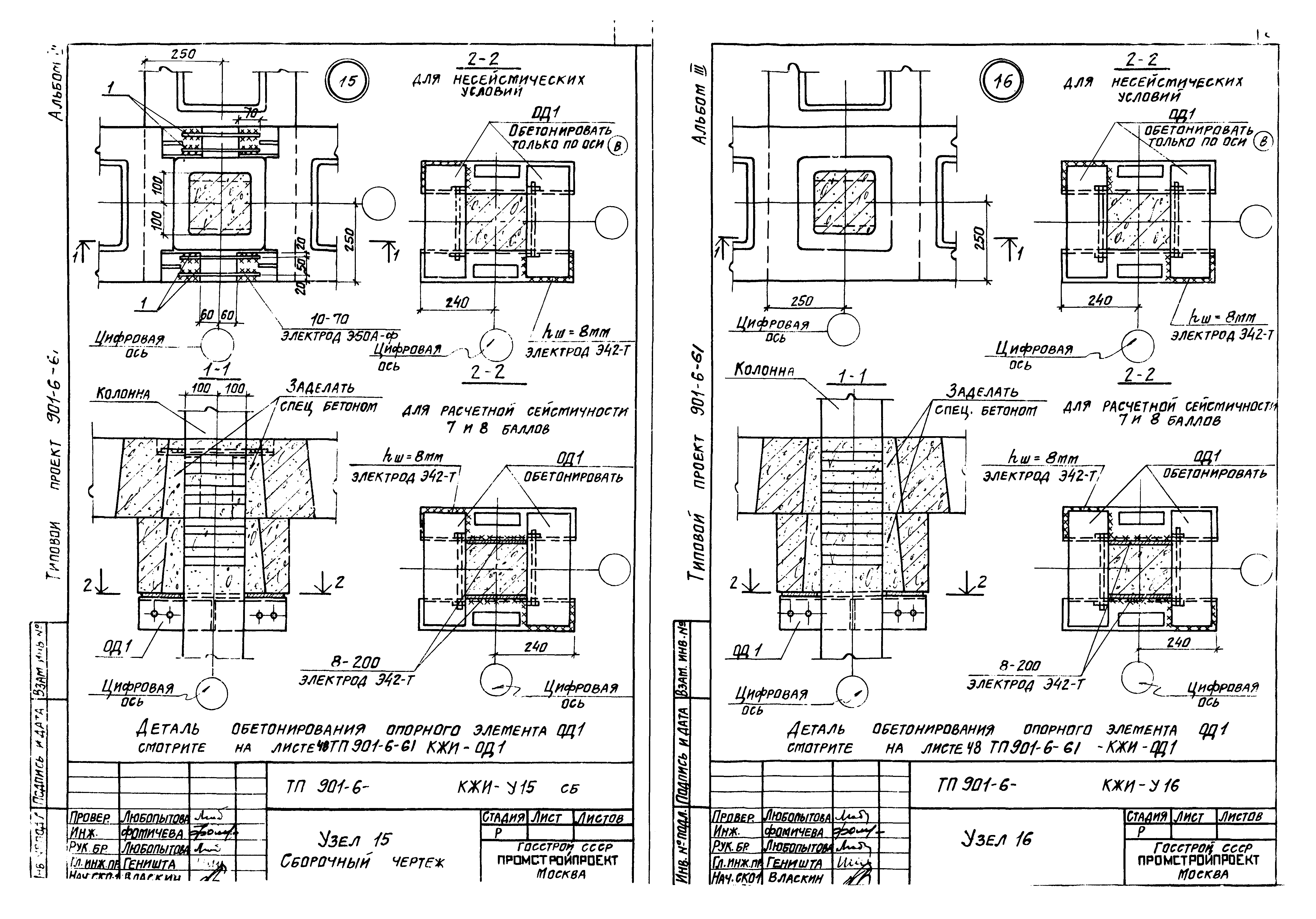
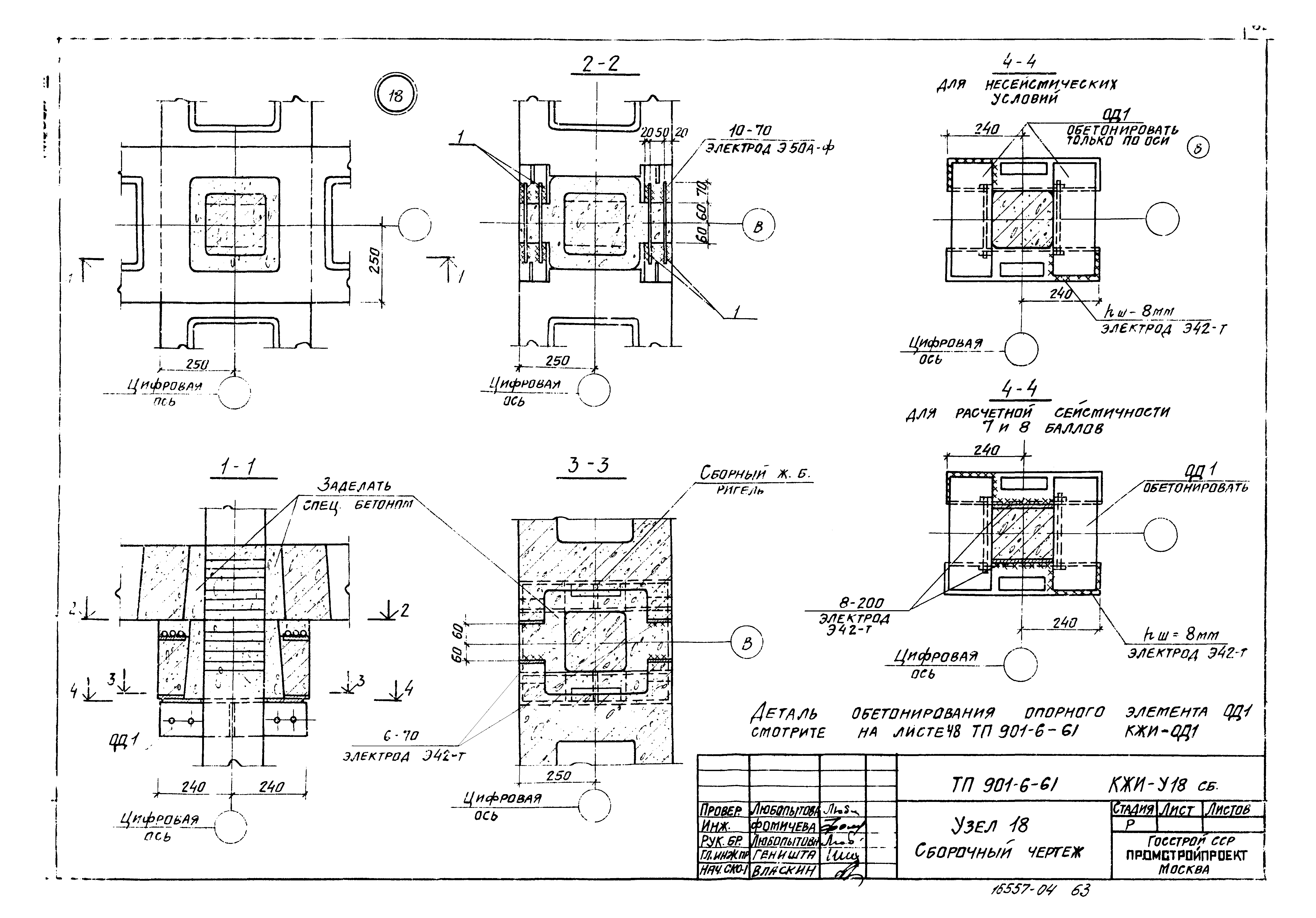
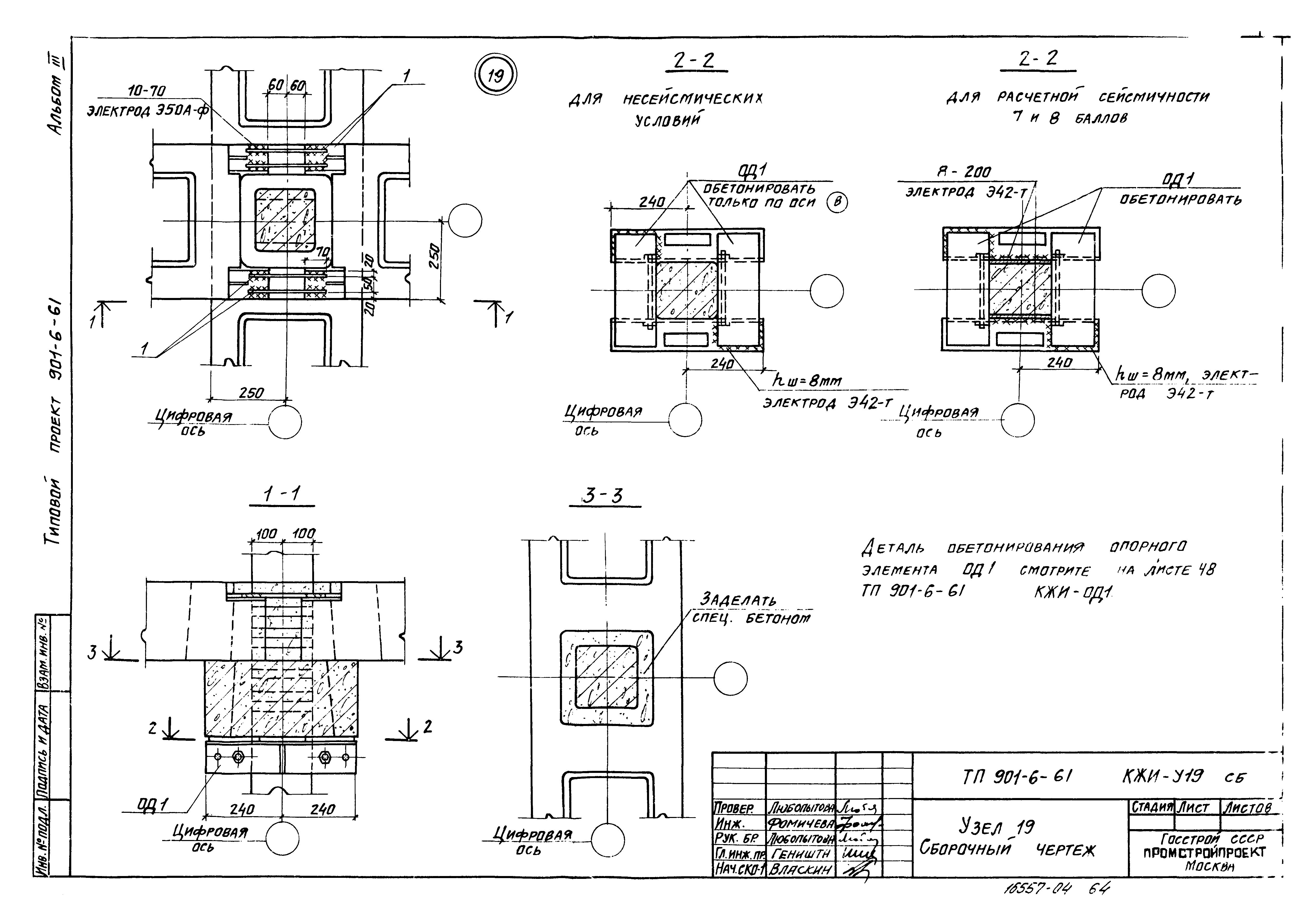
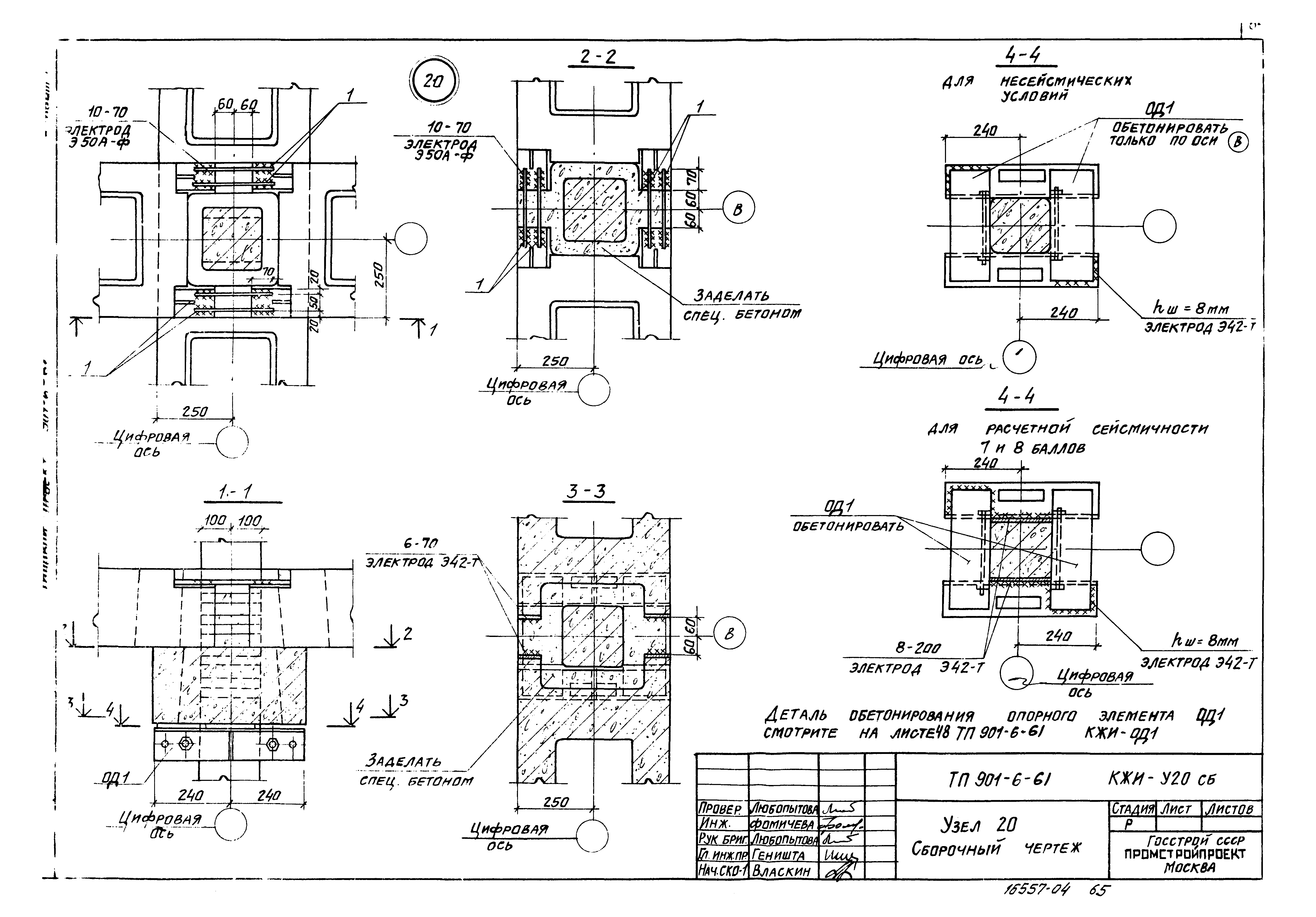
Скачать Типовой проект 901-6-61 Альбом III. Изделия, узлы и детали строительных конструкцийДата актуализации: 01.01.2021 Типовой проект 901-6-61
Альбом III. Изделия, узлы и детали строительных конструкций| Обозначение: | Типовой проект 901-6-61 | | Обозначение англ: | 901-6-61 | | Статус: | отменен | | Название рус.: | Альбом III. Изделия, узлы и детали строительных конструкций | | Дата добавления в базу: | 21.05.2015 | | Дата актуализации: | 01.01.2021 | | Дата введения: | 28.03.1980 | | Дата окончания срока действия: | 01.01.1997 | | Разработан: | Союзводоканалпроект Промстройпроект
| | Утверждён: | 19.12.1979 Союзводоканалпроект (Soyuzvodokanalproject 76)
| | Издан: | ЦИТП Госстроя СССР (CITP, Gosstroy (USSR) 1980 г. )
| | Заменяет собой: | |
                                                                 
|