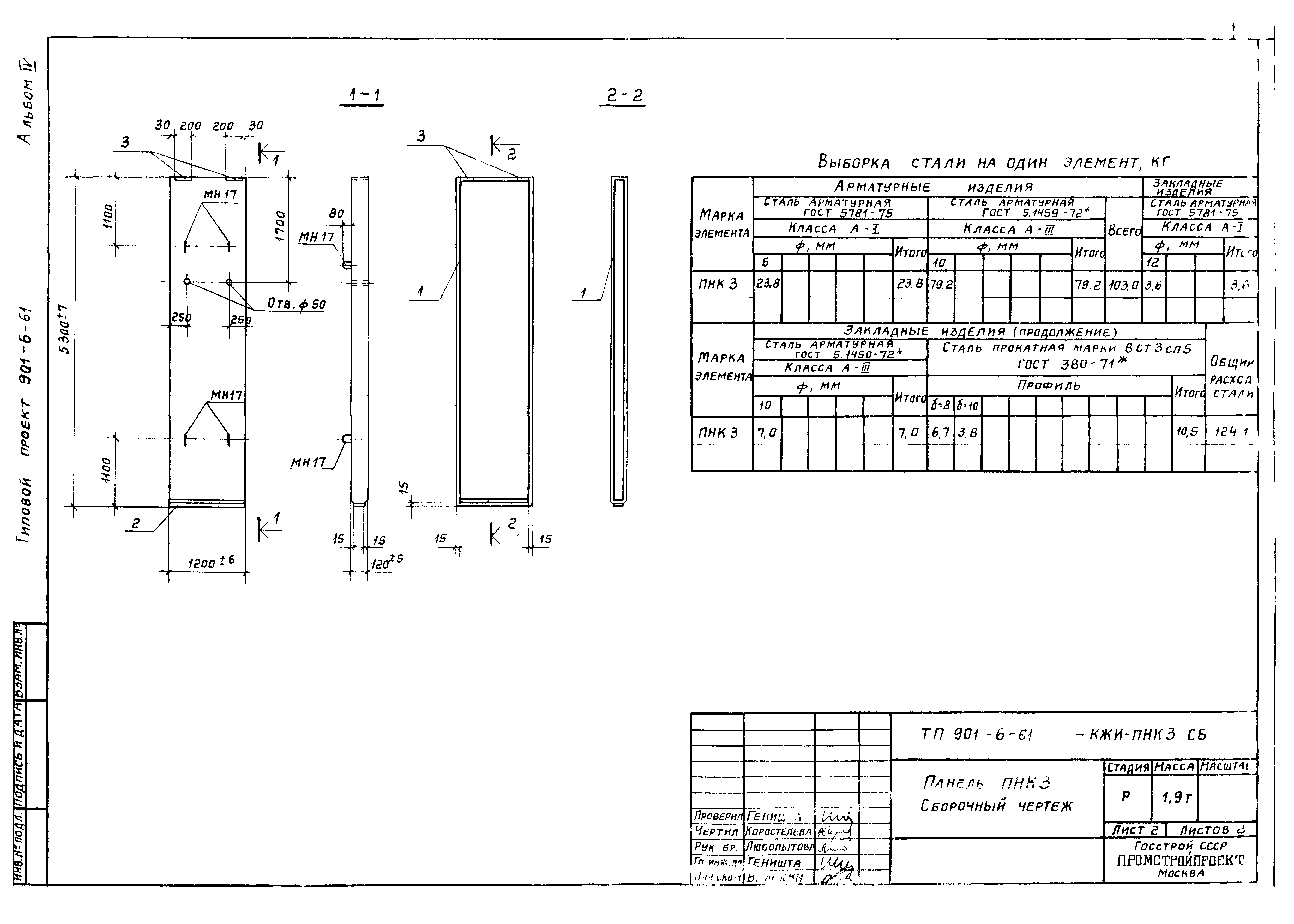
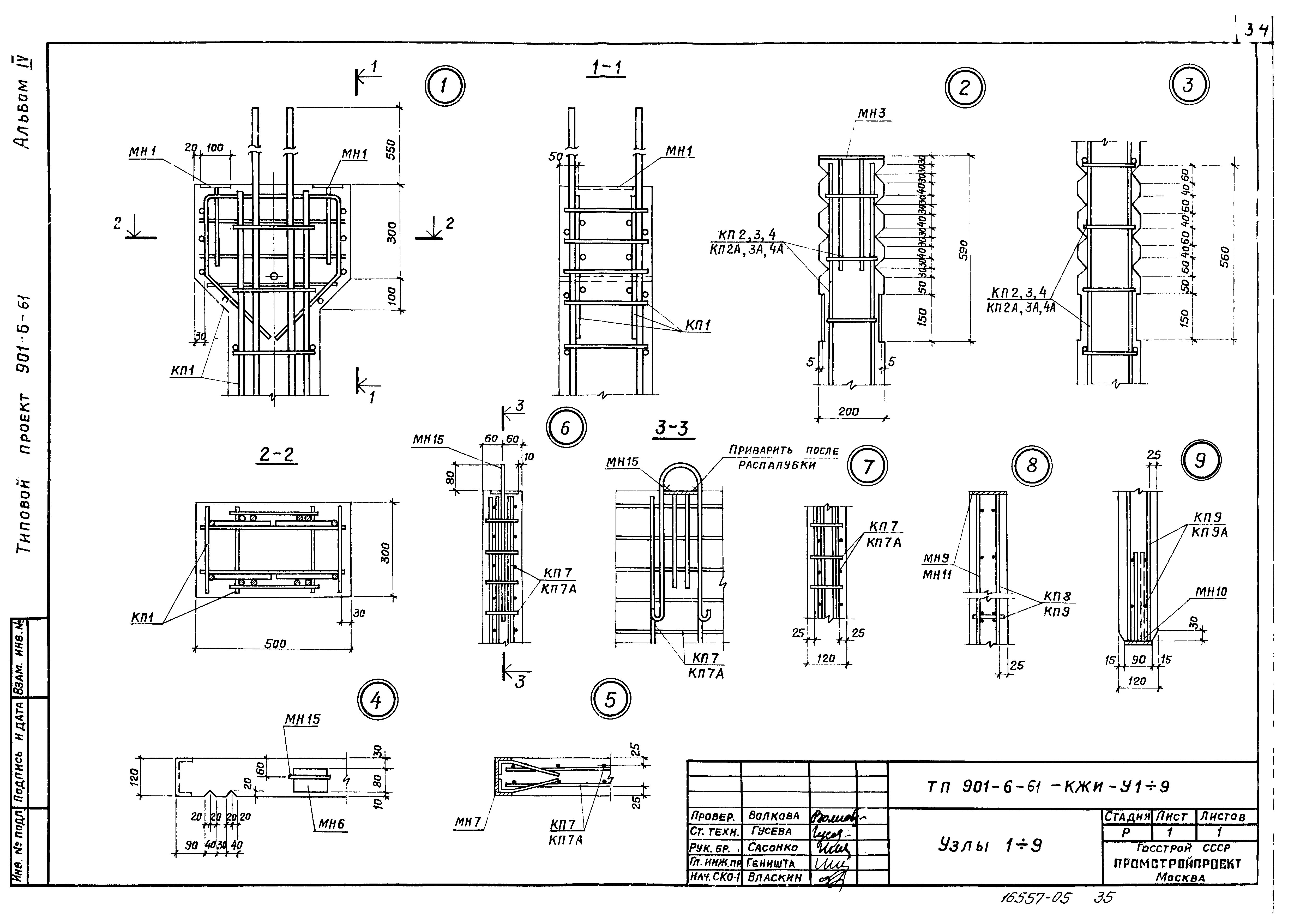
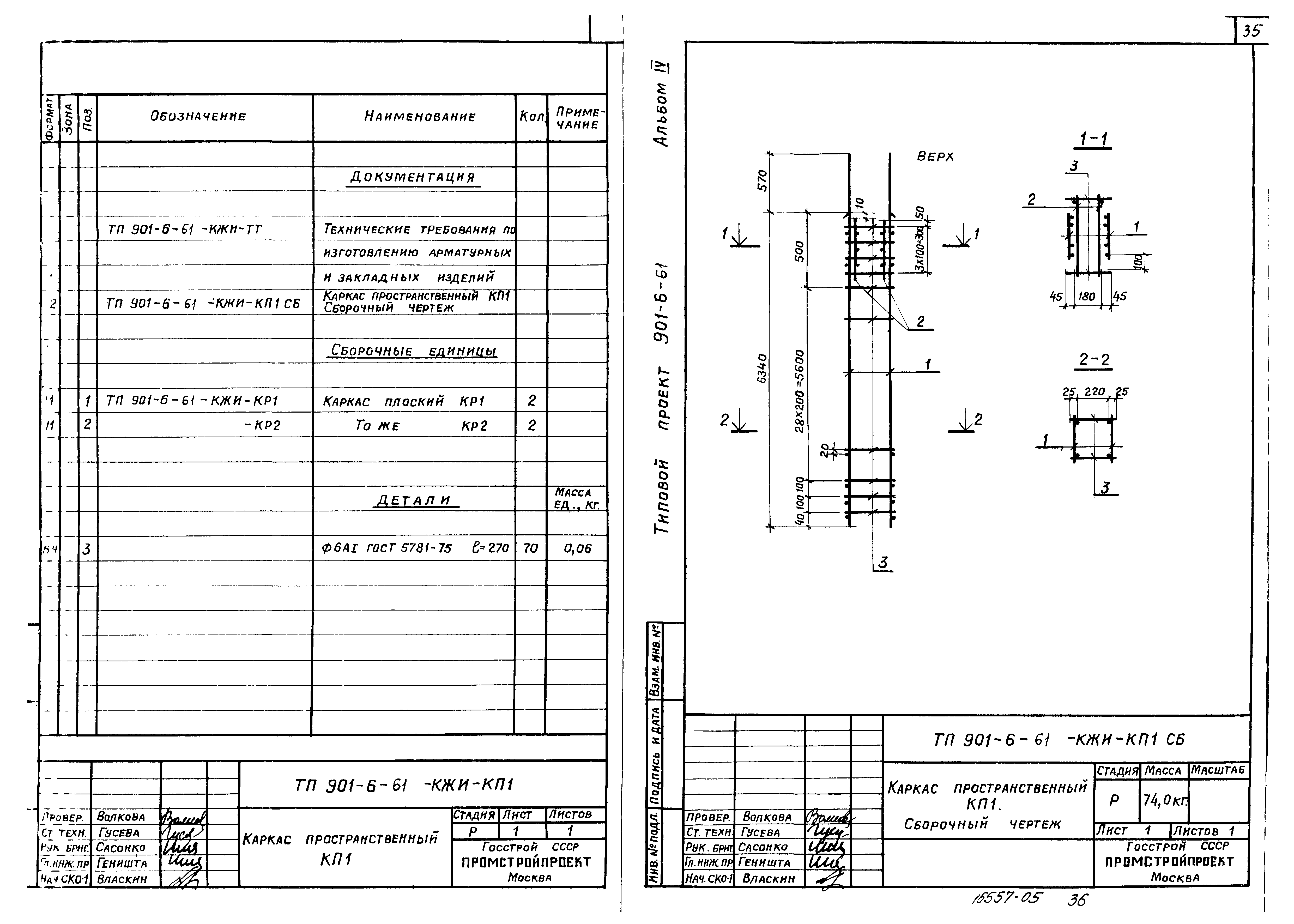
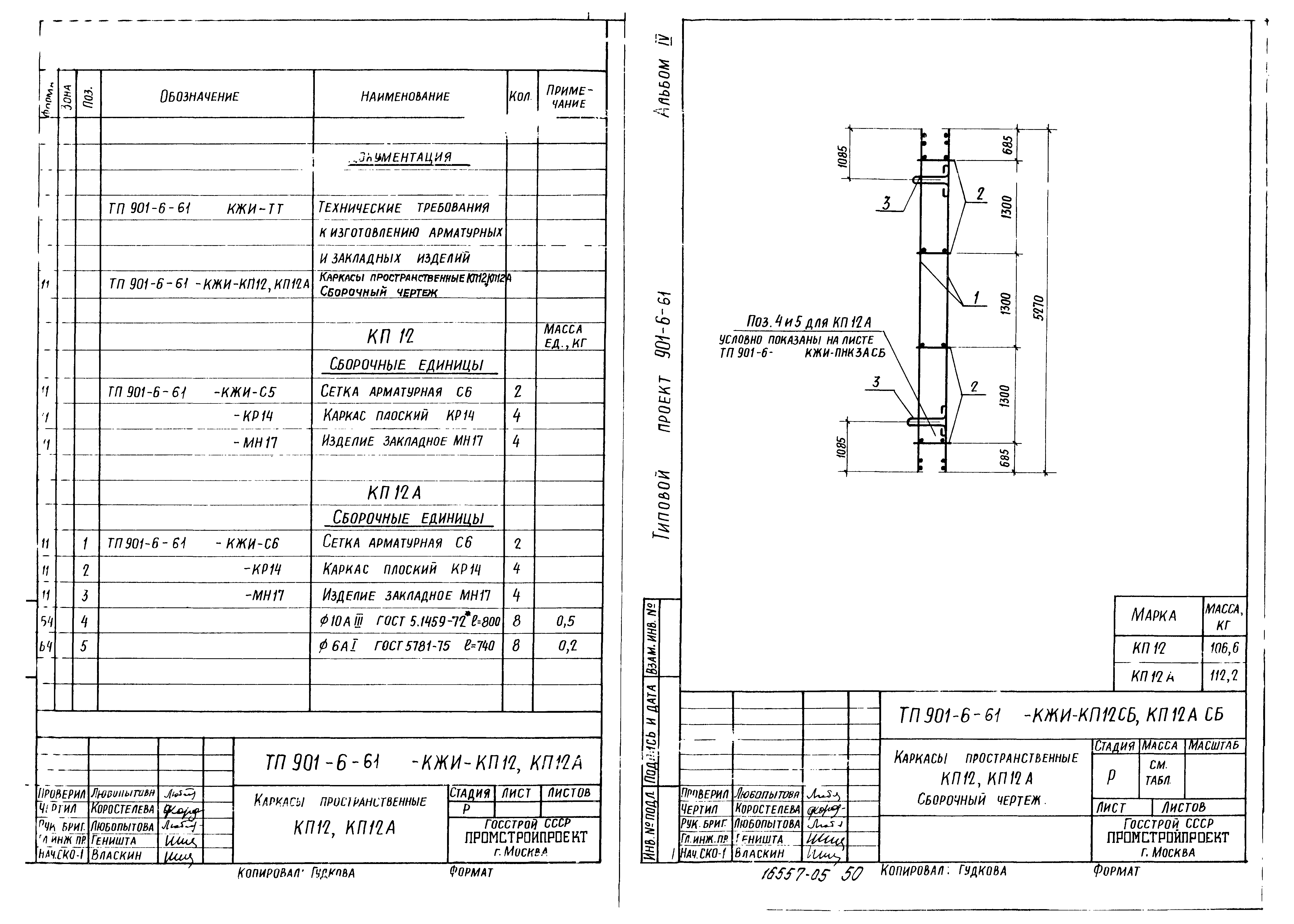
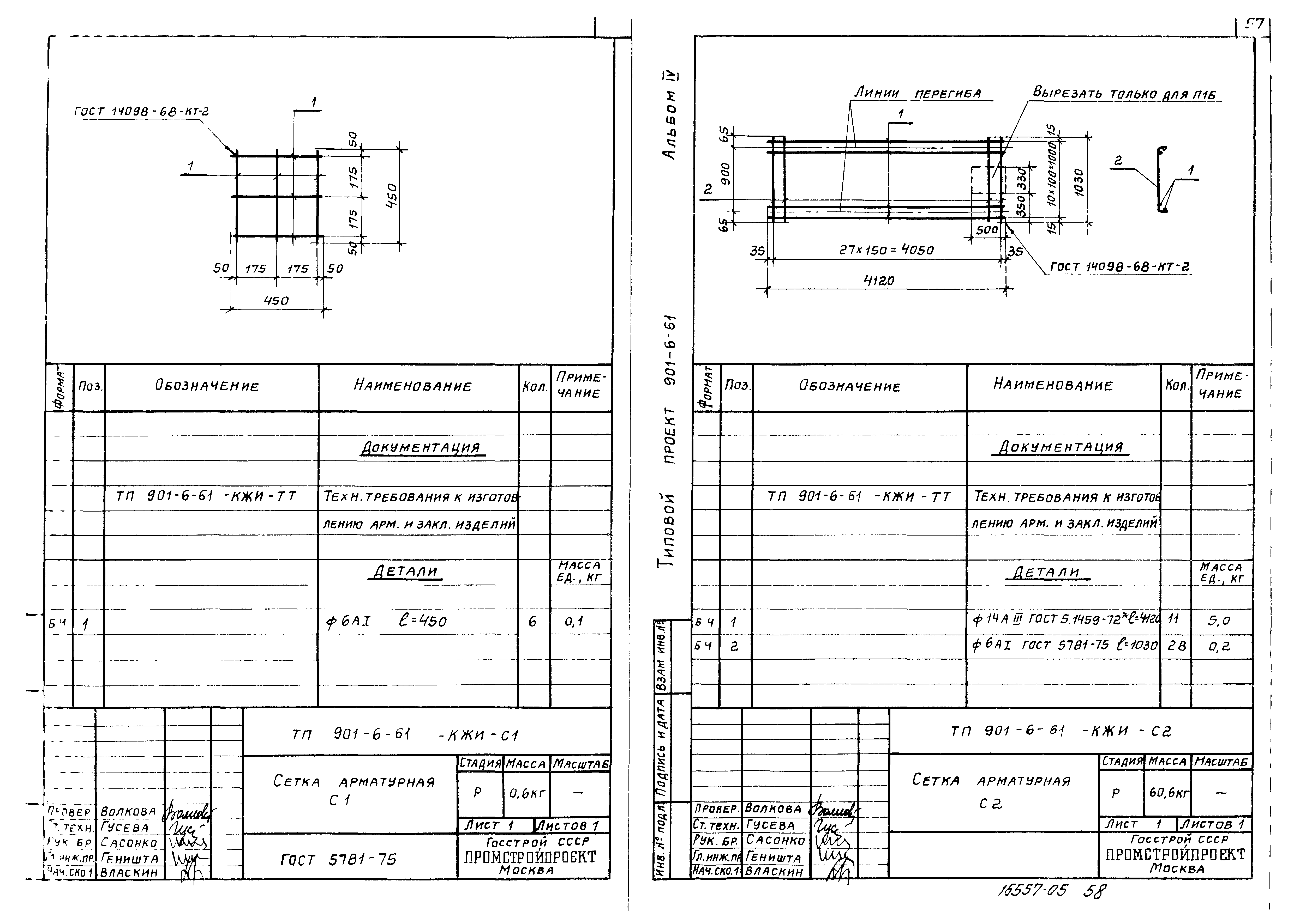
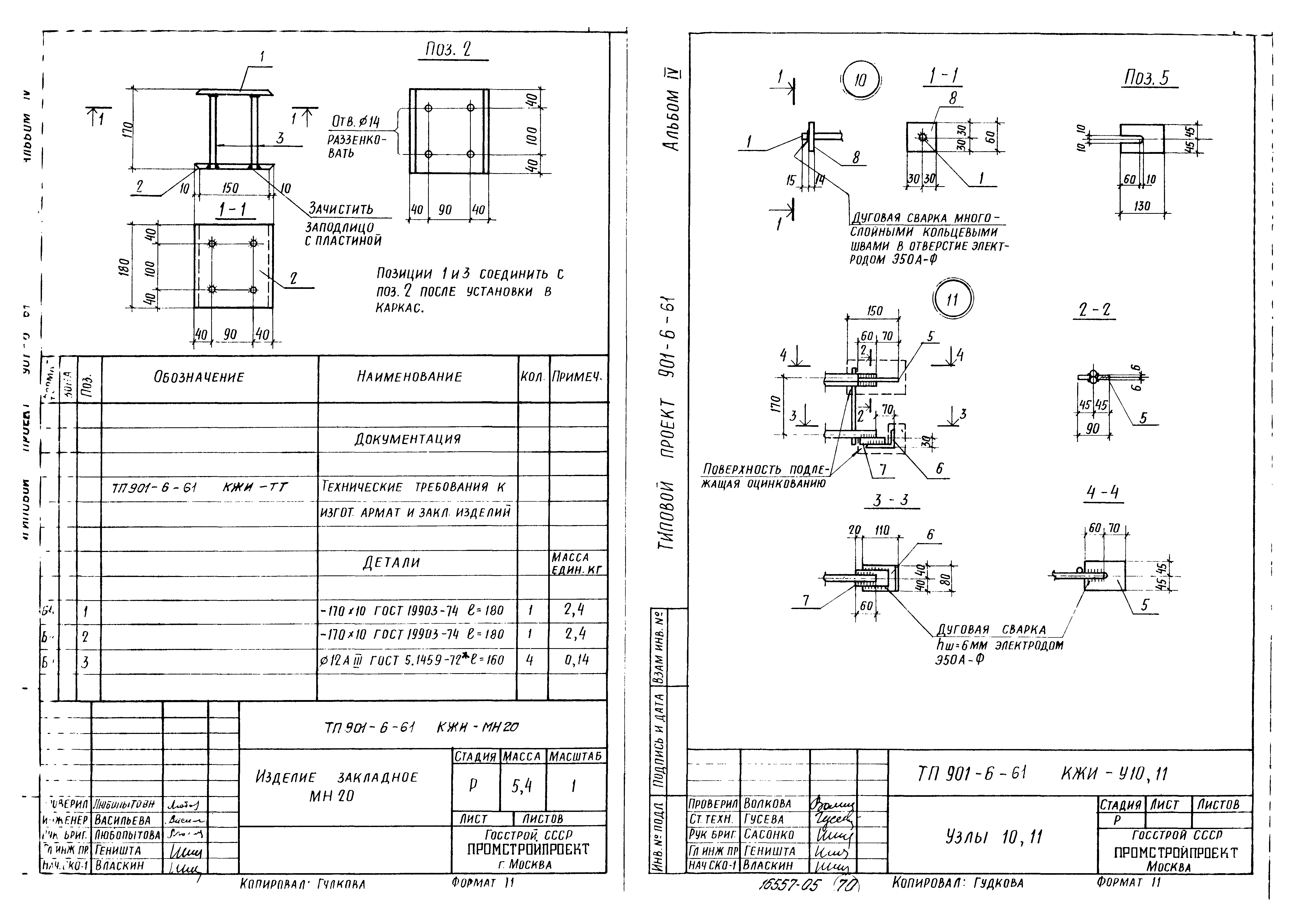
Скачать Типовой проект 901-6-61 Альбом IV. Элементы сборных железобетонных конструкцийДата актуализации: 01.01.2021
|
| Обозначение: | Типовой проект 901-6-61 |
| Обозначение англ: | 901-6-61 |
| Статус: | отменен |
| Название рус.: | Альбом IV. Элементы сборных железобетонных конструкций |
| Дата добавления в базу: | 21.05.2015 |
| Дата актуализации: | 01.01.2021 |
| Дата введения: | 28.03.1980 |
| Дата окончания срока действия: | 01.01.1997 |
| Разработан: | Союзводоканалпроект Промстройпроект |
| Утверждён: | 19.12.1979 Союзводоканалпроект (Soyuzvodokanalproject 76) |
| Издан: | ЦИТП Госстроя СССР (CITP, Gosstroy (USSR) 1980 г. ) |
| Заменяет собой: |






































































