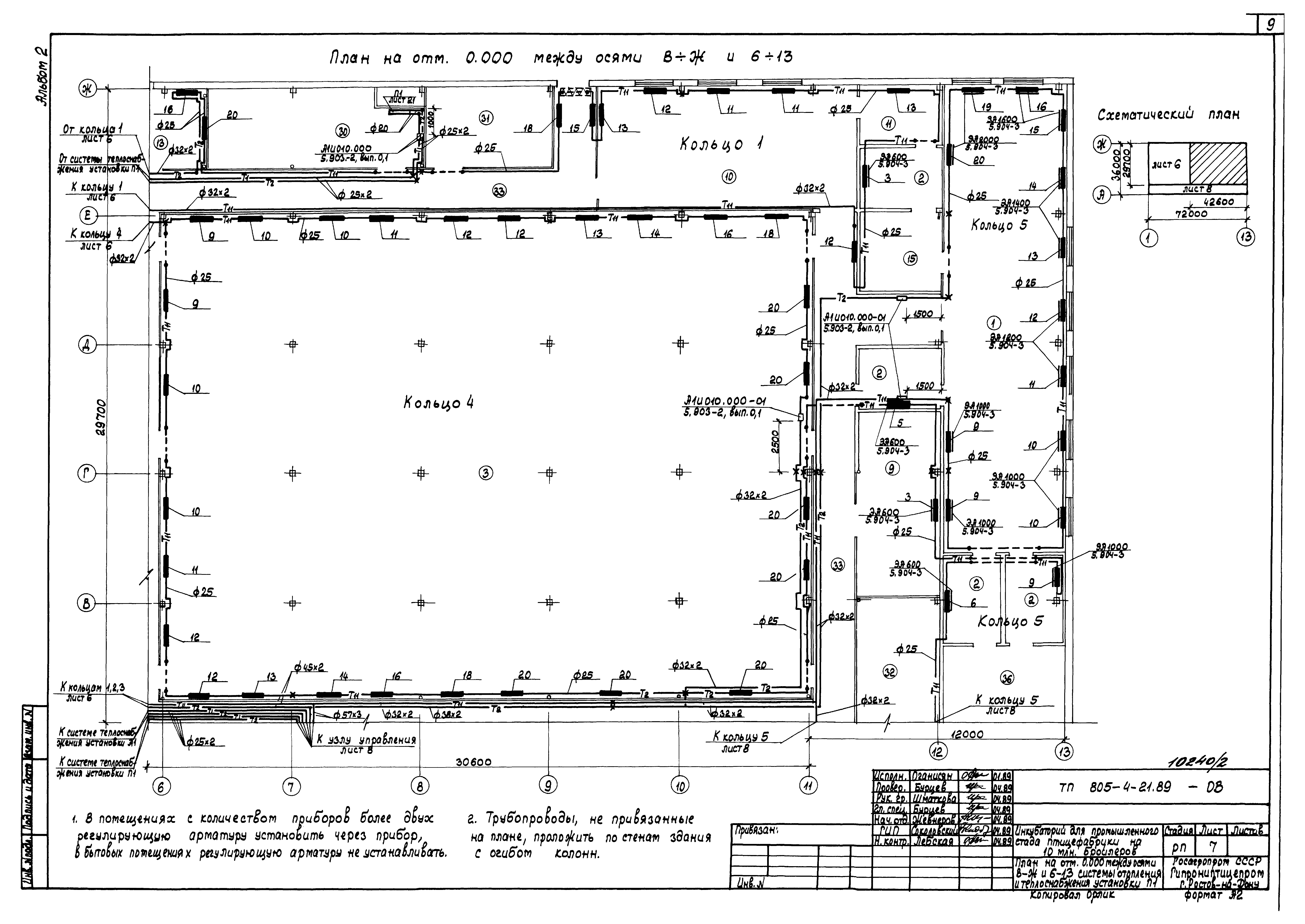
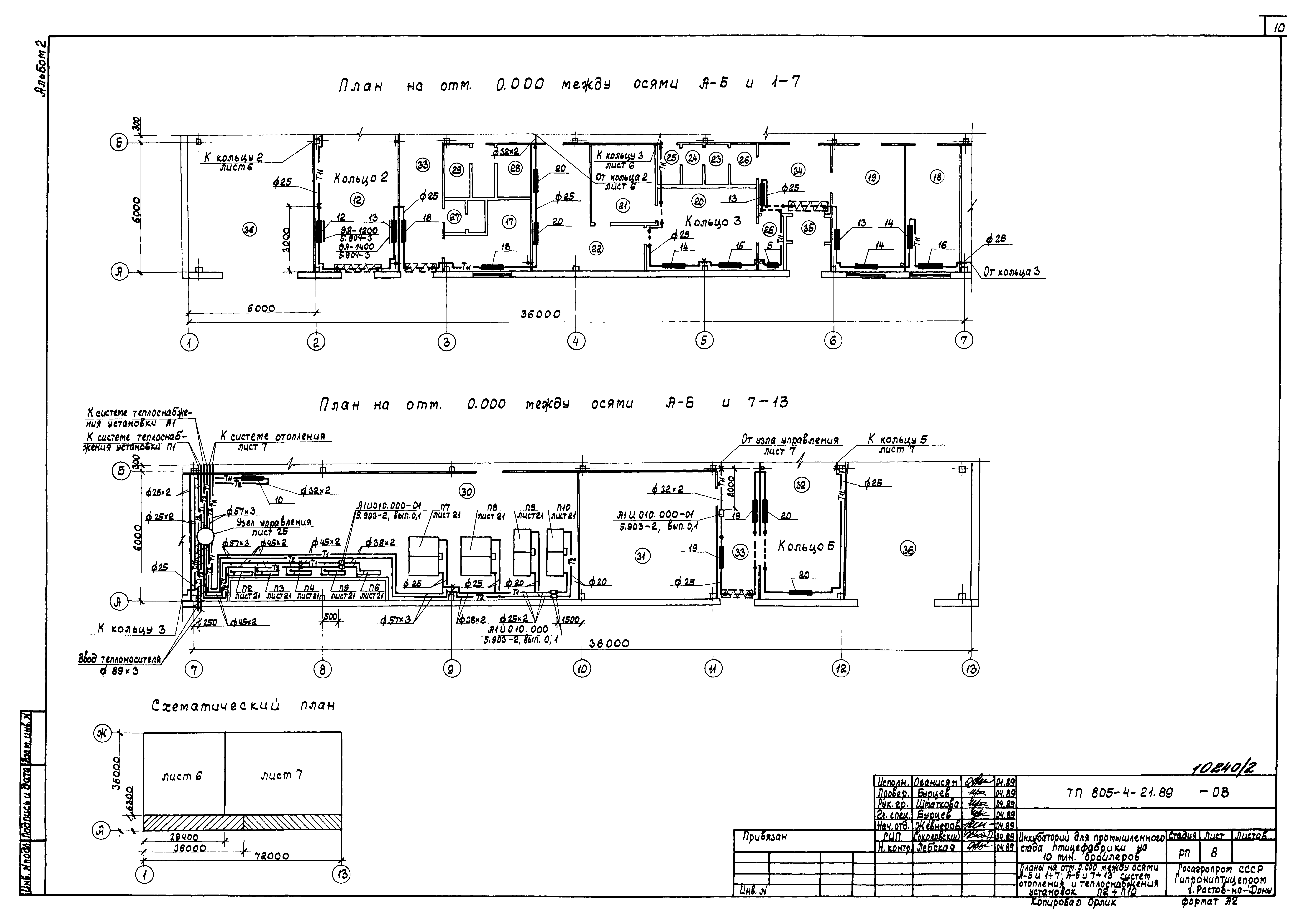
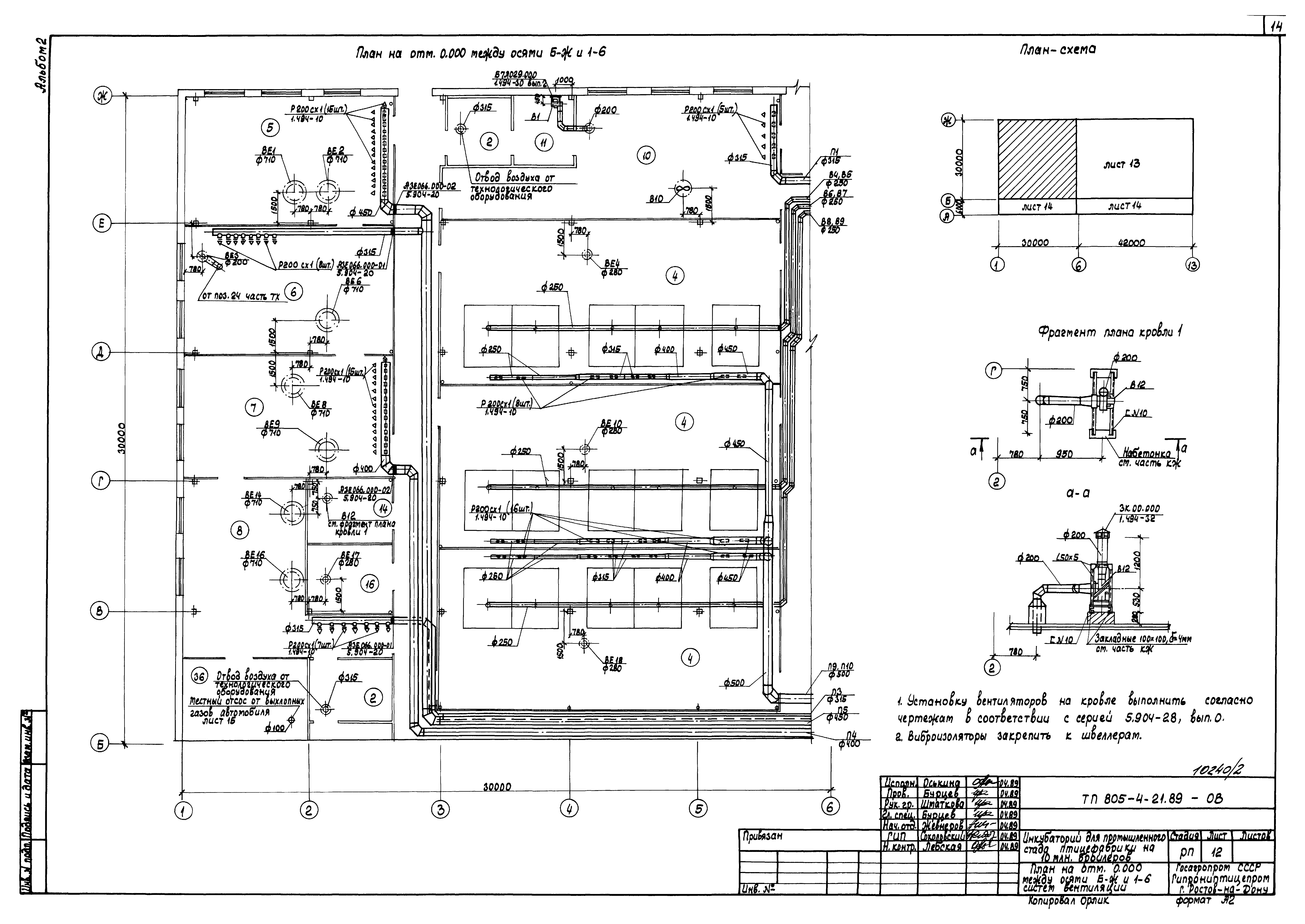
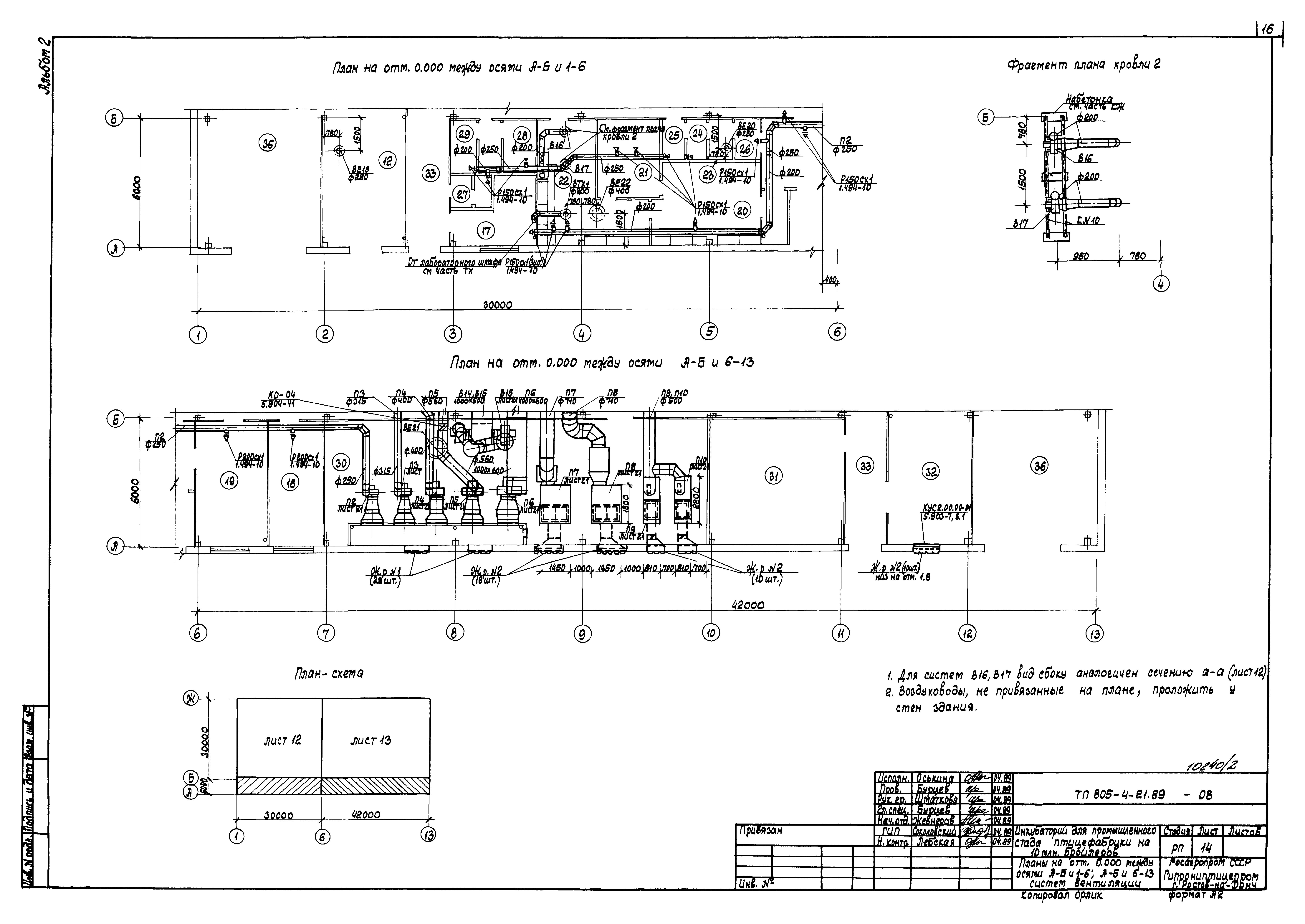
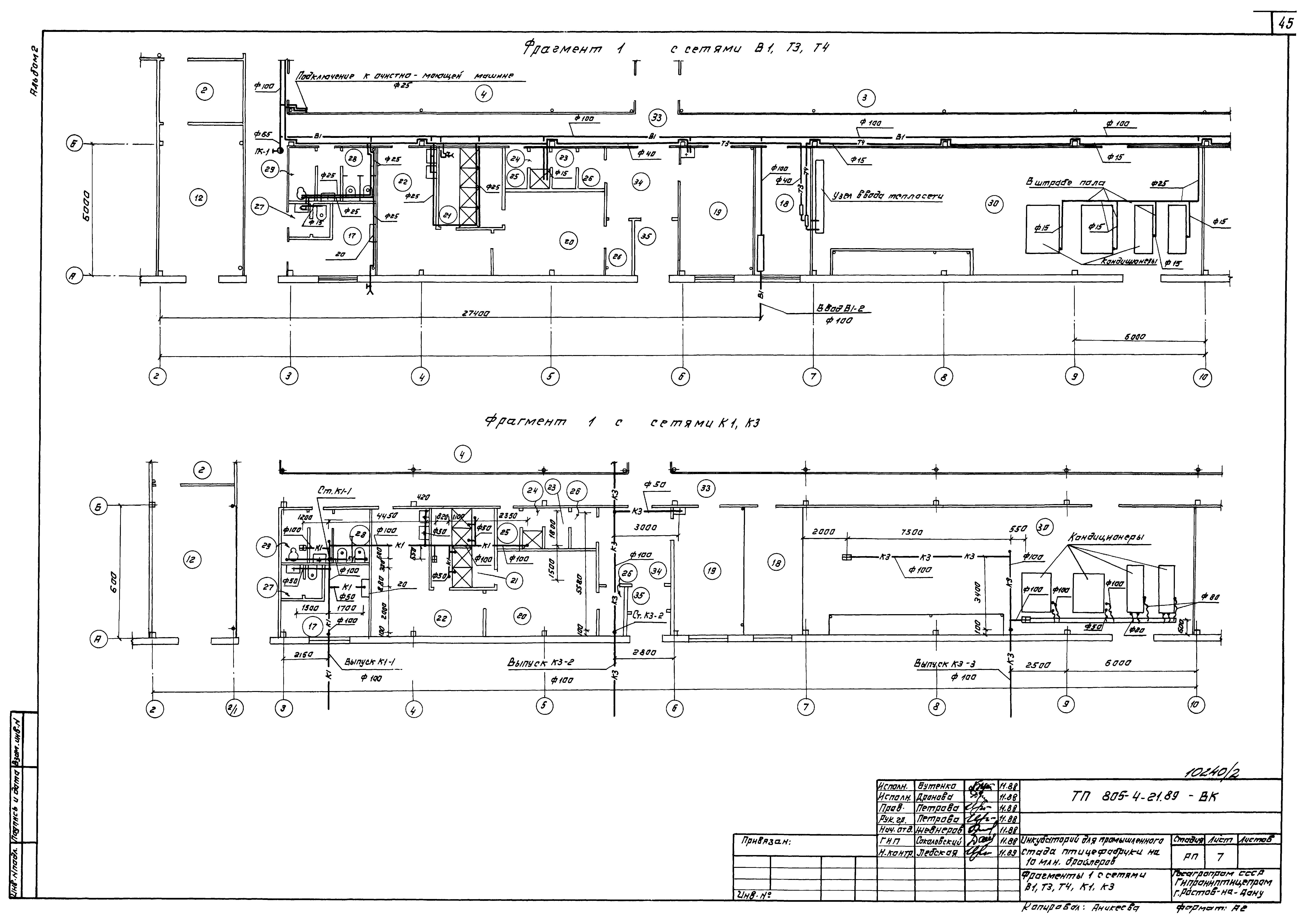
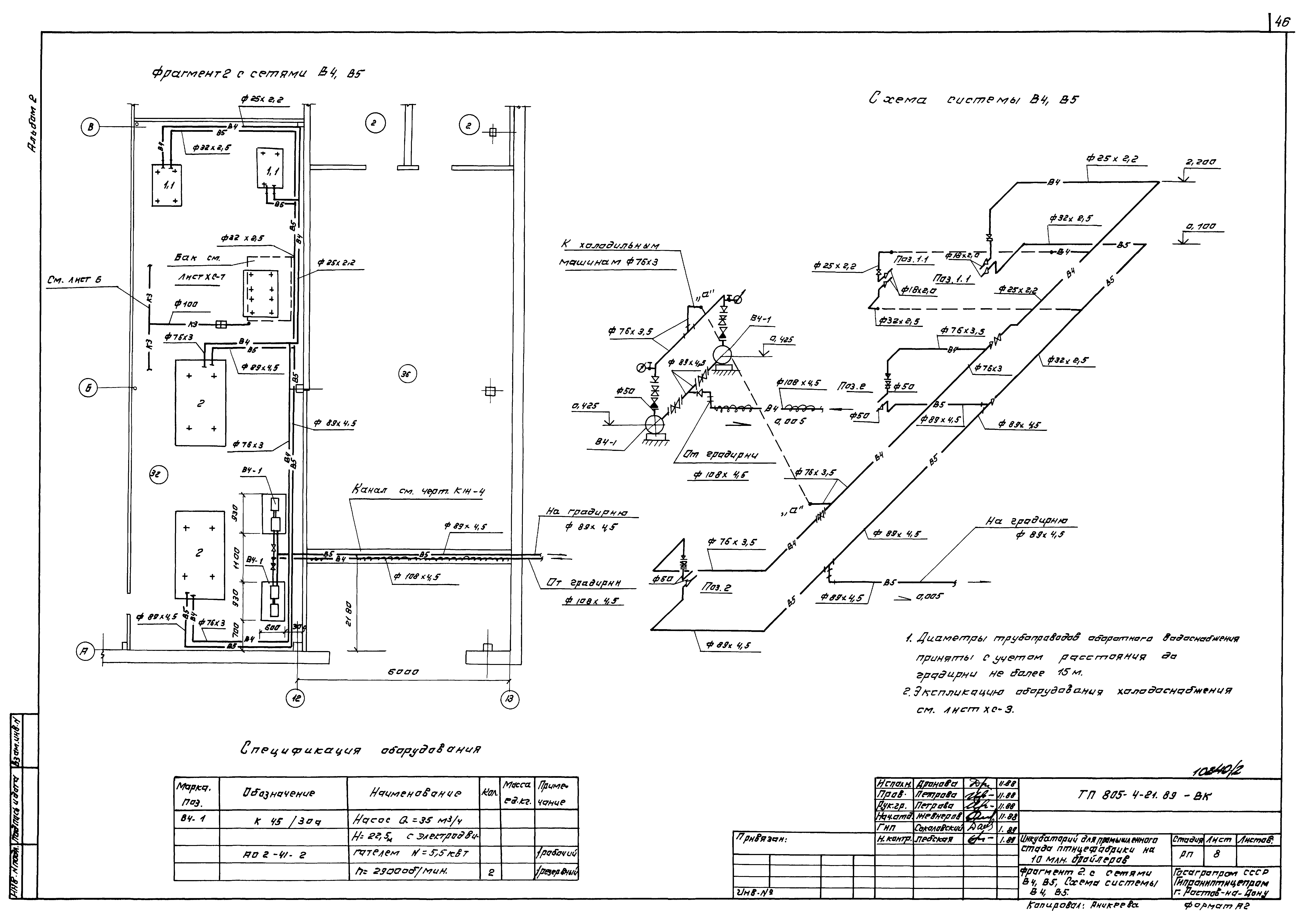
Скачать Типовой проект 805-4-21.89 Альбом 2. Отопление, вентиляция и кондиционирование воздуха. Воздухоснабжение. Холодоснабжение. Внутренние водопровод и канализацияДата актуализации: 01.01.2021 Типовой проект 805-4-21.89
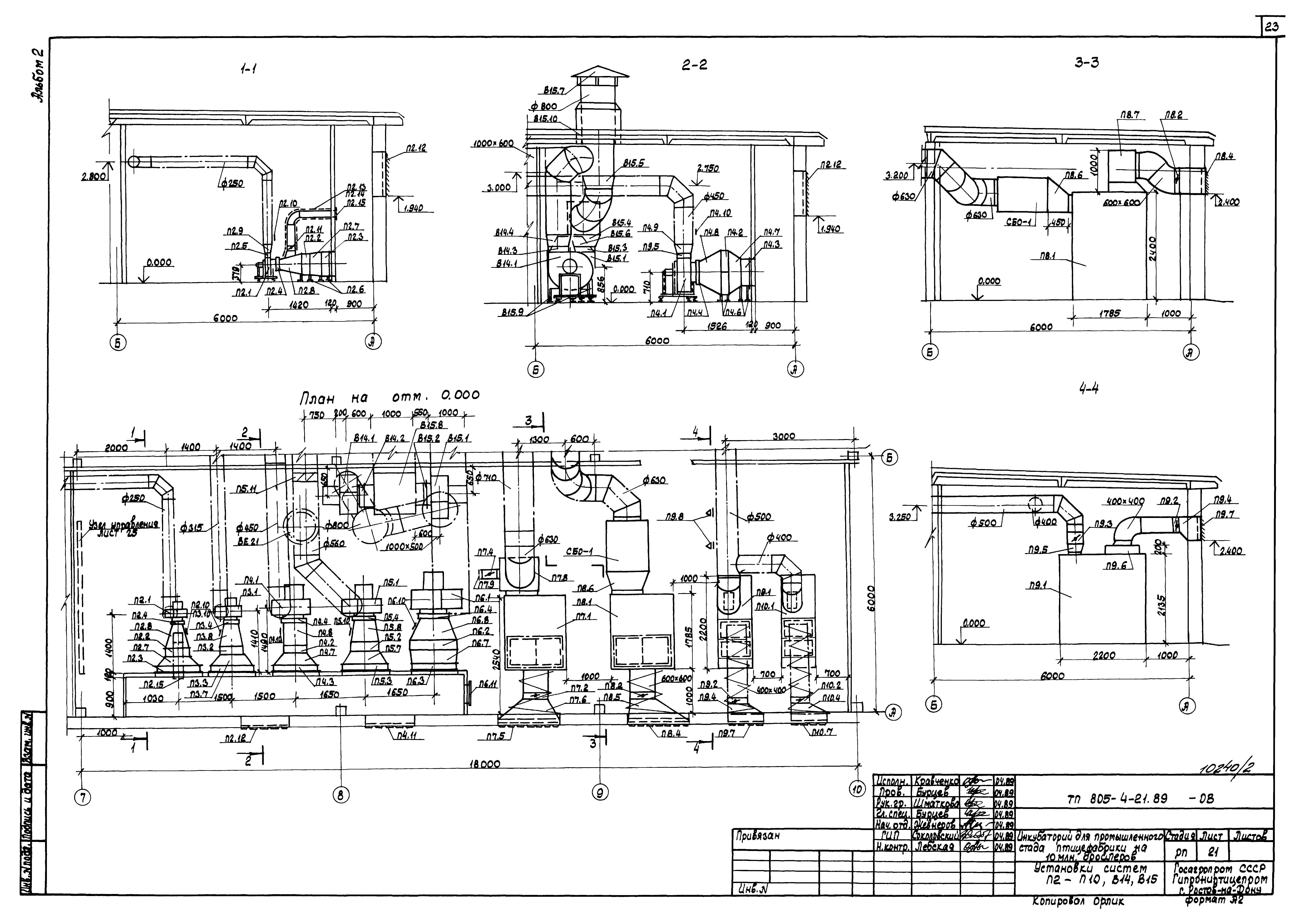
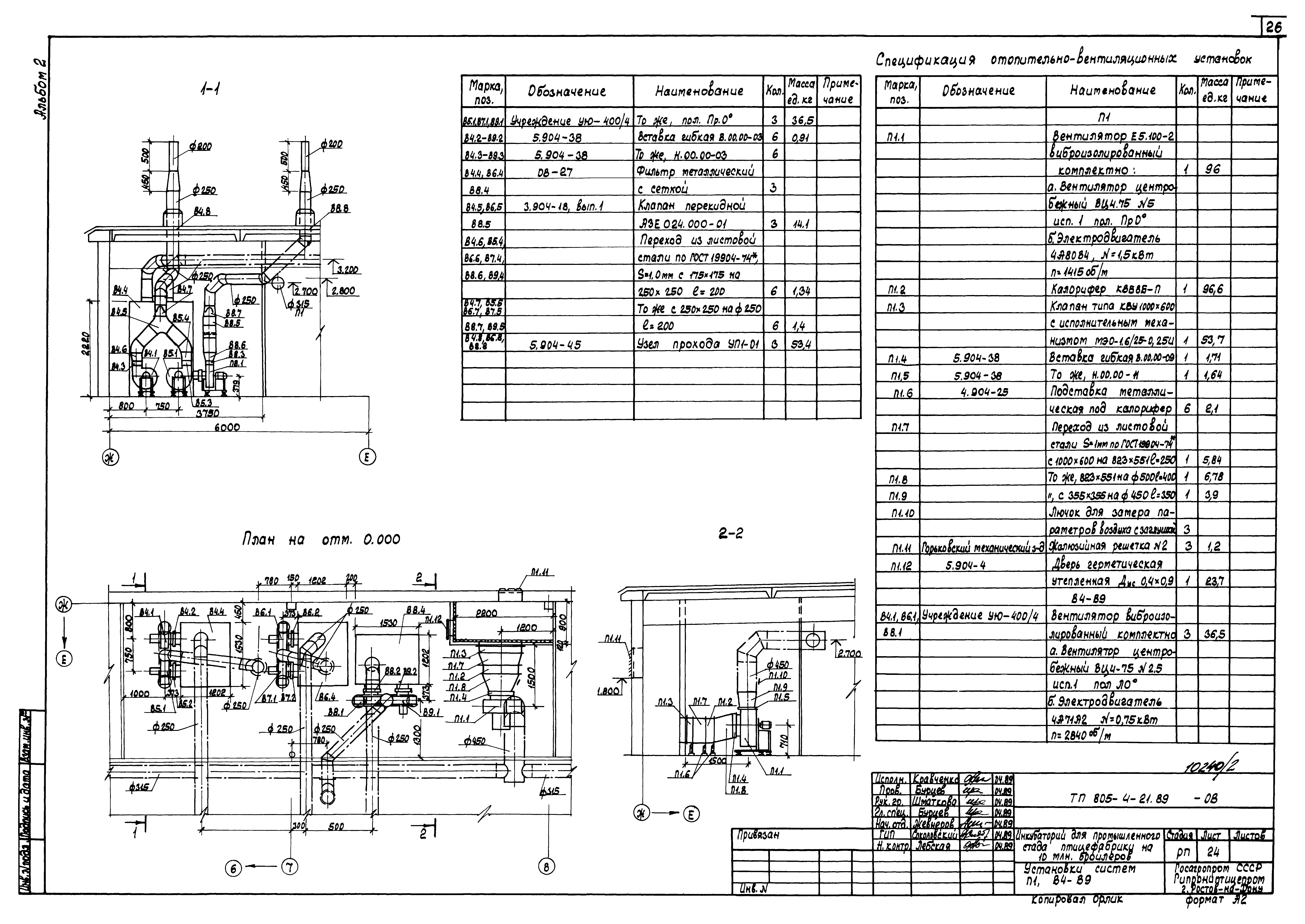
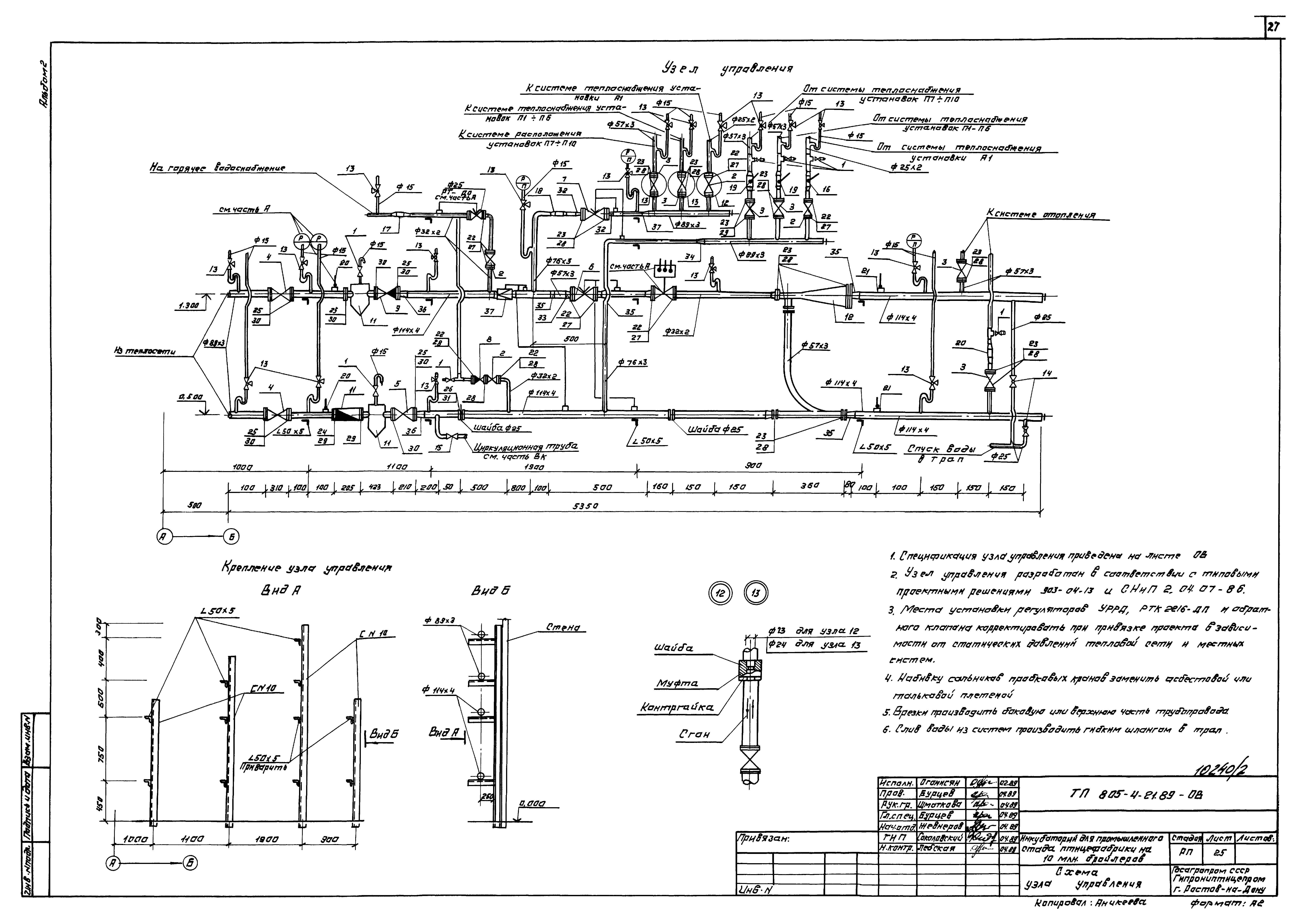
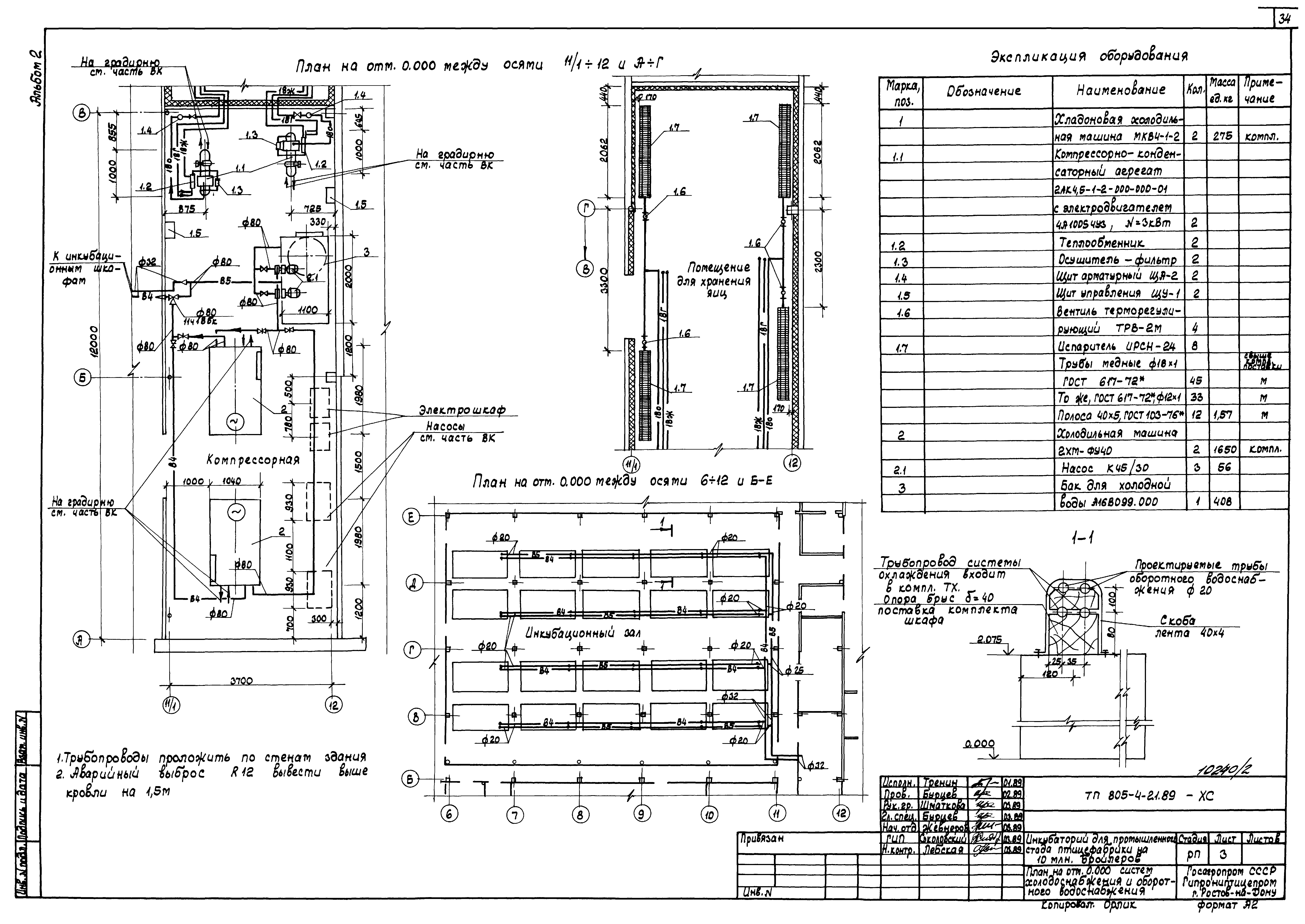
Альбом 2. Отопление, вентиляция и кондиционирование воздуха. Воздухоснабжение. Холодоснабжение. Внутренние водопровод и канализация| Обозначение: | Типовой проект 805-4-21.89 | | Обозначение англ: | 805-4-21.89 | | Статус: | не определен законодательством | | Название рус.: | Альбом 2. Отопление, вентиляция и кондиционирование воздуха. Воздухоснабжение. Холодоснабжение. Внутренние водопровод и канализация | | Дата добавления в базу: | 21.05.2015 | | Дата актуализации: | 01.01.2021 | | Дата введения: | 09.08.1989 | | Дата окончания срока действия: | 30.06.2003 | | Разработан: | Гипрониптицепром
| | Утверждён: | 09.08.1989 Гипрониптицепром (15-ТП)
| | Издан: | ЦИТП Госстроя СССР (CITP, Gosstroy (USSR) 1989 г. )
|
                                               
|