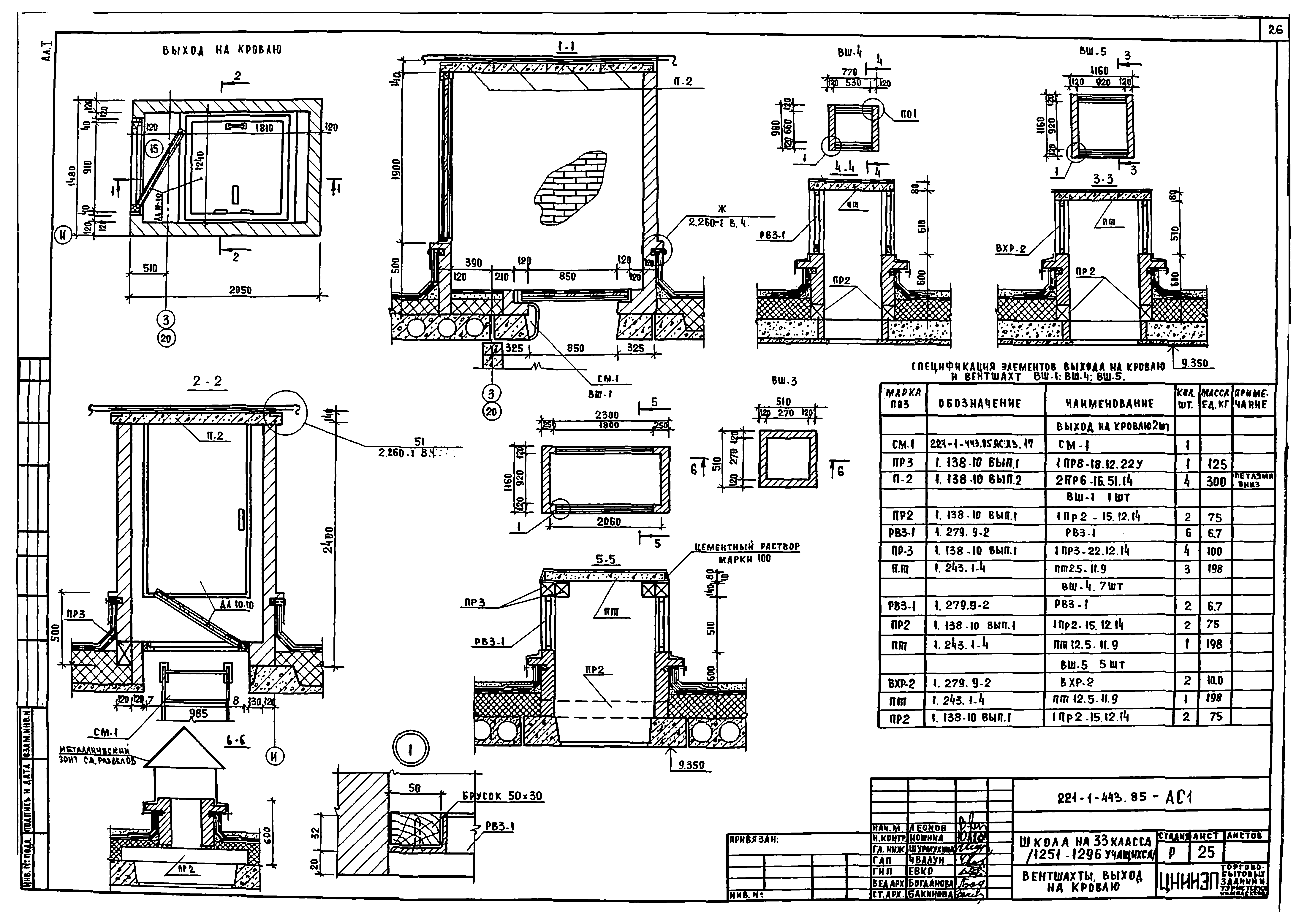
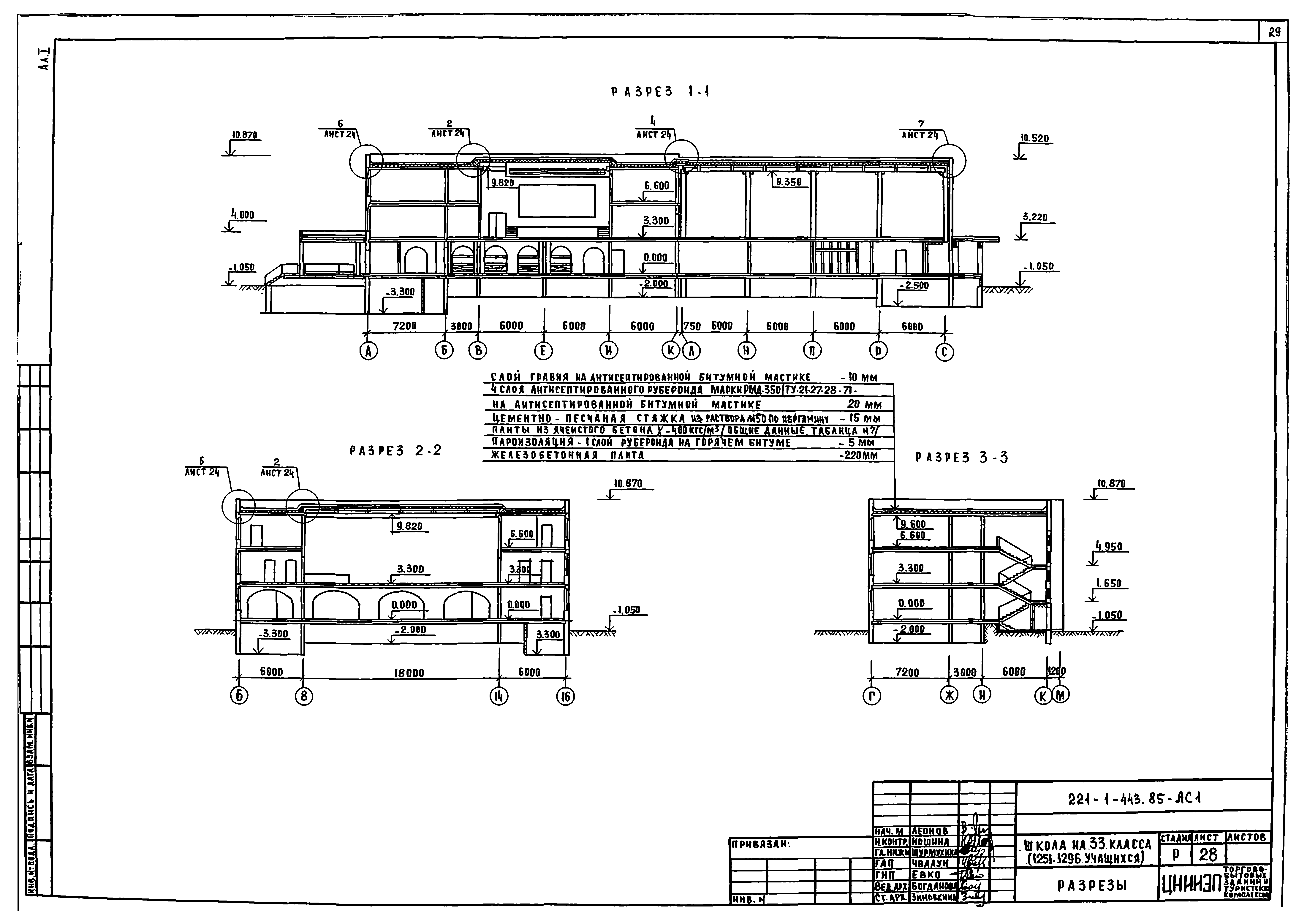
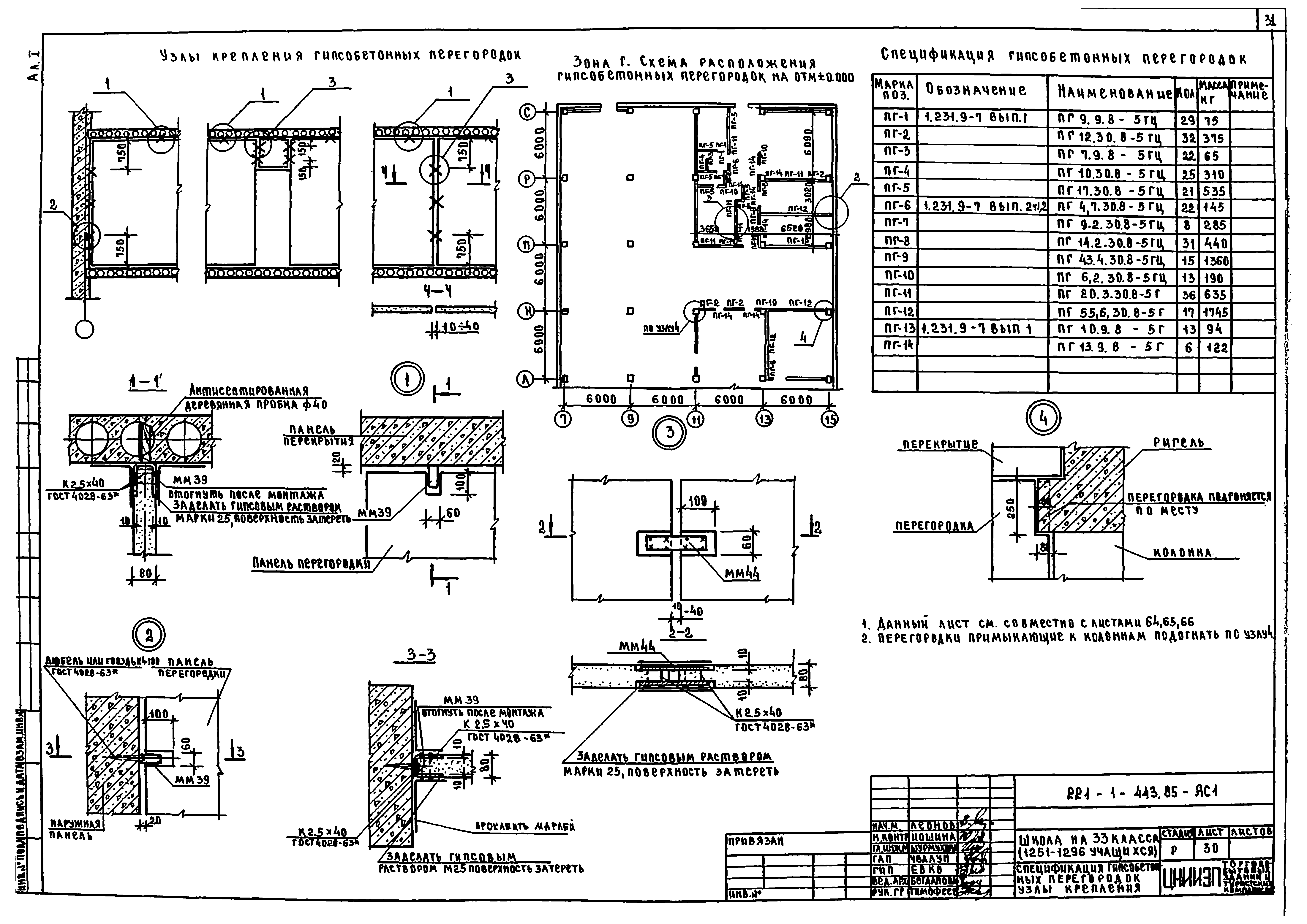
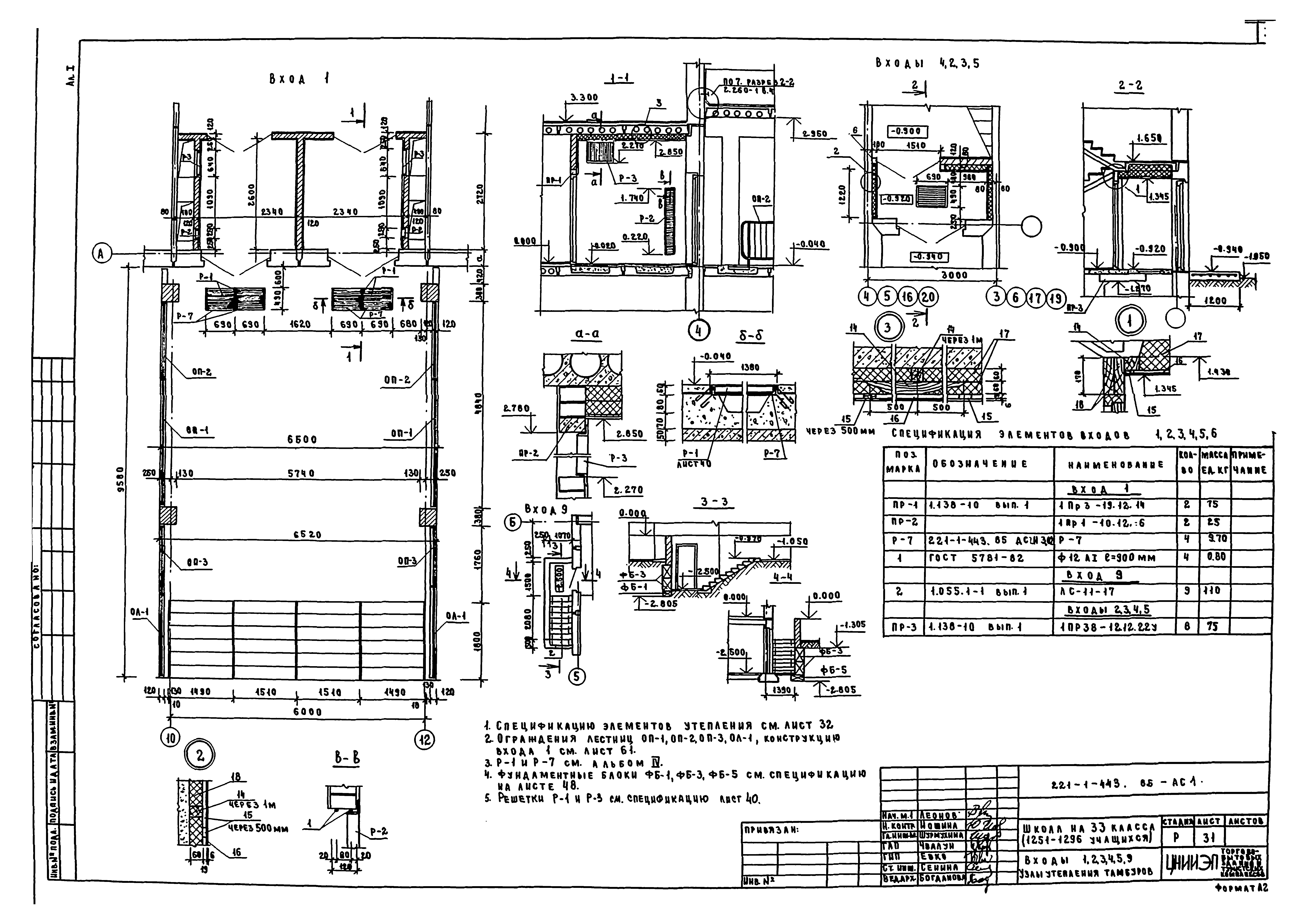
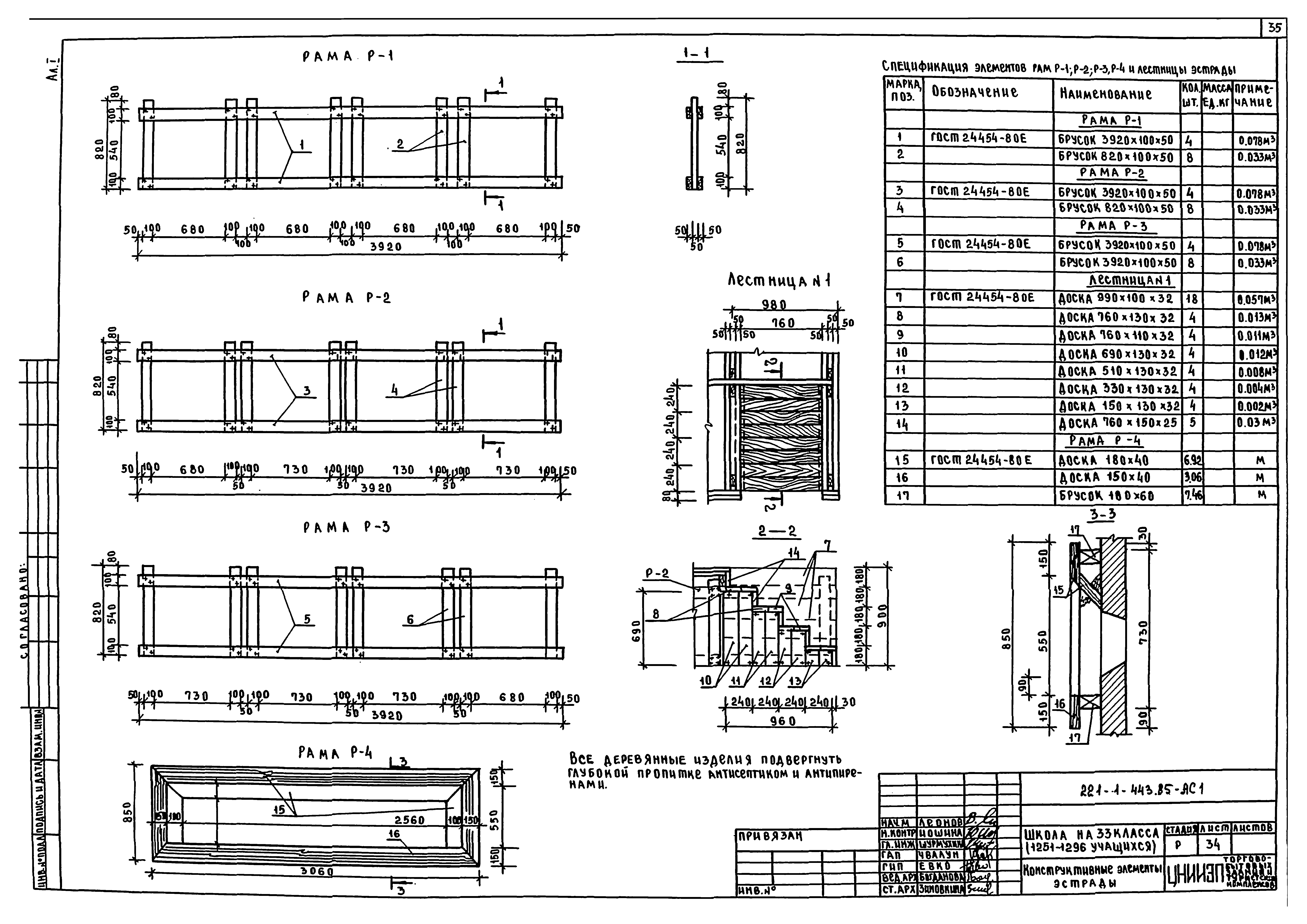
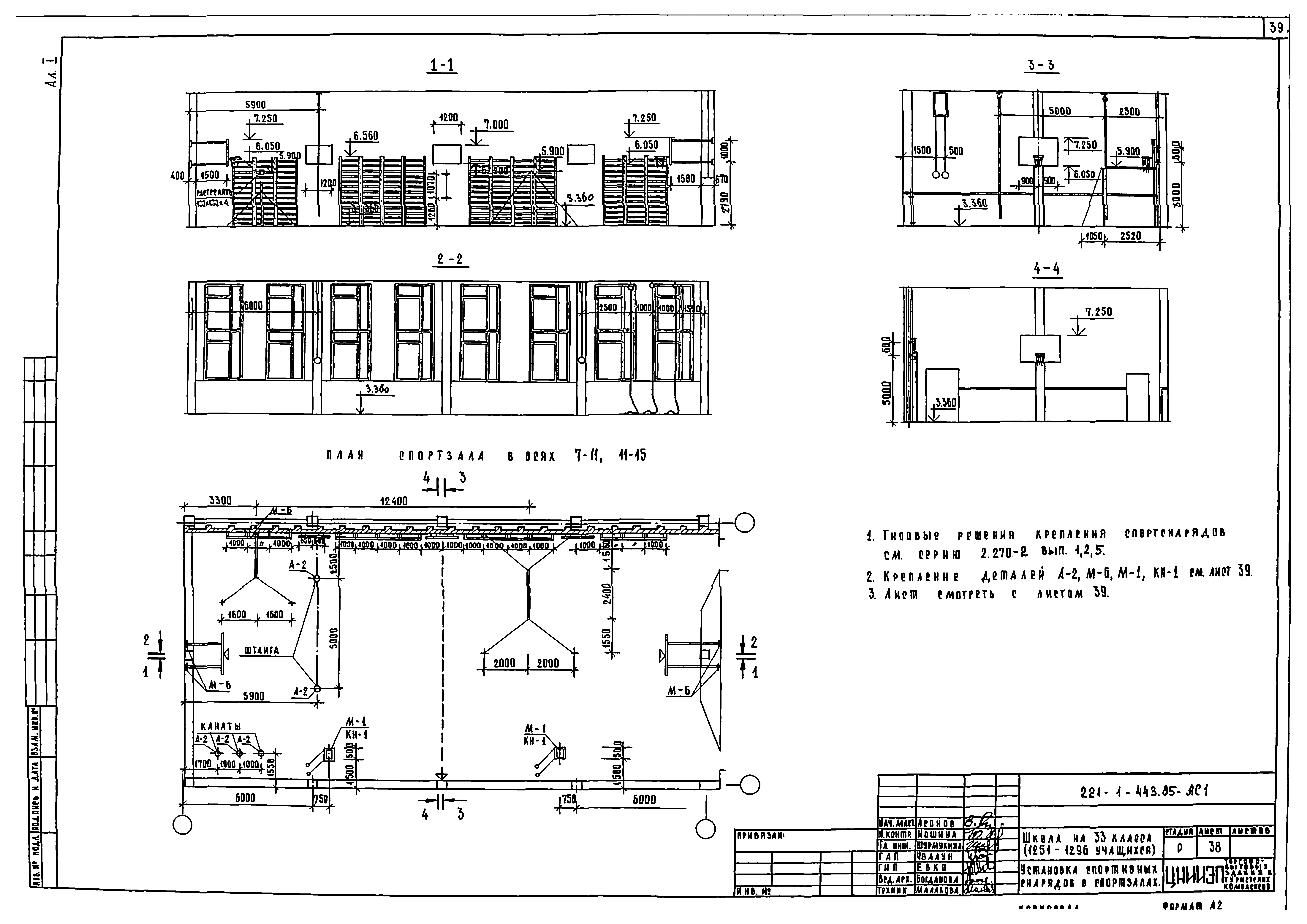
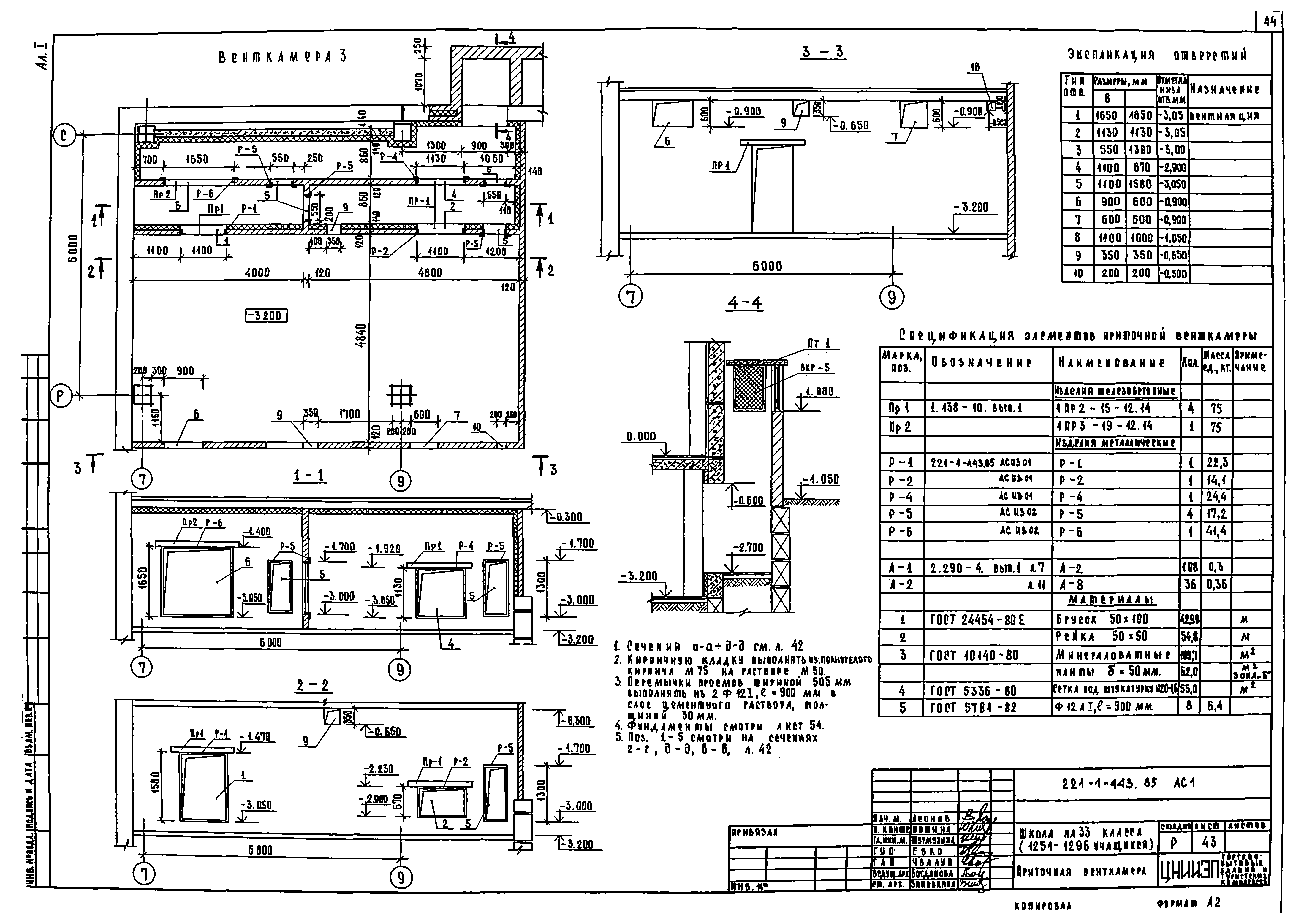
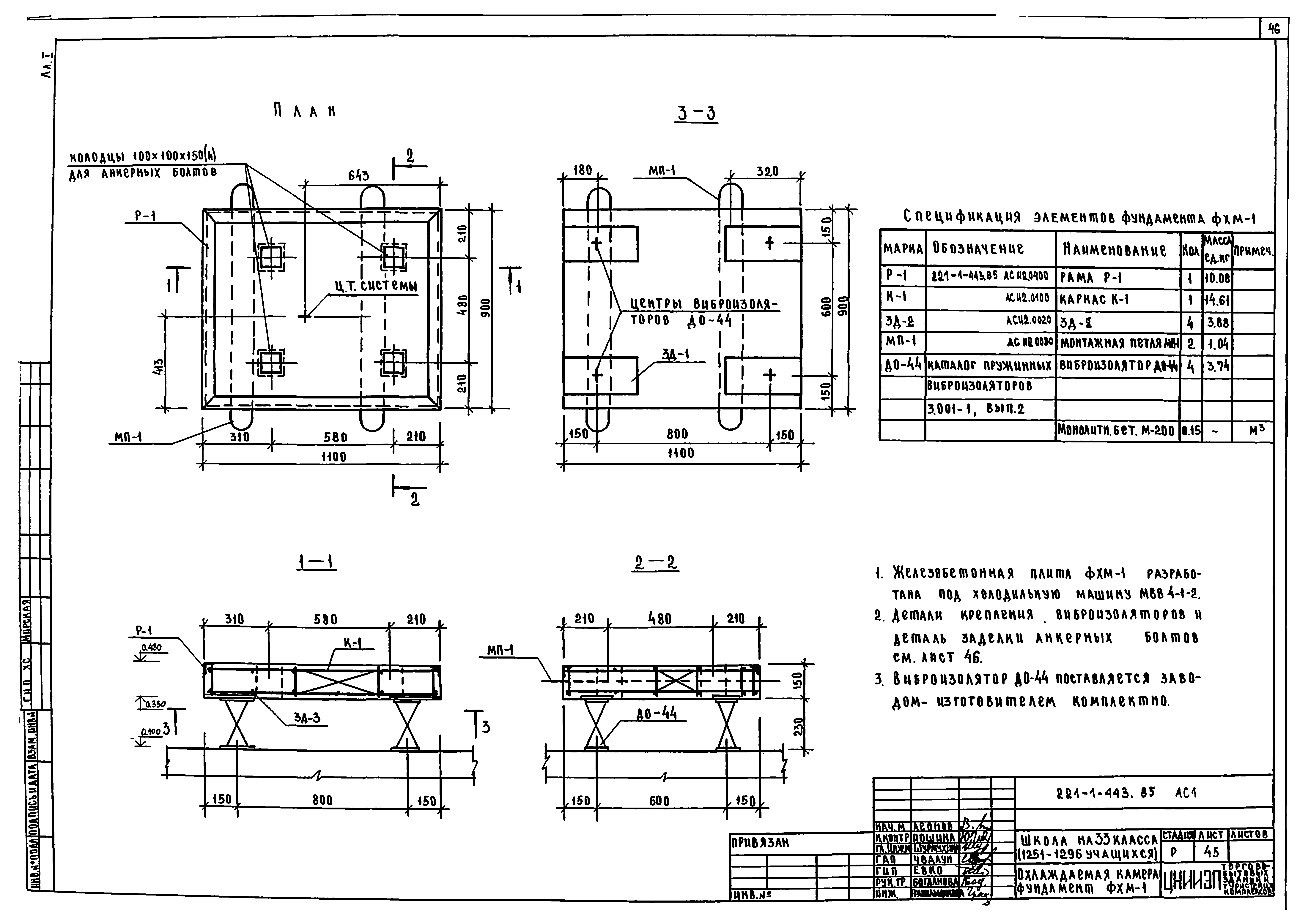
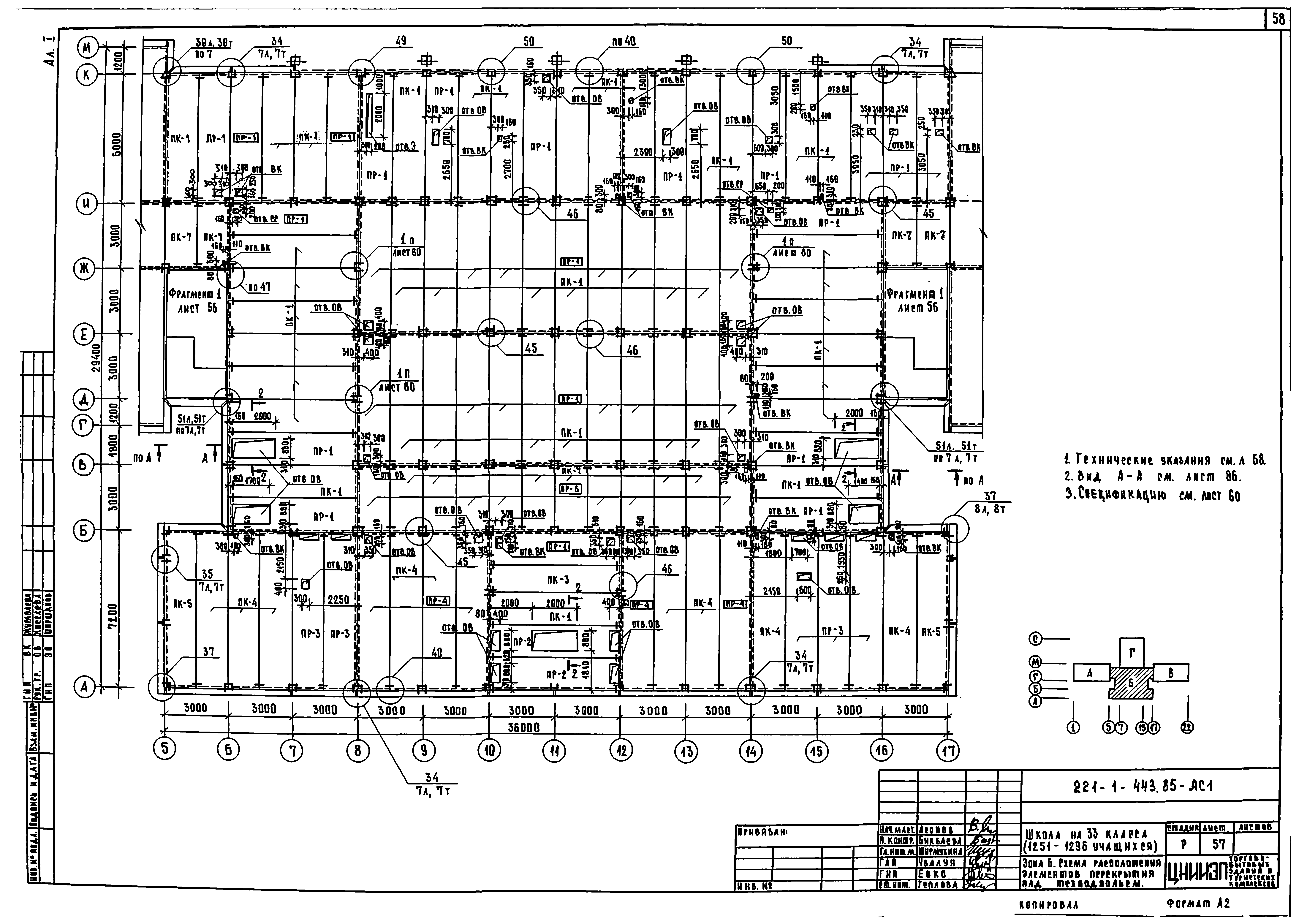
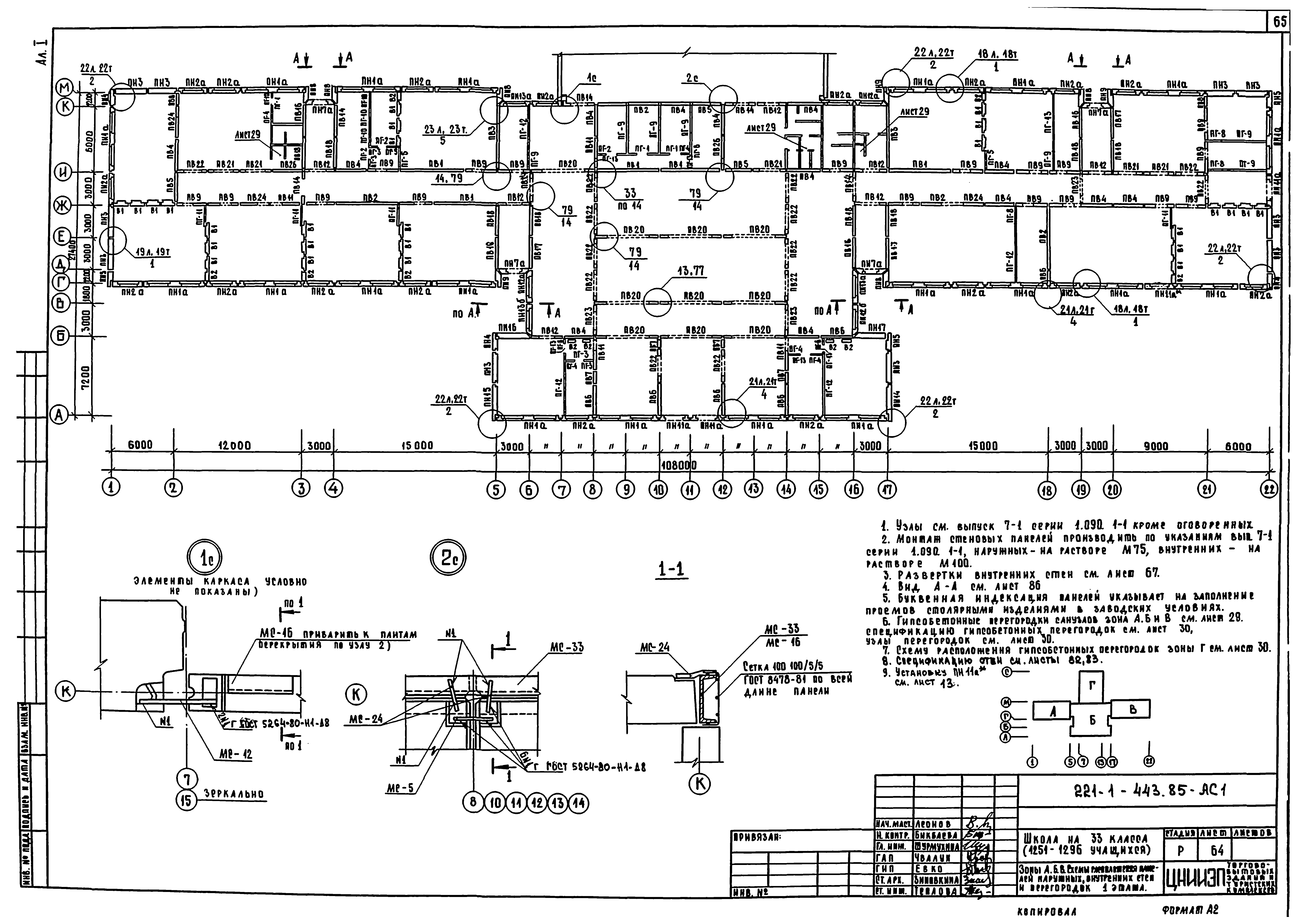
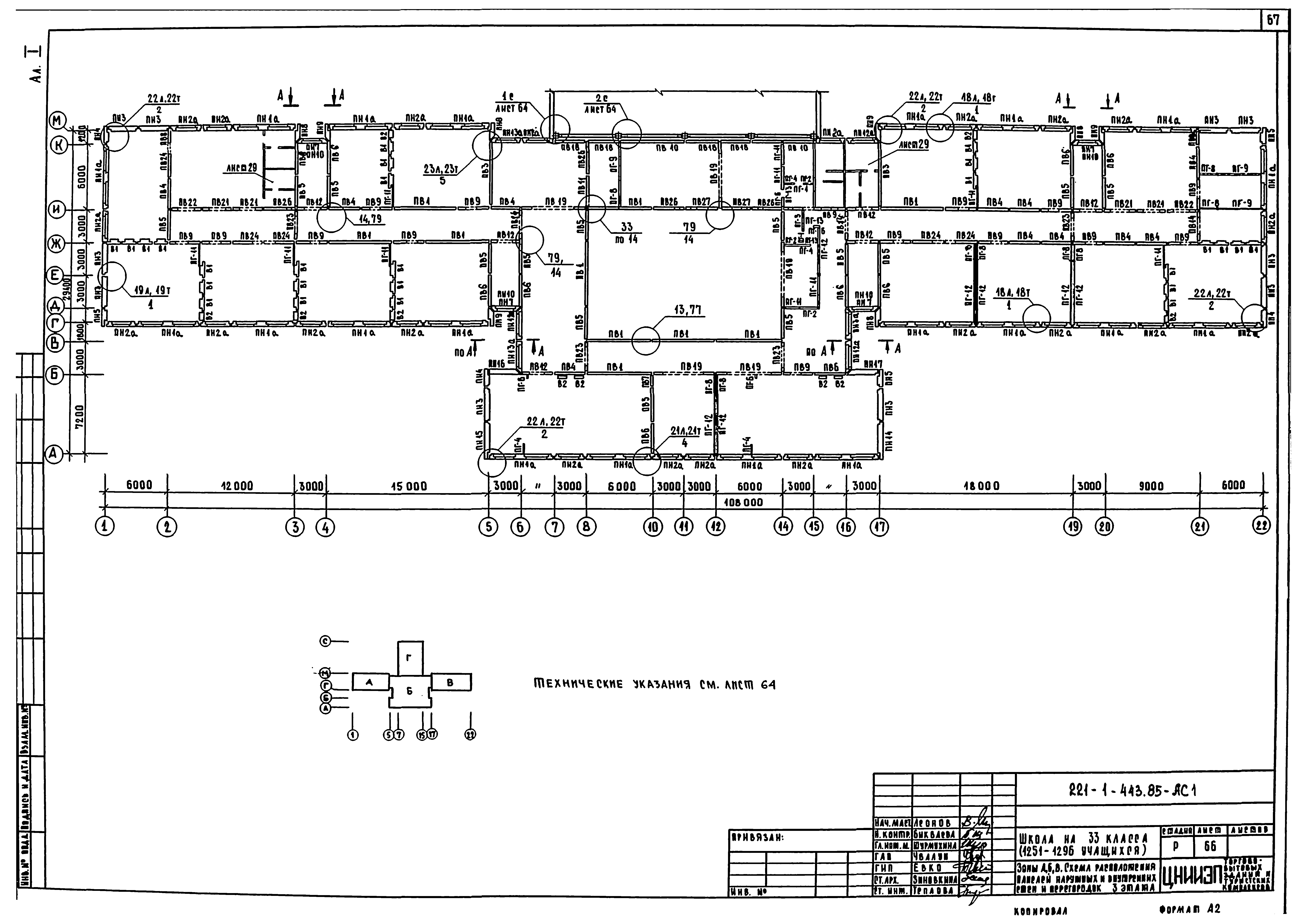
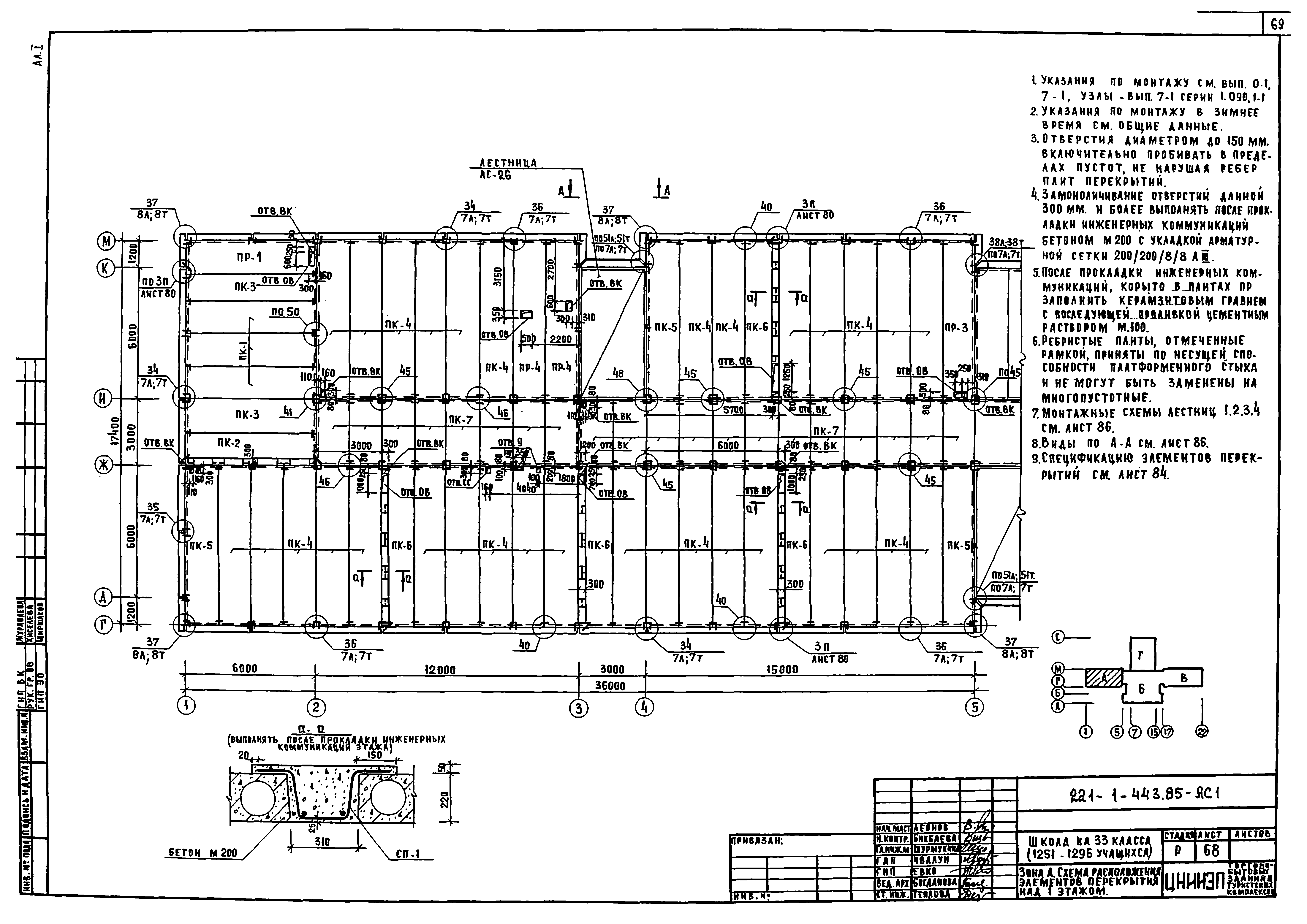
Скачать Типовой проект 221-1-443.85 Альбом I. Архитектурно-строительные решения технология и механизацияДата актуализации: 01.01.2021 Типовой проект 221-1-443.85
Альбом I. Архитектурно-строительные решения технология и механизация| Обозначение: | Типовой проект 221-1-443.85 | | Обозначение англ: | 221-1-443.85 | | Статус: | действует | | Название рус.: | Альбом I. Архитектурно-строительные решения технология и механизация | | Дата добавления в базу: | 21.05.2015 | | Дата актуализации: | 01.01.2021 | | Дата введения: | 10.09.1985 | | Разработан: | ЦНИИЭП торгово-бытовых зданий и торговых комплексов
| | Утверждён: | 24.08.1984 Госгражданстрой (Gosgrazhdanstroy 239)
|
                                                                                                          
|