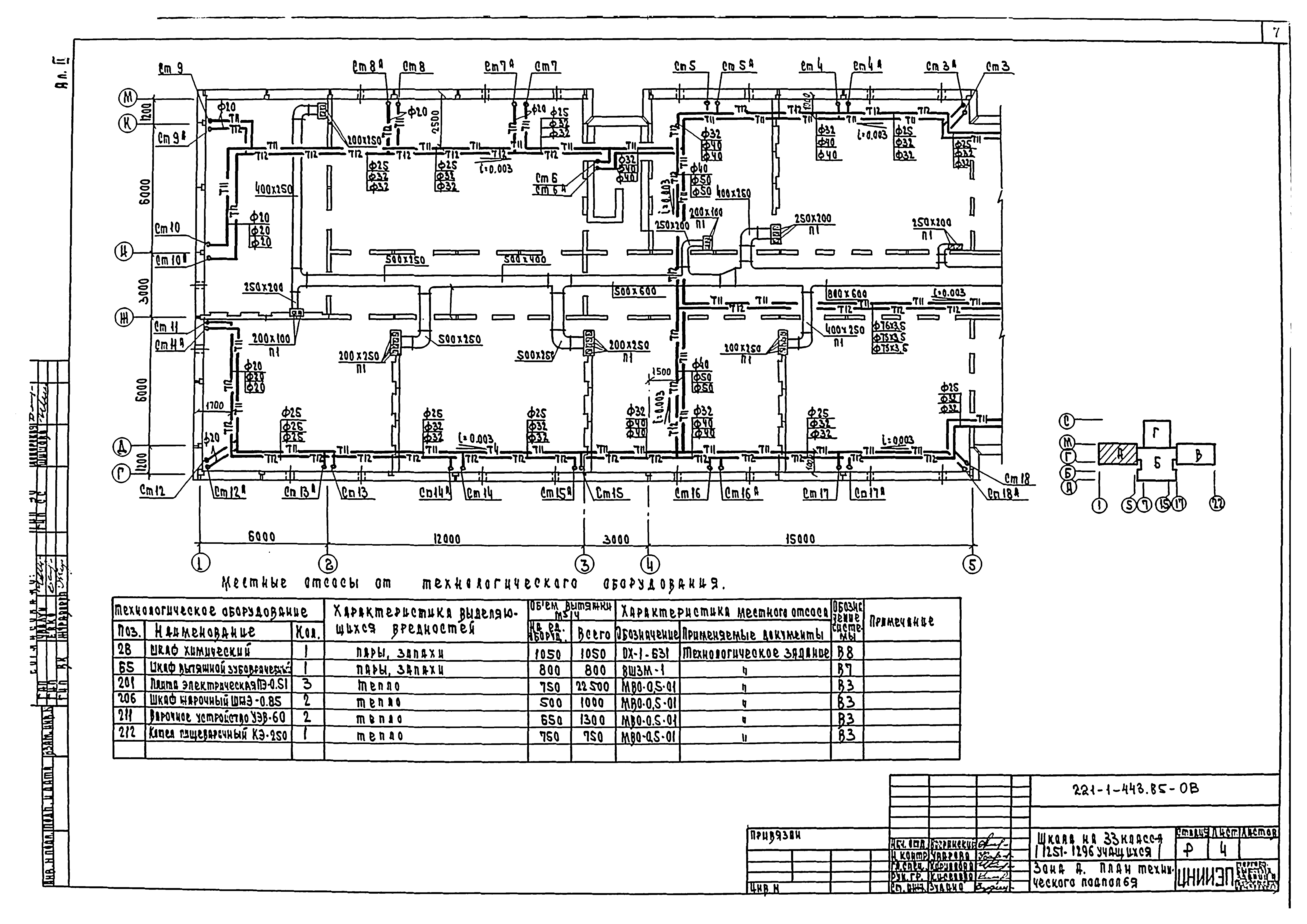
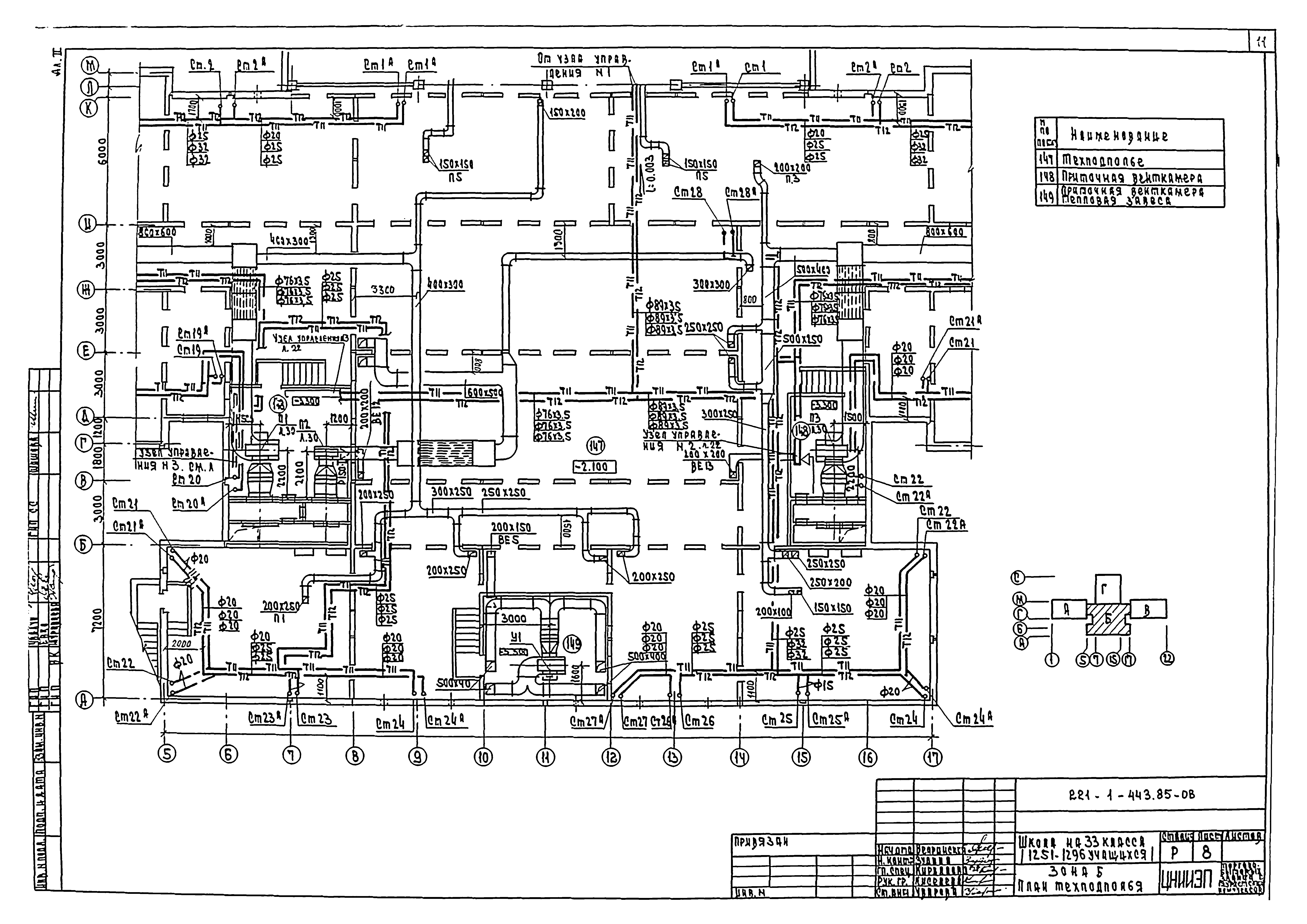
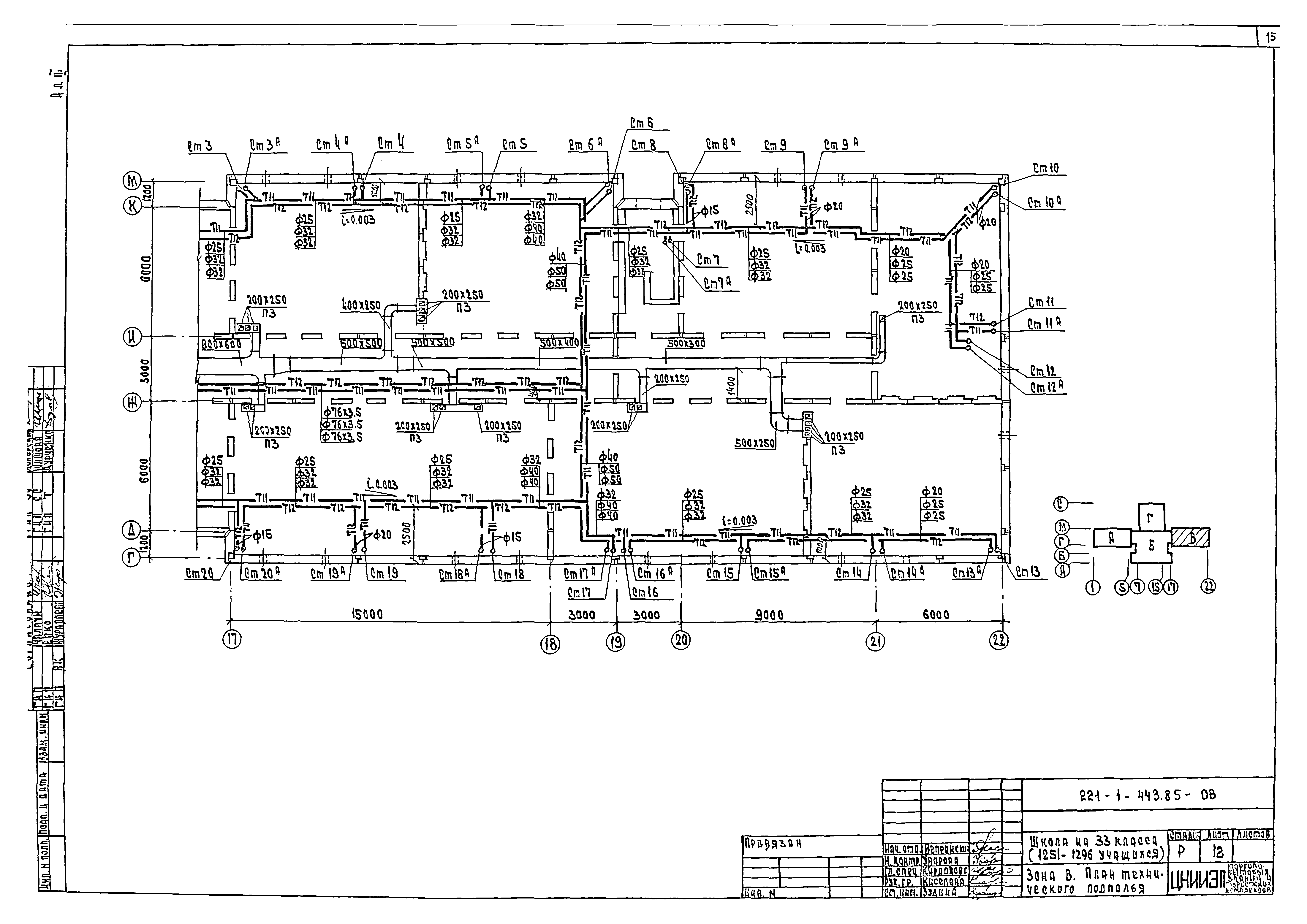
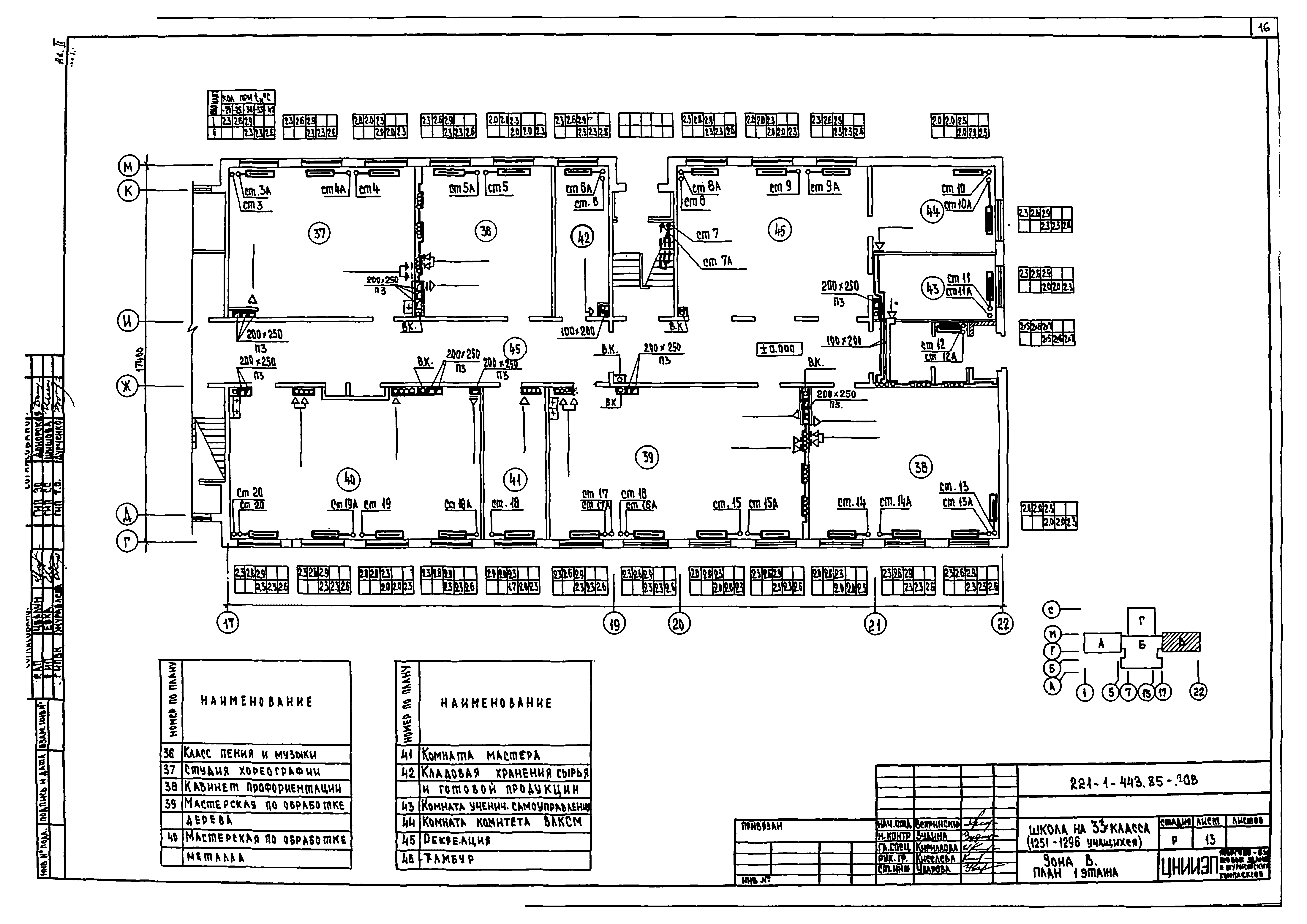
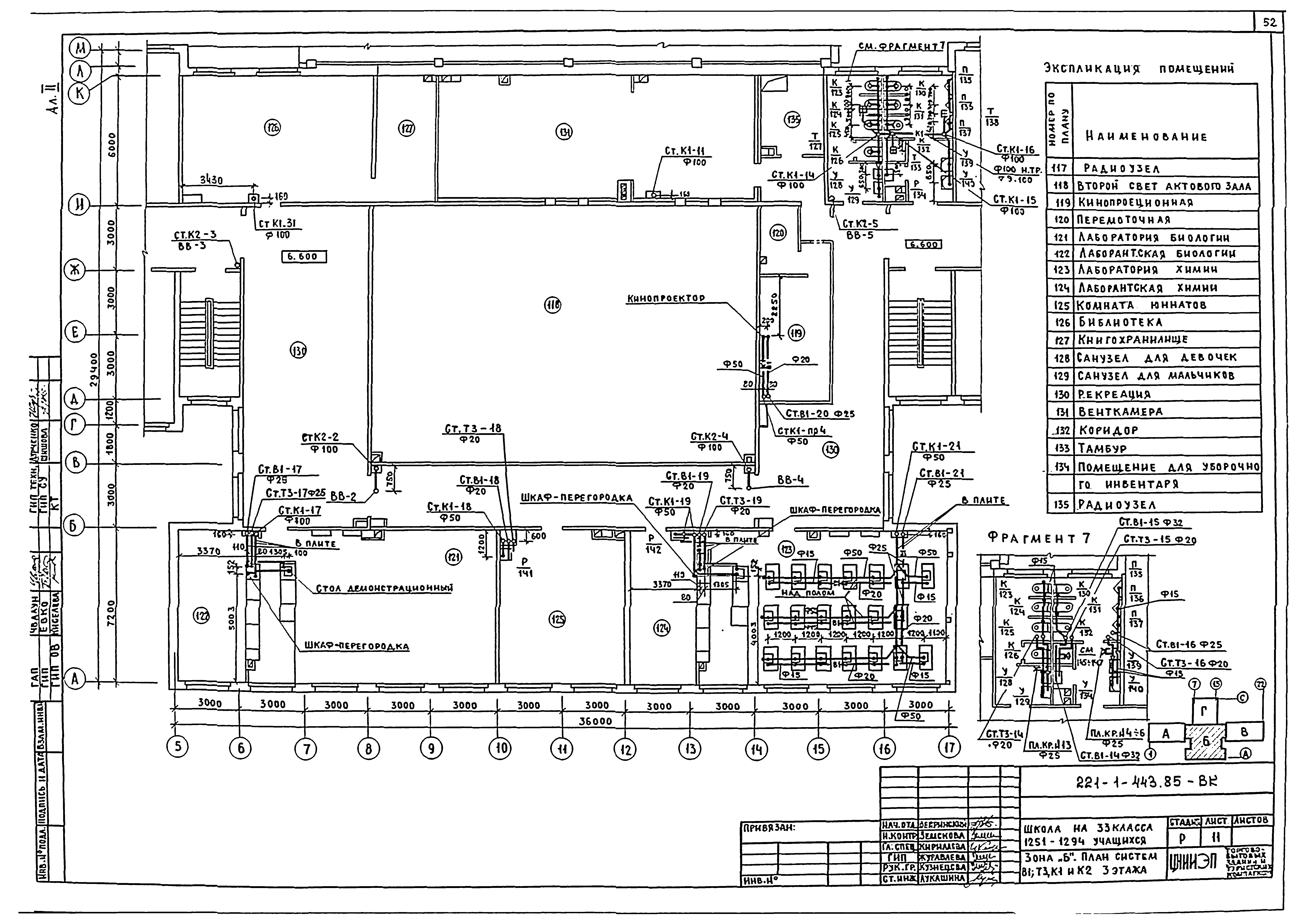
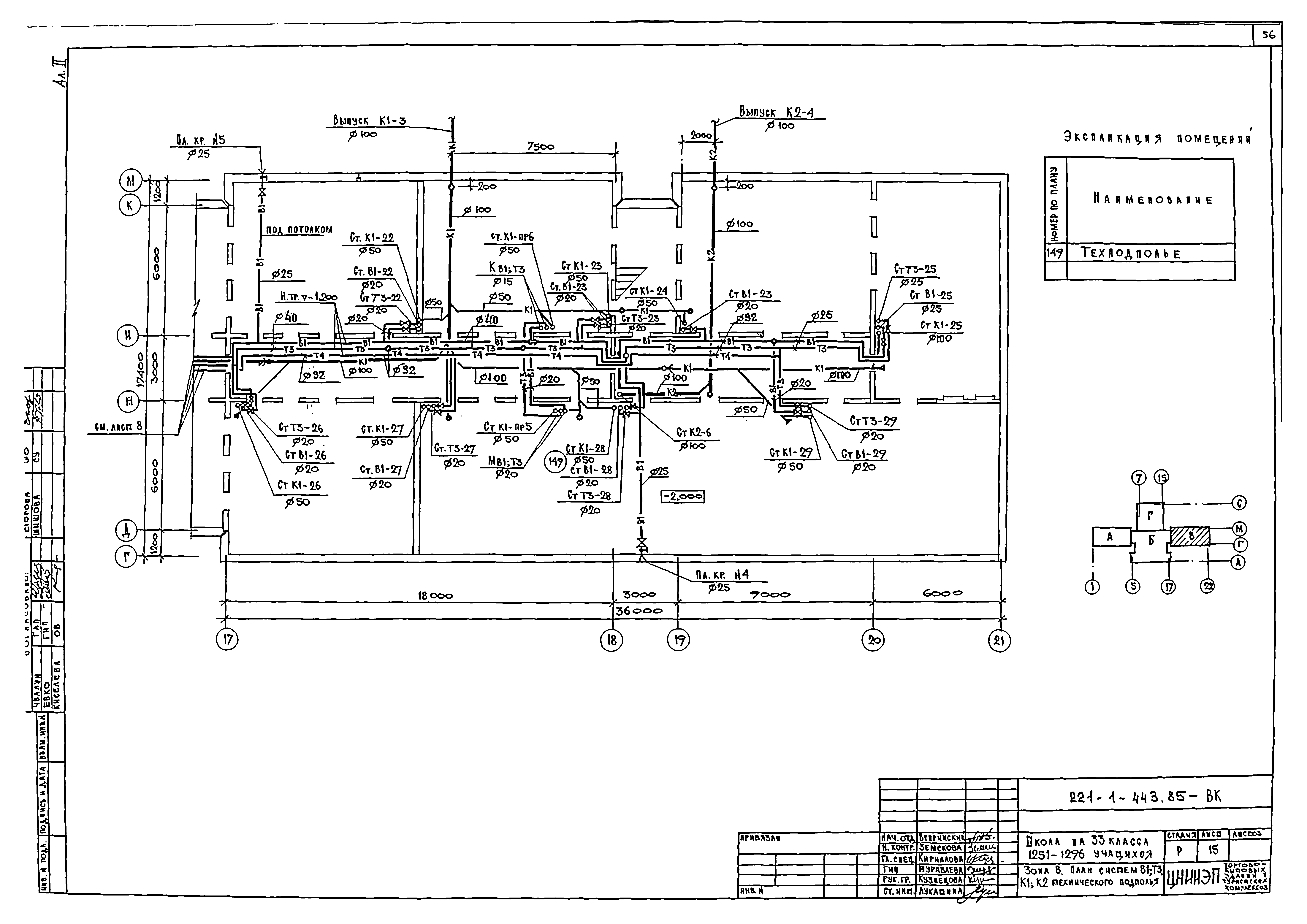
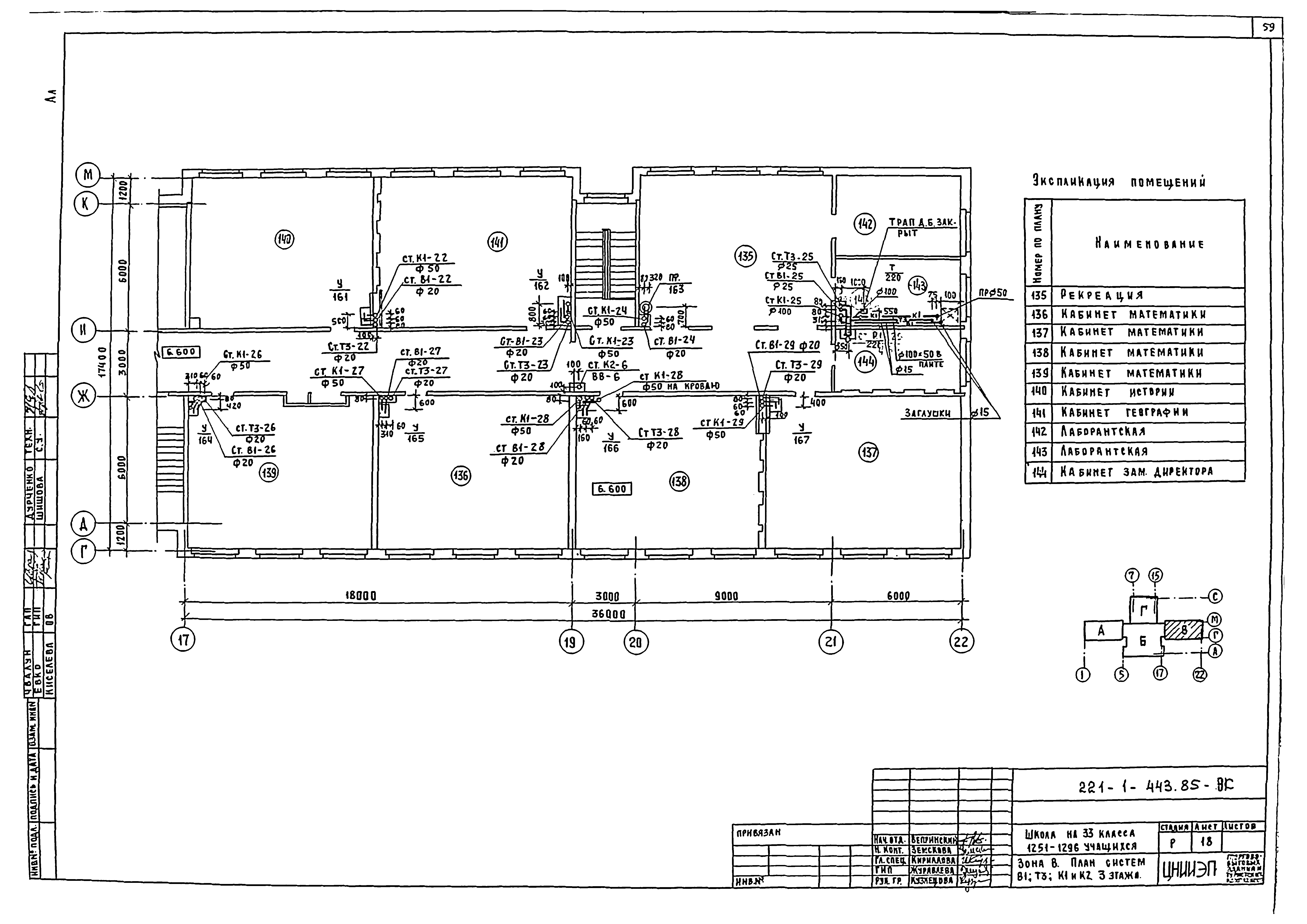
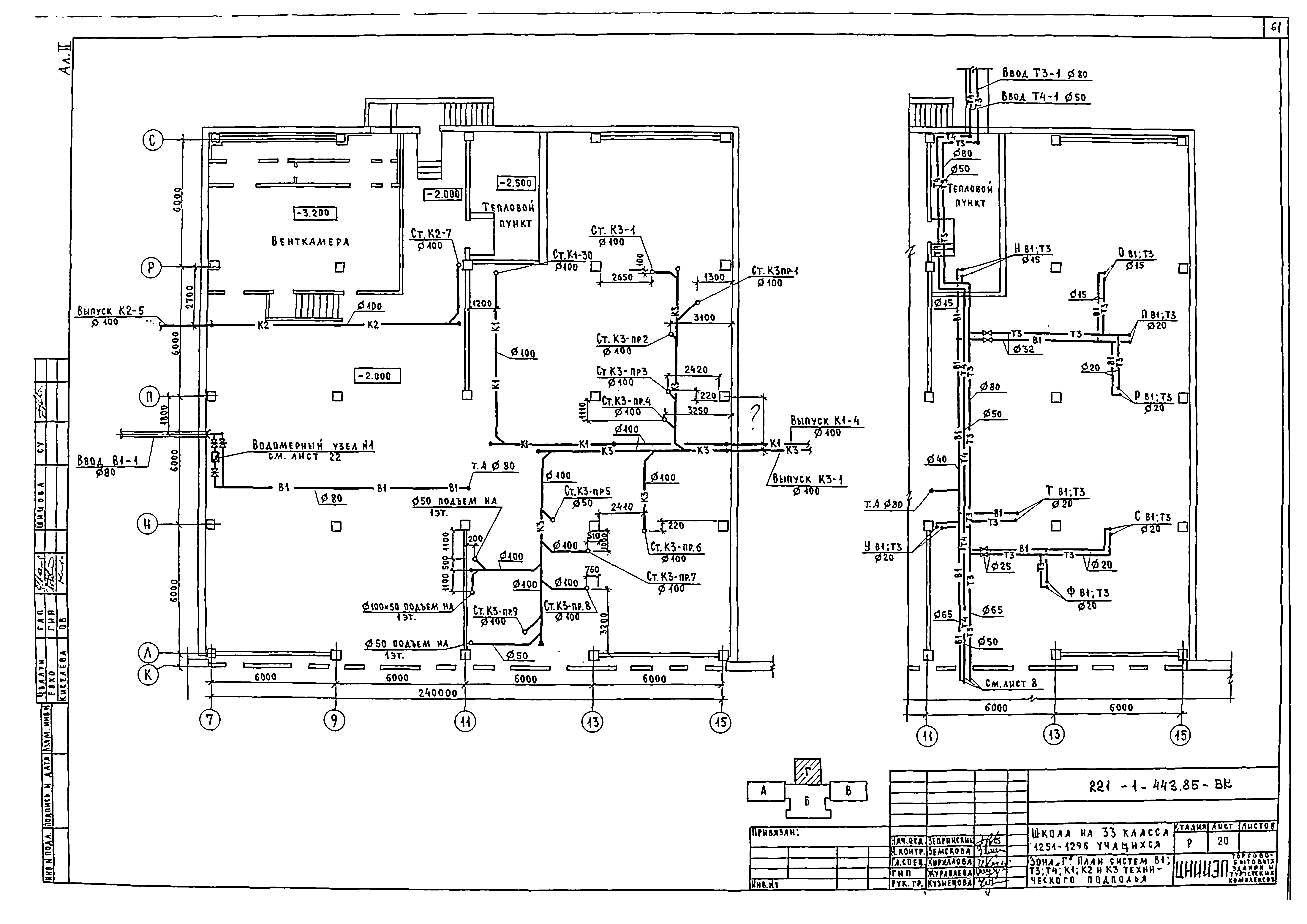
Скачать Типовой проект 221-1-443.85 Альбом II. Холодоснабжение. Отопление и вентиляция. Водопровод и канализацияДата актуализации: 01.01.2021 Типовой проект 221-1-443.85
Альбом II. Холодоснабжение. Отопление и вентиляция. Водопровод и канализация| Обозначение: | Типовой проект 221-1-443.85 | | Обозначение англ: | 221-1-443.85 | | Статус: | действует | | Название рус.: | Альбом II. Холодоснабжение. Отопление и вентиляция. Водопровод и канализация | | Дата добавления в базу: | 21.05.2015 | | Дата актуализации: | 01.01.2021 | | Дата введения: | 10.09.1985 | | Разработан: | ЦНИИЭП торгово-бытовых зданий и торговых комплексов
| | Утверждён: | 24.08.1984 Госгражданстрой (Gosgrazhdanstroy 239)
|
                                                                    
|