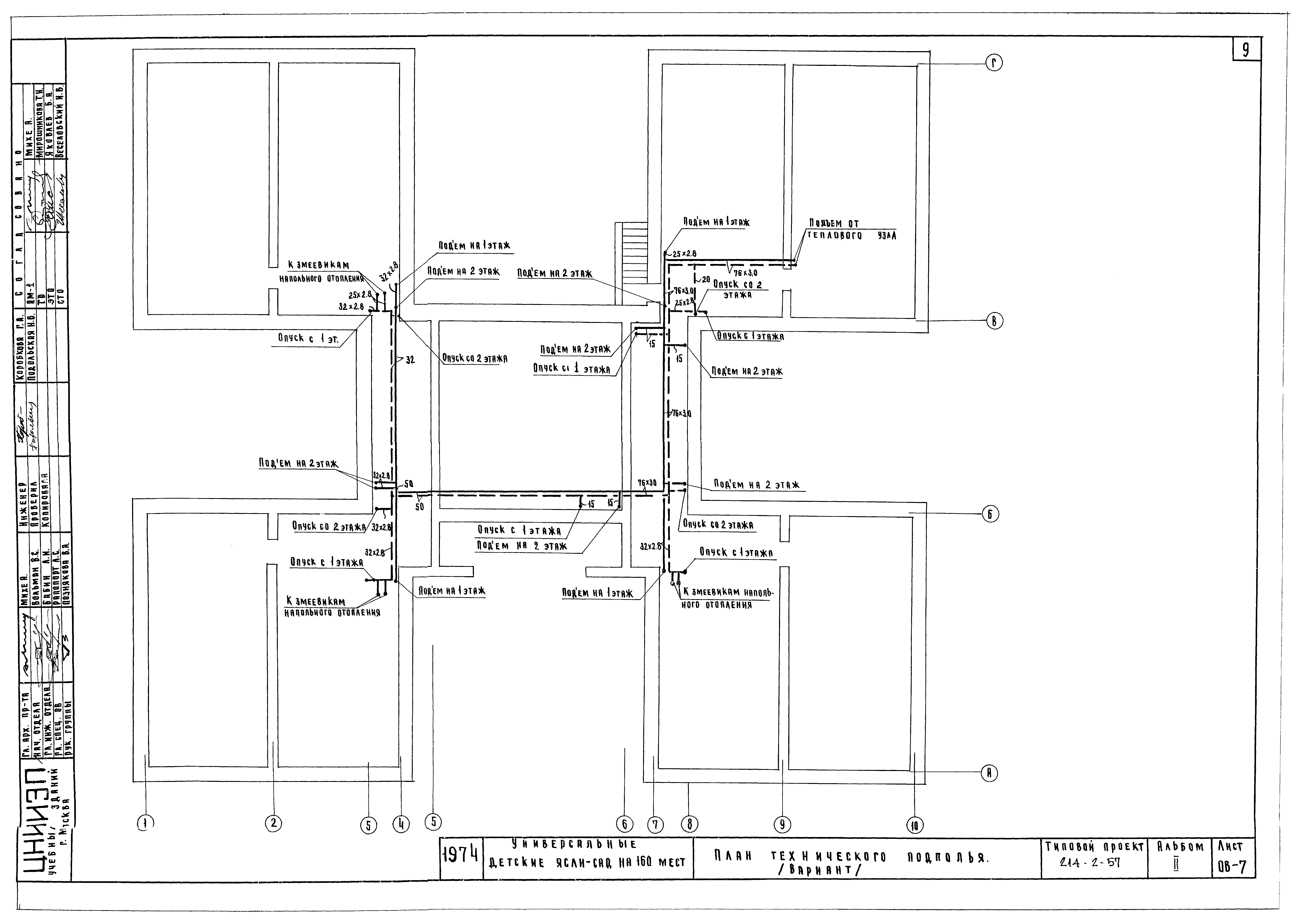
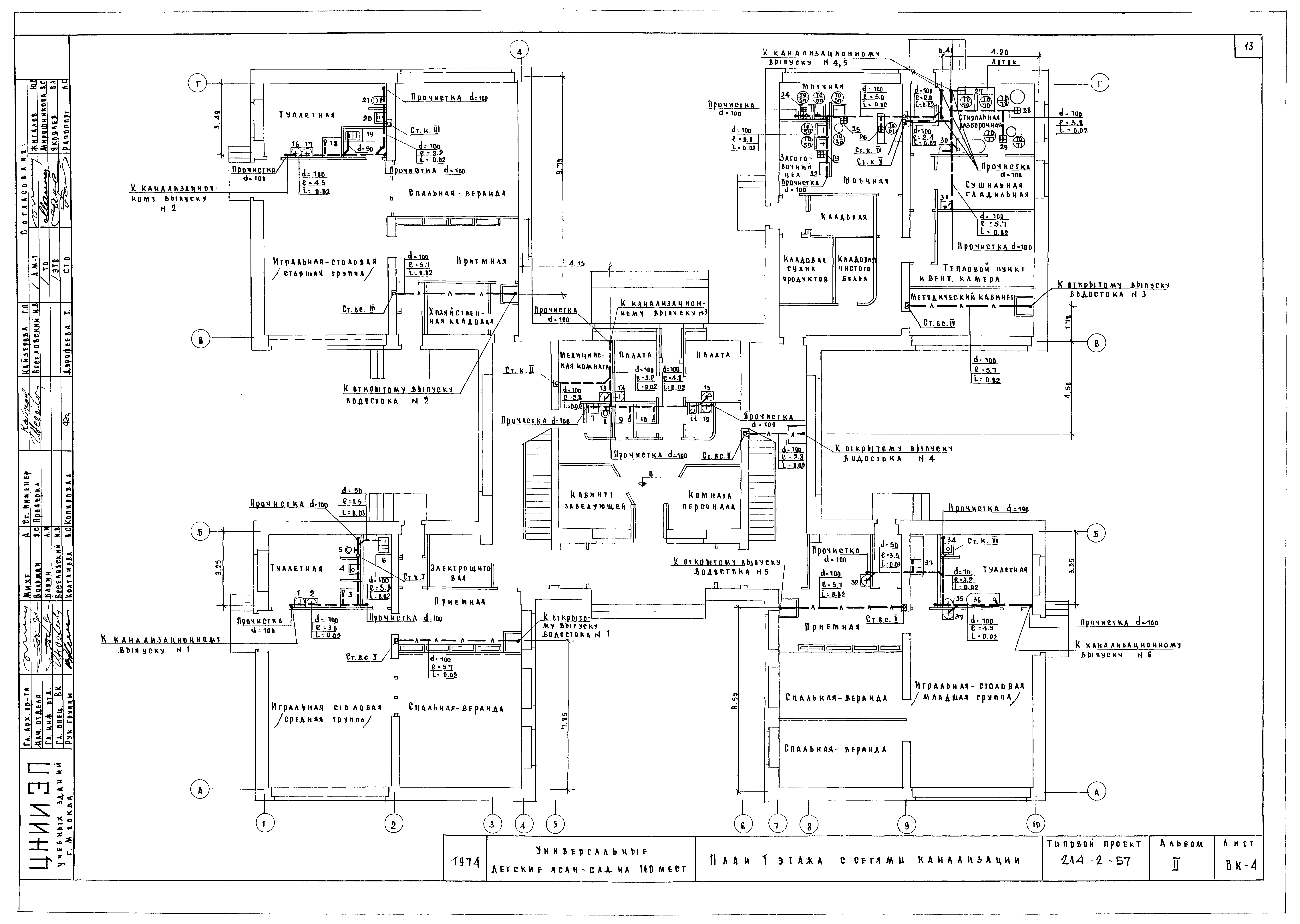
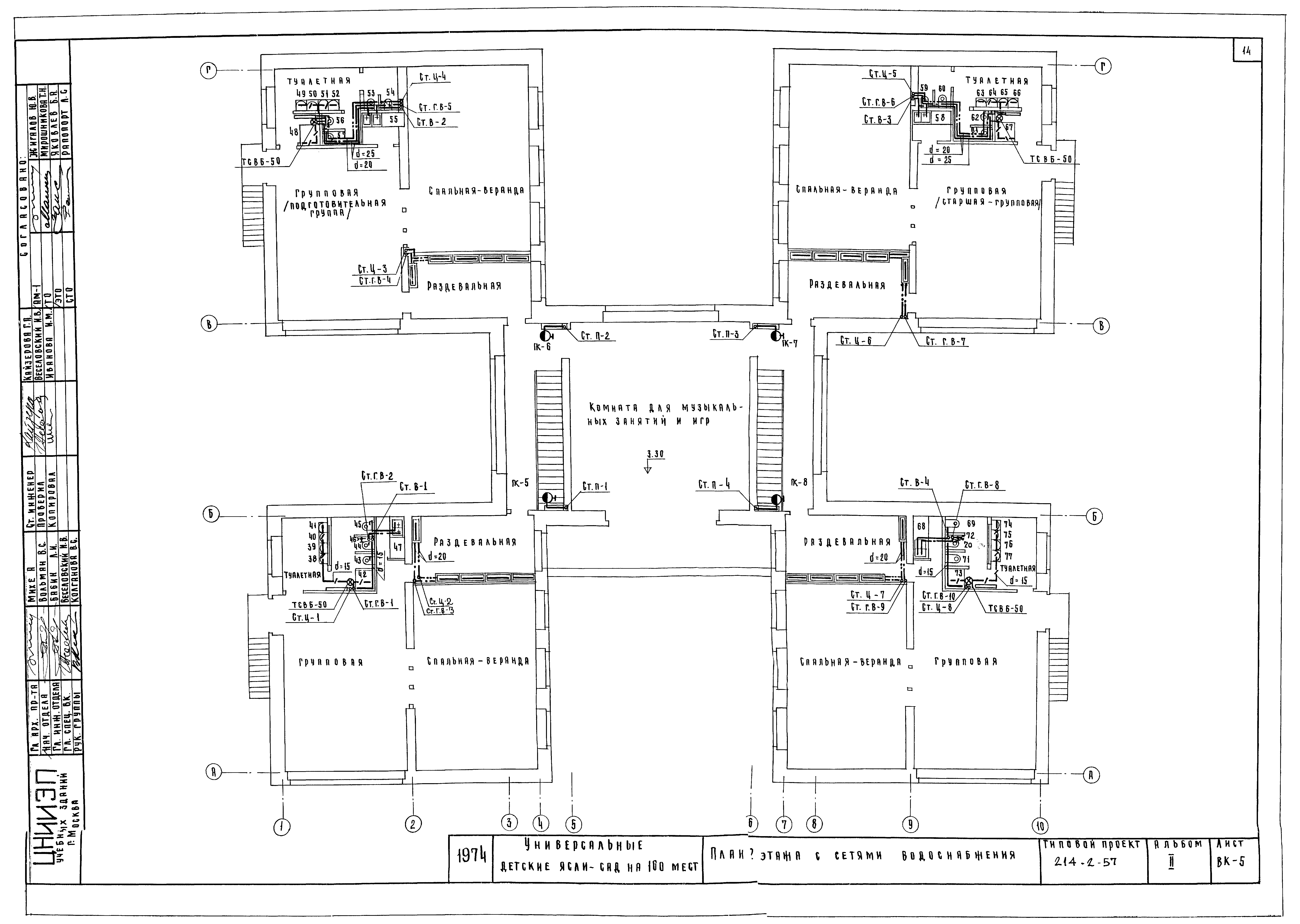
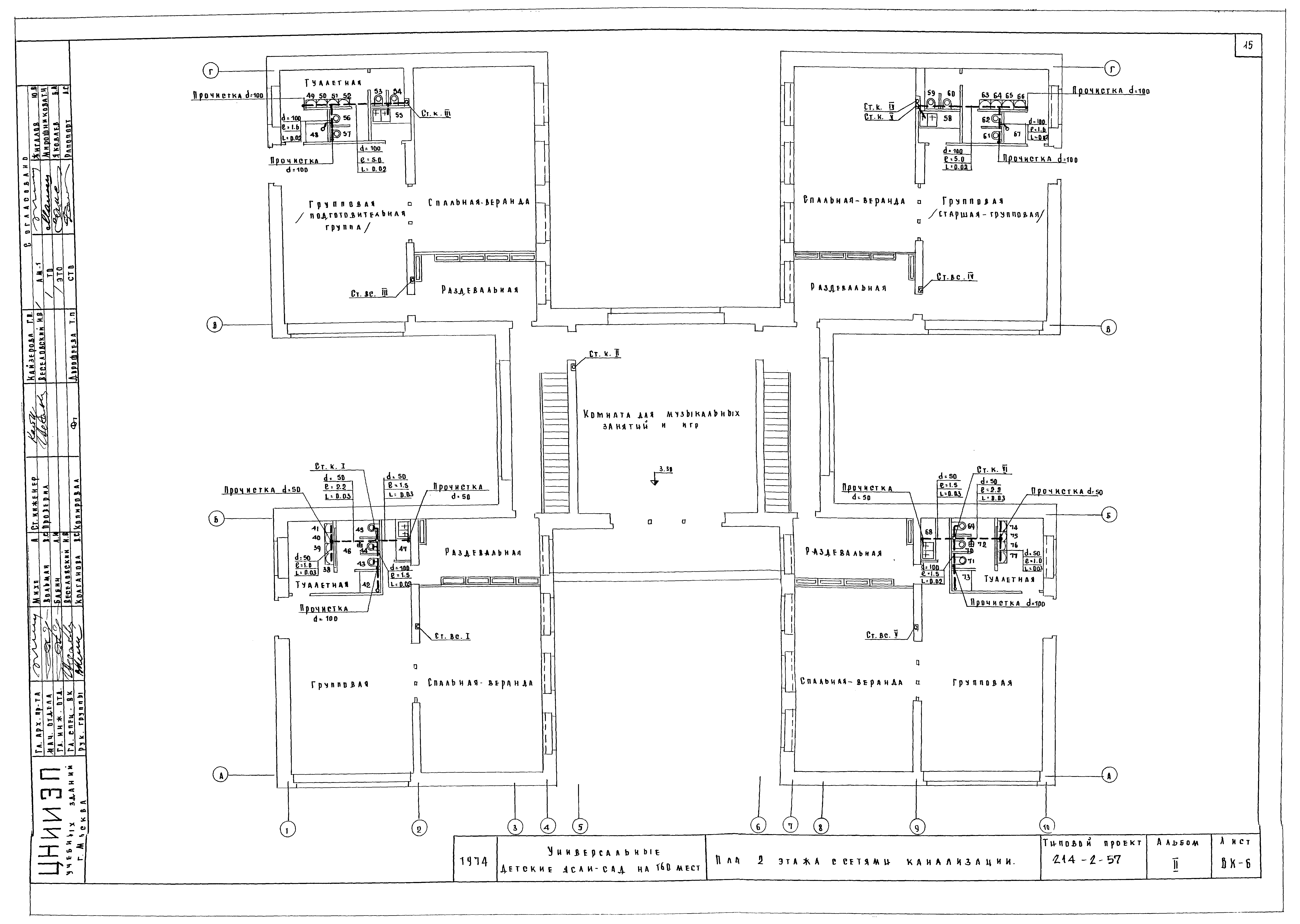
Скачать Типовой проект 214-2-57 Альбом II. Санитарно-технические чертежиДата актуализации: 01.01.2021
|
| Обозначение: | Типовой проект 214-2-57 |
| Обозначение англ: | 214-2-57 |
| Статус: | действует |
| Название рус.: | Альбом II. Санитарно-технические чертежи |
| Дата добавления в базу: | 01.02.2020 |
| Дата актуализации: | 01.01.2021 |
| Дата введения: | 13.06.1974 |
| Разработан: | ЦНИИЭП учебных зданий |
| Утверждён: | 31.08.1973 Госгражданстрой (Gosgrazhdanstroy 189) |






















