Скачать Типовой проект 901-3-235.87 Альбом II. Микрофильтры. Архитектурные решения. Конструкции железобетонные и металлические. Технологические, санитарно-техническая, электротехническая части и автоматизацияДата актуализации: 01.01.2021 Типовой проект 901-3-235.87
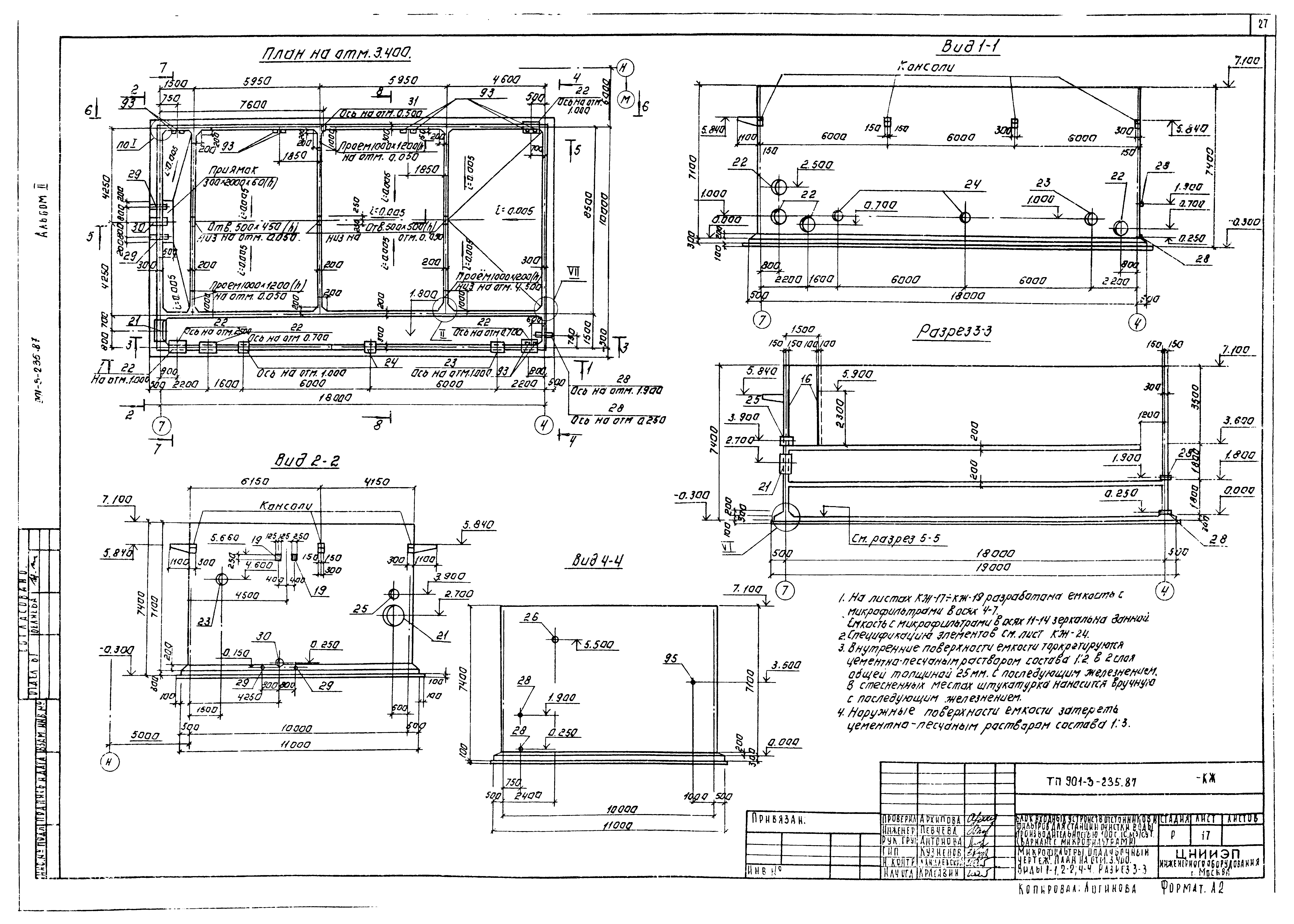
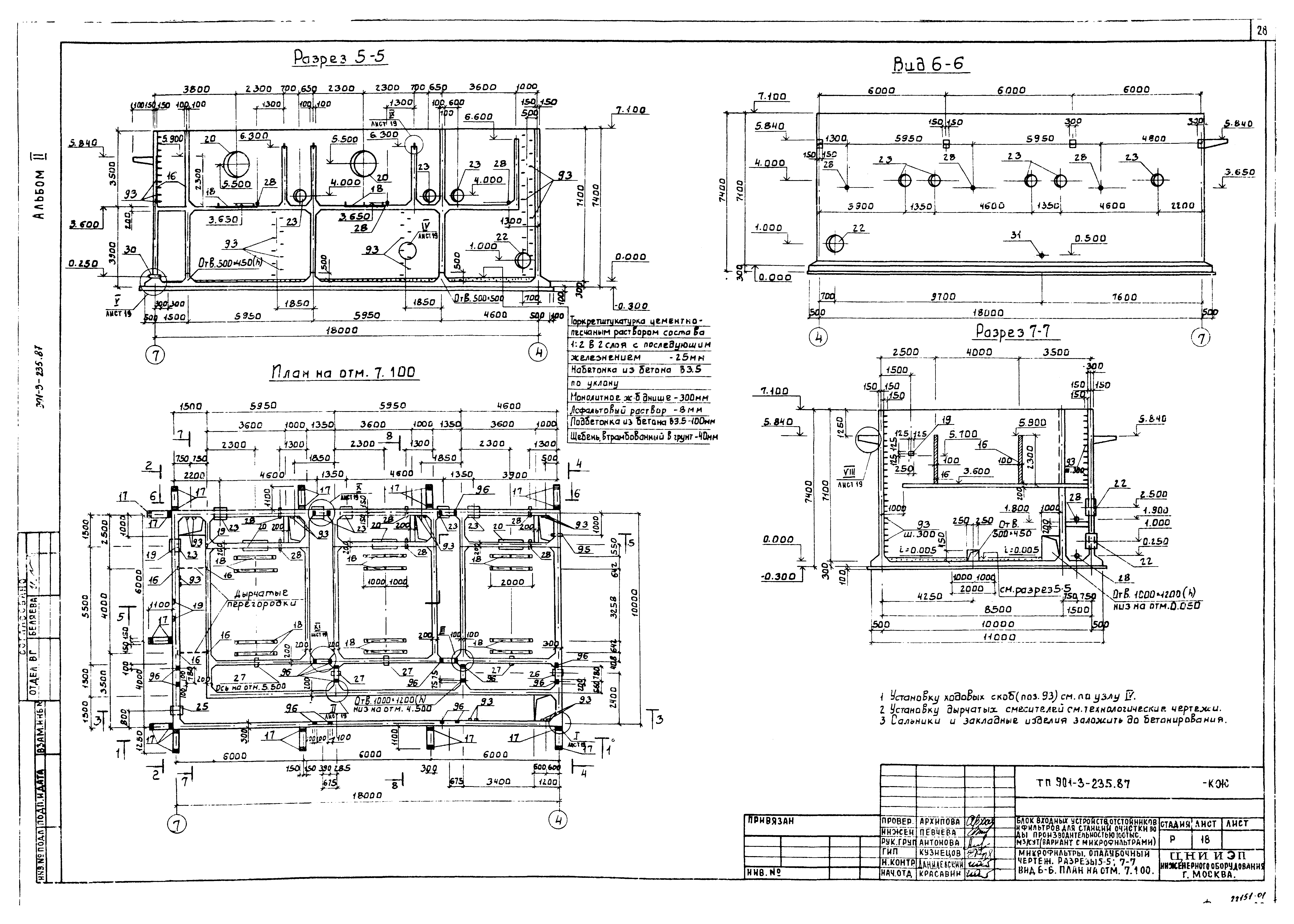
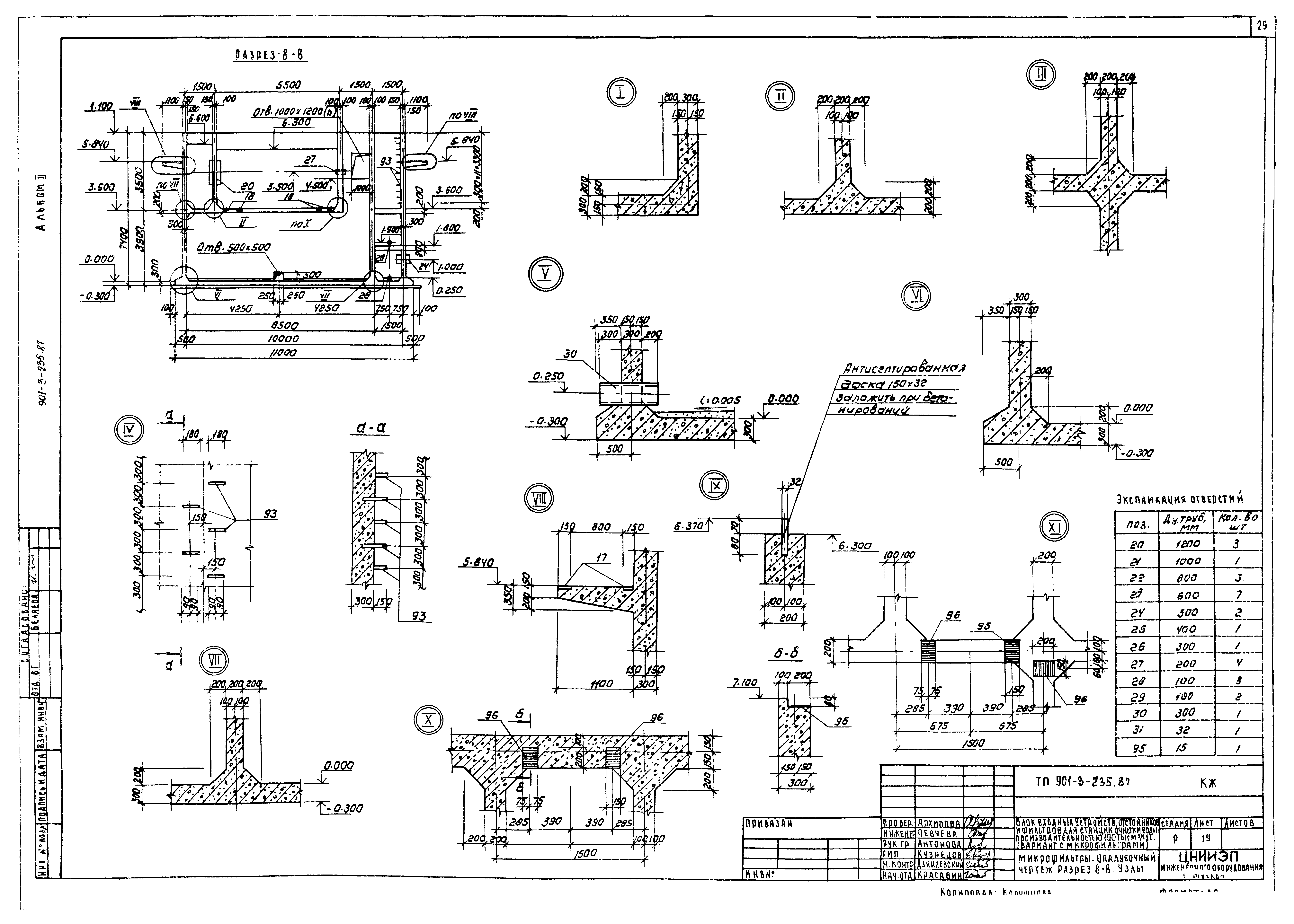
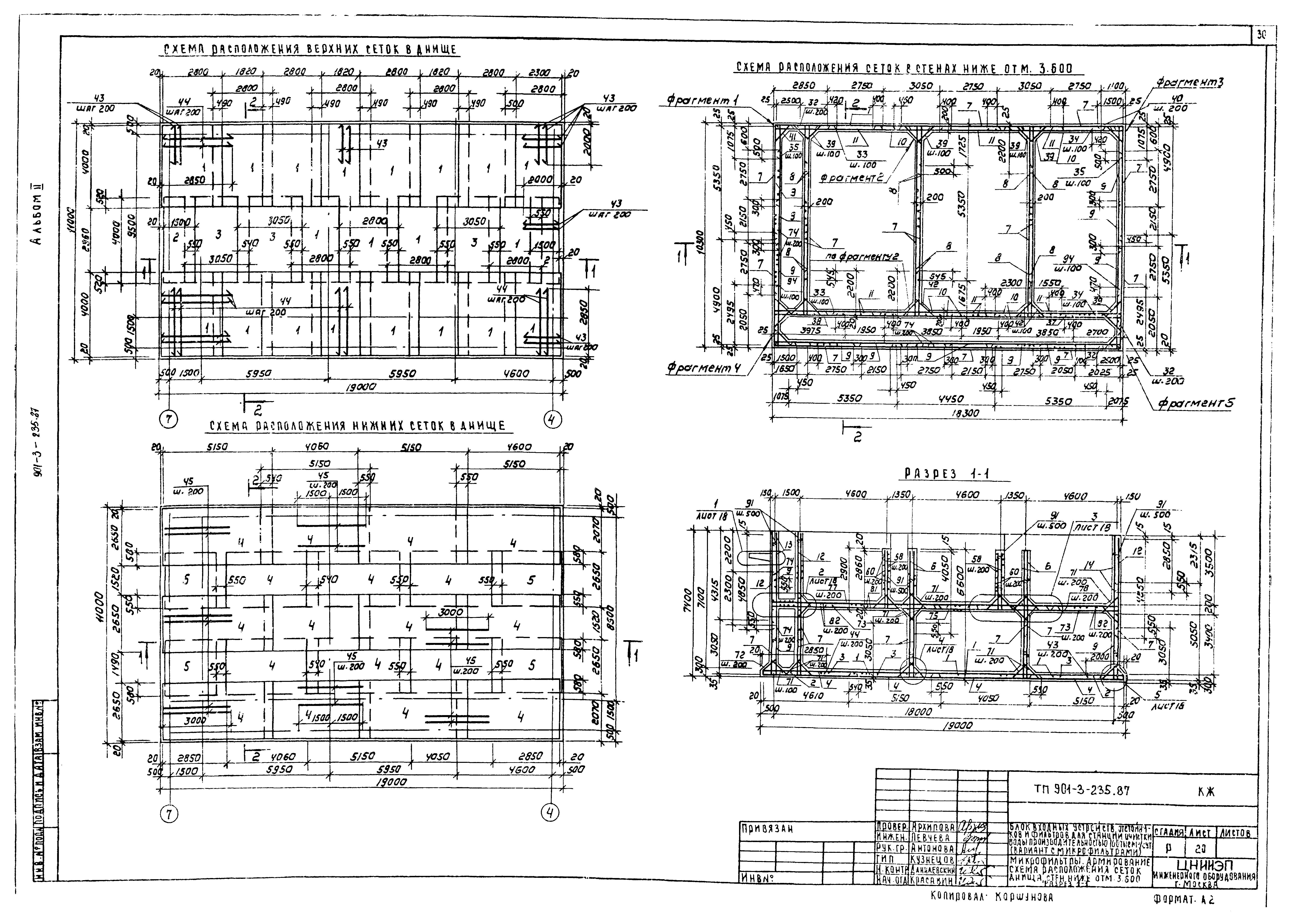
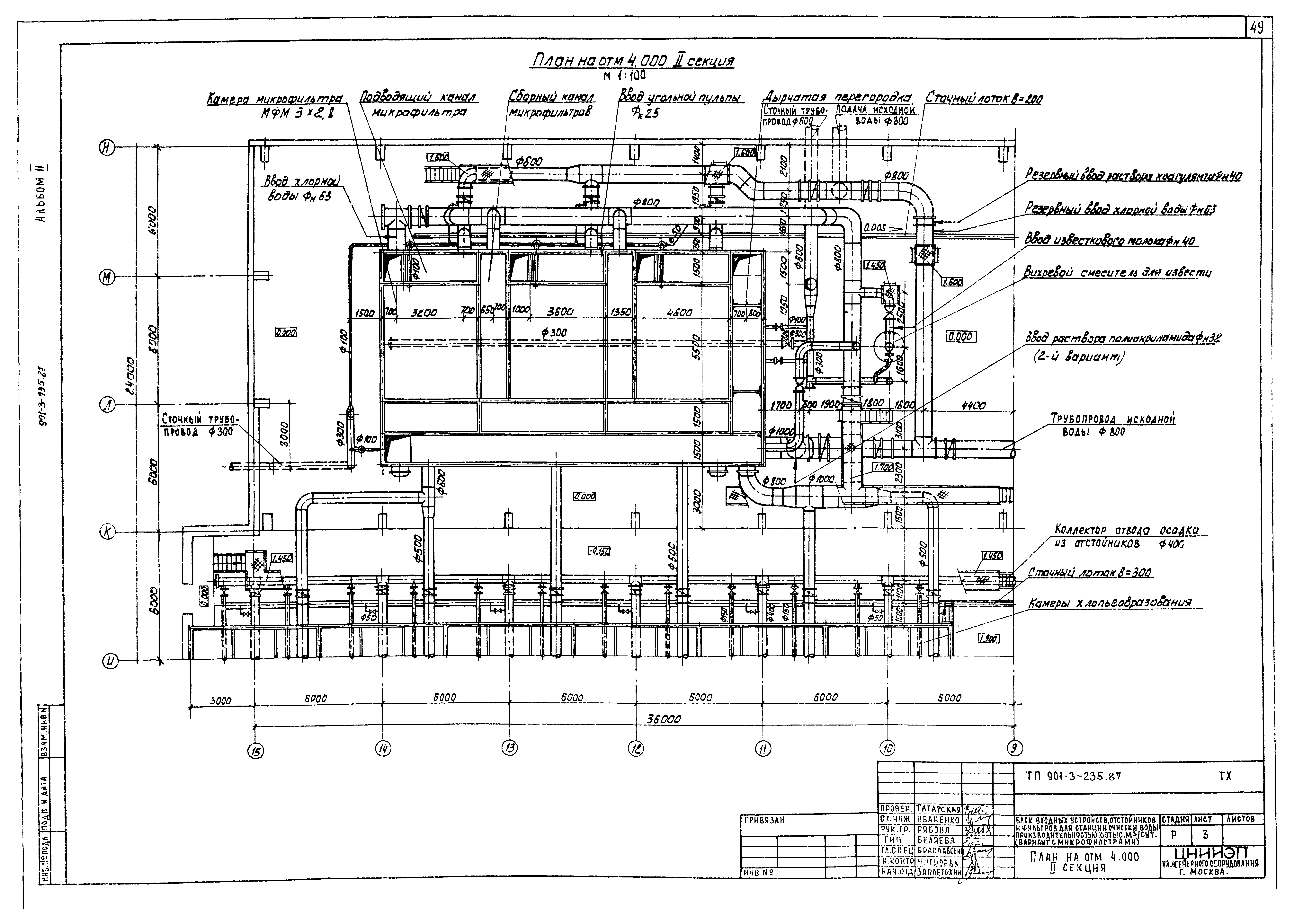
Альбом II. Микрофильтры. Архитектурные решения. Конструкции железобетонные и металлические. Технологические, санитарно-техническая, электротехническая части и автоматизация| Обозначение: | Типовой проект 901-3-235.87 | | Обозначение англ: | 901-3-235.87 | | Статус: | не определен законодательством | | Название рус.: | Альбом II. Микрофильтры. Архитектурные решения. Конструкции железобетонные и металлические. Технологические, санитарно-техническая, электротехническая части и автоматизация | | Дата добавления в базу: | 21.05.2015 | | Дата актуализации: | 01.01.2021 | | Дата введения: | 13.02.1985 | | Дата окончания срока действия: | 30.06.2003 | | Разработан: | ЦНИИЭП инженерного оборудования
| | Утверждён: | 13.02.1985 Госгражданстрой (Gosgrazhdanstroy 43)
| | Заменяет собой: | |
                                                                             
|