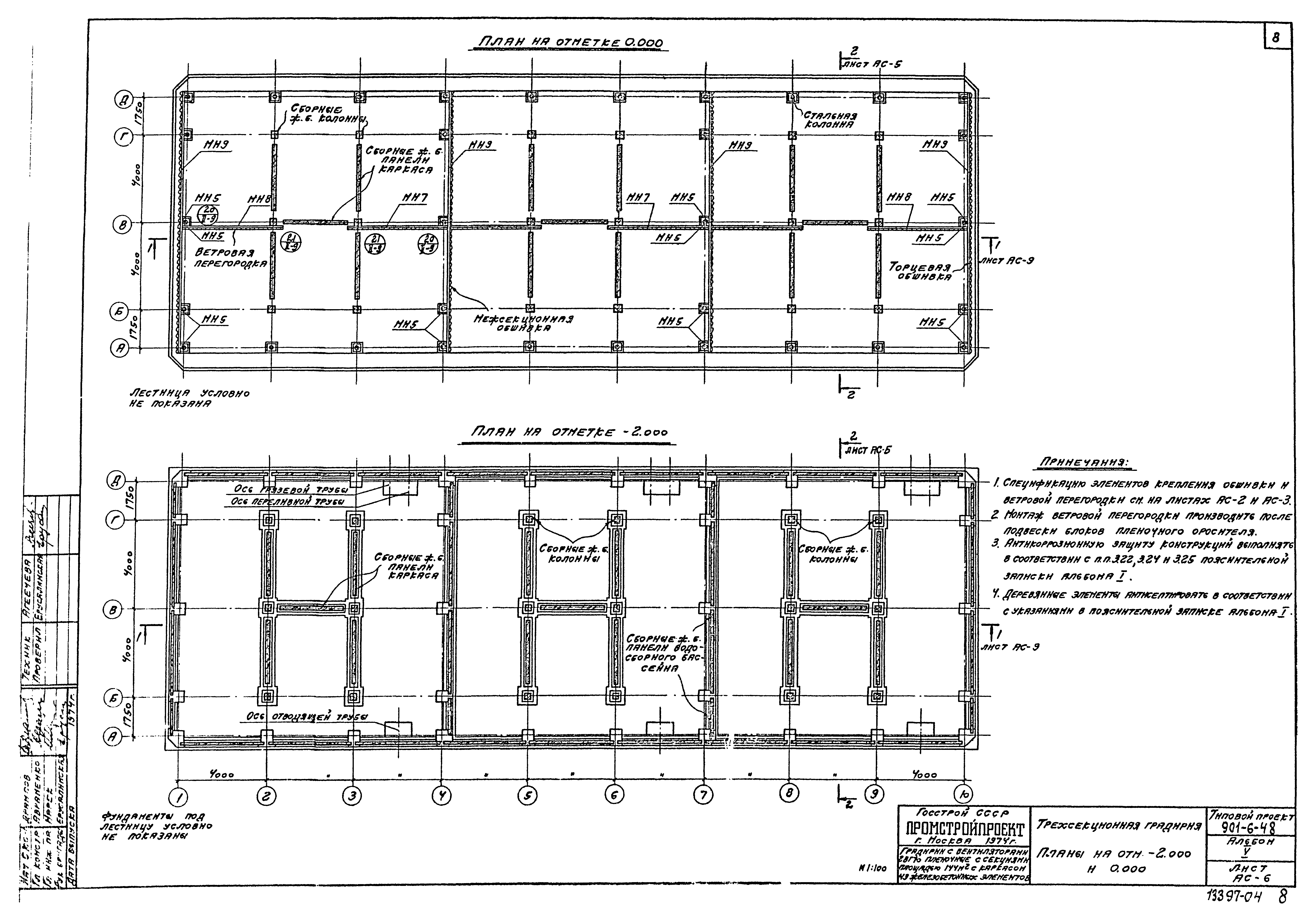
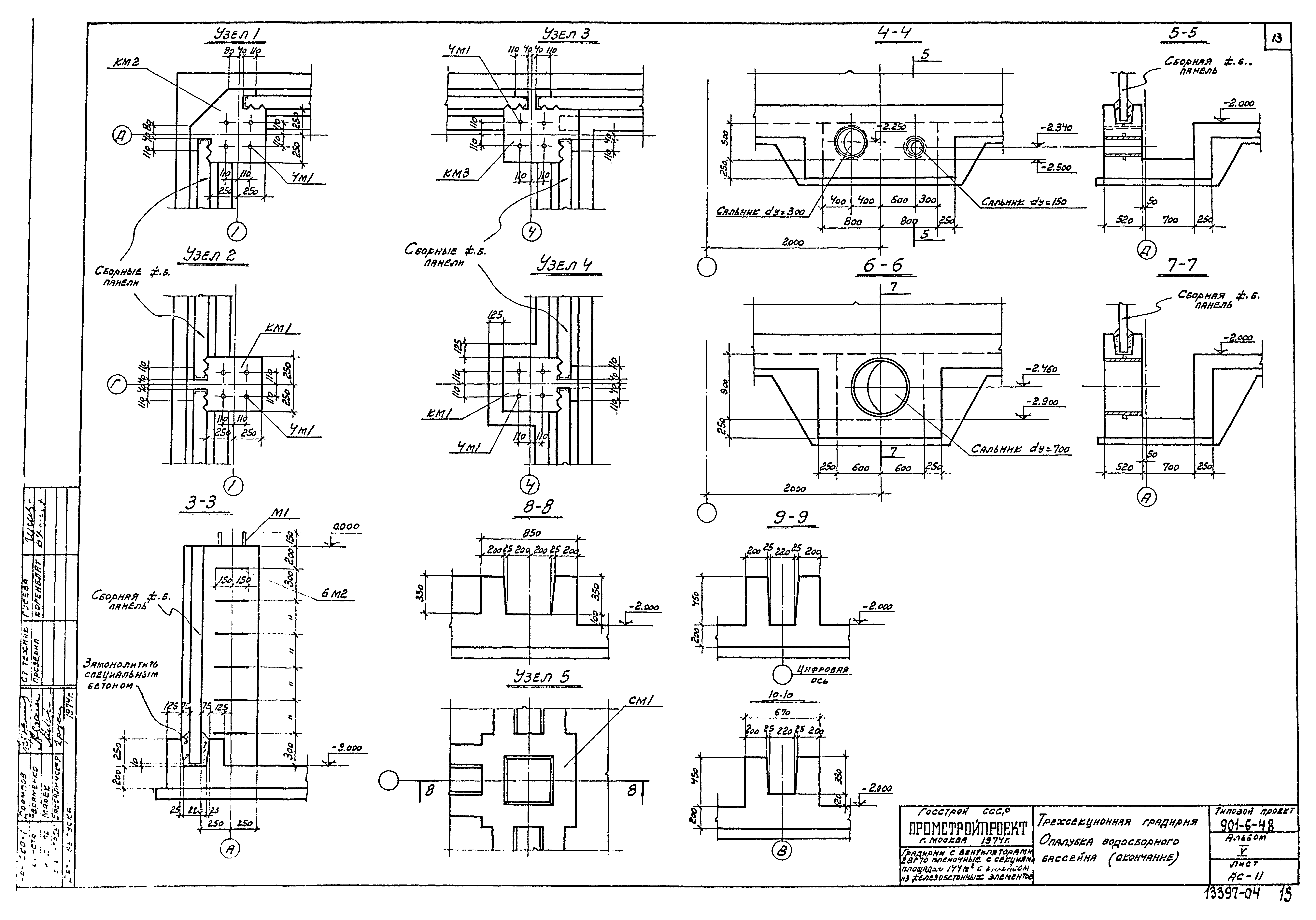
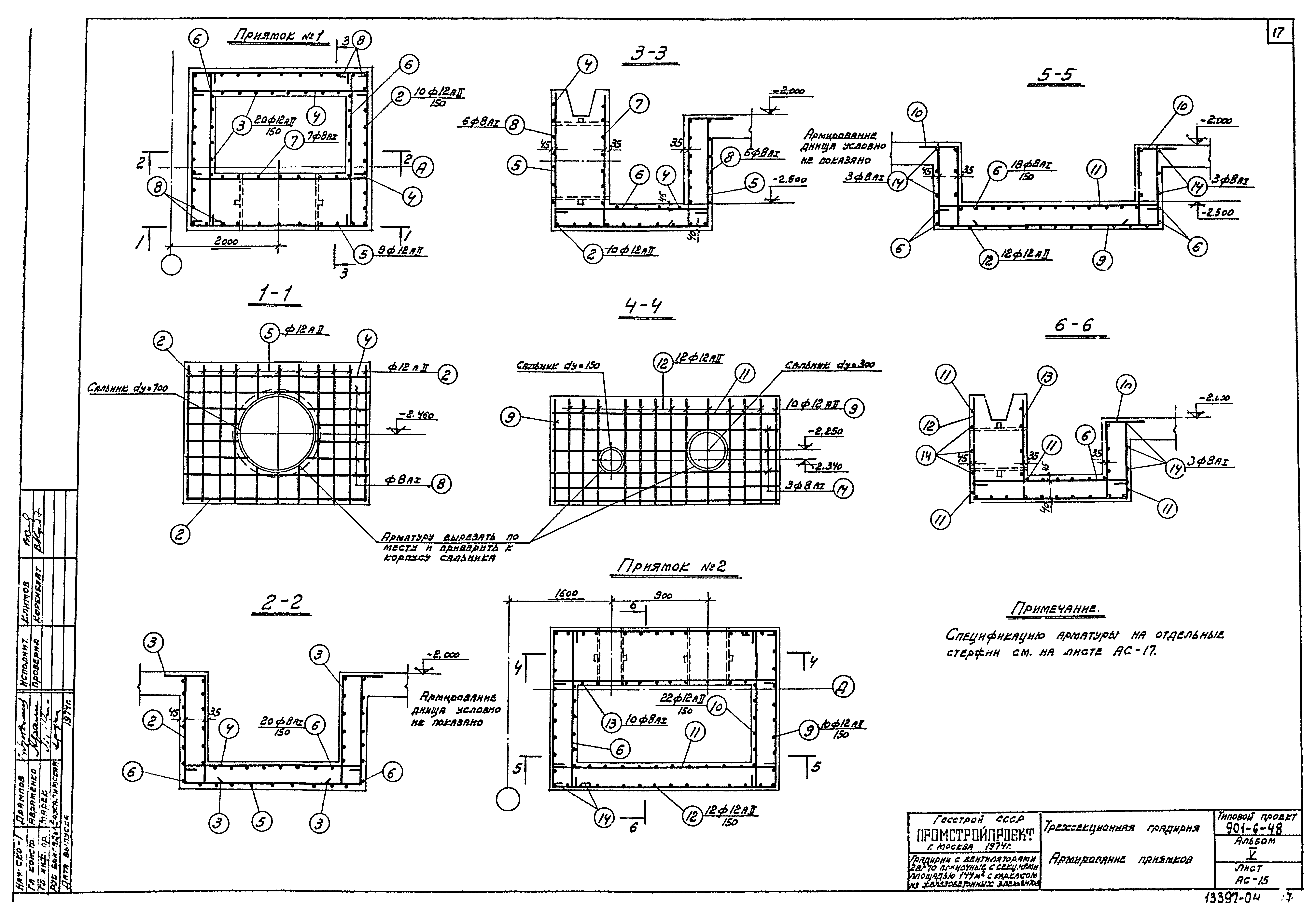
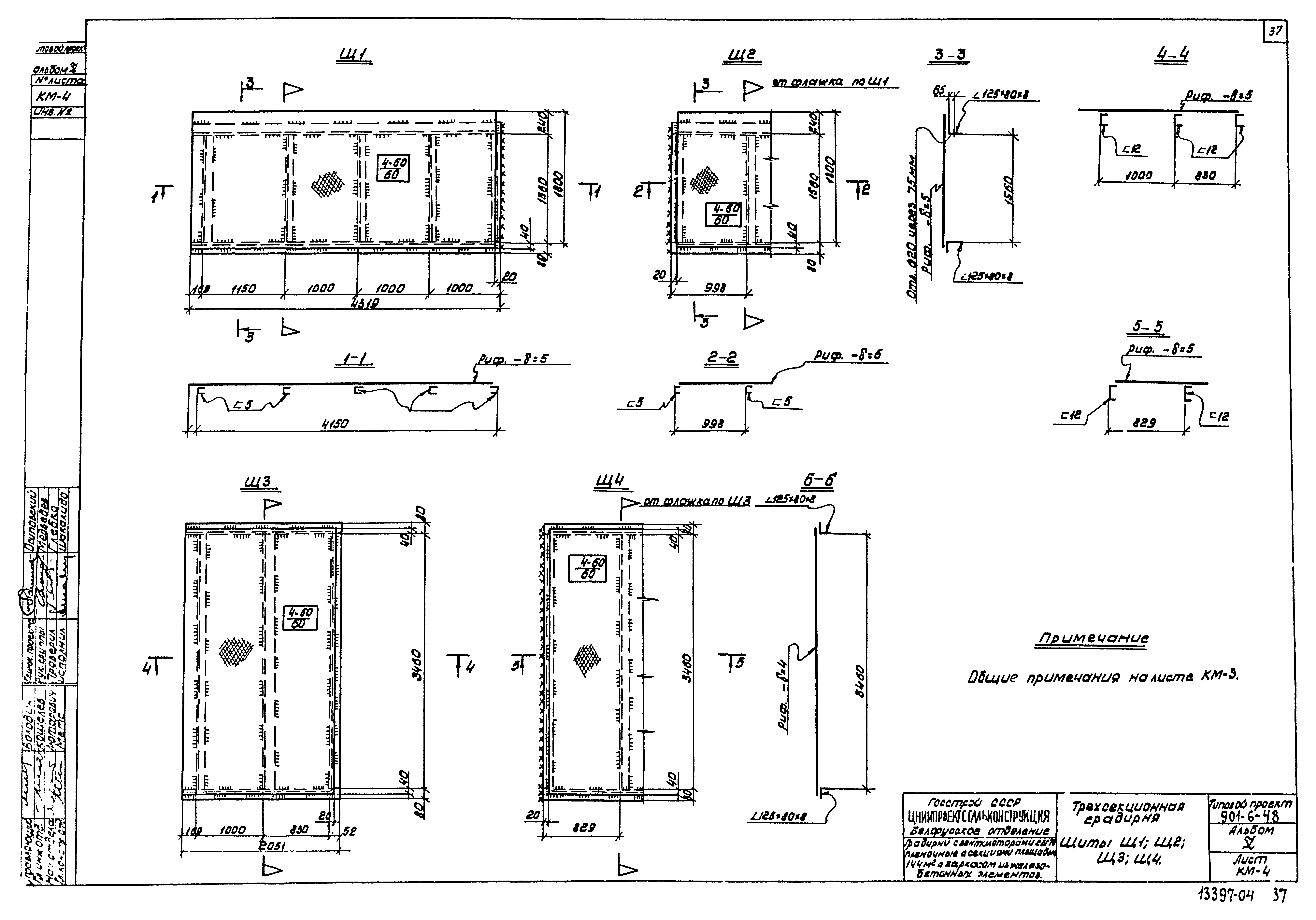
Скачать Типовой проект 901-6-48 Альбом V. Трехсекционная градирняДата актуализации: 01.01.2021
|
| Обозначение: | Типовой проект 901-6-48 |
| Обозначение англ: | 901-6-48 |
| Статус: | отменен |
| Название рус.: | Альбом V. Трехсекционная градирня |
| Дата добавления в базу: | 21.05.2015 |
| Дата актуализации: | 01.01.2021 |
| Дата введения: | 25.05.1975 |
| Дата окончания срока действия: | 01.07.1996 |
| Разработан: | Союзводоканалпроект ЦНИИпроектстальконструкция Промстройпроект |
| Утверждён: | 27.01.1975 Главпромстройпроект Госстроя СССР (2) |
| Заменяет собой: |
|









































