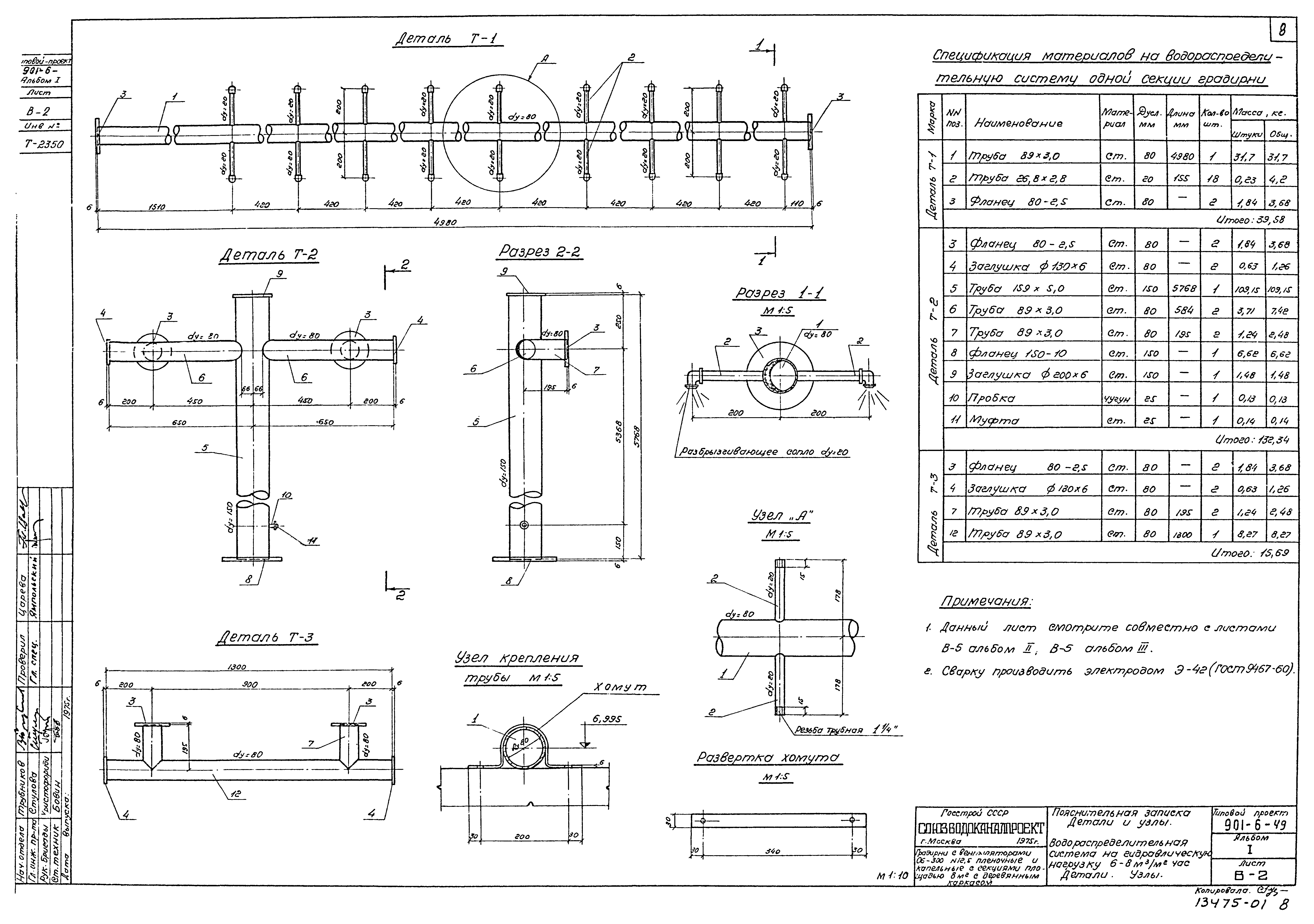
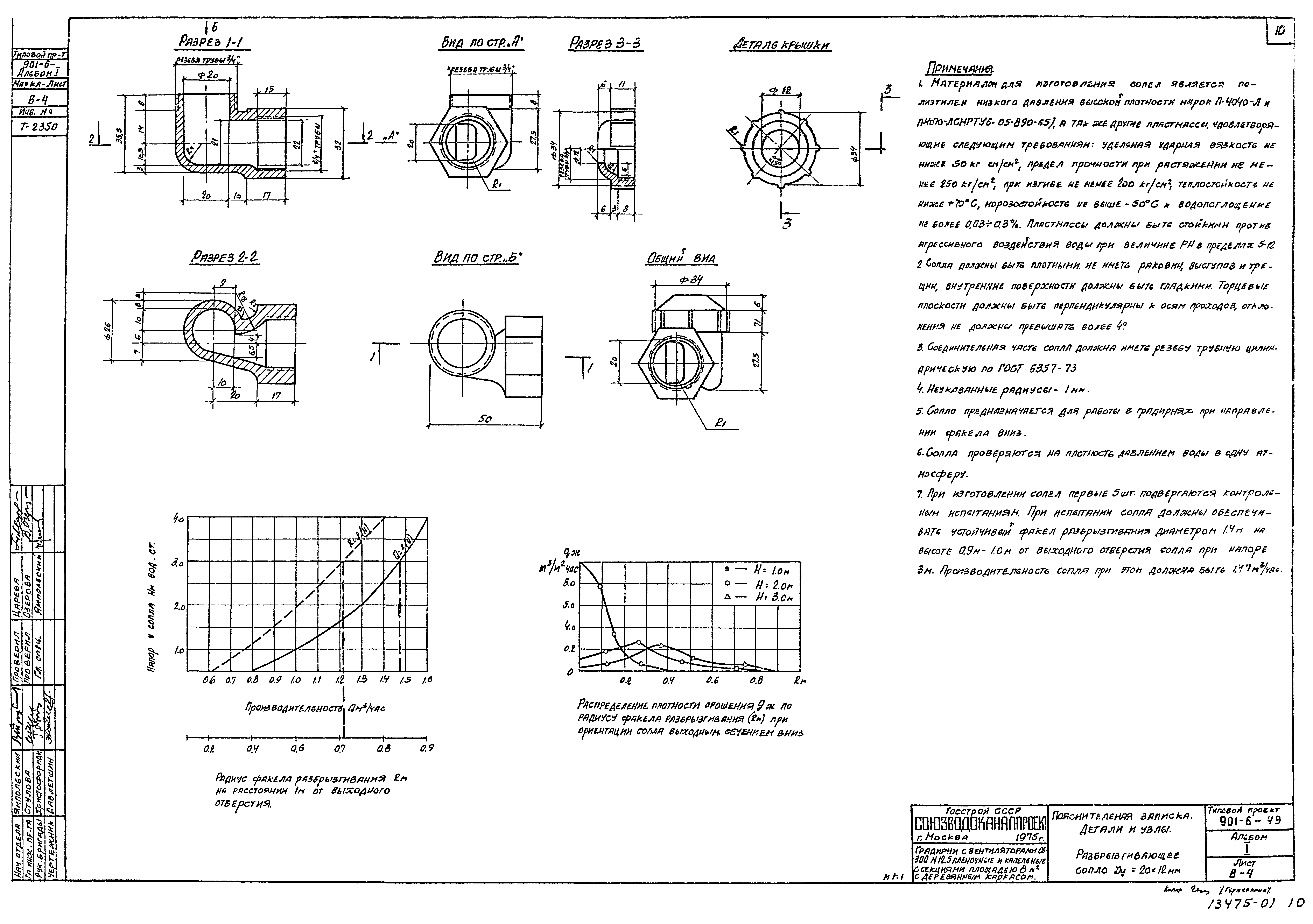
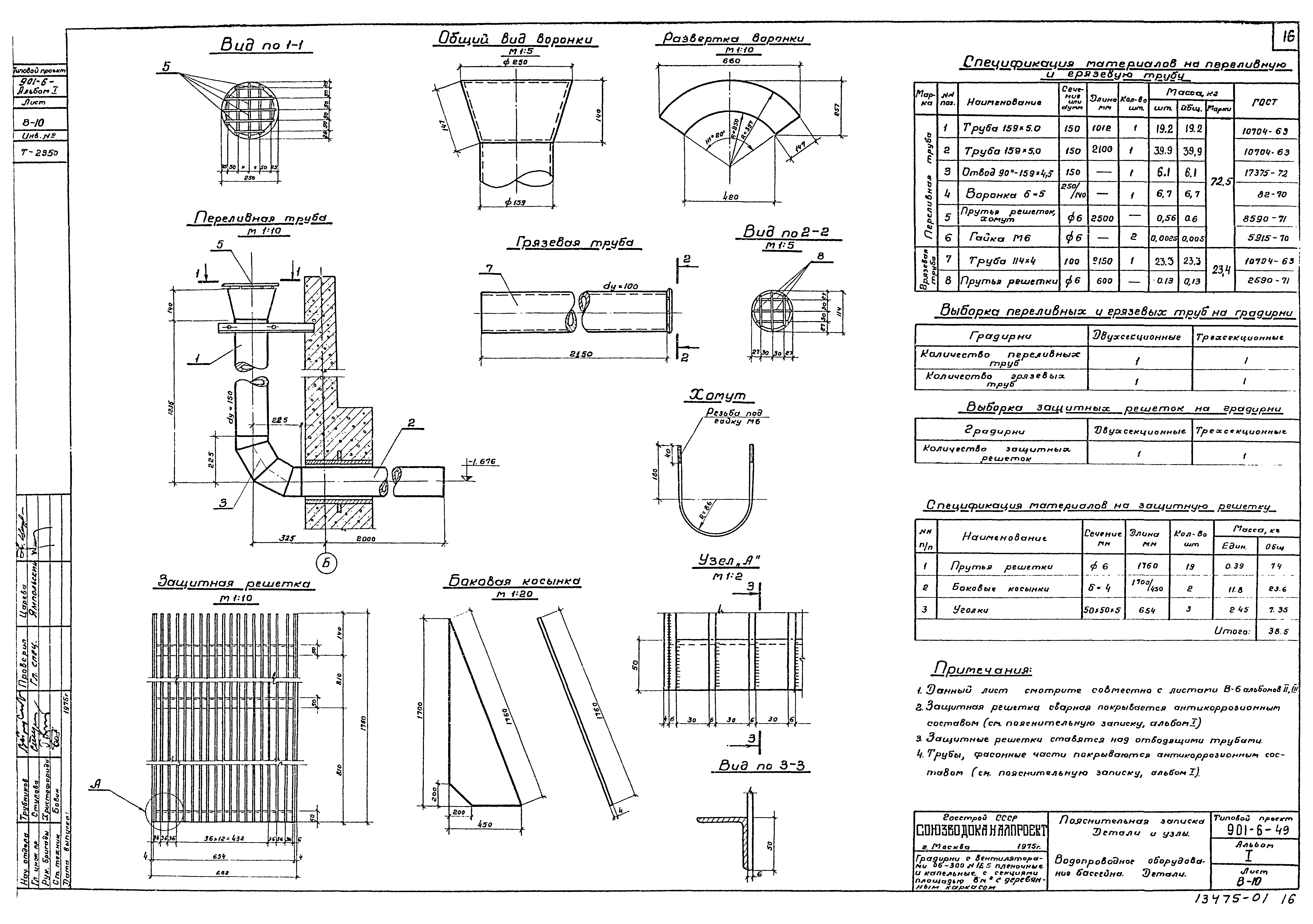
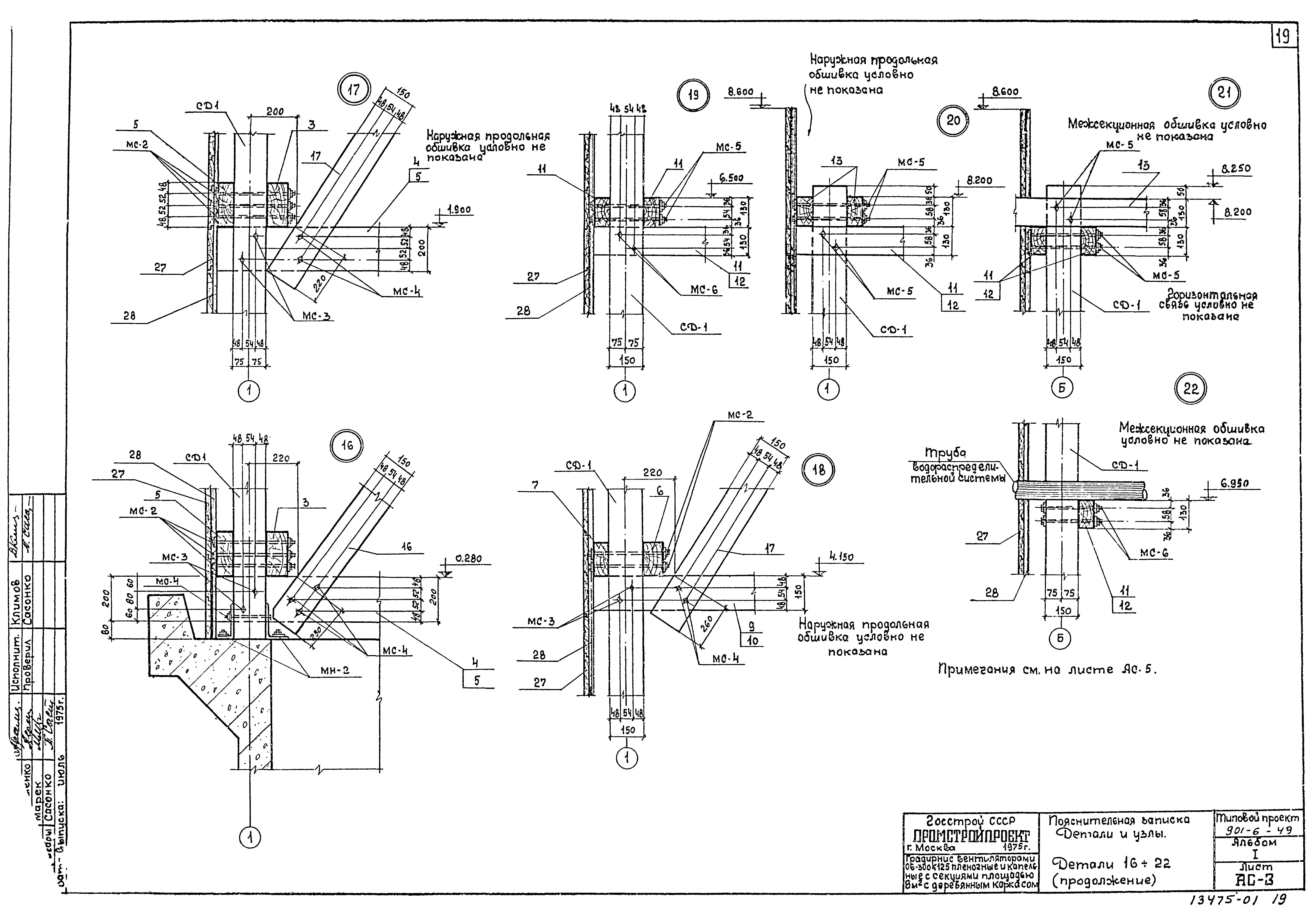
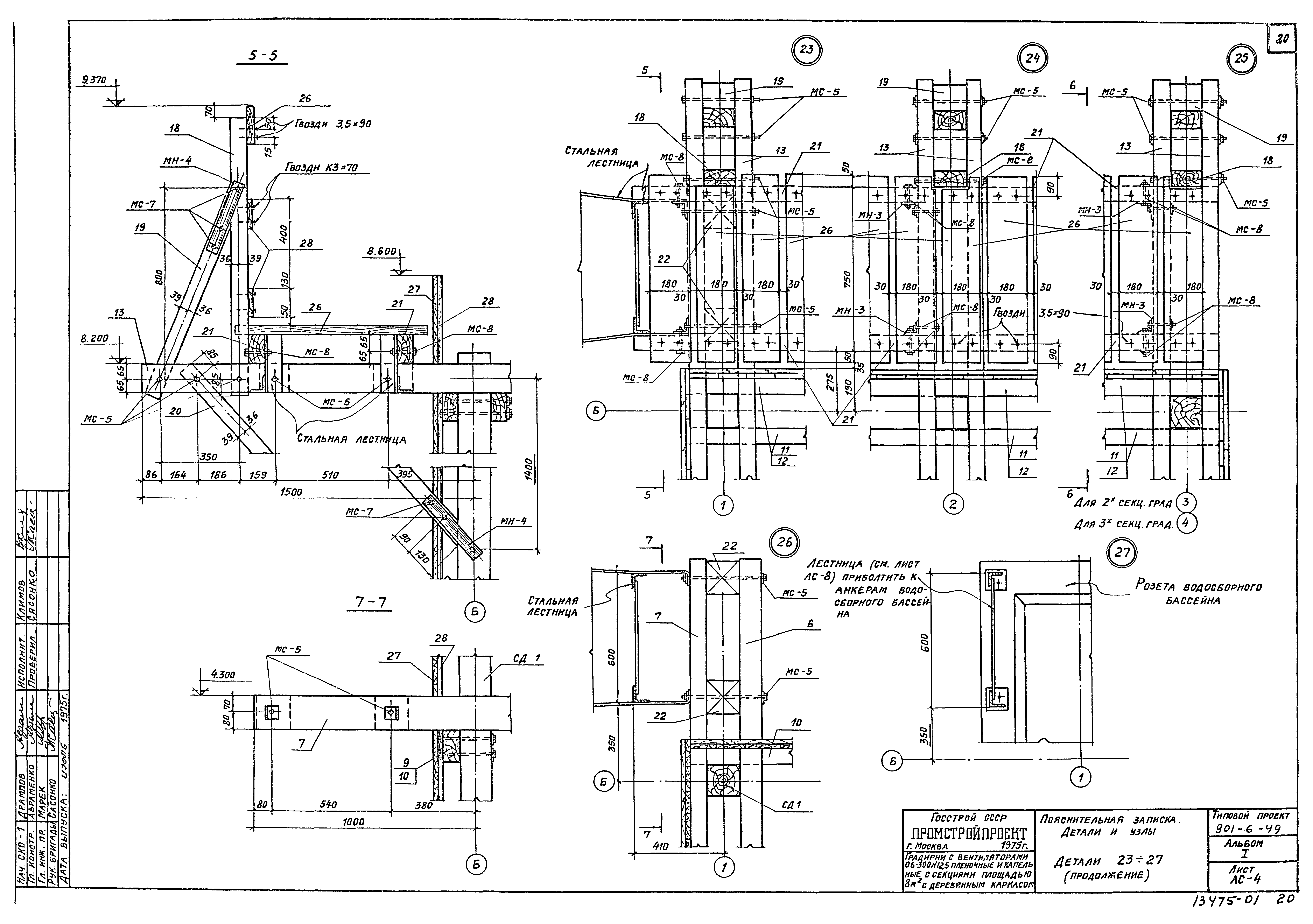
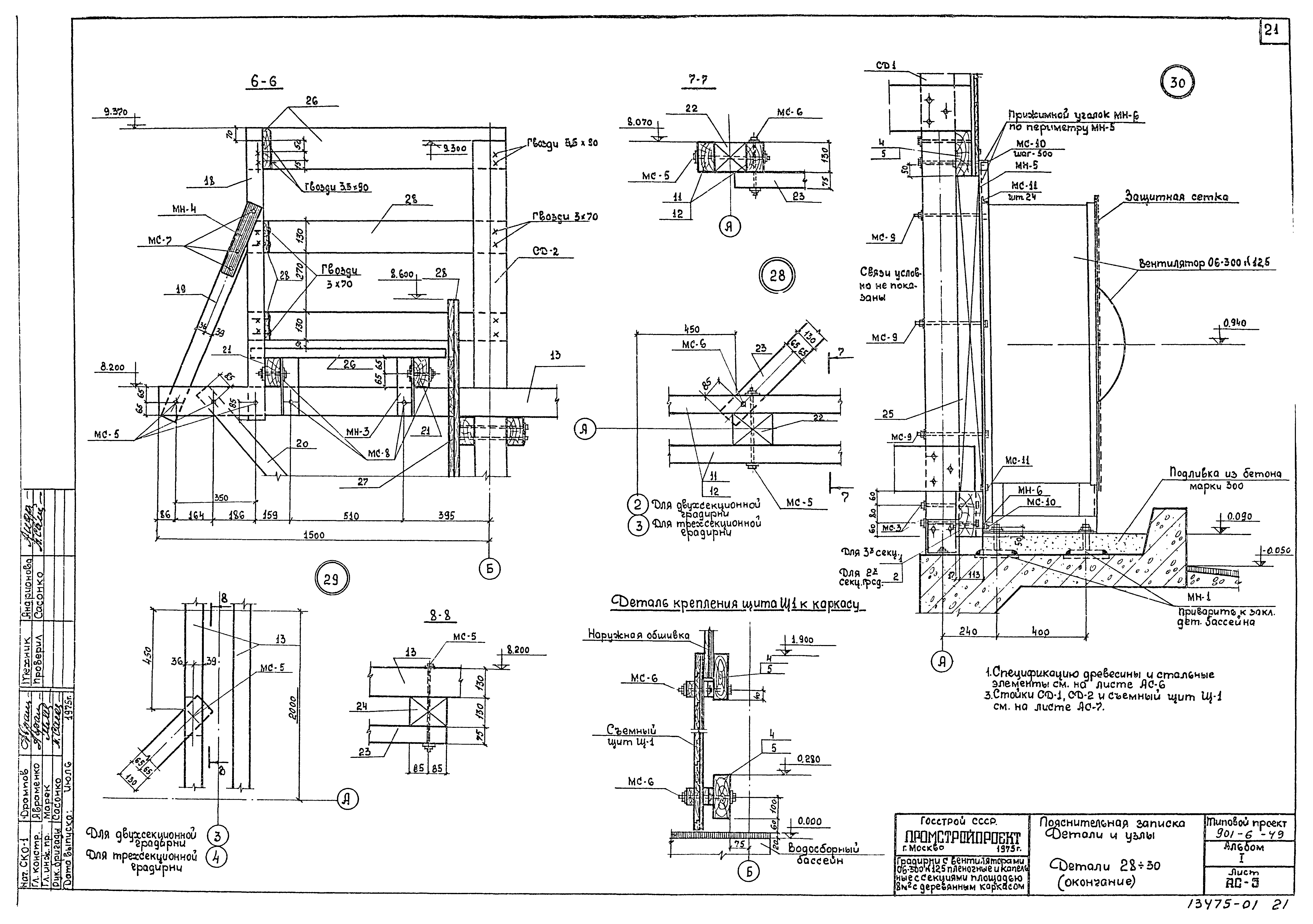
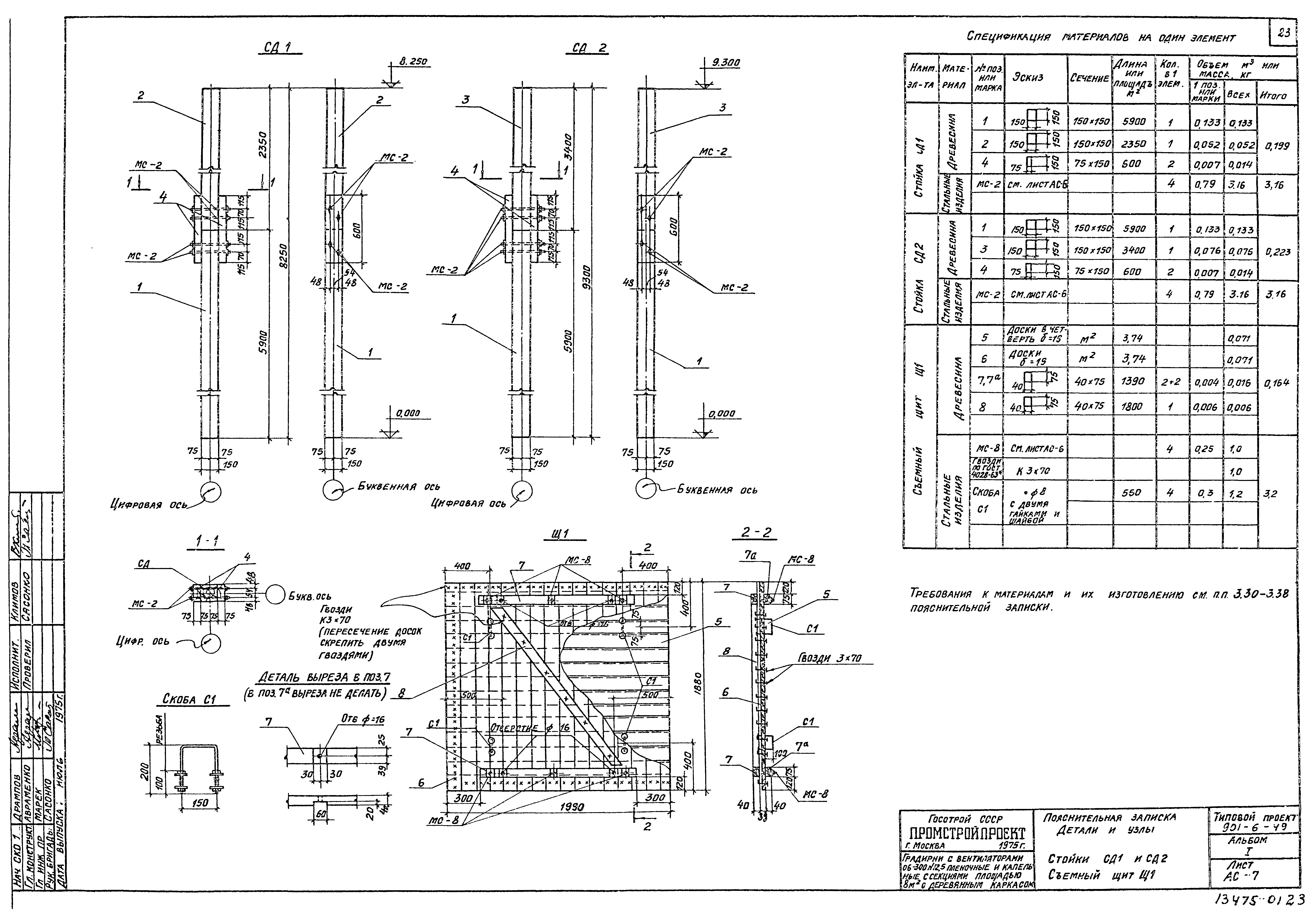
Скачать Типовой проект 901-6-49 Альбом I. Пояснительная записка. Детали и узлыДата актуализации: 01.01.2021
|
| Обозначение: | Типовой проект 901-6-49 |
| Обозначение англ: | 901-6-49 |
| Статус: | отменен |
| Название рус.: | Альбом I. Пояснительная записка. Детали и узлы |
| Дата добавления в базу: | 21.05.2015 |
| Дата актуализации: | 01.01.2021 |
| Дата введения: | 25.09.1975 |
| Дата окончания срока действия: | 01.01.1997 |
| Разработан: | Союзводоканалпроект Промстройпроект Ростовский Водоканалпроект |
| Утверждён: | 16.07.1975 СоюзводоканалНИИпроект (SoyuzvodokanalNIIproject 161) |
| Издан: | ЦИТП Госстроя СССР (CITP, Gosstroy (USSR) 1976 г. ) |
| Заменяет собой: |
|
























