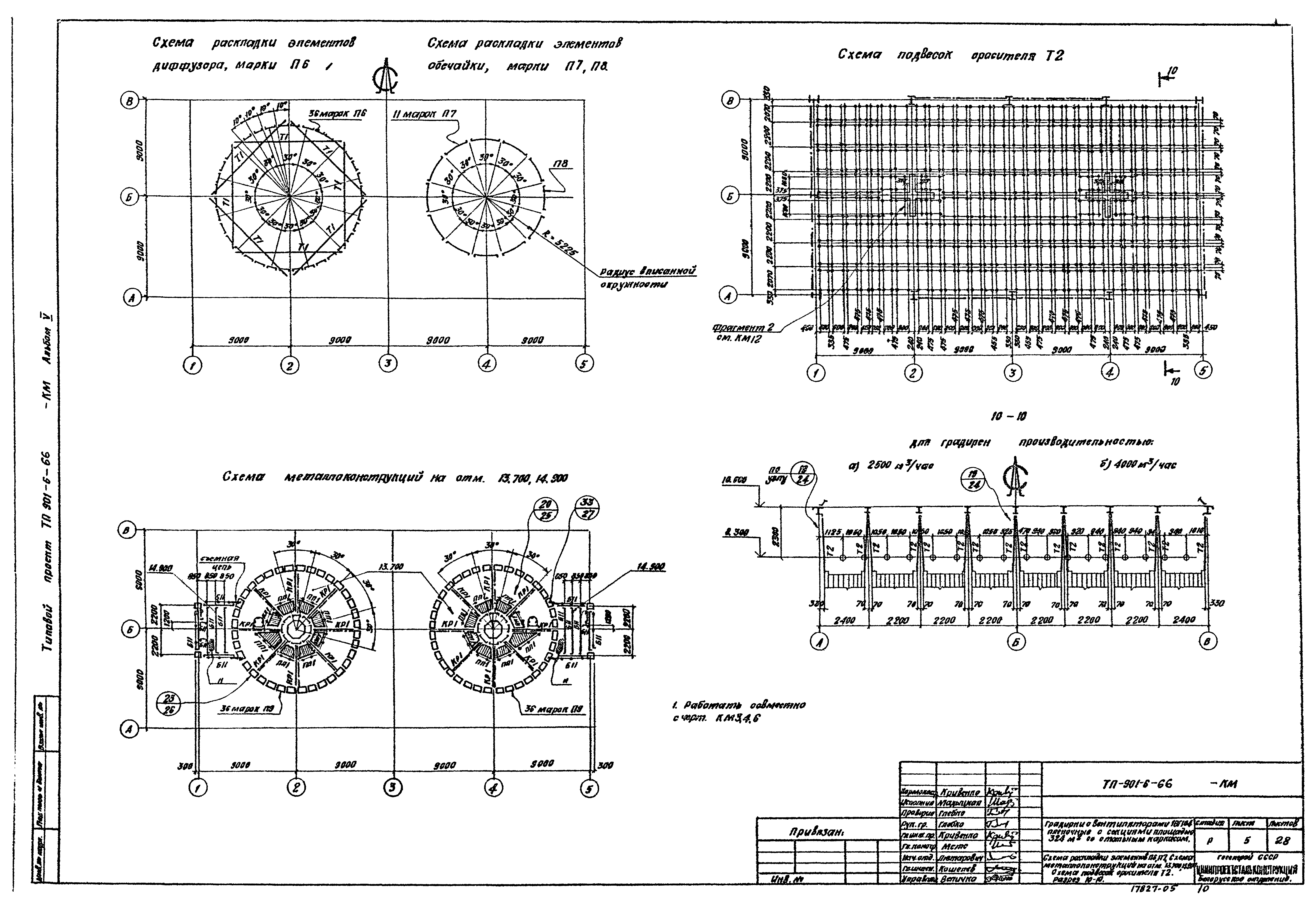
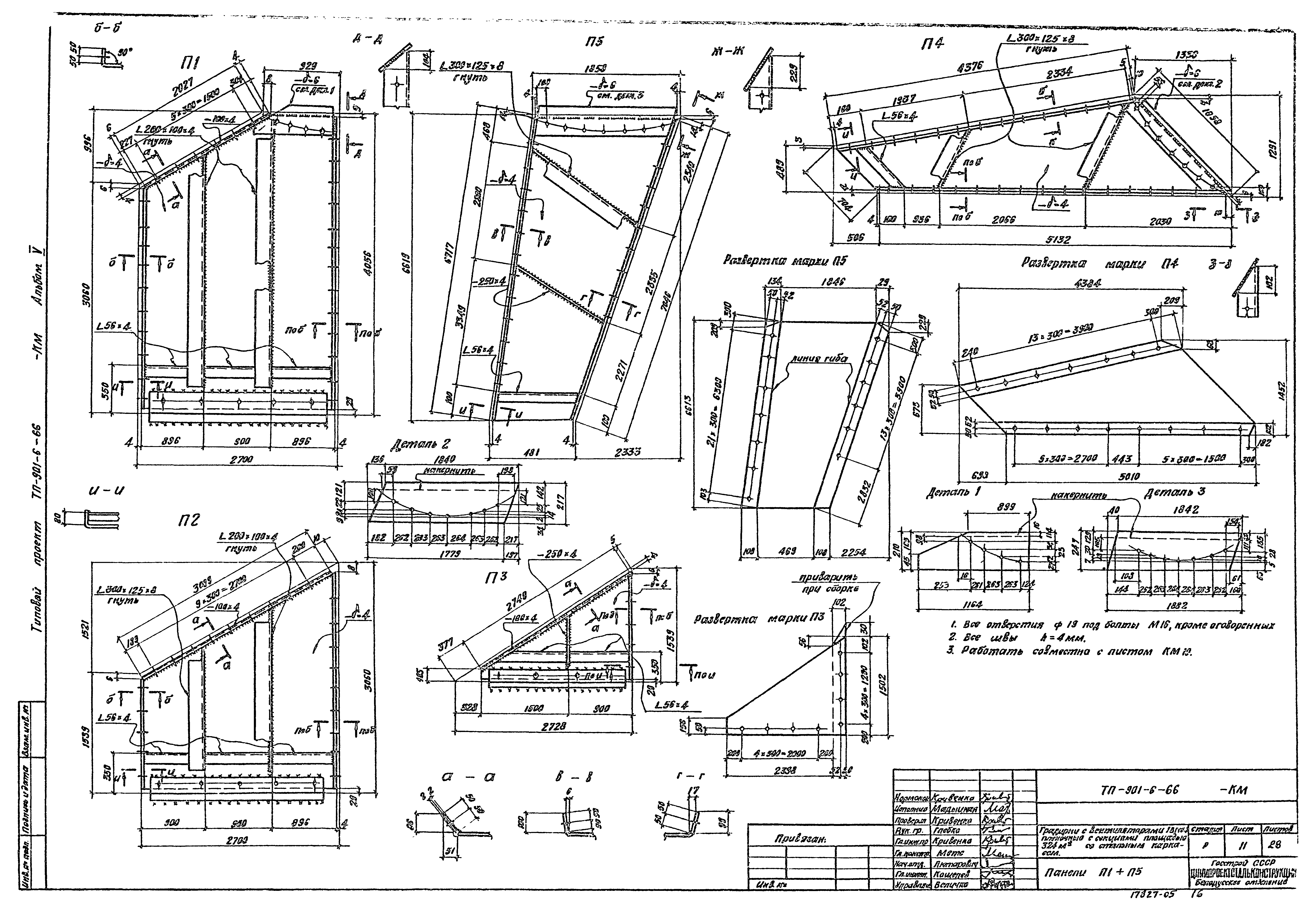
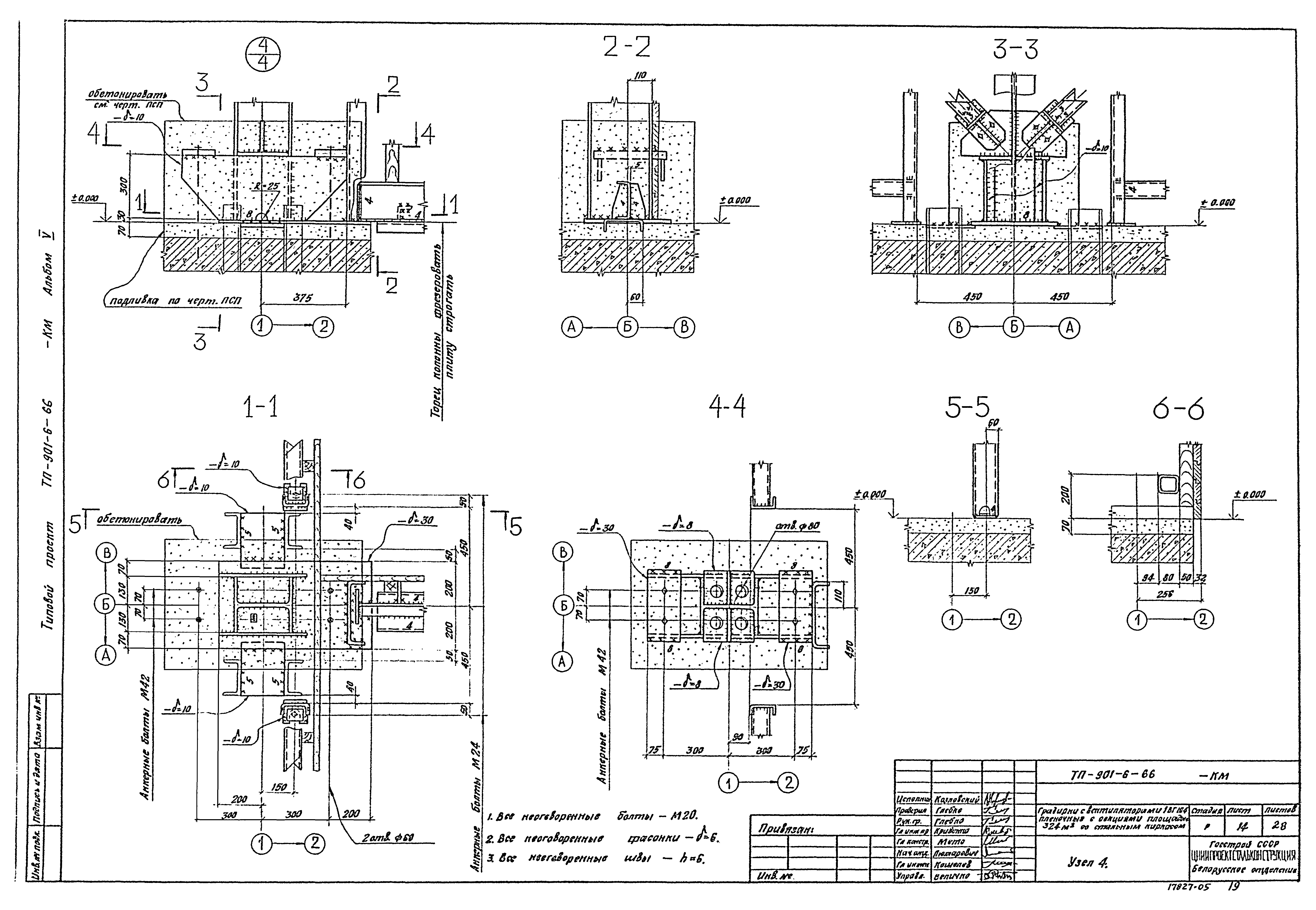
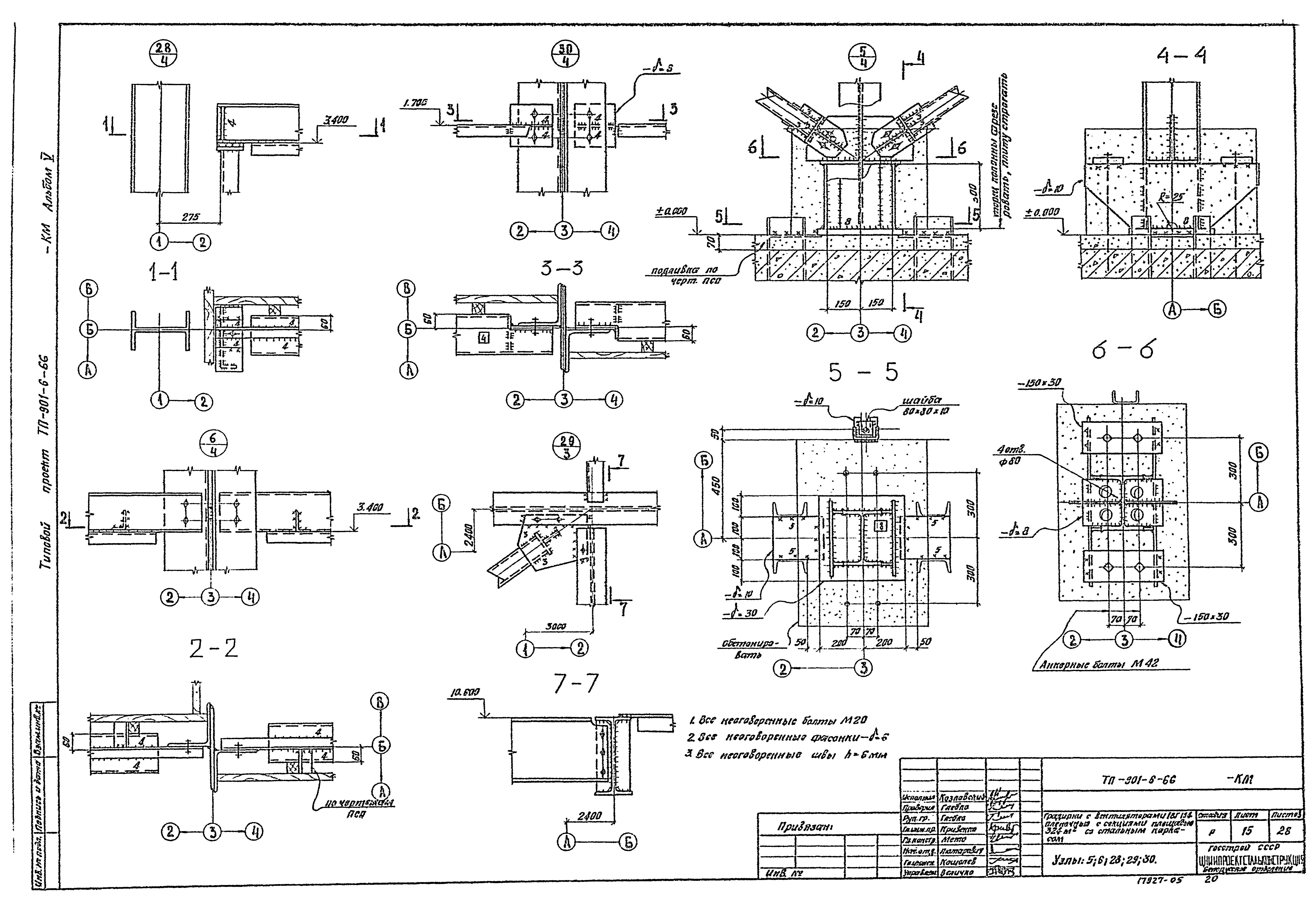
Скачать Типовой проект 901-6-66 Альбом V. Конструкции металлическиеДата актуализации: 01.01.2021
|
| Обозначение: | Типовой проект 901-6-66 |
| Обозначение англ: | 901-6-66 |
| Статус: | отменен |
| Название рус.: | Альбом V. Конструкции металлические |
| Дата добавления в базу: | 21.05.2015 |
| Дата актуализации: | 01.01.2021 |
| Дата введения: | 07.04.1982 |
| Дата окончания срока действия: | 01.01.1990 |
| Разработан: | Союзводоканалпроект ЦНИИпроектстальконструкция Промстройпроект Ростовский Водоканалпроект |
| Утверждён: | 16.11.1981 Союзводоканалпроект (Soyuzvodokanalproject 56) |
| Издан: | ЦИТП Госстроя СССР (CITP, Gosstroy (USSR) 1982 г. ) |
































