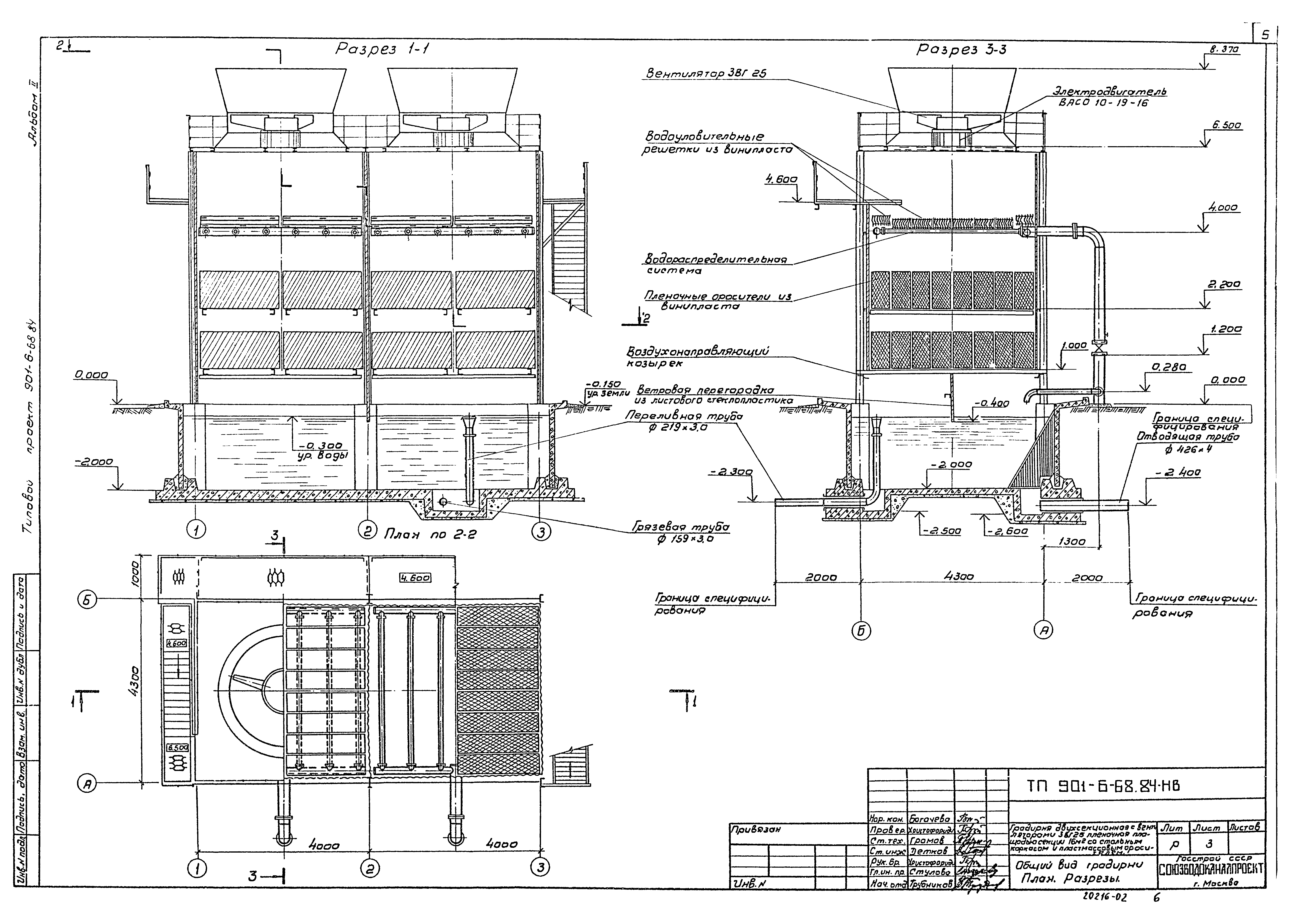
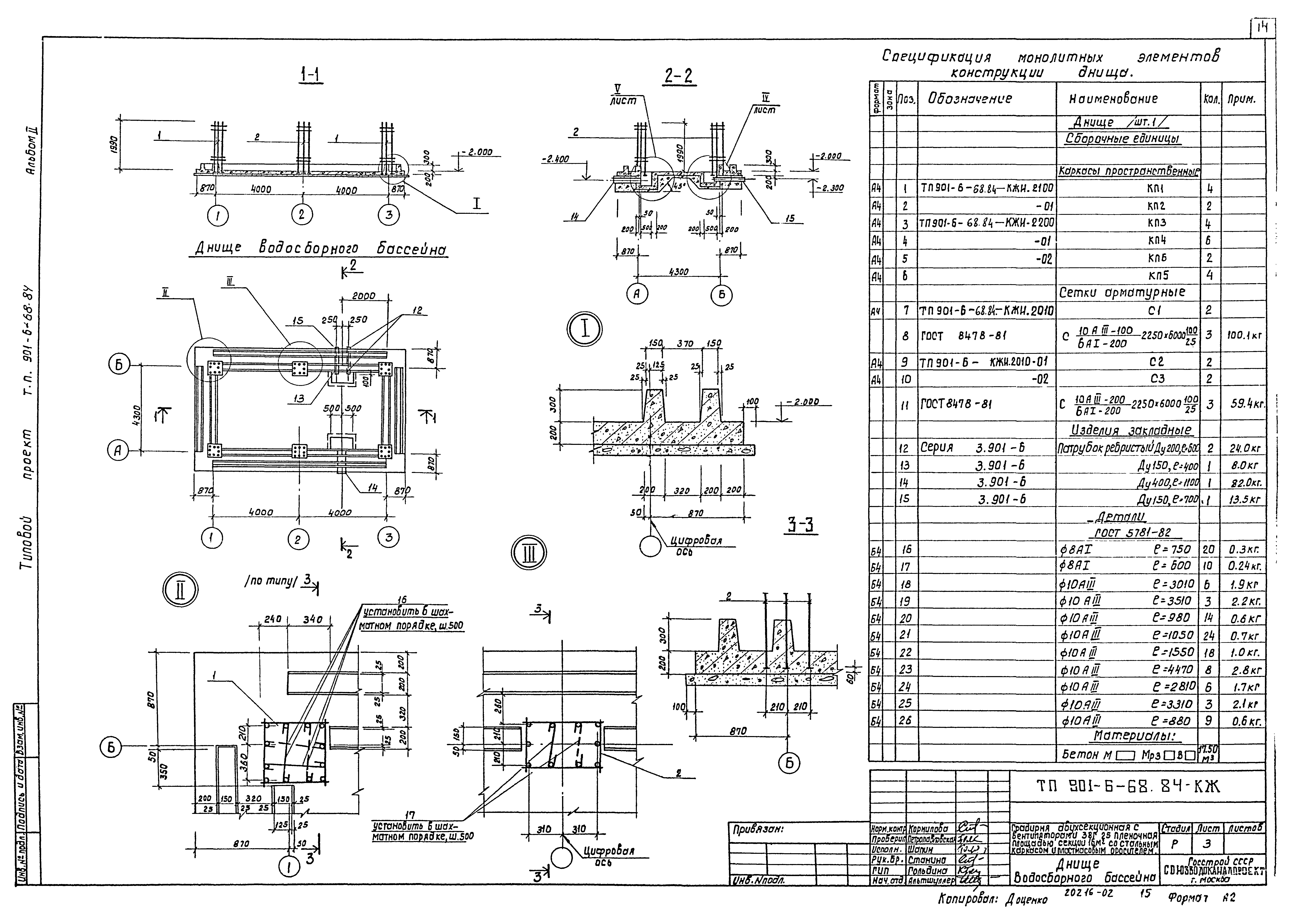
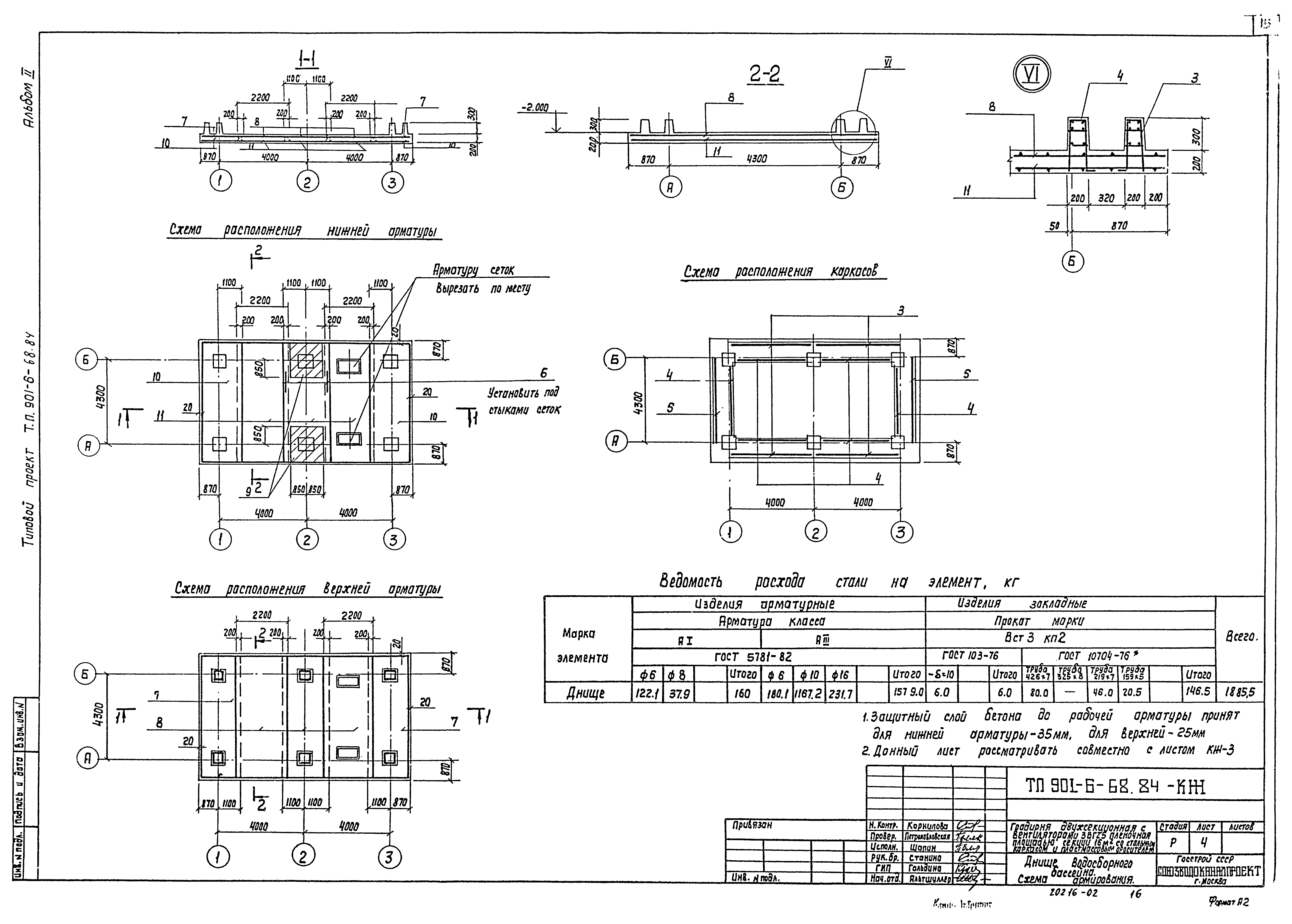
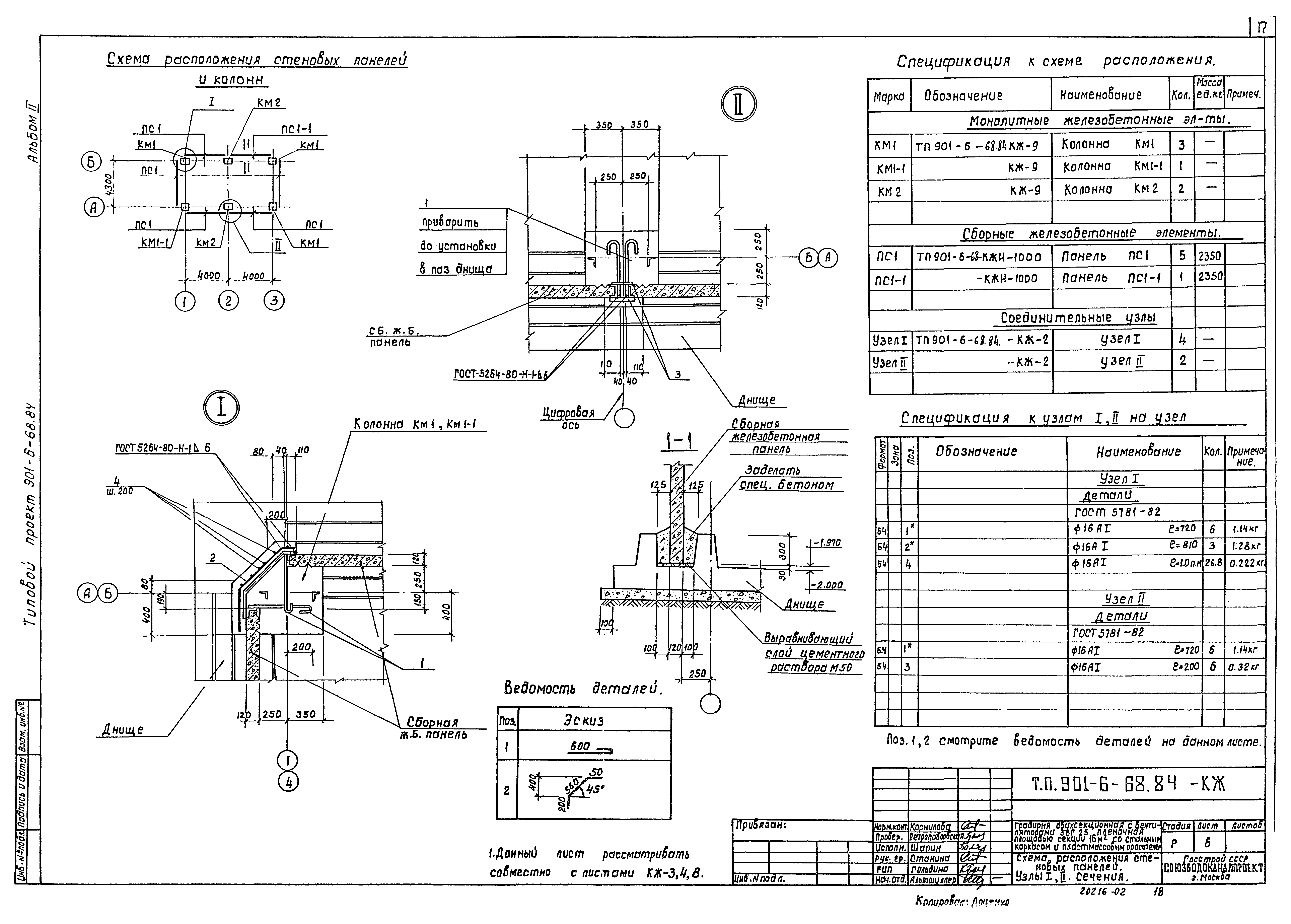
Скачать Типовой проект 901-6-68.84 Альбом II. Технологические, архитектурно-строительные и электротехнические чертежи. Спецификация оборудованияДата актуализации: 01.01.2021 Типовой проект 901-6-68.84
Альбом II. Технологические, архитектурно-строительные и электротехнические чертежи. Спецификация оборудования| Обозначение: | Типовой проект 901-6-68.84 | | Обозначение англ: | 901-6-68.84 | | Статус: | отменен | | Название рус.: | Альбом II. Технологические, архитектурно-строительные и электротехнические чертежи. Спецификация оборудования | | Дата добавления в базу: | 21.05.2015 | | Дата актуализации: | 01.01.2021 | | Дата введения: | 27.08.1984 | | Дата окончания срока действия: | 01.07.1996 | | Разработан: | Союзводоканалпроект
| | Утверждён: | 31.01.1984 Госстрой СССР (ВА-2)
|
                                
|