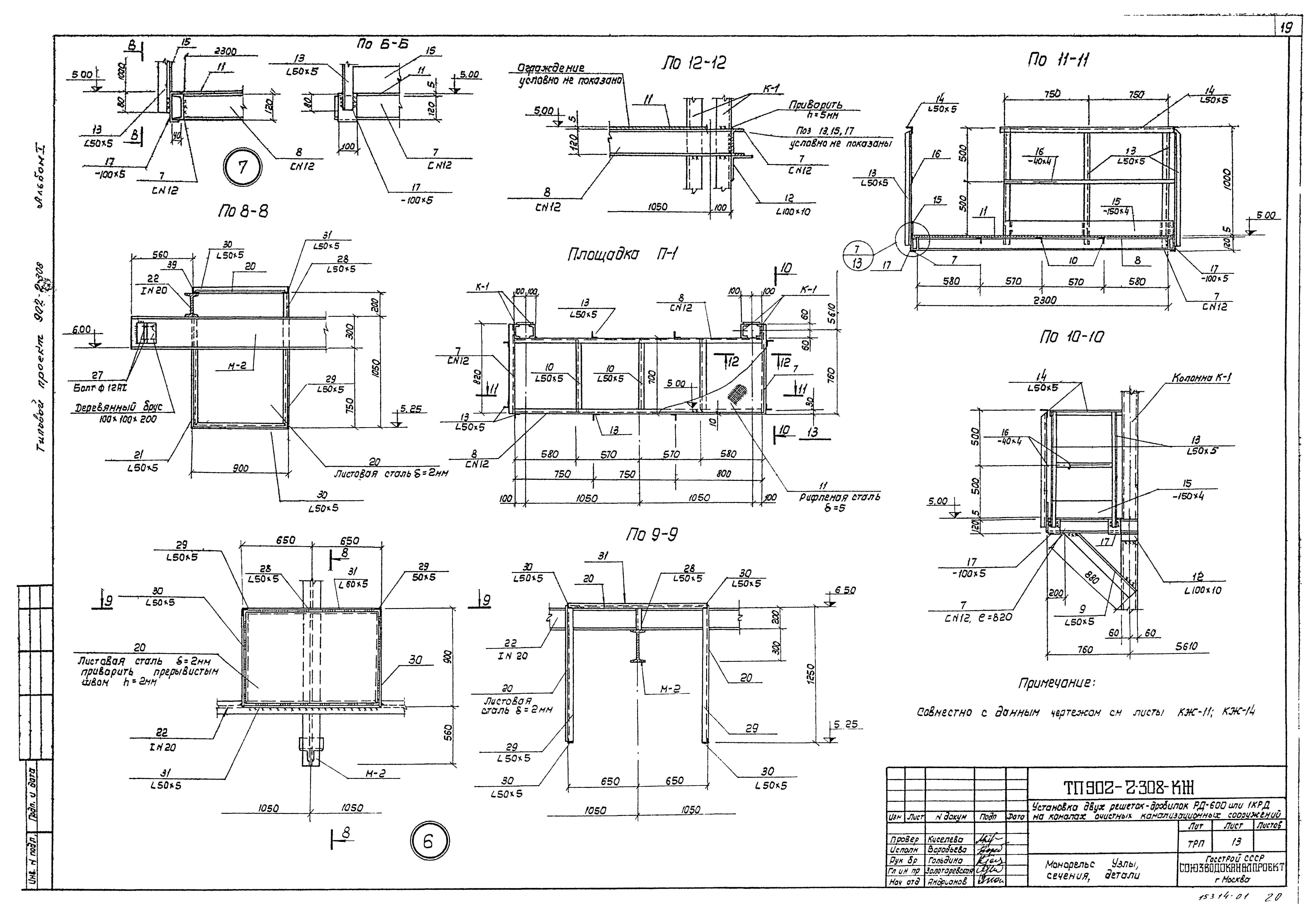
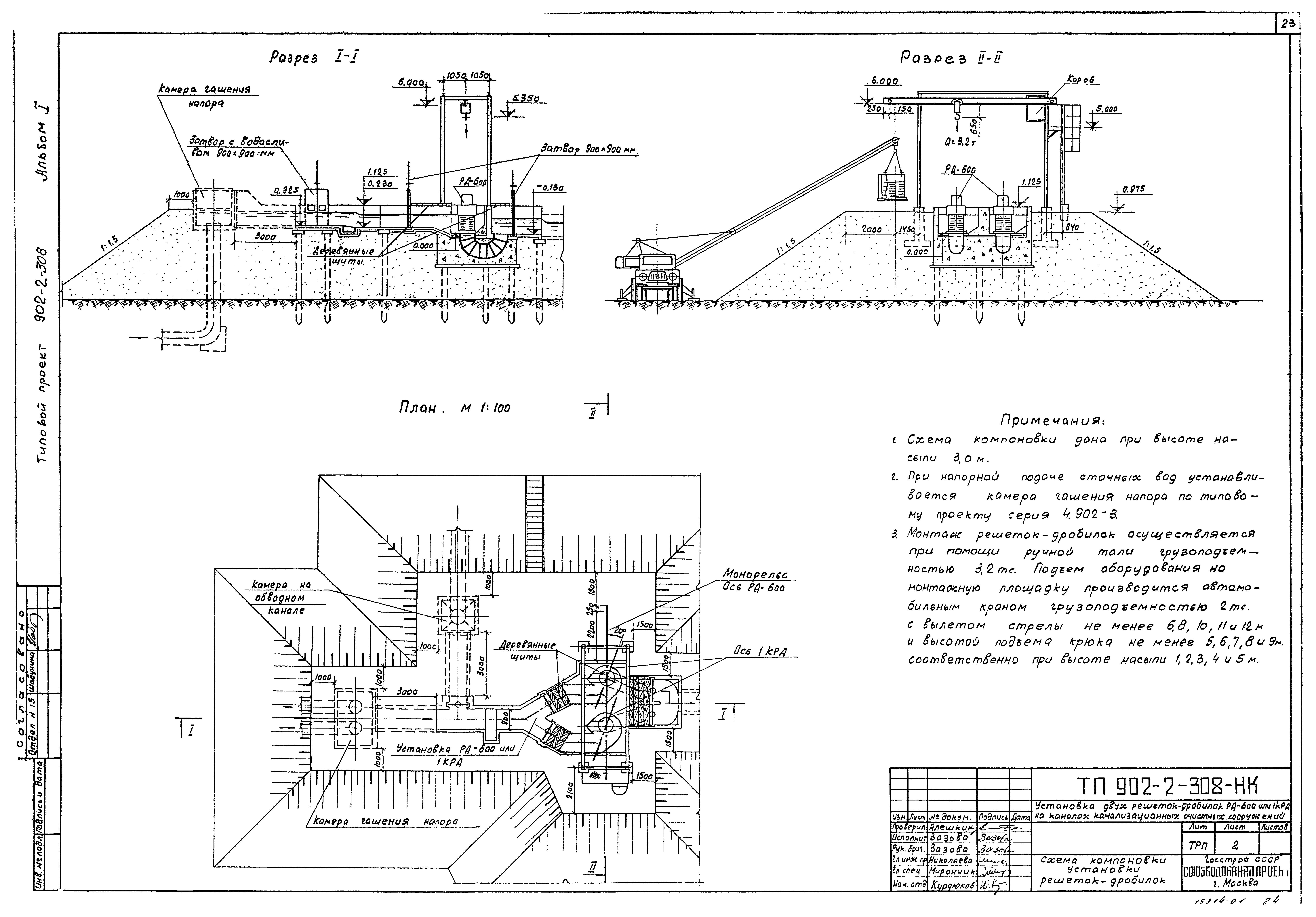
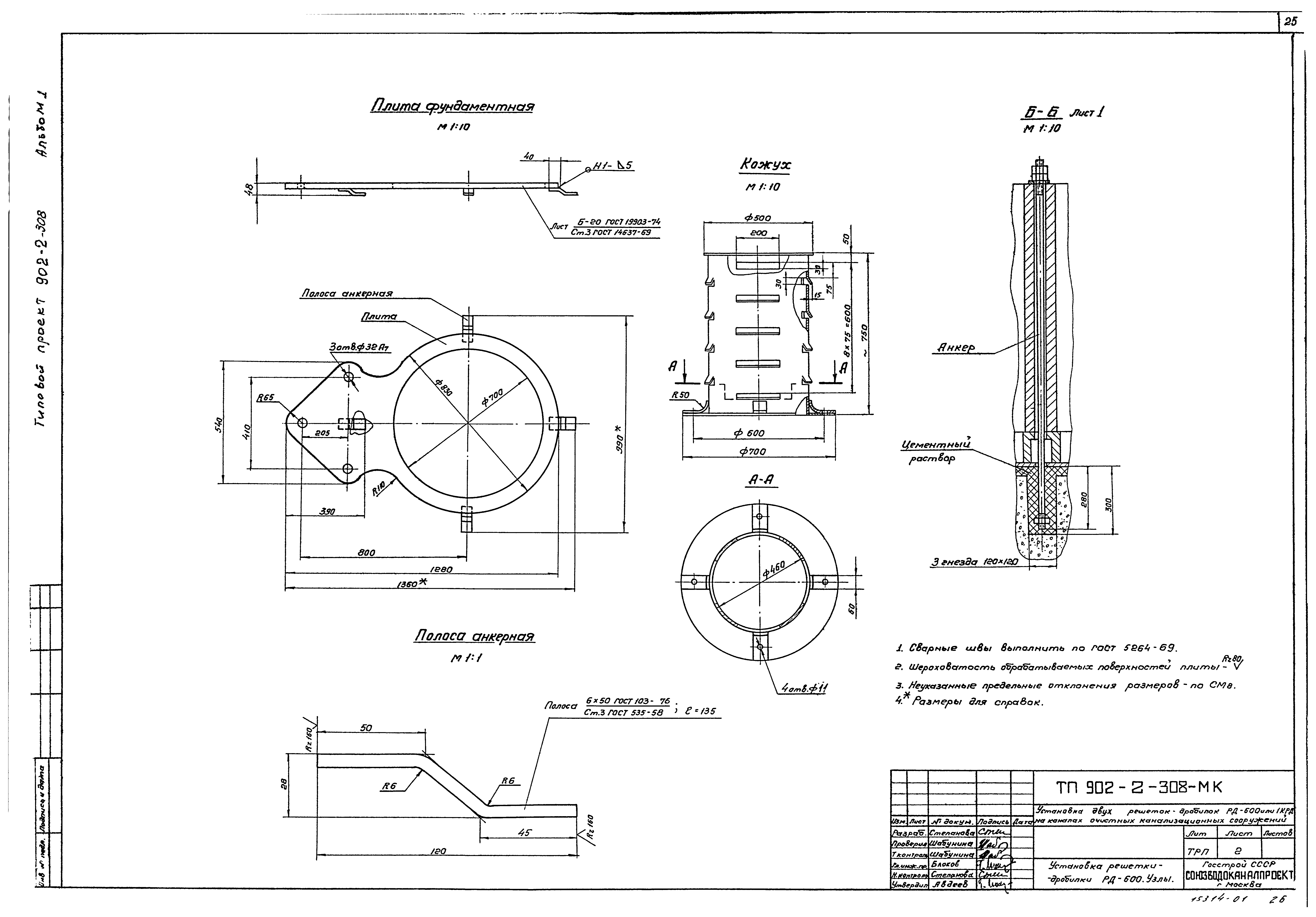
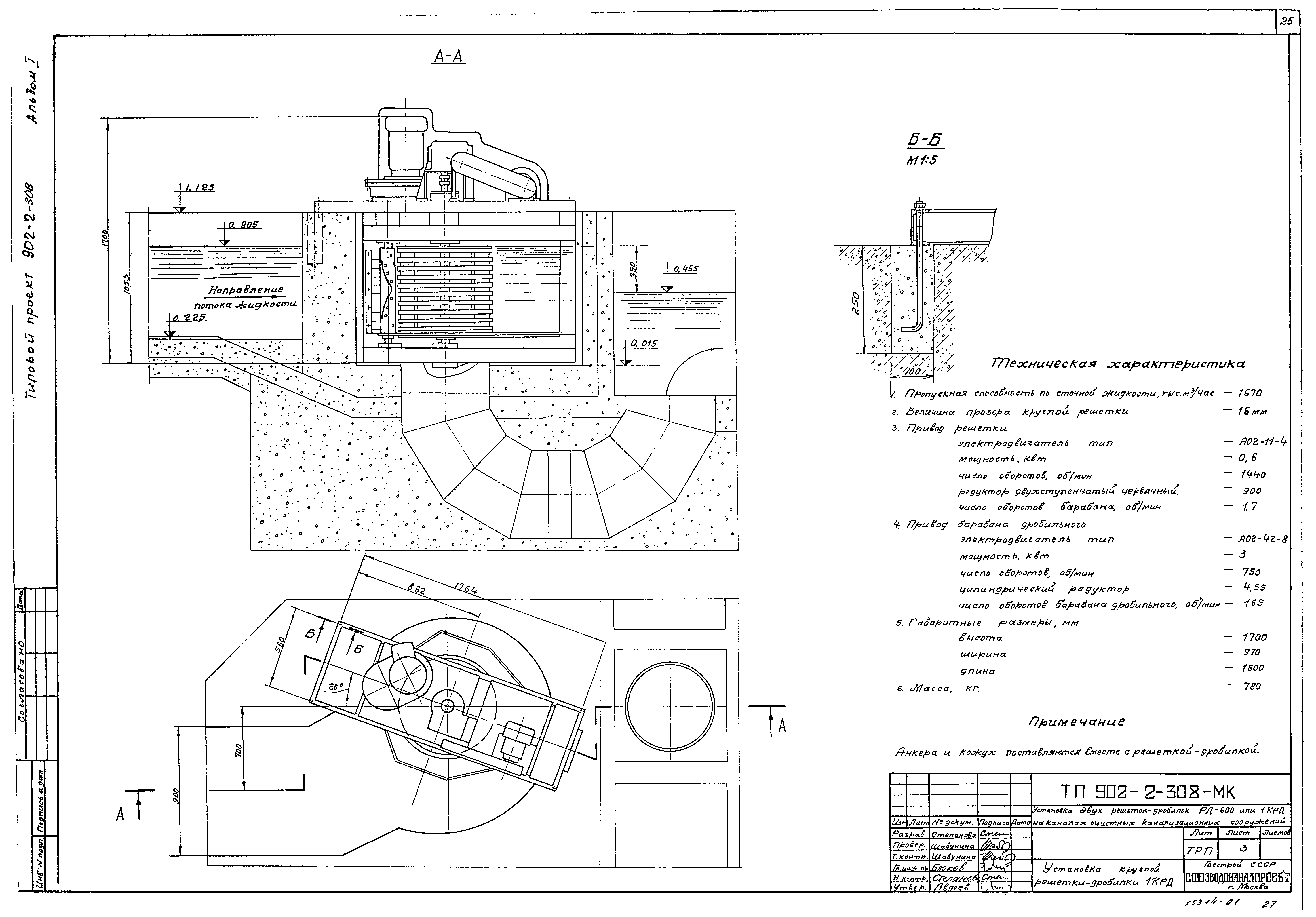
Скачать Типовой проект 902-2-308 Альбом 1. Пояснительная записка и чертежиДата актуализации: 01.01.2021 Типовой проект 902-2-308
Альбом 1. Пояснительная записка и чертежи| Обозначение: | Типовой проект 902-2-308 | | Обозначение англ: | 902-2-308 | | Статус: | отменен | | Название рус.: | Альбом 1. Пояснительная записка и чертежи | | Дата добавления в базу: | 21.05.2015 | | Дата актуализации: | 01.01.2021 | | Дата введения: | 15.04.1978 | | Дата окончания срока действия: | 01.01.1997 | | Разработан: | Союзводоканалпроект
| | Утверждён: | 24.06.1977 СоюзводоканалНИИпроект (SoyuzvodokanalNIIproject 41)
| | Заменяет собой: | |
                                
|