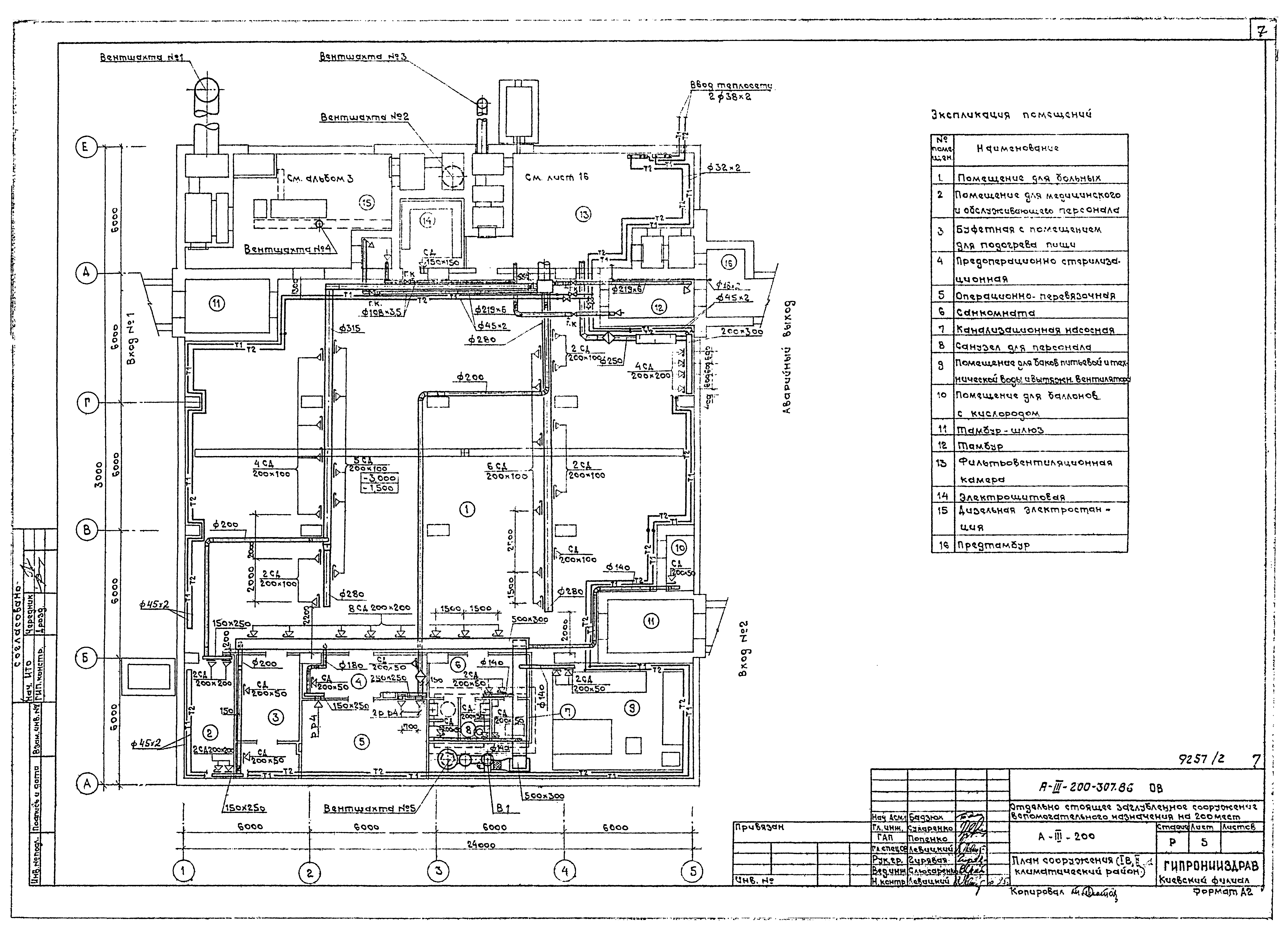
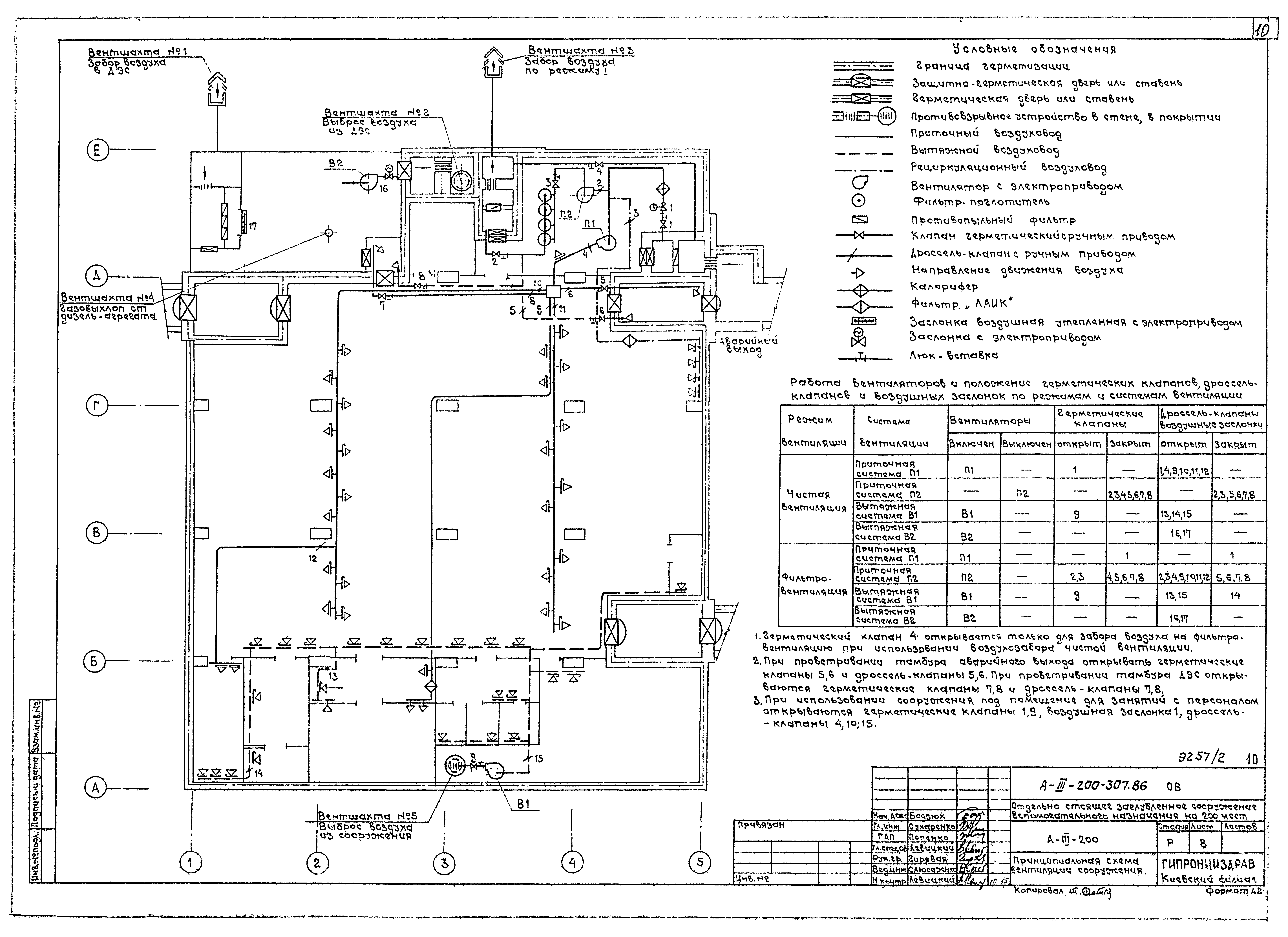
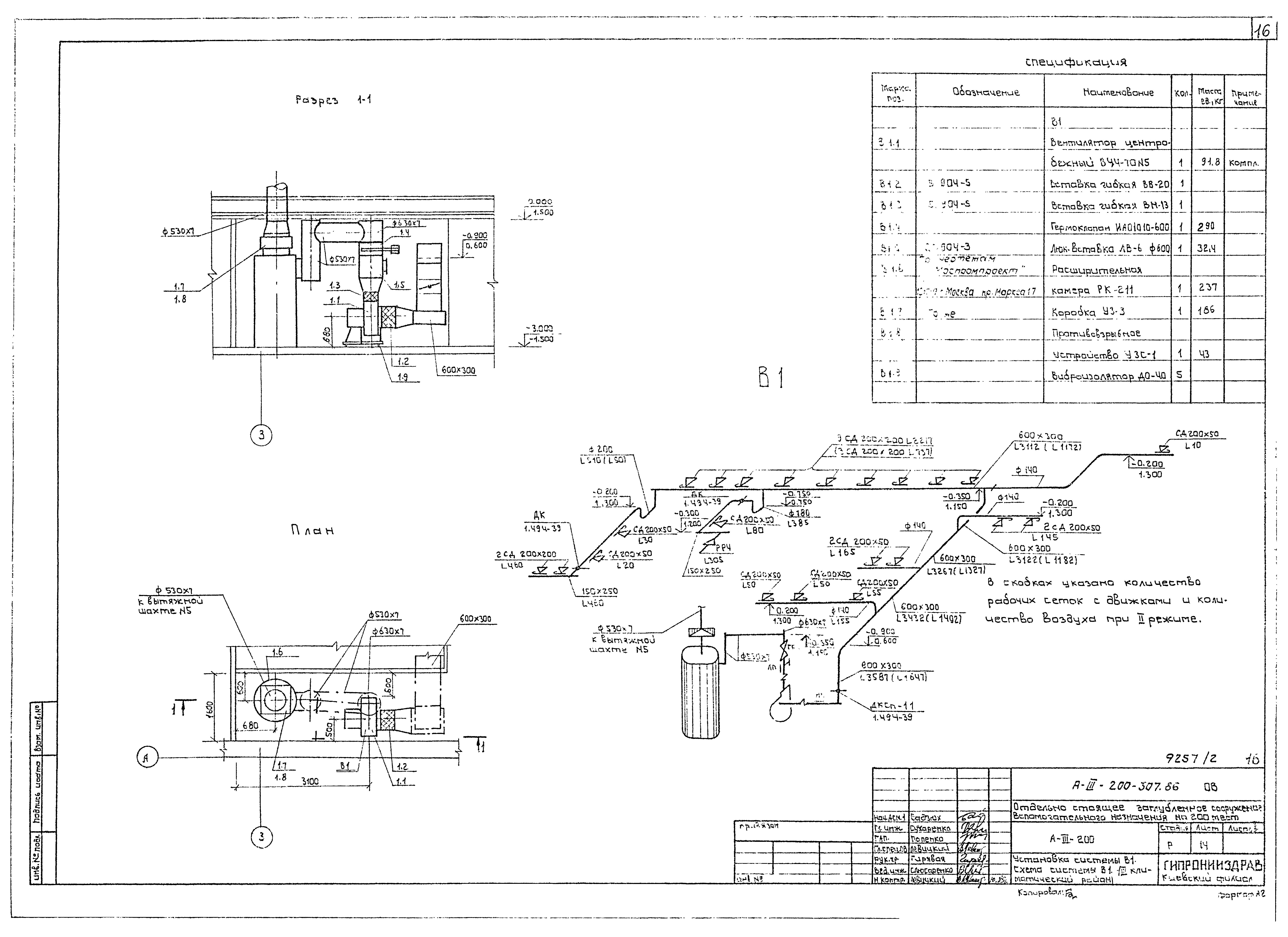
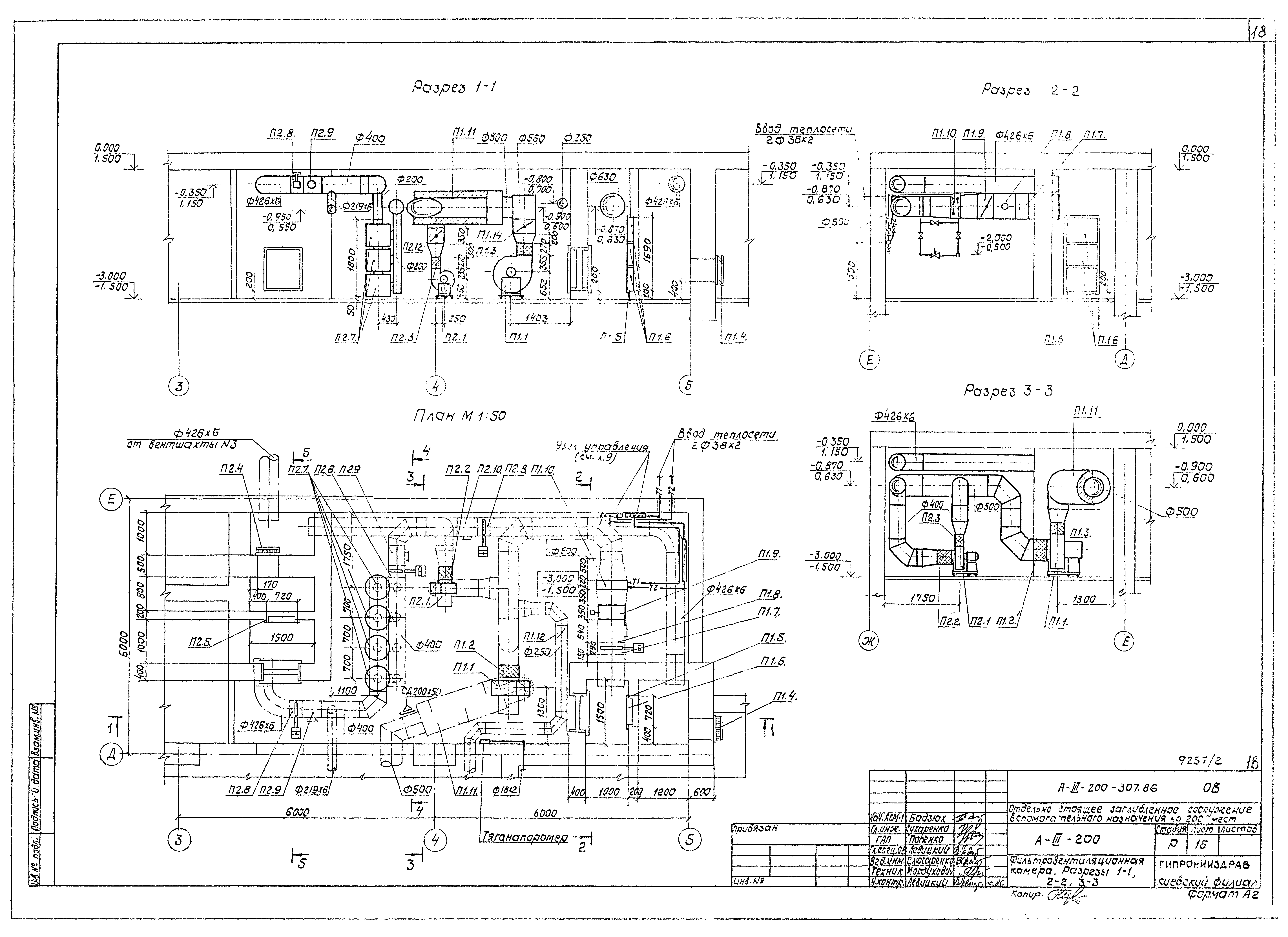
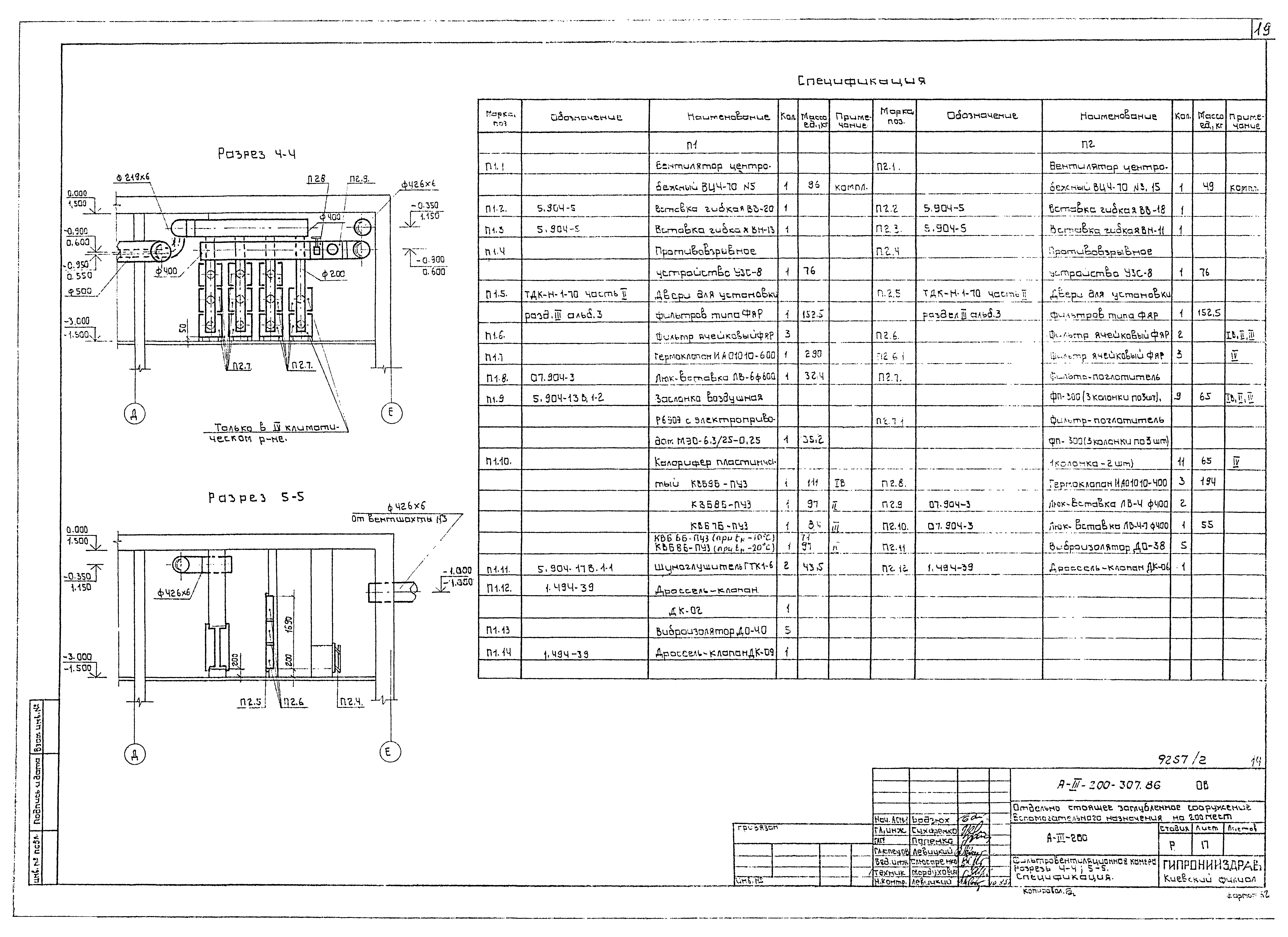
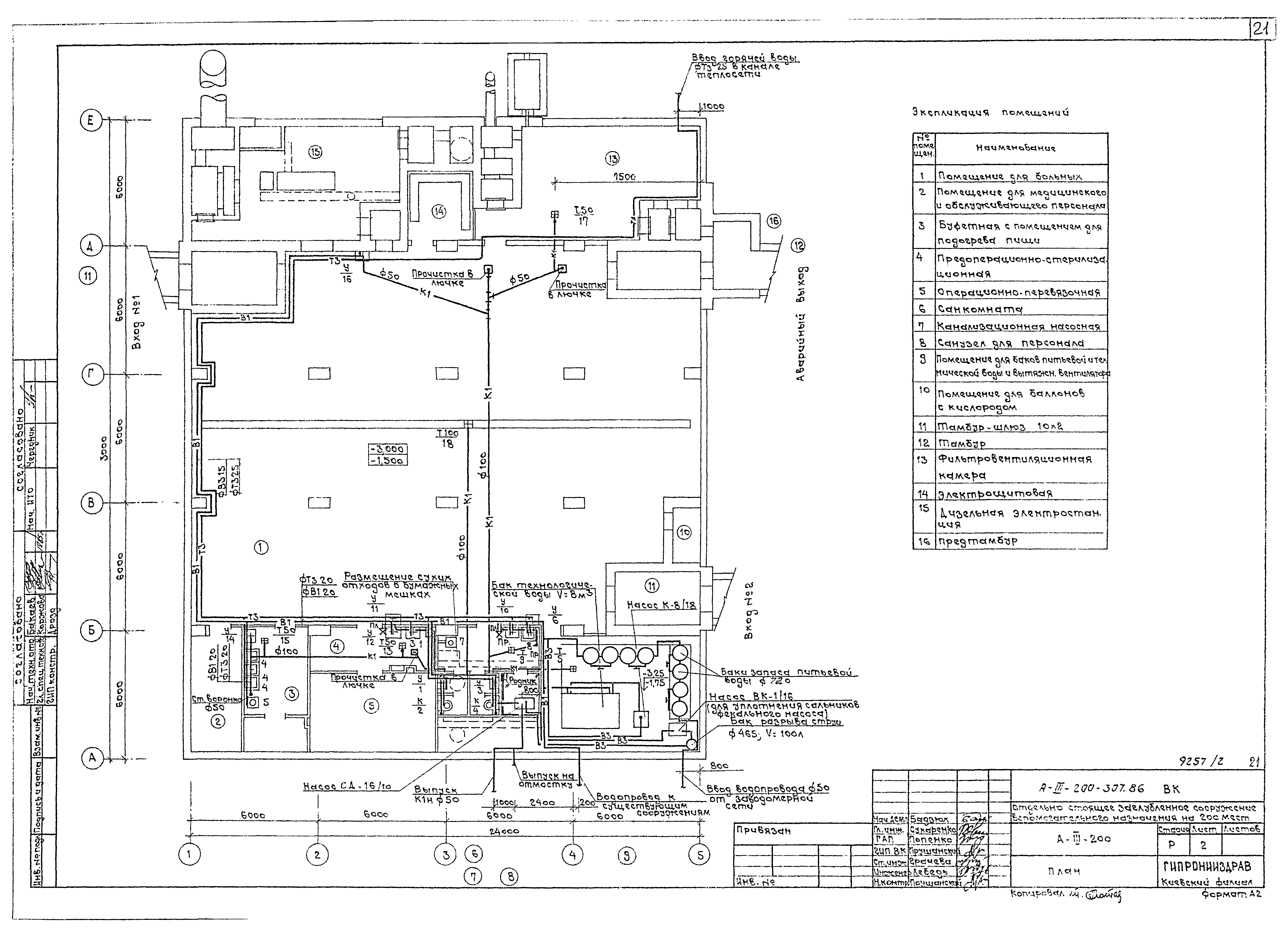
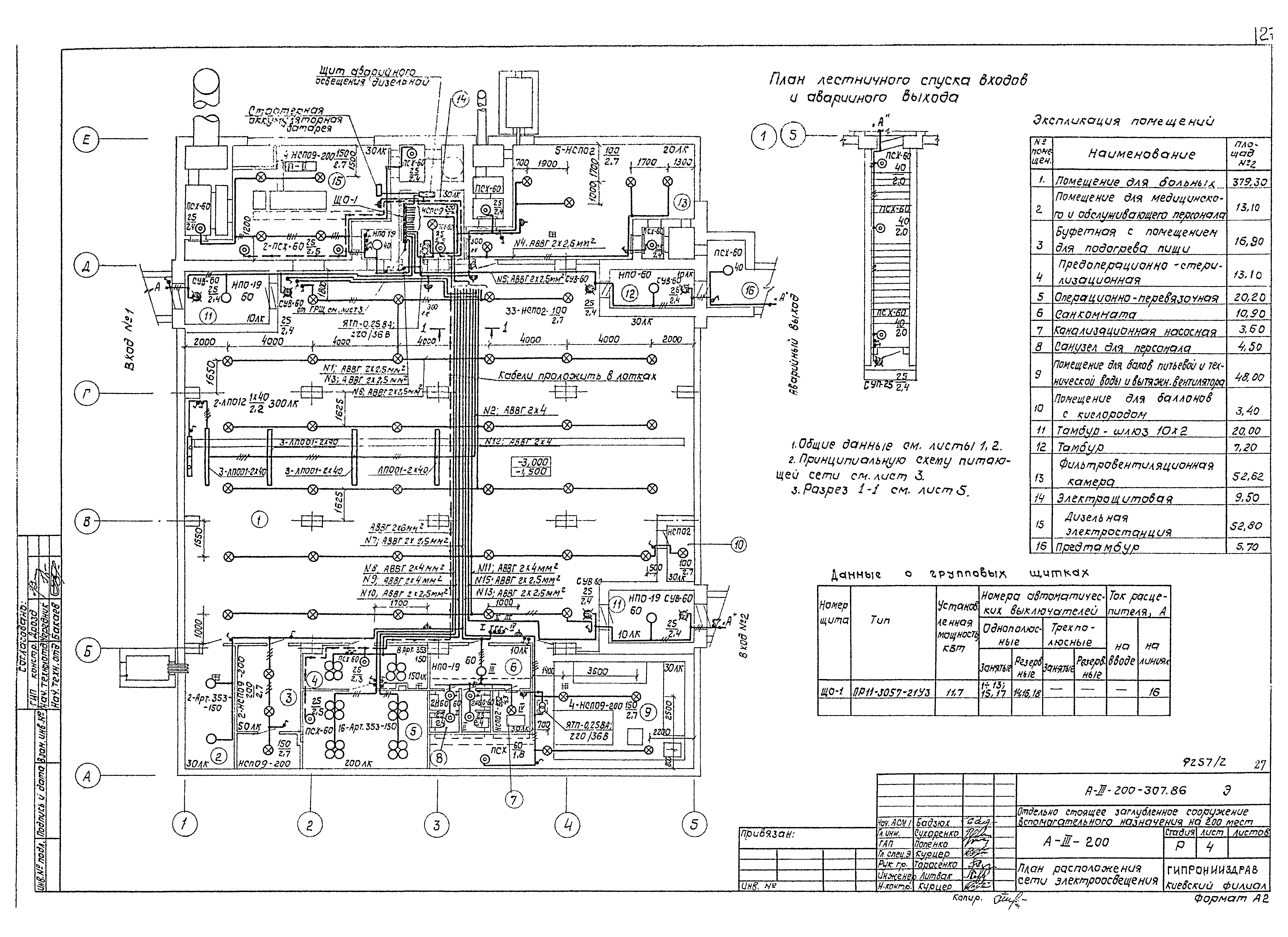
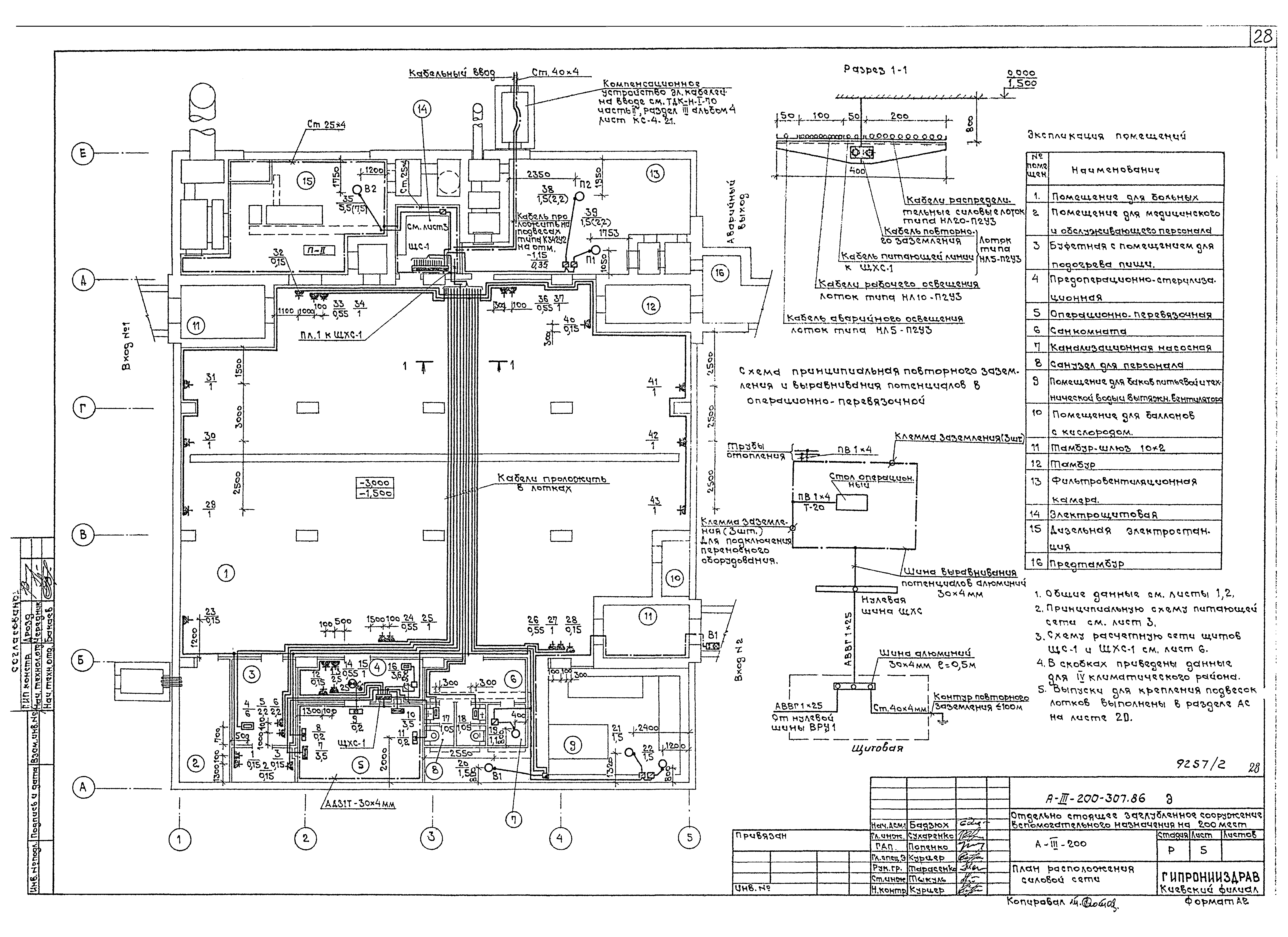
Скачать Типовой проект А-III-200-307.86 Альбом 2. Отопление и вентиляция. Водопровод и канализация. Электрооборудование. Связь и сигнализация. АвтоматизацияДата актуализации: 01.01.2021 Типовой проект А-III-200-307.86
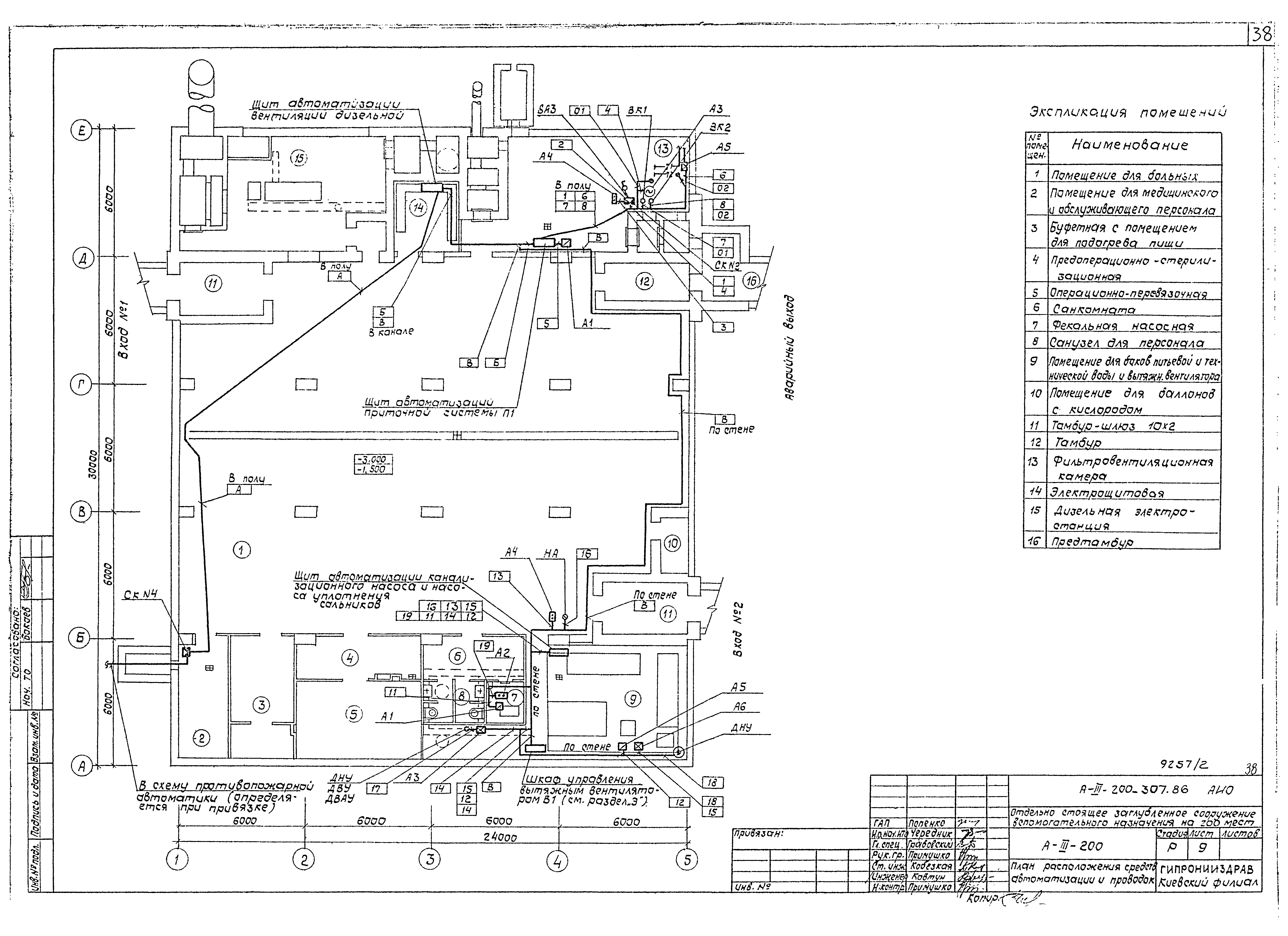
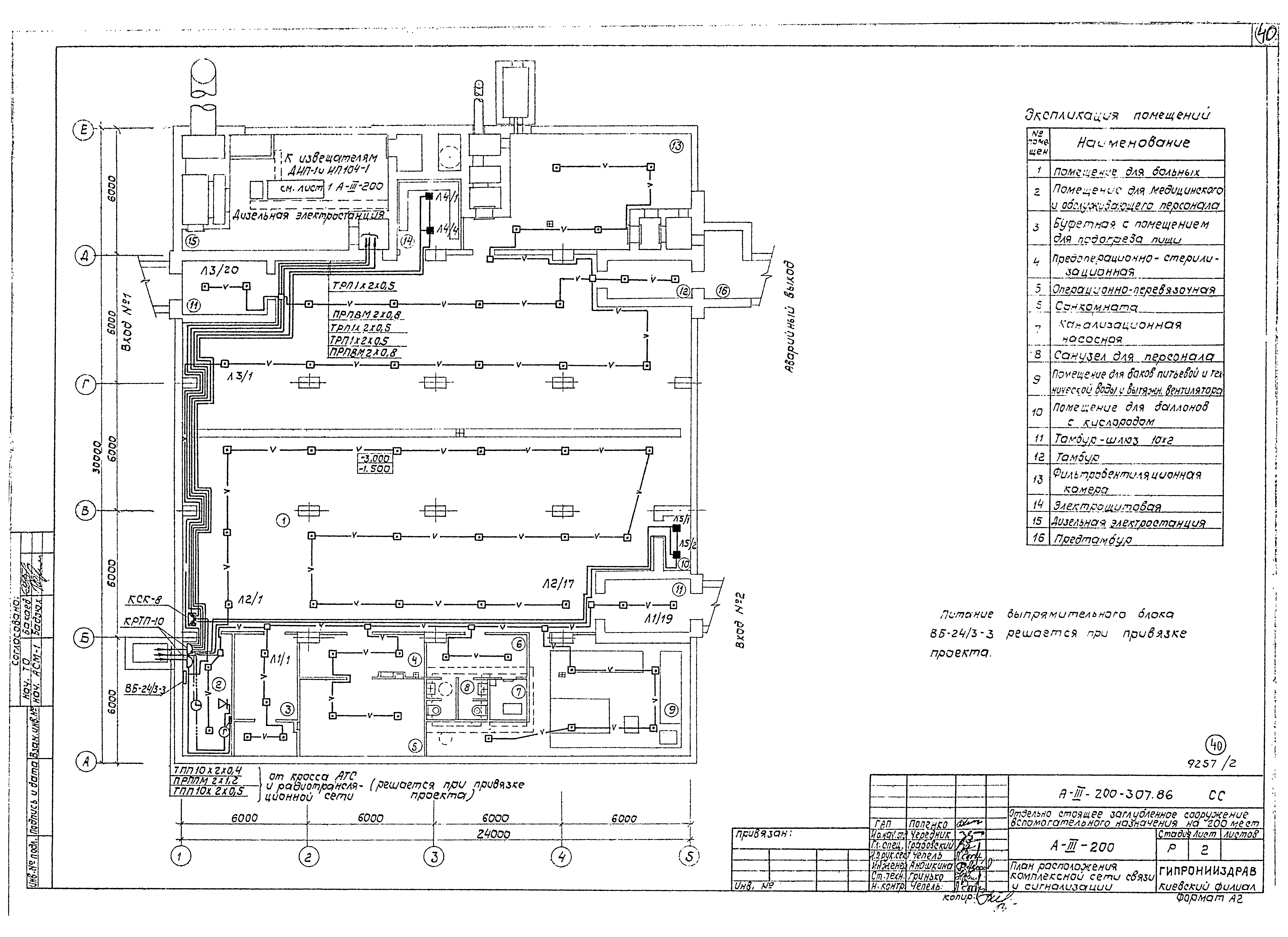
Альбом 2. Отопление и вентиляция. Водопровод и канализация. Электрооборудование. Связь и сигнализация. Автоматизация| Обозначение: | Типовой проект А-III-200-307.86 | | Обозначение англ: | А-III-200-307.86 | | Статус: | действует | | Название рус.: | Альбом 2. Отопление и вентиляция. Водопровод и канализация. Электрооборудование. Связь и сигнализация. Автоматизация | | Дата добавления в базу: | 21.05.2015 | | Дата актуализации: | 01.01.2021 | | Дата введения: | 12.12.1985 | | Утверждён: | 07.02.1985 Госгражданстрой (Gosgrazhdanstroy 36)
|
                                      
|